RIBA Part II Architect Portfolio

Page 1


Portfolio

RIBA

The University of Nottingham

Adriana Calvo
Suthern Europe - Vernacular Architecture Study

MArch Course University Projects

Y6 Thesis Project

Cimas del Urubo

Eco-Agricultural Business Centre

Y5 Spring Term Design Project

More Greenland Co-housing Scheme

Y5 Autumn Term Project Compass House

Work Experience

Cimas del Urubo

Type: Academic, 2023

Tutor: Nina Lundvall

Location: Santa Cruz, Bolivia

“Cimas del Urubo” is a forward-thinking proposal for the rural area near Santa Cruz de la Sierra, Bolivia, poised for future urban expansion. It envisions an Eco-Agricultural Business Center, blending agricultural activities with sustainable construction practices. Drawing from local architectural heritage, the project fosters community interaction and adaptability while embracing the principles of Critical Regionalism.

Site Plan - Land Use at 1:5000

Section
Structural Exploded Isonometric drawing at 1:500
Balconies with a perforated brick second layer for shading
Facade from the 1:20 Bay Study

More Greenland

Type: Academic, 2021

Tutor: Tim Collett

Location: Nottingham, England

The project, set in Nottingham and responding to the impact of the COVID-19 pandemic, seeks to revitalize Moreland Street by fostering a vibrant community environment. It re-purposes terraced houses into communal spaces like corner shops, a café, and a common house. The design prioritizes intergenerational interaction, self-sustainability, and social cohesion through shared amenities, diverse housing options, and green spaces. Additionally, it addresses the rising demand for home-based workspaces, reflecting contemporary needs during the pandemic.

Exploded axonometric view of the typical three storey Intergenerational Flat & Proposed Ground Floor Plan

North Elevation

Cafe/Restarant

Environmental and Daylighting Strategy

Passive Ventilation

1:50

Skecth Model Atrium/Shared Entrance

Co-Work
Shared Green House
Sun Terrace/Winter Garden

Compass House

Type: Academic, 2021

Tutor: Tim Collett

Location: Nottingham, England

The Compass House proposal envisages the adaptive reuse of an existing concrete structure, organized in a 5 by 5 grid and uniquely aligned with the cardinal directions, to minimize environmental and visual disruption. The design incorporates a modest extension, accommodating a multi-generational family with a strong emphasis on sustainability. Key features include summer and winter gardens, versatile living spaces, areas that facilitate transition, and distinct circulation paths to support diverse family dynamics.

The Compass House design is deeply influenced by Kazuo Shinohara, embodying ‘The Heart’ to centralize focus, ‘Conflict of Private and Public’ to intricately balance communal and intimate spaces, and ‘Black/White’ for material and emotional depth, fostering a connection with nature. These principles aim to create a reflective and rich internal experience, mirroring the contemplative essence of Shinohara’s architecture.

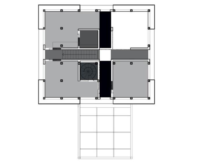
Existing Ground floor plan transformation

Second Building Layer Design Through Physical Modelling at 1:50

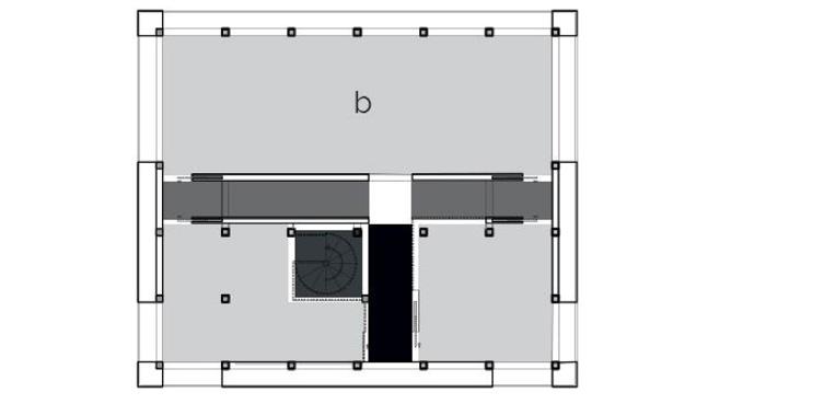
Proposed ground floor plan at 1:100

Building Section of the Fissure at 1:50

First Floor
Ground Floor

177 High Road

Type: Residential and Mixuse Practice: KKM Architects

Location: London

3D View
Proposed North East Elevation

Type: Residential and Mixuse

Practice: KKM Architects

Location: London

Proposed Southwest Elevation

Telf: 07856580968

Email: abcu.arc@gmail.com Instagram: abc.arc

Turn static files into dynamic content formats.

Create a flipbook
Issuu converts static files into: digital portfolios, online yearbooks, online catalogs, digital photo albums and more. Sign up and create your flipbook.
RIBA Part II Architect Portfolio by Adriana Calvo - Issuu