Linåskollen

Page 1


Innhold

Illustrasjon. Avvik vil forekomme.

Linåskollen er et område for deg som setter pris på å bo landlig og fredfullt, men samtidig sentralt og i kort avstand fra hovedstaden. De ulike boligene tilbyr løsninger for alle livsfaser, enten du er nyetablert og på jakt etter ditt første hjem, er en barnefamilie som trenger mer plass, eller du er godt voksen og ønsker deg en ny og lettstelt bolig.

Arkitektur og løsninger. Moderne arkitektur med tidløse og rene linjer vil prege byggene. Varierte størrelser og typer, legger godt til rette for at alle kan finne en bolig som passer.

Illustrasjon. Avvik vil forekomme.

Velkommen til Langhus

Velkommen hjem

Langhus er et levende og attraktivt område, med alt du trenger for en enkel og meningsfull hverdag i umiddelbar nærhet.

Barnehager, barneskoler og ungdomsskole, gjør stedet attraktivt for barnefamilier og matbutikk, frisør, restaurant og hagesenter rett i nærheten gir deg alt du trenger i hverdagen. På det nye nærsenteret finner du også takeaway asiatisk mat, apotek og stort, nytt treningssenter. Langhus stasjon er et steinkast unna og tar deg raskt til byen om du skulle ønske det.

Bare fem minutter unna finner du Ski, som er utpekt til å være hovedsete i Follo. Ski er et sentrum av opplevelser og aktiviteter, enten du er ute etter shopping, en god middag eller en kulturell opplevelse.

For den aktive er det ikke langt til idrettshall, splitter ny svømmehall, fotballbaner, skatepark og skøyteis. Den nærliggende skogen gir en rolig pause i hverdagen og opplyste lysløyper gjør det mulig å nyte naturen både sommer, vinter, dag og kveld. Alt du trenger for et godt liv.

Illustrasjon. Avvik vil forekomme.

Når arbeidsdagene ligger bak deg og du har mer tid

leve

Linåskollen er for deg som ønsker å nyte livet. Her kan du flytte rett inn i en moderne, praktisk leilighet med heis, lite vedlikehold og kort vei til både butikk, apotek, frisør og Langhus´ triveligste togstasjon. Tenk å våkne med fuglekvitter i ørene, starte dagen med frokost på en lun balkong eller ta en rusletur med en hyggelig nabo. På Linåskollen er det lagt til rette for både sosiale møteplasser og stille stunder.

Et sted der hverdagene blir litt enklere – og livet litt rikere

Illustrasjon. Avvik vil forekomme.

Lettstelt bolig og minimalt med vedlikehold

Sentral beliggenhet

Grønne omgivelser

Sosiale møteplasser og et inkluderende nabolag

Heis fra underliggende parkeringskjeller og rett opp i boligetasjene

Skap det livet du ønsker deg

Tenk deg å starte dagen med en kopp kaffe på terrassen, med fuglesang i bakgrunnen og skogen som nærmeste nabo, og samtidig vite at du bare er en liten togtur unna Oslo. Linåskollen er et helt nytt nabolag med et bredt utvalg av rekkehus og leiligheter i ulike størrelser og løsninger. På Linåskollen er det plass til alle, enten du skal inn i ditt aller første hjem, er barnefamilie på jakt etter mer plass, eller ønsker noe lettstelt og behagelig i en roligere fase av livet.

De to første byggetrinnene markerer starten på et større område som skal formes med tanke på både mennesker og miljø. Her er det lagt vekt på fremtidsrettet planlegging, slik at du blir en del av noe mer enn bare et boligprosjekt, du blir del av et fellesskap.

Et sted å starte, et sted å lande

For deg som skal ha ditt første hjem er Linåskollen et trygt og godt sted å begynne. Her bor du i lyse, nye, funksjonelle leiligheter med tidløs design, gjennomtenkte løsninger og god plass til drømmene dine. En splitter ny bolig gir minimalt med vedlikehold slik at du kan bruke tiden til det du har lyst til.

Skap ditt første hjem på Linåskollen, dine første minner og din egen fremtid.

Minimalt med vedlikehold i mange år

Trygg investering for fremtiden

Kort vei til tog og buss, kort vei til Oslo

Nytt og sosialt nabolag

Kort vei til skole, barnehage og aktiviteter

Flere trygge og grønne lekeplasser

Kort vei til marka

Trygt og rolig nabolag

Nærhet til offentlig kommunikasjon

Senk skuldrene, på Linåskollen er det trygt å vokse opp

Linåskollen er perfekt plassert for barnefamilier som setter pris på kort vei til både skole, barnehage og det du måtte trenge i hverdagen. Med moderne leiligheter og rekkehus tett ved natur og et uteområde som er skapt for lek og utforskning, ligger alt til rette for at familien skal trives og skape minner som varer livet ut.

Et hjem der minnene skapes, og familien kan vokse.

Et nytt kapittel, en ny start?

Noen ganger tar livet en annen retning. Kanskje er du på vei inn i en hverdag med barn på flyttelasset og et behov for en ny og trygg start. Da er Linåskollen et trygt sted å lande. Her får du moderne, lettstelte boliger med kort vei til skole, fritidsaktiviteter og alt barna trenger i hverdagen, samt sosiale fellesarealer hvor du kan slå av en prat med naboen mens barna boltrer seg på lekeplass eller koser seg inne hos hverandre.

For deg og det nye livet du skal bygge.

Moderne og lettstelte leiligheter

Minimalt med vedlikehold i mange år

Rolig og trygt nabolag

Nærhet til alt

Enkel tilgang til skole, barnehage og aktiviteter

NÆROMRÅDET

Livet på Linåskollen –et nabolag fullt av muligheter

Linåskollen ligger vakkert til med vestvendte solforhold og skogen som nærmeste nabo. Et perfekt sted for både lek og rekreasjon, med mange turmuligheter og rom for aktiviteter, gjør Linåskollen til et attraktivt valg for alle.

Det er god barnehagedekning med ikke mindre enn 3 barnehager, samt barne- og ungdomsskole i nærheten. Langhus nærsenter med blant annet apotek, frisør, restaurant, hagesenter og eldresenter og gir både arbeidsplasser og lokal tilhørighet. Idrettshall, fotballbaner, treningspark, splitter ny svømmehall og frisbeegolfbane får fritiden til å gå, og skulle du ønske å bare lene deg tilbake på balkongen, så er det også lov.

Hverdagslykke

- Landlig, men sentralt
Langhus Stasjon
Vevelstad Stasjon

Nærhet til det meste

Området består av et vestvendt fallende terreng der bebyggelsen er plassert og formet slik at utearealene for svært gode solforhaold på den beste tiden av døgnet.

I umiddelbar nærhet finnes et rikt kulturlandskap som byr på gode rekreasjonsmuligheter hele året. Kulturlandskapet vil bli trukket inn i bebyggelsen og uteområdene mellom bygningen vil utarbeides. Her blir det tilrettelagt for ulike soner for lek og opphold med sosiale møteplasser slik at de passer for alle aldresgrupper og livsfaser.

Dessuten grenser tomta til lysløype og langrennspor, og kun et steinkast unna finner du Fosstjernet som er et populært turmål for store og små.

Mot vest og Langhusveien er det et skjermende vegetasjonsbelte som bidrar med kvalitet til den nye boligidyllen på Linåskollen. Fra Linåskollen er det gangavstand til både Langhus Stasjon og nærmeste busstopp. Toget fra Ski stasjon til Oslo S tar kun 12 minutter og går hvert 10. minutt

Langhusbadet åpnet i januar 2025 og har familiegarderobe, badstue og basseng med 28 grader.

Frisbeegolf har blitt populært. På Langhus finner du en 18 hullsbane som passer både for nybegynnere og erfarne spillere. Ny Mester Grønn – din lokale blomsterbutikk på det nye nærsenteret på Langhus

Ski storsenter –145 butikker som venter på deg

Langhus triveligste togstasjon er bare få minutter unna og tar deg til Oslo på kort tid.
Langhus – Et sted å leve et sted å bo.

Lev livet du drømmer om

Å bo landlig, men samtidig sentralt med bare litt over 2 mil fra hovedstaden, er en drøm for mange. La den korte spaserturen til Langhus togstasjon bli en del av din morgenrutine og sving innom det nye treningssenteret på vei hjem. Bruk søndagen til en god tur til idylliske Bukkesti, eller unn deg en dukkert i Tussetjern like ved.

Langhus byr på idrettshall, svømmehall, fotballbaner, skatepark, skøyteis og lysløyper rett rundt hushjørnet.

I Linåskollen skal det være godt bo og godt å leve.

LANDSKAPSARKITEKTEN:

Frodig, trygt og mangfoldig

På Linås har det vært viktig for oss som landskapsarkitekter å skape et spennende og mangfoldig utomhusanlegg der kombinasjonen av attraktive fellesarealer og romslige private soner skaper et godt og trygt bomiljø.

Her skal man kunne trekke seg tilbake i sin egne private hage eller terrasse, samtidig som man vet at barna kan leke trygt i nabolaget, løpe mellom lekeplassene eller sykle på internvegene mellom bebyggelsen. Både de små og store barna vil finne lekemuligheter i nærheten som utfordrer og stimulerer sansene.

Det er lagt til rette for mer eller mindre bilfrie boligfelt, der bilen tidlig ledes til parkeringskjeller eller parkeringsplasser i ytterkant av feltet. Dette bidrar til å løfte området som et helhetlig og sammenhengende gårdsrom å være i. Busker, hekker og boder skjermer de private inngangssoner og hager, og felles lekearealer og møteplasser skal ha et frodig preg med busker, stauder og trær. Et nøysomt forhold til miljø og overvannshåndtering er viktig for anlegget og fremmer robuste, estetiske og klimasmarte løsninger for fremtiden.

Både private og felles uterom vil være solfylte og lyse gjennom store deler av dagen og utearealene er skjermet mot støy fra bilveier og

jernbane. Man har gode forbindelser til turdrag og lysløyper i grønne omgivelser året rundt. Med den grønne omrammingen av feltet vil man nesten glemme at det nye boligområdet på Linås har en så sentral lokasjon som det har og at boligområdet er plassert i omtrent umiddelbar nærhet til kollektivtilbud, næring, skole og barnehage.

Vårt ønske har vært å skape uterom der beboerne føler seg hjemme, der man føler en sterk tilhørighet og der det er rom for alle. Her velger man selv om man vil trekke seg tilbake i sin private skjermede hage med en god bok eller om man vil møte naboen over en kopp kaffe på en av de mange leke- og møteplassene mens barna får utfolde seg fritt i grønne omgivelser.

Landskapsarkitekt, Multiconsult

ARKITEKTEN:

Veletablert boligidyll

Linåskollen er et nytt boligområde sør på Langhus. I utvikling av området har det vært stort fokus på å skape et variert og godt bomiljø. Det er stor variasjon i størrelse og utforming av den enkelte bolig slik at området er tilpasset mennesker i alle aldre og livsfaser. De ulike boligene favner løsninger for så vel barnefamilier som eldre, om du er alene eller del av en stor familie.

Mot vest og Langhusveien er det et skjermende vegetasjonsbelte som bidrar med kvalitet til den nye boligidyllen på Linåskollen.

Området ligger kun 600 meter fra Langhusstasjon for de som har sin arbeidsplass i Oslo, og det er kun 400 meter til nærmeste skole.

LEILIGHETSBYGGENE

Leilighetsbyggene består av fem boligetasjer. Samtlige boenheter har privat vestvendt uteareal i form av solfylt markterrasse eller balkong, avhengig av om du liker deg i høyden eller vil ha nærkontakt med landskapsrommet.

Blokkenes beliggenhet i det fallende terrenget gir svært gode sol og utsiktsforhold fra alle etasjer. Byggene får et inviterende inngangsparti. Fasadene består av vakker trekledning i kombinasjonen med vindus- og balkongdetaljer i lakkert metall som gir blokkene et varmt utrykk. I utformingen av den enkelte leilighet er det vektlagt moderne løsninger med et tidløst preg. Bebyggelsen har underliggende parkeringskjeller med heis direkte opp i boligetasjene. Det etableres 50 leiligheter fordelt å 3 blokker, som varierer fra effektive 2-roms til romslige 4-roms leiligheter.

FELLES UTEOPPHOLDSAREAL OG LEKEPLASS

I hjerte av bebyggelsen ligger et stort felles lekeog rekreasjonsområde. Området har bålplass og frodig vegetasjon. Gangveier slynger seg gjennom området og inn mellom bebyggelsen. Slik knyttes det store felles uteoppholdsarealet sammen med mindre leke- og rekreasjonsområder med boligområdene og videre opp mot eksisterende tursti og kulturlandskap i øst.

Marius Bjørge

Sivilarkitekt MNAL

Dyrø og Moen AS Arkitekter MNAL

Illustrasjon. Avvik vil forekomme.

VELKOMMEN INN

Nytt, trygt og tidløst

Seks smarte fordeler med å kjøpe nytt!

1 2 3 4 5 6

ALT ER NYTT, FLYTT RETT INN

Å sette nøkkelen i en splitter ny bolig er en helt spesiell følelse. Her er det ingen gamle rør, slitte flater eller utdatert kjøkken - bare blanke ark og en ny start. Ønsker du å legge din personlighet til boligen din, kan du med enkle grep gi den et et malestrøk her og der, eller være kreativ med belysning og innredning, men ellers er det bare å nyte.

LAVE OMKOSTNINGER

Når du kjøper en ny leilighet betaler du dokumentavgift på 2,5 % til staten kun for din andel av tomteverdien, og ikke av totalprisen slik du gjør ved kjøp av bruktbolig. Det gir deg betydeligere lavere omkostninger ved overtagelse. Eksempel på en leilighet på 6 millioner og andel tomteverdi på 1 000.000,-, vil forskjellen være på 125.000,-

GARANTI

En ny bolig kommer med garanti dekket av bustadoppføringsloven. Det sørger for at du har økonomisk garanti og reklamasjonsrett i 5 år etter kjøpet.

RYDDIG KJØPSPROSESS

Fra du bestemmer deg for å bli ny boligeier til du setter nøkkelen i døren er det en ryddig prosess med tid til å sette seg inn i alt du ønsker. Ingen stressende budrunder. Du kjøper til fastpris.

ET NABOLAG

MED MULIGHET FOR NYE VENNSKAP

I et nytt nabolag er alle nye for hverandre. På Linåskollen er det lagt stor vekt på å tenke helhetlig med fine grøntområder, lekeplasser og sosiale soner som legger til rette for at du skal trives, enten for deg selv i egen hage, med gode venner på besøk eller kanskje et nytt vennskap spirer i de grønne omgivelsene.

MILJØVENNLIG OG BÆREKRAFTIG VALG

Moderne byggematerialer, energiøkonomiske og klimavennlige løsninger basert på dagens standard gir et lavere klimafotavtrykk og et mer bærekraftig hjem. Balansert ventilasjon med varmegjenvinning, samt bedre isolasjon, gir god komfort og et hjem med behagelig temperatur.

Gjennomtenkt kvalitet, med valgfrihet for deg

På Linåskollen er det lagt stor vekt på smarte løsninger og materialer som er bygget for vare lenge. Moderne linjer kombineres med varmedetaljer som treverk i fasadene som nesten smelter inn i naturen og detaljer som skal tåle å brukes og beundres i mange år.

I ditt nye hjem på Linåskollen får du ikke bare kvalitet, du får også valgmuligheter som gjør at boligen føles som ditt hjem allerede før du flytter inn. Med sparklede, malte vegger kan du velge mellom to ulike farger så du kan sette ditt preg på boligen. På alle gulv, unntatt på bad velger du mellom to elegante typer eikeparkett som begge inngår i standardleveransen.

Illustrasjoner. Avvik vil forekomme.

Drømmebad og drømmekjøkken

Kjøkkenet er hjemmets hjerte og et sted for hverdagsøyeblikk og gode samtaler. På Linåskollen har vi lagt vekt på både funksjon og form, og alle kjøkken leveres i glatt utførelse hvor du står fritt i å velge mellom fire tilgjengelige farger uten tillegg i pris.

Bøylehåndtak i stål, laminat benkeplate med rett forkant og overlimt oppvaskkum gir et rent inntrykk. Hvitevarene er integrerte og inkluderer komfyr, induksjonstopp, oppvaskmaskin, kjøl og frys – alt klart til bruk.

Sett ditt preg

På veggene har du to fargealternativer, mens på badet kan du velge mellom to typer fliser. Alle valgene kan du gjøre uten ekstra kostnad.

Har du allerede en idé om hvordan ditt drømmekjøkken ser ut, finnes utallige muligheter i tilvalgsprosessen med god hjelp fra kjøkkenleverandøren. Det er ikke alle ønsker som lar seg oppfylle, men mange får vi til.

Det er lov å drømme litt, og du får selvfølgelig pris før du bestemmer deg.

Snø
Granitt
Korn
Sky
Sigdal Vidde
Velg mellom fire tilgjengelige farger uten tillegg i pris.
Illustrasjon. Avvik
Illustrasjon. Avvik vil forekomme.

ETASJEPLAN BYGG A

1. etasje

ETASJEPLAN BYGG B og C

1. etasje

ETASJEPLAN BYGG A

2. – 4. etasje

ETASJEPLAN BYGG B og C

2. – 4. etasje

ETASJEPLAN BYGG A

5. etasje

ETASJEPLAN BYGG B og C

5. etasje

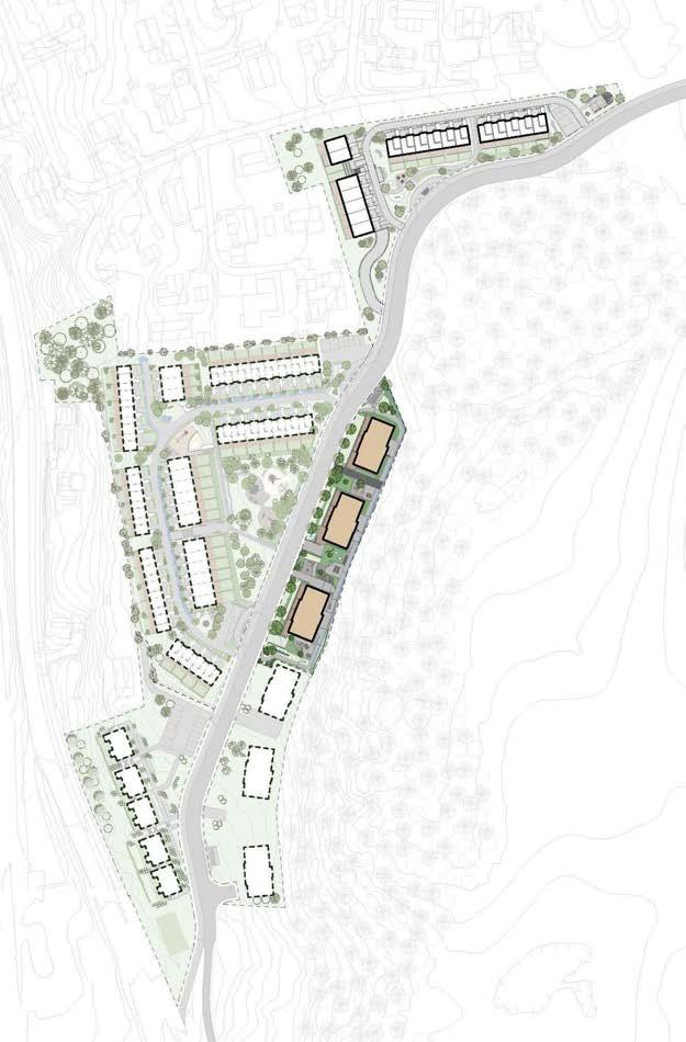
SITUASJONSPLAN

A B C
Illustrasjon. Avvik vil forekomme.

TYPE A1

BLOKK B og C

BLOKK B+C_ LEILIGHETSTYPE A1

1. ETG.

TYPE A1

BLOKK B og C

B203 • B303 • B403 C203 • C303 • C403

BLOKK C - FASADE MOT VEST

B+C_ LEILIGHETSTYPE A1

TYPE A2

TYPE A2

BLOKK B og C

B202 • B302 • B402

C202 • C302 • C402

BLOKK B+C_ LEILIGHETSTYPE A2

ETG.

BLOKK C - FASADE MOT VEST

TYPE B

BLOKK A_ LEILIGHETSTYPE B 1. ETG.

TYPE B

C - FASADE MOT VEST A202 • A302 • A402

BLOKK A_ LEILIGHETSTYPE B

2. - 4. ETG.

TYPE C1

BLOKK A+B+C_ LEILIGHETSTYPE C1 1. ETG.

TYPE C1

BLOKK A, B og C

A201 • A301 • A401

B201 • B301 • B401

C201 • C301 • C401

BLOKK A+B+C_ LEILIGHETSTYPE C1

BLOKK C - FASADE MOT VEST

BLOKK B+C_ LEILIGHETSTYPE D2

1. ETG.

TYPE D2

BLOKK B og C

B204 • B304 • B404

C204 • C304 • C404

BLOKK B+C_ LEILIGHETSTYPE D2

BLOKK A_ LEILIGHETSTYPE E 1. ETG.

BLOKK A_ LEILIGHETSTYPE E

2. - 4. ETG.

A501 • B501 • C501

BLOKK A+B+C_ LEILIGHETSTYPE G 5. ETG.

TYPE F

BLOKK A, B og C

BLOKK A+B+C_ LEILIGHETSTYPE F

Illustrasjon. Avvik vil forekomme.

KVALITETSBESKRIVELSE INFORMASJON TIL KJØPER

Kvalitetsbeskrivelse

GENERELT

I det følgende gjengis et utvalg fra beskrivelsen som vi mener er av betydning for boligkjøper. Alle opplysninger er gitt med forbehold om rett til endringer som er hensiktsmessige og nødvendige, uten å forringe den generelle standarden i nevneverdig grad. Det tas forbehold om uforutsette pålegg fra myndighetene. Mindre endringer som måtte bli funnet hensiktsmessige i forbindelse med detaljering av prosjektet, samt gjennomføring av byggesaken, må påregnes.

Det kan forekomme avvik mellom leveransebeskrivelsen og plantegninger/prospekt/salgsoppgave. I slike tilfeller er det alltid denne leveransebeskrivelsen som er retningsgivende. Enkelte illustrasjoner i tegningsmaterialet kan vise forhold som ikke er i samsvar med leveranse, eksempelvis forslag til møblering, fargevalg, dør- og vindusform, bygningsmessige detaljer, f.eks. fasadedetaljer, detaljer på fellesarealer, materialvalg, blomsterkasser, beplantning etc.

Prosjektet bygges etter TEK17. Den håndverksmessige utførelsen skal tilfredsstille NS3420, normalkrav for planhets- og retningstoleranser. Tilpasninger og/eller mindre endringer i kjøkken og våtrom (avvik fra salgstegning) kan forekomme dersom detaljprosjektering viser at dette er nødvendig.

Videre kan vindusplassering og -størrelser i den enkelte leilighet avvike noe fra de generelle planer som følge av tilpasninger av tekniske løsninger, offentlige myndighetskrav og den arkitektoniske utformingen av bygget.

Boligen er utstyrt med godt isolerende vinduer, noe som medfører at det kan forekomme dugg på utsiden av glasset (spesielt om morgenen etter en klar natthimmel).

Dette er imidlertid en naturlig konsekvens av lite varmetap fra vinduet, og er ikke skadelig.

Perspektivtegninger i prospektet, på hjemmesiden og i annonser har illustrativ karakter, og det tas forbehold om angitte detaljer.

Leilighetsplaner viser forslag til plassering av møbler og utstyr. Dette er ikke med i leveransen. Stiplede møbler og utstyr på bad, bad/vask, WC og vaskerom leveres ikke.

Leilighetene vil bli skilt ut som eierseksjoner med eget seksjonsnummer.

KONSTRUKSJON

Bygningen utføres med bærekonstruksjon i betong og stål. Etasjeskillere i utføres i plasstøpt betong og/eller betongelementer. Takkonstruksjoner i betong/elementer utvendig isolert og tekket med folie eller papp. Det leveres sedum på deler av tak.

Fasader består hovedsakelig av trepanel, glass, fasadeplater og beslag.

Innvendige vegger består av stålstendere kledd med gipsplater. Enkelte vegger har overflate i betong, som for eksempel mellom leiligheter, mot trapperom og enkelte steder mot fasaden.

STANDARD I LEILIGHETENE

GENERELT

Boligene leveres med en takhøyde på ca. 250 cm. Alle himlinger males hvite og det vil kunne bli synlig v-fuger mellom betongelementene i himlingen. Rørføringer vil i all hovedsak bli skjult bak innkassinger og som helt eller delvis nedforede platehimlinger, fortrinnsvis i entré, bad, bod og kjøkken. Lokale nedforinger i andre rom vil forekomme. Nevnte konstruksjoner vil bli overflatebehandlet som en del av overflaten der konstruksjonen blir montert. Netto takhøyde på minimum 220 cm ved nedforinger. Alle himlinger sparkles og males til fullt dekk. Nedsenket himling/innkassinger har sparklet og malt gips. Det leveres ikke taklister.

Det leveres høye vinduer. Balkongdører med overkant på ca. 210 cm over gulv. Det leveres i hovedsak slagdører til balkonger. Vinduer og balkongdører leveres med trekarmer uten utvendig alukledning. Entrédørene får kikkhull og leveres med FG-godkjent lås og beslag. Vinduer og dører leveres ferdig malt fra fabrikk i hvit farge innvendig. Vinduer og balkongdører leveres uten gerikter og listverk. Øvrige gerikter og lister gjæres og leveres med synlige spikerhull. Leilighetene har et innslag av skyvedører, kfr. plantegningene.

MARKTERRASSER/BALKONGER

Balkonger leveres med dekke i betong. Markterrasser utføres med terrassebord. Balkonger får enten skråstag eller søyler som bæring. Rekkverk på balkonger kan utføres i en kombinasjon av stål, aluminium, glass og treverk. Det leveres i utgangspunktet ikke rekkverk på markterrasser, med mindre det er krav.

Markterrasser/balkonger er å betrakte som en utvendig konstruksjon og er utsatt for vær og vind. Mindre ansamlinger av vann vil derfor kunne oppstå på gulvflaten etter regnvær. Innslag og drypp av regnvann fra ovenforliggende balkonger må påregnes. Som det fremgår av fasadetegningene medfører variasjon i balkongutformingen at ikke alle balkonger får overdekning.

ENERGIØKONOMISERING

Hver leilighet får eget balansert ventilasjonsanlegg med aggregat med varmegjenvinning som plasseres i fortrinnsvis teknisk rom/bod i hver leilighet. Der det ikke er mulig å plassere aggregat i teknisk rom/bod vil det bli plassert i entré/korridor. Avtrekkshetten over koketopp får omluftsventilasjon, det vil si at luften renses gjennom et kullfilter og slippes ut i rommet ved tak. Boligene varmes opp med vannbåren gulvvarme. Energisertifikat overleveres ved overtakelse.

ENTRÉ/KORRIDOR

Gulv: En-stavs 13 mm eikeparkett og eik gulvlister. Kjøper kan velge mellom to typer eikeparkett uten tillegg i pris.

Gulvlister tilpasset parkettype. Samme type parkett må velges i alle rom i leiligheten.

Vegger: Sparklet og malt. Kjøper kan velge mellom to standardfargevalg uten tillegg i pris (gjelder dersom hele rommet males i samme farge).

Himling: Sparklet og malt.

Garderobe: Det leveres ikke garderobeskap. Stiplede skap er vist som illustrasjon.

Øvrig: Tekniske komponenter som sikringsskap og fordelerskap for vann og varme vil fortrinnsvis bli plassert i teknisk rom/bod eller bad, men plassering av komponenter kan forekomme i entré/korridor.

KJØKKEN

Gulv: En-stavs 13 mm eikeparkett og eik gulvlister. Kjøper kan velge mellom to typer eikeparkett, uten tillegg i pris. Gulvlister tilpasset parkettype. Samme type parkett må velges i alle rom i leiligheten.

Vegger: Sparklet og malt. Kjøper kan velge mellom to standardfargevalg uten tillegg i pris (gjelder dersom hele rommet males i samme farge).

Himling: Sparklet og malt.

Innredning: Kjøkkeninnredning fra Sigdal, type Vidde med håndtakstype Hekken, stål 128 mm. Kjøper kan velge fritt mellom de 4 tilgjengelige fargene som modellen kommer i. Skaphøyde 210 cm. Det leveres dempere på skuffer og skap. Avfallsskuff under kjøkkenvask. Kjøkken med hjørneskap leveres med hjørnekarusell der det er plass. Fritt valg i tilgjengelige 2 cm laminatbenkeplater med rett forsterket forkant med oppvaskkum. Det leveres ettgreps blandebatteri.

Det leveres LED-downlights med dimmer og stikkontakt i underkant overskap.

Det leveres integrert hvitevarepakke fra Siemens eller tilsvarende.

STUE

Gulv: En-stavs 13 mm eikeparkett og eik gulvlister. Kjøper kan velge mellom to typer eikeparkett, uten tillegg i pris.

Gulvlister tilpasset parkettype. Samme type parkett må velges i alle rom i leiligheten.

Vegger: Sparklet og malt. Kjøper kan velge mellom to standardfargevalg uten tillegg i pris (gjelder dersom hele rommet males i samme farge).

Himling: Sparklet og malt.

SOVEROM

Gulv: En-stavs 13 mm eikeparkett og eik gulvlister. Kjøper kan velge mellom to typer eikeparkett, uten tillegg i pris. Gulvlister tilpasset parkettype. Samme type parkett må velges i alle rom i leiligheten. Det leveres ikke varme i gulvet på soverom.

Vegger: Sparklet og malt. Kjøper kan velge mellom to standardfargevalg uten tillegg i pris (gjelder dersom hele rommet males i samme farge).

Himling: Sparklet og malt.

Garderobe: Det leveres ikke garderobeskap. Stiplede skap er vist som illustrasjon.

BAD

Gulv: Flislegges med 30x30 cm fliser i lys/gråfarge. Nedsenk med 10x10 cm fliser i samme utførelse i dusjnisje. Gulvvarme.

Vegger: Flislegges med 30x60 cm fliser. Kjøper kan velge mellom to pakker flis (hvitbeige og grå).

Himling: Sparklet og malt. Det leveres LED-downlights med dimmer.

Innredning: Det leveres hvit baderomsinnredning, type Hanna servantskap eller tilsvarende i 60 cm bredde med nedfelt servant, type Groe cube eller tilsvarende. Det leveres ettgreps blandebatteri, type Oras Cubista 2804F med klikkventil eller tilsvarende. Det leveres speil med lys over servant tilpasset servantseksjonens bredde. Det leveres rette dusjvegger. Til dusj leveres dusjsett, type Oras Optima 7192 eller tilsvarende. Det leveres vegghengt toalett, med innebygd eller utenpåliggende sisterne. På bad leveres opplegg for vaskemaskin og tørketrommel med kondensfjerner.

WC

Gulv: Flislegges med 30x30 cm fliser i samme farge som bad. Gulvvarme.

Vegger: Sparklet og malt med sokkelflis.

Himling: Sparklet og malt.

Innredning: Det leveres servantskap i 60 cm bredde med heldekkende servant, type Hanna servantskap.

Det leveres ettgreps blandebatteri, type Oras Cubista 2804F med klikkventil eller tilsvarende. Det leveres speil tilpasset servantseksjonens bredde. Det leveres vegghengt toalett, med innebygd eller utenpåliggende sisterne.

TEKNISK ROM/BOD

Gulv: En-stavs 13 mm eikeparkett og eik gulvlister. Kjøper kan velge mellom to typer eikeparkett, uten tillegg i pris. Gulvlister tilpasset parkettype. Samme type parkett må velges i alle rom i leiligheten. Det leveres ikke varme i gulvet på teknisk rom/bod.

Vegger: Sparklet og malt. Kjøper kan velge mellom to standardfargevalg uten tillegg i pris.

Himling: Sparklet og malt.

Øvrig: Tekniske komponenter som sikringsskap, ventilasjonsaggregat, fordelerskap for vann og varme vil fortrinnsvis bli plassert i teknisk rom/bod.

SPORTSBOD

Gulv: Støvbundet betong.

Vegger: Betong/Troax med god lufting. Boddør leveres med hengelås med nøkkel på system.

TEKNISKE ANLEGG

GENERELT

Anleggsbidrag for tilkobling av telefon/TV/bredbånd betales av kjøper dersom leverandør krever dette av utbygger.

OPPVARMING OG VARMT TAPPEVANN

Varmeanlegget forsynes med el.kjele som varmer opp vann til oppvarming og til varmt tappevann. Boligene får vannbåren gulvvarme med varmeregulering i stue/ kjøkken, bad og entre/korridor.

I hver leilighet måles varmtvannsforbruket for både varmt tappevann og oppvarming.

VENTILASJONSANLEGG

Leilighetene får balansert ventilasjon med varmegjenvinning med avtrekk fra bad, bad/vask, WC og kjøkken/ stue med avkast over tak. Avtrekk og frisklufttilførsel skjer gjennom kanaler i nedforet himling. Detaljene omkring nedforinger og innkassinger er ikke avklart før detaljprosjekteringen er gjort, og det er derfor heller ikke vist på tegningene.

ELEKTRISK ANLEGG

Det legges skjult elektrisk anlegg med brytere og kontakter i hvit utførelse. Der hvor det leveres betongelementer kan det elektriske anlegget være åpent. Det

leveres belysning som beskrevet tidligere i leveransebeskrivelsen. Automatsikringer i eget sikringsskap som plasseres fortrinnsvis i teknisk rom/bod i hver leilighet (plassering i entré kan forekomme). Måler og hovedsikring til hver leilighet plasseres i eget elektrikerskap i fellesarealer utenfor leiligheten.

Det leveres laststyrte elbilladere (Type 2-kontakt, 16A) i garasjekjeller. Kostnad for elbillader er inkludert i prisen for parkeringsplass. Det vil på et senere tidspunkt bli avklart om lading blir målt på egne målere eller belastes med et fast månedlig beløp.

På markterrasse/balkong leveres utelys og dobbel stikkontakt. Det leveres utvendige screens med innvendig betjening etter krav i TEK17, og kun der dette er forskriftsmessig påkrevet. Utvendig solskjerming kan bestilles i tilvalgsprosessen. Det leveres ikke utvendige screens på balkongdører eller heve-/skyvedører.

TV/BREDBÅND

Det leveres 1 stk. uttak i stue til felles antenne i hver leilighet. Det leveres opplegg for bredbånd, men abonnement må bestilles av kjøper. Ytterligere kontakter/ røropplegg kan bestilles gjennom tilvalget.

SANITÆRUTSTYR

Det leveres sanitærutstyr som beskrevet tidligere i leveransebeskrivelsen.

BRANN

Det leveres røykvarsler og slukningsutstyr i henhold til myndighetenes krav. Alle leilighetene får synlig boligsprinkling i himlingene.

TILVALG

TILVALGSMULIGHETER

Tidsbegrenset av byggearbeidenes fremdrift kan den enkelte boligkjøper variere standarden i sin leilighet innenfor et spesifisert og fast priset produktspekter.

For tilvalg gjelder følgende:

• Forskjellige fronter på kjøkkeninnredning (det forutsettes kjøkkenskap i henhold til sortiment fra valgt kjøkkenleverandør).

• Mer innredning på kjøkken hvor plass tillater dette.

• Andre hvitevarer

• Valg av fliser og baderomsinnredning utover standard på bad, bad/vask, wc og vask iht. leverandørens utvalg.

• Fliser over kjøkkenbenk.

• Flere elektriske punkter og/eller TV/bredbåndsuttak.

• D ownlights i himlinger hvor det allikevel nedfores, som følge av kanaler (det må tas hensyn til tekniske føringer) etc.

• Solskjerming/screens.

• Garderobeskap.

• Flere typer parkett.

• Andre fargevalg på malte vegger (samme farge i hele rommet).

• Tremmegulv balkong.

BESTILLINGSFRISTER FOR TILVALG

Boligkjøperne vil motta et informasjonsbrev fra totalentreprenøren, hvor tilvalgsprosessen blir presentert. Det informeres i brevet om hvordan tilvalget organiseres og når fristen for tilvalgene går ut. Det gjøres oppmerksom på at når tilvalgsfristen er gått ut, må alle tilpasninger bli gjort som individuelle endringer i hver leilighet.

ENDRINGER

Når tilvalgsfristen er utgått, må endringer avtales særskilt mellom kjøper og selger. Endringer som vil ha fremdriftsmessige konsekvenser eller som av tekniske årsaker ikke kan anbefales, vil bli avvist. Endringer må individuelt bli tilpasset den enkelte kjøper.

FORBEHOLD

Alle opplysninger i denne leveransebeskrivelse er gitt med forbehold om rett til endringer som er hensiktsmessige og nødvendige, eksempelvis nødvendige offentlige pålegg eller myndighetskrav i forbindelse med byggesaken. Utbygger/selger kan gjøre endringer som er hensiktsmessige og nødvendige i detaljprosjekteringen forutsatt at det ikke forringer den generelle standarden i nevneverdig grad.

Dersom det er avvik mellom tegninger/beskrivelser i prospekt, hjemmeside, annonser eller leveransebeskrivelse, er det den endelige leveransebeskrivelsen i kjøpekontrakten som er gjeldende.

Selger forbeholder seg rett til å engasjere forretningsfører for første driftsår, samt inngå/tinglyse nødvendige avtaler for etablering av bebyggelsen og sameiet.

Det tas forbehold om eventuelle feil i beskrivelsen.

RAMMESØKNAD/IGANGSETTINGSSØKNAD Vi tar forbehold om endringer i forbindelse med offentlig godkjenning av rammesøknad og igangsettingstillatelser.

Oslo, den 02.06.2025

Informasjon til kjøper

GENERELT OM LINÅSKOLLEN

Boligprosjektet Linåskollen er lokalisert sør i Langhus og blir i forlengelse av det etablerte og populære boligområde Linås. Linåskollen er planlagt å bestå av cirka 190 boliger når prosjektet er ferdigstilt.

Det samlede utbyggingsområdet består av deler av eiendommen gnr. 121 bnr. 3, 7 og deler av gnr. 120 og bnr 1, i Nordre Follo kommune («Utbyggingsområdet»).

Samlet tomteareal for Utbyggingsområdet er cirka 54.700 m². Utbyggingsområdet er regulert til bolig. Arealet på utbyggingsområdet kan bli justert/endret i forbindelse med utbyggingen.

Linåskollen er planlagt oppført i flere byggetrinn, fordelt på de regulerte utbyggingsfeltene. Utbyggingsfeltene fremgår av reguleringsplan.

Byggetrinn 1 er planlagt å bestå av 50 leiligheter fordelt på tre leilighets- bygg (Bygg A, Bygg B og Bygg C) og 18 rekkehus, tilhørende inn- og utvendige fellesarealer, samt tre underjordiske garasje- og bodanlegg for leilighetene og rekkehusene. Byggetrinn 1 er lokalisert på felt BKS1 og BBB i reguleringsplanen.

Arkitekt for Linåskollen er Dyrø & Moen Arkitekter.

Byggetrinn 1 vil bli solgt i flere salgstrinn. Dette prospektet gjelder de 50 leilighetene i felt BBB.

Selger forbeholder seg retten til å endre organiseringen mht. antall enheter/byggetrinn/eierform og generell organisering, avhengig av fremdrift og salgstakt m.m.

EIENDOMMEN

Eiendommen har på nåværende tidspunkt ikke adresse. Eiendommen har pr. i dag gnr. 121 bnr. 3 i Nordre Follo kommune.

Eiendommen for Bygg A, B og C vil bli fradelt og seksjonert, hver leilighet blir tildelt endelig matrikkelnummer med eget seksjonsnummer og endelig adresse. Selger står fritt til å bestemme seksjonsnummer.

Tomten disponeres av seksjonseiere iht. søknad om seksjonering eller sameievedtekter

Eiendommen tilhørende Bygg A, B og C, med tilhørende underliggende garasje- og bodanlegg, er planlagt å omfatte et areal som cirka tilsvarer byggenes og garasje- og bod anleggets fotavtrykk, med tillegg av utomhusarealer.

Tilsvarende fradeling er planlagt for øvrige reguleringsfelt. Felles utomhusarealer som fremgår av reguleringsplanen vil være fellesareal for alle felt innenfor reguleringsplan.

Eksakt tomteareal vil foreligge etter fradeling og endelig oppmåling er utført av kommunen. Det tas forbehold om at avvik i tomtestørrelse kan forekomme ved endelig oppmåling. Kjøper og selger har ingen krav mot hverandre dersom tomten skulle bli mindre og/eller større enn oppgitt.

SAMEIET/FORRETNINGSFØRER

Leilighetene i Bygg A, B og C vil bli etablert som ett sameie. Selger har, på vegne av sameiet, anledning til å stifte og å inngå bindende forretningsføreravtale med 6–12 mnd. oppsigelse.

Kjøperne vil bli innkalt til oppstartsmøte hvor nytt styre blir valgt, og sameiets budsjett, vedtekter og ev. husordensregler vil bli gjennomgått.

Lokalleie i forbindelse med møte og ev. gebyr for registrering i Brønnøysund faktureres sameiet ved overtakelse, ev. via startkapital.

SELGER

Selger er Ski Linås Boligutvikling AS, org. nr. 923 369 988.

Selger står fritt til å overdra sine rettigheter og forpliktelser, etter nærværende avtale til annet selskap innenfor samme konsern eller annet selskap som kontrolleres direkte eller indirekte av de som i dag kontrollerer selger. Med «overdra» menes enhver form for overdragelse. For overdragelse til andre enn de forannevnte subjekter må kjøper samtykke. Samtykke kan ikke nektes uten saklig grunn.

ENTREPRENØR

Entreprenør er Veidekke Østfold Follo

AREALER OG PRISER

Arealer og priser per leilighet og diverse øvrig informasjon fremkommer av den til enhver tid gjeldende prisliste. Salgsprisene på solgte leiligheter kan ikke justeres etter avtaleinngåelse. Selger står til enhver tid fritt til å endre prisene på usolgte leiligheter, parkeringsplasser og boder.

Arealene i salgsoppgaven og annet markedsførings materiale er oppgitt i bruksareal (BRA), og er å betrakte som omtrentlig areal. Dette arealet angir leilighetens areal innenfor omsluttende vegger, inklusive areal for ev. innvendig bod. I tillegg til bruksarealet kommer bod utenfor, eventuelt parkeringsplass og balkong/markterrasse. Da de oppgitte arealer i markedsføringen er å

betrakte som et ca. areal, har partene ingen krav mot hverandre dersom arealet skulle vise seg å være 5% mindre/større enn markedsført areal.

PARKERINGSPLASSER OG BODER

Det vil bli etablert underjordisk garasje- og bodanlegg med parkeringsplasser, boder, sykkelparkeringsplasser, m.m. Sykkelparkeringsplasser vil også bli etablert utvendig i tilknytning til inngangs- partier.

Anlegget vil være felles for leilighetene i Bygg A, B og C.

Parkeringskjelleren er planlagt organisert som et realsameie, og vil seksjoneres som en egen næringsseksjon. Kjøpere som skal ha rettigheter til bod/parkeringsplass vil sikres gjennom tinglyst ideell eierandel mot den respektive seksjonen.

Det følger ikke med parkeringsplasser til leilighetene. Parkeringsplasser kan kjøpes til fast pris, se prisliste.

Ladestasjon til elbil blir levert med et laststyringssystem som fordeler tilgjengelig effekt slik at flere kan få lademulighet. Kostnader til etablering av ladepunkt, vedlikehold og strøm dekkes av den enkelte seksjonseier.

Det følger med én bod i garasje- og bodanlegget til hver leilighet i Sameiet.

Selger fordeler solgte parkeringsplasser og boder i forbindelse med overtakelsen. Det er etter offentlig krav tilrettelagt for handikapplasser i garasjeanlegget. Eventuelle kjøpere som får tildelt handikapplass uten dokumentert behov må i henhold til vedtektene akseptere at styret pålegger å bytte plass dersom det kommer beboere som kan dokumentere behov for handikapplass og som eier en annen parkeringsplass. Se utkast til vedtekter for mer informasjon om bytteplikten.

Selger vil beholde eiendomsretten til og fritt disponere over eventuelle usolgte parkeringsplasser og boder, herunder ved utleie eller salg til andre enn kjøpere i Sameiet.

Selger tar forbehold om å velge annen organisering av garasje- og bodanlegget, herunder kan garasje- og bodanlegget bli fradelt som en egen anleggseiendom. Selger tar også forbehold om å utvide eller redusere anlegget, eller fordele parkeringsplasser og boder midlertidig i påvente av ferdigstillelse.

Overtakelse av parkeringsplass skjer samtidig med overtakelse av leiligheten.

FELLES UTOMHUSAREALER

Felles utomhusarealer, felt f_BLK1 og f_BLK2 i reguleringsplan, vil være felles for alle boliger innenfor reguleringsplan. Bruksrett til utomhusarealer vil bli sikret gjennom tinglyst rettighet med vedlikeholdsplikt.

UTKAST TIL VEDTEKTER

Det er utarbeidet utkast til vedtekter for Sameiet. Vedtektene regulerer forholdet mellom seksjonseierne, herunder ansvar for drift og vedlikehold samt fordeling av drifts- og vedlikeholdskostnader. Utkast til vedtekter kan fås ved henvendelse til megler. Det forutsettes at kjøper aksepterer vedtektsutkastet som grunnlag for avtalen, selv om utkastet må oppfattes som en overordnet ramme for å gi et bilde av kjøpers rettigheter og plikter, og kan bli betydelig endret i forbindelse med ferdigstillelse av prosjektet, kommunale vedtak mv. Selger tar forbehold om endringer i vedtektene som er hensiktsmessige og/ eller nødvendige i perioden frem til overtakelse, jfr. også forbehold tatt innledningsvis i utkastet til vedtekter. Kjøper plikter å rette seg etter de til enhver tid gjeldende vedtekter. Endringer kan fremmes av seksjonseierne i henhold til vedtektene og eierseksjonsloven på årsmøte.

FORBEHOLD KNYTTET TIL ORGANISERINGEN

Selger forbeholder seg retten til å beslutte endelig organisering av Eiendommen, herunder antall boliger/ seksjoner, eierform tomteareal for de enkelte felt, organisering av utomhusarealer, antall sameier, avgrensning og størrelse på sameiene m.m.

Videre forbeholder selger seg retten til å foreta oppdeling av garasje- og bodanlegget i flere eiendommer, eller ved at det tinglyses bruksretter istedenfor etablering av realsameie. Videre tas det forbehold om at garasje- og

bodanlegget kan bli seksjonert, og at parkeringsplasser og boder kan bli organisert som næringsseksjoner i de overliggende eierseksjonssameierne, eventuelt som vedtektsfestet bruksrett eller tilleggsdeler til seksjonene.

For øvrige deler av prosjektet Linåskollen forbeholder selger seg retten til å beslutte endelig organisering, herunder å etablere flere eller færre realsameier. Selger forbeholder seg retten til å gjennomføre prosjektet i flere eller færre byggetrinn enn antall regulerte utbyggingsfelter, samt retten til å etablere flere eller færre eierseksjonssameier/ borettslag etter hva som er formålstjenlig med hensyn til teknisk utforming, salgstakt o.l. Den enkelte kjøper og sameiet/ kan således ikke motsette seg videre utbygging. Dersom påkrevd plikter kjøper å medvirke til å realisere et nytt byggetrinn gjennom signering av nødvendige dokumenter eller ved sin stemme i generalforsamling/årsmøte.

BYGGETID – ANTATT TIDSPUNKT FOR OVERTAKELSE

Søknad om rammetillatelse for Byggetrinn 1 er sendt inn. Selger tar sikte på fysisk oppstart av grunnarbeider for infrastruktur i Q4 2025. Byggetiden for Bygg A, B og C er forventet å være 22 til 26 måneder fra oppstart av grunnarbeidene.

Ferdigstillelse av utomhusområder for Bygg A vil kunne bli utført etter overtakelse, bl.a. annet avhengig av årstiden og fremdrift for øvrige bygg.

Etter at selgers forbehold er bortfalt skal selger skriftlig meddele til kjøper dagmulktsbelagt ferdigstillelsesdato. Selger kan kreve overtakelse inntil fem måneder før den opprinnelige ferdigstillelsesdato. Selger skal i så fall skriftlig varsle om dette minimum to måneder før den nye overtakelsesdatoen. Ved forsinkelse beregnes det dagmulkt fra den nye overtakelsesdatoen. Det eksakte overtakelses- tidspunktet (klokkeslett, oppmøtested m.m.) skal gis med minst 14 kalenderdagers varsel.

Overtakelse kan tidligst skje når det foreligger ferdigattest/midlertidig brukstillatelse, samt overtagelsesprotokoll signert av begge parter, som bekrefter at overtagelse har funnet sted. En forutsetning for at

overtagelse skal kunne finne sted er at fullt oppgjør inklusive omkostninger er bekreftet mottatt på meglers klientkonto. Det er ulovlig å ta boligen i bruk uten at ferdigattest/ midlertidig brukstillatelse foreligger. Kjøper har heller ingen plikt til å overta eller innbetale fullt oppgjør dersom ferdigattest/midlertidig brukstillatelse ikke foreligger.

Kjøper kan ikke nekte overtakelse selv om det gjenstår arbeider på Eiendommen i forbindelse med ferdigstillelse av de øvrige leiligheter, utomhusarealer, tekniske installasjoner m.m. Kjøper kan heller ikke nekte å overta selv om seksjonering, fradeling eller hjemmelsovergang ikke er gjennomført. Kjøpesummen vil i så fall bli stående på meglers klientkonto inntil nødvendige formaliteter er på plass, med mindre selger stiller sikkerhet iht. buofl. § 47.

Selger skal informere kjøper dersom det kan påregnes endringer i forhold til den planlagte perioden for overtakelse, herunder som følge av endrings- eller tilleggsarbeider bestilt av kjøper.

GENERELLE FORBEHOLD KNYTTET TIL PROSJEKTETS GJENNOMFØRING

Selger tar forbehold om rammetillatelse og igangsettingstillatelse for Byggetrinn 1, herunder Bygg A, B og C.

Selger tar forbehold om at det oppnås nødvendig antall forhåndssalg i prosjektet.

Selger tar forbehold om at selgers styre godkjenner oppstart av utbygging av Eiendommen.

Selger tar forbehold om tilfredsstillende kapasitet på avløpsledninger og rense- anlegg lokalt på Linås.

Selger må senest innen 01.september 2026 gi skriftlig underretning til kjøper dersom ovennevnte forbehold påberopes og kjøpekontrakten kanselleres.

Selger tar forbehold om at innsekter/smådyr som maur og skjeggkre/sølvkre kan forekomme i leiligheten, og tar ikke ansvar for dette.

Når det gjelder forbehold knyttet til selve prosjektet (kvaliteter, utforming m.m.), vises det til kvalitetsbeskrivelsen i prospektet.

FINANSIERING

Kjøper er innforstått med at et for selger tilfredsstillende finansieringsbevis for hele kjøpesummen skal forelegges megler når avtale om kjøp inngås iht bustadoppføringslovas § 46, 2.ledd, og at disse opplysningene kan bli videreformidlet til utbyggers byggelånsbank. Finansieringsbevisets gyldighet må være frem til overtakelse.

Handelen er juridisk bindende for begge parter ved aksept. Dersom kjøper ikke overholder sin forpliktelse med tilfredsstillende finansieringsbevis, er kjøper allikevel bundet og selger vil kunne påberope avtalen som vesentlig misligholdt og heve avtalen. Kjøper samtykker til at omkostninger knyttet til heving og dekningssalg i så fall dekkes av kjøper.

BETALINGSPLAN

Kjøpesummen for leiligheten og eventuell garasjeplass, innbetales i forbindelse med overtakelse.

Selger kan kreve innbetalt et forskudd, som skal betales inn ved igangsetting av prosjektet. Se prisliste for forskuddsbeløpet.

Forsinkes betaling med mer enn 30 dager for avtalte innbetalinger, har selger rett til å heve kjøpet og foreta dekningssalg. Selger vil holde kjøper ansvarlig for selgers eventuelle økonomiske tap som følge av kjøpers mislighold. Selger har rett til dekning av sitt tilgodehavende i kjøpers eventuelle innbetalinger, herunder også for renter og andre omkostninger som påløper på grunn av kjøpers mislighold.

Selger forbeholder seg retten til å heve kjøpekontrakten også etter overtakelse og/ eller hjemmelsoverføring jfr. § 57 annet punktum.

OMKOSTNINGER

Omkostninger kommer i tillegg til kjøpesummen, og består av følgende:

Dokumentavgift fra kr 9.625 – 38.400,Tinglysingsgebyr for skjøte kr 545,Eventuelt gebyr per tinglysning av pant/heftelse (inkl. grunnboksutskrift) kr 545,-

Etableringsgebyr Sameiet kr 2.500,Startkapital pr. seksjon kr 150,- pr kvm / BRA.

Overskjøting av hjemmel til kjøper for leilighet, samt bod og eventuell parkeringsplass, utløser dokumentavgift. Dokumentavgiften utgjør 2,5 % av ideell andel av tomteverdi. Tinglysningsgebyr pr. panterettsdokument med attestgebyr kr 545,- gjelder ved kjøpers lånopptak.

Etableringsgebyret dekker blant annet normale stiftelseskostnader til sameiet og offentlige gebyrer.

Det tas forbehold om endringer av satsene for offentlige avgifter og gebyrer, og økning av beregningsgrunnlaget for dokumentavgift som følge av at eiendomsverdien har økt fra salgstidspunktet og frem til tinglysningstidspunktet. Tinglysingsdommeren avgjør om dokumentavgiftsgrunnlaget aksepteres og dersom grunnlaget skulle bli endret vil en ev. reduksjon/økning være selgers ansvar og risiko.

FELLESKOSTNADER

Kjøper er forpliktet til å betale sin andel av eierseksjonssameiets felleskostnader.

Kostnader som ikke knytter seg til den enkelte bruksenhet, skal fordeles mellom seksjonseierne etter sameiebrøken med mindre særlige grunner taler for å fordele kostnadene etter nytten for den enkelte bruksenhet eller etter forbruk. Normalordningen er at eierbrøken fordeles etter bruksareal (BRA).

Stipulerte månedlige felleskostnader for hver leilighet for første driftsår fremgår av prislisten. Drifts- og vedlikeholdskostnader vil avhenge av hvilke tjenester eierseksjonssameiet ønsker utført.

Felleskostnader iht. budsjett dekker bl.a. avsetning til vedlikehold fellesarealer, forretningsførsel, grunn abonnement tv/internett, forsikring bygg (ikke innbo), oppvarming av fellesarealer og andre driftskostnader. Felleskostnadene er stipulert og basert på erfaringstall, og det tas derfor forbehold om endringer i budsjettposter og fellesutgifter.

Kommunale avgifter og renovasjon er ikke inkludert i felleskostnadene og vil bli belastet den enkelte seksjonseier direkte fra Nordre Follo kommune.

Budsjettet er et forslag til driftsbudsjett for normaldrift av sameiet i 1 år, basert på stipulerte inntekter og kostnader. Budsjettet er utarbeidet av Obos basert på opplysninger om eiendommen gitt av selger/utbygger og normaltall fra tilsvarende eiendommer.

Det tas forbehold om endringer i stipulerte kostnader. Det understrekes at flere faktorer påvirker størrelsen på felleskostnaden, bl.a. endringer i lønns-, pris- og avgiftsnivå på de faste tjenester og produkter som sameiet/realsameiene enten må ha, eller selv velger å inngå avtaler om. De faktiske felleskostnadene kan derfor avvike betydelig fra anslagene angitt over.

Styret i Sameiet har ansvar for og plikt til å tilpasse de månedlige felleskostnadene til de reelle utgifter, samt ansvaret for at Sameiet til enhver tid har en sunn økonomi. Endelig fastsettelse av budsjett og nivå på felleskostnader vil bli foretatt av styret.

Kostnader til oppvarming og varmt tappevann måles individuelt for hver leilighet. À-kontoinnbetaling til sameiet per kvm BRA per måned kommer som tillegg til felleskostnaden, med individuell avregning etter forbruk. I tillegg til felleskostnadene kommer også drifts- og vedlikeholdskostnader for de som kjøper parkering i garasjeanlegget. Kostnadene betales av de som eier parkeringsplass i garasjeanlegget.

Strømkostnader for ladning av el-bil belastes den enkelte bruker i henhold til forbruk.

Selger forbeholder seg retten til å inngå nødvendige

driftsavtaler med bindingstid før overlevering på vegne av sameiet/sameiene.

Stipulering av budsjett samt stifting av sameiet anses ikke som eiendomsmegling og omfattes dermed ikke av den sikkerhetsstillelsen/ansvarsforsikring som gjelder i eiendomsmeglingsloven.

Selger forplikter seg til å betale løpende fastsatte felleskostnader på usolgte enheter.

SALGSBETINGELSER

Kjøpet reguleres av buofl. i tilfeller hvor selger er profesjonell og kjøper er forbruker. Dette innebærer blant annet at kjøper har krav på garantier iht. buofl. § 12. I tilfeller hvor kjøper er profesjonell iht. buofl., dvs. gjør kjøpet som ledd i nærings- virksomhet, kan selger kreve at avtalen reguleres av avhendingslova eller etter buofl. med fravikelser.

Kjøper er ansvarlig for å sette seg inn i salgsprospektet og øvrige dokumenter som utgjør en del av prosjektets salgsoppgave. Dersom utfyllende/supplerende opplysninger er ønskelig, bes kjøper henvende seg til megler. Prosjektets standard kjøpekontrakter skal legges til grunn for avtale med forbruker.

Kjøpekontrakt må gjennomgås av kjøper før inngivelse av bud. Kjøpekontrakten kan også fås ved henvendelse til megler.

Bustadoppføringsloven kommer ikke til anvendelse dersom avtale kommer i stand etter at leiligheten er ferdigstilt. I slike tilfeller vil handelen reguleres av lov om avhending av fast eiendom av 3. juli 1992 nr. 93. Selger kan allikevel velge å selge etter bustadoppføringslova.

TILVALG OG ENDRINGER

Prosjektet og dets priser er basert på at utbyggingen gjennomføres rasjonelt og med delvis serieproduksjon i form av systematisering av tekniske løsninger og valg av materialer. Dette gir begrensninger for hvilke tilvalg og endringer kjøper kan forvente å få gjennomført og innenfor hvilke tidsrom disse arbeidene kan bestilles. Les mer om tilvalg i kvalitetsbeskrivelsen.

Etter igangsetting vil det gis frister for tilvalg og endringer. Inngis bud etter igangsetting er kjøper kjent med at frister for tilvalg og endringer kan være utgått. Kjøper oppfordres i så fall til å ta forbehold i budet dersom prosjektet er igangsatt, og kjøper har krav til tilvalg eller endringer som kjøper forutsetter skal være mulig å få utført.

EIENDOMSMEGLER

Foss & Co Eiendomsmegling AS org.nr. 937 205 139.

Meglers vederlag utgjør provisjon på 1,25 % pr. solgte enhet, samt oppgjørsgebyr med kr 3 750 pr. enhet.

Ansvarlig megler Truls Myrbråten mob: 996 23 590/ truls.m@fossco.no

Meglers rett til å stanse gjennomføringen av en transaksjon, tiltak mot hvitvasking m.m.

I henhold til Lov om tiltak mot hvitvasking og terrorfinansiering (Hvitvaskingsloven) er megler pliktig å gjennomføre kundekontroll.

Dette innebærer blant annet plikt for meglerforetaket til å foreta innhenting av bekreftet kopi av legitimasjonsdokument av begge parter i handelen, herunder plikt til å foreta kontroll av reelle rettighetshavere der kjøper (budgiver) opptrer på vegne av andre enn seg selv. Der kjøper opptrer i henhold til fullmakt må bekreftet kopi av legitimasjon også fremlegges for fullmaktsgiver. Endelig kundekontroll av kjøper, herunder fremleggelse av bekreftet kopi av legitimasjonsdokument, skjer senest på kontraktsmøtet.

Dersom budgiver opptrer i henhold til fullmakt, må fullmakten fremlegges samtidig som bud inngis.

Dersom kjøper er en juridisk person (AS mv.) plikter kjøper å fylle ut og returnere et eget kundekontrollskjema før kontraktsmøtet. Firmaattest og/eller fullmakt må fremlegges samtidig som det inngis bud. Dersom kundekontroll ikke kan gjennomføres kan ikke meglerforetaket bistå med gjennomføring av handelen, herunder ikke foreta oppgjør.

Er det mistanke om at transaksjonen har tilknytning til utbytte av en straffbar handling, eller forhold som rammes av straffeloven §§ 131 til 136A kan megler stanse gjennomføringen av transaksjonen. Megler kan ikke holdes ansvarlig for de konsekvenser dette vil kunne medføre.

Meglerforetaket er videre forpliktet til å rapportere ”mistenkelige transaksjoner” til Økokrim. Med ”mistenkelig transaksjon” menes transaksjon som mistenkes å involvere utbytte fra straffbar handling eller som skjer som ledd i terrorfinansiering. Manglende mulighet for kundekontroll kan også være et forhold som gjør transaksjonen mistenkelig. Det kan ikke gjøres ansvar gjeldende mot meglerforetaket som følge av at meglerforetaket overholder sine plikter etter Hvitvaskings- loven.

Kjøper oppfordres til å innbetale den del av kjøpesummen som ikke kommer fra låneinstitusjon, i en samlet innbetaling fra egen konto i norsk bank

FORBRUKERINFORMASJON VED INNGIVELSE AV KJØPETILBUD

Alle bud skal inngis skriftlig til megler, som formidler disse videre til oppdragsgiver. Megler har utarbeidet eget budskjema for prosjektet som skal benyttes ved inngivelse av bud.

Et bud bør inneholde eiendommens adresse (eventuelt gnr./bnr.), kjøpesum, budgivers kontaktinformasjon, finansieringsplan, akseptfrist og eventuelle forbehold som for eksempel usikker finansiering, salg av nåværende bolig ol. Normalt vil ikke et bud med forbehold bli akseptert før forbeholdet er avklart. Konferer gjerne med megler før bud avgis.

VIKTIGE AVTALERETTSLIGE FORHOLD VED BUDGIVING:

1. D et eksisterer ingen angrerett ved salg/kjøp av fast eiendom.

2. Når et bud er innsendt til megler og han har formidlet innholdet i budet til selger (slik at selger har fått kunnskap om budet), kan budet ikke kalles tilbake. Budet er da bindende for budgiver frem til akseptfristens utløp, med mindre budet før denne tid avslås av selger eller budgiver får melding om at eiendommen er solgt til en annen (man bør derfor ikke gi bud på flere eiendommer samtidig dersom man ikke ønsker å kjøpe flere enn en eiendom).

3. S elger står fritt til å forkaste eller akseptere ethvert bud.

4. Når en aksept av et bud har kommet frem til budgiver innen akseptfristens utløp er det inngått en bindende avtale.

5. Kopi av budjournalen kan bli oversendt kjøper og selger etter budaksept, jf. forskrift om eiendomsmegling § 6-4. Dersom det er viktig for budgiver å bevare sin anonymitet, bør budet fremmes gjennom fullmektig. Øvrige budgivere kan få utlevert anonymisert budjournal.

AVTALEMESSIGE FORHOLD

Selger står fritt til å akseptere eller avslå ethvert kjøpetilbud, herunder bestemme om de vil akseptere salg til selskaper, samt om de vil akseptere salg av flere seksjoner til samme kjøper.

Eierseksjonsloven gir ikke anledning til at mer enn to seksjoner overskjøtes til samme juridiske person.

Det gjelder tilsvarende for indirekte erverv, jf.

Eierseksjonsloven § 23 andre og tredje ledd (i kraft fra 1. januar 2020).

Det er ikke konsesjon eller odel ved omsetning av leiligheter.

AVBESTILLINGER

Kjøper har avbestillingsrett etter buofl. § 52 etter at bindende avtale er inngått gjennom bud og budaksept.

Ved kjøpers avbestilling reguleres erstatningen av buofl. § 53, slik at selger skal ha erstattet hele sitt

økonomiske tap som følge av avbestillingen. Kjøper gjøres oppmerksom på at det økonomiske tapet kan bli betydelig, bl.a. avhengig av markedsutviklingen fra kjøpekontraktens inngåelse. Kontakt gjerne megler for nærmere informasjon dersom avbestilling vurderes. Bestilte endrings- og tilleggsarbeider må uansett betales i sin helhet.

GARANTI ETTER BUOFL. § 12 OG § 47

Det stilles garanti på 3 % av kjøpesummen som gjelder frem til overtakelse, og garanti tilsvarende 5 % av kjøpesummen for reklamasjonsperioden på fem år etter overtakelse, jf. buofl. § 12. Det stilles ikke garanti dersom kjøper er å anse som profesjonell part/næringsdrivende.

Det er tatt forbehold om blant annet igangsettingstillatelse, antall solgte leiligheter og åpning av byggelån, og det er da tilstrekkelig at selger stiller garanti straks etter at forbeholdene er bortfalt, jf. buofl. § 12 niende ledd. Det samme gjelder dersom kjøper har tatt forbehold med tilsvarende virkning. Garanti skal uansett stilles før fysisk oppstart av grunnarbeider.

Dersom selger ønsker å få utbetalt beløp innbetalt av kjøper stilles det garanti etter buofl. § 47 for utbetalingen.

REKLAMASJONER

Eventuelle mangler må varsles til selger innen rimelig tid etter at de er oppdaget, eller etter at det var mulig å oppdage dem. Reklamasjonstid er 5 år jfr. buofl. § 30.

Parallelt med reklamasjonsfristene løper det også en selvstendig foreldelsesfrist etter foreldelsesloven, noe som kan medføre at mangelskrav bortfaller som foreldet før reklamasjonsfristen er ute og selv om man har reklamert innen «rimelig tid». Foreldelse avbrytes normalt ved rettslige skritt, reklamasjon etter buofl. er ikke tilstrekkelig. Reglene om foreldelse er særlig relevant der mangler oppdages når det har gått en del tid etter overtagelse.

Der det er aktuelt å gjøre krav gjeldende ikke bare mot entreprenør/selger, men også garantist foreldes garantistens ansvar etter de samme regler som gjelder i forhold til entreprenør/ selger.

REGULERING

Eiendommen omfattes av reguleringsplan 201105 «detaljregulering Linås» vedtatt 10.2.2021.

Eiendommen ligger på reguleringsplanens felt BBB, og er regulert til boligbebyggelse.

Kopi av reguleringsplan kan fås utlevert hos megler, og vil også være vedlegg til kontrakt.

VANN OG AVLØP

Vann og avløp blir offentlig tilknyttet.

Eventuelt privat vann- og avløpsnett mellom det offentlige tilknytningspunktet og frem til bygningskroppen skal driftes og vedlikeholdes i fellesskap av de sameier som er tilknyttet dette.

TINGLYSTE FORPLIKTELSER OG RETTIGHETER

Leiligheten selges med følgende tinglyste rettigheter og forpliktelser (servitutter) på Utbyggingsområdet og

Eiendommen:

Se vedlegg fra Foss & Co.

Følgende erklæringer/servitutter er planlagt tinglyst på eiendommen:

Servitutter vedrørende tekniske anlegg og infrastruktur, samt andre nødvendige erklæringer i forbindelse med utbygging.

I tillegg kan selger tinglyse ytterligere erklæringer/ servitutter mellom kjøpstidspunktet og ferdigstillelse av prosjektet Linåskollen, herunder knyttet til atkomstretter, rør, ledninger og lignende som er nødvendig for gjennomføringen av prosjektet, bestemmelser som vedrører sameier/realsameier, naboforhold eller lignende, drift og vedlikehold m.m. av fellesarealer, forhold pålagt av offentlig myndighet knyttet til prosjektet Linåskollen, samt erklæringer/servitutter knyttet til utbyggingsavtale for Utviklingsområdet med Nordre Follo kommune.

Kjøper kan ikke motsette seg eller kreve prisavslag/ erstatning for tinglysning denne typen erklæringer/ servitutter.

Seksjonene vil ved overtakelse være fri for panteheftelser med unntak av lovpå lagt panterett til sameiet som sikkerhet for oppfyllelse av den enkelte sameiers fellesforpliktelser, jf. eierseksjonsloven § 25.

Den manuelle grunnboken har dokumenter som antas kun å ha historisk betydning, eller som er tinglyst vedrørende matrikkelenhetens grenser og areal. For servitutter eldre enn fradelingsdato og eventuelle arealoverføringer som kan ha betydning for denne matrikkelenhet henvises til hovedbruket/avgivereiendommen.

FORSIKRING

Eiendommen vil bli fullverdiforsikret og vil av selgeren bli holdt tilsvarende forsikret frem til overtakelsen, jfr. buofl. § 13 siste ledd. Forsikringen gjelder også materialer som er tilført eiendommen. Selgeren vil for sameiets regning besørge bygningsforsikring (skadeforsikring) fra og med første overtakelse. Kjøperen må selv sørge for forsikring av eget innbo og løsøre.

FERDIGATTEST ELLER MIDLERTIDIG

BRUKSTILLATELSE

Selger er ansvarlig for at det blir utstedt ferdigattest eller midlertidig brukstillatelse før overtakelse. Manglende ferdigattest er ikke til hinder for overtakelse dersom de gjenstående arbeidene er av en slik karakter, for eksempel knyttet til ferdigstillelse av utomhusarbeider, at kommunen utsteder midlertidig brukstillatelse. I midlertidig brukstillatelse vil det fremgå hvilke arbeider som gjenstår og en frist for ferdigstillelse. For overtakelse som gjennomføres i vinterhalvåret må det påregnes utstedelse av midlertidig brukstillatelse og ikke ferdigattest ettersom søknadspliktige utomhusarbeider ikke kan gjennomføres før klimatiske forhold gjør det mulig.

ENERGIMERKE

Alle nye leiligheter skal energimerkes. Energimerking av hver leilighet utføres av selger før overtakelse. Energimerkingen må foreligge for å få utstedt ferdigattest. Selger antar at prosjektet vil oppnå minimum energiklasse C - lys grønn - for alle leilighetene. Energiklasse beregnes før overtakelse.

FORSINKELSE KJØPER

Ved forsinket betaling skal kjøperen betale forsinkelsesrente (forsinkelsesrenteloven). Selgeren kan likeledes da nekte kjøperen å overta inntil betaling skjer.

Selv om deler av kontraktssummen er innbetalt til rett tid, skal kjøper betale forsinkelsesrente av hele kontraktssummen samt omkostninger frem til disse er mottatt på meglers klientkonto. Beløpet blir avregnet fra overtakelse/forfall til betaling finner sted. Kjøper godskrives i disse tilfellene innskuddsrenter av beløp innbetalt til meglers klientkonto.

Denne bestemmelse gir ikke kjøper rett til å forlenge betalingsfristen utover de frister som er avtalt.

KJØPERS UNDERSØKELSESPLIKT

Kjøper har selv ansvar for å sette seg inn i salgsprospekt, reguleringsplaner, byggebeskrivelse og annen dokumentasjon som kjøper har fått tilgang til. Dersom utfyllende/supplerende opplysninger er ønskelig, bes kjøper henvende seg til megler. Kjøper har ingen rett til å reklamere på grunnlag av forhold som kjøper er blitt gjort oppmerksom på, eller som kjøper på tross av oppfordring har unnlatt å sette seg inn i.

Kjøper oppfordres til å ta kontakt med megler dersom noe er uklart, og det presiseres at det er viktig at slike avklaringer finner sted før bud inngis.

FORSINKET LEVERING

Selger kan ha rett til tilleggsfrister uten kompensasjon til kjøper etter reglene som gjelder i buofl.. Kjøper er kjent med og aksepterer at forsinkelser som skyldes force majeure, streik, ekstreme klimatiske forhold o.l. kan gi selger en rett til å forlenge fristen for overtakelse. Kjøper anmodes spesielt å tilpasse dette forhold ved ev. salg av nåværende bolig. Såfremt forsinkelse skulle skyldes f. eks brann, vannskade, innbrudd e.l gjøres det spesielt oppmerksom på at dette kan gi selger rett til en tilleggsfrist for levering uten kompensasjon til kjøper.

Disse forhold må også eventuelt tas hensyn til ved salg av nåværende bolig da byggforsikringen til selger ikke dekker eventuell erstatningsbolig for kjøper ved slik forsinkelse.

EIENDOMSSKATT

Nordre Follo kommune har p.t. ikke innført eiendomsskatt.

FORMUESVERDI

Formuesverdi er foreløpig ikke fastsatt. Formuesverdien fastsettes av Skatteetaten etter en beregningsmodell som tar hensyn til om leiligheten er en såkalt «primærbolig» (der boligeieren er folkeregistrert bosatt) eller «sekundærbolig» (alle andre boliger man måtte eie). Interessenter oppfordres til å sjekke: www.skatteetaten. no eller kontakte megler for nærmere informasjon om fastsettelse av formuesverdi.

Det tas forbehold om at regelendringer kan medføre endret formuesverdi for leilighetene.

VIDERESALG OG ENDRING I EIERSKAP/ NAVNEENDRING

Kjøpekontrakten gjelder individuelt for kjøper. Videresalg/transport av kjøpekontrakt før overtakelse krever selgers samtykke og godkjenning av ny kjøper. Samtykke kan ikke nektes uten saklig grunn, men selger kan stille betingelser for et eventuelt samtykke. Ved selgers eventuelle skriftlige samtykke påløper et gebyr på kr 25.000,- inkl. mva. Ny kjøper vil være bundet av eventuelle bestillinger av tilvalg og endringer. Det forutsettes at skjøtet tinglyses i kjøpers navn i henhold til bud og kjøpekontrakten. Dersom kjøper før overtakelse ønsker å endre hjemmelsforhold internt i egen familie (dvs. annen tinglysing av hjemmel enn hva som fremkommer av akseptert bud og kjøpekontrakt), vil det påløpe et gebyr til selger på kr 15.000,- for endring av skjøte. Eventuell endring krever selgers samtykke. Videresalg før igangsettingstillatelse vil ikke bli akseptert av selger.

FØLGENDE DOKUMENTER UTGJØR EN DEL AV

PROSJEKTETS SALGSOPPGAVE

1. Informasjon til kjøper

2. Kvalitetsbeskrivelse/romskjema.

3. Etasjeplaner og salgstegninger

4. Utomhusplan.

5. Kart og reguleringsbestemmelser

6. Prisliste.

7. Utarbeidet budsjett for Sameiet

8. Utkast til vedtekter for Sameiet

9. S elgers standard kjøpekontrakter.

Megler har tilgjengelig for kjøper reguleringsplan med bestemmelser, utkast til vedtekter, utkast til budsjett, standard kjøpekontrakt og grunnboksutskrift med servitutter, og de andre vedlegg som følger kjøpekontrakten.

Det tas forbehold om eventuelle skrivefeil/trykkfeil i prospekt og prisliste.

Oslo, 30.05.2025

TRULS MYRBRÅTEN

EIENDOMSMEGLER MNEF / FAGANSVARLIG

Phone 99 62 35 90

Mail truls.m@fossco.no

CHRISTIAN FOSS DAGLIG LEDER / EIENDOMSMEGLER MNEF

Phone 45 28 09 90

Mail christian.foss@fossco.no

Utbyggere med kvalitet i alle ledd

BOLIG NORGE er et ansvarlig eiendomsselskap med fokus på miljøriktige boliger, hvor eksisterende omgivelser ivaretas og forbedres. Gjennom eierskap og ansatte, er det lang historie med foredling og utvikling av eiendom til nye og bærekraftige bomiljøer.

Selskapet er et datterselskap av børsnoterte Fastighets AB Balder, som er et av Nordens største eiendomsselskaper, med eiendomsverdier på over 223 mrd. pr. 31.12.2024 spredt utover ulike eiendomskategorier. Konsernet ferdigstilte i 2024 1270 boliger og har til sammen over 5000 boliger i produksjon.

BACKE PROSJEKT er en del av AS Backe, en ledende aktør i norsk byggebransje siden 1946. Bedriften, som ble grunnlagt av Gunnar M. Backe er fremdeles, 80 år senere, i hovedsak eiet av Gunnars familie. Som boligutviklere har vår viktigste oppgave alltid vært å bygge gode hjem som folk trives i. Og vi stiller høye krav til oss selv. Vi skal ha de mest tilfredse boligkjøperne. For dem er kjøp av ny bolig ofte livets største investering. Derfor er det viktig for oss at våre boligkjøpere opplever Backe Prosjekt som en pålitelig, seriøs og etterrettelig utbygger. Hittil har vi mottatt utmerkelsen «Årets Boligleverandør» ti ganger, og målet vårt er å fortsette å være aktøren med de mest fornøyde boligkundene i landet.

Turn static files into dynamic content formats.

Create a flipbook
Issuu converts static files into: digital portfolios, online yearbooks, online catalogs, digital photo albums and more. Sign up and create your flipbook.