
3ª EDIÇÃ O
AMPLIADA E REVISADA CONFORME A NBR 16868/2020



![]()

3ª EDIÇÃ O
AMPLIADA E REVISADA CONFORME A NBR 16868/2020



ORGANIZADOR
GIHAD MOHAMAD

Materiais, projeto e desempenho
3a edição ampliada e revisada conforme a NBR 16868/2020
Construções em alvenaria estrutural: materiais, projeto e desempenho, 3. ed. ampliada e revisada conforme a NBR 16868/2020
© Gihad Mohamad (organizador)
2ª edição - 2020
1ª edição - 2015
© Editora Edgard Blücher Ltda.
Publisher Eduardo Blücher
Editor Eduardo Blücher
Coordenador editorial Rafael Fulanetti
Coordenação de produção Andressa Lira
Produção editorial Kedma Marques
Diagramação Plínio Ricca
Revisão de texto Ana Lúcia dos Santos
Capa Leandro Cunha
Imagem da capa iStockphoto
Rua Pedroso Alvarenga, 1245, 4o andar 04531-934 – São Paulo – SP – Brasil
Tel.: 55 11 3078-5366 contato@blucher.com.br www.blucher.com.br
Segundo o Novo Acordo Ortográfico, conforme 6. ed. do Vocabulário Ortográfico da Língua Portuguesa, Academia Brasileira de Letras, julho de 2021.
Dados Internacionais de Catalogação na Publicação (CIP) Angélica Ilacqua CRB-8/7057
Construções em alvenaria estrutural: materiais, projeto e desempenho / organizado por Gihad Mohamad –3. ed. - São Paulo : Blucher, 2024.
524 p. ; il.
3ª edição ampliada e revisada conforme a NBR 16868/2020
Bibliografia
ISBN 978-85-212-2503-4
1. Engenharia de estruturas 2. Alvenaria I. Mohamad, Gihad
24-5365
É proibida a reprodução total ou parcial por quaisquer meios sem autorização escrita da editora.
Todos os direitos reservados pela Editora Edgard Blücher Ltda.
CDD 624.1
Índices para catálogo sistemático:
1. Engenharia de estruturas
3.4 Especificações normativas de classificação das unidades
3.5 Argamassas de assentamento para alvenaria estrutural
3.6 Grautes para alvenaria estrutural
3.7 Ruptura da alvenaria à compressão
3.8 Efeito do não preenchimento de juntas verticais no desempenho da alvenaria estrutural
3.9 Conclusão
4.1 Introdução
4.2 Junta de dilatação
4.3 Definição de juntas de controle
4.4 Condições de estabilidade estrutural e isolamento
4.5 Características físicas dos materiais (concreto e cerâmico)
4.6 Recomendações normativas
4.7
5.1 Requisitos gerais dos projetos em alvenaria estrutural
5.2 Propriedades da alvenaria e seus componentes
5.3 Lançamento estrutural e dimensionamento
5.4 Verificação das forças concentradas
5.5 Flexão simples – alvenaria não armada 261
5.7 Dimensionamento de vigas-parede
5.8 Dimensionamento à flexão simples
5.9 Flexão simples – seções com flanges
5.10 Seções com armaduras isoladas
5.11 Cisalhamento na alvenaria
5.12 Flexocompressão – alvenaria não armada
5.13 Verificação da compressão
5.14 Flexocompressão fora do plano da alvenaria não armada
5.15 Alvenaria estrutural armada
5.16
5.17 Paredes com flexão oblíqua, considerando a verificação por faixas
5.18 Painel sob ação lateral fora do plano
5.19 Verificação da estabilidade global da edificação
5.20 Verificação da resistência à compressão da alvenaria
6.1
6.2 Patologias frequentes em alvenaria
6.3 Intervenções em elementos de alvenaria estrutural
6.4 Técnicas convencionais
6.5 Polímeros reforçados com fibras (prf)
7.
7.3
7.4 Consideração de situações acidentais em
7.5 Aspectos normativos sobre danos acidentais e colapso progressivo em alvenaria estrutural
8.2 Resistência ao fogo
8.3 Verificação da alvenaria estrutural segundo o Eurocode 6 (ECS EN 1996-1-2:2005)
8.4 Aplicação do Método Tabular em umEDIFÍCIO-MODELO
8.5 Considerações Finais
9.1 Introdução
9.2 Aspectos técnicos da sustentabilidade nas edificações 475
9.3 Alvenaria estrutural com tijolos ecológicos de solo-cimento 478
9.4 Estudo da “Casa Popular Eficiente” com tijolos de solo-cimento
10. ALVENARIAS PARTICIPANTES
10.1 Introdução
10.2 Modelo de diagonal comprimida
10.3 Exemplo numérico
10.4 Comentários adicionais 506 Referências
11.1 Uso do BIM como ferramenta para resolver problemas de prazos e custos na obra 509
11.2 O que é compatibilização e BIM 511
11.3 Guia prático para implementar o BIM 513
11.4 Desafios e soluções na compatibilização e modelagem de informação em projetos de alvenaria estrutural 515
11.5 Para onde caminha a construção civil? 522
Referências 522
Gihad Mohamad
Joaquim Cesar Pizzutti dos Santos
Jorge Luiz Pizzutti dos Santos
Alessandra Haas
Kamila Kappaun Kothe
As principais construções que marcaram a humanidade graças a seus aspectos estruturais e arquitetônicos eram compostas por unidades de blocos de pedra ou cerâmicos, intertravados com ou sem material ligante, o que pode ser visto em construções como as pirâmides do Egito, o Coliseu-Romano, na Itália, e a catedral de Notre -Dame, na França. Esses são alguns exemplos de edificações que se destacam em relação ao tipo de material, à forma tipológica da construção e à segurança estrutural. A presença de unidades de pedra ou cerâmicos tornava o sistema estrutural mais limitado quanto ao vão, e a tipologia em arco permitia atender às necessidades construtivas, sem que surgissem tensões de tração que levassem o material à ruptura (Figura 1.1). O princípio da transmissão de esforços segue a lógica do formato do ovo ou da corda suspensa, que, quando submetidos a cargas verticais, conseguem distribuir as tensões, minimizando as trações responsáveis pela ruptura frágil da estrutura.

A alvenaria estrutural existe há milhares de anos. No princípio, utilizava o conhecimento empírico, ou seja, baseado na experiência de seus construtores, que foi passado de geração em geração até, aproximadamente, o início do século XX. Basicamente, o que garantia a rigidez e a estabilidade estrutural era o formato da edificação. Essas obras magníficas, existentes até hoje em excelente estado de conservação, comprovam o potencial, a qualidade e a durabilidade desse sistema construtivo. A arquitetura dessa época era uma combinação de efeitos, que faziam com que as estruturas funcionassem basicamente à compressão, absorvendo os esforços horizontais, em razão do vento, por meio dos contrafortes externos de grande espessura de parede e arcobotantes, formando um pórtico resistente às tensões de tração, como mostra a Figura 1.2.

1.2 Transmissão dos esforços horizontais nas estruturas nas alvenarias em pedra.
Nas edificações antigas em alvenaria construídas em pedra, a preocupação com a modulação dos blocos irregulares já estava presente nas obras, com a disposição de unidades amarradas entre as diferentes fiadas (Figura 1.3). Em muitas obras, mesmo não havendo material ligante entre as pedras, os pesos destas garantiam a estabilidade para as ações verticais e horizontais. Verificava-se nas construções uma integração entre os materiais empregados com a tipologia e a técnica construtiva para a sua execução.

Figura 1.3 Amarrações nas diferentes fiadas nas alvenarias em pedra.
Um exemplo marcante construído entre os anos de 1889 e 1891 foi o Monadnock Building, em Chicago, nos Estados Unidos, construção em alvenaria de dezesseis pavimentos e 65 m de altura, com paredes cuja espessura, de 1,80 m no pavimento térreo, diminui nos pavimentos superiores (Figura 1.4). Esse tipo de construção era caracterizado pela dificuldade de racionalização do processo executivo e pelas limitações de organização espacial, tornando o sistema lento em termos de produção e de custo elevado. Em consequência, a alvenaria estrutural foi um dos métodos construtivos mais empregados apenas entre a Antiguidade e o período da Revolução Industrial. O aparecimento do aço e do concreto tornou as obras mais versáteis em termos de produção, esbeltez e, principalmente, obtenção de grandes vãos, garantindo a chamada “busca pela liberdade arquitetônica” dos grandes espaços.
A chamada “moderna alvenaria estrutural” teve início com os estudos realizados pelo professor Paul Haller, na Suíça, o qual conduziu uma série de testes em paredes de alvenaria em razão da escassez de concreto e aço causada pela Segunda Guerra Mundial. Durante sua carreira, foram testadas mais de 1.600 paredes de tijolos maciços. Os dados experimentais serviram como base para o projeto de um prédio de dezoito pavimentos, com espessuras de parede que variavam entre 30 e 38 cm. Essas paredes, com espessura muito reduzida para a época, causaram uma revolução no processo construtivo existente. A partir desses estudos, tiveram início a intensificação
e a disseminação do uso da alvenaria estrutural como sistema construtivo, mediante amplos resultados experimentais que proporcionaram a criação de teorias e critérios de projeto aliados ao intenso progresso na fabricação de materiais e componentes apropriados para a execução dessas edificações. Somente na década de 1950 as normalizações forneceram os critérios básicos para o projeto de elementos de parede à compressão. Entretanto, essas normalizações possuíam procedimentos analíticos e teóricos rudimentares quando comparadas às normalizações de aço e concreto. Os problemas principais consistiam, basicamente, no caráter frágil do material à compressão, que foi amenizado, posteriormente, com o surgimento da teoria de colunas. Os códigos dessa época eram limitados pela dificuldade em avaliar as condições de excentricidade da parede, considerando as extremidades dos elementos por meio da interação parede-laje. Esse fator é fundamental para analisar a ação do vento e dos sismos na construção. Com isso, a apropriação de bases teóricas e experimentais criou métodos analíticos que proporcionaram uma melhor compreensão do comportamento das alvenarias sob compressão, tração e cisalhamento. Isso reforçou os procedimentos, ainda empíricos, utilizados nos códigos de construção. Posteriormente, durante as décadas de 1960 e 1970, em razão de problemas de colapsos progressivos verificados em construções desse período, foi desenvolvida uma série de estudos concentrados na avaliação dos efeitos de carga lateral nos painéis de alvenaria, do efeito de explosão de gás e de impactos acidentais de veículos sobre os elementos estruturais.

Os avanços nas pesquisas possibilitaram a realização, na década de 1960, de testes em escala real de prédios em alvenaria de cinco andares em tijolos maciços, desenvolvidos pela Universidade de Edimburgo, sob a responsabilidade dos professores A. W.
Gihad Mohamad
Diego Willian Nascimento Machado
Eduardo Rizzatti
Alessandra Haas
Humberto Ramos Roman
Este Capítulo apresenta as principais diretrizes para as especificações e os detalhamentos dos elementos estruturais, cujo intuito é produzir edificações tecnicamente racionalizadas e coerentes com o sistema construtivo em alvenaria estrutural, tendo por base os critérios de desempenho.
A alvenaria estrutural é um sistema construtivo no qual a unidade básica modular é o bloco, que, junto com a argamassa, forma as paredes, as quais são responsáveis por absorver todas as ações atuantes na vertical e na horizontal. Assim, nesse tipo de edificação, a segurança estrutural é garantida pela rigidez da edificação em virtude da união (amarrações) entre as paredes estruturais nas duas principais direções em que ocorre ação do vento. O critério de segurança é atendido quando a capacidade resistente do elemento é superior às tensões atuantes.
Assim, o projeto de uma edificação em alvenaria estrutural deve passar por etapas que vão desde um estudo preliminar até aspectos como a adaptação da concepção à modulação, escolha do tipo de unidade de bloco, tipo de laje, posicionamento das instalações, detalhamentos das paredes, especificação dos acabamentos, esquadrias, controle dos materiais e dos componentes estruturais e definição do projeto executivo
em alvenaria estrutural compatibilizado. Essas etapas são importantes para a obra em alvenaria, pois a falta de projeto e de detalhamentos pode comprometer o sistema e gerar problemas globais na construção. A especificação de diretrizes técnicas para a execução dos projetos é fundamental para a obtenção da qualidade final da edificação e para a otimização dos recursos físicos, financeiros e materiais empregados em sua produção. A busca por uma boa solução para cada situação é resultado do equilíbrio das decisões e das ações empreendidas na fase de projeto. Assim, as decisões de projeto devem ser coerentes com os níveis de qualidade previstos, fato este que provocará resultados compatíveis com a expectativa. Caso contrário, obter-se-á um produto deficiente ou antieconômico para a classe à qual se destina. Portanto, a aplicação dos princípios de construtibilidade e de desempenho são ferramentas importantes para nortear os profissionais da engenharia e arquitetura na execução de projetos em alvenaria estrutural.
No sistema construtivo em alvenaria estrutural, a parede é empregada para fins de transmissão de esforços, e a limitante fundamental para o lançamento é a definição das paredes estruturais e as tipologias de lajes (maciças, pré-moldadas – com vigota comum ou treliçadas –, nervuradas, protendidas e alveolares), em que o lançamento estrutural depende, basicamente, do vão que a laje empregada consegue vencer. Os principais fatores condicionantes do projeto são o arranjo arquitetônico, a coordenação dimensional, a otimização do funcionamento estrutural da alvenaria e a racionalização do projeto e da produção. Aspectos como volumetria, simetria, dimensões máximas dos vãos e flexibilidade da planta baixa devem ser, também, estudados pelo projetista em conjunto com o arquiteto, que deve atuar em todas as etapas do projeto, desde a definição do partido arquitetônico até o detalhamento da estrutura e das instalações. Também são importantes as necessidades dos clientes, os custos (incluindo aqueles de utilização e de tempo de execução), os requisitos de desempenho e os aspectos de segurança e de confiabilidade. Além das condicionantes usuais, geralmente provenientes dos códigos de obra municipais, um projeto em alvenaria estrutural impõe restrições específicas aos projetistas. Entre essas, destacam-se as seguintes restrições estruturais:
• limitação no número de pavimentos que é possível alcançar por efeito dos limites das resistências dos componentes disponíveis no mercado devido às combinações de esforços atuantes;
• arranjo espacial das paredes nas duas direções principais de vento e necessidade de amarração entre os elementos estruturais;
• relação entre o comprimento e a altura dos painéis de paredes estruturais, que pode afetar a esbeltez do elemento e o modo de ruptura da parede;
• limitações quanto à existência de transição para as estruturas em pilotis no térreo ou em subsolos;
• impossibilidade de remoção posterior das paredes estruturais;
• uso de balanços, principalmente de sacadas que produzem torção;
• necessidade de passagem das instalações sob pressão (hidráulicas e de gás) em espaços previamente pensados, sem rasgos dos elementos estruturais;
• previsão de juntas de movimentação (controle e dilatação).
Parte-se sempre do princípio de que, na construção em múltiplos pavimentos, as paredes do andar sobrejacente devem estar apoiadas sobre as do andar subjacente, isto é, devem-se buscar configurações do tipo “parede sobre parede”. Podem ocorrer paredes em andar sobrejacente suportadas por vigas no andar subjacente, embora essa não seja a solução mais coerente com a filosofia do sistema. A dificuldade da remoção das paredes limita a flexibilidade do processo construtivo na alvenaria estrutural; porém, o projetista, em trabalho conjunto com o arquiteto, é capaz de especificar paredes passíveis de serem eliminadas no pavimento, tornando-as sem função estrutural.
O lançamento da estrutura é a etapa mais importante do projeto, e, caso o partido arquitetônico não seja adequado, será muito difícil compensá-lo por meio de medidas tomadas nos projetos complementares ou em intervenções diretas na obra. Na alvenaria estrutural, devem ser observadas algumas importantes premissas para se ter um lançamento estrutural adequado, entre elas, a forma do prédio, a distribuição das paredes estruturais, o comprimento e a altura total das paredes e a disposição das paredes.
No projeto arquitetônico, a forma de uma edificação, muitas vezes, é condicionada por sua função, o que ocorre devido à necessidade de distribuição interna dos espaços. Assim, a forma da edificação pode determinar a distribuição das paredes, sobretudo as estruturais. Do ponto de vista estrutural, podemos dizer que, quanto mais robusta uma edificação, maior será sua capacidade de resistir a esforços horizontais, principalmente a ação do vento, que introduz indesejáveis esforços de tração na alvenaria, os quais devem, se possível, ser neutralizados. A robustez da edificação pode ser definida por parâmetros de rigidez do prédio em função da sua volumetria. Na Figura 2.1, são exemplificados os efeitos da forma na rigidez aos deslocamentos horizontais do prédio, em que, quanto maior a altura, menor será a rigidez aos deslocamentos horizontais.
Gallegos (1988) recomenda algumas relações dimensionais, referenciadas na Figura 2.1, indicando parâmetros ideais e toleráveis que visam ao aumento da rigidez do conjunto. Verifica-se que, em edificações baixas (consequentemente, mais robustas), há pouca influência da ação do vento. Observa-se ainda que, sob o aspecto da rigidez, a forma cúbica é a ideal, ou seja, C/L = 1 e H/L = 1. A forma geral e a planta do prédio são fortemente influenciadas pela geometria, pela orientação e pelas dimensões do terreno, bem como pela relação da edificação com o entorno imediato, pela necessidade de circulações internas, pelas exigências legais de rec uos, pelas áreas mínimas de iluminação e ventilação etc.

Estudos realizados por Mascaró (1998) e Drysdale (1994) relacionam o comprimento das paredes externas da edificação com a área de planta baixa, o que fornece um parâmetro de custo da envolvente por área útil a ser construída. É possível observar na Figura 2.2 as diferentes formas em planta baixa, comparando-as ao círculo, a mais eficiente de todas as formas, por apresentar a maior área para um mesmo perímetro. Mas, além disso, na alvenaria estrutural, a resistência da edificação aos esforços horizontais provocados pela pressão do vento é, talvez, o fator de maior relevância a ser considerado. A utilização de formas simétricas com áreas equivalentes pode reduzir os esforços torcionais indesejáveis na alvenaria. A Figura 2.2 apresenta também o efeito da forma do prédio na resistência à torção devido à atuação de forças horizontais, tomando-se como referência uma planta quadrada. Observa-se que o comprimento total das paredes externas é o mesmo em todas as plantas baixas.

Figura 2.2 Eficiência da envoltória externa e efeito da forma à torção do prédio.
Fonte: Drysdale (1994).
Gihad Mohamad
Humberto Ramos Roman
Fernando S. Fonseca
Eduardo Rizzatti
Romson Romagna
Neste Capítulo, são apresentadas as principais diretrizes para as especificações e os detalhamentos dos elementos estruturais, com o intuito de produzir edificações tecnicamente racionalizadas e coerentes com o sistema construtivo em alvenaria estrutural, tendo como base os critérios de desempenho.
Alvenaria estrutural é um sistema construtivo no qual a unidade básica modular é o bloco. Com a união proporcionada pela argamassa, os blocos solidarizam-se, formando os elementos denominados paredes, responsáveis por absorver todas as ações verticais e horizontais atuantes. Nesse tipo de edificação, a segurança estrutural é garantida pela rigidez da edificação em virtude da união (amarrações) entre as paredes estruturais, nas duas direções principais de vento e do controle no projeto e na produção da edificação. O critério de segurança é atendido quando a capacidade resistente do elemento for superior às tensões atuantes. Já o projeto e a produção de uma edificação em alvenaria estrutural devem passar por etapas que vão desde um estudo preliminar até aspectos como a adaptação da concepção ao limite da modulação, a escolha do tipo de unidade e do tipo de laje, o posicionamento das instalações, os detalhamentos das paredes, a especificação dos acabamentos e esquadrias, o controle dos materiais, os
Construções em alvenaria estrutural componentes e elementos estruturais e a definição do projeto executivo compatibilizado. Isso é fato importante para as obras em alvenaria, pois a falta de projeto e de detalhamentos pode comprometer o sistema e gerar problemas globais na construção. A especificação de diretrizes técnicas para a execução dos projetos é fundamental para a obtenção da qualidade final da edificação e para a otimização dos recursos físicos e financeiros e dos materiais empregados em sua produção. A busca pela solução ótima para cada situação é resultado do equilíbrio entre as ações empreendidas na fase de projeto. Assim, as decisões de projeto devem ser coerentes com os níveis de qualidade previstos, fato que provocará resultados compatíveis com a expectativa. Portanto, a aplicação dos princípios de construtibilidade e de desempenho é ferramenta importante para nortear os profissionais da engenharia e arquitetura na execução de projetos em alvenaria estrutural.
No sistema construtivo em alvenaria estrutural, a parede é empregada para fins de transmissão de esforços. A limitante fundamental para o lançamento é a definição das paredes estruturais e as tipologias de lajes a partir do vão que as lajes empregadas conseguem vencer, podendo ser maciças, pré-moldadas (com vigota comum ou treliçada), nervuradas, protendidas e alveolares. Aspectos como volumetria, simetria, dimensões máximas dos vãos e flexibilidade da planta devem ser também estudados pelo projetista em conjunto com o arquiteto. Os principais fatores condicionantes do projeto são o arranjo arquitetônico, a coordenação dimensional, a otimização do funcionamento estrutural da alvenaria e a racionalização do projeto e da produção. São também importantes as necessidades dos clientes, os custos (incluindo aqueles de utilização e de tempo de execução), os requisitos de desempenho e os aspectos de segurança e de confiabilidade. A dificuldade na remoção de paredes, que limita a flexibilidade do processo construtivo em alvenaria estrutural, pode ser também satisfatoriamente resolvida, pois o projetista da estrutura, trabalhando em conjunto com o arquiteto, pode especificar paredes passíveis de serem eliminadas no andar sem comprometer o comportamento global da edificação.
Além das condicionantes usuais, geralmente provenientes dos códigos de obra municipais, um projeto em alvenaria estrutural impõe restrições específicas aos projetistas, entre as quais se destacam as seguintes restrições estruturais:
• limitação no número de pavimentos que é possível alcançar por conta dos limites das resistências dos materiais disponíveis no mercado, devido às combinações de esforços atuantes;
• arranjo espacial das paredes e necessidade de amarração entre os elementos estruturais;
• comprimento e a altura dos painéis de paredes estruturais, que pode afetar a esbeltez do elemento e a presença de juntas de movimentação (dilatação e controle);
• limitações quanto à existência de transição para as estruturas em pilotis no térreo ou em subsolos;
• impossibilidade de remoção posterior das paredes estruturais;
• uso de balanços, principalmente de sacadas que provocam torção;
• necessidade das passagens das instalações sob pressão (hidráulicas e de gás) em espaços previamente pensados, sem rasgos dos elementos estruturais.
Aspectos como volumetria, simetria, dimensões máximas dos vãos e flexibilidade da planta devem ser estudados pelos profissionais de arquitetura com base no sistema construtivo. Parte-se sempre do princípio de que, na construção em múltiplos pavimentos, as paredes do andar sobrejacente devem estar apoiadas sobre as do andar subjacente, isto é, deve-se buscar configurações do tipo “parede sobre parede”. Podem ocorrer paredes em andar sobrejacente suportadas por vigas no andar subjacente, embora essa não seja a solução mais coerente com a filosofia do sistema. Isso não significa inflexibilidade arquitetônica da edificação de alvenaria estrutural: a remoção de paredes é possível desde que estas não desempenhem função estrutural, o que deve ser definido já no projeto arquitetônico. Assim, todas as diferentes possibilidades de planta devem ser estudadas pelo arquiteto, o que requer conhecimento dos princípios básicos do sistema. A atuação do arquiteto deve se dar em todas as etapas do projeto, isto é, da definição do partido arquitetônico ao detalhamento da estrutura. O desempenho do edifício, bem como seu grau de construtibilidade, está diretamente relacionado à sua atuação.
No Quadro 3.1, apresentam-se as principais normas nacionais, estrangeiras e internacionais que tratam do comportamento físico e mecânico do material, componente, elemento e sistema construtivo.
Quadro 3.1 Principais normalizações nacionais e internacionais para alvenaria estrutural
Normas brasileiras
ABNT NBR 15270-1:2017
ABNT NBR 15270-2:2017
ABNT NBR 6136:2016
Componentes cerâmicos – blocos e tijolos para alvenaria –parte 1: requisitos
Componentes cerâmicos – blocos e tijolos para alvenaria –parte 2: métodos de ensaios
Blocos vazados de concreto simples para alvenaria –Requisitos
ABNT NBR 15873:2010 Coordenação modular para edificações
ABNT NBR 12118:2013 versão corrigida 2014
Blocos vazados de concreto simples para alvenaria –Métodos de ensaio
Quadro 3.1 Principais normalizações nacionais e internacionais para alvenaria estrutural (continuação)
ABNT NBR 8491:2012 Tijolo de solo-cimento – Requisitos
ABNT NBR 8492:2012
ABNT NBR 10833:2012 versão corrigida 2013
Tijolo de solo-cimento – Análise dimensional, determinação da resistência à compressão e da absorção de água –Método de ensaio
Fabricação de tijolo e bloco de solo-cimento com utilização de prensa manual ou hidráulica – Procedimento
ABNT NBR 10834:2012 Bloco de solo-cimento sem função estrutural – Requisitos
ABNT NBR 10836:2013
ABNT NBR 14974-1:2003
ABNT NBR 14974-2:2003
ABNT NBR 13277:2005
ABNT NBR 9778:2005
ABNT NBR 13276:2016
ABNT NBR 13278:2005
ABNT NBR 13279:2005
ABNT NBR 13280:2005
ABNT NBR 13281-1:2023
ABNT NBR 13281-2:2023
Bloco de solo-cimento sem função estrutural – Análise dimensional, determinação da resistência à compressão e da absorção de água – Método de ensaio
Bloco sílico-calcário para alvenaria – Parte 1: Requisitos, dimensões e método de ensaio
Bloco sílico-calcário para alvenaria – Parte 2: Procedimento para a execução de alvenaria
Argamassa para assentamento e revestimento de paredes e tetos – Determinação da retenção de água
Argamassa e concreto endurecidos – Determinação da absorção de água, índice de vazios e massa específica
Argamassa para assentamento e revestimento de paredes e tetos – Determinação do índice de consistência
Argamassa para assentamento e revestimento de paredes e tetos – Determinação da densidade de massa e do teor de ar incorporado
Argamassa para assentamento e revestimento de paredes e tetos – Determinação da resistência à tração na flexão e à compressão
Argamassa para assentamento e revestimento de paredes e tetos – Determinação da densidade de massa aparente no estado endurecido
Argamassas inorgânicas – Requisitos e métodos de ensaios –Parte 1: Argamassas para revestimento de paredes e tetos
Argamassas inorgânicas – Requisitos e métodos de ensaios – Parte 2: Argamassas para assentamento e argamassas para a fixação de alvenaria
(continua)
Gihad Mohamad
Eduardo Rizzatti
Humberto Ramos Roman
Julia Favretto Machado
O uso de juntas de movimentação é prática comum nos projetos em alvenaria estrutural, nos quais existe a necessidade de uma melhor compreensão dos mecanismos de funcionamento e formas para a sua execução estrutural, a fim de diminuir os problemas patológicos oriundos das movimentações higrotérmicas e estruturais. Este Capítulo pretende discutir os princípios básicos que norteiam o uso das juntas de dilatação e controle em projetos em alvenaria estrutural, servindo como fonte de informação técnica aos projetistas arquitetos e engenheiros civis. Ao longo de sua vida útil, a edificação pode estar sujeita a variações nas dimensões devido às suas características físicas, químicas e mecânicas. As principais ações causadoras desses movimentos estruturais são: variações de temperatura; variações de umidade; absorção de vapor de água; ações químicas, como a carbonatação e ataque por sulfatos; deflexão por carregamento, torção devido a assimetria na distribuição dos elementos resistentes e movimentação do solo por recalques diferenciais. Neste Capítulo, pretendemos discutir as principais características de projeto para as juntas de movimentações nas alvenarias, considerando apenas as movimentações causadas pela variação de temperatura e umidade.
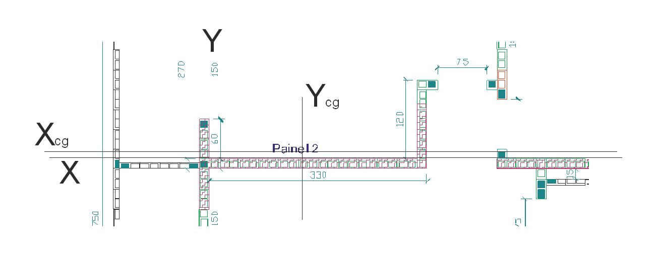
A ABNT NBR 16868-1:2020 define que devem ser previstas juntas de dilatação a cada 24 m da edificação em planta, embora esse limite possa ser alterado conforme avaliação precisa dos efeitos de variação de temperatura e expansão estrutural. A junta de dilatação é um espaço deixado entre duas paredes estruturais, a fim de permitir que aconteçam todas as movimentações sem concentrar tensões entre os elementos estruturais. Esse tipo de junta de movimentação deve ser posicionado sempre que houver mudanças de rigidez que levem a edificação a se separar, como mostrado no edifício no formato “L” da Figura 4.1.


Para o caso em questão, mesmo tendo uma edificação com dimensões menores que 24 m, no encontro do “L” deve ser prevista a colocação da junta de dilatação na posição “01” ou na posição “02”, a fim de seccionar o elemento estrutural e evitar o surgimento de fissuras de separação devido à dilatação térmica diferenciada, como mostra a planta baixa da Figura 4.1. Outra condição importante para o emprego das juntas de dilatação em edificações é a existência de assimetrias na disposição dos elementos estruturais resistentes que provoquem rotações ou torções nas estruturas. Caso isso ocorra, é importante a separação da edificação em blocos com a criação de uma junta de dilatação, dividindo a edificação em duas partes, conforme mostra a Figura 4.2.


As juntas de controle são espaços definidos em projeto com o objetivo de permitir movimentos relativos de partes da estrutura sem prejudicar a sua integridade funcional. As juntas de controle devem ser projetadas para absorver as expansões e retrações da alvenaria, permitindo o deslizamento entre os diferentes planos, sem produzir tensões de cisalhamento entre eles. Essas juntas devem ser preenchidas com um material compressível resiliente (isopor, plásticos e borrachas) e vedadas por um material impermeabilizante, para impedir a entrada de água no estado líquido e como vapor, conforme mostra a Figura 4.3. São empregadas em muros de alvenaria e quando existe a necessidade de um painel de fechamento longo, ou seja, comprimento/altura maior que 2,0 (Figura 4.3).


O sistema construtivo em alvenaria estrutural deve ser projetado para ter resistência, rigidez e estabilidade adequadas a todas as ações, incluindo as variações de temperatura e umidade. Para tanto, o projetista deve considerar todas as interações globais e locais dos elementos estruturais, perante todas as condicionantes de projeto, a fim de garantir a integridade estrutural. A rigidez e a estabilidade na alvenaria estrutural são garantidas tendo-se em vista os seguintes aspectos construtivos:
Gihad Mohamad
Emil de Souza Sánches Filho
René Quispe Rodriguez
A ABNT NBR 16868-1:2020 define os requisitos para a avaliação da qualidade da estrutura; da qualidade do projeto; da documentação necessária e da avaliação da conformidade, como mostra a Figura 5.1, elementos que são fundamentais aos projetistas para garantir a boa técnica no projeto, na execução, no desempenho e na segurança do sistema estrutural em alvenaria ao longo do tempo.
Qualidade da (o)
Requisitos
Estrutura
Projeto
Documentação
Conformidade
Figura 5.1 Organograma dos requisitos para alvenaria estrutural
É de fundamental importância a escolha adequada de todos os componentes estruturais e a previsão das ações atuantes no projeto de uma edificação, a fim de garantir a segurança à ruptura do elemento perante todas as forças atuantes. Nesse contexto, destaca-se o papel do engenheiro projetista, escolhendo os componentes estruturais, conforme as necessidades do contratante e a disponibilidade na região, prevendo todas as ações atuantes, suas possibilidades de agirem simultaneamente, definindo suas resistências de projeto, avaliando o desempenho em serviço, os pontos de armação e grauteamento, as juntas de controle e de dilatação e a durabilidade da estrutura ao longo do tempo, como mostra a Figura 5.2.
Qualidade da estrutura
Capacidade do sistema
Durabilidade da estrutura
Desempenho do serviço
Quanto à qualidade do projeto, o mesmo deve ser avaliado conforme a tipologia de laje e a distribuição dos elementos resistentes nas duas direções principais de vento, prevendo todas as ações compatíveis e representativas do arranjo da distribuição espacial do modelo estrutural, como exemplificado na Figura 5.3. De preferência, nos projetos deve ser adotado um arranjo de paredes e lajes celular, garantindo uma distribuição uniforme de tensões e uma maior ductibilidade da estrutura em caso de falha. Além disso, deve ser verificado a segurança estrutural por meio do dimensionamento para a especificação dos componentes estruturais necessários, sejam estes
blocos, grautes, argamassas, prismas e pequenas paredes. Sempre devem ser empregados procedimentos para o controle do projeto e da especificação dos materiais.

Para o lançamento estrutural em relação ao arquitetônico, alguns aspectos devem ser considerados, como:
• ter o cuidado no lançamento estrutural das paredes nas duas direções principais de vento; de preferência, as sacadas não devem produzir torção ou flexão fora do plano nas paredes estruturais;
• sempre buscar utilizar a continuidade da cinta ou viga de amarração das paredes para executar as bordas laterais das sacadas em balanço;
• verificar se existe a necessidade de junta de dilatação ao longo do comprimento do prédio, respeitando o comprimento máximo da edificação de 24 m, posicionando-os em áreas comuns da edificação, sem cortar a escada, como mostra a imagem da Figura 5.4;
• dar preferência a lajes maciças em áreas úmidas, como banheiros e cozinhas;
• prever os espaços técnicos para o posicionamento dos shafts nos banheiros e
Construções em alvenaria estrutural
nas cozinhas, das instalações de gás (preferencialmente nas paredes externas fora de zonas de compartilhamento horizontal, como escadas);
• respeitar ao tempo de resistência ao fogo de paredes de divisa entre escada e cozinha;
• escolher revestimentos e grauteamentos que permitam atingir aos índices de isolamento sonoro ponderado entre os apartamentos vizinhos.
A Figura 5.4 apresenta exemplos de plantas baixas com alguns destaques ao arquitetônico.


Figura 5.4 Projeto arquitetônico para o lançamento estrutural.
Outro aspecto importante nas edificações em alvenaria estrutural é considerar a segurança ao colapso progressivo pós-ocupação, por causa de uma eventual retirada de um elemento estrutural. Para tanto, o projetista deve ter cuidados específicos no lançamento da estrutura e nos detalhamentos construtivos, de forma que, na ocasião
Mônica Regina Garcez
Leila Cristina Meneghetti
As manifestações patológicas em estruturas são fenômenos tão antigos quanto as próprias obras, sendo registradas desde os primórdios da humanidade. Em 1800 a.C., na Mesopotâmia, o código de Hamurabi, o mais antigo conjunto de leis escritas da humanidade, estabelecia regras para punir os responsáveis por defeitos em construções: “Se uma casa mal construída causar a morte de um filho do dono da casa, então, o filho do construtor será condenado à morte”. Após a Segunda Guerra Mundial ocorreram as primeiras tentativas de classificação sistemática dos danos e do uso do termo “patologia” para tratar desse assunto na engenharia. Entretanto, a consolidação do tema ocorreu somente a partir da década de 1970, com a realização de conferências, seminários e da publicação de artigos científicos. Atualmente, o tema patologia está consolidado, seja no sentido de evitar erros em novas estruturas ou, até mesmo, de manutenção das estruturas existentes.
Souza e Ripper (1998) conceituam a patologia das estruturas como um novo campo da engenharia das construções que se ocupa do estudo das origens, formas de manifestação, consequências e mecanismos de ocorrências das falhas, bem como dos sistemas de degradação das estruturas. Segundo Cánovas (1988), a patologia da
construção está intimamente ligada à qualidade, e, embora tenha avançado muito e continue progredindo cada vez mais, os casos patológicos não diminuíram na mesma proporção. O autor enfatiza que a vida útil da obra dependerá muito dos cuidados e da fiscalização durante a construção, e que essa fiscalização não se extingue com o término da construção, mas se estende através do tempo de uso, por meio de atividades de manutenção.
As estruturas afetadas por problemas patológicos, geralmente, apresentam sintomas como fissuras, eflorescências, manchas, flechas excessivas, corrosão de armadura, entre outros. Segundo Souza e Ripper (1998), o conhecimento das origens da deterioração é indispensável para que se possa proceder aos reparos exigidos e garantir que a estrutura não volte a se deteriorar.
A rotina de abordagem em uma estrutura que apresenta sintomas de deterioração compreende etapas distintas. A primeira, chamada sintomatologia inicial, analisa visualmente as manifestações externas à estrutura. Nessa análise, com ajuda de instrumentação adequada, avalia-se a gravidade do dano e a possibilidade de colapso, adotando-se medidas emergenciais quando necessário. Após a análise inicial, realiza-se um estudo mais detalhado da sintomatologia, principalmente por meio de exames visuais, realizados por um especialista. Consumadas as etapas anteriores, passa-se à anamnese, que é o estudo abrangente dos dados históricos da estrutura. Quando necessário, são realizados exames complementares, os quais podem incluir ensaios destrutivos ou não destrutivos, recálculos da estrutura, exames químicos, entre outros. A partir dos dados obtidos na anamnese, obtém-se o diagnóstico da estrutura, que é a identificação das causas da patologia. O diagnóstico pode ser comprovado por meio de simulações, utilizando-se modelos matemáticos. De posse do diagnóstico, passa-se à terapêutica, que é a definição dos procedimentos a serem adotados na recuperação da estrutura, levando-se em conta a relação custo-benefício de cada técnica.
A intervenção em estruturas pode ser exigida quando, por uma série de diferentes tipos de patologias, originadas quer na concepção do projeto, quer na etapa de execução da estrutura, ou geradas pelo uso inadequado, ou, ainda, pela falta de um programa de manutenção adequado. Outras ocorrências, como catástrofes naturais, adequação das estruturas existentes a novas exigências de normas técnicas ou mudanças de utilização que acarretam aumento nos carregamentos de projeto também motivam a necessidade de intervenções.
Dessa forma, pode-se observar que a necessidade de intervenção em uma estrutura não ocorre apenas para restaurar sua capacidade de carga original, mas também para aumentá-la. A intervenção realizada apenas para restaurar a capacidade de carga de uma estrutura é tratada como um reparo. Quando a intervenção ocorre de forma a aumentar a capacidade de carga de uma estrutura, trata-se de um reforço estrutural.
As intervenções realizadas para reparar estruturas devem ser executadas com muito cuidado, visto que, quando as estruturas apresentam manifestações patológicas, há a possibilidade de que ocorram redistribuições de esforços para as partes sãs da estrutura, causando problemas muito mais graves do que os detectados inicialmente. No caso da
alvenaria estrutural, funciona ao mesmo tempo como elemento de vedação e elemento estrutural, com a função de absorver e suportar cargas, o que a torna muito sensível às redistribuições de esforços ocasionadas por eventuais patologias.
No caso das intervenções que visam à execução de reforços estruturais, há de se considerar que estas podem originar um novo sistema estrutural, diferente do que foi concebido originalmente, fazendo com que a estrutura existente suporte novas solicitações de projeto. Essas operações, assim como as descritas no parágrafo anterior, devem ser concebidas com muito cuidado, uma vez que podem exigir, além do reforço dos elementos estruturais danificados, ou que necessitem aumento em sua capacidade de carga, operações de reforço nas fundações.
Ao longo dos anos, diferentes técnicas de reforço de estruturas têm sido estudadas. Sendo assim, para que se possam aplicar, de forma mais segura e eficiente, as técnicas à disposição, é necessária uma compreensão adequada de suas características, detalhes de utilização e limitações. A correta escolha dos materiais e técnicas empregadas é imprescindível para que sejam eficazes, e, para tanto, é necessário avaliar o desempenho dos materiais e métodos utilizados, além de dispor de informações referentes ao desempenho obtido em casos semelhantes.
O comportamento mecânico dos diferentes tipos de alvenaria tem, geralmente, uma característica em comum, que é sua baixa resistência à tração. Além disso, a alvenaria, como um todo, possui baixa ductilidade com consequente modo de ruptura frágil. Quando a alvenaria não armada é solicitada a esforços de cisalhamento e flexão acima da sua resistência, seu comportamento mecânico pode resultar em danos estruturais ou estéticos, principalmente nos edifícios altos que apresentam uma geometria muito mais esbelta. Outra característica norteadora do comportamento mecânico da alvenaria é a baixa resistência à tração que existe nas interfaces entre a argamassa e os blocos. O mecanismo de ruptura da alvenaria inclui, portanto, ruptura por tração dos blocos e juntas, ruptura por cisalhamento das juntas e ruptura por compressão do conjunto. A principal fragilidade da alvenaria é observada contra os esforços de cisalhamento e flexão, em razão de sua baixa resistência à tração (Chagas, 2005).
Alguns fatores podem contribuir significativamente para o aparecimento de patologias em estruturas de alvenaria estrutural: (i) aplicação de carregamento excessivo na estrutura, em virtude de mudanças na utilização ou alterações no projeto arquitetônico original do edifício; (ii) ação do vento ou forças adicionais em decorrência de eventos sísmicos; (iii) recalques diferenciais de fundação; (iv) equívocos na concepção estrutural; (v) eventos não previstos, como impactos e explosões, além da degradação natural dos materiais constituintes. Esses fatores surgem, em geral, em decorrência da falta de cuidados na etapa de projeto, na escolha equivocada dos materiais, da falta de controle durante a execução da obra ou, ainda, em virtude da não realização de manutenções preventivas durante a vida útil da edificação.
As fissuras, segundo Bauer (2006), ocupam o primeiro lugar na sintomatologia em alvenarias estruturais de blocos vazados de concreto, podendo ocorrer nas juntas de assentamento ou seccionar os componentes da alvenaria. A Figura 6.1 mostra as diferentes configurações das fissuras comumente encontradas em alvenaria estrutural: fissuras verticais, fissuras horizontais e fissuras inclinadas.



Figura 6.1 Diferentes configurações das fissuras em alvenaria estrutural.
Fonte: adaptado de Bauer, 2006.
Fissuras verticais decorrem, em geral, em virtude da presença de carregamento excessivo à compressão. A argamassa, ao ser comprimida, deforma mais que os blocos, transmitindo esforços laterais de tração, responsáveis pelas fissuras verticais, que podem até mesmo seccionar os componentes da alvenaria, quando a resistência à tração dos blocos é igual ou inferior à da argamassa. As ilustrações da Figura 6.1a mostram fissuras verticais que ocorrem em decorrência da ação de cargas distribuídas ou influenciadas pela movimentação higroscópica dos materiais constituintes da alvenaria.
Fissuras horizontais podem ocorrer quando há sobrecargas verticais atuando axialmente ao plano da parede, pela expansão diferenciada entre fiadas de blocos, por
Alisson Simonetti Milani
André Lübeck
Túlio Raunyr Candido Felipe
Vladimir Guilherme Haach
Ao projetar uma estrutura, o engenheiro deve definir todas as possíveis ações que serão computadas no dimensionamento. De acordo com a ABNT NBR 8681:2004, “Ações e segurança nas estruturas”, as ações podem ser de três tipos: permanentes, variáveis e excepcionais. As ações permanentes são aquelas que ocorrem com valores constantes ou com pequena variação ao longo da vida da construção, por exemplo, o peso próprio dos materiais. As ações variáveis, como o próprio nome já diz, são aquelas que ocorrem com valores de grande variabilidade ao longo da vida da construção, como é o caso do peso de pessoas, mobiliário, veículos, vento etc. Finalmente, as ações excepcionais são aquelas com duração extremamente curta e muito baixa probabilidade de ocorrência ao longo da vida da construção.
Danos acidentais são aqueles causados por ações excepcionais que não são normalmente consideradas em projetos, como explosões, colisões de veículos, furacões, negligências no uso da edificação e similares. Assim, quando os edifícios são submetidos a tais ações, eles podem sofrer danos extensos.
A preocupação em prever danos acidentais em estruturas se tornou mais acentuada a partir de 16 de maio de 1968, quando o colapso parcial do edifício Ronan Point,
Construções em alvenaria estrutural de 22 andares, construído com painéis pré-moldados, abalou a população de Londres. A explosão de um botijão de gás em uma cozinha no 18º andar derrubou um painel externo, e essa ruptura foi propagada para cima e para baixo, quase no nível do solo. Na investigação do acidente, observou-se que o projeto fora desenvolvido dentro das normas previstas, e a construção, realizada corretamente. Esse acidente fez que normas norte-americanas e europeias fossem mudadas, a fim de incorporarem recomendações para minimizar danos acidentais. Mais recentemente, a queda do World Trade Center, vista pelo mundo todo em 11 de setembro de 2001, certamente reacendeu a preocupação dos engenheiros com relação à previsão de danos acidentais, fazendo surgir uma nova classe de ações no panorama dos projetos estruturais: as ações decorrentes de atos terroristas.
No Brasil, a norma de alvenaria estrutural ABNT NBR 16868-1:2020 apresenta um anexo de caráter informativo sobre dano acidental e colapso progressivo, já demonstrando a preocupação da engenharia brasileira com esses assuntos – preocupação que aumentou após a queda de três edifícios no centro do Rio de Janeiro, no início de 2012.
Nesse contexto, as ações excepcionais e os danos acidentais devem ser avaliados com mais cautela. Os engenheiros devem buscar mais informação sobre o assunto, além de desenvolver mais pesquisas visando ao aprimoramento das normas como uma resposta do meio técnico à sociedade.
O projeto estrutural está envolto em uma série de incertezas, como ações ambientais (vento, temperatura, umidade, neve etc.), resistência dos materiais, ações variáveis, entre outras. Além dessas, existe ainda a incerteza relativa às ações excepcionais consideradas apenas em raros casos. Dessa forma, ao projetar uma estrutura, o engenheiro assume riscos, pois é somente quando há certeza que os riscos são eliminados. De acordo com Elms (1992), o conceito de risco envolve três componentes: o risco, as consequências e o contexto. O risco é o evento potencialmente perigoso; por exemplo, o potencial de uma explosão de gás em um edifício residencial. A ocorrência do perigo tem consequências, como o colapso do edifício, ferimentos, perda de vidas, perdas econômicas ou danos para o ambiente. Finalmente, há o contexto, que fornece um quadro de referência para a análise e a avaliação de riscos e decisões resultantes. Incidentes envolvendo um elevado número de pessoas são vistos de maneira diferente de um incidente individual. Um exemplo disso é a comoção ao redor de um acidente aéreo em comparação com um acidente de automóvel.
O risco pode ser quantificado por sua probabilidade de ocorrência. No entanto, de acordo com o NISTIR 7396 (Ellingwood et al., 2007), a probabilidade de ocorrência de um dano acidental pode não ser uma medida suficientemente eficaz na tomada de decisão do engenheiro durante o projeto estrutural. Isso porque eventos com baixa probabilidade de ocorrência, porém com graves consequências, como a perda de vidas, têm um impacto muito grande na sociedade.
Por outro lado, a consideração de risco nulo tem como consequência a inviabilidade econômica de qualquer projeto. Dessa forma, qual é o risco a ser considerado? De acordo com o Eurocode 1 (ECS EN 1991-1-7:2006), esse risco deve ser determinado por meio do custo de medidas de segurança versus a reação pública frente aos danos acidentais resultantes, junto com a consideração das consequências econômicas e o número potencial de vítimas envolvidas. Assim, o risco pode ser comparado com os riscos de morte de uma pessoa, por ano, causada por uma série de fatores, como mostra a Tabela 7.1.
Tabela 7.1 Risco de morte de uma pessoa, por ano, no Brasil, em 2010
Fonte: riscos calculados a partir de dados estatísticos do Ministério da Saúde (DATASUS, 2012).
O NISTIR 7396 (Ellingwood et al., 2007) admite 10−7 como valor de referência, baseado em evidências de que esta é a ordem de risco abaixo da qual a sociedade normalmente não impõe qualquer orientação regulamentar (Pate-Cornell, 1994). Segundo Leyendecker e Burnett (1976), a taxa média de ocorrência de explosões de gás é da ordem de 2 ⋅ 10−5 por habitação ao ano, valor este comprovado por estudos nos Estados Unidos e no Reino Unido. Ellingwood (2006) afirma que, em edificações em zonas urbanas, em que os alarmes e os sistemas de aspersão estão presentes, a ocorrência média de incêndio estruturalmente significativo é da ordem de 10−8 por metro quadrado por ano. Com base nesses valores, pode-se dizer que o risco de explosões de gás é similar ao risco de incêndio estruturalmente significativo em um edifício de dez andares com 200 m2 por pavimento. Como apontam Hendry, Sinha e Davies (1997), o risco de danos acidentais é similar ao risco de incêndio; portanto, uma vez que existem critérios para estruturas em situação de incêndio, há uma justificativa similar para a definição de critérios para a avaliação de danos acidentais em estruturas.
A norma brasileira ABNT NBR 8681:2004 considera excepcionais as ações decorrentes de causas como explosões, choques de veículos, incêndios, enchentes ou sismos. Alguns autores (Somes, 1973; Burnett, 1975; Ellingwood; Dusenberry, 2005) apontam também como ações excepcionais aquelas causadas por erro humano, como erro de construção, erro de projeto e mau uso da edificação. Como erro humano, pode-se acrescentar também a execução de reformas indevidas, sem o acompanhamento de um engenheiro responsável, capaz de levar à demolição de elementos estruturais. A esse tipo de erro, os edifícios de alvenaria estrutural estão muito susceptíveis, uma vez que não são incomuns proprietários de imóveis que desejam remover paredes com o intuito de aumentar ambientes. A norma de alvenaria ABNT NBR 16868-1:2020, em seu Anexo A, demonstra preocupação especial com as ações causadas por impacto de veículos e explosões. A identificação de possíveis ações excepcionais não é difícil; a grande dificuldade está em quantificar essas ações. Após o colapso parcial do edifício Ronan Point, em Londres, uma série de estudos foi desenvolvida com o intuito de avaliar as pressões geradas na estrutura em função de explosões de gás. De acordo com Ellingwood (2006), verificou-se que essas pressões dependiam da compartimentação e da ressonância da massa de ar no interior do compartimento, mas raramente ultrapassavam 17 kPa, substancialmente menor que o valor de 34 kPa recomendado pelas normas da época. Atualmente, a Seção 5 do Eurocode 1 (ECS EN 1991-1-7:2006) fornece recomendações gerais de projeto para a consideração de explosões internas, enquanto o Anexo D apresenta algumas equações para se calcular o valor de pressões estáticas equivalentes, geradas por explosões. Além das ações causadas por explosões, o Eurocode 1 (ECS EN 1991-1-7:2006) também fornece recomendações gerais de projeto para a consideração do impacto de veículos. Nesse caso, a norma europeia sugere que seja considerada uma força estática equivalente com componentes Fd,x e Fd,y aplicada a 0,50 m da superfície de rolamento em uma área de 0,25 m de altura por 1,50 m de largura ou a largura do elemento estrutural, de maneira a representar a força dinâmica provocada pelo impacto do veículo (Figura 7.1), em que x e y são as direções normal e perpendicular ao tráfego, respectivamente.
7.1 Representação do impacto de veículos por meio de força estática equivalente.
Amanda Furlin Renosto
Larissa Deglioumini Kirchhof
Rogério Cattelan Antocheves de Lima
Almir Barros da Silva Santos Neto
A segurança ao incêndio das edificações tem como propósitos minimizar o risco à vida humana, reduzir as perdas patrimoniais e garantir as operações de resgate humano e combate ao incêndio por um determinado período de tempo, sem que possa ocorrer o colapso estrutural.
Dessa forma, a segurança de edificações em alvenaria estrutural ao incêndio deve ser desenvolvida de forma eficaz e ampla, promovendo a segurança do sistema construtivo e dos usuários, conforme exigências gerais da ABNT NBR 15575:2021 “Edificações Habitacionais – Desempenho”.
Entretanto, cabe salientar que o Brasil não dispõe atualmente de uma norma técnica específica para o projeto de estruturas de alvenaria estrutural em situação de incêndio, analogamente à ABNT NBR 15200:2012 - Projeto de estruturas de concreto em situação de incêndio e a ABNT NBR 14323:2013 - Projeto de estruturas de aço e de estruturas mistas de aço e concreto de edifícios em situação de incêndio.
Diante disso, a PMSP CB IT 08:2019 “Instrução Técnica no 08/2019 – Segurança Estrutural contra incêndio” do Corpo de Bombeiros do Estado de São Paulo reco-
menda a utilização do Eurocode 6 (ECS EN 1996-1-2:2005), “Eurocode 6: Design of masonry structures. Part 1-2: General rules – Structural fire design” ou de normativa similar, reconhecida internacionalmente.
O Eurocode 6 (ECS EN 1996-1-2:2005) trata das exigências relacionadas aos métodos passivos de proteção ao incêndio para os elementos de alvenaria com função estrutural e, também, com função de vedação, apenas, contemplando a utilização de diferentes métodos de verificação em situação de incêndio, que variam conforme o tipo de análise estrutural empregada, podendo ser aplicados o método avançado, o simplificado ou o tabular.
Segundo a ABNT NBR 14432:2001 “Exigências de resistência ao fogo de elementos construtivos de edificações – Procedimento”, a resistência ao fogo pode ser definida como uma propriedade da estrutura de resistir à ação térmica por um determinado período de tempo, mantendo sua segurança, estanqueidade e isolamento, quando requeridos. Esse período de tempo mínimo em que o elemento estrutural deve apresentar resistência ao fogo é conhecido como tempo requerido de resistência ao fogo, dado pela sigla “TRRF”, e tem como base o aquecimento por meio da curva do modelo de incêndio-padrão.
A definição de TRRF pode ser compreendida, por meio da Figura 8.1, como sendo o tempo dado pela curva de incêndio-padrão que equivale ao período em que o elemento estrutural atinge sua temperatura máxima por meio da exposição ao incêndio natural (Silva, 2008 apud Rodovalho, 2018).

Figura 8.1 Definição do TRRF. Fonte: Silva (2008) apud Rodovalho (2018).
contra o fogo em edificações de alvenaria estrutural
Vale ressaltar que esses tempos requeridos de resistência ao fogo tabelados são valores empíricos, padronizados e estabelecidos de forma consensual pelo meio técnico, sendo estipulados conforme altura e ocupação da edificação, área do pavimento e medidas de proteção ativa disponíveis (Silva, 2012). Além disso, variam de 30 a 180 minutos, recebendo os maiores valores os edifícios onde observa-se que, em caso de sinistro, o risco às vidas humanas ali presentes é maior.
Para verificar sob incêndio os elementos estruturais de um edifício, como as paredes de alvenaria estrutural, deve-se obter os valores tabelados de TRRF conforme determinações da legislação regional vigente ou, na ausência dela, da ABNT NBR 14432:2001. As exigências de resistência ao fogo de elementos construtivos segundo a legislação do Estado do Rio Grande do Sul são obtidas por meio da PMSP CB IT 08:2019 “Instrução Técnica no 08/2019 – Segurança Estrutural contra incêndio” do Corpo de Bombeiros do Estado de São Paulo.
Para determinar o TRRF da edificação, é preciso utilizar a tabela presente na PMSP CB IT 08:2019, expressa em partes no Quadro 8.1. Para tal, se faz necessário determinar a altura da edificação e a qual grupo ela pertence segundo o seu propósito de Uso/Ocupação. Vale ressaltar ainda, conforme a PMSP CB IT 03:2019 “Instrução Técnica no 03/2019 - Terminologia de segurança contra incêndio” do Corpo de Bombeiros do Estado de São Paulo, que a altura da edificação, nesses casos, é a medida do seu ponto de saída para o exterior, também denominado nível de descarga, até o piso do último pavimento habitado, não sendo considerados barriletes, casa de máquinas e pisos sem permanência humana.
Grupo
Ocupação/ Uso Divisão
D Serviços profissionais, pessoais e técnicos
Quadro 8.1 Tempos Requeridos de Resistência ao Fogo (TRRF) (continuação)
Grupo Ocupação/ Uso Divisão
F Locais de reunião de público
F-1, F-2, F-5, F-6, F-8, F-10 e F-11
F-4 E F-7 Ver item
G-1 e G-2 não abertos
G Serviços automotivos
H Serviços de saúde e institucionais
mente e G-3 a G-5
G-1 e G-2
J Depósitos
Fonte: adaptado de PMSP CB IT 08:2019.
Marcos Alberto Oss Vaghetti Paulo Rogério Lemos
Segundo muitos cientistas e ambientalistas, a humanidade passa por um período muito complexo, não somente devido ao aquecimento global, mas também devido à diminuição dos combustíveis fósseis, recursos não renováveis do planeta Terra cujo rareamento poderá contribuir para uma provável crise energética em um futuro não muito distante.
As mudanças climáticas que têm ocorrido no mundo desde o início da década de 1980 em função do aquecimento global, servem de alerta para todos aqueles que pensam nas gerações futuras. Como exemplos, vale mencionar as temperaturas anormais – acima de 45 °C – registradas no verão europeu de 2003, que causaram mais de 300 mil mortes em países como a França, Portugal, Itália, Espanha e Reino Unido; o furacão Katrina, que varreu a Costa Sul dos Estados Unidos em agosto de 2005, causando mais de mil mortes e provocando prejuízos na ordem de 2 bilhões de dólares; a seca na Amazônia em 2005; incêndios nos estados de Victoria, na Austrália, e da Califórnia, nos Estados Unidos, em virtude das mudanças nos padrões de chuva, que favoreceram as queimadas; derretimento das geleiras nos Polos, contribuindo para a elevação do nível do mar e causando vários problemas, inclusive o desaparecimento de ilhas,
como Lohachara, na Índia; epidemia de malária na África, em função do clima mais quente, que encurta o ciclo reprodutivo do mosquito transmissor da doença e permite que o inseto se multiplique mais rapidamente em regiões atingidas por desastres naturais etc.
Outro fator preocupante é a já mencionada crise dos combustíveis fósseis, como petróleo, gás natural e carvão, que certamente afetará a vida na Terra, a menos que o ser humano invista em novas alternativas de geração de energia. Sabe-se que tanto o gás natural quanto o petróleo possuem reservas finitas e produção em declínio, ao passo que a demanda global tem aumentado; ou seja, há um descompasso entre o que se produz e o que se consome. Além da crise dos combustíveis fósseis, existe o problema das emissões de gases de efeito estufa, que advêm da queima desses combustíveis, gerando fortes mudanças climáticas no planeta (Roaf; Fuentes; Thomas, 2006).
Sabe-se que o gás carbônico (CO2) é o principal responsável pelo efeito estufa. As edificações contribuem com 50% das emissões desse gás, enquanto a indústria e o transporte contribuem com 25% cada. Assim, ao se construirem edificações que demandem grandes quantidades de energia para iluminação, funcionamento de sistemas de calefação e refrigeração, deve-se ter consciência de que essas edificações afetam fortemente o ambiente por meio das mudanças climáticas, ameaçando as futuras gerações (Roaf; Crichton; Nicol, 2009).
Segundo Roaf, Fuentes e Thomas (2006, p. 17), “o certo é que devemos agir agora para reduzir a emissão global de CO2 , e um dos setores que, efetivamente, pode alcançar reduções rápidas na emissão é o das edificações”.
O ambiente construído precisa de mudanças urgentes, no sentido de procurar alternativas que contribuam para melhorar as tecnologias de materiais e construtivas, para reduzir as emissões de gás carbônico, e que sejam ambientalmente amigáveis, ou seja, que aproveitem os recursos naturais (sol, solo, vento, vegetação, água etc.), mas de forma equilibrada, sem interferir no ecossistema, especialmente na fauna e na flora.
A sustentabilidade deve estar presente em toda parte, nas mais diversas ações e iniciativas humanas. Ela é indispensável para a manutenção, conservação e preservação das vidas no planeta. Seja no desenvolvimento de uma pesquisa, de um projeto ou de qualquer empreendimento de naturezas diversas, considerar seus princípios não pode ser apenas uma preocupação, mas um dever para todos.
Como o conceito de sustentabilidade, os princípios da sustentabilidade também são abrangentes e complexos, motivo pelo qual não é possível mensurá-los ou reuni-los em síntese. Este Capítulo traz uma abordagem mais específica na área da construção civil, com foco na alvenaria estrutural. Embora o conceito e os princípios de sustentabilidade tenham surgido das questões ambientais, assumiram um contexto multidisciplinar e foram amplamente difundidos, daí a quantidade de significados e a inquietude experimentada ao tentar defini-los.
De modo geral, é possível entender o significado da palavra “princípio” como razão, causa primeira, aquilo que fundamenta ou pode ser usado para embasar alguma coisa. Já em um contexto mais operacional, princípios podem ser compreendidos
Princípios de sustentabilidade na alvenaria estrutural
como algo que apresenta possibilidade de ser aplicado, um conjunto de meios que se combinam e exercem influência para se obter um resultado pretendido, para se alcançar determinada solução. São, assim, critérios, diretrizes.
Os princípios gerais de sustentabilidade coexistem com todos aqueles que são específicos a cada área ou projeto. Então, considerando-se que cada projeto é único, os princípios dificilmente serão exatamente os mesmos. Existem aqueles definidos pela Organização das Nações Unidas (ONU) e órgãos ligados ao meio ambiente, bem como os determinados pelo setor privado; porém, cada profissional pode decidir quais princípios aplicar nos mais diversos empreendimentos que contemplam sustentabilidade.
Dessa maneira, pode-se afirmar que a sustentabilidade já foi definida, assim como seus princípios, dentro de diversas áreas, e cada uma delas considera o que é mais essencial e importante dentro do seu contexto. Porém, é fundamental, também, que o foco da sustentabilidade esteja voltado para a pessoa, o ser humano, pois ele é o principal agente nessa questão. Melhores resultados somente poderão ser alcançados a partir do trabalho em conjunto, desenvolvido de forma transdisciplinar, a fim de que cada área contribua com seus conhecimentos sustentáveis específicos. Tanto menos sustentável será um projeto quanto mais isolado em um contexto se der o seu desenvolvimento. Inversamente, quanto mais princípios de sustentabilidade ele contemplar, mais sustentável será.
No que diz respeito à construção civil, considerar os princípios de sustentabilidade é fundamental, pois o setor impacta diretamente não apenas o meio ambiente, com índices bastante elevados, mas também as dimensões clássicas da sustentabilidade, quais sejam ambientais, sociais e econômicas.
A construção civil é reconhecida como uma das atividades de maior pegada ecológica em nosso planeta. Segundo dados das Nações Unidas, a construção consome 40% de toda energia, extrai 30% dos materiais do meio natural, gera 25% dos resíduos sólidos, consome 25% da água e ocupa 12% das terras. Infelizmente, a construção também não fica atrás quando se trata de emissões atmosféricas, respondendo por 1/3 do total de emissões de gases de efeito estufa (Benite, 2011).
Para reduzir esses impactos, é urgente e necessário estimular o desenvolvimento de uma consciência sustentável em relação a todas as etapas que envolvem o processo de produção de uma edificação, pois o que vai definir se ela é mais ou menos sustentável será a quantidade de princípios nela empregados, não apenas em sua construção, mas em todas as fases, desde a extração da matéria-prima utilizada na fabricação dos materiais de construção, transporte dos materiais, definição da(s) tecnologia(s), técnica(s) construtiva(s) e tipos de materiais a serem utilizados, passando pelos projetos, execução, destinação correta para os resíduos e uso, e chegando até a demolição, que deve considerar um descarte responsável.
Em relação à alvenaria estrutural, os princípios de sustentabilidade, de modo geral, são representados pela racionalização do projeto, da construção como um todo e da sua execução, pois essa técnica garante menos desperdício, redução da quantidade de resíduos
Construções em alvenaria estrutural e economia de materiais. Permite uma obra mais limpa, o que facilita e acelera a execução, bem como diminui a incidência de retrabalhos. Porém, como alvenaria diz respeito a técnica, para garantir que ela seja mais sustentável é necessário que se considere a utilização de componentes mais sustentáveis em todo o processo de sua aplicação.
Existem algumas tecnologias construtivas que podem, certamente, atender aos conceitos de sustentabilidade, observando aspectos relacionados ao tipo de matéria-prima utilizada, à facilidade ou não em obtê-la e produzi-la na indústria, a distância de transporte do material manufaturado até sua aplicação na obra, o desempenho desse material em uso, como também o seu retorno ao ambiente no final de sua vida útil. Dentre elas, podem ser citadas as construções feitas com madeira de reflorestamento, as construções feitas com paredes monolíticas de terra crua e também as construções em alvenaria estrutural com tijolos ecológicos.
Como tecnologia para a edificação de casas, galpões, ginásios, pontes e passarelas pode ser empregada a madeira de reflorestamento, que é adequada, do ponto de vista ambiental, mas que, ao mesmo tempo, apesar de sua excelente relação de resistência/ peso, não tem seu uso massificado como tecnologia construtiva em virtude de vários fatores, como o comportamento anisotrópico da madeira, cuja direção das fibras influencia diretamente as propriedades físicas e mecânicas; a retração e o inchamento em razão da umidade, que influencia sua resistência e elasticidade; a possibilidade de ataques biológicos por fungos ou insetos; a alta inflamabilidade do material ao fogo; a própria quantidade, ainda reduzida, de pesquisas na área etc. Assim, a madeira na construção civil tem maiores aplicações na fabricação de componentes para as edificações, como esquadrias, pisos e forros; na elaboração de tesouras para coberturas e também no cimbramento para estruturas de concreto.
Em relação às construções com terra crua, segundo Barbosa e Ghavami (2010), elas datam da Antiguidade. Um exemplo é a cidade de Arg-é Bam, no Irã, construída em adobe no ano de 550 a.C. e considerada um patrimônio da humanidade (Figura 9.1).
Conforme Barbosa e Ghavami (2010), as construções com terra crua no Brasil, foram introduzidas pelos portugueses, que ergueram muitas edificações coloniais de qualidade. Existem exemplares em muito bom estado até hoje.
Em decorrência da industrialização dos materiais de construção tradicionais, como tijolos e cimento, a arquitetura de terra no Brasil desapareceu, contribuindo para a redução no número de construções com essa técnica milenar, que apresenta muitas vantagens, dentre as quais podem-se destacar três: o bom desempenho térmico, superior ao do tijolo cerâmico convencional; o ambiente saudável em virtude da absorção e da liberação de umidade relativa do ar de forma equilibrada; e também a eficiência energética, pois a terra crua não recebe tratamentos térmicos como outros materiais convencionais (o aço, o alumínio, o cimento e as cerâmicas). Em função da situação energética do planeta, as construções em terra crua (baixa emissão de CO2) passaram a ser alternativa para os problemas ambientais enfrentados atualmente. Assim, as casas feitas com terra crua voltaram a ser construídas, pois o material pode ser obtido na região em que se deseja construir e dispensa a fase da queima, que normalmente passa de 900 °C para os tijolos cerâmicos tradicionais.
Gerson Moacyr Sisniegas Alva
Em sistemas estruturais de pórticos de edifícios, as alvenarias que preenchem os espaços entre vigas e pilares podem ter função exclusiva de vedação, mas também podem ter função estrutural de contraventamento frente às ações horizontais. Neste último caso, de acordo com a ABNT NBR 16868-1:2020, denomina-se alvenaria participante como a alvenaria estrutural construída dentro de um pórtico, intencionalmente dimensionada e construída como parte do sistema de contraventamento.
Quando fixadas à estrutura principal (aporticada), as alvenarias contribuem com o aumento da resistência lateral e induzem à redistribuição de esforços no sistema estrutural. Logo, ao considerar a influência das paredes, as estruturas aporticadas mostram-se mais rígidas frente às ações horizontais.
Há um entendimento de parte do meio técnico de que a não consideração do ganho de rigidez lateral proveniente das alvenarias conduz a dimensionamentos mais seguros (pois se garante uma “reserva de resistência”). Contudo, a desconsideração da rigidez e da posição das alvenarias no edifício pode levar a imprecisões relevantes na
obtenção dos esforços, com possibilidade de alguns elementos estruturais não estarem adequadamente dimensionados.
Sob ações horizontais, os pórticos preenchidos com alvenarias podem ser simulados por meio de modelos simplificados com barras diagonais birrotuladas (diagonais equivalentes) ou por meio de modelos mais refinados, que empregam elementos finitos bidimensionais ou tridimensionais e que simulam o contato entre a alvenaria e os elementos do pórtico (viga e pilar). Tanto os modelos simplificados quantos os mais refinados exigem o conhecimento das propriedades geométricas e mecânicas das alvenarias.
Os modelos de diagonais equivalentes são os mais atrativos em projetos, em razão da simplicidade e do baixo custo computacional. O modelo de única diagonal comprimida nos cantos (vide Seção 10.2) é o mais amplamente conhecido na literatura e é o abordado na ABNT NBR 16868-1:2020.
10.2.1
Nos pórticos preenchidos com alvenaria submetidos a força horizontal ,observa-se a separação entre a parede e os elementos do pórtico (viga e pilar), conforme indicado na Figura 10.1a. A partir dos cantos comprimidos da parede, onde ocorre o contato com o pórtico, ocorre a formação de uma biela de compressão, conforme a Figura 10.1b.

a) Deformada sob força horizontal e pressões de contato pórtico-alvenaria
b) Tensões principais de compressão na alvenaria
Figura 10.1 Pórtico de concreto com alvenaria participante. Fonte: Galvão (2022).
O mecanismo de deformação apresentado na Figura 10.1 fornece a base para a simulação da alvenaria por meio de uma barra diagonal equivalente (birrotulada), constituindo o modelo de diagonal comprimida. O principal parâmetro a ser determinado nesse modelo é a largura da diagonal equivalente w (Figura 10.2), a qual pode ser obtida por expressões analíticas encontradas na bibliografia e em normas de projeto.

Figura 10.2 Modelo de diagonal comprimida.
10.2.2
DA ABNT NBR 16868-1:2020
No anexo D da ABNT NBR 16868-1:2020, encontra-se uma metodologia para consideração da alvenaria participante em sistemas estruturais de pórticos que consiste essencialmente no modelo de diagonal comprimida única e é baseado na norma canadense CSA S304:2014.
A partir da Figura 10.2, obtém-se a expressão para a largura da diagonal equivalente:
h = altura da parede;
l = largura da parede;
E = módulo de elasticidade da parede;
E c = módulo de elasticidade do concreto (pórtico);
I p = momento de inércia do pilar;
I v = momento de inércia da viga;
t ap = espessura aparente da parede, considerada como duas vezes a espessura das paredes longitudinais do bloco vazado não grauteado ou a espessura da parede para tijolo ou bloco grauteado;
θ = ângulo da diagonal equivalente com a horizontal, igual a arctg(h/l).
A largura efetiva da diagonal weff (usada para o dimensionamento) é dada por weff = w/2 e não pode ser superior a 1/4 do comprimento D da diagonal da parede.
A rigidez axial da diagonal comprimida efetiva para obtenção de esforços e deslocamentos é dada por:
����!"" = ����#$ . ����!"" . ����%&. ����% /��������
onde ϕst um fator de redução da rigidez considerado como 0,5 e l s é o comprimento da diagonal comprimida subtraído de w/2, sendo w/2 a largura efetiva da diagonal. O valor de keff é o valor da constante de mola à translação na direção da diagonal que simula a parede.
Alternativamente, quando se modela a diagonal com elemento de pórtico, pode-se empregar o comprimento diagonal entre eixos de vigas e pilares:
����!"#$% = # ���� & + ����&
Nesse caso, deve-se corrigir a rigidez axial da diagonal comprimida multiplicando-a por Deixos/l s .
Este exemplo trata da análise de um pórtico preenchido com alvenarias participantes, pertencente a uma edificação de doze pavimentos em concreto armado. As dimensões dos elementos e resistência dos materiais estruturais (aço e concreto) foram definidas a partir de pré-dimensionamento, desconsiderando-se a rigidez das alvenarias participantes. Para a análise estrutural com a consideração das alvenarias, empregou-se o modelo da diagonal equivalente abordado no Anexo D da ABNT NBR 16868-1:2020.
Aline Moreira Brandolff
Willian Magalhães de Lourenço
Este Capítulo ressalta a importância da compatibilização e da modelagem de informação da construção (BIM) em projetos de alvenaria estrutural. Muitos profissionais podem ainda não ter experiência na comercialização de projetos ou podem não utilizar a metodologia BIM nos projetos e nas obras. A compatibilização de todos elementos que envolvem um projeto frequentemente gera dúvidas, principalmente em relação aos procedimentos adotados nesse processo.
Profissionais que comercializam seus projetos ou executam construções frequentemente ouvem de seus clientes declarações como: “Eu preciso que a obra fique pronta para ontem”; ou a conhecida expressão: “Quero comemorar o Natal na minha casa nova”, dita para uma obra que não havia sido iniciada. Outra frase comum é: “Preciso gastar o mínimo possível, o orçamento está apertado”.
A compatibilização e o BIM são mais que estatísticas econômicas e produtivas; configuram-se como ferramentas cruciais para transformar a vida das pessoas, redu-
zir o estresse durante a obra, diminuir os prazos e economizar recursos financeiros. No entanto, é fundamental considerar os aspectos técnicos e os dados que sustentam essa abordagem.
Chuck Eastman et al. (2017) realizaram diversas pesquisas sobre projetos e obras utilizando BIM. A seguir, são apresentados três estudos que demonstram a influência do BIM na execução e no custo final da obra.
Primeiramente, o estudo de caso do Hyundai Motor Studio Goyang, que compreende showrooms de automóveis, teatros, sala de experiência 3D, oficinas de automóveis, cafeteria, creches, instalações esportivas, entre outros. A complexidade era demasiada: um edifício polivalente, com estrutura de aço em megatreliças e painéis, com orçamento total de US$ 170 milhões. Pela complexidade, foram utilizados métodos BIM para aumentar a eficiência da coordenação do projeto. Como resultado, a passarela do projeto foi otimizada, reduzindo em 35,7% o uso do aço, impactando o custo final da obra.
Em outro caso do Projeto Hyundai, houve a necessidade de redução do cronograma. Para tal, foi implementada a utilização de pré-fabricação com o auxílio do BIM, aplicada em quatro andares do prédio de escritórios da Hyundai. Utilizou-se o sistema de módulos pré-fabricados MEP, que incorporam sistemas mecânicos, elétricos e de instalações hidráulicas. O projeto dos módulos pré-fabricados MEP se iniciou dois meses antes da data prevista, com a fabricação começando um mês antes e durando uma semana por andar. Como resultado, a pré-fabricação elevou a mão de obra em 13,5%, mas a produtividade por andar se incrementou à medida que os trabalhadores ganhavam experiência. A pesquisa de Chuck Eastman et al. documenta a produtividade semanal, evidenciando a evolução dos colaboradores ao decorrer da obra. Ao final, observou-se que os módulos pré-fabricados MEP têm a capacidade de reduzir o cronograma em um mês, desde que haja um bom alinhamento e auxílio do BIM.
No estudo de caso do Saint Joseph Hospital, de 77.233 m², o BIM foi implementado desde o início do projeto, com proposta de pré-fabricação e a meta de conclusão desde o projeto até a obra final em 30 meses. O impacto pode se basear em evidências científicas por meio da relação benefício/custo, em que o benefício é dado pela soma do custo direto total da construção com a economia total dos custos indiretos de cronograma, e o custo sendo o custo total da pré-fabricação. Conclui-se que, para cada dólar investido na construção pré-fabricada, aproximadamente US$ 1,13 foi devolvido como um benefício quantificável para o projeto. Logo, 13% de cada dólar gasto em pré-fabricação foram devolvidos como um benefício quantificável para o projeto.
Já nos projetos residenciais de estudantes da Universidade Tecnológica de Nanyang, em Singapura, a produtividade atingiu melhorias de 2 a 3% ao ano. Elas ocorreram pela utilização do BIM, com construção pré-fabricada e pré-acabada, com acabamento já realizado de antemão. O empreendimento consistia em seis blocos de unidades de albergues estudantis, uma sala polivalente e um estacionamento. Cada bloco possuía treze andares, com instalações comuns, totalizando uma área bruta de aproximadamente 54 mil m². A construção teve início em junho de 2014, com duração prevista
511 BIM como ferramenta de compatibilização para a alvenaria estrutural
de 26 meses, mas foi concluída em 19 meses, custando um total de cerca de US$ 196 milhões. Foi observado que minimizar trabalhos intensivos em mão de obra no canteiro resultou em uma economia estimada das horas de trabalho em 20%, atingindo o seu principal objetivo de crescimento da produtividade com menor dependência de mão de obra estrangeira.
Esses exemplos, extraídos do Handbook BIM, de Chuck Eastman et al., comprovam que o BIM atua como catalisador de produtividade, ao integrar diferentes tecnologias na construção, proporcionando velocidade, precisão e economia de tempo e investimento. Outros autores trazem análises relevantes. Em pesquisas sobre produtividade de desenhos de engenharia estrutural com detalhamentos, comprovou-se uma produtividade maior, entre 21% e 59%, dependendo do tamanho, complexidade e repetitividade da estrutura (Sacks e Barak, 2006). Isso ocorre porque, ao realizarmos uma análise de interferências bem-feita, quantitativos e cronogramas, conseguimos ter uma visualização mais real da obra na fase de projetos, evitar retrabalhos e enviar algo mais preciso para a obra.
Ao combinar a compatibilização com a modelagem de informação, é possível ter uma visualização clara de cada etapa da obra e desenvolver a quantificação de materiais e planejamento de obra com agilidade e eficiência. Neste Capítulo vamos explorar como realizar esses processos de maneira eficaz.
Durante o curso universitário, nosso conhecimento sobre construção é fracionado por meio de projetos individuais, onde cada projeto representa uma disciplina específica e aprimoramos nosso entendimento sobre a obra integrando os projetos com a arquitetura. Embora sejamos instruídos a evitar a passagem de tubulações em pilares e janelas, há uma lacuna significativa entre o ensino de compatibilizações e a obra.
Na prática, nos deparamos com múltiplos projetos que devem ser encaixados, semelhando-se à montagem de um quebra-cabeça. Compatibilizar consiste em unir todos os projetos, durante a fase de planejamento, resolver quaisquer interferências e garantir a coerência e funcionalidade da obra.
Entre os desafios práticos de obras em alvenaria estrutural, compatibilização está entre os mais cruciais. Questões como realizar cortes horizontais sem comprometer a integridade estrutural ou coordenação eficiente de passagens elétricas, redes de lógica, hidráulica, águas pluviais e esgoto com os blocos estruturais exemplificam a complexidade do sistema.
A compatibilização inicia-se na primeira reunião, envolvendo diversos projetistas, utilizando ferramentas Computer-Aided Design (CAD) e BIM. É crucial compreender que projetos confeccionados com ferramentas CAD, integrando todas as disciplinas de um projeto, possuem maior qualidade comparado a projetos em ferramentas BIM, sem compatibilização. Assim, a eficácia da compatibilização supera a mera adoção de tecnologias como o BIM.
A definição equivocada do BIM se resume ao uso de softwares, sendo que o verdadeiro uso do BIM reside na modelagem precisa, integração facilitada das disciplinas, quantificação de tempo e materiais. Portanto, o BIM pode ser aplicado em até duas dimensões, conhecido como BIM 2D, embora existam outros níveis de aplicação, incluindo BIM 3D ao 7D.
O BIM 3D é a modelagem da informação que contempla as informações presentes no BIM 2D aliadas a uma representação tridimensional, promovendo uma identificação precisa de interferências de projeto em nível espacial. O BIM 4D representa a etapa de planejamento de tempo, isso implica visualizar o projeto tridimensional, a sequência de eventos e o progresso da construção ao longo do tempo. Esta dimensão temporal permite uma visualização precisa do cronograma da obra e auxilia na otimização dos processos de construção e gestão do projeto.
Essa etapa inicia desde a concepção do projeto até a obra e é comum empregar uso de softwares como Excel, MS Project ou Orçafascio para planejar o empreendimento. O BIM 5D corresponde a custos e cronograma, associando o BIM 4D com investimento em serviços e materiais. O BIM 5D corresponde a toda a vida útil da obra, desde a elaboração de projetos até a execução. Quando estamos desenvolvendo um projeto elétrico, por exemplo, na plataforma BIM, as decisões relativas à passagem dos eletrodutos e à divisão dos circuitos impactam significativamente nos custos e no cronograma da obra. Portanto, projetar em um nível cognitivo avançado, posicionando os eletrodutos de maneira eficiente e refletindo fielmente no software o que será executado, incluindo as caixas de passagem que serão utilizadas na construção, enquanto se considera todas as disciplinas envolvidas, e assim gerando um quantitativo exato da construção, é um forte indicador de que se está realizando a modelagem 5D. No escritório de engenharia responsável pelos projetos de instalações elétricas, é possível ainda fornecer ao cliente final um levantamento quantitativo e uma lista de fornecedores que oferecem o melhor custo-benefício, otimizando ainda mais a aplicação do BIM 5D.
O BIM 6D envolve a integração de informações sobre sustentabilidade e eficiência energética no modelo. Dessa forma, torna-se possível avaliar o desempenho energético de um edifício durante a fase de projeto e apoiar a tomada de decisões para a redução do impacto ambiental. A análise solar da edificação exemplifica a aplicação do BIM 6D, permitindo a otimização da posição dos cômodos. Além disso, podemos utilizar programas como o SolarMan ou a análise de carga elétrica para adequar o dimensionamento dos quadros de distribuição de energia conforme a demanda de cada setor da edificação.
Por fim, o BIM 7D abrange a fase de operação e manutenção do edifício. A partir do modelo BIM, é possível gerenciar de forma eficiente a manutenção dos sistemas e componentes da edificação, promovendo um ciclo de vida mais sustentável e reduzindo custos de manutenção.
O Brasil já se destaca em pesquisas realizadas sobre o tema, mas ainda é necessário avançar em pesquisas sobre o desempenho do elemento estrutural em blocos de concreto, blocos cerâmicos, tijolos e argamassas de assentamento para o estabelecimento de critérios normativos que garantam o conforto acústico e térmico, a resistência, a durabilidade e a segurança ao fogo das edificações. Além disso, fatores como qualidade da mão de obra, mediante constante treinamento, e emprego de equipamentos adequados podem minimizar os problemas de execução, evitando problemas estruturais futuros.
Esta obra tem por objetivo apresentar aos leitores os principais aspectos tecnológicos para a execução do sistema construtivo, reunindo diversos autores de diferentes áreas de especialidade. O livro aborda conceitos tecnológicos que envolvem o projeto, a racionalização, a compatibilização e o desempenho, fundamentados em normalizações nacionais e internacionais, e uma vasta bibliografia complementar. Trata também de temas correntes na alvenaria estrutural, como projeto, execução, materiais, juntas de movimentação e dimensionamento, além de temas pouco verificados na literatura em geral, como patologia, recuperação, reforço, danos acidentais, segurança ao fogo e sustentabilidade. Assim, pretende ampliar o conhecimento técnico, servindo de referência para o ensino do sistema construtivo em alvenaria estrutural em escolas de graduação e pós-graduação em Arquitetura e Engenharia Civil e apoiando projetistas, construtores e fornecedores de materiais.
