

ADEL HUSSEIN
Projekt gjorda under mina studietid och praktik i både England och Sverige mellan 2023 och 2025.




ADEL HUSSEIN
Medverkande arkitekt | Arkitektpraktikant
Utbildningar
Umeå Arkitekthögskolan
Master i arkitektur & stadsbyggnad | 2024 - nuvarande
Arts University Bournemouth
Kandidatexamen i arkitektur RIBA Part 1 | 2020 - 2023
Thorildsplans Gymnasium
Teknikprogrammet, samhällsbyggande | 2016 - 2019
Färdigheter
Revit
Rhino
Enscape
AutoCAD
SketchUp
Twinmotion
Modellbyggande
Adobe Creative Suite
Övriga Meriter
Sociala medier-hantering
Webb & Logotypdesign
AI-Integration
Fotografering
Somaliska
Engelska
Arabiska
Svenska
Profil
Jag är en master arkitektstudent som pluggar vid UMA med praktisk erfarenhet av tävlingar, nya samt renoveringsprojekt främst bostads- och skolprojekt värda 8–260 mnkr i England.
Jag kombinerar teknisk noggrannhet med kreativt problemlösande och sinne för detaljer. På mina tidigare jobb effektiviserade jag design- och bygglovsprocessen, bidrog till prisbelönta tävlingsförslag och skapade visuellt starka kundpresentationer.
Genom mitt arbete med AI och mitt engagemang för mångfalden tillför jag ett framtidsinriktat perspektiv som driver innovation, främjar en inkluderande kultur och stärker er konkurrenskraft.
Erfarenheter
Arkitektassistent
Saunders Boston Architects
October 2023 - augusti 2024 | Cambridge
Utförde platsbesök och BIM-analyser för nya- och renoveringsprojekt.
Stödde designutvecklingen samt bygglovsprocessen genom bland annat presentera designkoncept och producera visuella presentationer.
Koordinerade med andra konsulter och ingenjörer i teamet samt finjusterade bygglovsdokumenten.
linkedin.com/in/adel-m-hussein/ Instagram - ghost.architecture
adel.00@icloud.com
+44 7476 148999
Accelerator UMA Studenttidning
Redaktör och sociala medieansvarig
2024 - nuvarande
Sveriges Arkitekter Studenterna
Ledamot i den nationella SA tävlingsnämnden
2024 - 2025
Ledamot i den lokala SA UMA studentföreningen
2024 - 2025
Arkitekttävlingar
The IDOARCH Bell Tower | 2024
The Cambridge Room finalist | 2023
AIA UK Student Charrette group finalist | 2022
Bidrog till konstruktionsritningarna och var en del av teamet som ofta säkerställde kvalitetskontrol på plats innan överlämningen.
Arkitektpraktikant
Chris Dyson Architects
Mars 2023 - juni 2023 | London
Genom personligt mentorskap bidrog jag till tävlingar, ritningar och 3D modellering samtidigt som jag fick djup insikt i designprocessen, RIBA-stadierna och bygglovsarbete.
Arkitektpraktikant
BrightSpace Architects
Januari 2023 - april 2023 | Bournemouth
Skapade 3D-modeller och ritningar som förbättrade tävlingskonceptens visuella uttryck och effektiviserade beslut kring materialval och rumslayout.

Fem fakta om mig:
– 25 år gammal.
– Född i Somalia.
– Uppväxt i Stockholm.
– Bott i fyra olika länder.
– Pratar fyra språk flytande.
01 VINKELN.
Umeå, Sverige
Individuellt projekt | År 4
Umeå Arkitekthögskolan | VT 2025
AutoCAD | Revit | Enscape
Vinkeln är ett bostadsprojekt med fokus på social interaktion, designad för att bemöta bristen på kvalitativa kompakta bostäder för studenter och nyexaminerade i Umeå. Samtidigt agerar det som en strategisk modell för att behålla framtidens arbetskraft i linje med kommunens mål att växa.
Lägenheterna är långsträckta med vinklade balkonger som fångar det begränsade vinterljuset. Ingångarna och balkongerna fungerar som ett gränssnitt mellan det privata och det gemensamma samt ger möjligheten till både avskildhet och social samvaro.
Den centrala kärnan rymmer delade funktioner såsom studieytor, tysta rum och multifunktionella utrymmen. Dessa är även tillgängliga för allmänheten, vilket stärker kopplingen mellan de boende och det omgivande samhället.
Kort sagt, Vinkeln kombinerar kompakt kvalitativ design med social hållbarhet för att motverka bostadsbristen och ensamheten i Umeå utan att kompromissa med kvalitet eller ekonomi.

1. Börja med slab typologin som redan används i områdets miljonprogramsstil.
2. Behåll lägenheterna mot söder för maximal ljusinsläpp och dela upp korridoren för att förminska dess längd.
3. Lägg till loftgång på fasaden mot norr för att minska byggkostnader samt främja gemenskapen.
4. Dela upp byggnaden i mitten och vinkla varje sida längre ut för att förbättra ljusinsläpp under vinterhalvåret.
5. Flytta isär vingarna för att skapa en större central gemensam yta på olika våningar.
6. Vinkligheten på byggnaden på bägge sidorna styr dess gestaltning.
Flytta högre upp p.g.a skuggan
Balkong
Sociala kärnan
Bild 1

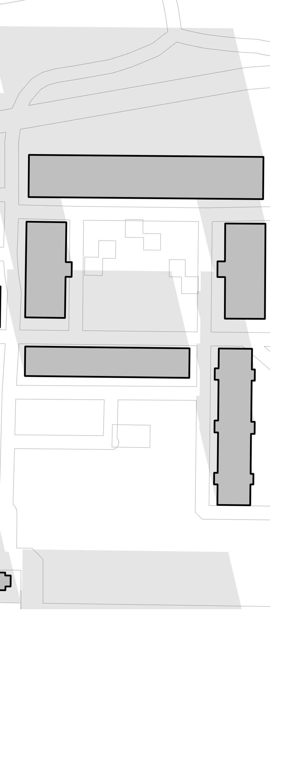
Platsen består idag av tomma parkeringsytor (1) där kommunens detaljplan (2) föreslår ljusbegränsade bostäder trots skuggan från närliggande byggnader. Vinkeln (3) tar istället utgångspunkt i platsens förutsättningar för att fånga vinterljuset, stärka boendekvaliteten samt bidra med mer grönska.





Contractor to check and verify all dimensions on site prior to commencing work. Any discrepancies to be reported to the architect immediately. This drawing is copyrighted.
Att i en planprocess utreda möjligheten till framförallt bostäder i ett större område utmed Ålidbacken är rationellt och ökar samtidigt
möjligheten till en samordnad utformning åtminstone vad avser volymer och struktu r. Planområdets utökade omfattning har stöd i byggnadsordningen som visar på möjligheten till förtätning utmed Ålidbacken. I planarbetet prövas bostäder i första hand i form av punkthus samt närmast Ålidbacken en länga innehållande garage och eventuellt ve rksamheter. Preliminär disposition enligt bild 2 nedan.






2


Beredningsansvariga
Peter Jönsson, planarkitekt



Magdalena Blomquist, planchef














Bild
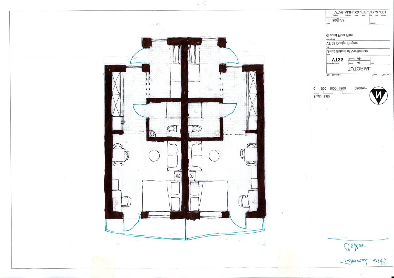
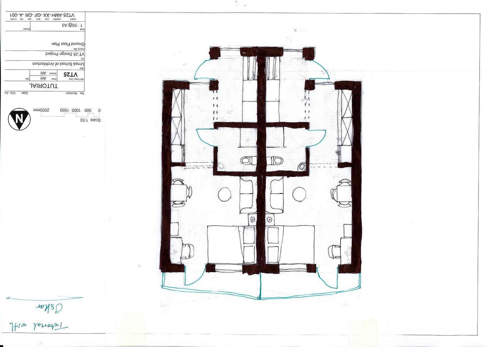
LÄGENHETENS PROCESS.

Leupen’s 2-zon format


Lägenhetskonceptet utvecklades baserat på Leupen och användargrupperna
Fasaden
Servicedelar
Säng/skrivbord
Avkoppling
Servicedelar
Entré/hall

Intervju med användargrupperna om hur de skulle använda lägenheten.





Dessa fyra zoner möjliggör tydlig ”separation” av funktioner, vilket ofta saknas i kompakta bostäder.
Två semi-privata zoner vid entrén och balkongen främjar grannskapet och gemenskapen.
Resultatet är en lägenhetstyp på 28m 2 .
BBR, PBL samt EKS följdes under årets gång för att framställa en inkluderande och trygg miljö för alla grupper.
Sektion 1.
Section 1
Scale 1 : 50
Scale 1 : 50
1, §6
Planmått 0.70 × 1.30 m
Vändmått Ø 1.30 m
Öppningsmått ≥ 0.80 m
Sektion 2.
Section 2
Section 2
Scale 1 : 50
Section 1 Scale 1 : 50
De sociala ytorna valdes ut bland annat genom intervjuer med användargrupperna.
Behovet för olika sociala och arbetsytor tydliggjorde de olika personlighetstyperna och därmed skapades varje yta med dessa typer i åtanke.

Robusta, beprövade material valdes med hänsyn till områdets livlösa karaktär och Umeås tuffa klimat.
Dessa material åldras vackert, tillför välbehövlig färg i området och är dessutom återbruksbara.



Cortenstål Mörkblått tegel
Ytterträ paneler





















00. Lobbyn
01. The Working Hub
02. The Quiet Hub
03. The Multi-use Hub
Fasad mot söder.
Fasad mot norr.

VISIONEN.
Målet är att Vinkeln ska skapa en inbjudande plats där gemenskap som sker naturligt och vänskap skapas när man minst anar det.
02
BEYOND A MARKET.
Bournemouth, England
Individuellt projekt | År 3
Arts University Bournemouth | VT 2023
AutoCAD | Rhino | SketchUp | Twinmotion
Beyond a Market är ett visionärt förslag som omvandlar en tom 60-tals kontorsbyggnad i centrala Bournemouth till ett levande centrum för gemenskap, kultur och innovation. Genom tematiska marknader, från matstånd till popup konstutställningar och interaktiva handelsytor, ges nytt liv åt ett område som ofta upplevs som grått och livlöst. Byggnaden återaktiveras genom flexibla co-workingytor som samlar småföretagare och kreatörer i en multifunktionell miljö. På taket skapas en terrass för kvällsaktiviteter med utsikt över staden och havet.
Projektet omfattar även en omvandling av bilgatan till en bussgata som främjar gång- och cykeltrafik. Tillsammans med kontextuella muralmålningar och ett skulpturtorg vävs platsen samman till ett urbant landskap som bjuder in till social och visuell interaktion.
Med det sagt, Beyond a Market presenterar en hållbar och inkluderande modell för stadsutveckling där människor och idéer ges plats att växa.

Tre fallstudier användes för att fördjupa förståelsen av marknadstypologin och studera framgångsrika marknader i dagens digitala landskap.
Detta arbete låg till grund för Beyond a Market, som byggdes på en noggrant genomförd analys av dem.


Rotterdam, Nederländerna
MVRDV





London, England
Turner Works
Stockholm,
Östermalms Tillfälliga Saluhall (2016)
Sverige Tengbom
Pop Brixton (2015)
Markthal Rotterdam (2014)
Visionen var att behålla byggnaden men göra nödvändiga ingrepp för att skapa en varm arbets- och mötesplats i ett grått och livlöst urbant område.
Dessutom uppgraderas gatan för att ha människan i centrum och plantera mycket grönska i området.
1. En tom 60-tals betong kontorsbyggnad.


2. Rivar delar för att skapa en levande och upplevelserik rumslighet.

Takbar + bio
Delade kontorsytor
Börsmarknaden
Konstmarknaden
Matmarknaden
3. Introducerar olika marknadsteman och funktioner.

4. Ny entré + träfasad för en varm och välkomnande känsla samt bättre flöde.


Rivna områden
Nya delar
En ny ”tvillingbyggnad” ersätter parkeringen och stänger in torget som en aktiv mötesplats samt central knutpunkt för de boende, arbetarna, besökararna och andra.
Ritningen visar den omvandlade bussgatan med prioritet för gång- och cykeltrafik.
Återvunna containrar med väggmålningar och ett centralt skulpturtorg skapar ett sammanhängande stadsrum som främjar social och visuell interaktion.

03. Delade arbetsplatser
04. Delade arbetsplatser
TV. Takterass med utomhusbio
Existerande Förslaget
Buss gång- & cykeltrafik
Bilväg Trottaren Beyond a Market Befintliga byggnaden
Halvtom parkering för byggnaden
Skulpturtorget
Bostäder för arbetarna

VISIONEN.
Målet är att Beyond a Market ska vara en plats man alltid vill återvända till även när solen har gått ner.
Med människors aktivitet, gemenskap och trygghet i fokus blir området till en livlig och inbjudande kvällsmiljö, oavsett tid på dygnet. Därtill anknyter muralmålningarna till stadens ikoner och skapar en starkare koppling till byggnaden.
03 SAUNDERS BOSTON ARCHITECTS.
Cambridge, England
Bostäder | skolor | tävlingsbidrag
Praktik | 11 månader
AutoCAD | Revit | Enscape | Photoshop
På Saunders Boston Architects arbetade jag som arkitektassistent på heltid i både bostads- och skolteamen. Där fick jag bred och praktisk erfarenhet av arkitektens arbetsprocess från tidiga skeden och tävlingar till färdigbyggda projekt.
Jag arbetade huvudsakligen i Revit och var delaktig i allt från konceptutveckling till bygglovshandlingar och teknisk projektering. Genom att aktivt ta initiativ och be om att få delta i alla delar av processen kunde jag snabbt bygga upp en förståelse för varje steg i ett projekts livscykel.
Min roll varierade beroende på behov och projektens fas. Därför hoppade jag in rätt ofta mellan olika typer av projekt vilket gav mig möjlighet att arbeta med nyproduktion, om- och tillbyggnader främst inom bostads- och skolprojekt. Dessutom bidrog jag med visualiseringar, tävlingsmaterial och samt samarbetade tätt med beställarna och andra konsulter inom och utanför kontoret för att säkerställa koordination i projektens genomförande.

BRIAR’S PATCH SPECIAL NEEDS SCHOOL.




P R O P O S E D E S C - L A N D S C A P E
Ett förslag på en specialskola att ersätta den existerande skolan för att samla alla eleverna under samma tak.
Jag jobbade främst med topografin, fasaden och effektiviserade planlösningen för att minska byggkostnaderna. Dessutom deltog jag i samrådsredogörelsen fram till bygglov.




































































































04
THE CAMBRIDGE PANORAMA PAVILION.
Cambridge, England
Individuellt projekt | tävlingsbidrag
Topp-15 finalist | HT 2023
AutoCAD | SketchUp | Photoshop
Som svar på en öppen tävling organiserad av Cambridge Association of Architects, i samarbete med Cambridge University och kommunen, togs förslaget The Cambridge Panorama Pavilion fram. Uppgiften var att skapa en plats för samtal om staden och dess utveckling via ett fysiskt rum, tillfälligt eller permanent med en visuell identitet.
Förslaget placerar en paviljong på Parker’s Piece i Centrala Cambridge, där svävande konstverk berättar om Cambridges historiska och kulturella arv. Därtill skapades en logotyp med en rad olika pelare som symboliserar de krafterna som format staden över tid.
Paviljongen fungerar som en öppen scen för möten och samtal, och bjuder in allmänheten att delta i stadens fortsatta berättelse.
Förslaget publicerades på Royal Brittish Architects Cambridges tidning i 2024.

PROCESSEN.
Tidiga skisser utforskade sätt att rama in Cambridge och skapa en öppen miljö för dialoger.
Samtidigt introducerades idén om en snabb historisk genomgång för besökarna som förväntas röra sig genom paviljongen mot stadens historiska marknad.





Tidiga skissidéer
