Skip to main content

Brief Selected Works

Page 1


Selected Works

Georgia Institute of Technology

Master of Architecture Candidate

2026

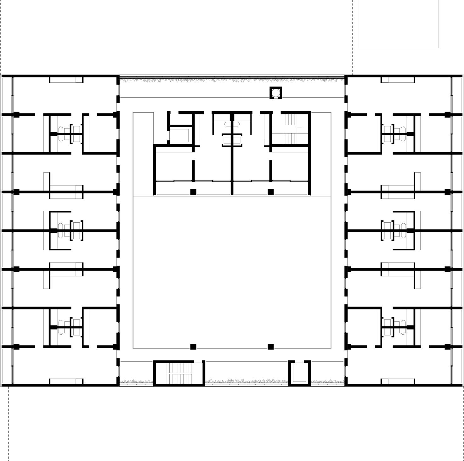
01. Market House

Atlanta, Georgia

Georgia Institute of Technology

Advanced Architectural Studio 1

Professor Jude LeBlanc

Fall 2025

Conceived as a series of planes elevated over a continuous open ground, the project proposes a hybrid typology of courtyard housing above a public market hall. The market below is imagined as an open and flexible space that connects the opposite streets, and the housing above forms a perimeter that frames the courtyard and the city. The project composes a social housing block that is restrained and enduring, shaping a public space that reinterprets Downtown Atlanta’s history of elevated ground and urban passages.

The arrangement around a central void creates a connection between the housing and the public space and permits each unit a dual orientation. A regular grid organizes the project, establishing a clear framework for the structure and the units. The rational system creates a rhythm and symmetry throughout, and the repeatable module creates efficiency and a simple kit of parts through which the building is defined.

The architectural expression reflects the underlying order and structure. The module repeats and stacks, establishing clarity and rhythm horizontally and vertically.

02. Shenandoah Retreat

Shenandoah National Park, Virginia

University of Maryland

Architecture Design Studio II

Professor Ken Filler

Fall 2023

2024 AIA Maryland Excellence in Design Awards

Jury Citation

The meditation retreat responds to its natural context in the Shenandoah Valley by carving into the existing mass of stone on the site. The subtractive design creates a sequence of distinct spaces without imposing on the surroundings. The program includes multiple spaces for meditation, bathing and overnight stay.

The project discreetly sits within the dense forest and is accessed only by a trail. The layered promenade unfolds through a series of thresholds and moments of controlled release. The expansive meditative spaces, open only on the outward face, frame the landscape and create heightened experiences of nature and light.

Set into the hillside, the spaces are carved open along the singular face with varying proportions, orienting views outward over the landscape and drawing in light. The architecture is reduced to a frame for nature.

03. Timber Field

Georgia Institute of Technology

Media + Modeling 2

Professor Hyojin Kwon

Collaboration with Madeline Lipiner

Fall 2025

This project explores the parametric abstraction of an existing building section into a three-dimensional form utilizing Grasshopper and Shape Machine. Drawing from the section of the Museum of Image and Sound, the system creates new conditions of light, scale and connection. Vertical voids shift between floors without alignment to continue the precedent’s logic of movement and overlapping levels. Conceived as a field of mass timber elements made of glulam beams with CLT slabs and walls, the project emphasizes the expressiveness of the material.

Shape Machine generates variations of simple geometries through a constrained set of rules operating along a regular grid. These abstract arrangements are translated into floor plans as they inform the placement of columns, walls and spatial boundaries.

The vertical structure characterizes the spaces, referencing the geometries of the Museum of Image and Sound. Beams rest atop the walls and leave gaps that recall the section’s slivers between floors while creating interstitial moments of light and visual continuity.

Model: PLA Print/Basswood

The solid facade contrasts the geometric internal system as an irregular, undulating surface. Referencing Van Gogh’s Wheat Field with Cypresses, color values inform a pixel displacement process developed in Grasshopper to generate an organic expression.

04. Moment Frame

Georgia Institute of Technology

Integrated Building Systems 1 Professor Russell Gentry

Collaboration with Austin Britt, Garrett Hinton, Chase Scholze, Austin Taylor & Kailey Williams Fall 2025

The project examines a moment frame system through the design, construction and testing of a model. The structure uses rigid moment connections at each joint to resist lateral forces through continuity and stiffness.

Physical Model: PLA Print/Basswood

The connectors are simple geometric forms that engage beams, column and slab through a single logic that can be applied at both edge and corner conditions. 3D printing enables rapid iteration through testing and precise replication of the joints.

05. Ongoing Explorations

Ishigaki Island, Japan

Georgia Institute of Technology

Advanced Architectural Studio 2

Professor Mark Cottle Spring 2026

The drawings are early iterative studies from an ongoing studio project, investigating potential spatial relationships, tectonics and promenade. This rapid and intuitive drawing process enables new ideas to surface and be tested in real time.

Through iterations and layered drawings, these sectional studies explore varied spatial conditions and heightened sensory experiences. The drawings test vertical movement and how the architecture may lightly touch the ground.

adam8chen@gmail.com 443-474-0358

Turn static files into dynamic content formats.

Create a flipbook