BOOK TINY HOUSE

Page 1

TINY HOUSE

U I T E C T U R A G A R Q EL DESCANSO, LA COMODIDAD Y LA DESCONEXIÓN EN MEDIO DE LA NATURALEZA

ÍNDICE

ARQUITECTOS

CONCEPTO

ESTRUCTURA

ESPACIALIDAD

ILUMINACIÓN

PLANO ARQUITECTÓNICO

PALETA DE COLORES

MOODBOARD

PROGRAMA

RENDERS HIPERREALISTAS

ISOMETRÍA

RENDERS 360

5
1 2 3 4
6 7 8 9 10 11 12

ARQUITECTOS 1

Somos un estudio de arquitectura, diseño y construcción, apasionados por la creación de espacios únicos llenos de identidad.

Nos enfocamos en cada detalle logrando crear una ARQUITECTURA con un ADN único.

Entendemos una casa campestre no como un producto final sino como un proceso racional, creativo e integral¨.

U I T E C T U R A G A R Q

CONCEPTO 2

Este proyecto, con un área construida de 60m2, se localiza en Subachoque, a 45 km de Bogotá, en un lugar donde el paisaje, la arquitectura, el descanso y la tranquilidad se encuentran.

Partiendo de un concepto rústico moderno, planteamos una arquitectura minimalista, funcional y de buen gusto que hace posible la relajación, la desconexión y la comodidad en medio de la naturaleza, ofreciendo una experiencia única e inmemorable a las personas que lo habiten¨.

U I T E C T U R A G A R Q

ESTRUCTURA

ESTRUCTURA:

El diseño estructural de la casa empieza desde su cimentación con pilotes y zapatas en concreto. Su esqueleto, por su parte, se compone de columnas y vigas en madera que se unen formando pórticos.

CUBIERTA:

La cubierta en teja metálica arquitectónica con un area de 80m2, descansa sobre la estructura metálica con una sola inclinacion para darle un gesto de gran apertura hacia el paisaje. Además cumple una función clave permitiendo recolectar y conducir la mayor cantidad de agua lluvia posible.

3
U I T E C T U R A G A R Q

ESPACIALIDAD

Creamos una arquitectura lineal compuesta por un solo volumen enmarcando la naturaleza del lugar e integrando la zona social y la zona de descanso en un espacio fluido y amplio.

En la zona social, planteamos una cocina abierta, un comedor y una sala. En este espacio, la chimenea se convierte en un elemento protagonista logrando reunir estas actividades.

En la zona de descanso pensamos en un mueble multifuncional con la posibilidad de tener una cama queen, mesas de noche, closet y repisa con accesorios de decoración

Cerca a la zona de descanso diseñamos un baño con una interesante vista hacia la naturaleza por lo que utilizamos materiales naturales como la piedra y la madera rústica y tonos naturales como los tierra, terracota y beige aportando calidez y frescura.

Además, potenciamos la relación con el paisaje circundante y ampliamos visualmente el espacio interior con ventanas corredizas de piso a techo que permitieran dar salida a una terraza con una zona de jacuzzi y una malla tipo glamping.

4

ILUMINACIÓN

La iluminación juega un papel fundamental en este proyecto logrando crear espacios cálidos y acogedores por medio de varios tipos de iluminación tanto directa como indirecta.

En la fachada principal y laterales tuvimos en cuenta una iluminación tenue y elegante mediante apliques de pared.

En el interior, utilizamos iluminación de techo con racks de color negro mate unidos a algunas vigas de la cubierta y luz led en algunos muebles para resaltar los acabados propuestos.

En la terraza pensamos en una iluminación de techo sencilla y sobria con tabacos de color negro.

5

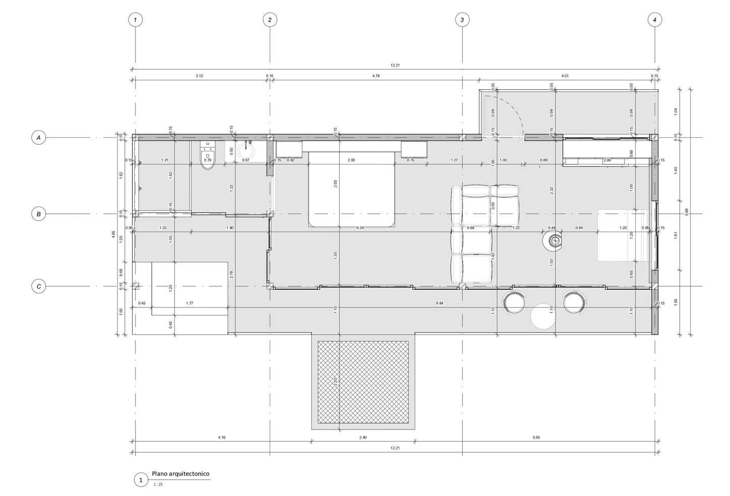
PLANO ARQUITECTÓNICO

6
U I T E C T U R A G A R Q

PALETA DE COLORES

7

MOODBOARD

8

PROGRAMA

9

ANTE ENTRADA

1 HABITACIÓN

COCINETA

BARRA-COMEDOR

SALA BAÑO

TERRAZA

(JACUZZI Y MALLA TIPO GLAMPING)

PAISAJISMO

RENDERS

10

HIPERREALISTAS

ANTE ENTRADA

WPC
TEJAMETÁLICANEGRA MÁCULA U I T E C T U R A G A R Q
METAL PISO
MACHIMBRE

SALA

PISO SPCCOLORARCE MACHIMBRE METAL TELA ZAREM #11 HIELO
U I T E C T U R A G A R Q
MICROCEMENTO GRIS

COCINETA

VERDEOLIVALAMITECH

MÁCULA

QUARZTONE GRIS

U I T E C T U R A G A R Q
METAL MACHIMBRE

COMEDOR

MÁCULA
MADERA RUSTICA METAL TELA ZAREM #11 HIELO
U I T E C T U R A G A R Q
MICROCEMENTO GRIS

ZONA DE DESCANSO

COBRE

VERDEOLIVALAMITECH

TELA AZUL PETRÓLEO

ALISTONADO EN MADERA

MAMPOSTERIA

MÁCULA
U I T E C T U R A G A R Q

MADERA RUSTICA

PORCELANATO GRIS

BAÑO

CONCRETO TERRACOTA

U I T E C T U R A G A R Q
GRAVILLA PIEDRA

TERRAZA JACUZZI

MACHIMBRE AGUA VEGETACIÓN VIDRIO U I T E C T U R A G A R Q WPC

TERRAZA MALLA TIPO GLAMPING

METAL
SINTETICO
U I T E C T U R A G A R Q
PISO WPC RATTAN
MACHIMBRE MALLA

ISOMETRÍA ARQUITECTÓNICA

11
U I T E C T U R A G A R Q

RENDERS 360 12

U I T E C T U R A G A R Q
COCINA COMEDOR CAMA PRINCIPAL Y SALA BAÑO TERRAZA JACUZZI
U I T E C T U R A G A R Q

Turn static files into dynamic content formats.

Create a flipbook
Issuu converts static files into: digital portfolios, online yearbooks, online catalogs, digital photo albums and more. Sign up and create your flipbook.