WESTCAR LANE WALTON-ON-THAMES
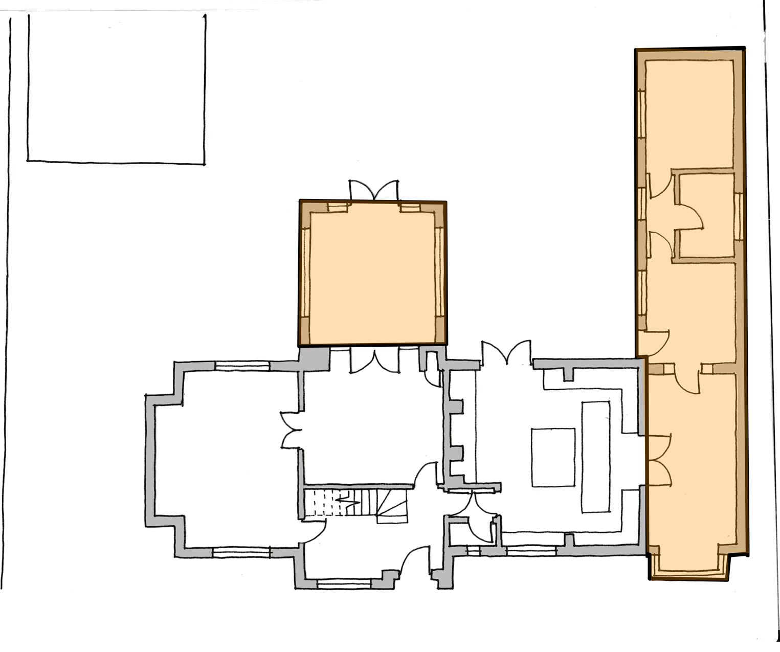
The project is an extensive refurbishment project for a young family of four. The property is situated in Surrey and poses some challenges with protected trees on site,.
I have been engaged on this project since its inception at the end of 2020. I worked alongside the Project Architect to produce the site analysis and design options. The client chose my proposals for the extensive renovation and extension.
Following the grant of planning permission I lead the project solely during the technical design stage, with occasional oversight from the studios Director. I reviewed the tender returns and the project is currently on site. We were not retained as Contract Administrator, in order to help alleviate professional fees for the clients.



















