PORTAFOLIO COMPLETO_MITU WASI

Page 1

VIVIENDA SOSTENIBLE PARA EMERGENCIAS ANTE DESASTRE

COLLIQUE, COMAS

ANÁLISIS DE CONTEXTO

En el presente trabajo, se demuestra la recopilación de información para el estudio del contexto en el cual se ubica nuestro terreno. Se propone el análisis tanto urbano, vial, medio ambiental y normativo; todo esto con la finalidad de proponer un Centro Cultural que respete tanto lo normativa como el entorno.

Además de un alto impacto en la comunidad que prestara los servicios de la edificación

GRUPO

• Alemán Donaire, Brenda

• Bermudez Amaro, Gianella

• Minaya Peralta, Janira Abigail

TALLER DE CONSTRUCCIÓN AMBIENTAL 2

• Arq. Cerna Sifuentes, Carlos Alfonso

FACULTAD DE ARQUITECTURA Y DISEÑO

Universidad Privada del Norte

Sede Comas

2023 – 0

Lima, Perú

JUSTIFICACIÓN DE LA INTERVENCIÓN ANÁLISIS DEL LUGAR PROBLEMÁTICA SISTEMAS CONSTRUCTIVOS EXISTENTES TERRENO LEVANTAMIENTO FÍSICO LEVANTAMIENTO SOCIAL LEVANTAMIENTO ECONÓMICO ANÁLISIS DE VULNERABILIDADES ÍNDICE 01 02 03 04 05 04 05 20 22 23 18 15 05 13 ÁRBOL DE PROBLEMAS Y SOLUCIONES 06 28

Como objetivo principal para la ejecución del proyecto es saber responder a las necesidades de alojamiento de emergencia de una manera coordinada, efectiva y con una respuesta común para brindar seguridad a la población de los siniestros que se presenten en el lugar, ya que la zona 12 de Collique no cuenta con los recursos suficientes para tener una buena infraestructura, por lo que los mismos pobladores fabrican sus propias casas,

04 VIVIENDA SUSTENTABLE PARA EMERGENCIAS ANTE DESASTRES ALEMÁN – BERMUDEZ - MINAYA
JUSTIFICACIÓN DE LA INTERVENCIÓN

ANÁLISIS DEL LUGAR LEVANTAMIENTO FÍSICO

ZONA 12: COLLIQUE 4TA ETAPA A MÁS

Collique, una zona del distrito de Comas, comprende todas aquellas viviendas construidas con casas prefabricadas de madera o muros de adobe en su mayor parte y algunas de ladrillo y cemento, de la misma se determinó que se muestra claramente un diseño y construcción.

Collique está conformada por cuatro urbanizaciones.

05 VIVIENDA SUSTENTABLE PARA EMERGENCIAS ANTE DESASTRES ALEMÁN – BERMUDEZ - MINAYA
>> >> >>
PERÚ LIMA METROPOLITANA CARABAYLLO
PUENTE PIEDRA SAN JUAN DE LURIGANCHO DISTRITO DE COMAS DISTRITO DE COMAS

ANÁLISIS DEL LUGAR LEVANTAMIENTO FÍSICO

MORFOLOGÍA

ZONIFICACIÓN

ZONA URBANA

Compuesta por el conjunto de viviendas asentadas en el distrito y sus equipamientos (salud, educación, parques, etc.).

ZONA ENTORNO NATURAL

Compuesta por la cadena montañosa costera.

ZONA URBANA

ZONA DE ENTORNO NATURAL

CONSOLIDACIÓN URBANA

ÁREA CONSOLIDADA

El 85% de esta área se encuentra en la ladera baja: mayor concentración de urbanizaciones, asociaciones y cooperativas de vivienda.

ÁREA EN PROCESO DE CONSOLIDACIÓN

ÁREA EN CONSOLIDACIÓN INCIPIENTE

Caracterizada por tener una modalidad de ocupación de tipo invasión y, por lo tanto, se encuentra conformada por asentamientos humanos´.

El 60% esta ubicada en terrenos que fueron agrícolas (ladera baja) y el 40% esta ubicada en las laderas altas, se caracteriza por tener viviendas en precariedad

ÁREA CONSOLIDADA

ÁREA EN PROCESO DE CONSOLIDACIÓN

ÁREA EN CONSOLIDACIÓN INCIPIENTE

ÁREA DEPRESIÓN URBANA

06 VIVIENDA SUSTENTABLE PARA EMERGENCIAS ANTE DESASTRES ALEMÁN – BERMUDEZ - MINAYA

ANÁLISIS DEL LUGAR LEVANTAMIENTO FÍSICO

VIALIDAD

La red vehicular se ha ido modificando y mejorando con el pasar de los años, sin embargo, su renovación no influye en la congestión diaria de sus avenidas principales. Esta problemática se presentar mayormente en la avenida Tupac Amaru; de igual forma la mayor concentración de puntos negros, zonas donde suelen haber accidentes automovilísticos, se encuentra en esta avenida

Según el MTC (2015), los puntos negros más resaltantes se encuentran en el cruce de la Av., San Felipe con Av. Universitaria y Av. Tupac Amaru con Víctor Andrés Belaunde. Los transportes de mayor incidencia de accidentes son los automóviles y mototaxis, concluyendo en la base a ello que también son los que causan mayor impacto en la congestión vehicular

METROPOLITANO

07 VIVIENDA SUSTENTABLE PARA EMERGENCIAS ANTE DESASTRES ALEMÁN – BERMUDEZ - MINAYA
DE TRANSPORTE
CORTE DE LA AV. TUPAC AMARU
TRANSPORTE EN COMAS TIPOS
Viajes mayores a 40 minutos
necesidades.
Apoyo a la satisfacción de las
Se tiene
2 tipos de transporte público
CARÁCTER
TUPAC AMARU AVENIDA CON MAYOR FLUJO VEHICULAR PUNTOS NEGROS 14% 31% VIAS PRINCIPALES CONECTADAS A OTROS DISTRITOS VIAS PRINCIPALES PUNTOS NEGROS 8.00 7.00 3.25 8.00 2.50 4.50 3.00 VIA ARTERIAL VIA COLECTORA PARADEROS FORMALES
TRANSPORTE PUBLICO DE
LOCAL

ANÁLISIS DEL LUGAR

MEDIO AMBIENTE

TOPOGRAFÍA

La zona norte de Lima presenta una morfología variada, rodeada por cadenas montañosas con presencia de vegetación de lomas.

SUELO

El material predominante del suelo es del tipo transportado por acción aluvial y eólica.

VIENTOS

Se presentan a velocidad de 86 km/h hasta 14 km/h, con orientación de sur a norte.

PRECIPITACIONES

Oscilan entre 05 mm hasta 30 mm, es decir de intensidad moderada.

Temperatura media anual es de 22 1°C, con una variación de 6°C T min 14 2°C y T máx 24 5°C

ANÁLISIS MEDIO AMBIENTAL

Los altos índices de contaminación en el distrito de Comas sugieren la necesidad de plantear soluciones inmediatas en el lugar, como la creación de zonas verdes, iniciativa para la adecuada recolección de residuos sólidos y la inclusión del transporte sustentable.

La contaminación del aire se debe no solo a la cantidad de vehículos que circulan por esta vía sino, además, a una contaminación importada procedente del oeste (zonas industriales de Lima y Callao) que al encontrar una barrera fisica (cerros aledaños) permanecen en el área de Comas.

Por lo que es necesario plantear medidas de gestión ambiental y aplicarlas en proyectos que beneficien a sectores como la ciudadanía, transporte e industrias

LEVANTAMIENTO FÍSICO 08 VIVIENDA SUSTENTABLE PARA EMERGENCIAS ANTE DESASTRES ALEMÁN – BERMUDEZ - MINAYA
240
70 mg/cm3 OMS 83 dB 55 dB OMS TEMPERATURA
mg/cm3 PM 10
PUNTOS DE ALTA CONTAMINACIÓN SONORA ZONA DE CONTAMINACIÓN ATMÓSFERICA

ANÁLISIS DEL LUGAR

Los puntos críticos de residuos acumulados en las calles es una situación que genera focos infecciosos en la ciudad y pone en riesgo la salud de la población, por lo que se requiere tomar medidas para mejorar la gestión de residuos sólidos y la limpieza

Una solución inmediata seria ubicar contenedores de basura en puntos estratégicos para cubrir la mayor zona posible.

El clima es cálido-húmedo, por lo cual se debe tener en cuenta la refrigeración en los ambientes a diseñar. Es necesario el empleo de ventilación cruzada o convectiva, como estrategias bioclimáticas.

ZONA DE CONTAMINACIÓN RESIDUAL ASOLEAMIENTO DE ESTE A OESTE DIRECCIÓN DE VIENTOS

VENTILACIÓN CRUZADA

ZONA DE ALTA CALIDAD DE ÁREAS VERDES ASOLEAMIENTO DE ESTE A OESTE DIRECCIÓN DE VIENTOS

LEVANTAMIENTO FÍSICO 09 VIVIENDA SUSTENTABLE PARA EMERGENCIAS ANTE DESASTRES ALEMÁN – BERMUDEZ - MINAYA
422
141
1.14
350
MEDIO AMBIENTE
tn/dia
Camiones recolectores
m2/hab. 9 m2/hab. OMS
Plaza de Lima Faltan como

ANÁLISIS DEL LUGAR LEVANTAMIENTO FÍSICO

NORMATIVIDAD

COMERCIO

EDUCACIÓN SALUD

EQUIPAMIENTO Y SERVICIOS PÚBLICOS

EDUCACIÓN

41 INSTITUCIONES NACIONALES

Comas al ser un distrito muy poblado, cuenta con 41 instituciones educativas del estado, sin embargo existe una gran escasez de bibliotecas y una gran cantidad de escuelas privadas

SECTOR SALUD

El hospital nacional Sergio E Bernales de categoría II-1, sus servicios se expanden hasta un sector de la población de Carabayllo y SJL Tambien estan los hospitales de EsSalud, Solidaridad, varias clínicas privadas y centros de salud

SECTOR COMERCIO

Abundan los mercados donde se comercializan víveres Tambien se localizan en las avenidas principales los centros comerciales Plaza Vea, Elektra, Real Plaza, etc.

AGUA POTABLE

83.78% COBERTURA ATENCIÓN

Según SEDAPAL existe una cobertura de atención de 83.78%. Sin embargo, el servicio no es excelente, pues no se brinda agua las 24 horas al día, sino de manera restringida sobre todo en zonas medias y laderas.

ENERGÍA ELÉCTRICA

COMERCIO VECINAL RESIDENCIAL DE DENSIDAD MEDIA

ZONA DE RECREACIÓN PÚBLICA OTROS USOS

90% VIVIENDAS CON SERVICIO

Existen 8 322 8 km de redes aéreas y 11 500.8 km de subterráneas. Sin embargo, el 90% de viviendas cuenta con este servicio (470 484 hab.), mientras que el 10% no posee alumbrado eléctrico (52 276 hab.)

10 VIVIENDA SUSTENTABLE PARA EMERGENCIAS ANTE DESASTRES ALEMÁN – BERMUDEZ - MINAYA

ANÁLISIS DEL LUGAR LEVANTAMIENTO FÍSICO

NORMATIVIDAD

89.6%

VIVIENDAS CON RED DE ABASTECIMIENTO DE DESAGÚE DENTRO DE LA VIVIENDA

El déficit habitacional era de 7% lo que representaba 42976 viviendas

CASA INDEPENDIENTE

80% 8%

VIV UBICADAS EN ZONAS DE PELIGRO BAJO

VIV UBICADAS EN ZONAS DE PELIGRO RELATIVAMENTE BAJO

VIV UBICADAS EN PELIGRO MUY ALTO VIV. UBICADAS EN PELIGRO ALTO

MATERIALES PREDOMINANTES

RED PUBLICA DENTRO 7% 4%2%

DE LA

RED PÚBLICA DENTRO DE LA EDIFICACIÓN PILÓN DE USO PÚBLICO OTROS

CON LADRILLO CON MADERA CON ADOBE O TAPIA OTROS

11 VIVIENDA SUSTENTABLE PARA EMERGENCIAS ANTE DESASTRES ALEMÁN – BERMUDEZ - MINAYA
97% 3% SI NO VIVIENDAS CON ALUMBRADO ELÉCTRICO VIVIENDA Y SERVICIOS BÁSICOS TIPOS DE VIVIENDAS 89% 6%3%2%
En Comas, aproximadamente el 75% de las viviendas son autoconstruidas, y esto en nuestro país se ha vuelto sinónimo de mala calidad Añadiendo a esto el crecimiento desordenado de los últimos años por la falta de planificación y fiscalización municipal Esto ha propiciado un desarrollo urbanístico precario y una ciudad llena de contraste, con construcciones que no respetan los parámetros urbanísticos ni ordenanzas y con una expansión horizontal muy preocupante acompañada por servicios deficientes 87%
VIVIENDA
VIVIENDAS CON ABASTECIMIENTO DE AGUA
2%3%5%1%1%
DEPARTAMENTO EN EDIFICIO VIV. EN QUINTA VIV. EN CASA DE VECINDAD0 VIV. IMPROVISADA LOCAL NO DESTINADO PARA HAB. URBANA

ANÁLISIS DEL LUGAR

NORMATIVIDAD

1.14 m2/hab. (MDC)

PARQUES 9 m2/hab. (OMS)

Comas cuenta solamente con 1 parque zonal a escala metropolitana, 16 parques locales y la Plaza cívica Año Nuevo Estos carecen de planificación, debido a que muchos de ellos no poseen veredas, mobiliario urbano ni áreas verdes.

ESPACIOS VACIOS

CORREDOR

PROPUESTA

En el distrito de Comas existe la tendencia de que la trama de las manzanas tiene una relación de forma indirecta con los espacios públicos. Se concluye de lo observado en el campo que si existe permeabilidad, sin embargo hay una problemática respecto a esta variable, ya que para una mejor optimización del espacio se requiere de una accesibilidad física y visual que no se encuentra del todo resuelto, debido a que espacios como el Parque Zonal y el Parque Héroes de la policía se encuentran amurallados con muros de albañilería y rejas

690 Ha vació

4 185 Ha construidos

En su mayoría son lozas deportivas que carecen de equipamiento y de infraestructura adecuados. Sin embargo espacios como estadios, complejos deportivos y coliseos, se encuentran en mejores condiciones. Todos estan dispersos en la ciudad.

5 Coliseos 40 Lozas deportivas 1

Parque metropolitano 16

Parques locales

La cifra de espacios públicos alcanza los 690 ha. (proporcionado por la MDC) esto incluyen plazas, parques, jardines y óvalos, bermas y espacios sin habitar.

AREA VERDE

Según el Inventario de áreas verdes de la Municipalidad de Comas es de 1.14 m2/hab., pero a la actualidad esto se incrementó en 2.5%, como 39 canchas de futbol profesional, aun asi le faltan 324 canchas de futbol profesionales en parques y jardines para cumplir con los 9 m2/hab. Recomendado por la OMS

LEVANTAMIENTO FÍSICO 12 VIVIENDA SUSTENTABLE PARA EMERGENCIAS ANTE DESASTRES ALEMÁN – BERMUDEZ - MINAYA
CICLOVIA PISCINA
DEPORTE VERDE

ANÁLISIS DEL LUGAR

SOCIAL 13 VIVIENDA SUSTENTABLE PARA EMERGENCIAS ANTE DESASTRES ALEMAN – BERMUDEZ - MINAYA TOTAL DE HABITANTES 51% 49% 549.430 aprox. CONCENTRACIÓN DE LA POBLACIÓN Adolescente 10% Adulto mayor 12% Niño 19% Joven 21% Adulto 38% ESTADÍSTICAS DENSIDAD POBLACIONAL ESPERANZA DE VIDA AL NACER POBLACIÓN GESTANTE TASA DE NATALIDAD 45% 25% 15% 10% 5% USO DE TRANSPORTE NIVEL DE SATISFACCIÓN 100% 80% 100% 100% 80% Viviendas Servicios básicos Áreas verdes Área Común Establecimientos comerciales
SEGÚN VIVIENDA QUE OCUPAN
70.69% 28.15% 0.38% 0.27% 0.26% 0.10% PUNTOS CONCURRIDOS Niño: -Zonas de entretenimiento -Áreas sociales tecnológicas -Salud Adolescente- Joven: -Zonas
-Áreas sociales -Centros de educación -Salud -Tecnología Adulto: -Zonas recreativas -Centros de negocios -Áreas sociales -Salud -Tecnología Adulto Mayor: -Zonas de entretenimiento -Consumidor de productos -Áreas sociales -Salud 46% 36% 13% 3% 2% 0% 10% 20% 30% 40% 50% Ocupaciones 3% 16% 48% 26% 7% 0% 10% 20% 30% 40% 50% 60% A B C D E Nivel Socio económico 18% 3% 34% 3% 41% 1% 0% 5% 10% 15% 20% 25% 30% 35% 40% 45% Estado Civil 1993 2019 Lima 8 299 10 675 Comas 2 265 3 291 2003 2019 Lima 67. 18 79.41 Comas 72. 00 79.35 2014 2019 Lima 9 101 11 590 Comas 174 007 282 193 2006 2019 Lima 501 837 549 430 Comas 254 933 275 920
LEVANTAMIENTO
HOGARES
2019
recreativas
COMAS

ANÁLISIS DEL LUGAR

USUARIOS

1 – 2 PERSONAS

TIPOS DE VIVIENDAS

BAJO

HABITANTES 69 635 NIVEL SOCIOECONÓMICO

23% 77%

NECESIDADES

ZONA DE RIESGO (LADERA DE CERRO, ALTA PENDIENTE)

ZONA PLANA Y/O BAJA PENDIENTE

SOCIALIZAR

ASEO

PERSONAL DESCANSAR

1-2

PERSONAS

COMPARTIR SERVICIOS

ESTUDIANTES PYMES / MYPES PAREJAS FAMILIA MONOPARENTAL

3 – 4 PERSONAS

3 O 4 ROOMATES ESTUDIANTE/TIA/PRIMOS ESTUDIANTE/HERMANA/MAMÁ

PAPÁS JÓVENES E HIJA O HIJO PRIMOS JÓVENES/AMIGA

ESPACIOS EXTERIORES PROPIOS NECESIDAD DE ASEO FLEXIBLE

3-4

PERSONAS

DIVERSOS ESPACIOS DE SOCIABILIZACION

SIMULTANEIDAD DE USOS

ESPACIOS PARA EL TRA BAJO

PRODUCTIVO

5 – 8 PERSONAS

FAMILIA EXTENDIDA: PADRES, TÍOS, ABUELOS, PRIMOS

POSIBIIDAD DE AMPLIACIÓN FUTURA

5-8

PERSONAS

ESPACIOS DE REUNIÓN

SERVICIOS DE USO DIARIO

ACCESIBILIDAD PARA PERSONAS MAYORES

SOCIAL 14 VIVIENDA SUSTENTABLE PARA EMERGENCIAS ANTE DESASTRES ALEMAN – BERMUDEZ - MINAYA
LEVANTAMIENTO
COLLIQUE + + + +

ANÁLISIS DEL LUGAR LEVANTAMIENTO ECONÓMICO

ECONOMÍA

INGRESO MENSUAL (per cápita)

El área ocupada actual del distrito es de 32 388 ha , de las cuales 2860 1 ha., son urbanas que equivale al 88.3% del área ocupada, el crecimiento mayor del área urbana ha sido sobre el terreno agrícola Comas cada vez más crece desmesuradamente y en desorden

PLANO ESTRATIFICADO A NIVEL DE MANZANA POR INGRESO PER CÁPITA DEL HOGAR

La principal actividad económica del distrito de Comas son las bodegas o tiendas que representan el 34 4% del total de actividades registradas por la Sud gerencia de Promoción de la Inversión de la Municipalidad

Actualmente, en Comas, se encuentran asentados 15 856 establecimientos de actividades económicas, que representan el 96% de empleos. Entre los más representativos se encuentran 5584 bodegas, 599 restaurantes, 485 talleres de mecánica y centenares de farmacias, peluquerías, librerías y licorerías

PNEA: Población no económicamente activa

PEA: Población económicamente activa

Índice de desarrollo humano (IDH): Comas se encuentra en el tercio superior con respecto a los demás distritos de Lima Metropolitana

15 VIVIENDA SUSTENTABLE PARA EMERGENCIAS ANTE DESASTRES ALEMAN – BERMUDEZ - MINAYA
45% 55% PNEA PNEA 34% 66% NBS NBS 85% 7% 8% TALLERES DE MECÁNICA RESTAURANTES
BODEGAS
REGISTRO FOTOGRÁFICO
POR ZONAS
ALTO 0% MEDIO 89% BAJO 11%

ANÁLISIS DEL LUGAR LEVANTAMIENTO ECONÓMICO

ESTRATIFICACIÓN DEL NIVEL DE VULNERABILIDAD ECONÓMICA

Para el análisis de la vulnerabilidad económica, se ha tomado en cuenta como factor de vulnerabilidad por fragilidad económica a la población económicamente activa PEA, y al uso del suelo; en resiliencia el estrato del nivel de ingresos y en exposición el tipo de vivienda.

Determinación de los niveles de vulnerabilidad

Grupo de población

económicamente activa en condición inactiva y/o dedicada al hogar, localizados en viviendas en suelo no urbanizable y/o laderas de fuerte pendiente; con nivel de ingresos del estrato bajo; con tipo de ocupación.

Grupo de población económicamente activa en condición de desocupado, viviendas localizadas en lomas de mediana pendiente; con nivel de ingresos del estrato medio bajo; con tipo de vivienda choza o cabaña.

Grupo de población

económicamente activa en condición de ocupada; viviendas ubicadas en área urbana en la periferia de la ciudad; con nivel de ingresos del estrato medio; con tipo de vivienda en casa de vecindad y/o vivienda en quinta.

Grupo de población económicamente activa en condición de trabajador independiente/dependiente, viviendas ubicadas en zona consolidada y urbanizada; con nivel de ingresos del estrato medio alto a alto; con tipo de vivienda en edificio y propia, vivienda cada independiente.

16 VIVIENDA SUSTENTABLE PARA EMERGENCIAS ANTE DESASTRES ALEMAN – BERMUDEZ - MINAYA
NIVEL DE VULNERABILIDAD RANGO MUY ALTO 0.264 < VE < 0.484 ALTO 0.139 < VE < 0.264 MEDIO 0.075 < VE < 0.139 BAJO 0.039 < VE < 0.075 VULNERAB MUY ALTA VULNERAB ALTA VULNERAB MEDIA VULNERAB BAJA VULNERABILIDAD MUY ALTA VULNERABILIDAD ALTA VULNERABILIDAD MEDIA VULNERABILIDAD BAJA

ANÁLISIS DEL LUGAR

GOBERNABILIDAD

SERVICIOS COMUNALES 350

Que contribuyen con la gobernanza de Comas

PERIFERIA CENTRO VS.

Contiene servicios comunales, pero en menor cantidad que periferia de Comas

La zona periférica de Comas tiene mejor consolidado los servicios comunales, se conectan entre sí generando una cadena de participación activa entre vecinos.

LOCAL COMUNAL SAN MARTÍN CANTIDAD DE SERVICIOS COMUNALES CONEXIÓN ENTRE C C

Comas posee gran cantidad de Servicios Comunales que ofrecen su ayuda con el fin de lograr una integración social y de mercado, además intervienen en decisiones que elabora la Municipalidad y tienen el deber de comunicarles las necesidades de la población

Dentro de los Servicios Comunales que se desarrollan a lo largo de la extensión del distrito, tenemos a los clubes deportivos que organizan torneos benéficos para la población, como también ONG´s que contribuyen en voluntariados para fines sociales y para la educación de los más pobres, asimismo también encontramos Asociaciones vecinales que se extienden en las 14 zonas en las que se divide Comas.

Gerencia de Participación Vecinal

Acreditación de Organizaciones Sociales

Promoción y Desarrollo Comunal

49% LOCALES COMUNALES (comedores y asociaciones)

• Local Comunal – Comedor San Martín

• Asociación de los clubes de madres y comedores populares

2.5% ONG´S

• Operación San Andrés ONG

• Asociación Mano a Mano Perú

ECONÓMICO 17 VIVIENDA SUSTENTABLE PARA EMERGENCIAS ANTE DESASTRES ALEMAN – BERMUDEZ - MINAYA
LEVANTAMIENTO
49% 51% 49% 51%

ANÁLISIS DEL LUGAR ANÁLISIS DE

GESTIÓN DE RIESGO Y DE DESASTRES

En esta evaluación de riesgos luego de haberse identificado los diferentes tipos de riesgos se vio reflejado de que dentro de los sectores de las laderas y del rio Chillón existen centros de salud y escuelas en toda la pendiente, además de viviendas que se encuentran a pocos metros.

La Municipalidad de Comas promueve e implementa acciones y medidas que permiten acondicionar las zonas urbanas.

• Control en la ocupación en las quebradas.

• Construcción de muros de contención.

• Programa de forestación en las laderas altas.

• Obras de encauzamiento y enroscado en el rio Chillón

• Elaboración de un diseño de tipos de vivienda compatible con las características del suelo

180.13 m3/s 12000 75%

Caudal máximo por día entre los meses de diciembre y mayo

Habitantes afectados por el afloramiento de aguas subterráneas

Manzanas en alto riesgo que no podrían contrarrestar un desastre

89.6% 45%

Viviendas con red de abastecimiento de desagüe.

Población en peligro de que ocurra dos desastres naturales.

18 VIVIENDA SUSTENTABLE PARA EMERGENCIAS ANTE DESASTRES ALEMAN – BERMUDEZ - MINAYA
VULNERABILIDADES
ZONAS RIBEREÑAS ZONAS CONSOLIDADA ZONAS DE LADERAS
ZONA DE POBREZA Y PELIGRO

ANÁLISIS DEL LUGAR ANÁLISIS

PATRIMONIO EDIFICADO

El Ministerio de Cultura (MINCU) hace pública la lista de sitios arqueológicos declarados Patrimonio Cultural de la Nación en el distrito de Comas (Lima, Perú).

• Fortaleza de Collique

• Huaca Sinchi Roca

• Huaca el Retablo

• Muralla Tungasuca

• Huaca San Carlos I – II

• Chacra Cerro I - II

Mediante va transcurriendo los años las huacas de Comas se va consumiendo como indica los colores degradados.

FORTALEZA DE COLLIQUE

A la altura del km 16 de la avenida Túpac Amaru se encuentra la zona arqueológica que hay se conoce como Fortaleza de Collique, centro administrativo y religioso del señor Colli.

DOMINIO INKA

A diferencia de los ichmas, los collis se resistieron al dominio inca. Los ejércitos del inca Túpac Yukanqui los conquistaron sangrientamente en el siglo XV.

Desde la Fortaleza de Collique, el señor Colli ofreció resistencia hasta la muerte.

DE VULNERABILIDADES 19 VIVIENDA SUSTENTABLE PARA EMERGENCIAS ANTE DESASTRES ALEMAN – BERMUDEZ - MINAYA
1000-1400 1400-1900 2003-2006 2007-2010 NIVEL DE CONSUMO

GEOGRAFÍA

Las condiciones geográficas lo convierten en un área de riesgo de catástrofes debido a la meteorización y erosión de la tierra.

HUAICOS FENÓMENOS ERRÁTICOS

Los huacos se originan debido a la erosión y meteorización, según la CENEFRED, en el Perú es una las catástrofes más comunes en épocas de lluvia

Cambios climáticos que ocurren esporádicamente, tales como el Fenómeno del Niño que pueden suceder entre largos lapsos de tiempo

ZONAS NO APTAS

Cuando las casas empiezan a expandirse, muchas suelen instalarse en zonas que son altamente peligrosas en posibles casos de desastres naturales

PROBLEMÁTICA EN INFRAESTRUCTURA

CONTAMINACIÓN AMBIENTAL

SEGURIDAD

Contaminación por residuos o botaderos entre viviendas.

EQUIPAMIENTO

ACCESIBILIDAD

Falta de protección contra deslizamiento de rocas.

Ausencia de áreas verdes y poca infraestructura educativa

Pistas mal pavimentadas o simplemente no lo están y difícil acceso a zonas altas

20 VIVIENDA SUSTENTABLE PARA EMERGENCIAS ANTE DESASTRES ALEMAN – BERMUDEZ - MINAYA GENERAL
PROBLEMÁTICA
C. AMBIENTAL 1 SEGURIDAD 2 EQUIPAMIENTO 3 ACCESIBILIDAD 4

AH NUEVA GENERACIÓN

Los habitantes construyen sus viviendas en zonas peligrosas, sin regirse a la normativa y de manera desordenada.

No existe infraestructura urbana adecuada ni una planificación urbana para el crecimiento de la zona

16 093

HABITANTES EN ZONAS

VULNERABLES

20 VIVIENDA SUSTENTABLE PARA EMERGENCIAS ANTE DESASTRES
PROBLEMÁTICA
ALEMAN – BERMUDEZ - MINAYA
ESPECÍFICA

TERRENO

TERRENO 1

TERRENO 2

TERRENO 3

UBICACIÓN: Jirón Micaela Bastidas

ÁREA: 5,864 m²

UBICACIÓN: Calle La Taza 148, Chacra Cerro, Comas

ÁREA: 21,437 m²

UBICACIÓN: Av. Los Incas – Au. Chillón

Trapiche

ÁREA: 21,770 m²

23 VIVIENDA SUSTENTABLE PARA EMERGENCIAS ANTE DESASTRES
ALEMÁN – BERMUDEZ - MINAYA

TERRENO

PELIGROS GEOLÓGICOS DE COLLIQUE

Quebrada de Collique

LEYENDA

Caída de rocas Flujo de detritos antiguos Terreno a reubicar Propuesta 1

Asentamiento Humano Nueva Generación

Propuesta 2

Nuevo Sol del Pinar 2 Etapa

Propuesta 3

24 VIVIENDA SUSTENTABLE PARA EMERGENCIAS ANTE DESASTRES
MINAYA
ALEMAN
BERMUDEZ -
AH NUEVA GENERACIÓN AH NUEVA GENERACIÓN JR MICAELA

TERRENO ESTRATIFICACIÓN DEL NIVEL DE PELIGRO SÍSMICO

CARABAYLLO

PUENTE PIEDRA

ZONA 8

ZONA 14

ZONA 9

ZONA 5

ZONA 12

AH NUEVA GENERACIÓN

ZONA 7

ZONA 10

ZONA 13

ZONA 4

ZONA 6

ZONA 3

ZONA 11

ZONA 2

Asentamiento Humano Nueva Generación

ZONA 1

SAN JUAN DE LURIGANCHO

Peligro Medio

Peligro Alto

Peligro Muy Alto

Nuevo Sol del Pinar 2 Etapa

Terreno a reubicar

Propuesta 1

Propuesta 2

Propuesta 3

25 VIVIENDA SUSTENTABLE PARA EMERGENCIAS ANTE DESASTRES ALEMAN – BERMUDEZ - MINAYA
LEYENDA
MICAELA
JR
Mapa Distrital de Comas

TERRENO ESTUDIO VIAL – TERRENO 1

JR MICAELA Av. Revolución Av. Revolución Av. Revolución 1 2

VÍAS SEGUNDARIAS VÍAS TERCIARIAS

• Av. Revolución

• Jr. Micaela Bastidas

• Ca. Jorge Chavez

• Av. Felipe Pinglo Alva

• Ca. Cesar Vallejo

RECORRIDO

• Vías segundarias

• Vías terciarias

• Caminos

TIEMPO - carro y caminando

1’- 2’

2’- 5’

1’- 4’

• Terreno reubicado

• Jr. 9 de octubre

• Jr. Pedro Ruiz Gallo

• Jr. Guadalupe

• Entre Jr. 9 de octubre y Jr.

• Entre Jr. 9 de octubre y Av. Revolución

26 VIVIENDA SUSTENTABLE PARA EMERGENCIAS ANTE DESASTRES ALEMAN – BERMUDEZ - MINAYA
Micaela Bastidas
Colegio
1 2 Comisaria
Hospital
Iglesia
Mercado
VÍAS PEATONALES Parque
2’- 4’
3’-11’
2’- 9’
• Propuesta

VÍAS SEGUNDARIAS 1 2

• Entre Av. 3 4

VÍAS PEATONALES

Incas, Av.3 y Au.

Av. Los Pinos

• Au. Chillón Trapiche

• Av. Universitaria

• Propuesta 2

• Propuesta 3

• Au. Los Incas

• Av. Retablo

• Av.3

• Av.75

VÍAS PRINCIPALES VÍAS TECERIAS •

• Caminos

• Jr. Compuertas

• C. La Taza

• Av. Mariano

• Av. Chacra Cerro

CARRO Y CAMINANDO 27 VIVIENDA SUSTENTABLE PARA EMERGENCIAS ANTE DESASTRES ALEMAN – BERMUDEZ - MINAYA
Entre
Compuert
Taza
Entre Jr. Compuert as y Av. Mariano C.
Jr.
as y C. La
TIEMPOColegio 1’- 1’ 3 4 2’- 5’ 3’-10’ 3’- 5’ 3’- 6’ 2’- 9’
Condorcanqui
• Propuesta 2 Mercado Parque • Propuesta 3 Gasolinera 1’- 1’ Parque Colegio Mercado 1’- 1’ Farmacia
Los
Chillón Trapiche • Entre Av. Los Incas y
• Av. Los Pinos 1 2
TERRENO ESTUDIO VIAL – TERRENO 2 Y 3

ÁRBOL DE PROBLEMAS Y SOLUCIONES CONSTRUCTIVAS

RIESGOS NATURALES

Deslizamiento de rocas

Temblores

Deslizamiento por aumento de lluvias

El tipo de suelo que encontramos en esta zona no es apta para las construcciones, por lo cual las viviendas no son lo suficientes resistentes ante un sismo / temblor.

RIESGOS FÍSICOS

Materiales no adecuados para la protección contra las lluvias

MATERIALES SUSTENTABLES

• Construcción de cimientos y sobrecimiento

• Sistema de techos a dos aguas

• Canaletas

No hay mantenimiento de los materiales y construcciones en condiciones en mal

Materiales fáciles de conseguir

NUESTRO PROYECTO

Vías cercanas con acceso a todos los miembros.

Distanciado de las zonas vulnérales ante un desastre natural.

Mayor accesibilidad en equipamiento

28 VIVIENDA SUSTENTABLE PARA EMERGENCIAS ANTE DESASTRES ALEMAN – BERMUDEZ - MINAYA P R O B L E M Á T I C A S S O L U C I O N E S
Mejoramiento de infraestructura
Tapial Madera Bambú

PROYECTO “MITU WASI”

COLLIQUE, COMAS

NOMBRE DEL PROYECTO Y CONCEPTO REFERENTES ARQUITECTÓNICOS FUNCIONALIDAD SUSTENTO DE ZONA SÍSMICA CÁLCULO PARA EL DISEÑO DE TAPIAL ÍNDICE 01 02 03 04 05 31 32 34 35 33 DEFINICIÓN DE ÁREAS Y PROPORCIÓN DE ESPACIOS 06 36 DESCRIPCION DE MATERIALES Y SISTEMAS CONSTRUCTIVOS 07 37 PLANIMETRÍA 08 39 RENDERS 09 50

NOMBRE DEL PROYECTO Y CONCEPTO

CONCEPTO

SOSTENIBILIDAD

Proyecto elaborado con medidas necesarias evitando asi que se vea afectada por los desastres naturales.

SEGURIDAD

Materiales sostenibles, en este proyecto usamos tapial.

El nombre se compone de dos palabras en quechua, una de ellas wasi que significa casa y mitu, tapial, teniendo como resultado casa de tapial

El proyecto busca causar el menor impacto ambiental en cuanto su elaboración, esto es posible ya que en su mayoría se está usando materiales naturales y económicos en su estructura, así mismo, el material principal, el tapial, mejora su resistencia en caso de sismo y brindar seguridad a los habitantes

ECONÓMICO

Al utilizar tapial, reducimos los gastos y evitamos que más familias vivan de mala forma.

31 VIVIENDA SUSTENTABLE PARA EMERGENCIAS ANTE DESASTRES ALEMAN – BERMUDEZ - MINAYA
WASI (casa) MITU (de tapial) “MITU WASI” (casa de tapial) CASA ENSAYO HORNEROS – BAUEN – PARAGUAY TAPIAL PROYECTO PROPIO “MITU WASI”

REFERENTES ARQUITECTÓNICOS

CASA EXPERIMENTAL DE TAPIAL

CASA PATCH CASA LASSO

ARQUITECTOS: Estudio de Arquitectura y Planificación

Kaiser

UBICACIÓN: San Lorenzo, Bolivia

ÁREA: 121 m2

AÑO: 2020

ARQUITECTOS: ESEcolectivo Arquitectos

UBICACIÓN: Quito, Ecuador

ÁREA: 230 m2

AÑO: 2016

ARQUITECTOS: Rama Estudio

UBICACIÓN: San Jose, Ecuador

ÁREA: 350 m2

AÑO: 2019

32 VIVIENDA SUSTENTABLE PARA EMERGENCIAS ANTE DESASTRES
ALEMAN – BERMUDEZ - MINAYA

ZONIFICACIÓN CIRCULACIÓN Y DISTRIBUCIÓN

El terreno esta distribuido en tres secciones:

1. En la parte superior está conformado por la zona privada lo cual está separada por una puerta que se dirige a la zona social

• Proponemos una circulación interna que sirve como eje ordenador que conecta ambientes entre si. FLUJOGRAMA

2 En la parte del centro está conformado por la zona social, conectado por la zona de servicio.

3. Por ultimo, está en la parte posterior lo cual conforma la zona social / común

Ingreso Principal

Puertas

Conexión

33 VIVIENDA SUSTENTABLE PARA EMERGENCIAS ANTE DESASTRES ALEMAN – BERMUDEZ - MINAYA
FUNCIONALIDAD
Social Privado Servicio Circulación
D.PRINCIPAL SALA TERRAZA D.SECUNDARIO COCINALAVANDERIA BIOHUERTO JARDÍN HALL BAÑO COMEDOR BAÑO HALL
LEYENDA
1
2 3

SUSTENTO DE ZONA SÍSMICA

ZONA 1

ZONA 2

ZONA 3

ZONA 4

ZONA SÍSMICA 3 Y 4:

Las construcciones de barro se limitarán en un solo nivel.

ANCÓN

ATE

BARRANCO

BREÑA

CARABAYLLO CHACLACAYO

LIMA LIMA

CHORRILLOS

CIENEGUILLA

COMAS

EL AGUSTIO INDEPENDENCIA

JESÚS MARIA

LA MOLINA

4 TODOS LOS DISTRITOS

34 VIVIENDA SUSTENTABLE PARA EMERGENCIAS ANTE DESASTRES
-
ALEMAN
BERMUDEZ
MINAYA
REGIÓN (DPTO.) PROVINCIA DISTRITO ZONA SÍSMICA ÁMBITO

CÁLCULOS PARA EL DISEÑO EN TAPIAL

Espesor de muro = e

Ancho de arriostres = b

Altura libre de muros = H

Distancia entre arriostres verticales = L

Ancho de los vanos = a

DATOS GENERALES:

35 VIVIENDA SUSTENTABLE PARA EMERGENCIAS ANTE DESASTRES ALEMAN – BERMUDEZ - MINAYA �� �� ≤ 3 3�� ≤ �� ≤ 5�� �� + 1.25 ×�� ≤ 17.5�� �� ≤ 6�� �� ≤ 10�� a ≤ 1.66m 1.50m ≤ b ≤ 2.50m 5 + 1.25 (3) ≤ 17.5 (0.50) H ≤ 3.00m L ≤ 5.00m
Si ��=0.50��
e
a
L
b
H
a b e a a b L b b L H b
RECTO 1.55
= 0.50 m
= 1.40 m
= 4.50 m
= 1.55 m
= 3.00 m
CONTRAFUERTE
m

DEFINICIÓN DE ÁREAS Y PROPORCIONES DE ESPACIOS

ESPACIOS ÁREA PROPORCIÓN

SALA 20.25m² X

COCINA - LAVANDERIA 20.25m² X

COMEDOR 20.25m² X

SS.HH. COMPLETO 6.97m² 2X/3

DORMITORIO PRINCIPAL 20.25m² X

DORMITORIO SEGUNDARIO 20.25m² X

TERRAZA 20.25m² X

BIOHUERTO 20.25m² X

JARDÍN 6.97m² X/3

ZONA SÍSMICA 3 Y 4: Las construcciones de barro se limitarán en un solo nivel.

DATOS GENERALES:

36 VIVIENDA SUSTENTABLE PARA EMERGENCIAS ANTE DESASTRES ALEMAN – BERMUDEZ - MINAYA
e
a = 1.40 m L
4.50
b
1.55 m H
3.00 m CONTRAFUERTE RECTO 1.55 m VECINO VECINO 4.50 m 20.25m² 4.50 m 4.50 m 4.50 m 4.50 m 4.50 m 4.50 m 4.50 m 4.50 m 4.50 m 4.50 m 4.50 m 13.50 m 13.50 m 20.25m² 20.25m² 20.25m² 20.25m² 20.25m² 20.25m² 6.97m² 6.97m²
= 0.50 m
=
m
=
=

DESCRIPCIÓN DE MATERIALES Y SISTEMAS CONSTRUCTIVOS

TAPIAL

• Simplicidad en ejecución.

• Economía, consumo mínimo de energía.

• Aislamiento térmico y acústico.

Torta de barro

Teja Teja cumbrera

Caña chancada de bambú

• Resistencia y ligero con una alta capacidad de carga.

• Apta para toda clase de ambiente.

Viga cumbrera de madera rolliza

Correa de madera cachimbo

Tijerales de madera

Viga principal de madera

Muros de tapial

Contrafuertes de tapial

Tabiquería de madera

Piso de cemento pulido

Piso de porcelanato

• No demanda mucho mantenimiento.

• Factor ecológico.

• Facilidad de bajo costo.

• Rápido de construcción en la estructura

• Regula la temperatura del material de repello.

CIMIENTO Y SOBRECIMIENTO CORRIDO DE HORMIGON CICLOPEO

Cimientos

• Da una mayor resistencia y seguridad a la vivienda ante cualquier eventualidad natural.

37 VIVIENDA SUSTENTABLE PARA EMERGENCIAS ANTE DESASTRES ALEMAN – BERMUDEZ - MINAYA
MADERA
TEJA BARRO CAÑA DE BAMBU

DESCRIPCIÓN DE MATERIALES Y SISTEMAS CONSTRUCTIVOS

CERCHAS

Con techo de dos aguas y pendiente de inclinación de 15°

CUBIERTA

Por último, completar la colocación de teja

PAREDES TAPIAL

Proceso Constructivo

Relleno con tierra, con la ayuda de un pisón se ira comprimiendo la tierra hasta completar el tapial.

38 VIVIENDA SUSTENTABLE PARA EMERGENCIAS ANTE DESASTRES ALEMAN – BERMUDEZ - MINAYA
1
2
Armado del cajón de madera
1
Armado de Tijerales y Viguetas de madera.
2
Caña de Bambú sobre las viguetas.
3
Completando con Caña de bambú.
5 4
Completando con Caña de bambú.

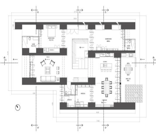
VIVIENDA “MITU WASI”

FACULTAD DE ARQUITECTURA Y DISEÑO

CÁTEDRA

ARQ. Carlos Cerna Sifuentes

ENTREGA PARCIAL UBICACIÓN Collique, Comas

ALUMNOS

Aleman Brenda Bermudez Gianella Minaya Janira

ORIENTACIÓN

ESCALA: 1/100

PLANO

Planta de primer nivel

FECHA

Enero 2023

PLANIMETRÍA 39 VIVIENDA SUSTENTABLE PARA EMERGENCIAS ANTE DESASTRES ALEMAN – BERMUDEZ - MINAYA
A-01

VIVIENDA “MITU WASI”

FACULTAD DE ARQUITECTURA Y DISEÑO

CÁTEDRA

ARQ. Carlos Cerna Sifuentes

ENTREGA PARCIAL UBICACIÓN Collique, Comas

ALUMNOS

Aleman Brenda Bermudez Gianella Minaya Janira

ORIENTACIÓN

ESCALA: 1/100

PLANO Planta de techos

FECHA

Enero 2023

40 VIVIENDA SUSTENTABLE PARA EMERGENCIAS ANTE DESASTRES ALEMAN – BERMUDEZ - MINAYA
PLANIMETRÍA
A-02

VIVIENDA “MITU WASI”

FACULTAD DE ARQUITECTURA Y DISEÑO

CÁTEDRA

ARQ. Carlos Cerna Sifuentes

ENTREGA PARCIAL UBICACIÓN Collique, Comas

ALUMNOS Aleman Brenda Bermudez Gianella Minaya Janira

ORIENTACIÓN

ESCALA: 1/100

PLANO Corte A-A

FECHA Enero 2023

41 VIVIENDA SUSTENTABLE PARA EMERGENCIAS ANTE DESASTRES ALEMAN – BERMUDEZ - MINAYA
PLANIMETRÍA
A-03

VIVIENDA “MITU WASI”

FACULTAD DE ARQUITECTURA Y DISEÑO

CÁTEDRA

ARQ. Carlos Cerna Sifuentes

ENTREGA PARCIAL UBICACIÓN Collique, Comas

ALUMNOS Aleman Brenda Bermudez Gianella Minaya Janira

ORIENTACIÓN

ESCALA: 1/100

PLANO CorteB-B

FECHA Enero 2023

42 VIVIENDA SUSTENTABLE PARA EMERGENCIAS ANTE DESASTRES ALEMAN – BERMUDEZ - MINAYA
PLANIMETRÍA
A-04

VIVIENDA “MITU WASI”

FACULTAD DE ARQUITECTURA Y DISEÑO

CÁTEDRA

ARQ. Carlos Cerna Sifuentes

ENTREGA PARCIAL UBICACIÓN Collique, Comas

ALUMNOS Aleman Brenda Bermudez Gianella Minaya Janira

ORIENTACIÓN

ESCALA: 1/100

PLANO Corte C-C

FECHA Enero 2023

PLANIMETRÍA 43 VIVIENDA SUSTENTABLE PARA EMERGENCIAS ANTE DESASTRES ALEMAN – BERMUDEZ - MINAYA
A-05

VIVIENDA “MITU WASI”

FACULTAD DE ARQUITECTURA Y DISEÑO

CÁTEDRA

ARQ. Carlos Cerna Sifuentes

ENTREGA PARCIAL UBICACIÓN Collique, Comas

ALUMNOS Aleman Brenda Bermudez Gianella Minaya Janira

ORIENTACIÓN

ESCALA: 1/100

PLANO Corte D-D

FECHA

Enero 2023

44 VIVIENDA SUSTENTABLE PARA EMERGENCIAS ANTE DESASTRES ALEMAN – BERMUDEZ - MINAYA
PLANIMETRÍA
A-06

VIVIENDA “MITU WASI”

FACULTAD DE ARQUITECTURA Y DISEÑO

CÁTEDRA

ARQ. Carlos Cerna Sifuentes

ENTREGA PARCIAL UBICACIÓN Collique, Comas

ALUMNOS Aleman Brenda Bermudez Gianella Minaya Janira

ORIENTACIÓN

ESCALA: 1/100

PLANO Elevación frontal FECHA

Enero 2023

PLANIMETRÍA 45 VIVIENDA SUSTENTABLE PARA EMERGENCIAS ANTE DESASTRES ALEMAN – BERMUDEZ - MINAYA
A-07

VIVIENDA “MITU WASI”

FACULTAD DE ARQUITECTURA Y DISEÑO

CÁTEDRA

ARQ. Carlos Cerna Sifuentes

ENTREGA PARCIAL UBICACIÓN Collique, Comas

ALUMNOS Aleman Brenda Bermudez Gianella Minaya Janira

ORIENTACIÓN

ESCALA: 1/100

PLANO Elevación posterior FECHA Enero 2023

46 VIVIENDA SUSTENTABLE PARA EMERGENCIAS ANTE DESASTRES ALEMAN – BERMUDEZ - MINAYA
PLANIMETRÍA
A-08

VIVIENDA “MITU WASI”

FACULTAD DE ARQUITECTURA Y DISEÑO

CÁTEDRA

ARQ. Carlos Cerna Sifuentes

ENTREGA PARCIAL UBICACIÓN Collique, Comas

ALUMNOS

Aleman Brenda Bermudez Gianella Minaya Janira

ORIENTACIÓN

ESCALA: 1/100

PLANO

Elevación lateral derecha

FECHA

Enero 2023

47 VIVIENDA SUSTENTABLE PARA EMERGENCIAS ANTE DESASTRES ALEMAN – BERMUDEZ - MINAYA
PLANIMETRÍA
A-09

VIVIENDA “MITU WASI”

FACULTAD DE ARQUITECTURA Y DISEÑO

CÁTEDRA

ARQ. Carlos Cerna Sifuentes

ENTREGA PARCIAL UBICACIÓN Collique, Comas

ALUMNOS

Aleman Brenda Bermudez Gianella Minaya Janira

ORIENTACIÓN

ESCALA: 1/100

PLANO

Elevación lateral izquierda

FECHA

Enero 2023

48 VIVIENDA SUSTENTABLE PARA EMERGENCIAS ANTE DESASTRES ALEMAN – BERMUDEZ - MINAYA
PLANIMETRÍA
A-10

PLANIMETRÍA

VIVIENDA “MITU WASI”

FACULTAD DE ARQUITECTURA Y DISEÑO

CÁTEDRA

ARQ. Carlos Cerna Sifuentes

ENTREGA PARCIAL UBICACIÓN Collique, Comas

ALUMNOS

Aleman Brenda Bermudez Gianella Minaya Janira

ORIENTACIÓN

ESCALA: 1/50

PLANO

Plano de detalle cocinalavandería

FECHA Enero 2023

49 VIVIENDA SUSTENTABLE PARA EMERGENCIAS ANTE DESASTRES ALEMAN – BERMUDEZ - MINAYA
A-11

RENDERS

50 VIVIENDA SUSTENTABLE PARA EMERGENCIAS ANTE DESASTRES
– BERMUDEZ
ALEMAN
- MINAYA

RENDERS

51 VIVIENDA SUSTENTABLE PARA EMERGENCIAS ANTE DESASTRES
ALEMAN
BERMUDEZ - MINAYA

RENDERS

52 VIVIENDA SUSTENTABLE PARA EMERGENCIAS ANTE DESASTRES
ALEMAN – BERMUDEZ - MINAYA

RENDERS

53 VIVIENDA SUSTENTABLE PARA EMERGENCIAS ANTE DESASTRES
ALEMAN – BERMUDEZ - MINAYA

RENDERS

54 VIVIENDA SUSTENTABLE PARA EMERGENCIAS ANTE DESASTRES
ALEMAN – BERMUDEZ - MINAYA

RENDERS

55 VIVIENDA SUSTENTABLE PARA EMERGENCIAS ANTE DESASTRES ALEMAN – BERMUDEZ -
MINAYA

RENDERS

56 VIVIENDA SUSTENTABLE PARA EMERGENCIAS ANTE DESASTRES ALEMAN – BERMUDEZ -
MINAYA
GRUPO Alemán Donaire, Brenda Bermudez Amaro, Gianella Minaya Peralta, Janira Abigail

Turn static files into dynamic content formats.

Create a flipbook
Issuu converts static files into: digital portfolios, online yearbooks, online catalogs, digital photo albums and more. Sign up and create your flipbook.