MITU WASI_COLLIQUE_COMAS

Page 1

ÁRBOL DE PROBLEMAS Y SOLUCIONES CONSTRUCTIVAS

RIESGOS NATURALES

Deslizamiento de rocas

Temblores

Deslizamiento por aumento de lluvias

El tipo de suelo que encontramos en esta zona no es apta para las construcciones, por lo cual las viviendas no son lo suficientes resistentes ante un sismo / temblor.

RIESGOS FÍSICOS

Materiales no adecuados para la protección contra las lluvias

MATERIALES SUSTENTABLES

• Construcción de cimientos y sobrecimiento

• Sistema de techos a dos aguas

• Canaletas

No hay mantenimiento de los materiales y construcciones en condiciones en mal

Materiales fáciles de conseguir

NUESTRO PROYECTO

Vías cercanas con acceso a todos los miembros.

Distanciado de las zonas vulnérales ante un desastre natural.

Mayor accesibilidad en equipamiento

28 VIVIENDA SUSTENTABLE PARA EMERGENCIAS ANTE DESASTRES ALEMAN – BERMUDEZ - MINAYA P R O B L E M Á T I C A S S O L U C I O N E S
Mejoramiento de infraestructura
Tapial Madera Bambú

PROYECTO “MITU WASI”

COLLIQUE, COMAS

NOMBRE DEL PROYECTO Y CONCEPTO REFERENTES ARQUITECTÓNICOS FUNCIONALIDAD SUSTENTO DE ZONA SÍSMICA CÁLCULO PARA EL DISEÑO DE TAPIAL ÍNDICE 01 02 03 04 05 31 32 34 35 33 DEFINICIÓN DE ÁREAS Y PROPORCIÓN DE ESPACIOS 06 36 DESCRIPCION DE MATERIALES Y SISTEMAS CONSTRUCTIVOS 07 37 PLANIMETRÍA 08 39 RENDERS 09 50

NOMBRE DEL PROYECTO Y CONCEPTO

CONCEPTO

SOSTENIBILIDAD

Proyecto elaborado con medidas necesarias evitando asi que se vea afectada por los desastres naturales.

SEGURIDAD

Materiales sostenibles, en este proyecto usamos tapial.

El nombre se compone de dos palabras en quechua, una de ellas wasi que significa casa y mitu, tapial, teniendo como resultado casa de tapial

El proyecto busca causar el menor impacto ambiental en cuanto su elaboración, esto es posible ya que en su mayoría se está usando materiales naturales y económicos en su estructura, así mismo, el material principal, el tapial, mejora su resistencia en caso de sismo y brindar seguridad a los habitantes

ECONÓMICO

Al utilizar tapial, reducimos los gastos y evitamos que más familias vivan de mala forma.

31 VIVIENDA SUSTENTABLE PARA EMERGENCIAS ANTE DESASTRES ALEMAN – BERMUDEZ - MINAYA
WASI (casa) MITU (de tapial) “MITU WASI” (casa de tapial) CASA ENSAYO HORNEROS – BAUEN – PARAGUAY TAPIAL PROYECTO PROPIO “MITU WASI”

REFERENTES ARQUITECTÓNICOS

CASA EXPERIMENTAL DE TAPIAL

CASA PATCH CASA LASSO

ARQUITECTOS: Estudio de Arquitectura y Planificación

Kaiser

UBICACIÓN: San Lorenzo, Bolivia

ÁREA: 121 m2

AÑO: 2020

ARQUITECTOS: ESEcolectivo Arquitectos

UBICACIÓN: Quito, Ecuador

ÁREA: 230 m2

AÑO: 2016

ARQUITECTOS: Rama Estudio

UBICACIÓN: San Jose, Ecuador

ÁREA: 350 m2

AÑO: 2019

32 VIVIENDA SUSTENTABLE PARA EMERGENCIAS ANTE DESASTRES
ALEMAN – BERMUDEZ - MINAYA

ZONIFICACIÓN CIRCULACIÓN Y DISTRIBUCIÓN

El terreno esta distribuido en tres secciones:

1. En la parte superior está conformado por la zona privada lo cual está separada por una puerta que se dirige a la zona social

• Proponemos una circulación interna que sirve como eje ordenador que conecta ambientes entre si. FLUJOGRAMA

2 En la parte del centro está conformado por la zona social, conectado por la zona de servicio.

3. Por ultimo, está en la parte posterior lo cual conforma la zona social / común

Ingreso Principal

Puertas

Conexión

33 VIVIENDA SUSTENTABLE PARA EMERGENCIAS ANTE DESASTRES ALEMAN – BERMUDEZ - MINAYA
FUNCIONALIDAD
Social Privado Servicio Circulación
D.PRINCIPAL SALA TERRAZA D.SECUNDARIO COCINALAVANDERIA BIOHUERTO JARDÍN HALL BAÑO COMEDOR BAÑO HALL
LEYENDA
1
2 3

SUSTENTO DE ZONA SÍSMICA

ZONA 1

ZONA 2

ZONA 3

ZONA 4

ZONA SÍSMICA 3 Y 4:

Las construcciones de barro se limitarán en un solo nivel.

ANCÓN

ATE

BARRANCO

BREÑA

CARABAYLLO CHACLACAYO

LIMA LIMA

CHORRILLOS

CIENEGUILLA

COMAS

EL AGUSTIO INDEPENDENCIA

JESÚS MARIA

LA MOLINA

4 TODOS LOS DISTRITOS

34 VIVIENDA SUSTENTABLE PARA EMERGENCIAS ANTE DESASTRES
-
ALEMAN
BERMUDEZ
MINAYA
REGIÓN (DPTO.) PROVINCIA DISTRITO ZONA SÍSMICA ÁMBITO

CÁLCULOS PARA EL DISEÑO EN TAPIAL

Espesor de muro = e

Ancho de arriostres = b

Altura libre de muros = H

Distancia entre arriostres verticales = L

Ancho de los vanos = a

DATOS GENERALES:

35 VIVIENDA SUSTENTABLE PARA EMERGENCIAS ANTE DESASTRES ALEMAN – BERMUDEZ - MINAYA �� �� ≤ 3 3�� ≤ �� ≤ 5�� �� + 1.25 ×�� ≤ 17.5�� �� ≤ 6�� �� ≤ 10�� a ≤ 1.66m 1.50m ≤ b ≤ 2.50m 5 + 1.25 (3) ≤ 17.5 (0.50) H ≤ 3.00m L ≤ 5.00m
Si ��=0.50��
e
a
L
b
H
a b e a a b L b b L H b
RECTO 1.55
= 0.50 m
= 1.40 m
= 4.50 m
= 1.55 m
= 3.00 m
CONTRAFUERTE
m

DEFINICIÓN DE ÁREAS Y PROPORCIONES DE ESPACIOS

ESPACIOS ÁREA PROPORCIÓN

SALA 20.25m² X

COCINA - LAVANDERIA 20.25m² X

COMEDOR 20.25m² X

SS.HH. COMPLETO 6.97m² 2X/3

DORMITORIO PRINCIPAL 20.25m² X

DORMITORIO SEGUNDARIO 20.25m² X

TERRAZA 20.25m² X

BIOHUERTO 20.25m² X

JARDÍN 6.97m² X/3

ZONA SÍSMICA 3 Y 4: Las construcciones de barro se limitarán en un solo nivel.

DATOS GENERALES:

36 VIVIENDA SUSTENTABLE PARA EMERGENCIAS ANTE DESASTRES ALEMAN – BERMUDEZ - MINAYA
e
a = 1.40 m L
4.50
b
1.55 m H
3.00 m CONTRAFUERTE RECTO 1.55 m VECINO VECINO 4.50 m 20.25m² 4.50 m 4.50 m 4.50 m 4.50 m 4.50 m 4.50 m 4.50 m 4.50 m 4.50 m 4.50 m 4.50 m 13.50 m 13.50 m 20.25m² 20.25m² 20.25m² 20.25m² 20.25m² 20.25m² 6.97m² 6.97m²
= 0.50 m
=
m
=
=

DESCRIPCIÓN DE MATERIALES Y SISTEMAS CONSTRUCTIVOS

TAPIAL

• Simplicidad en ejecución.

• Economía, consumo mínimo de energía.

• Aislamiento térmico y acústico.

Torta de barro

Teja Teja cumbrera

Caña chancada de bambú

• Resistencia y ligero con una alta capacidad de carga.

• Apta para toda clase de ambiente.

Viga cumbrera de madera rolliza

Correa de madera cachimbo

Tijerales de madera

Viga principal de madera

Muros de tapial

Contrafuertes de tapial

Tabiquería de madera

Piso de cemento pulido

Piso de porcelanato

• No demanda mucho mantenimiento.

• Factor ecológico.

• Facilidad de bajo costo.

• Rápido de construcción en la estructura

• Regula la temperatura del material de repello.

CIMIENTO Y SOBRECIMIENTO CORRIDO DE HORMIGON CICLOPEO

Cimientos

• Da una mayor resistencia y seguridad a la vivienda ante cualquier eventualidad natural.

37 VIVIENDA SUSTENTABLE PARA EMERGENCIAS ANTE DESASTRES ALEMAN – BERMUDEZ - MINAYA
MADERA
TEJA BARRO CAÑA DE BAMBU

DESCRIPCIÓN DE MATERIALES Y SISTEMAS CONSTRUCTIVOS

CERCHAS

Con techo de dos aguas y pendiente de inclinación de 15°

CUBIERTA

Por último, completar la colocación de teja

PAREDES TAPIAL

Proceso Constructivo

Relleno con tierra, con la ayuda de un pisón se ira comprimiendo la tierra hasta completar el tapial.

38 VIVIENDA SUSTENTABLE PARA EMERGENCIAS ANTE DESASTRES ALEMAN – BERMUDEZ - MINAYA
1
2
Armado del cajón de madera
1
Armado de Tijerales y Viguetas de madera.
2
Caña de Bambú sobre las viguetas.
3
Completando con Caña de bambú.
5 4
Completando con Caña de bambú.

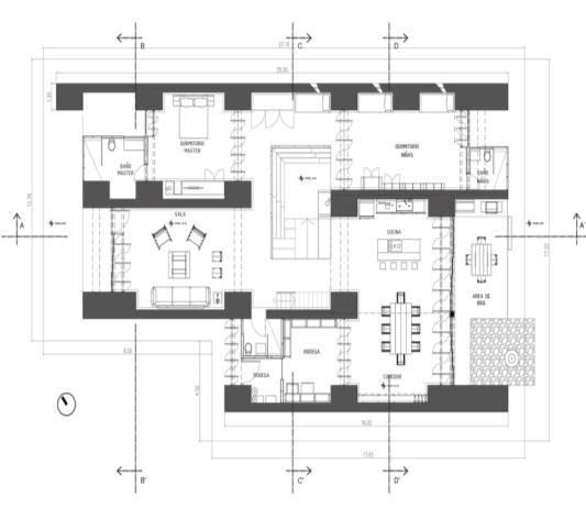
VIVIENDA “MITU WASI”

FACULTAD DE ARQUITECTURA Y DISEÑO

CÁTEDRA

ARQ. Carlos Cerna Sifuentes

ENTREGA PARCIAL UBICACIÓN Collique, Comas

ALUMNOS

Aleman Brenda Bermudez Gianella Minaya Janira

ORIENTACIÓN

ESCALA: 1/100

PLANO

Planta de primer nivel

FECHA

Enero 2023

PLANIMETRÍA 39 VIVIENDA SUSTENTABLE PARA EMERGENCIAS ANTE DESASTRES ALEMAN – BERMUDEZ - MINAYA
A-01

VIVIENDA “MITU WASI”

FACULTAD DE ARQUITECTURA Y DISEÑO

CÁTEDRA

ARQ. Carlos Cerna Sifuentes

ENTREGA PARCIAL UBICACIÓN Collique, Comas

ALUMNOS

Aleman Brenda Bermudez Gianella Minaya Janira

ORIENTACIÓN

ESCALA: 1/100

PLANO Planta de techos

FECHA

Enero 2023

40 VIVIENDA SUSTENTABLE PARA EMERGENCIAS ANTE DESASTRES ALEMAN – BERMUDEZ - MINAYA
PLANIMETRÍA
A-02

VIVIENDA “MITU WASI”

FACULTAD DE ARQUITECTURA Y DISEÑO

CÁTEDRA

ARQ. Carlos Cerna Sifuentes

ENTREGA PARCIAL UBICACIÓN Collique, Comas

ALUMNOS Aleman Brenda Bermudez Gianella Minaya Janira

ORIENTACIÓN

ESCALA: 1/100

PLANO Corte A-A

FECHA Enero 2023

41 VIVIENDA SUSTENTABLE PARA EMERGENCIAS ANTE DESASTRES ALEMAN – BERMUDEZ - MINAYA
PLANIMETRÍA
A-03

VIVIENDA “MITU WASI”

FACULTAD DE ARQUITECTURA Y DISEÑO

CÁTEDRA

ARQ. Carlos Cerna Sifuentes

ENTREGA PARCIAL UBICACIÓN Collique, Comas

ALUMNOS Aleman Brenda Bermudez Gianella Minaya Janira

ORIENTACIÓN

ESCALA: 1/100

PLANO CorteB-B

FECHA Enero 2023

42 VIVIENDA SUSTENTABLE PARA EMERGENCIAS ANTE DESASTRES ALEMAN – BERMUDEZ - MINAYA
PLANIMETRÍA
A-04

VIVIENDA “MITU WASI”

FACULTAD DE ARQUITECTURA Y DISEÑO

CÁTEDRA

ARQ. Carlos Cerna Sifuentes

ENTREGA PARCIAL UBICACIÓN Collique, Comas

ALUMNOS Aleman Brenda Bermudez Gianella Minaya Janira

ORIENTACIÓN

ESCALA: 1/100

PLANO Corte C-C

FECHA Enero 2023

PLANIMETRÍA 43 VIVIENDA SUSTENTABLE PARA EMERGENCIAS ANTE DESASTRES ALEMAN – BERMUDEZ - MINAYA
A-05

VIVIENDA “MITU WASI”

FACULTAD DE ARQUITECTURA Y DISEÑO

CÁTEDRA

ARQ. Carlos Cerna Sifuentes

ENTREGA PARCIAL UBICACIÓN Collique, Comas

ALUMNOS Aleman Brenda Bermudez Gianella Minaya Janira

ORIENTACIÓN

ESCALA: 1/100

PLANO Corte D-D

FECHA

Enero 2023

44 VIVIENDA SUSTENTABLE PARA EMERGENCIAS ANTE DESASTRES ALEMAN – BERMUDEZ - MINAYA
PLANIMETRÍA
A-06

VIVIENDA “MITU WASI”

FACULTAD DE ARQUITECTURA Y DISEÑO

CÁTEDRA

ARQ. Carlos Cerna Sifuentes

ENTREGA PARCIAL UBICACIÓN Collique, Comas

ALUMNOS Aleman Brenda Bermudez Gianella Minaya Janira

ORIENTACIÓN

ESCALA: 1/100

PLANO Elevación frontal FECHA

Enero 2023

PLANIMETRÍA 45 VIVIENDA SUSTENTABLE PARA EMERGENCIAS ANTE DESASTRES ALEMAN – BERMUDEZ - MINAYA
A-07

VIVIENDA “MITU WASI”

FACULTAD DE ARQUITECTURA Y DISEÑO

CÁTEDRA

ARQ. Carlos Cerna Sifuentes

ENTREGA PARCIAL UBICACIÓN Collique, Comas

ALUMNOS Aleman Brenda Bermudez Gianella Minaya Janira

ORIENTACIÓN

ESCALA: 1/100

PLANO Elevación posterior FECHA Enero 2023

46 VIVIENDA SUSTENTABLE PARA EMERGENCIAS ANTE DESASTRES ALEMAN – BERMUDEZ - MINAYA
PLANIMETRÍA
A-08

VIVIENDA “MITU WASI”

FACULTAD DE ARQUITECTURA Y DISEÑO

CÁTEDRA

ARQ. Carlos Cerna Sifuentes

ENTREGA PARCIAL UBICACIÓN Collique, Comas

ALUMNOS

Aleman Brenda Bermudez Gianella Minaya Janira

ORIENTACIÓN

ESCALA: 1/100

PLANO

Elevación lateral derecha

FECHA

Enero 2023

47 VIVIENDA SUSTENTABLE PARA EMERGENCIAS ANTE DESASTRES ALEMAN – BERMUDEZ - MINAYA
PLANIMETRÍA
A-09

VIVIENDA “MITU WASI”

FACULTAD DE ARQUITECTURA Y DISEÑO

CÁTEDRA

ARQ. Carlos Cerna Sifuentes

ENTREGA PARCIAL UBICACIÓN Collique, Comas

ALUMNOS

Aleman Brenda Bermudez Gianella Minaya Janira

ORIENTACIÓN

ESCALA: 1/100

PLANO

Elevación lateral izquierda

FECHA

Enero 2023

48 VIVIENDA SUSTENTABLE PARA EMERGENCIAS ANTE DESASTRES ALEMAN – BERMUDEZ - MINAYA
PLANIMETRÍA
A-10

PLANIMETRÍA

VIVIENDA “MITU WASI”

FACULTAD DE ARQUITECTURA Y DISEÑO

CÁTEDRA

ARQ. Carlos Cerna Sifuentes

ENTREGA PARCIAL UBICACIÓN Collique, Comas

ALUMNOS

Aleman Brenda Bermudez Gianella Minaya Janira

ORIENTACIÓN

ESCALA: 1/50

PLANO

Plano de detalle cocinalavandería

FECHA Enero 2023

49 VIVIENDA SUSTENTABLE PARA EMERGENCIAS ANTE DESASTRES ALEMAN – BERMUDEZ - MINAYA
A-11

RENDERS

50 VIVIENDA SUSTENTABLE PARA EMERGENCIAS ANTE DESASTRES
– BERMUDEZ
ALEMAN
- MINAYA

RENDERS

51 VIVIENDA SUSTENTABLE PARA EMERGENCIAS ANTE DESASTRES
ALEMAN
BERMUDEZ - MINAYA

RENDERS

52 VIVIENDA SUSTENTABLE PARA EMERGENCIAS ANTE DESASTRES
ALEMAN – BERMUDEZ - MINAYA

RENDERS

53 VIVIENDA SUSTENTABLE PARA EMERGENCIAS ANTE DESASTRES
ALEMAN – BERMUDEZ - MINAYA

RENDERS

54 VIVIENDA SUSTENTABLE PARA EMERGENCIAS ANTE DESASTRES
ALEMAN – BERMUDEZ - MINAYA

RENDERS

55 VIVIENDA SUSTENTABLE PARA EMERGENCIAS ANTE DESASTRES ALEMAN – BERMUDEZ -
MINAYA

RENDERS

56 VIVIENDA SUSTENTABLE PARA EMERGENCIAS ANTE DESASTRES ALEMAN – BERMUDEZ -
MINAYA
GRUPO Alemán Donaire, Brenda Bermudez Amaro, Gianella Minaya Peralta, Janira Abigail

Turn static files into dynamic content formats.

Create a flipbook
Issuu converts static files into: digital portfolios, online yearbooks, online catalogs, digital photo albums and more. Sign up and create your flipbook.