Architectural Portfolio_2024

Page 1

BACHELOR THESIS- Recoding Social

Mentor Inistitute (Acadamic Project)

Project Description

Recognizes, trains, certifies and licenses social institutions. It also trains, mediates, evaluates, evaluates. Manages, monitors, associations, etc.

Reviving and improving social organization (EDIR, MAHIBER, EQUB…). due to the cause of cultural Imperialism.

BACHELOR THESIS

Recoding Social Mentor Institute

Addis Ababa culture become fading and failing, that causes individualism. In Addis Ababa the culture of a vibrant cosmopolitan and culture of blending between the society become in adequate, and that creates lack of tolerance. Generally, the culture of Addis Ababa fails and causes intolerance between the society. addis Ababa has no culture and that is a culture Addis Ababa which means different type of society with different identity lives together and they develop unique culture, without compromising each other.

The Addis Ababa, unique culture is the attitude of being able to blend with different situation or environment which is called in local term “Arada”. The ability to blend with different circumstances, that helps to develop tolerance between the society. Creates strong relationship between the community as a major benefit, Unity, sharing, supporting and trusting as a quality.

The mass extruded from Site shape.

Concept Development

Yin and Yang

Inspired from Yin Yang philosophy, yin yang philosophy represents the duality of all things in the universe. The balance and harmony between yin and yang. Concept of Toleration is the allowing, permitting, or acceptance of an action, idea, object, or person which one dislikes or disagrees with.

Interlocking the masses and creating connection between the opposite things (mass) movement.

The Yin-Yang Philosophy states Two opposite things existed in a balanced nature. according to that it is the form expresses mass and void relation.

Accesseble green roof and it is connected with the ground / addapting the Nature.

Lowering the masses to show the dynamics two opposite things and moving in different direction.

-Extends to the Ground

-Tilted linesWW

1 4 5 6 2 3

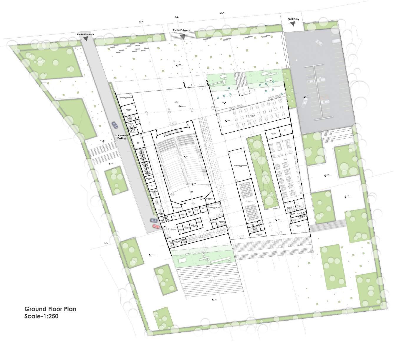
Arch. Design- Social Housing (Acadamic Project)

By regenerating the local grown way of architectural practice and, by extracting the applicable and positive impacts from globalization creating the new prototype and process of architectural pieces.

Real Time Projects

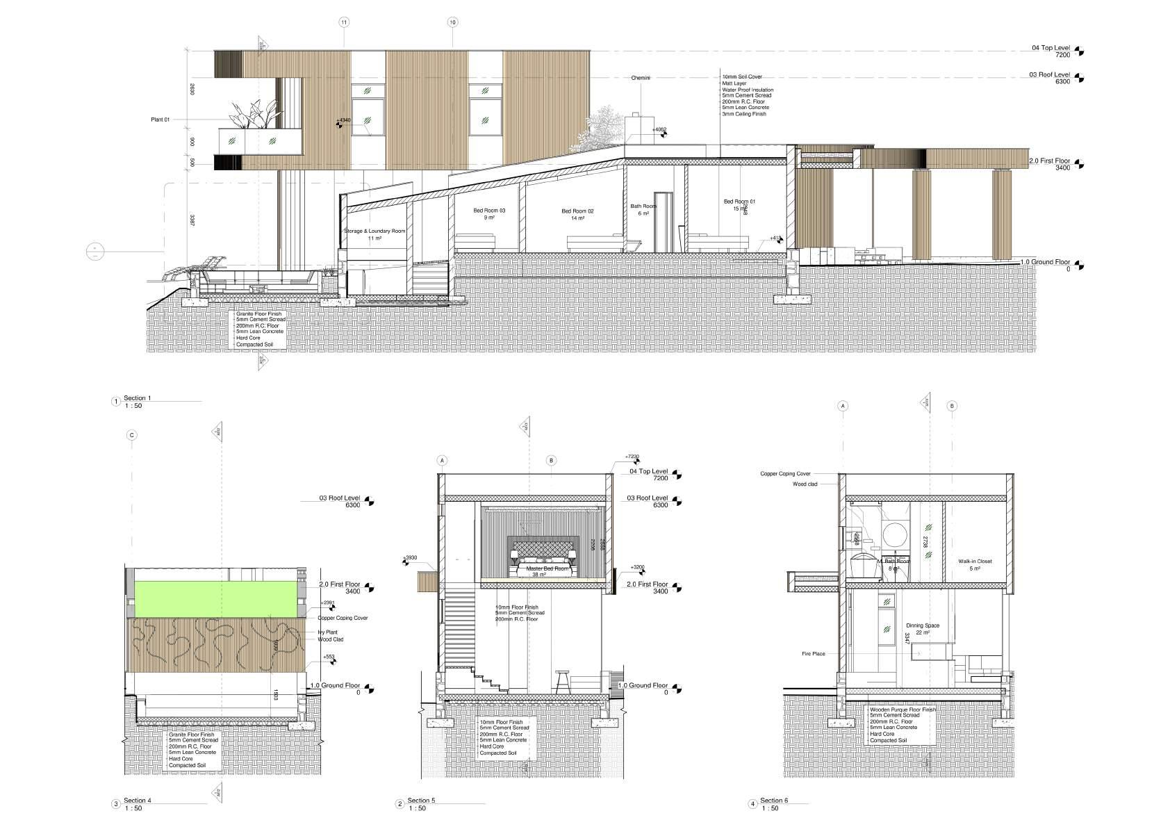
Arch. Design- Luxury Residential B.

by composing different shapes, creating simple and blended to the natural environment as well as adapting the contextual situation.

implementing monotonic architectural touchs, which is on material and also enahancing the natural elements towards into indoor spaces.

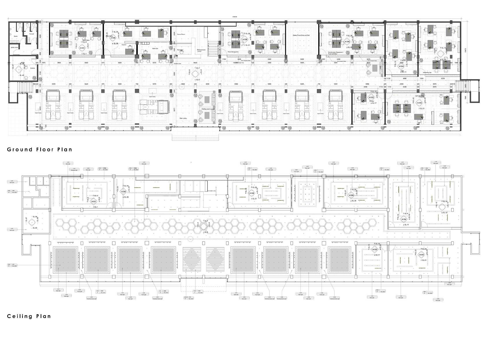
Interior Design- Truck Show Room

Simple and Elegant Design

We Have used Hexagonal patterns which derived is from grill of Volvo Trucks, this helps us to create a unique Character for the space.

the main Lobby this will help us to create inviting space as the customer enters the showroom, it offers a home’s comfort together with the showroom experience

Interior Design- Pharmacetucal

Turn static files into dynamic content formats.

Create a flipbook
Issuu converts static files into: digital portfolios, online yearbooks, online catalogs, digital photo albums and more. Sign up and create your flipbook.
Architectural Portfolio_2024 by Abel Teshome - Issuu