Graduation project

Page 1

指導老師 : 柯宏宗 學 生 : 張榕珈

既有建築空間翻新 大同居家產業園區

1.議題動機

序:緣起動機/企圖目標

研究範圍:基地選址

2.基地分析

目標site: FUTURE MOD/ EENERGY EFFICENCY/ENVIROMENTAL

3.理論依據

焦點議題:可逆建築

辦公大樓-居家/翻新效能

4.整體規劃

5.設計說明

圖面說明

CONCEPT/DIAGRAM/STORY

CONTENT
目標計畫
設計準則 空間架構
議題動機 議 題 動 機 基 地 分 析 理 論 依 據 設 計 說 明 整 體 規 劃
何謂既有 閒置空間 生成式AI
生態建築 循環建築 ESG 2050 NET ZERO
因應災害的建築
議 題 動 機 基 地 分 析 理 論 依 據 設 計 說 明 整 體 規 劃
影響
閒置空間定義
閒置空間再利用

佔全球溫室氣體 排放量的三

分之一,需對建築設計和施工

進行根本性改進

新建築/既有建築

國外辦公大樓不符合社會標準,

雖然還能用的建築,卻已經閒 置。

翻新工程產生的隱含碳排放量 僅為新建案的一半

非住宅建築的能源使用強度較

高(kWh/m 2)。因此,節能 減排的潛力更大。

何謂既有/閒置空間?

閒置空間定義

都市發展的不斷擴張, 隨著都市

機能的轉變及使用類型的改變

ESG

讓社會有評估標準,讓人們提高 標準。

2050 NET ZERO

達到經濟發展、企業責任、生態

平衡。決定翻新既有建築,而不

是整體拆除後重建

生成式AI影響

未來的生活因生成式AI的影響而

生態建築

循環建築

有所不同,慢慢轉向微型城市 達到生態平衡,延緩地球的傷害、 並修復累積的迫害

國外辦公大樓不符合社會標準,雖 然還能用的建築,卻已經閒置。

國外辦公大樓不符合社會標準,雖然還能用的建築,卻已經閒置。

疫情

生成式AI

「既有/閒置空間」是不符合

現代需求和標準的空間,並

現在、既有建築,必須滿足

現代條件之下,才能再被使

生態建築

循環建築

用,且因為大事件的發生導

致生活模式改變產生的閒置 空間。

不符合2050淨零排放目標 及

因為疫情後、ai發展後產業、生活

的改變。台灣目前住宅閒置空

7成以上。

• 為了達到2050淨零排碳,既有建

物所釋放的碳足跡,也需要解決。

• 疫情後、AI發展後生活模式改變。

ESG
2050 NET ZERO
ESG
型態
間數達到
20以下 23% 2073925棟 20-40 43% 3877339棟 40以上 34% 3065803棟 屋齡 20以下 20-40 40以上
目前是
指標的既有或老舊的建物、
定義 議 題 動 機 基 地 分 析 理 論 依 據 設 計 說 明 整 體 規 劃

既有/現有空間

Refurbishment

REVERSIBLE

BUILDING DESIGN

翻新

議題-題目

題目 對策

「既有建築空間再造-大同居家產業園區」

• 閒置空間再生規劃

• 生態、循環建築設計

• 2050淨零排放目標及ESG標準(延緩現狀

惡化)

• 生活模式改變產生的生活行為(疫情、ai)

• 修護環境所受到的傷害

• 辦公大樓、校園的轉型-產業園區、

技術學院、展示研發

• 生態、循環建築設計

• 2050淨零排放目標及ESG標準

• 生活模式改變產生的生活行為-未 來生活

• 修護環境所受到的傷害

基地分析 議 題 動 機 基 地 分 析 理 論 依 據 設 計 說 明 整 體 規 劃

ENVIRONMENTAL 環境分析 三個層面分析

BUILDING

ENERGY EFFICIENCY

能源效率

FUTURE MODE

未來模式

從三個層面實現脫碳/減碳

BUILDING

ENERGY EFFICIENCY

能源效率

1. 透過能源效率減少現有建築物的營運碳;

2. 使用再生能源來滿足剩餘的低能源需求,最好是在現場或附近場外(如有必要);

3. 減少新建築整個生命週期的隱含碳排放。

BUILDING ENERGY EFFICIENCY

能源效率

建築資材碳足跡中,主結構佔比最大,

單看主結構的生命週期也是最長的,

建築生命週期中日常使用最耗能,其中設備使用最高,在辦

公室類型建築中空調佔比最大

空調 設備 照明 建築耗能

原建築耗能狀況

BUILDING ENERGY EFFICIENCY

建築碳足跡主要來自主結構(47%)、設備(24%)及外

牆(13%)。從建築日常使用來看,碳排放量由多到少依

39%)、照明(25%)、設備(22%)等。

序為空調(
冷氣、燈、 設備,為 這棟建築 耗能源因
能源效率

科技推動的低接觸

時代來臨

增強人類工作 新的工作機會 教育和培訓需求 就業和勞工市場變化
自動化和機器人取代
全球化與本土化之爭 可持續發展投資加速 VUCA 休閒活動緩慢復甦 後新冠肺炎時代
5大轉變/AI-工作-未來發展
未來模式
: 世界
FUTURE MODE

遠程工作和靈活性

技能導向的工作 機器人和自動化 跨國合作 健康和福祉 工作與生活平衡 機器人和自動化 綠色工作
培育技職人員-專業空間 研發為主-研發模擬空間 新的形態-WFH 工作場所舒適-空間感受 工作時數變少+娛樂空間 新工作機會-新空間 綠色經濟 AI-工作模式 FUTURE
未來模式
空間多元、減少
MODE

空間不再單一使用

教室

現代設備

分散式工作

個人辦公室

「協作型」與「創新型」

靈活學習空間

文件存儲空間

FUTURE MODE

未來模式

休息區

傳統工作站

研發區

智能

工業區域

高彈性辦公的概念- 模組化設計

虛擬情境

停車空間

會議室

實作區

可持續 共享

餐廳

交流

住宅土地

混合辦公空間

圖書館

倉庫

室內空間與戶外有更多連接

個人儲物空間

自動化設備

固定設備和硬件

商業辦公室空間

多功能性

虛擬設備

:300%

建蔽
容積
第三種工業 用地
環境分析
中山區屋齡多為40年以上。 使用分區
: 55%
現況使用 校園公司 ENVIRONMENTAL

大同基地現況

室內體育場

樓高:1

樓地板面積:2116 ㎡

A2、A3

高中部

樓高:4

樓地板面積:11645 ㎡

基地面積:63697 ㎡

建築面積約 17000 ㎡

樓高:8

樓地板面積:21912㎡

樓地板面積約 60000 ㎡

總基地面積:113031.49

工廠

樓高:1-4

樓地板面積:8656 ㎡

樓高:7

樓地板面積:5691 ㎡

建蔽/容積: 55%/300%

尙志教育紀念館

樓高:1-4

樓地板面積:4818 ㎡

A1、A5

樓高:6-10

樓地板面積:19460 ㎡

基地面積:49334 ㎡

建築面積約 25000 ㎡

樓地板面積約 110000 ㎡

志生樓

樓高:3

樓地板面積:1261 ㎡

新設工

樓高:6-14

樓地板面積:34698 ㎡

工廠

樓高:1-4

樓地板面積:12964 ㎡

北設工

樓高:18-20

樓地板面積:25878 ㎡

設工

樓高:14

樓地板面積:21546 ㎡

土木興建 十大建設 家電 重電 資訊整合 智慧科技 綠色能源 大同公司
ENVIRONMENTAL 環境分析
-歷史

大同公司-產業主軸

重電

先端/家電

資訊整合

綠色能源

智慧科技

綠色能源

智慧電網

ENVIRONMENTAL 環境分析

智慧監控

智慧馬達

先端/家電

智慧家電

太陽能

目前產業轉型成智慧家電+綠色能源

理論依據 議 題 動 機 基 地 分 析 理 論 依 據 設 計 說 明 整 體 規 劃

都更? -

翻新現有建築才能減少碳排

2040目標是50%既有建築更新為零碳建築

翻新現有建築才能減少碳排

空間釋放-轉為碳權- 經濟平衡

REVERSIBLE BUILDINGS-可逆建築

可逆建築是指具有可變化和可重組性的建築物,其

設計和構造使其能夠適應不同的需求和使用情境。

空間可逆性:調整空間 結構可逆性:重組/升級結構 材料可逆性:分離元素/材料-模擬
整體規劃 議 題 動 機 基 地 分 析 理 論 依 據 設 計 說 明 整 體 規 劃

大同公司

大同高中/大學

大部分建築不符合未來生活模式、生態循環,有些材質為鐵皮,預計規劃將 部分完全拆除、部分改建。

現況
A. B. C. D.
F. G. H.
K. F. G. H. I. J. K. A. B. C. D. E.
E.
I. J.
鐵皮
綠能分布+智慧電網-森林碳匯 電子工業 智慧科技 先端/家電 重電 資訊整合 綠色能源
智慧家電+綠色能源為基地產業主軸,結合自然碳匯,規劃成 大同居家產業園區
建築計畫

基地面積:63697 ㎡

建築面積約 17000 ㎡

樓地板面積約 60000 ㎡

總基地面積:113031.49

建蔽/容積: 55%/300%

基地面積:49334 ㎡

建築面積約 25000 ㎡

樓地板面積約 110000 ㎡

建築計畫

建築計畫-規劃

智慧生態-居家產業

將過於老舊,無法

延續建築生命的建

築拆除,規劃成生

態公園,並將剩餘

建築改造,符合未

來模式﹑成為智慧

生態-居家產業園

區,

拆除

保留

改建

古蹟

基地規劃

拆除老舊鐵皮,規劃成生態公園

綠色能源研究空間,配合生態公園,將

不分拆除

規劃成停車空間,綠色交通的起

先端、家電研究空間

綜合辦公空間,拆除多餘的空間,生態

循環空間

技職教學空間

廠房改建展示中心。模擬居家空間

古蹟-展覽

古蹟-展覽

校 園 -

開放式工作空間 200 10 5400

私人辦公室 64 20

討論室 32 10

休息社交區 500 4

虛擬設備空間 32 6

電子實驗室 1000 8

數據中心 1000 8

培訓和教育設施 100 4

物聯網測試室 300 8

模擬家居/能源空間 1000 4

設備展示區 100 4

原型製作區 200 4

開放式空間 1000 4 42700

使用者體驗研究室 300 4

實驗室和測試設施 300 4

智慧電網控制中心 400 4

智慧電網通信中心 400 4

太陽能發電站 2000 4

電力儲能空間 300 4

智慧電表和傳感器測試室 250 4

模擬工作場所 400 2 4196

研究室 150 5

實作空間 200 5

多功能空間 150 5

討論室 32 3

開放式空間 300 2

設備空間 100 2

樓高:7

樓地板面積:5691 ㎡

樓高:11

樓地板面積:12100 ㎡

北設工

樓高:18-20

樓地板面積:16000 ㎡

新設工

樓高:14

樓地板面積:25000 ㎡

設工

樓高:14

樓地板面積:10000 ㎡

空間性質
數量 總面積 總面積 主
間 混 合
單元 尺寸
辦 公 室
研 發 中 心
技 職

居家模擬環境 10000 1

綠色能源技術區(如何永續地利

用再生能源) 10000 1

永續示範區域 10000 1

互動教育區域(如何提高能源效 率) 10000 1

智能控制中心 5000 1

不斷更新區域展示

控制中心

運動空間

電網空間

娛樂空間

綠色交通

停車塔

類 別
單元 尺寸 數量 總面積 總面積 主 空 間 展 示 中 心
空間性質
45000
能 源 生 態 公 園 綠能空間 40000
工廠 樓高
樓地板面積:24000 ㎡ 志生樓 樓高:3 樓地板面積:1261 ㎡
:1-4
設計說明 議 題 動 機 基 地 分 析 理 論 依 據 設 計 說 明 整 體 規 劃

1.綠色交通起點-停車塔

2.

1.
3.
2.
3.研發辦公空間 展示空間
Site plan
綠地
綠色串聯 車流動線 人行動線 綠色動線 圓 山 民 權
1. 民族東路 圓 山 承 德 路 三 段 民 權 2. 車流動線 人行動線 綠色動線 綠地分析 入口分析 動線分析 綠色交通分析
Site plan-
/入口/交通
車流動線 人行動線 綠色動線

大同百年企業意義

未來生活

自然環境

「每棟建築物都應該像有機體。」

透過預鑄、模組化、可拆解的設計,就能在建築物生命週期結束或用途改變時,讓建築有替換部件、維修、增加部件的空間, 大幅度地保有建材的價值,成為下一棟建築的材料。

(能源)循環/ 中和設計
Concept

Concept

碳(能源)循環/中和設計

(拆解成各個部分)

• 外殼

• 設備

• 自然碳匯

大同企業

(產業的結合)

• 企業轉型

• 產業延伸

(AI

)

• 辦公室模式

• 生活習慣

• 居家

• 百年意義 自然 (環境的考量) • 環境 • 風

• 光

未來生活
的發展
Concept

(光源)

(外殼)

外掛設備 挖空
居家生態盒 單元組合
Diagram 保留結構
聚碳酸酯
屋頂設計 外殼/設備設計 量體設計 交流/居家 研發辦公空間
員工 送貨人員 訪客
SITE PLAN

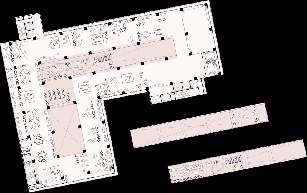
2F PLAN 3F-6F PLAN

14F
7F-13F PLAN
PLAN
細部

外殼設計

外殼/設備設計

交流/居家

展示空間

SITE PLAN

外部人員 無障礙動線
一般動線+無障礙

外殼設計

機械停車設備設計

綠色交通
綠色交通起點
-停車塔
一般動線+無障礙 SITE PLAN

綠色交通起點-停車塔

綠色交通停車空間

模 擬 / 研 發 辦 公 空 間

模擬-照度

某一地點的照度達到至少28英尺燭光的比例

典型辦公室和教室將需要 10 至 20 英尺燭光

模擬-日光照射

DF房間中某一點的自然光與室外日光之間的百分比關係

模擬-日光照射

( sDA ):「日光照射」的常用建築面積的百分比

透過大同公司這塊基地,呈現未來生活、產業轉型、城市,在密集的都市當中成為都 市自行循環的綠肺;新的辦公模式加入居家元素,讓空間聚集人們,舒適的生活。

日託中心-提高能源效率

建築師: heilergeiger architekten und stadtplaner BDA

區域: 1123平方米

年: 2019年

老房子被保留,並被包裹在一個新的、半透明的外 殼下。

由可回收聚碳酸酯製成的新外殼是光和能量

的收集器。它允許現有的牆壁保持不隔熱並作為歷 史層。

在寒冷的季節,通過外牆獲得太陽能用於建築物的熱平衡。夏季,庫存的儲 存量和雨水蓄水池支持房屋的自然冷卻。能量的自然產生和循環。

能源概念是空間、光線、舊的和使用的相互作用。這使得在建築和空間上節

省和獲得能量成為可能——替代傳統的隔熱材料。通過減少和再利用建築材 料和“灰色能源”以及將二氧化碳排放量削減至 5 公斤/平方米年,2050 年 的氣候目標現已實現。

考慮按照可持續發展的原則進行建設和修復,將4,400平方米的辦公室改造成學生宿

舍,也進行了總體的體積調整。

Student Residence in Paris

充足、安全和經濟適用住房

Architects: NZI Architectes

Area: 3600 m²

Year: 2021

評圖回饋

“閒置空間”是否合適

現代科技、疫情後-新的生活型態是什麼

如何再淨零碳排建築、新科技-既有建築如何改造

綠色經濟/循環概念進入到基地內

建築物如何隨著時空改變,提供新的可能性

土地開發量-碳匯去解釋

如何結合舊廠房空間

透過這塊地-都市串聯-中山

故事組成(輕重、邏輯、聚焦、強調)

城市生活上脈絡連結-旁邊連結

透過大同公司這塊基地,呈現未來生活、產業、城市,在密集的都市當中成為都市 的綠肺,一個能讓建築自行生態循環,邁向修復地球生態。

Turn static files into dynamic content formats.

Create a flipbook
Issuu converts static files into: digital portfolios, online yearbooks, online catalogs, digital photo albums and more. Sign up and create your flipbook.
Graduation project by abearis8778 - Issuu