大四上作品集

Page 1

建築設計作品集 中國文化大學建築系 姓名:熊澤仁 ShiungTzaRen 學號:A8257356

1.佛教建築設計

2.大龍洞社會住宅設計

3.湖田國小設計

4.新創園區設計

5.基隆港設計

目錄

佛教建築設計

下午5點建築陰影 上午9點建築陰影 太陽、風向 車道動線 車流 大殿 藏書閣、閱 展覽空間 私人區域、 法師住所 分區配置 基地分析
配置圖
FIRST FLOOR SECOND FLOOR THIRD FLOOR 平面圖 1.管控空間 2.展區 3.梯間 4.辦公空間 5.大殿 1.展區 2.推廣空間 3.辦公空間 4.食堂 5.保儲藏空 1.藏書閣 2.念佛堂 3.宿舍 4.私人花園 1.2.
5. 4. 1. 2. 3. 4. 5. 1. 2. 3. 4. SOUTH FACADE WEST FACADE EAST FACADE
立面圖
NORTH FACADE
屋頂花園 大殿
透視圖
傳播教室 天井 藏書閣 展區
大龍洞社會住宅設計

Pourompon

1.至清道光、同治年間,此地因生員、舉人中試人數較多,鄉民視士子如龍, 才開始有「大龍峒」之別名,至今仍用此別名。

2.另說則是附近有風水如龍的大龍山(今日的圓山),故稱「大龍峒」。

人朝集點 風、光
植栽 人流 道路方向

1024平方公尺 容積率: 9986平方公尺

量體過程 一樓退縮開放 建蔽率:
概念發展 容積400% 建蔽率50% 法規樓高限制 綠意延伸

配置圖

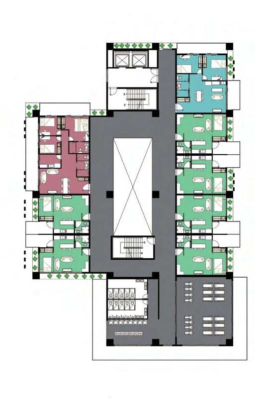
Triple room Double room Single room 1.客廳 2.廁所 3.廚房 4.寢室 1. 1. 1. 2. 2. 2. 3. 3. 3. 2. 4.4. 4. 4. 4. 4. 1.客廳 2.廁所 3.廚房 4.寢室 1.客廳 2.廁所 3.廚房 4.寢室
B1 FLOOR FIRST FLOOR
SECOND FLOOR 1.托幼管制區 2.托幼陽台 3.教職人員用餐區 4.大、中、小教室 5.托幼娛樂區 6.教職人員辦公室 7.教職人員會議室
1. 2. 3. 4. 4. 4. 5. 2. 6. 6. 6.
1.社區公共陽台
7.
THIRD FLOOR Sale:1/100
EAST FACADE
1.
FOURTH SIXTH EIGHTH TEN FLOOR NORTH FACADE SOUTH FACADE
1.公共洗衣室 2.住戶健身房
FIFTH FLOOR
1. 2.

NINE FLOOR1.公共室外陽台

WEST FACADE
1. 1. SEVENTH 1.公共室外陽台
三人房 雙人房 單人房 屋頂運用 隔光 隔音 退縮三人房 室外廣場
B~B’SECTION 剖面圖、透視圖

湖田國小設計

陽明山湖田實驗小學 永續生態歷史學園

概念

實現了能量向上上升的效果,同時通過在連續垂直線的 兩側平衡它們來將形式固定在一起。幾何形狀和圓圈部 分結合在一個懸浮在豐富的綠松石和綠色領域的結構中 。部分圓圈巧妙地放在尖底座上。圓圈的另一個碎片沿 著其垂直直徑滑動,超出第一種形式的周長,以穿透其 上方的空間。當前畫布右上角的線性設計與中央圖案的 垂直推力相呼應。

自然 教育 藝術 田園 自然 生活

空間泡泡圖

綠帶 節點 人流 方向 穿透
概念發展

概念發展

國小教室 行政辦公 特色教學 行政、飯堂 幼兒園
植栽層 介質層 過濾層 防水、排水層 屋頂結構 細部購造 配置圖
斜撐式圓頂系統
FIRST FLOOR 6 6 6 10 10 10 11 11 11 11 12 12 12 12 12 14 13 13 10 10 11 11 11 P 12 12 12 SECOND FLOOR 1.總務處 1.教務處、2.學務處、 3.輔導室、4.保健室 5.廊道、6.機房、7.儲物室 8.食堂 9.幼稚園 10.國小教室 11.溫室 12.展廊 13.廁所 14.停車場 2.廊道、3.機房、 4.自然教室 5.音樂教室 6.校長室 7.圖書室 8.幼稚園教室 9.廁所 10.室外教學空間 11.環林步道 1 2 4 3 7 6 6 6 5 5 8 9 1 2 2 2 2 3 3 4 5 6 7 8 9 9 9 12.國小教室 平面圖
立面圖
SOUTH FACADE NORTH FACADE WEST FACADE EAST FACADE
探索自然 中央廣場 自然教室
透視圖
音樂教室
遊樂草地 櫻花廊道

新創園區設計

華光特區新創聚落 青年孵化器園區

鏈結在地 鏈結產業 鏈結國際 1895 18991900191019141945 1960 1963 1970 1975 1998 1979 200620082011201320122018 軸線 圍牆 過度帶 人行 分區 廣場 發展 過程 配置 40% 行政 工作 休閒 展示會議 輔導辦公 工作空間 工作空間 休閒餐飲
金 山 南 路 二 段 金華路 愛國東路
FIRST FLOOR 1.展場 2.媒合會議室 3.諮詢空間4.輔導空間 5.多功能 6.會客 7.開放空間8.個人辦公 9.交誼廳10.行動辦公 11.餐飲 1. 2. 2. 2. 2. 4. 4. 5. 6. 5. 5. 5. 2. 6. 1. 1. 1. 1. 7. 8. 7. 8. 1. 11. 11. 10. 11. 11. 11. 11. 11. 10. 9. 10. 9. DN UP UP UP UP UP UP
3. 5x. ROOF FLOOR 1.小型辦公室 2.機器間 3.行動辦公 4.輔導辦公室 5.行政辦公室 6. 諮詢空間 SECOND FLOOR
NORTH FACADE
FACADE WEST FACADE
SOUTH
EAST FACADE
剖面 A~A’
植栽層 介質層 過濾層 防水、排水層 屋頂結構 屋頂花園地板 雙層玻璃 A A’ B B’
SECTION S:1/100 B~B’SECTION
S:1/100
中廊 展覽場 與公園連接 屋頂綠化 辦公空間 平台運用 中央廣場

基隆港再生

周遭景點 2017 2018 2019 2020 2021 文藝 26152351848504222306219801651069736 休閒 951159158316814894011230804840797 951159 1583168 1489401 1230804 840797 2615235 1848504 2223062 1980165 1069736 0 500000 1000000 1500000 2000000 2500000 3000000 3500000 4000000 休閒 文藝 2017 2018 2019 2020 2021 郵輪 954,5361,064,1471,091,360259,806137,610 954,536 1,064,147 1,091,360 259,806 137,610 0 200,000 400,000 600,000 800,000 1,000,000 1,200,000 郵輪 文藝館 旅館 人流分析數據圖 基地分析 公車站 視覺方向 港區 商業 建物使用分區 周遭綠帶 風向及太陽

Aerial view

商業 教育 休息 教室 餐廳 藝廊 市集 旅館大廳 餐飲 出租空間 旅館
floor
floor
floor Fourth floor 5、6、7th floor Garret 娛樂空間 住宿空間 休閒空間 展示空間 教學空間 市集空間
Ground
Second
Third

Ground floor

Basement

Second floor

旅館大廳 市集 餐館 辦公室 倉庫
1. 2. 3. 4. 5. 1. 2. 3. 3. 2. 4. 5.
展廊 文藝教室 餐館 1. 2. 3.
1. 3. 2.
換氣室 機房 儲藏室 1. 2. 3.
1.
1. 2. 1. 3.
出借空間 展廊 休閒平台 辦公室
1. 2. 3. 4.
1. 2.
floor
3. 4. Third
休閒平台 Fourth floor
1.
旅館房間 娛樂空間 健身區
1.
1. 2.
floor Garret
2. 5、6、7th
A A~A’ SECTION
Elevation Elevation Elevation Elevation

The end

學校:中國文化大學建築及都市設計學系 姓名:熊澤仁

學號:A8257356 ShiungTzaRen

Turn static files into dynamic content formats.

Create a flipbook
Issuu converts static files into: digital portfolios, online yearbooks, online catalogs, digital photo albums and more. Sign up and create your flipbook.