Ambiente Hospitalar 16

Page 1

RUÍDO EM UNIDADES DE INTERNAÇÃO HOSPITALAR: fatores relacionados a sua produção e mitigação A ARQUITETURA MULTISSENSORIAL COMO RECURSO À ACESSIBILIDADE NOS CENTROS ESPECIALIZADOS EM REABILITAÇÃO: o caso das deficiências auditiva e visual

Prezados associados,

Iniciamos nossa gestão à frente da ABDEH em outubro de 2020 definindo três pilares: Gestão do Conhecimento, Conexão e Valorização Pro fissional. Foi grande o desafio que nos espera va, um tempo de rápidas mudanças e neces sidade de constante readaptação a um novo mundo pós-pandemia.

Entendemos, ao longo de nossa gestão, que precisávamos levar a mensagem do que real mente acreditamos e que, durante a pandemia da Covid-19, se tornou mais evidente e necessá rio para todos: o conceito de que a arquitetura para a saúde deve estar em todos os espaços, sejam eles institucionais, comerciais, residen

ciais ou, mesmo, nas ruas de nossas cidades, e que estes devem ser não somente saudáveis, mas também sustentáveis e solidários.

As decisões que tivemos que tomar ao longo destes dois anos foram difíceis, mas sempre com muito critério, para não colocar em risco a saúde de nossos associados e parceiros. De cidimos pelo adiamento do IX CBDEH, em 2021, e focamos na continuação dos eventos online, eventualmente liberando o retorno dos even tos presenciais apenas em maio de 2022, quan do definimos critérios para mitigar o risco dos participantes. Tudo conversado e decidido jun to com a diretoria da entidade. Em que pese um cenário extremamente restritivo, tivemos a oportunidade de desenvolver diversas ações de grande sucesso, nestes dois anos de gestão. Aproveito este espaço para destacar algumas destas ações.

Primeiramente, estabelecemos a realização de eventos digitais em três formatos: ENCONTRO – evento com aproximadamente uma hora e meia de transmissão, organizados pelas Regio nais, com palestra de um convidado especial ou convidados apresentando temas diversos e multidisciplinares referentes aos espaços de saúde; PAPO ABDEH – entrevistas coordenadas pelas Regionais com convidados diversos, para que se transformem em podcasts, a serem dis ponibilizados no site da ABDEH; e DEU MATCH –apresentação de especificações e produtos das empresas associadas, desenvolvidos exclusiva mente para nossos associados.

Neste contexto de isolamento social, orga nizamos também nosso segundo Seminário ABDEH Digital , evento 100% online, que no vamente obteve grande sucesso na qualidade do conteúdo e na participação.

PALAVRA DA PRESIDENTE

Com a volta dos eventos presenciais, marcamos novamente presença na Feira HOSPITALAR 2022, com nosso já tradicional HUB ABDEH, espaço de encontros e conexões, propiciando interação entre colegas das diversas disciplinas profissionais envolvidas na infraestrutura hospitalar.

Outra participação importante da AB DEH, realizada durante nossa gestão, foi na Rede Temática Latino-Ameri cana da International Federation of Healthcare Engineering (IFHE), que contou com grupos temáticos coorde nados pelos professores Fabio Biten court e Elza Costeira, com participa ção de nossos associados e de outras associações da América Latina – uma oportunidade de troca de informa ções muito especial.

Internacionalmente, organizamos, em conjunto com a FIOCRUZ, o Seminário Digital de Arquitetura para a Saúde, evento do UIA /PHG (União Interna cional de Arquitetos/Public Health Group), como parte do 27º Congres so Mundial de Arquitetura Rio 2021. A participação da ABDEH, neste evento, envolveu a declaração de 2022 como o Ano da Arquitetura para Saúde, ato simbólico importante para incluir o tema nas discussões da arquitetura e urbanismo atuais.

Participamos, ainda, da reunião do Conselho Mundial da IFHE, em Toron to, do Congresso da Associação Cos tarriquense de Arquitetura Hospitalar (AACOIH), em São José, e do Congres so Latinoamericano de Arquitetura e Engenharia Hospitalar, organizado pela AADAIH, em Rosário, Argentina, sempre nos fazendo representar por membros da diretoria nacional.

Demos, também, continuidade na par ticipação dos nossos associados no Grupo de Trabalho do Programa Nacio nal de Qualidade do Ar Interior (PNQAI), em conjunto com diversas instituições que contribuem para o tema, além de participação na Consulta Pública sobre a NBR 16983, que trata do controle de calor e fumaça em incêndios.

Buscando alavancar as ações internas da ABDEH, lançamos o programa Trei namento para Líderes, com palestras e conversas exclusivas para diretores e coordenadores das diretorias regio nais, com temas que buscaram de senvolver habilidades para os futuros líderes da ABDEH. O lançamento do Manual das Diretorias Regionais foi outra ação que buscou uniformizar os procedimentos das lideranças dos estados. Este manual foi organizado, discutido e aprovado pela Diretoria Nacional e pelos Diretores e Coorde nadores Regionais, e seguirá como um documento colaborativo e em permanente evolução, possibilitando a constante inovação e melhorias ao longo das próximas gestões.

O desenvolvimento de um novo site da ABDEH foi algo que executamos para melhorar nossa comunicação e aproximação com os associados. Por meio do site, devemos nos conectar melhor, nos informar melhor e, tam bém, nos relacionar e trocar experiên cias. O site inclui novas seções, como a Gestão de Associados, A Busca de Profissionais e Empresas e o Portal do Conhecimento. A intenção é termos um espaço colaborativo, aberto à in corporação de novas funcionalidades. Encerramos nossa gestão com a pu blicação desta nova edição da revista

Ambiente Hospitalar, outro destaque dentre as atividades técnico-científi cas da ABDEH. Temos muito orgulho desta publicação, que traz sempre artigos de alta qualidade. O final de nossa gestão será marcado, princi palmente, pela realização da nona edição do mais importante evento so bre ambientes de saúde no Brasil, o IX Congresso Brasileiro para o Desen volvimento do Edifício Hospitalar – IX CBDEH Recife 2022.

Encerro aproveitando para agrade cer a todos os associados, ao Conse lho Consultivo e a todos os parceiros e apoiadores da ABDEH, por terem confiado a mim a gestão durante es tes dois anos. Foi uma grande hon ra poder contribuir com a ABDEH na qualidade de Presidente. Também agradeço à minha equipe, um time es petacular, composto por nossos Vice -Presidentes, membros dos Grupos de Trabalho, Diretores, Coordenadores Regionais e todos os demais colegas, que contribuíram de alguma forma com nossa gestão na construção de conhecimento e na conexão necessá ria para se promover a excelência no desenvolvimento dos verdadeiros Es paços de Saúde!

Sigo acreditando que JUNTOS SOMOS MAIS FORTES e me mantenho sempre à disposição para continuar contri buindo com nossa querida ABDEH.

Desejo muito sucesso à nova Presi dente, a Arquiteta Ana Paula Perez e sua equipe! Tenho certeza que farão uma gestão de muito sucesso!!

.S.U.M.Á.R.I.O.

O futuro dos hospitais: o que aprendemos com a pandemia

Elza Maria Alves Costeira

Empresária de sucesso e associada muito atuante da ABDEH desde 2010, Ana foi Diretora Regional, em São Paulo, entre 2011 e 2014, quando teve a importante missão de organizar o V CBDEH, evento de grande sucesso. Em 2020, foi escolhida como presidente-futura, para assumir a gestão 2022-2024.

Ronald de Góes: o arquiteto da saúde e da democracia

Erick Rodrigo da Silva Vicente
Jéssica Andrade Lima de Góes
0813 05

Técnica

NBR 7256/2021

Equipe Regional

CREA-PE

Palestra Técnica

impactos na infraestrutura dos EAS

Neuroarquitetura aplicada a ambientes

36 A arquitetura multissensorial como recurso à acessibilidade nos centros especializados em reabilitação: o caso das deficiências auditiva e visual  Mirela Freitas Linhares  Jaqueline de Lima Pires 19  Joaquim Augusto Gomes de Souza Meira  Gustavo da Silva Vieira de Melo Ruído em unidades de internação hospitalar: fatores relacionados a sua produção e mitigação 19  Rosana Santana dos Reis Diretrizes para projetos de ambientes domésticos para pessoas com doença de Parkinson 61 49 ABDEH-SP: 1. Palestra Do concreto ao invisível: as marcas indeléveis da sindemia no Brasil | 2. Estudo de Caso – Hospital Regional Litoral Norte SP | 3. Palestra Arte de Contar Histórias | 4. Visita ao Hospital Beneficência Portuguesa, SP | 5. Visita ao Centro de Ensino e Pesquisa Albert Einstein | ABDEH-DF: 6. Visita Hospital Santa Marta | 7. Palestra do Engenheiro Sandro Dolghi | ABDEH-PE: 8. Palestra Paisagem e Saúde | 9. Visita Clínica Florence | 10. Visita Bioxxi | 11. Mesa com o
| 12. Visita Hospital Vila Nova Star | ABDEH-BA: 13. Reunião
| 14.
SOMASUS | 15. Palestra
sobre a
e os
| ABDEH-MS: 16. Encontro Digital ABDEH –
de saúde | AB DEH-SC: 17. Visita Associação Renal Vida| ABDEH-RS: 18. Palestra Técnica com a arquiteta Tatiana Guimarães | 19. Palestra Técnica com o engenheiro Mário Alexandre Ferreira sobre NBR 7256/2021 | 20. Palestra Técnica Senior Living, com a arquiteta Amanda Kreling | 21. Visita Técnica ao Hospital Life Day Plus | 22. Visita Técnica a Casa dos Raros | EVENTOS EM PARCERIA: 23. Webinar ABRAVA –Apresentação da nova NBR 7256/2021 | 24. ABDEH digital 2021 – Seminário Online | 25. Hospitalar 2022 | 26. Fórum de lançamento do UIA 2022 | 27. Semana do meio ambiente | 28. IFHE 2022 | 29. 6tº. Congreso de Infraestructura Hospitalaria da Costa Rica (ACOAIHCR 2022) |30. 32º. Congreso Latinoamericano de Arquitectura e Ingeniería Hospitalaria (AADAIH 2022)

O futuro dos hospitais: o que aprendemos com a pandemia

Elza Maria Alves Costeira, Arquiteta, Doutora

Assistimos,

nos últimos três anos, aos novos desafios enfrentados pelos profissionais de arquitetura da saúde, envidando esforços para adequar espaços existentes ou projetar novos hospitais para fazer face aos desafios urgentes que a epidemia do SARS-Cov-2 colocou sob sua responsabilidade.

A pesquisa sobre a atualização de espaços de atenção à saúde vem se tornando chave para a consolidação de prédios flexíveis, preparados para a incorporação de no vas tecnologias e conectados com o meio ambiente. O Hospital do Futuro tem que estar preparado para que sua arquitetura seja capaz de atender ao rápido desenvolvi mento de novos caminhos da ciência e tecnologia médi ca e, também, às emergências de catástrofes, pandemias e desastres naturais, que parecem estar mais presentes, por conta do aquecimento global.

Nesse sentido, a pesquisa sobre novos recursos da in dústria da construção civil, com destaque para a pré-fabri cação e a modulação de elementos construtivos, vem se tornando peça-chave para a consolidação de prédios mais adequados às mudanças de uso e ao equilíbrio ambiental, gerando ganhos para usuários, gestores e projetistas.

Os hospitais poderão oferecer um novo escopo de ser viços, incorporando novidades em tratamentos e atendi mento conectado a novas pesquisas científicas, como o genoma humano e células-tronco, a interconectividade entre unidades internacionais de pesquisa, terapias me nos invasivas e mais seguras e acolhimento mais eficien te e personalizado para os pacientes.

Os projetos hospitalares deverão incluir aspectos de coordenação modular para tornar seus edifícios flexíveis e adaptáveis às novas descobertas tecnológicas, sem in fluir em sua expectativa de funcionamento. A atual pan demia, vivenciada por todos, sobrecarregou os sistemas de saúde e exigiu que leitos intensivos fossem disponi bilizados em maior número, adaptando previsões ante riores da epidemiologia aos percentuais de adoecimen to real da população. Os parâmetros usuais de número de leitos de cuidados intensivos, e de alguns recursos energéticos, foram colocados em cheque, exigindo de modo urgente a adaptação de espaços para tratamento de saúde em geral.

Ao se retomar as condições usuais de funcionamento, com demandas já normalizadas e parâmetros usualmen te empregados para cuidados de saúde, os ambientes

AMBIENTE hospitalar | ano 12 • 2º semestre • 2022 | 5 

críticos e semicríticos buscam readaptar suas condições às necessidades semelhantes às da pré-pandemia, evi denciando a necessidade da flexibilidade na concepção de seus espaços. Neste sentido, a coordenação modular, a flexibilidade de fluxos entre ambientes e a previsão de pontos de gases e de força deverão ser redimensiona dos, de modo a atender a adaptabilidade na demanda de seu funcionamento.

O estudo acurado de fluxos dos diversos ambientes dos hospitais exige dos projetistas uma atenção redo brada, para que possam implantar quartos, unidades de terapia intensiva, isolamentos e ambientes de apoio lo gístico mais eficientes, atendendo às mudanças exigidas por eventos adversos a serem enfrentados. Do mesmo modo, os ambientes de isolamento devem ser projeta dos com a máxima possibilidade de dinâmica espacial, acesso facilitado através de circulações adequadamente isoladas, disponibilidade de antecâmaras e ambientes com fluxo unidirecional de ventilação, que possibilitem flexibilidade de uso, caso haja aumento ou diminuição de agravos que demandem a separação dos pacientes.

As premissas de sustentabilidade deverão ser implan tadas obrigatoriamente, com a aplicação de sistemas de geração de energia alternativa, adequação do esgota mento de efluentes, previsão do uso de envoltórias eco nomizadoras de energia, uso de captação de águas da chuva para reuso e telhados verdes.

A adoção de prédios inteligentes, utilizando a ilumi nação e a ventilação naturais, nas áreas onde for pos sível, sem prejuízo à criticidade de alguns espaços, será importante para a implantação de hospitais inseridos idealmente em seu entorno. A retomada da ventilação natural para ambientes não críticos – como já preco nizava Florence Nightingale – poderá representar uma saudável solução projetual, enfatizando os benefícios da diluição de bactérias e vírus quando em ambientes plenamente ventilados e, se possível, fartamente ilumi nados pela luz solar.

Em se tratando dos tempos da nova revolução tecno lógica, cada vez mais as discussões de casos médicos necessitarão de conexão com os serviços dos grandes

centros de tratamento e de pesquisas de todo o mundo. A ciência médica, a robótica, as cirurgias e tratamentos que disponibilizam técnicas como realidade virtual, exa mes pouco invasivos, imagenologia de ponta e a possi bilidade da discussão de casos à distância, devem ter garantido o acesso à internet das coisas e sua disponibi lidade facilitada nos ambientes de diagnóstico e terapia, conectando centros médicos de excelência, onde quer que se encontrem.

As pesquisas com células tronco, as impressões 3D de órgãos e peças de estudo, que poderão dispor do ma nejo de bancos de tecidos e de células tronco, pesqui sas com diagnóstico à distância a partir de wearables e acessórios vestíveis, vão ter possibilitada a sua interface com interlocutores distantes. Essas questões vão exigir construções hospitalares totalmente conectadas à rede mundial, dispondo de cabeamento e equipamento ade quados para atender com excelência o acompanhamen to de diagnósticos e procedimentos.

O Hospital do Futuro vai repensar todos os conceitos de humanização e acolhimento, aprimorando a experi ência do paciente e o conforto das equipes de trabalho. A presença da natureza, do acompanhante, do apoio personalizado da equipe, de distrações positivas e de acesso, ainda que apenas visual, ao entorno, usufruin do a paisagem e o ciclo da luz solar, são elementos que apressam a cura e amenizam a permanência nos hos pitais. A biofilia adequadamente abordada, a busca de elementos naturais – água, vegetação, paisagem – são importantes parceiros da cura.

Um novo hospital terá que ser repensado, para que seja capaz de acolher pacientes e equipes de trabalho com mais consciência. A união da alta tecnologia, per sonalização no trato com pacientes, conforto para as equipes e precisão no diagnóstico e terapia utilizadas na busca da cura, pode se transformar na fisionomia ideal do hospital do futuro.

A concepção de hospitais compatíveis com essas premissas será capaz de estender a todos – pacientes e equipes de assistência – a sua adequação aos novos tempos, compatibilizando a tecnologia médica com um

 | opinião  6 | AMBIENTE hospitalar | ano 12 • 2º semestre • 2022

tratamento mais humanizado e responsivo às suas espe cificidades. Esta nova visão será capaz de proporcionar a construção de um mundo mais justo e equilibrado para todos que, ao buscarem seus serviços, participem de re lações mais humanas e sustentáveis para com o meio ambiente e a qualidade de vida.

PARA LER MAIS SOBRE O ASSUNTO

AADAIH. Asociación Argentina de Arquitectura e Ingenieria Hospitalaria. Anuário 2020, edición especial digital. ISSN- 2344- 9993. Buenos Aires, Argentina, 2020.

ALMEIDA, Fernando. Os desafios da sustentabilidade: uma ruptura urgente. Rio de Janeiro: Elsevier, 2007.

ANTUNES, Thais. Cinco Exemplos de Sustentabilidade Hospitalar na Prática. Helioprint. Disponível em: https://helioprint.com.br/blog/sustentabilidadehospitalar/ Acesso em: jul, 2022

GEHL, Jan. Cidades para Pessoas. 3 ª Ed. São Paulo: Ed Perspectiva, 2015.

OXYMED. Hospital Sustentável. Disponível em: https:// oxymed.com.br/oxymed-hospital-sustentavel/ / Acesso em: jul, 2022

SAUNDERS, Lucy. Healthy Cities. Disponível em: https://londonlivingstreets.files.wordpress. com/2018/04/20180312-lucy-saunders-healthy-streetscheck-feb-2018.pdf . Acesso em: jul, 2022

SPECK, Jeff. Cidade Caminhável. São Paulo: Ed Perspectiva, 2016.

UDVARI, Stefan Cunha. A História e suas Epidemias: a convivência do homem com os micro-organismos. Rio de Janeiro: Editora SENAC, 2003.

WESTPHAL, Márcia Faria. Municípios Saudáveis Aspectos Conceituais. Revista Saúde e Sociedade, v. 6, n. 2, p. 11. Associação Paulista de Saúde Pública FSP/USP, São Paulo, ago/dez, 1997.

ABDEH

Contribuindo para a contínua evolução brasileira no campo da Edificação de saúde Associe-se! www.abdeh.org.br

opinião |  AMBIENTE hospitalar | ano 12 • 2º semestre • 2022 | 7 

Empresária

de sucesso e associada muito atuante da ABDEH desde 2010, Ana foi Diretora Regional, em São Paulo, entre 2011 e 2014, quando, dentre outras atividades e eventos, teve a importante missão de organizar o V Congresso Brasileiro para o Desenvolvimento do Edifício Hospitalar, evento de grande sucesso, que contou com mais de 400 participantes inscritos. Em 2014, passou a integrar a diretoria nacional da ABDEH, ocupando o cargo de VicePresidente de Gestão Administrativa na gestão de 2014 a 2017. Tendo sua dedicação e competência reconhecida, em 2020, Ana Paula foi escolhida como presidentefutura, para assumir a gestão 2022-2024.

Ana é paulistana “da gema”, nascida nos arredores da Avenida Paulista, no ano de 1970. Cursou arquitetura na universidade Mackenzie, se graduando em 1993. Seu projeto de graduação foi um Hospital do Câncer, que teve como orientador o Pro fessor Arquiteto Sami Bussab. Iniciou sua carreira já no segundo ano da faculdade, tendo a oportunidade de trabalhar em dois grandes Hospitais: o Hospital do Servi dor Público Estadual de SP (IAMSPE) e o Hospital AC Camargo. Casada, desde 2002, com o também Arquiteto Paulo Letaif, Ana é mãe de duas meninas, a Ana Beatriz, que tem 17 anos e está finalizando o ensino médio, e que deve seguir os passos da mãe na arquitetura, e a Ana Rita, de 14 anos.

 8 | AMBIENTE hospitalar | ano 12 • 2º semestre • 2022

Acredito que o edifício de saúde é um objeto mutante. Ele vai se mo dificando com o decorrer do tempo, incorporando novas tecnologias e acompanhando os avanços nas formas de tratamento.”

AMBIENTE hospitalar | ano 12 • 2º semestre • 2022 | 9 

Em outubro de 2022, a Arquiteta Ana Paula Naffah Perez tomará pos se como nova presidente da ABDEH para a gestão 2022-2024. Nesta en trevista, procuramos conhecer um pouco mais sobre a pessoa e reapre sentar aos leitores da Ambiente Hos pitalar a profissional que conduzirá a ABDEH nos próximos dois anos.

AH: Ana, conte para nós um pouco de sua trajetória profissional. O que lhe le vou a trabalhar com ambientes de saú de e quais foram as pessoas que mais influenciaram sua caminhada até aqui?

Trabalhar com saúde, para mim, foi uma escolha, não um acaso. No ensi no médio eu pensava em cursar me dicina, porém, durante o terceiro ano do colegial, tivemos uma atividade na escola em que levavam os estudantes para passar um dia vivenciando a pro fissão que escolheram. Foi nesta oca sião que descobri que minha vocação, afinal, não era atuar na medicina, e acabei escolhendo a arquitetura.

O desejo de atuar na área da saúde não mudou, então, enquanto estava na faculdade, fui correr atrás de uma oportunidade em um escritório de arquitetura que atuasse nessa área. Consegui um estágio na Leitner Ar quitetura, que era um escritório es pecializado neste tema. Passei dois anos neste escritório, primeiro como estagiária e depois atuei por um ano já contratada como arquiteta. Depois desta experiência, recebi um convi

te do Arquiteto Augusto Guelli, que trabalhava na empresa Bross Con sultoria, que era uma das grandes referências em Arquitetura para a Saúde no Brasil. Aceitei prontamen te o convite e acabei trabalhando na Bross por mais de uma década. Lá tive oportunidade de passar por todos os cargos, começando como arquiteta júnior e chegando a coor denadora de projetos. Acredito que foi este período que me moldou pro fissionalmente para o que sou hoje. Em 1997, passei a atuar em escritório próprio, a C+A, que fundei em parce ria com a arquiteta Ana Carolina Ma chado de Campos. Em 2005, passei a me dedicar integralmente a esta empresa, onde realizamos, princi palmente, projetos de arquitetura e design de interiores para hospitais, centros médicos e centros clínicos, de alta, média e baixa complexidade. Sobre os profissionais que me in fluenciaram, acredito que todos os arquitetos com quem tive a oportuni dade de trabalhar me influenciaram de alguma forma. Aprendi, nestes 29 anos de profissão, a sempre procurar identificar o melhor e o pior de cada experiência profissional e, com es tes aprendizados, planejar a minha própria carreira. Tendo dito isto, sem dúvida o profissional que mais me influenciou positivamente foi o ar quiteto João Carlos Bross, com quem aprendi não só a projetar espaços de saúde, mas também a gerir um negó cio, o que foi importantíssimo para mim, pois os arquitetos geralmente não aprendem a conduzir seus es critórios como empresas. Este, sem dúvida, foi um dos mais importantes

ensinamentos que eu levei da minha experiência na Bross Consultoria. Foi o próprio Bross o responsável por me inserir na ABDEH, ressaltando sempre a importância de estar co nectada aos colegas que participam desta maravilhosa rede de pessoas e empresas que se dedicam à evolu ção dos ambientes de saúde.

AH: Na sua trajetória na área da arquitetura de saúde, quais aspectos da prática profissional você conside ra que mais mudaram desde quando começou?

Acho que as relações entre arquite tos e clientes mudaram muito, nes tes 29 anos que tenho de prática profissional, e mudou também a vi são que tínhamos do nosso próprio negócio. Eu fui formada na escola para abrir um atelier, não uma em presa. Acho que a formação dos alu nos de arquitetura para tratar o pró prio escritório como uma empresa é muito falha. Senti muita falta desta formação na escola de arquitetura, mas, como disse anteriormente, tive a sorte de aprender sobre gestão nos escritórios por onde passei, ou seja, aprendi sobre isso na prática e acho mesmo que poderíamos ajudar mais os alunos nesse sentido.

Sinto também que, nestas quase três décadas de atuação, a arquitetu ra, de um modo geral, passou a ser uma profissão mais respeitada. No início, via projetos arquitetônicos sendo feitos por engenheiros. Hoje quase não se vê mais isso. Tem-se uma maior compreensão do papel dos arquitetos e dos engenheiros, atuando como parceiros, não como concorrentes.

 10 | AMBIENTE hospitalar | ano 12 • 2º semestre • 2022  | perfil

A própria evolução dos edifícios de saúde também forçou a uma mu dança de postura dos profissionais. Acredito que o edifício de saúde é um objeto mutante. Ele vai se mo dificando com o decorrer do tempo, incorporando novas tecnologias e acompanhando os avanços nas for mas de tratamento. Sem dúvida, os edifícios de saúde mudaram muito sua configuração neste tempo.

Nós fazíamos, quando iniciei minha carreira, edifícios tecnicamente cor retos, mas extremamente esparta nos quanto à qualidade ambiental. Quase não se pensava em ambienta ção, sem importar se era para a rede pública ou a privada. O conceito de humanização, por exemplo, mudou muito a forma de fazer edifícios de saúde, que ganharam em qualida de e eficácia. Hoje, participamos de uma arquitetura que ajuda a promo ver a cura e o bem-estar de todos os usuários. Isso, sem dúvida, nos modificou também como profissio nais. Além da humanização, outros conceitos e práticas, que surgiram nos últimos anos, como o Design Ba seado em Evidências e o Healing En viroment, mudaram o jeito como nós olhávamos para o edifício de saúde e isso modificou o ato de projetar.

AH: Qual conselhos você daria, para os arquitetos que estão começando agora, para atuarem com sucesso nesta área?

Primeiramente, procurem se es pecializar. Não acredito muito em profissionais que atuam em muitos temas, principalmente os mais com plexos, como é o da saúde. Depois, busquem obter a melhor e mais

ampla experiência de prática pro fissional possível em escritórios que atuem na área. Em terceiro lugar, se forem optar por uma carreira indi vidual, em escritório próprio, que procurem aprender a administrar o negócio, observando e aprendendo, inclusive, quais situações evitar.

AH: Em breve, você estará assumindo a presidência da ABDEH. Em sua opinião, qual o papel da associação frente aos desafios futuros para os profissionais que atuam com am bientes de saúde?

Eu acredito que o principal papel da ABDEH é o de disseminar as melho res práticas e divulgar informação de qualidade sobre os edifícios de saúde. Por meio de cursos, palestras e encontros, devemos sempre procu rar conectar os diferentes profissio nais que atuam no edifício de saúde, com um olhar multidisciplinar. Estas conexões proporcionam momentos de troca de conhecimentos que são de extrema importância para quem projeta. O Brasil é muito grande e este papel de disseminar em todos os estados do país a melhor infor mação técnica, os novos conceitos e novas abordagens sobre o edifício de saúde é a razão de ser da ABDEH. Isso sem detrimento de outras ati vidades igualmente importantes, como o relacionamento institucio nal e a atuação junto aos órgãos que determinam as normas e leis que re gem os edifícios de saúde.

Os últimos dois anos nos mostraram o quanto as conexões são importan tes na vida profissional e pessoal. Conhecemos e desenvolvemos, du rante a pandemia de Covid-19, diver

sas formas novas de criar e manter estas conexões. Agora, devemos bus car mantê-las e, se possível, ampliá -las, de forma a atingirmos o maior número de pessoas interessadas.

AH: Qual a sua expectativa e seu maior desejo para os seus dois anos de gestão?

Meu maior desejo é entregar uma AB DEH ainda mais forte e presente no cenário da saúde no Brasil. Assumir a presidência da ABDEH, para mim, é verdadeiramente uma grande honra. Eu recebo e abraço esta oportunida de com a maior alegria e quero tra balhar intensamente nestes próximos dois anos para tornar a nossa insti tuição cada vez mais importante e re conhecida, tanto no cenário nacional como no internacional.

AH: Algo mais que queira destacar para os leitores da Ambiente Hospitalar?

Quero muito estar sempre perto dos nossos associados, tanto dos que são associados como pessoa física ou como empresas, e ter uma gestão marcada por incentivar sempre a conexão e estar aberta a novas ide ias e oportunidades. Para isso, espe ro contar com todos os associados e parceiros, para, juntos, construirmos uma ABDEH cada vez mais sólida, reconhecida e representativa. Por fim, aproveito este espaço para agra decer a todos que confiaram em mim e me permitiram assumir este papel tão importante. Me orgulho muito de ter sido escolhida para assumir a presidência da ABDEH e assumo aqui o compromisso de me empenhar e dar o meu melhor à nossa querida instituição.

AMBIENTE hospitalar | ano 12 • 2º semestre • 2022 | 11  perfil | 

O ARQUITETO DA SAÚDE E DA DEMOCRACIA

Erick Rodrigo da Silva Vicente Jéssica Andrade Lima de Góes

Hoje, há uma considerável oferta de cursos de Arquitetura de Estabelecimentos Assistenciais de Saúde (EAS), em formatos distintos: presencial, online ou híbrido[1]. Porém, nem sempre foi assim. No início deste novo século, poucas instituições ofereciam capacitação profissional nessa área. A UFBA, Universidade Federal da Bahia, e a extinta FUPAM/USP, Fundação para a Pesquisa Ambiental da Universidade de São Paulo, eram duas das que organizavam cursos de especialização em arquitetura de hospitais e clínicas de forma regular.

A escassez de formação continuada, somada aos poucos livros sobre o assunto[2], dificultava o acesso ao conhecimento por grande parte dos profissionais interessados. Foi nesse contexto que o arquiteto e urbanista potiguar Ronald Lima de Góes decidiu via

jar para diversas cidades brasileiras, levando seus conhecimentos para lugares onde a oferta era pou ca e o acesso, restrito.

Ronald foi arquiteto, urbanista e um apaixonado pela área da saúde. Nasceu em Mossoró, município do in terior do Rio Grande do Norte. Iniciou seus estudos em Recife, onde foi admitido no curso de Arquitetura da Universidade Federal de Pernambuco (UFPE). Por se envolver, durante a ditadura militar, com o Diretó rio Acadêmico da faculdade, foi perseguido e teve que deixar o estado. Mudou-se para o Rio de Janeiro e, im pedido de estudar na UFRJ (ainda em decorrência de seu histórico de militância estudantil), ingressou na primeira turma do curso de Arquitetura e Urbanismo da Universidade Santa Úrsula, graduando-se em 1973.

Durante o curso, estagiou no escritório do arquiteto Edison Musa, participando de importantes projetos.

AMBIENTE hospitalar | ano 12 • 2º semestre • 2022 | 13 
Ronald Lima de Góes | Acervo Ronald de Góes.

Seu interesse por hospitais surgiu enquanto ainda morava no estado fluminense. Antes de retornar ao Nordeste, se especializou em Siste mas de Saúde Pública pela Secreta ria de Saúde do Estado da Guanaba ra. Em seu retorno ao Rio Grande do Norte, dedicou-se à docência e à vida pública. Anos mais tarde, intensificou sua produção na área hospitalar.

Em 1974, se estabeleceu em Natal e, já no ano seguinte, passou a lecionar a cadeira de Projeto no curso de Ar quitetura da Universidade Federal do Rio Grande do Norte (UFRN). Inclusi ve, foi o fundador e o primeiro chefe do Departamento de Arquitetura da mesma universidade (de 1977 a 1979).

Concomitantemente à carreira de professor, fundou um escritório de projetos e consultorias, com sede em duas cidades: Natal e Mossoró.

Mesmo depois de ter sido persegui do pelos militares, não abandonou o ativismo nem a luta pela democracia, atuando em diversas instituições. Ajudou na organização do Instituto de Arquitetos do Brasil – Departa mento do Rio Grande do Norte (IAB -RN) –, foi representante da UFRN no Conselho Municipal de Planejamento Urbano (CONPLAN), de 1977 a 1979, e conselheiro do CREA-RN, de 1977 a 1979. Durante e após a redemocrati zação, foi secretário de Transportes Urbanos da Prefeitura Municipal de

Natal, de 1986 a 1988, e ocupou o car go de diretor de Recursos Naturais Renováveis, do Instituto de Terras do Rio Grande do Norte, de 1991 a 1992. Retornou ao conselho do CREA-RN entre 1995 e 1997 e foi candidato ao Governo do Estado pelo Partido De mocrático Trabalhista (PDT) em 2002.

Foi durante sua atuação como se cretário e diretor público que conhe ceu e trabalhou com o arquiteto ca rioca João da Gama Filgueiras Lima, o Lelé. Ronald de Góes promoveu a implantação de uma fábrica de pré -moldados em argamassa armada para a produção de equipamentos e mobiliários urbanos em Natal, sob a orientação de Lelé[3]. A fábrica não

 14 | AMBIENTE hospitalar | ano 12 • 2º semestre • 2022
Figura 1 – Medical Center, Mossoró, 1995. | Fonte: Acervo Ronald de Góes.
 | homenagem

operou por muito tempo, pois sofreu represálias políticas e foi desmontada pela seguinte gestão governamental. A partir desta experiência, se tornou grande admirador de Lelé, de suas so luções construtivas e, principalmente, da qualidade do espaço construído e das estratégias em relação aos siste mas passivos de conforto ambiental.

As atividades docentes e a atua ção no setor público fizeram com que Ronald se tornasse um pesquisador

dedicado, principalmente em assun tos relacionados ao desenvolvimento urbano e ao projeto do edifício hos pitalar. Durante o mestrado, defendi do em 1983 pela Escola de Engenha ria de São Carlos, da Universidade de São Paulo (EESC-USP), pesquisou o crescimento urbano a partir dos conjuntos habitacionais e, duran te o doutorado, defendido em 2012 pela UFRN, estudou o planejamento urbano em função dos impactos es

truturais causados em decorrência do processo de envelhecimento da sociedade no Brasil.

Em seu escritório, Ronald desenvol veu projetos residenciais, escolares, industriais, comerciais e, principal mente, hospitalares. A sua produção na área da saúde se intensificou na década de 1990, quando desenvol veu trabalhos de médio e de grande porte. Projetou mais de uma dezena de EAS, no Brasil e no exterior. Entre

AMBIENTE hospitalar | ano 12 • 2º semestre • 2022 | 15 
Figura 2 – Clínica de Cirurgia Plástica Dr. Marcos Almeida, Natal, 1998. | Fonte: Acervo Ronald de Góes.
homenagem | 

estes projetos, destacam-se o Medi cal Center (Mossoró, 1995) (Figura 1), a Clínica de Cirurgia Plástica Dr. Marcos Almeida (atual Maternidade Municipal Dr. Araken Irerê Pinto, Natal, 1998) (Fi gura 2), a modernização e ampliação do Hospital Pediátrico Maria Alice Fer nandes (Natal, 2002), a modernização e ampliação do Centro de Medicina Fí sica e Reabilitação de Luanda (Angola, 2011) (Figura 3) e o novo bloco para o Hospital Naval de Natal (Natal, 2012).

Sua arquitetura, além de ter uma impecável organização funcional, ba seada na eficiência dos processos médico-hospitalares e administrati vos, é marcada pela preocupação com os sistemas passivos de conforto am biental. Entre as principais estratégias, estão as torres de ventilação, que fa vorecem as trocas de ar por diferença de pressão, e os “peitoris ventilantes”, uma solução inspirada nos “rodapés ventilantes” de Lelé, em que o peito ril em balcão possuía uma abertura

no piso para favorecer as trocas de ar por diferença de pressão em edifícios com múltiplos pavimentos.

O destaque que seus projetos ga nhavam no setor hospitalar local e sua ampla experiência como professor fi zeram com que a PINI o convidasse, em 2002, para ministrar cursos livres sobre arquitetura de hospitais em diversos estados brasileiros[4]. Para auxiliar no ensino, Ronald criou uma apostila composta por textos e desenhos, que reuniam grande parte do conhecimen to adquirido até então. A apostila era entregue em um fichário, com travas de abrir, pois ele acreditava que os es tudantes deveriam somar outros con teúdos ao fichário após as aulas, uma vez que a arquitetura de hospitais é complexa e o tempo do curso não era o bastante para apresentar tudo o que era necessário.

O conteúdo dessa apostila foi cres cendo entre o intervalo de um curso e outro, entre uma viagem e outra,

até que, em 2004, transformou-se no livro Manual prático de arquitetura hospitalar, publicado pela editora Edgard Blüncher. Alguns anos mais tarde, em 2007, completou esta obra com o Manual prático de arquitetura para clínicas e ambulatórios. Ambos se tornaram livros extremamente im portantes, que contribuíram, e con tinuam a contribuir, na formação de estudantes e profissionais da área.

Além destes volumes, Ronald pu blicou também Pousadas e hotéis: manual prático para planejamento e projeto, em 2015. Partindo da mesma metodologia das publicações ante riores, Ronald discorre, neste livro, sobre aspectos históricos e faz uma série de orientações projetuais sobre o tema, o que demonstra a preocu pação em oferecer, ao mesmo tempo, conteúdo teórico e prático aos seus alunos e leitores (Figura 4).

Além da PINI, Ronald lecionou na AEA Educação Continuada e foi coor

 16 | AMBIENTE hospitalar | ano 12 • 2º semestre • 2022
Figura 3 – Centro de Medicina Física e Reabilitação de Luanda, 2011. | Fonte: Acervo Ronald de Góes.
 | homenagem

denador do curso de Especialização em Arquitetura Hospitalar do Institu to Brasileiro de Educação Continua da da Universidade Paulista (INBEC/ UNIP), em São Paulo.

Faleceu em 8 de outubro de 2019, em Natal, no Rio Grande do Norte. Ronald de Góes deixou um imenso legado para a área do planejamento físico-funcional de hospitais. Foi um dos primeiros arquitetos brasileiros a organizar e sistematizar o ensino da arquitetura de EAS, de forma a tornar o assunto mais interessante e fácil de aprender, tanto que seus livros são amplamente utilizados nas faculda des e nos centros de ensino de arqui tetura e urbanismo, tanto na gradua ção quanto na pós-graduação. Foi aos quatro cantos do país para comparti lhar seus conhecimentos, sempre com muita disposição e generosidade. Teve papel importante na política do Rio Grande do Norte, sempre defendendo a democracia e a igualdade social.

É inegável que Ronald teve signifi cativa influência no surgimento dos atuais cursos de especialização. Ele continua a contribuir, por meio de seus livros, escritos e ensinamentos, para a formação dos profissionais que se dedicam a criar edifícios as sistenciais mais eficientes, seguros e saudáveis. A Associação Brasileira para o Desenvolvimento do Edifício Hospitalar externa seu eterno reco nhecimento e gratidão ao amigo e profissional.

início do século XX, quando o professor é que precisava se deslocar para levar a informação às cidades com pouca oferta na área da educação continuada.

[2] Na virada do século, existiam poucos livros sobre o planejamento físico-fun cional de hospitais. Para conhecer mais sobre o assunto, era necessário recorrer à literatura estrangeira, principalmente a estadunidense, às normas técnicas do Ministério da Saúde e à valiosa contribui ção do Instituto de Pesquisas Hospitala res (IPH), fundado pelo arquiteto Jarbas Karman.

NOTAS

[1] As modalidades híbrida e online têm contribuído para a disseminação do conhecimento na área da arquitetura de EAS, pois os estudantes não necessitam realizar longos deslocamentos, diminuin do, assim, os custos para a participação nos cursos. Condição inexistente no

[3] Para conhecer mais sobre as fábricas de equipamentos urbanos em argamassa armada estruturadas por Lelé, consulte o capítulo “As fábricas de João Filguei ras Lima, 1978-2014”, p. 63, do livro Lelé: diálogos com Neutra e Prouvé, de autoria do Prof. Dr. André Marques.

[4] A PINI Cursos era uma entidade man tida pela Editora PINI, especializada nas áreas de construção civil, engenharia e arquitetura.

AMBIENTE hospitalar | ano 12 • 2º semestre • 2022 | 17 
Figura 4 – Livros publicados por Ronald de Góes. | Fonte: Biblioteca IPH.
homenagem | 

Ruído em unidades de internação hospitalar: fatores relacionados a sua produção e mitigação

Joaquim Augusto Gomes de Souza Meira Arquiteto, Mestre

Gustavo da Silva Vieira de Melo Físico, Doutor

O foco do presente trabalho concentra-se no estudo da natureza do ruído em unidades de internação localiza das no ambiente hospitalar e sua percepção pelos usu ários: pacientes, familiares, e equipe de assistência. O objetivo principal da pesquisa foi identificar os fatores relacionados à produção (geração e mitigação) do ruído ambiental interno em internações hospitalares (fontes, ambiente construído, atividades assistenciais, ativida des diversas). Para tal, foi necessário o entendimento das circunstâncias nas quais o ruído é produzido nesses ambientes, assim como os fatores diretamente e indire tamente ligados à sua produção e propagação. Para atin gir o objetivo proposto, foi realizada uma revisão biblio gráfica abrangente sobre o tema e executado um estudo de caso em uma unidade de internação. O estudo de caso foi desenvolvido em uma unidade de internação de pacientes de clínica médica e clínica cirúrgica, localizada em hospital terciário de alta complexidade no município

de Belém. Concluiu-se que os níveis observados são sig nificativamente superiores aos limites normativos e que o comportamento do ruído no interior dos quartos do estudo de caso possui correlação, positiva ou negativa, incipiente, com as variáveis independentes sustentadas pela revisão bibliográfica, tornando inviável o estabele cimento de relação de causalidade, em função do eleva do nível de ruído de fundo proveniente dos sistemas de climatização, ventilação e exaustão. As conclusões aler tam para o fato de que há necessidade de um correto gerenciamento do ruído ambiental no interior da unida de de internação, para que os ocupantes do espaço não estejam sujeitos aos seus efeitos deletérios à saúde.

Palavras-chave: Ruído Ambiental, Unidades de Interna ção, Desenho Baseado em Evidências.

AMBIENTE hospitalar | ano 12 • 2º semestre • 2022 | 19 

Noise in hospital inpatient units: factors related to its production and mitigation

The focus of the present work is on the study of the nature of noise in inpatient units located in the hospital environment and its subjective perception by users: patients, family mem bers and care team. The main objective of the research was to identify the factors related to the production (generation and mitigation) of internal environmental noise in hospital admis sions (sources, built environment, care activities, various activ ities). For this, it was necessary to understand the circumstanc es in which noise is produced in these environments, as well as the factors directly and indirectly linked to its production and propagation. To achieve the proposed objective, a com prehensive bibliographic review was carried out on the subject and a case study was carried out in an inpatient unit. The case study was developed in an inpatient unit of medical clinic and surgical clinic patients, located in a tertiary hospital of high

complexity in the city of Belém. It was concluded that the ob served levels are significantly higher than the normative limits and that the noise behavior inside the rooms of the case study has a positive or negative correlation, incipient with the inde pendent variables supported by the literature review, making it impossible to establish a relationship of causality, due to the high level of background noise from the air conditioning, ven tilation and exhaust systems. The conclusions point to the fact that there is a need for a correct management of environmen tal noise inside the hospitalization unit, so that the occupants of the space are not subject to its deleterious health effects.

O desenvolvimento e o crescimento das cidades tra zem consigo, além de todos os benefícios advindos do progresso, problemas que geralmente são perceptíveis com grande facilidade pela população, como é o caso da maior geração de resíduos sólidos, da poluição atmosfé rica e da poluição visual.

Nesse contexto, surge a poluição sonora permeando todo o ambiente urbano. Esta poluição, que se caracte riza pela produção desordenada de ruídos perceptíveis ao ouvido humano de maneira indesejável e agressiva, está presente em todos os momentos e, em cada um desses, traz efeitos adversos. Pelo fato de caracterizar -se por uma energia invisível, os ruídos são comumente relegados a um segundo plano e, consequentemente, negligenciados (CHOINIERE, 2010).

A poluição sonora é definida pelos ruídos ambientais que causam distração negativa, física e mentalmente

danosos aos humanos, cuja identificação e atribuição de seus efeitos deletérios remonta há 2.600 anos, quando os gregos proibiram atividades ruidosas dentro dos limi tes de suas cidades (CORDOVA et al., 2013).No ambiente urbano das cidades dos dias de hoje, essa contaminação tem como principal fonte causadora o tráfego veicular, indispensável em uma sociedade que depende forte mente da matriz automotora como meio de transporte principal (LACERDA, 2005).

Os efeitos negativos desta forma de poluição na vida do ser humano contemporâneo desenvolvem-se física, psicológica, fisiológica e comportamentalmente, fazen do com que o seu monitoramento seja tão ou mais im portante do que a poluição atmosférica, por exemplo (PAZ; FERREIRA; ZANNIN, 2005).

A relação e a presença do ruído não se restringem à es cala urbana, penetrando o tecido criado pelas edificações

 20 | AMBIENTE hospitalar | ano 12 • 2º semestre • 2022  | artigos
Keywords: Ambient Noise, Inpatient Units, Evidence Based Design.

e atingindo os seus espaços interiores. As atividades que ocorrem nestes espaços e os seus ocupantes, portanto, sofrem igualmente das consequências da exposição a essa energia, independentemente de sua natureza. Os efeitos negativos do ruído são particularmente nocivos quando da sua ocorrência em Estabelecimento Assistenciais de Saúde (EAS), particularmente hospitais, cuja função precí pua é de prover aos pacientes espaços aptos para realiza ção de tratamentos de saúde(FILUS et al., 2015).

O foco do presente trabalho concentra-se no estudo da natureza do ruído em unidades de internação loca lizadas no ambiente hospitalar e sua percepção subje tiva pelos usuários: pacientes, familiares e equipe de assistência. Florence Nightingale, enfermeira precursora no estudo dos efeitos ambientais no tratamento de do entes, já no século XIX relacionava o ruído desnecessá rio produzido como a mais cruel ausência de cuidado e assistência a atingir tanto os doentes como os sadios (CHOINIERE, 2010).

O objetivo principal da pesquisa foi identificar os fa tores relacionados à produção (geração e mitigação) do ruído ambiental interno em internações hospitalares (fontes, ambiente construído, atividades assistenciais, atividades diversas). Para tal, foi necessário o entendi mento das circunstâncias nas quais o ruído é produzido nesses ambientes, assim como os fatores diretamente e indiretamente ligados à sua produção e propagação. Aspectos como o número de ocupantes, a quantidade de equipamentos eletroeletrônicos, os materiais cons trutivos e de acabamento de superfícies, os aspectos geométricos do espaço, são fatores importantes neste processo, devendo ser observados e analisados, já que o ruído é intrinsecamente dependente de dois aspectos: a geração e a propagação no espaço (EVEREST; POHLMANN, 2015). Para atingir o objetivo proposto, foi realizada uma revisão bibliográfica abrangente sobre o tema e execu tado um estudo de caso em uma unidade de internação.

Os hospitais são, em função das suas características de fluxo intenso de pessoas e materiais, além da com plexa infraestrutura de equipamentos, edificações com grande ocorrência de ruídos indesejáveis em seus espa

ços interiores e a tendência é que sua produção cresça, na medida em que são incorporadas novas tecnologias de assistência à saúde. Estudos realizados pela Organi zação Mundial da Saúde (OMS) indicam essa tendência de forma consistente desde a década de 1960 (CUNHA; SILVA, 2015). Os estudos evidenciam que a partir deste ano os hospitais não mais conseguiram manter-se den tro dos níveis de aceitabilidade de geração do ruído em seus espaços interiores (HSU et al., 2012) trazendo à tona a preocupação quanto à contextualização destes níveis aos padrões de vida atual.

Essa curva ascendente alerta para a preocupação com o gerenciamento e controle do ruído nos EAS, cujo nível de pressão sonora proveniente das atividades exerci das excede significativamente os níveis recomendados e aceitos pelos organismos responsáveis, tais como a Or ganização Mundial de Saúde (OMS), a Agência de Prote ção Ambiental dos Estados Unidos (EPA) e a Associação Brasileira de Normas Técnicas (ABNT) (CHOINIERE, 2010).

Em termo das sequelas advindas da exposição ao ru ído, estima-se que aproximadamente 250 milhões de pessoas no mundo têm algum tipo de perda auditiva acarretada pela poluição sonora (LIMA DA SILVA et al., 2014), e 10% da população mundial entre 20 e 69 anos sofreu danos auditivos permanentes em diversas esca las em função da exposição a elevados níveis de ruído (KRAMER et al., 2016). Trata-se de um problema de saúde pública, devendo ser abordado tanto no contexto urba no quanto na escala das edificações.

O ruído no ambiente construído

No intuito de subsidiar uma exploração sistemática da produção do ruído no ambiente hospitalar, foi necessá ria a realização de uma avaliação da produção científica sobre o tema. Foi empreendida uma busca sistematizada nas bases científicas JSTOR, PUBMED, Sciencedirect, Web of Science, e Scielo, pelas palavras-chave “ruído”, “hospi tal”, “saúde”, “ambiente construído”, “unidades de inter nação”, tanto de forma isolada como associadas em gru pos de três, conforme as ferramentas de busca booleana das referidas bases.

AMBIENTE hospitalar | ano 12 • 2º semestre • 2022 | 21  artigos | 

Os primeiros resultados da busca constituíram uma lis ta composta por 151 artigos publicados, dos quais foram triados e selecionados apenas os de periódicos revisados por pares, classificados de acordo com os padrões QUA LIS/CAPES, nos últimos 15 anos, de modo a garantir que a pesquisa fosse pautada na produção científica mais recente e confiável, restando 51 publicações. Os artigos foram classificados por temas relevantes como subsídios ao presente trabalho e organizados segundo as seguintes áreas temáticas para melhor sistematização das informa ções a serem coletadas: (1) efeitos na saúde; (2) a produ ção do ruído no ambiente hospitalar; (3) normas regula doras; (4) ambiente construído e (5) composição do ruído.

Observou-se que há uma clara tendência para a reali zação de estudos científicos a respeito da produção de ruídos e desempenho acústico em ambientes de ativida de mais crítica no edifício hospitalar, como, por exem plo, as Unidades de Tratamento Intensivo (UTI) e o Cen tro Cirúrgico. Muito embora o foco deste trabalho esteja em estudar o comportamento acústico em unidades de internação operacionais, é possível extrair evidências importantes das outras tipologias.

O ruído no ambiente hospitalar tem atraído a aten ção dos pesquisadores com maior frequência a partir dos anos 2000. Entre os anos de 2000 e 2005, ocorreram apenas seis publicações voltadas ao tema, já no período compreendido entre 2006 e 2011 houve 11 publicações em periódicos científicos. A distribuição destes artigos foi de 47,1% em periódicos de enfermagem e 41,2% em periódicos da área médica(ANDRADE et al., 2016). Esta informação traduz uma falta de interesse de outras áre as do conhecimento científico, partícipes no desenvolvi mento e estudo do ambiente hospitalar, para investigar os efeitos do ruído nos pacientes internados, configu rando uma lacuna importante a ser preenchida por no vas investigações científicas.

Com referência à área do hospitalinvestigada, revelou -se a predominância das UTI, uma vez que 58,8% dos estu dos foram realizados nessas áreas. Evidenciou-se, ainda, a predominância de estudos realizados em UTI neonatais

(UTIN) e de Cuidados Intermediários Pediátricos (UCI pe diátricas), correspondentes a 52,9% do total analisado (ANDRADE et al., 2016). Pouquíssimos estudos dedicaram -se a outras áreas, como, por exemplo, o setor de urgência e emergência de hospitais, cuja atividade apresenta ní veis de ruído variando de 65dB(A) a 73dB(A) representan do risco potencial à saúde de seus ocupantes ocasionais (pacientes, acompanhantes e equipe assistencial) e per manentes (equipe assistencial) (FILUS et al., 2015).

Um único trabalho de revisão bibliográfica, publicado no ano de 2014, explora o tópico do ruído no ambiente do centro cirúrgico e teve por conclusão sua ocorrência extrapolar os valores recomendados pelos instrumentos normativos vigentes. As fontes de ruído são identificadas como estando relacionadas aos equipamentos utiliza dos nos procedimentos cirúrgicos e ao comportamento da equipe assistencial, apontados os efeitos negativos que o ruído impõe ao desempenho da equipe, princi palmente no que tange a comunicação entre membros (HASFELDT et al., 2014).

Produção do ruído no ambiente hospitalar

O ruído ambiental, especificamente em grandes regiões metropolitanas, vem crescendo com o passar dos anos e esse aumento naturalmente é percebido no interior dos EAS (CARVALHOet al., 2005). Níveis elevados de ruído em hospitais são frequentes ao redor do mundo, dadas as características similares entre edificações e seu uso: na Áustria, a média do ruído varia entre 60 a 65dB(A); na Es panha, de 55 a 65dB(A), no Canadá, de 68dB(A) (CARDOSO MACEDO et al., 2009).

A percepção do ruído ambiental gerado no interior do hospital não é uniforme, variando em função da ativida de e do indivíduo sensibilizado pelo estímulo sonoro. Por exemplo, é comum, em pesquisas de opinião a respeito do ruído interno, que profissionais da equipe assistencial ava liem o ruído externo à edificação como sendo mais inten so que o interno, em contrapartida, os pacientes avaliam o ruído interno das edificações como sendo mais intenso. Esta discrepância se dá em função de que os membros da

 22 | AMBIENTE hospitalar | ano 12 • 2º semestre • 2022  | artigos

equipe assistencial já estão dessensibilizados em relação ao ruído proveniente de equipamentos e da atividade in terna (PIVATTO; GONÇALVES, 2013). Por mais que a percep ção seja subjetiva, ainda assim o sistema auditivo e o or ganismo dos indivíduos, pacientes ou equipe assistencial, estãosujeitos à energia sonora no ambiente, exigindo que sejam adotadas estratégias equilibradas no sentido de se reduzir o ruído ambiental e propiciar uma melhor assistên cia ao paciente, a redução do estresse, a elevação do nível de satisfação das pessoas (FILUSet al., 2015).

É bastante comum também que indivíduos expostos ao ruído por períodos prolongados tenham a percepção subjetiva de que o ambiente está mais ruidoso do que é na realidade, particularmente com pessoas ocupantes de UTI (WHITE; ZOMORODI, 2017).

Foi encontrado apenas um estudo sistematizado a res peito da produção de ruído em ambientes de internação médico-cirúrgicas operacionais, em consonância com o foco do estudo de caso proposto pela pesquisa, onde foram avaliados os níveis de ruído ao longo do dia em unidades de internação, compostas por quartos coleti vos com seis (6) leitos de pacientes e quartos coletivos de quatro (4) leitos de pacientes.

Os resultados obtidos apontam para uma uniformida de de valores, independentemente do número de ocu pantes do quarto, havendo apenas uma variação signi ficativa de acordo com o horário da medição. O ruído produzido no turno da manhã foi superior ao produzido no turno da noite, e como as características do espa ço não mudaram de um turno ao outro, a única variá vel alterada foi o número de pessoas a circularem pelas unidades. Inferiu-se, assim, que o trabalho de rotina e a circulação de pessoas são a principal fonte de ruído no ambiente de internação hospitalar (FILUS et al., 2015). Este fato foi corroborado por um estudo anterior realiza do no ambiente de uma UTI, que constatou níveis de ru ído muito superiores durante o turno do dia em relação ao noturno (KONKANI; OAKLEY, 2012).

Outra característica marcante é o fato de os espaços internos não serem capazes, em suas características fí sicas, de garantir que os níveis de ruído ambiental per

maneçam dentro da faixa de valores aceitáveis perante as normas reguladoras nacionais e internacionais. Par ticularmente em relação às UTI, essa problemática traz consigo repercussões mais profundas no processo de re cuperação e cura dos pacientes, bem como para o risco ocupacional da equipe assistencial.

O ambiente tecnológico de uma UTI oferece benefícios em termos do equilíbrio biológico pelo monitoramento dos pacientes, no entanto é física e psicologicamente agressivo, tendo no ruído gerado o ponto de interação mais nocivo (ANDRADE et al., 2016).

Em todos os estudos científicos pesquisados e levanta dos nesta revisão, a média dos valores de ruído ambiental coletados é de pelo menos 30% acima dos valores recomen dados pelas normas (CARDOSO MACEDO et al., 2009). Uma configuração típica de UTI produz ruídos médios na ordem de 55dB(A) a 70dB(A), com níveis máximos variando entre 100dB(A) e 120dB(A) próximos ao limiar da dor (CHOINIERE, 2010). Esse espaço físico ruidoso interfere diretamente no sono e repouso dos pacientes internados criando uma at mosfera ambiental, fisiológica e psicologicamente nociva aos seus ocupantes (DA COSTA; CEOLIM, 2013).

O estímulo causado por ruídos intensos e iluminação contínua constituem-se, de modo complementar, na pior condição de recuperação e cura que se busca para pa ciente em tratamento intensivo (HU et al., 2016) e o pouco conhecimento teórico acerca dos efeitos dos sons e ruí dos na recuperação e tratamento dos pacientes faz com que o quadro instalado na maioria dos hospitais seja ain da mais grave (JOHANSSON et al., 2016). A multiplicidade de elementos presentes no ambiente sonoro de uma UTI, como a atividade da equipe assistencial, o ruído dos alar mes dos equipamentos de suporte a vida e monitoramen to, telefones, vozes, torna necessária uma abordagem sis têmica para a adoção de medidas capazes de minimizar os efeitos negativos (CARVALHO et al., 2005).

Não menos importante à jornada de tratamento do paciente é o ambiente sonoro presente no centro cirúr gico dos hospitais, onde procedimentos de alto nível de criticidade são executados e há a necessidade que esta atividade ocorra sem trazer riscos ao paciente e à equi

AMBIENTE hospitalar | ano 12 • 2º semestre • 2022 | 23  artigos | 

pe assistencial. A intensidade do ruído em uma sala de cirurgia varia de 65dB(A) a 120dB(A) (ILKKAYA et al., 2014) e de acordo com a especialidade os valores podem ser maiores ou menores, tendo na neurocirurgia e ortopedia as atividades mais duradouras e mais ruidosas, atingin do níveis na ordem de 100dB(A) durante 40% do tempo cirúrgico. Levando-se em conta que a maior parte dos processos hormonais e metabólicos no organismo são ativados a 85dB(A), entende-se que os ocupantes destes espaços experimentam situações de elevado nível de es tresse contribuindo negativamente para a segurança do paciente (GINSBERG et al., 2013).

Estudos recentes apontam que o ambiente de fato se torna mais ruidoso quando atividades mais críticas são desenvolvidas, entretanto mesmo durante o período da indução e recuperação anestésica, de menor criticidade, o nível de ruído ainda se encontra acima do recomenda do por norma (GINSBERG et al., 2013), com o agravante que nesses períodos o paciente encontra-se em estado de consciência ou semiconsciência permanecendo natu ralmente em estado de alerta, onde 10% dos pacientes nesta condição tem a percepção do ruído e seus efei tos negativos. A reclamação mais frequente por parte dos pacientes submetidos às cirurgias é a do estresse e ansiedade relacionados ao processo cirúrgico a ser re alizado, contribuindo para que a equipe de anestesis tas utilize doses maiores de medicação previamente ao procedimento, elevando o risco ao paciente, nos casos em que a anestesia é geral com o paciente desacorda do (HASFELDT et al., 2014). Pacientes sedados com o uso de propofol necessitam de doses maiores em ambientes mais ruidosos (CHOINIERE, 2010).

Em síntese, todos os trabalhos científicos levantados para efeito desta revisão bibliográfica apontam de modo bastante incisivo e recorrente a respeito das caracterís ticas do ruído produzido, do ambiente construído, da ocupação e dos riscos associados à exposição ao ruído. Por mais que haja algumas variações quanto à intensi dade do ruído produzido e percebido pelo indivíduo, é consenso que os valores obtidos em medições empíricas estão acima dos níveis considerados seguros pelas nor

mas nacionais e internacionais vigentes (CORDOVA et al., 2013), tornando necessário o aprofundamento de ações de desenvolvimento de diretrizes capazes de diminuir o nível do ruído gerado e a consequente redução dos po tenciais efeitos negativos aos pacientes, acompanhan tes, equipe assistencial e visitantes.

A legislação e as normas reguladoras

A comunidade técnico-científica mundial dispõe de diver sos instrumentos reguladores da questão do ruído, tanto em seu âmbito urbano quanto na escala da edificação, e em todos estes documentos há certa uniformização de parâmetros em termos do nível de aceitabilidade do ruí do gerado. Dentre os instrumentos de abrangência inter nacional, destaca-se a OMS, que recomenda níveis de até 30dB(A) durante o dia e noite, com nível máximo aceitável de 40dB(A); o Instituto Nacional de Saúde e Segurança Ocupacional dos Estados Unidos (NIOSH, EUA) recomen da níveis de até 35dB(A) no período noturno e 40dB(A) no diurno; a Agência de Proteção Ambiental dos Estados Unidos (EPA, EUA) (CARDOSO MACEDO et al., 2009), reco menda valores de 45dB(A) no período diurno e 35dB(A) no noturno; e finalmente o Conselho Internacional do Ruído (INC) recomendando níveis de 45dB(A) no período diurno e 20dB(A) no noturno (CORDOVA et al., 2013).

No cenário nacional, destaca-se a ABNT, com a NBR 10152, que corrobora com valores preconizados pela EPA, ou seja, 35dB(A) para o período noturno e 45dB(A) para o período diurno. A norma brasileira diferencia-se das de mais por primeiramente levar em consideração o conforto auditivo do indivíduo e depois os limites máximo e mí nimo para diferentes períodos do dia (BRIDI et al., 2014).

Vale ressaltar que os valores citados se referem aos limi tes estabelecidos para áreas de internação, diagnóstico e terapia, e de uso público. Para as áreas de serviços opera cionais os limites são de 55dB(A) para o período diurno e 45dB(A) para o noturno (ANDRADE et al., 2016).

Nota-se que os valores de referência são baixos, tor nando inviável o cumprimento de qualquer das normas comentadas em âmbito nacional ou internacional. Essa

 24 | AMBIENTE hospitalar | ano 12 • 2º semestre • 2022  | artigos

discrepância de contextos indica a necessidade de se re ver como os ambientes internos são planejados, e como os equipamentos são desenvolvidos, de modo que a ge ração e propagação do ruído pelo espaço sejam contro ladas. O maior desafio a ser enfrentado é que os espa ços internos das edificações sofrem influência não só do ruído gerado dentro dos seus limites como também da fonte predominante no tecido urbano, o tráfego veicular (MURPHY; KING, 2014).

Composição do ruído ambiental hospitalar

Há uma infinidade de fontes de ruídos existentes nos limites do edifício hospitalar, como por exemplo: moni tores, equipamentos cirúrgicos, ventiladores mecânicos, alarmes, vácuo clínico, sistemas de climatização, diá logos entre as pessoas, telefones, pagers, entre outras (GINSBERG et al., 2013), dividindo-se em duas categorias distintas (KONKANI; OAKLEY, 2012): (1) ruídos operaciona is gerados pela equipe assistencial ou equipamentos; e (2) ruídos estruturais gerados pela edificação com seus sistemas de infraestrutura predial.

Evidências demonstram que existe correlação positiva entre o número de pessoas que ocupam os espaços inte riores dos hospitais, pacientes e equipe, e o nível de ru ído produzido. Com isso pode-se inferir que na medida em que os espaços interiores forem projetados para pe quenas ocupações, haverá consequentemente redução proporcional do ruído gerado e percebido pelos ocupan tes (KONKANI; OAKLEY, 2012).

O aumento do ruído em hospitais relaciona-se ainda com a não observância do silêncio pela própria equipe de trabalho e pelos usuários do serviço. No entanto, o silêncio se faz necessário para o bom funcionamento da rotina hospitalar, incluindo a recuperação dos pacientes (FILUS et al., 2014). É notável como ações relacionadas aos hábitos dos ocupantes podem ser determinantes na geração do ruído na unidade hospitalar.

Outro estudo realizado indica estatisticamente a pre valência de determinados elementos na composição do ruído ambiental em uma unidade hospitalar. Trata-se

de uma pesquisa realizada em uma UTI, cujo resulta do extraído informa que 36,23% do ruído na unidade é composto por equipamentos com alarmes, 34,06% pelas conversas altas e risadas e 18,12% pela movimentação de pessoas (COSTA et al., 2013). Infere-se, partindo desta informação, que aproximadamente 72% do ruído gera do no interior de uma UTI tem origem na atividade das pessoas, ou seja, iniciativas relacionadas aos hábitos da equipe potencialmente podem mitigar a produção ir restrita do ruído. Trata-se, então, da possibilidade de se gerenciar os ruídos a partir de estratégias preventivas antes da necessidade da implantação de ações correti vas – 34% do ruído gerado pode ser totalmente evitado e 28% parcialmente evitado (KONKANI; OAKLEY, 2012).

Ainda no tema relacionado às principais fontes do ruí do gerado, outro estudo aponta para a conversação entre membros da equipe assistencial(CHOINIERE, 2010) e aos equipamentos como principais fonte de ruído ocorrendo no interior de uma UTI, relegando ao ruído gerado externa mente à unidade um papel secundário (OTENIO et al., 2007).

Há uma oportunidade grande de se gerenciar o ruído apenas com a mudança de comportamento das pessoas, uma vez que 50% do ruído gerado tem origem no com portamento dos membros da equipe (CHOINIERE, 2010), esta tem sido a tendência nas últimas décadas (CARDOSO MACEDO et al., 2009). Muito embora haja esse destaque à ação das pessoas na produção do ruído, é importante destacar também o papel dos alarmes, cuja ocorrência se dá aproximadamente 11 vezes por hora. Um estudo sistematizado informa que 426 alarmes foram registra dos no período de 40 horas consecutivas, deste total 227 eram emitidos por monitores multi-paramétricos que fi cam ligados permanentemente aos pacientes enquanto 199 eram emitidos por outros equipamentos de supor te a vida de acionamento ocasional (BRIDI et al., 2014).

Quando seobserva uma UTI com 20 leitos e seus 20 mo nitores emitindo alarmes em mais de 50% do tempo de ocorrência, é importante levantar a questão de como es ses alarmes permanentes podem existir de forma mais sutil e ainda garantir a segurança do monitoramento dos sinais vitais do paciente.

AMBIENTE hospitalar | ano 12 • 2º semestre • 2022 | 25  artigos | 

Outro aspecto importante citado na produção científi ca acerca da composição do ruído hospitalar, mais uma vez medido dentro de uma UTI, é como sua produção se comporta de forma diferenciada em zonas mais ou menos ruidosas. Os dados obtidos apontam para níveis mais elevados de ruído no posto de enfermagem e no corredor de acesso à unidade, com picos de até 120dB(A) (CARVALHO et al., 2005). É importante destacar que em nenhuma das duas áreas citadas como a mais ruidosa existem equipamentos geradores de ruído, mas apenas ruído gerado a partir da comunicação e movimentação de pessoas e materiais. O tipo de paciente internado também condiciona o nível de ruído gerado na unidade. Por exemplo, unidades de internação pediátrica estatis ticamente são mais ruidosas que as de internação para adultos. O período do dia, relacionado aos momentos de maior tráfego de pessoas e materiais, também condi ciona os níveis de ruído, com o período diurno sendo mais ruidoso e o noturno menos, quando a atividade da equipe é menos intensa (GARRIDO GALINDO et al., 2016).

(10) a distância do quarto ao posto de enfermagem; (11) o fluxo de circulação de pessoas externo ao quarto; (12) o fluxo de circulação de pessoas interno ao quarto; (13) o mobiliário interno; (14) os equipamentos de climatiza ção, ventilação e exaustão; (15) outros equipamentos. O conjunto de variáveis independentes levantado duran te a pesquisa foi escolhido em função da sustentação da produção científica atual sobre o tema, onde podem ser destacados: a proximidade com o posto de enferma gem como sendo influente na produção do ruído (HILL; LAVELA, 2015), influência do ruído de tráfego externo no ambiente interno (DA SILVA et al.,2011) e (MURPHY; KING, 2015), a circulação das pessoas como principal fonte de ruído no interior de hospitais (FILUS et al., 2015) (COSTA et al., 2013), o uso de equipamentos de comunicação na produção do ruído (GINSBERG et al., 2013) e (HSU et al., 2012), o uso de equipamentos de suporte a vida dentro do quarto (HASFELDT et al., 2014) (BRIDI et al., 2014), o número de pacientes no quarto como fator gerador de ruído (KOL et al., 2015) (KONKANI; OAKLEY, 2012), os ma teriais de acabamento (CHOINIERE, 2010), o tráfego de pessoas associado a um determinado horários do dia como fonte significante de geração de ruído ambiental no hospital (GARRIDO GALINDO et al., 2016).

Partindo da definição do tamanho da amostra significa tiva para garantir validade interna dos resultados obti dos, foi efetuada a coleta de dados relativos ao nível de ruído ambiental no interior dos quartos selecionados para estudo. As hipóteses correlacionais entre as variá veis definidas a partir da revisão bibliográfica foram tes tadas ao longo do experimento, sendo o nível de ruído ambiental medido a variável dependente. Outras carac terísticas do ambiente hospitalar foram consideradas as variáveis independentes, tais como: (1) a quantidade de pessoas no quarto; (2) a área do quarto; (3) a área do vão da porta de acesso ao quarto; (4) a área do vão da janela exterior; (5) a distância da janela à via de tráfego; (6) a distância aos elevadores de uso geral; (7) a distância às escadas de uso geral; (8) a distância aos elevadores de uso restrito; (9) a distância às escadas de uso restrito;

Antes de iniciar o procedimento de coleta de dados, envolvendo pacientes e acompanhantes ocupando o quarto de internação, foi feita a apresentação da pes quisa à equipe de saúde, informando o teor, os objeti vos e os possíveis riscos aos quais estavam submetidos, para que assinassem o termo de livre consentimento es clarecido (TCLE), autorizando a realização da pesquisa, registrada na Comissão Nacional de Ética em Pesquisa (CONEP) sob o nº CAAE 66808917.1.0000.0017 e aprovada no Comitê de Ética em Pesquisa Científica CEP/HUJBB/ UFPA através do parecer nº 2.160.643. Nos casos em que o paciente e/ou o acompanhante se recusaram a assinar o termo e a participar da pesquisa, houve a troca ime diata para outro quarto e reinício do processo de autori zação à coleta de dados. Foram utilizados medidores de pressão sonora de acordo com as especificações da IEC

 26 | AMBIENTE hospitalar | ano 12 • 2º semestre • 2022  | artigos

60651, calibrados previamente à cada sessão de medi ção, capazes de realizar a medição do ruído equivalente (Leq) ponderado em (A), conforme a IEC 60804. Os apare lhos foram configurados para resposta lenta (SLOW), de modo a medirem o nível de pressão sonora com período de 1s, armazenando em sua memória as seguintes infor mações: (1) o nível de ruído equivalente em ponderação A – Leq(A); (2) o nível máximo de pressão sonora duran te a sessão de medição na ponderação A – Lmax(A); (3) o nível mínimo de pressão sonora durante a sessão de medição na ponderação A – Lmin(A). Após a rotina de calibração e configuração dos equipamentos, o medidor foi montado sobre tripé em três localizações distintas no interior dos quartos de internação, afastadas a uma distância de um metro de quaisquer superfícies horizon tais e verticais: (1) próximo ao leito onde localiza-se o paciente, com microfone voltado na direção oposta da parede de cabeceira do leito; (2) próximo à janela que dá acesso ao exterior da edificação, com o microfone vol tado na direção da janela; e (3) na direção da porta de acesso ao quarto, com o microfone voltado na direção da porta de acesso ao quarto. As sessões de medição fo

ram realizadas a cada hora, com duração de um minuto cada, totalizando três medições por hora por quarto, no período das 8h às 24h.

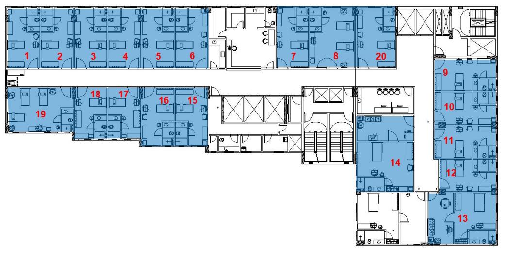
O pavimento da unidade de internação estudado é composto por 21 quartos de internação, sendo divididos quanto à sua ocupação original com leitos em: (1) 16 quar tos de internação individual com banheiro privativo; (2) 01 quarto de internação coletiva com 02 leitos e banhei ro privativo; (3) 03 quartos de internação coletiva com 03 leitos e banheiro privativo; (4) 01 quarto de isolamento com banheiro privativo. Conforme informado anterior mente, em razão de questões normativas de controle de infecção, o quarto de isolamento foi excluído do estu do, totalizando dessa forma 20 quartos de internação a serem estudados. Foram atribuídos códigos sequenciais numéricos para identificação dos quartos de 1 a 20, indi cando a ordem cronológica das medições. Foi realizada a medição do Leq(A) em um quarto vazio (apenas ruídos de natureza estrutural do ambiente construído) para es tabelecer a referência real para o ruído de fundo, cujos valores obtidos para Leq(A), Lmax(A), eLmin(A) foram de 51,8 dB(A), 53,4 dB(A), e 32,1 dB(A) respectivamente.

AMBIENTE hospitalar | ano 12 • 2º semestre • 2022 | 27  artigos | 
Figura 1 – Numeração dos quartos.
Fonte:
Autores.

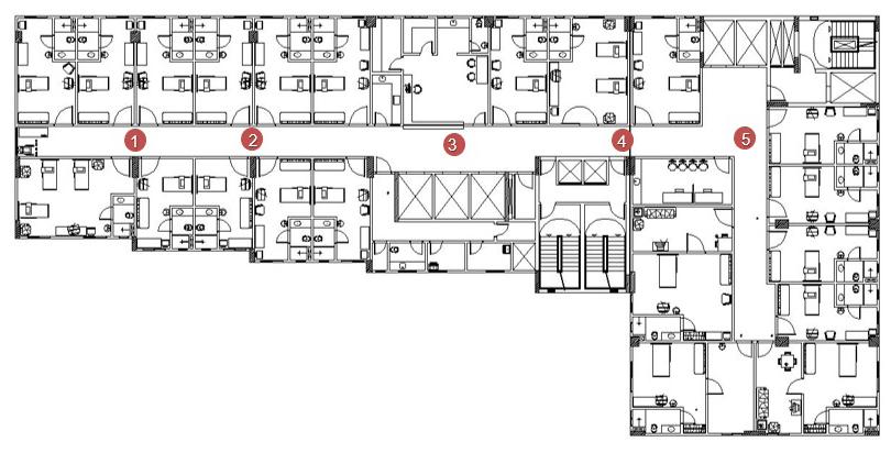
Foi necessária a coleta de dados de áreas externas ao quarto (figura 2), para aferir a influência na propagação do ruído ao seu interior, sendo definidos 5 pontos de medição ao longo do seu percurso na circulação de uso comum e a partir desses resultados sendo possível in ferir alguns resultados. Os pontos foram distribuídos da seguinte forma: (1) em frente às portas de acesso a 04 quartos no extremo da circulação; (2) em frente às portas de 04 quartos localizados entre o extremo da circulação e a confluência entre o posto de enfermagem e o hall de elevadores de uso geral; (3) na confluência do hall de elevadores de uso geral com o posto de enfermagem, ponto central da circulação; (4) em frente aos acessos à caixa de escada de uso geral; e (5) no hall de elevadores

e escada de uso restrito. Foram também observadas e coletadas as variáveis independentes: (1) a quantidade de pessoas no quarto; (2) a área do quarto; (3) a área do vão da porta de acesso ao quarto; (4) a área do vão da ja nela exterior; (5) a distância da janela à via de tráfego; (6) a distância aos elevadores de uso geral; (7) a distância às escadas de uso geral; (8) a distância aos elevadores de uso restrito; (9) a distância às escadas de uso restrito; (10) a distância do quarto ao posto de enfermagem; (11) o fluxo de circulação de pessoas externo ao quarto; (12) o fluxo de circulação de pessoas interno ao quarto; (13) o mobiliário interno; (14) os equipamentos de climatiza ção, ventilação e exaustão; (15) outros equipamentos. A coleta destas informações ocorreu das 8h às 24h.

Além das informações citadas, foram também regis trados, na planilha de coleta de informações, os even tos e atividades ao longo do período de medição que ocorreram no interior do quarto, tais como: atividades assistenciais, distribuição de dietas, visitas, limpeza do

quarto, manutenção de equipamentos, além de even tos de menor repercussão. Aplicou-se também, com a finalidade de se avaliar a percepção subjetiva do ruído ambiental, um questionário na forma de uma entrevista estruturada ao paciente internado (51 respondentes) e à

 28 | AMBIENTE hospitalar | ano 12 • 2º semestre • 2022  | artigos
Figura 2 – Indicação da locação dos pontos de medição na circulação externa Fonte: Autores.

equipe assistencial (25 respondentes) em atividade no pavimento pesquisado, com perguntas relacionadas ao ruído no interior do quarto de internação envolvendo as variáveis comportamentais e de atividades hipotetizadas na produção científica constante da revisão bibliográfica, onde o respondente atribuiu valores de uma escala de Likert de 1 a 5, variando de “discordo veementemente” a “concordo veementemente” respectivamente. O mesmo questionário foi aplicado previamente a uma amostra populacional de indivíduos, que já tivessem sido inter nados em um hospital em algum momento de suas vi das, para avaliar não apenas a validade das hipóteses sustentadas pela revisão bibliográfica, mas também para inferir sobre a memória positiva ou negativa que a expe riência do ambiente hospitalar ruidoso imprimiu sobre aquele indivíduo. O cálculo desta amostra populacional obedeceu ao Teorema do Limite Central, que prevê a dis tribuição normal (Gaussiana) da população com um nível de confiança de 95%. O universo populacional adotado foi o da população brasileira que se internou em hos pitais no ano de 2016, totalizando 9.442.080 indivíduos (BRASIL, 2017), cuja amostra mínima significativa foi de 385 respondentes, assim refletindo o contexto nacional. A avaliação subjetiva de pessoas que já tivessem sido in ternadas em um hospital para realização de um procedi mento clínico ou cirúrgico foi aplicada a uma população de 827 pessoas, das quais 654 se enquadravam no per fil de “ex-paciente internado”, as 173 pessoas restantes foram descartadas da pesquisa. Quanto aos indivíduos atualmente internados, foram selecionados 64 pacientes para responderem ao questionário de avaliação subjeti va do ruído no ambiente, entretanto apenas 51 se dispu seram a participar voluntariamente da pesquisa (79,7% dos pacientes internados na unidade). O grupo de pa cientes incluído na pesquisa estava internado na mesma unidade de internação, localizada no 12º pavimento do hospital do estudo de caso, e todos obedeciam ao perfil de serem pacientes de clínica médica e cirúrgica.

O objetivo da aplicação dos questionários foi de ava liar se há diferença, entre a percepção subjetiva momen tânea e a percepção lembrada e, a partir daí, conseguir inferir sobre as memórias positivas e / ou negativas que

irão ficar registradas na vivência do indivíduo. Para esta finalidade, foi empreendido um estudo a partir da aná lise de variância (ANOVA) dos resultados obtidos pelos questionários dos ex-pacientes internados e dos pa cientes atualmente internados. Para verificar os resulta dos, foi realizado o teste de significância T de Student, sendo necessária a atribuição de valores numéricos às categorias das respostas do questionário. A abordagem utilizada para que pudessem ser extraídos dados mais significativos, foi de atribuir uma diferença dual, entre discordantes (discorda veementemente, discordar e ser indiferente) e concordantes (concordo e concordo total mente), sendo possível obter uma visão global se cada grupo concordava ou não com o resultado e se os resul tados eram estatisticamente diferentes.

A unidade de internação estudada está implantada perpendicularmente à via de acesso do hospital, a cerca de 13m com tráfego veicular intenso, a 86m e 230m, res pectivamente, das vias laterais confinantes da quadra, cujo tráfego é bastante intenso, e a 88m da via confi nante de fundo, cujo fluxo de tráfego veicular é leve. Os quartos não possuem aberturas voltadas para a via de acesso principal, sendo voltadas para os lotes em vizi nhança lateral e de fundo.

Após realizadas as medições dos níveis de pressão sono ra do ruído equivalente Leq(A) nos quartos de internação e na área da circulação externa que lhes dá acesso, foi possível confirmar algumas das hipóteses sustentadas pelas pesquisas citadas na revisão bibliográfica. Confor me sustentando na revisão bibliográfica, a unidade de internação que é foco deste estudo de caso, apresentou valores de Leq(A) significativamente superiores aos pre conizados pelos instrumentos normativos e legais vigen tes. Mesmo o menor valor de Leq(A) observado ao longo do estudo de caso, que foi de 52,2 dB(A), ultrapassa todos os limites estabelecidos pelos OMS, EPA, NIOSH, ABNT, e INC. O menor valor observado para o período diurno foi

AMBIENTE hospitalar | ano 12 • 2º semestre • 2022 | 29  artigos | 

de 52,2 dB(A) no quarto 11 da unidade de internação, que é significativamente superior aos valores normativos para o mesmo período (OMS, 40 dB(A); NIOSH, 40 dB(A), EPA, 45 dB(A); INC, 45dB(A); ABNT, 45dB(A)), com uma diferença de em média 10dB(A),e no período noturno o menor valor de Leq(A) observado foi de 50,2dB(A) no quarto 16, demonstrando-se pelo menos 80% superior aos parâmetros máximos e, se comparados, são o má ximo valor do período noturno, de 62,3dB(A). No quarto 6, chegou-se a valores de até 300% superiores ao valor preconizado pelo INC.

Outra constatação importante do presente estudo de caso realizado é a de que, de forma análoga ao único estu do produzido a respeito do ruído ambiental em uma uni dade de internação médico-cirúrgica (FILUS et al., 2015), os valores observados na unidade de internação pesqui sada demonstraram-se bastante uniformes, independen temente do número de ocupantes, de equipamentos no interior do quarto, entre outras variáveis independentes que foram apontadas na revisão bibliográfica como sendo influentes na geração do ruído. A única variação significa tiva foi o nível de pressão sonora observado variando em função do turno do dia.O estudo se predispôs a avaliar e correlacionar todas a variáveis independentes demons tradas na revisão bibliográfica. Um resultado que chama atenção, por outro lado, é que, muito embora as variáveis independentes quando correlacionadas isoladamente com o ruído produzido não tenham demonstrado grande significância estatística, uma vez que estas se correlacio nam em uma regressão com múltiplas variáveis passam a apresentar coeficiente de determinação alto. Ou seja, isto reforça o conceito que a geração do ruído em um am biente como o hospitalar é de natureza complexa e de pende naturalmente de múltiplos fatores que concorrem simultaneamente, ora produzindo, ora mitigando o ruído ambiental (ANDRADE et al., 2016).

Este comportamento uniforme leva a crer que o ruído de fundo no ambiente da unidade de internação, com posto principalmente pelo proveniente do sistema de climatização, acaba por mascarar esta interferência de forma bastante eficaz (KONKANI; OAKLEY, 2012). Outro

ponto influenciador, é a capacidade de isolamento acús tico das portas e das paredes que separam os quartos das circulações do pavimento. Os valores medidos nas circulações em pontos próximos às portas de acesso dos quartos, apresentaram-se superiores aos valores obser vados nos seus espaços interiores, na ordem de 5 dB(A), chegando em alguns momentos a até 12dB(A).

Nas áreas de circulação externas aos quartos obser va-se que o nível do ruído eleva-se à medida que chega ao meio da tarde, por volta das 15h, permanecendo em níveis elevados até por volta das 19h. Na maior parte do dia, nos cinco pontos de medição, o nível de ruído apresentou-se elevado na faixa de 60 a 70 dB(A). É in teressante também ressaltar que apenas nos pontos 1 e 5 o Leq(A)reduziu-se ao nível de 40 a 50 dB(A), apenas no horário das 24h, assim como já no primeiro momento das medições às 8h, os pontos 2 e 5 apresentaram níveis de ruído bem acima do recomendado.Esta tendência não se confirma no interior dos quartos, já que os níveis de ruído equivalente no interior dos quartos de interna ção são significativamente mais elevados nos períodos do dia compreendidos das 8h às 12h.

Esta independência observada entre espaços interiores e exteriores dos quartos reforça a hipótese, de que o ruído ambiental no quarto diz respeito muito mais às peculia ridades internas de cada quarto, (KONKANI; OAKLEY, 2012) do que aos aspectos extrínsecos (OTENIO et al., 2007), con trapondo-se a hipótese sustentada por alguns autores que atribuem ao fluxo de circulação de pessoas e às conversas do lado de fora do quarto (HILL; LAVELA, 2015) como fatores determinantes do ruído interno (DA SILVA et al., 2011).

Em termos da percepção que os ocupantes do am biente hospitalar têm em relação ao ruído ao qual es tão expostos tornou-se bastante evidente que os efeitos adversos que o ruído pode causar por várias vezes são interpretados de maneira subjetiva (PADMAKUMAR et al., 2017). É clara a diferença entre as respostas dos ques tionários, principalmente relacionado ao ruído da assis tência, alimentação e recolhimento de louça, e a ocor rência de dores de cabeça. Observa-se que os pacientes internados são bem mais tolerantes aos primeiros, pos

 30 | AMBIENTE hospitalar | ano 12 • 2º semestre • 2022  | artigos

sivelmente por indicar que algum tratamento ou alguma atenção por analgesia está sendo feita, configurando ex periências terapêuticas positivas no contexto.

Entretanto, com relação a ocorrência de dores de ca beça, internados possuem um valor consideravelmente mais alto que os não internados, indicando que a ocor rência da dor não esteja necessariamente ligada somen te ao ruído e, após o tratamento, isso se torne mais evi dente aos pacientes. É possível observar também que ambos os grupos em sua grande maioria não se incomo daram tanto com os ruídos de televisão e ar-condicio nado, que seriam os principais responsáveis pelo ruído de fundo e que somente cerca de metade dos pacientes tiveram algum incômodo por causa do ruído de modo geral. Pôde-se inferir que a causa de ruído com maior número de respostas positivas foi o ruído das visitas e ruídos externo da janela, o que se sustenta em par te com os resultados dos picos obtidos na medição do Leq(A), enquanto os outros fatores como visita médica, rotinas de limpeza e troca de roupa de cama, assim como a distribuição de alimentação causaram pouco impacto.

Outro resultado é claro, tanto para o paciente inter nado como o ex-paciente internado, como é marcante quando as respostas foram agrupadas por faixa etária e por gênero. No primeiro caso, não é tão explícita a re lação entre idade avançada e sensibilidade subjetiva ao ruído, muito embora na maior parte das perguntas do questionário esta tendência seja comprovada pelas res postas, com os grupos de idade mais avançada se mos trando mais sensibilizados quanto aos efeitos do ruído. Entretanto, no caso dos grupos separados por gênero, é quase unanimidade nas respostas a maior sensibili zação ao ruído por parte dos respondentes do gênero feminino. A única resposta em que os respondentes do sexo feminino se mostraram menos sensíveis ao incô modo com o ruído, foi relacionado a questão que envol via o ruído da televisão.Quanto à avaliação subjetiva por parte da equipe, foi significativa a concordância quanto ao incômodo nas perguntas que dissessem respeito ex clusivamente à atividade assistencial, como por exem plo se o ruído causava irritabilidade, ou se interferia no

nível de concentração. Nas perguntas que envolviam a avaliação subjetiva do ruído relacionado a temas exter nos à atividade assistencial, a maioria dos respondentes se mostrou discordante ou indiferente.

Independentemente se os respondentes são pacientes internados, ex-pacientes internados, ou equipe assis tencial, em todos os casos os indivíduos utilizam de me canismos internos capazes de, a partir do subjetivismo interpretativo, filtrar os ruídos e atribuir valores positi vos ou negativos àquela experiência. Essa complacência não isenta os indivíduos dos efeitos negativos da expo sição ao ruído, no entanto garante a convivência com o ruído sem que a sensação de incômodo esteja sempre presente (PIVATTO; GONÇALVES, 2013).

O primeiro ponto importante foi o fato de, em conso nância com os dados obtidos na revisão bibliográfica, os níveis de ruído ambiental no interior e exterior dos quartos de internação significativamente superiores aos preconizados por normas e legislações especificas, aler tando por uma reavaliação dos parâmetros normativos vigentes. Ficou clara também a característica complexa do ruído ambiental, a partir das correlações positivas obtidas pela regressão linear com múltiplas variáveis, ou seja, fatores quando correlacionados individualmen te com o ruído medido representam pouca ou nenhu ma significância, e por outro lado atuam de forma com plementar para o compor o espectro do ruído.Quanto à percepção subjetiva da exposição ao ruído, a produção científica atual atesta que comumente o indivíduo é ca paz de interpretar o incômodo conforme a necessidade de sua ocorrência (PADMAKUMAR et al., 2017), atribuindo assim caráter positivo ou negativo à experiência de for ma subjetiva e variável de acordo com o contexto. Com a aplicação do questionário foi possível aferir que, as res postas tiveram em sua maioria a concordância de avalia ção, entretanto algumas assumiram valores diferentes. É clara a diferença entre as respostas dos questionários,

AMBIENTE hospitalar | ano 12 • 2º semestre • 2022 | 31  artigos | 

principalmente relacionado ao ruído da assistência, ali mentação e recolhimento de louça, e a ocorrência de do res de cabeça. Observa-se que os pacientes internados são bem mais tolerantes aos primeiros, possivelmente por indicar que algum tratamento analgésico ou alguma atenção está sendo feita, configurando experiências te rapêuticas positivas no contexto.

Outra particularidade visível ao avaliar os gráficos de respostas dos dois grupos, é que no caso do ex-pacien tes internados, há um maior número de respostas, apon tando indiferença quanto ao incômodo, o que indica que o aspecto temporal influencia na lembrança da experi ência real. Quando os grupos foram separados por faixa etária e por gênero, pode-se também observar que o ní vel de sensibilização do ruído varia conforme a caracte rística do indivíduo, apontando para uma clara tendên cia a uma maior sensibilização em pessoas de idade mais avançada. Ao avaliar os resultados por grupos de gênero, esta afirmação se torna ainda mais evidente sugerindo uma maior sensibilização de indivíduos do gênero femi nino em relação ao masculino. É claro que idade e gêne ro são apenas duas características, da multiplicidade de outras inerentes aos humanos, sendo abordadas nesta pesquisa, porém os resultados de fato indicam esse viés interpretativo. Quanto à avaliação subjetiva por parte da equipe, foi significativa a concordância quando ao incô modo nas perguntas que dissessem respeito exclusiva mente à atividade assistencial, como, por exemplo, se o ruído causava irritabilidade, ou se interferia no nível de concentração. Nas perguntas que envolviam a avaliação subjetiva do ruído relacionado a temas externos à ativi dade assistencial, a maioria dos respondentes se mos trou discordante ou indiferente. Isso reflete um rigor e preocupação grande com o ofício, e principalmente com a segurança do paciente.

Outra comprovação importante é que tanto pacien tes internados, ex-pacientes internados, ou equipe as sistencial, em todos os casos, os indivíduos utilizam de mecanismos internos capazes de, a partir do subjetivis mo interpretativo, filtrar os ruídos e atribuir valores po

sitivos ou negativos àquela experiência. Os resultados obtidos neste estudo de caso, complementados pelas evidências sustentadas pela crescente produção cien tífica atual, apontam para algumas estratégias que, ao serem implantadas ainda na etapa de planejamento preliminar dos hospitais, podem intervir previamente no sentido da prevenção ou mitigação do ruído produzido em seus espaços interiores, seja de natureza estrutural como operacional, conforme descrito a seguir: (1) utili zação de quartos privativos; (2) materiais absorvedores de ruído no forro e piso; (3) divisórias e esquadrias com isolamento acústico; (4) localização dos quartos em re lação aos eixos internos de circulação do hospital; (5) concentração de equipamentos de HVAC fora do quarto; (6) descentralização em subpostos de enfermagem; (7) redução do nível de iluminação no período noturno; (8) uso de sistemas de mascaramento sonoro; (9).

ANDRADE, K. P. et al. Noise level measurement and its effects on hospital employees based on complaint reports. Revista CEFAC, v. 18, n. 6, p. 1379-1388, 2016. ISSN 1516-1846.

BRASIL. DATASUS. Informações de Saúde. Morbidade Hospitalar, 2017.Brasília,2017.

BRIDI, A. C.; LOURO, T. Q.; DA SILVA, R. C. L. Alarmes clíni cos em terapia intensiva: implicações da fadiga de alar mes para a segurança do paciente. Revista Latino-A mericana de Enfermagem, v. 22, n. 6, p. 1034-1040, 2014. ISSN 1518-8345. Disponível em: < https://www.ncbi.nlm. nih.gov/pmc/articles/PMC4309240/pdf/0104-1169-r lae-22-06-01034.pdf >. Acesso em: 25 ago 2022.

CARDOSO MACEDO, I. S. et al. Noise Assessment in Intensive Care Units. Brazilian Journal of Otorhinolaryn gology, v. 75, n. 6, p. 844-846, 11// 2009. ISSN 1808-8694. Disponível em: <http://www.sciencedirect.com/science/ article/pii/S1808869415305474. Acesso em: 25 ago 2022.

 32 | AMBIENTE hospitalar | ano 12 • 2º semestre • 2022  | artigos

CARVALHO, W. B.; PEDREIRA, M. L.; AGUIAR, M. A. L. D. Nível de ruídos em uma unidade de cuidados intensivos pediátricos. J Pediatr (Rio J), v. 81, n. 6, p. 495-8, 2005.

CHOINIERE, D. B. The effects of hospital noise. Nurs Adm Q, v. 34, n. 4, p. 327-33, Oct-Dec 2010. ISSN 0363-9568.

CORDOVA, A. C. et al. Noise levels in a burn intensive care unit. Burns, v. 39, n. 1, p. 44-48, 2// 2013. ISSN 03054179. Disponível em: <http://www.sciencedirect.com/ science/article/pii/S0305417912000939. Acesso em: 25 ago 2022.

COSTA, G. D. L.; LACERDA, A. B. M. D.; MARQUES, J. Noise on the hospital context: impact on nursing profession als' health. Revista CEFAC, v. 15, n. 3, p. 642-652, 2013. ISSN 1516-1846.

CUNHA, M.; SILVA, N. Hospital Noise and Patients’ Well being. Procedia - Social and Behavioral Sciences, v. 171, p. 246-251, 1/16/ 2015. ISSN 1877-0428. Disponível em: <http://www.sciencedirect.com/science/article/pii/ S1877042815001470>. Acesso em: 25 ago 2022.

DA COSTA, S. V.; CEOLIM, M. F. Fatores que interferem na qualidade do sono de pacientes internados. Revista da Escola de Enfermagem da USP, v. 47, n. 1, p. 46-52, 2013. ISSN 1980-220X.

DA SILVA, L. E. L.; DE OLIVEIRA, M. L. C.; INABA, W. K. Fato res que interferem na qualidade do sono de pacientes internados. Revista Eletrônica de Enfermagem, v. 13, n. 3, p. 521-8, 2011. ISSN 1518-1944.

EVEREST, F.;POHLMANN, K. Master Handbook of Acous tics. 6ª Ed, McGraw-Hill Education, 2015. ISBN 978-0-07184103-0.

FILUS, W.; DE LACERDA, A. B. M.; ALBIZU, E. Ambient Noise in Emergency Rooms and Its Health Hazards. International archives of otorhinolaryngology, v. 19, n. 03, p. 205-209, 2015. ISSN 1809-9777.

FILUS, W. A. et al. Ruído e seus impactos nos hospitais brasileiros: uma revisão de literatura. Revista CEFAC, v. 16, p. 307-317, 2014. ISSN 1516-1846. Disponível em: < http://www.scielo.br/scielo.php?script=sci_arttex

t&pid=S1516-18462014000100307&nrm=iso >.Acesso em: 25 ago 2022.

GARRIDO GALINDO, A. P.; CAMARGO CAICEDO, Y.; VÉLE Z-PEREIRA, A. M. Noise level in intensive care units of a public university hospital in Santa Marta (Colom bia). Medicina Intensiva (English Edition), v. 40, n. 7, p. 403-410, 10// 2016. ISSN 2173-5727. Disponível em: <http://www.sciencedirect.com/science/article/pii/ S2173572716300364. Acesso em: 25 ago 2022.

GINSBERG, S. H. et al. Noise Levels in Modern Operating Rooms During Surgery. Journal of Cardiothoracic and Vascu lar Anesthesia, v. 27, n. 3, p. 528-530, 6// 2013. ISSN 10530770. Disponível em: <http://www.sciencedirect.com/scien ce/article/pii/S1053077012004430. Acesso em: 25 ago 2022.

HASFELDT, D. et al. Patients' Perception of Noise in the Operating Room—A Descriptive and Analytic Cross-Sec tional Study. Journal of PeriAnesthesia Nursing, v. 29, n. 5, p. 410-417, 10// 2014. ISSN 1089-9472. Disponível em: <http://www.sciencedirect.com/science/article/pii/ S1089947214000732 Acesso em: 25 ago 2022.

HILL, J. N.; LAVELA, S. L. Noise Levels in Patient Rooms and at Nursing Stations at Three VA Medical Cen ters. Herd, v. 9, n. 1, p. 54-63, Fall 2015. ISSN 1937-5867 (Print)1937-5867.

HSU, T. et al. Noise Pollution in Hospitals: Impact on Patients. Journal of Clinical Outcomes Management, v. 19, n. 7, p. 301-309, 2012.

HU, R.-F. et al. An investigation of light and sound levels on intensive care units in China. Australian Critical Care, v. 29, n. 2, p. 62-67, 5// 2016. ISSN 1036-7314. Disponível em: <http://www.sciencedirect.com/science/article/pii/ S1036731415001010. Acesso em: 25 ago 2022.

ILKKAYA, N. K. et al. The Effects of Music, White Noise, and Ambient Noise on Sedation and Anxiety in Patients Under Spinal Anesthesia During Surgery. Journal of PeriAnesthesia Nursing, v. 29, n. 5, p. 418-426, 10// 2014. ISSN 1089-9472. Disponível em: <http://www.science direct.com/science/article/pii/S1089947214001890. Acesso em: 25 ago 2022.

AMBIENTE hospitalar | ano 12 • 2º semestre • 2022 | 33  artigos | 

JOHANSSON, L. et al. Noise in the ICU patient room – Staff knowledge and clinical improvements. Intensive and Critical Care Nursing, v. 35, p. 1-9, 8// 2016. ISSN 0964-3397. Disponível em: <http://www.sciencedirect.com/science/ article/pii/S0964339716000173. Acesso em: 25 ago 2022.

KALYVAS, A. V.; LINOS, D.; MORIS, D. Concerns about Evaluating the Effect of Noise and Music in the Operating Room. Journal of the American College of Surgeons, v. 219, n. 5, p. 1097-1098, 11// 2014. ISSN 1072-7515. Disponível em: <http://www.sciencedirect.com/science/article/pii/ S1072751514005468. Acesso em: 25 ago 2022.

KOL, E.; AYDIN, P.; DURSUN, O. The effectiveness of envi ronmental strategies on noise reduction in a pediatric intensive care unit: creation of single-patient bedrooms and reducing noise sources. J Spec Pediatr Nurs, v. 20, n. 3, p. 210-7, Jul 2015. ISSN 1539-0136. Disponível em: <http:// onlinelibrary.wiley.com/store/10.1111/jspn.12116/asset/ jspn12116.pdf?v=1&t=j00lwny5&s=73a3e5d8668101a31e 68429ba87c70ae88bdb1b0>. Acesso em: 25 ago 2022.

KONKANI, A.; OAKLEY, B. Noise in hospital intensive care units—a critical review of a critical topic. Journal of Critical Care, v. 27, n. 5, p. 522.e1-522.e9, 10// 2012. ISSN 0883-9441. Disponível em: <http://www.sciencedirect.com/science/ article/pii/S0883944111004357. Acesso em: 25 ago 2022.

KOSOUR, A. R. D. O.; COSTA, D. D. Influência do nível de ruídos na percepção do estresse em pacientes cardíacos. Rev Bras Ter Intensiva, v. 23, n. 1, p. 62-67, 2011.

KRAMER, B.; JOSHI, P.; HEARD, C. Noise pollution levels in the pediatric intensive care unit. Journal of Critical Care, v. 36, p. 111-115, 12// 2016. ISSN 0883-9441. Disponível em: <http://www.sciencedirect.com/science/article/pii/ S088394411630171X. Acesso em: 25 ago 2022.

KURIOKA, T. et al. Selective hair cell ablation and noise exposure lead to different patterns of changes in the cochlea and the cochlear nucleus. Neuroscience, v. 332, p. 242-257, 9/22/ 2016. ISSN 0306-4522. Disponível em: <http://www.sciencedirect.com/science/article/pii/ S0306452216302974. Acesso em: 25 ago 2022.

LACERDA, Adriana Bender Moreira de et al. Ambiente Urba no e Percepção da Poluição Sonora. Brasil, n. , p.01-13, 2005.

LIMA DA SILVA, J. L. et al. O ruído causando danos e estresse: possibilidade de atuação para a enfermagem do trabalho. Avances en Enfermería, v. 32, n. 1, p. 124-138, 2014. ISSN 0121-4500.

MAZER, S. E. Creating a culture of safety: reducing hospital noise. Biomed Instrum Technol, v. 46, n. 5, p. 350-5, Sep -Oct 2012. ISSN 0899-8205 (Print)0899-8205.

MENON, D.; MARTINS, A. P.; DYNIEWICZ, A. M. Condições de conforto do paciente internado em UTI neonatal. Saúde, v. 1, n. 1, 2014. ISSN 1984-7041.

MURALIKRISHNA, I. V.; MANICKAM, V. Chapter FifteenNoise Pollution and Its Control. In: (Ed.). Environmental Management: Butterworth-Heinemann, 2017. p.399-429. ISBN 978-0-12-811989-1.

MURPHY, E.; KING, E. Environmental Noise Pollution: Noise Mapping, Public Health and Policy. 1st Edition. San Diego, CA: Elsevier Inc., 2015. ISBN 978-0-12-411595-8.

NOTBOHM, G.; SIEGMANN, S. Noise stress for patients in hospitals - a literature survey. Proceedings of Meetings on Acoustics, v. 19, n. 1, p. 040130, 2013. Disponível em: <http://asa.scitation.org/doi/abs/10.1121/1.4800402>.

Acesso em: 25 ago 2022.

OTENIO, M. H.; CREMER, E.; CLARO, E. M. T. Intensidade de ruído em hospital de 222 leitos na 18ª Regional de Saúde -PR. Rev Bras Otorrinolaringol, v. 73, n. 2, p. 245-50, 2007.

PADMAKUMAR, A. D. et al. Effect of noise on tasks in oper ating theatres: a survey of the perceptions of healthcare staff. British Journal of Oral and Maxillofacial Surgery, v. 55, n. 2, p. 164-167, 2// 2017. ISSN 0266-4356. Disponível em: <http://www.sciencedirect.com/science/article/pii/ S0266435616303102>. Acesso em: 25 ago 2022.

PAZ, Elaine Carvalho da; FERREIRA, Andressa Maria Coelho; ZANNIN, Paulo Henrique Trombetta. Estudo Comparativo da Percepção do Ruído Urbano. São Paulo, v. 39, n. 03, p.467-472, 2005.

 34 | AMBIENTE hospitalar | ano 12 • 2º semestre • 2022  | artigos

PEIXOTO, P. V. et al. Nível de pressão sonora em Unida de de Terapia Intensiva Neonatal. Revista da Escola de Enfermagem da USP, v. 45, n. 6, p. 1309-1314, 2011. ISSN 1980-220X.

PEREIRA, R. P. et al. Qualificação e quantificação da ex posição sonora ambiental em uma unidade de terapia intensiva geral. Rev Bras Otorrinolaringol, v. 69, n. 6, p. 766-71, 2003.

PIVATTO, L. F.; GONÇALVES, C. G. D. O. Noise in a rooming in ambience: perception of users and nursing professionals. Revista CEFAC, v. 15, n. 6, p. 1461-1474, 2013. ISSN 1516-1846.

ROMEU, J. et al. Assessment of environmental noise and its effect on neonates in a Neonatal Intensive Care Unit. Applied Acoustics, v. 111, p. 161-169, 10// 2016. ISSN 0003682X. Disponível em: <http://www.sciencedirect.com/ science/article/pii/S0003682X16300974. Acesso em: 25 ago 2022.

SANTOS, B. R. D. et al. Effect of" quiet time" to reduce noise at the neonatal intensive care unit. Escola Anna Nery, v. 19, n. 1, p. 102-106, 2015. ISSN 1414-8145.

SHEIKHI, M. A.; EBADI, A.; RAHMANI*, H. Sleep disorder in cardiac care units: a special look at noise and light ef fects. 2014, v. 4, n. 01, p. 6, 2014-12-31 2014. ISSN 2278-778X. Disponível em: <http://www.ijbio.com/index.php/ijb/arti cle/view/630>. Acesso em: 25 ago 2022.

SILVA, M. C. D.; LUZ, V. B. D.; GIL, D. Noise in the hospital setting: impact on quality of life. Audiology-Communication Research, v. 18, n. 2, p. 109-119, 2013. ISSN 2317-6431.

SILVA, N. M. J.; NUNES, M. M. J. C. Ruído hospitalar: implica ções no bem estar do doente. 2014. Instituto Politécnico de Viseu, Escola Superior de Saúde de Viseu SOUSA, M. M. et al. Heart rate variability in high-risk new borns In the presence of noise. Rev CEFAC [Internet], v. 16, n. 1, p. 99-104, 2014.

SULZBACHER, E.; FONTANA, R. T. Concepções da equi pe de enfermagem sobre a exposição a riscos físi

cos e químicos no ambiente hospitalar/Conceptions of nursing staff about the exposure to physical and chemical risks in hospital environment/Concepciones del personal de enfermería sobre exposición a riesgos físicos y químicos en el ambiente hospitalario. Revista Brasileira de Enfermagem, v. 66, n. 1, p. 25, 2013. ISSN 0034-7167. Disponível em: <http://www.scielo.br/pdf/ reben/v66n1/v66n1a04.pdf >. Acesso em: 25 ago 2022.

SZYMCZAK, S. E.; SHELLHAAS, R. A. Impact of NICU de sign on environmental noise. J Neonatal Nurs, v. 20, n. 2, p. 77-81, Apr 01 2014. ISSN 1355-1841 (Print). 1355-1841. Disponível em: <https://www.ncbi.nlm.nih.gov/pmc/ articles/PMC3930172/pdf/nihms508803.pdf >. Acesso em: 25 ago 2022.

TOCHETTO, C. M. D. Eficácia de um programa para redu ção de ruído em unidade de terapia intensiva neona tal. Rev Bras Ter Intensiva, v. 23, n. 3, p. 327-334, 2011.

VAN DE GLIND, I.; DE ROODE, S.; GOOSSENSEN, A. Do patients in hospitals benefit from single rooms? A lit erature review. Health Policy, v. 84, n. 2-3, p. 153-61, Dec 2007. ISSN 0168-8510 (Print)0168-8510.

WHITE, B. L.; ZOMORODI, M. Perceived and actual noise levels in critical care units. Intensive and Critical Care Nursing, v. 38, p. 18-23, 2// 2017. ISSN 0964-3397. Dis ponível em: <http://www.sciencedirect.com/science/ article/pii/S0964339716300404 >. Acesso em: 25 ago 2022.

YODER, J. C. et al. Noise and Sleep Among Adult Medi cal Inpatients: Far From a Quiet Night. Arch Intern Med, v. 172, n. 1, p. 68-70, Jan 9 2012. ISSN 0003-9926 (Print). Disponível em: <http://archinte.jamanetwork.com/ pdfaccess.ashx?url=/data/journals/intemed/22604/ ilt0109_68_70.pdf >. Acesso em: 25 ago 2022.

ZANNIN, P. H. T.; ZANNIN, P. H. T. Assessment of Indoor and Outdoor Noise Pollution at a University Hospital Based on Acoustic Measurements and Noise Mapping. Open Journal of Acoustics, v. 6, n. 4, 2016.

AMBIENTE hospitalar | ano 12 • 2º semestre • 2022 | 35  artigos | 

A arquitetura multissensorial como recurso à acessibilidade nos centros especializados em reabilitação: o caso das deficiências auditiva e visual

Mirela Freitas Linhares Arquiteta

Jaqueline de Lima Pires Arquiteta, Doutora

Os Centros Especializados em Reabilitação (CER) são pontos de referência para a Rede de Cuidados da Pes soa com Deficiência (RCPD) e têm a finalidade de prestar serviços de reabilitação/habilitação a pessoas com defi ciências física, auditiva, visual e intelectual, que devem ser executados por equipes multiprofissionais e inter disciplinares desenvolvidas a partir das necessidades de cada indivíduo e de acordo com o impacto da deficiência sobre sua funcionalidade. No Brasil, ao contrário do que acontece com as deficiências físicas, as informações so bre acessibilidade arquitetônica para pessoas com de ficiências auditivas e visuais ainda são escassas. O pre sente trabalho teve como objetivos a compreensão das relações de interação entre o ambiente construído e as pessoas com deficiências sensoriais e a proposição de diretrizes projetuais arquitetônicas para a acessibilida de e inclusão plena desses indivíduos. O estudo foi con

duzido através de uma abordagem qualitativa com ob jetivo exploratório. Dentre os procedimentos adotados, foram consideradas as seguintes etapas: revisão teórica dos assuntos pertinentes ao tema, pesquisa de campo com entrevistas e observações e pesquisa de projetos de referência. Os resultados obtidos consistem em di retrizes projetuais de intervenção físico-espacial para os CER direcionadas às deficiências auditivas e visuais. Pressupõe-se que as experiências mediadas nos CER por um entorno material, com formas, sons, odores, cores, texturas e temperaturas, possam trazer significados po sitivos e dimensões inclusivas ao espaço físicos, corro borando para a produção de saúde através do processo de reabilitação/habilitação.

Palavras-chave: Acessibilidade, Deficiência Auditiva e Vi sual, Centros Especializados em Reabilitação.

 36 | AMBIENTE hospitalar | ano 12 • 2º semestre • 2022  | artigos

Multisensory architecture as a resource for accessibility in specialized rehabilitation centers

The Specialized Rehabilitation Centers (CER) are reference points for the Care Network for Persons with Disabilities (RCPD) and are intended to provide rehabilitation/habilitation services to people with physical, hearing, visual and intellectual disabilities, who must be performed by multiprofessional and interdisciplin ary teams developed based on the needs of each individual and according to the impact of the disability on their functionality. In Brazil, contrary to what happens with physical disabilities, in formation on architectural accessibility for people with hearing and visual impairments is still scarce. The present work aimed to understand the interaction between the built environment and people with sensory disabilities and to propose architectural design guidelines for the accessibility and full inclusion of these individuals. The study was conducted through a qualitative ap

proach with an exploratory objective. Among the procedures ad opted, the following steps were considered: theoretical review of matters relevant to the theme, field research with interviews and observations and research of reference projects. The results obtained consist of design guidelines for physical-spatial inter vention for CER aimed at hearing and visual impairments. It is assumed that the experiences mediated in the CER by a material environment, with shapes, sounds, odors, colors, textures and temperatures, can bring positive meanings and inclusive dimen sions to the physical space, corroborating for the production of health through the rehabilitation process.

Keywords: Acessibility, Specialized Rehabilitation Center, Sen sory disabilities.

Os Centros Especializados em Reabilitação (CER) são pon tos de referência para a Rede de Cuidados da Pessoa com Deficiência (RCPD), criados pela Portaria GM/MS nº 793, de 24 de abril de 2012 (BRASIL, 2012), e têm a finalidade de realizar diagnósticos e tratamentos, além de promo ver a concessão, a adaptação e a manutenção de tecno logia assistiva, sendo a reabilitação/habilitação realizada de forma interdisciplinar e com o envolvimento direto de profissionais e familiares nos processos de cuidado (BRA SIL, 2019). Esse acompanhamento acontece a partir das necessidades de cada indivíduo, considerando o impacto da deficiência sobre sua funcionalidade, bem como dos fatores clínicos, emocionais, ambientais e sociais envolvi dos. Os CER foram idealizados para auxiliar na recupera ção de deficiências físicas, sensoriais e intelectuais.

Pensar em acessibilidade para edificações e espaços urbanos e rurais, para além da obrigatoriedade legal, passou a ser um ato de legitimação de uma arquitetura e urbanismo inclusivos, que pressupõem espaços de uso democrático, onde todas as pessoas, inclusive aquelas com Deficiência Física, Sensorial e/ou Intelectual, tenham condições iguais de uso, compreensão e expressão.

No caso dos CER, as questões de acessibilidade espa cial tornam-se ainda mais preponderantes e desafiado ras, no sentido de se compreender como construir espa ços com capacidades inclusivas, que permitam interação entre usuários com diferentes deficiências, profissionais, familiares e destes com os ambientes, ao mesmo tempo respeitando as necessidades de dignidade e privacidade.

AMBIENTE hospitalar | ano 12 • 2º semestre • 2022 | 37  artigos | 

Como apoio à implantação desses equipamentos de saúde, foram elaboradas portarias ministeriais referen tes à Rede de Atenção às Pessoas com Deficiência, e ou tros documentos normativos, com o objetivo de orientar os projetos dos CER, quanto a aspectos técnicos e de ambiência. Nestes documentos as recomendações para adequação dos espaços às necessidades de acessibili dade são as conformidades com a NBR 9050:2020 (ABNT, 2020) e aos princípios do Desenho Universal.

Considerando os tipos de deficiências atendidas nos CER, um levantamento preliminar mostrou que as maiores di ficuldades para se trabalhar a acessibilidade espacial são relativas às deficiências sensoriais, visuais e auditivas, ten do em vista que estratégias projetuais direcionadas a pes soas com estas deficiências são pouco conhecidas, haven do carência de estudos e publicações voltados para uma arquitetura acessível e inclusiva para estes grupos.

Tendo como objeto o estudo da acessibilidade nos CER que prestam serviços para pessoas com deficiências au ditivas e visuais, os objetivos do presente trabalho foram a compreensão das relações de interação, que podem ser criadas entre o ambiente construído e as pessoas com deficiências sensoriais, e a geração de diretrizes projetuais arquitetônicas que propiciem a acessibilida de e a inclusão plena desses indivíduos.

O estudo foi conduzido através de uma abordagem qualitativa e com objetivo exploratório, tendo como pro cedimentos metodológicos as seguintes etapas: revisão teórica sobre os assuntos pertinentes ao tema e pesqui sa de campo, com entrevistas e observações relativas às necessidades de acessibilidade das pessoas com defici ências auditivas e visuais.

Os centros especializados em reabilitação: aspectos normativos

A Rede de Cuidados à Pessoa com Deficiência foi instituí da no âmbito do Sistema Único de Saúde através da Por taria GM/MS nº 793, de 24 de abril de 2012, como parte de uma política pública do Governo Federal (BRASIL, 2012).

Nesse contexto, foram propostos os Centros Especializa dos em Reabilitação (CER). Os CER são estabelecimentos de saúde de administração pública, com prestação de serviços de reabilitação/habilitação para pessoas com deficiência, considerando que, conforme o porte, podem atender até quatro tipos de deficiências

A habilitação/reabilitação da pessoa com deficiência compreende um conjunto de medidas, ações e serviços orientados a desenvolver ou ampliar a capacidade fun cional e desempenho dos indivíduos, tendo como fina lidade o desenvolvimento das potencialidades, talentos, habilidades e aptidões físicas. O trabalho é realizado num contexto que envolva aspectos cognitivos, sensoriais, psi cossociais, profissionais e artísticos, visando promover a conquista da autonomia e participação social do cidadão deficiente, para colocá-lo em igualdade de condições e oportunidades com as demais pessoas (BRASIL, 2019).

De acordo com a Portaria GM/MS nº 1.303, de 28 de junho de 2013, que estabelece os requisitos mínimos de ambientes para os CER, estes podem ser classificados quanto ao tipo e quantidade de serviços especializados de reabilitação oferecidos (BRASIL, 2013):

CER II – Auditiva e Física; Auditiva e Intelectual; Au ditiva e Visual; Física e Intelectual ou Intelectual e Visual;

CER III – Auditiva, Física e Intelectual; Auditiva, Física e Visual; Auditiva, Intelectual e Visual ou Física, Inte lectual e Visual;

CER IV – Auditiva, Física, Intelectual e Visual.

Para dar suporte aos gestores na implantação destas unidades de saúde, foram publicados dois documentos: Instrutivos de Reabilitação Auditiva, Física, Intelectual e Visual (BRASIL, 2013) e Manual de Ambiência dos Centros Especializados em Reabilitação e Oficinas Ortopédicas (BRASIL, 2017).

Através do Instrutivos de Reabilitação Auditiva, Físi ca, Intelectual e Visual é possível se obter informações sobre a programação arquitetônica dos CER e compre

 38 | AMBIENTE hospitalar | ano 12 • 2º semestre • 2022  | artigos
ƒ
ƒ
ƒ

ensão dos aspectos técnicos e funcionais envolvidos. Traz informações detalhadas do programa assistencial prestado, com suas especificidades de reabilitação nas diversas modalidades, assim como da estrutura física e de recursos necessários.

O Manual de Ambiência dos Centros Especializados em Reabilitação e Oficinas Ortopédicas é mais direcionado para os projetos de arquitetura. Aborda sobre a impor tância das ambiências nos CER e recomenda que, além das questões funcionais, sejam valorizadas as dimensões da inclusão. Esse documento enfatiza a importância dos ambientes serem confortáveis, acolhedores e que façam uso de aspectos de indução sensoriais, para despertar a percepção ambiental. Justifica tais direcionamentos para se obter a privacidade desejada, a interação entre as pessoas e destas com o ambiente, favorecendo o pro cesso de recuperação da saúde. O manual traz também quadros com a programação físico-funcional para os vá rios módulos, áreas de reabilitação específicas para cada tipo de deficiência, que podem ser agrupados conforme os tipos de serviços ofertados pelo CER, além de reco mendações de flexibilidade para futuras expansões.

Deficiências sensoriais

As deficiências sensoriais se caracterizam pelo não fun cionamento (total ou parcial) de algum dos cinco sen tidos. As deficiências relacionadas à visão e à audição são as mais frequentes e podem causar sérias perdas na capacidade do sistema de percepção, gerando déficits quanto a aquisição de informações advindas dos am bientes e das relações interpessoais. Em geral, a pessoa com deficiência sensorial tem dificuldades com o deslo camento, orientação, uso dos ambientes e comunicação (DISCHINGER et al, 2012).

Deficiência visual

A deficiência visual representa uma condição na qual ocorre a perda total ou parcial da visão. De acordo com

os dados do Censo Demográfico do IBGE (2010), a de ficiência visual ocupa o primeiro lugar entre as defi ciências nos brasileiros, atingindo cerca de 3,5% da população. Com base na definição legal, a deficiência visual é classificada em dois perfis (BRASIL, 2004):

ƒ

Cegueira: a acuidade visual é igual ou menor que 0,05 no olho que enxerga melhor e com a melhor correção óptica. Neste grau de deficiência visual, é afetada a capacidade de percepção quanto à cor, tamanho, distância, forma, posição e movimentos;

Baixa Visão: a acuidade visual está entre 0,3 a 0,05 no melhor olho e com a melhor correção óptica. A baixa visão, conforme a intensidade de compro metimentos, afeta a vida da pessoa quanto ao de sempenho e realização de atividades, uma vez que há redução de acesso às informações pela visão.

Quando a visão é restringida, se enquadrando nesses perfis de deficiência, a locomoção e localização espa cial tornam-se grandes desafios. A compensação des sa deficiência sensorial geralmente é feita pelo uso dos demais sentidos, que se tornam mais aguçados: a audição, o tato, o olfato e o paladar, que são utiliza dos de forma conjunta. Neste contexto, é fundamental uma arquitetura sensorial com dispositivos que sir vam como meios de comunicação e auxílio à acessi bilidade.

Os espaços construídos, de uma forma geral, não são equipados ou adequados para receber pessoas com de ficiência visual, possuindo barreiras físicas que podem causar acidentes. Além disso, a dificuldade de adapta ção e vivência em espaços diversos, pelas barreiras en contradas, gera um sentimento de exclusão e dificulta a participação dessas pessoas em serviços fornecidos pelo sistema público e no mercado de trabalho. Pode-se afir mar que o comportamento da sociedade é fundamental na reabilitação dessas pessoas, tendo-se o dever de im pulsioná-los a se desenvolver e avançar, adaptando-se às suas particularidades e minimizando ao máximo os obstáculos enfrentados.

AMBIENTE hospitalar | ano 12 • 2º semestre • 2022 | 39  artigos | 
ƒ

Deficiência auditiva

O conceito de deficiência auditiva é definido legalmente como “a perda bilateral, parcial ou total, de quarenta e um decibéis (dB) ou mais, aferida por audiograma nas frequências de 500 Hz, 1.000Hz, 2.000Hz e 3.000Hz”.

Considera-se que uma perda auditiva acima de 70dB é uma surdez severa. No caso dos surdos, a lei prevê que a principal comunicação deva se dar pelo uso da Língua Brasileira de Sinais (Libras) (BRASIL, 2005).

O censo de 2010 demonstrou que cerca de 1,15% da po pulação possui deficiência auditiva severa, ocupando o terceiro lugar na lista de deficiências mais frequentes no país (IBGE, 2010). A deficiência auditiva pode oferecer perigos pela ausência dos alertas que os sons podem gerar, assim como problemas na comunicação interpes soal, representando grandes obstáculos para o desen volvimento e capacitação dessas pessoas.

O projeto de inclusão social da pessoa com deficiência auditiva tem início na sua reabilitação, mas também no seu estado psicológico. Nesse sentido, uma arquitetura sensível e de caráter inclusivo torna-se de grande rele vância. Assim, sabendo-se que tais indivíduos interagem e compreendem o mundo através de suas experiências visuais, um espaço voltado para essas pessoas deve ga rantir o máximo de alcance visual aos ambientes e cir culações, como também oferecer espaços pessoais di mensionados adequadamente, de modo a permitir as gesticulações necessárias à comunicação em Libras.

Acessibilidade

A principal Norma de Acessibilidade, NBR 9050:2020 (ABNT, 2020), estabelece parâmetros técnicos, projetuais e construtivos a serem aplicados nas edificações, mo biliários espaços e equipamentos urbanos. Esta norma segue os princípios do Desenho Universal e deve ser implementada obrigatoriamente em todos os edifícios da administração pública ou instituições prestadoras de serviços destinados ao público em geral.

Entende-se que, no caso dos CER, a acessibilidade deve ser vista como questão prioritária, uma vez que, dentro de suas atribuições, os espaços físicos devem ofere cer condições para serem plenamente inclusivos. A NBR 9050:2020 é a principal referência para projetos sobre a acessibilidade espacial, sendo citada nos dois documen tos elaborados pelo Ministério da Saúde para definir os critérios de implantação dos CER. Esta norma, no entanto, contempla, de forma mais ampla, aspectos das necessi dades das pessoas com deficiências de mobilidade física e apenas os aspectos essenciais relativos às necessida des das pessoas com deficiências sensoriais, não con templando questões relativas a problemas cognitivos. Especificamente aos deficientes auditivos, a norma é bem restrita quanto às propostas de intervenção espacial.

No documento Manual de Ambiência dos CER (BRASIL, 2017), é recomendado que sejam observados os princí pios do Desenho Universal como modo de trazer a com preensão das diferenças de habilidades e de interações das pessoas, inclusive àquelas com deficiência física, sensorial e/ou intelectual. Para tanto, é necessário que a ambiência seja pensada de modo a:

Eliminar barreiras arquitetônicas e comunicacionais;

Promover acesso, respeitando as capacidades indi viduais;

Atender aos diferentes níveis de compreensão dos indivíduos;

Promover legibilidade espacial e informativa;

Prevenir riscos, ofertando ao usuário do espaço se gurança física e psicológica;

Promover o menor desgaste físico, mental e emocio nal possível e

Garantir adequada ergonomia, considerando a flexi bilidade dos espaços para atender as capacidades e funcionalidade dos usuários.

A adoção dos princípios do Desenho Universal, não significa apenas um design livre de barreiras, mas um

 40 | AMBIENTE hospitalar | ano 12 • 2º semestre • 2022  | artigos
ƒ
ƒ
ƒ
ƒ
ƒ
ƒ
ƒ

espaço que traz a inclusão dos indivíduos, sendo con vidativos, de fácil percurso, oferecer atrativos e, princi palmente, reduzindo os riscos, diminuindo a distância funcional entre os elementos do espaço e as capacida des das pessoas. É necessário possibilitar a percepção, alcance e entendimento do espaço a qualquer tipo de pessoa, em suas diferentes condições de mobilidade e uso, respeitando seu direito de ir e vir.

Seguindo essa linha de pensamento, o Manual de Am biência dos CER orienta que os espaços devam ser ide alizados considerando além dos aspectos físico, funcio nal e normativo, valorizando a interação das pessoas. A proposta é que as ambiências sejam confortáveis e acolhedoras, utilizando componentes que estimulem as dimensões sensoriais e favoreçam, a um só tempo, pri vacidade e interação entre as pessoas e com os espaços, especialmente utilizando-se a cor, a luz, as texturas, os sons e os cheiros (BRASIL, 2017).

Tendo em vista as muitas vertentes que podem envol ver a construção de espaços físicos acessíveis, conside rando os parâmetros técnicos previstos nas normas, os aspectos de percepção ambiental previstos no Desenho Universal e os relacionados ao contexto físico-espacial da arquitetura, o termo Acessibilidade Espacial se ade qua, por abranger amplamente a essas questões (BER NARDI et al., 2011; DISCHINGER et al., 2012).

Sobre a Acessibilidade Espacial, pode-se dizer que diz respeito às condições dos ambientes, de forma a permi tir o acesso, o deslocamento, a orientação e o uso dos equipamentos para qualquer indivíduo, sem necessitar o conhecimento prévio de suas características (BERNAR DI et al., 2011).

Considerando todas as variáveis que podem estar en volvidas na construção de um espaço físico plenamente acessível, entende-se que o conceito da Acessibilidade Espacial seja o mais apropriado para definir, dentro dos objetivos desta pesquisa, o tipo de acessibilidade que se pretende trazer a partir da proposição das diretrizes de intervenção físico-espacial.

Pesquisa de campo

Ao longo da pesquisa, foram realizadas visitas técnicas às instituições União dos Cegos do Brasil e o Instituto Benjamin Constant, que são referências em fornecer assistência a pessoas com deficiências, principalmente visuais, mas que também podem ter a auditiva, como é o caso dos surdo-cegos. A partir destas visitas, foi pos sível realizar observações sobre como o espaço é utili zado por estes deficientes e aplicar entrevistas semies truturadas em funcionários e pacientes. Esses métodos qualitativos de abordagem permitiram o levantamento de dados empíricos para a pesquisa, que se mostraram valiosos na identificação das questões que deveriam ser consideradas sobre a acessibilidade espacial para estes tipos de deficiências.

Entrevistas

As entrevistas semiestruturadas abordaram, inicialmen te, perguntas genéricas sobre a deficiência e as dificul dades enfrentadas, permitindo abrir diálogos e conduzir a depoimentos como:

A maior dificuldade da pessoa com deficiência visual são os espaços de uma forma geral e como o “tino”, a capaci dade de perceber pelo deslocamento do ar a presença de um obstáculo e aprender a diferenciar a extensão do som, é importante para o auxílio na locomoção. (Entrevista rea lizada na União dos Cegos do Brasil)

O preconceito do zelo atrapalha, a família deve acreditar na capacidade de independência, encorajando a autos suficiência. (Entrevista realizada na União dos Cegos do Brasil)

Quando você possui baixa visão e audição, a luz precisa estar sempre direcionada para o seu plano de trabalho, para que tenha uma boa visibilidade. Espelhos e vidros são um grande problema, porque dão uma falsa profun didade e seus reflexos tiram a capacidade de percepção espacial. (Entrevista realizada no Instituto Benjamin Constant)

AMBIENTE hospitalar | ano 12 • 2º semestre • 2022 | 41  artigos | 

Observações em campo

Por meio da visita feita às instalações do Instituto Benja min Constant, pode-se observar espaços e instrumentos necessários à reabilitação de pessoas com deficiência vi sual, como a colocação de barras e pisos táteis (Figura 1). No local onde são realizadas as atividades voltadas para pessoas que possuem surdo-cegueira como deficiência, algumas estratégias foram traçadas para auxiliar no pro cesso de reabilitação dos pacientes, como linhas guias com texturas e cores diferentes, que ajudam os alunos com resíduo visual na identificação do ambiente. Tam bém se pode observar a utilização da campainha, que além do barulho possui uma lâmpada que pisca em co res avermelhadas e um ventilador. O barulho alerta as pessoas cegas, a lâmpada as pessoas surdas, e o ventila dor alerta aos surdo-cegos para a atenção à chegada de outras pessoas no espaço.

Projetos de referência

Utah Schools for the Deaf and the Blind

Um dos projetos de referência para esta pesquisa foi o Utah Schools for the Deaf and the Blind, uma escola especiali zada para alunos com deficiência visual, auditiva, situada na cidade de Salt Lake City, no estado de Utah, nos Esta dos Unidos. O projeto, do arquiteto Joe Jacoby, é destinado às funções de educação, terapia e serviços para diferen tes níveis de habilidades sensoriais, comportamentais e cognitivas. O conceito principal do projeto foi criar pontos de referência, para auxiliar na identificação dos espaços e no posicionamento espacial. A partir da utilização de co res claras, esses pontos são destacados com detalhes em alto contraste de iluminação em vermelho. As circulações também foram pensadas de modo a auxiliar na orientação através de linhas-guias nas paredes e nos pisos (Figura 2).

 42 | AMBIENTE hospitalar | ano 12 • 2º semestre • 2022  | artigos
Figura 1 – Exemplo de barra e pisos tátil. Fonte: Foto autoras. Figura 2 – Exemplo de linhas guias. Fonte: Jacoby Architects, 2022.

As linhas-guias nas paredes, para orientação, foram tra balhadas através do contraste de texturas e as dos pi sos de orientação e balizamento dos limites externos, através de contrastes de cor e luminâncias. Além disso, o edifício conta com salas Snoezelen, que são equipadas

para causar efeitos multissensoriais através da música, sons, luz, estimulação táctil e aromas, assim como os pá tios e jardins sensoriais de exploração (Figura 3). O edi fício foi pensado para ser interativo, com movimentos e texturas, tornando-se alegre e colorido.

Gallaudet University

O segundo projeto de referência foi o da Gallaudet Uni versity, a única universidade do mundo cujos programas são desenvolvidos para pessoas surdas. O projeto se constitui em uma adequação do campus, para tornar o espaço mais acessível e inclusivo a um corpo discente e docente formado por pessoas com deficiência auditiva. Desenvolvido pelo arquiteto Hansel Bauman em conjun

to com o Departamento de Estudos para Surdos da ASL da Gallaudet, o projeto se embasou na linguagem gestu al e na conectividade visual entre as pessoas. No estudo, foram desenvolvidos princípios que ficaram conhecidos como Metodologia Deaf Space, que aborda os cinco prin cipais pontos de contato entre experiências de surdos e o ambiente construído (HURLEY, 2016):

AMBIENTE hospitalar | ano 12 • 2º semestre • 2022 | 43  artigos | 
Figura 3 – Exemplo de Jardim sensorial. Fonte: Jacoby Architects, 2022.

ƒ

Espaço e proximidade – a comunicação entre pesso as com deficiência auditiva deve ser considerada a partir de dois tipos de relações de espaço: a distân cia e a orientação, para manter o contato visual e a leitura da expressão facial. É necessário o dimensio namento de um espaço proxêmico e pessoal, ade quado para a comunicação por gestos;

zes foram organizadas através dos seguintes aspectos do contexto físico-espacial de edifícios: Deslocamento e Orientação Espacial, Legibilidade Espacial, Uso dos Es paços e Aspectos Sensoriais.

Deslocamento e orientação espacial

ƒ

Alcance sensorial – pessoas com deficiência auditiva têm os sentidos visuais e táteis mais aguçados para perceber informações do ambiente ao redor e os utiliza para a leitura espacial, quanto a orientação e prevenção de risco;

O dimensionamento da rota acessível deve levar em consideração condições especiais de deslocamento:

Para a deficiência visual, deve-se prever um espaço pro xêmico adequado para o deslocamento com bengala ou cão-guia (em conformidade com a NBR 9050:2020);

ƒ

Mobilidade e proximidade – No deslocamento de duas pessoas com deficiência auditiva se comuni cando, três tipos de relações de espaço têm que ser previstas: a distância e a orientação entre as pessoas, para manter o contato visual e a leitura da expressão facial; o dimensionamento de um espaço proxêmico pessoal adequado para a comunicação por gesticu lação e as condições de leitura espacial;

Para a deficiência auditiva, deve-se prever um espa ço proxêmico adequado para o deslocamento com comunicação entre pessoas através de gestos.

A existência de mobiliário ou desníveis em rota acessível devem ser evitados, para se evitar risco de acidentes. Quando isto não for possível, deve-se seguir as seguin tes recomendações:

Luz e cor – A qualidade das condições ambientais re lacionadas à luminância dos espaços são importantes na comunicação visual e na leitura espacial das pes soas com deficiência, para evitar fadiga ocular; ƒ Acústica – A qualidade das condições ambientais re lacionadas à acústica é importante para pessoas com deficiência auditiva que usam tecnologia assistiva, como aparelhos auditivos ou implantes cocleares, por experimentarem muitos tipos e graus diferentes de sons ao mesmo tempo, devendo se minimizar interfe rências, para evitar distrações e falta de concentração.

ƒ

A partir dos levantamentos efetuados, foi possível a composição, conformação e definição de diretrizes pro jetuais de intervenção físico-espacial para a Acessibili dade Espacial nos CER com prestação de serviços para pessoas com deficiência auditiva e visual. Tais diretri

Para a deficiência visual, quando existir mobiliário em rota acessível, este deve seguir as dimensões apropriadas de largura e altura para evitar colisão (em conformidade com a NBR 9050:2020);

Para a deficiência auditiva, quando houver existência de mobiliário em rota acessível, este deve ser destaca do por contrastes visuais, para que possam ser identifi cados à distância, tendo em vista que a necessidade de contato visual entre pessoas com deficiência auditiva no momento do deslocamento é um fator de distração quanto a elementos que possam existir no caminho.

Os desníveis nos limites de rota acessível devem ser in formados através de uso de contrastes táteis e visuais ou de barreiras de proteção, evitando-se o risco de aci dentes, servindo como alerta, tanto para as pessoas com deficiências visuais quanto auditivas (em conformidade com a NBR 9050:2020).

No deslocamento, as rotas acessíveis devem ser iden tificadas através de linhas-guias nas paredes e/ou pisos, conforme as condições do espaço físico, devendo ser trabalhadas através de contrastes visuais e táteis (em

 44 | AMBIENTE hospitalar | ano 12 • 2º semestre • 2022  | artigos
ƒ
ƒ
ƒ
ƒ

conformidade com a NBR 9050:2020). Este recurso serve para orientação espacial tanto das pessoas com defici ências visuais quanto auditivas.

Sinalização visual e tátil e/ou auditiva deve ser pre vista ao longo do percurso, considerando os pontos de tomada de decisão e a devida identificação dos espaços (em conformidade com a NBR 9050:2020). Este recurso serve para a orientação espacial tanto das pessoas com deficiências visuais quanto auditivas.

Pontos de interseção de rotas acessíveis devem ter atenção quanto a possíveis colisões, devendo-se seguir as recomendações:

ƒ

Para a deficiência visual, deve-se fazer uso de sina lização das linhas-guias dos pisos. Contrastes táteis devem ser usados como alerta (em conformidade com a NBR 9050:2020).

ƒ Para a deficiência auditiva, pode-se utilizar como re curso para amplitude visual espelhos convexos em ponto alto, junto a interseção das rotas, e o uso de curvas ao invés de arestas, nos planos verticais que se encontram na interseção das rotas.

ƒ

Toda rota acessível deve ser provida de iluminação natural ou artificial com nível mínimo de luminância (em conformidade com a NBR 9050:2020). Este recur so serve para orientação espacial tanto das pessoas com deficiências visuais quanto auditivas.

Legibilidade espacial

Nos acessos da edificação e nos pavimentos devem exis tir planos e mapas com representações visuais, táteis e/ ou sonoras. Este recurso serve para o entendimento da organização espacial do edifício, localização de lugares e identificação das rotas, tanto para pessoas com defici ências visuais quanto auditivas

Nos espaços físicos da edificação, deve-se procurar distinguir as bordas de superfícies grandes, como pisos, paredes e tetos, através de contrastes visuais. Este re curso serve para auxiliar na percepção do espaço, com os seguintes objetivos:

ƒ

Para a deficiência visual: pessoas com baixo grau de visibilidade conseguem distinguir contrastes visuais e formas simples. Este recurso auxilia na percepção tridimensional do espaço;

Para a deficiência auditiva, este recurso auxilia na leitura espacial e assimilação de informações sobre o ambiente.

Demarcação de pontos e elementos específicos do espaço como portas, passagens, escadas e eleva dores deve-se dar através de contrastes visuais e táteis e/ou sonoros (em conformidade com a NBR 9050:2020). Este recurso serve tanto das pessoas com deficiências visuais quanto auditivas.

Portas e paredes envidraçadas, localizadas nas áreas de circulação, devem ser claramente identificadas com si nalização visual de forma contínua, para permitir a fácil identificação visual da barreira física (em conformidade com a NBR 9050:2020). Este recurso serve tanto das pes soas com deficiências visuais quanto auditivas.

Pontos de Referência na edificação, como um local es pecífico ou um espaço, por exemplo, entradas/saídas e espaços de convivência, podem ser destacados por con trastes de visuais ou formais. Este recurso serve para auxiliar na percepção espacial, quanto a identificação e posicionamento de espaços importantes, tanto das pes soas com graus de deficiências visuais que conseguem distinguir contrastes visuais e formais quanto auditivas.

Reflexos de grandes superfícies brilhantes devem ser evitados por gerar confusões visuais tanto nas pessoas com deficiências visuais quanto auditivas em relação as seguintes questões:

ƒ

Para a deficiência visual, em pessoas com graus de deficiência que conseguem distinguir contrastes vi suais os reflexos podem gerar ilusões na percepção espacial;

ƒ

Para a deficiência auditiva, os reflexos podem afetar a habilidade de pessoas que têm baixa audição de se comunicar leitura labial.

AMBIENTE hospitalar | ano 12 • 2º semestre • 2022 | 45  artigos | 
ƒ
ƒ

Ambientes amplos, sem barreiras visuais pode ajudar na leitura espacial "em 360 graus" e facilitar a orien tação espacial. Este recurso contribui para um melhor alcance sensorial da pessoa com deficiência auditiva.

Uso dos espaços (edifício e ambientes)

Em espaços de uso específico ou compartilhado com pesso as com deficiência visual, deve-se prever espaço proxêmico que considere a presença do cão-guia ao lado do dono.

Em espaços de uso específico ou compartilhado com pessoas com deficiência auditiva, deve ser assegurado sistema de comunicação, através de tecnologia assistiva com recurso sem fio, através de transmissores e recepto res FM (em conformidade com a NBR 9050:2020).

Em espaços de uso especifico ou compartilhado com pessoas com deficiência visual, o leiaute deve ser pen sado com relação a orientação e distância, de modo a assegurar que será possível contato visual entre pessoas para reconhecimento da expressão facial e leitura labial

A iluminação dos espaços deve ser projetada de modo a evitar problemas, como brilho, padrões de sombra, luz de fundo. A interferência dessas questões pode se tornar inconveniente pelas seguintes questões:

ƒ

Para a deficiência visual, em pessoas que não têm cegueira total podem prejudicar na realização de tarefas e causar acidentes (em conformidade com a NBR 9050:2020);

Os contrastes são percebidos por meio dos sentidos da visão, tato e audição e estes podem ser aplicados nos ambientes através da cor, luz, textura e sons, ajudando a intensificar as diferenças entre as superfícies, distin guindo formas e definindo direcionamentos.

O olfato pode ser explorado sensorialmente nos espa ços através de aromas diferentes, para distinguir espa ços ou áreas diferentes do edifício.

O deslocamento de ar impulsionado por equipamento mecânico pode ser utilizado como meio de informação em situações em que a pessoa esteja desenvolvendo uma atividade concentrada e não atente para outros sinais.

Formas podem ser usadas para explorar o sentido da visão e do tato auxiliando nas distinções e como refe rências espaciais.

Formas de espaço com configuração e volumes mais simples e regulares permitem uma percepção melhor quanto à orientação e legibilidade espacial.

ƒ

Para a deficiência auditiva, podem atrapalhar a co municação visual e causar fadiga ocular.

Em espaços de uso específico ou compartilhado com pessoas com deficiência auditiva, quando usam disposi tivos auxiliares, como aparelhos auditivos ou implantes cocleares, recomenda-se que os ambientes sejam trata dos acusticamente para reduzir a reverberação e outros ruídos de fundo, que podem ser um fator de distração e atrapalhar na concentração.

Aspectos sensoriais

A informação deve ocorrer através do uso de, no mínimo, dois sentidos: visual e tátil ou visual e sonoro (em con formidade com a NBR 9050:2020).

As questões levantadas na revisão teórica trouxeram a compreensão do que são os CER nas suas vertentes como espaço simbólico de inclusão, espaço assistencial de saúde e espaço construído. Entender as representa ções desses vários “espaços” num único espaço, mostra a complexidade projetual de concepção desses estabe lecimentos, que através de aspectos sensoriais, funcio nais e técnicos, devem assumir dimensões de significân cia, resolutividade e eficiência.

Na pesquisa, considerou-se que um melhor conheci mento destas singularidades poderia contribuir para a geração de diretrizes projetuais voltadas a intervenções físico-espaciais de estímulos sensoriais. As formas para se buscar subsídios para tais questões foram: pesquisa de campo direcionada ao conhecimento das necessida des dos deficientes sensoriais, através de entrevista e observações, e a análise de projetos internacionais de referência direcionados as pessoas com deficiências au

 46 | AMBIENTE hospitalar | ano 12 • 2º semestre • 2022  | artigos

ditivas e visuais, que tenham relacionado as interven ções espaciais aos aspectos sensoriais. Com base nas investigações se obteve os subsídios para se fazer pro posições de intervenção espacial através de diretrizes abrangentes e inclusivas.

Pressupõe-se que as experiências mediadas nos CER por um entorno material com formas, sons, odores, co res, texturas e temperaturas, possam trazer significados positivos e dimensões inclusivas ao espaço físicos, cor roborando para a produção de saúde através do proces so de reabilitação/habilitação.

BRASIL. Ministério da Saúde. Instrutivos de Reabilitação Auditiva, Física,Intelectual e Visual. Brasília: Ministério da Saúde, 2013.

BRASIL. Ministério da Saúde. Portaria nº 793, de 24 de abril de 2012. Institui aRede de Cuidados à Pessoa com Deficiência no Âmbito do Sistema Único de Saúde. Diá rio Oficial da União, Brasília, DF, 24 abr. 2012.

BRASIL. Ministério da Saúde. Saúde da Pessoa com Deficiência: diretrizes, políticas e ações. Brasília: Ministério da Saúde, 2019. Disponível em: https://www.saude.gov. br/saude-de-a-z/saude-da-pessoa-com-deficiencia. Acesso em: 01 abr 2020.

BRASIL. Ministério da Saúde. Saúde. Manual de Ambiência dos CentrosEspecializados em Reabilitação (CER) e das Oficinas Ortopédicas: Orientações para a elabo ração de projetos (construção, reforma e ampliação). Brasília: Ministério da Saúde, 2017.

DISCHINGER, M.; ELY, V. H.; PIARDI, S. M. Promovendo acessibilidade espacial nos edifícios públicos. Florianó polis: MPSC, 2012.

ABNT. Associação Brasileira de Normas Técnicas. NBR 9050: 2020. Acessibilidade a edificações, mobiliário, espaços e equipamentos urbanos. Rio de Janeiro, 2020. BERNARDI, N.; PINA, S. A. M. G.; ARIAS, C. R.; BELTRAMIN, R. M.G. O desenho universal no processo de projeto. In: KOWALTOWSKI, Doris C. C. K.; MOREIRA, D. C.; PETRECHE, J. R. D.; FABRICIO, M. M. (Org.). O processo de projeto em arquitetura: da teoria à tecnologia. São Paulo: Oficina de Textos, cap. 11, p. 222-244, 2011.

BRASIL. Decreto nº5.296, de 2 de dezembro de 2004. Regulamenta a Lei nº 10.436, de 24 de abril de 2002, que dispõe sobre a Língua Brasileira de Sinais - Libras, e o art. 18 da Lei nº 10.098, de 19 de dezembro de 2000. Disponível em: http://www.planalto.gov.br/ccivil_03/_ Ato2004-2006/2005/Decreto/D5626.htm. Acesso em: agosto 2022.

BRASIL. Ministério da Saúde. Gabinete do Ministro. Portaria nº 1.303, de 28 de junho de 2013. Estabelece Requisitos Mínimos de Ambientes para os Componentes da Atenção Especializada da Rede de Cuidados à Pessoa com Deficiência no Âmbito do Sistema Único de Saúde.

GABRILLI, M. Desenho Universal: um conceito para todos. Disponível em: http://www.rinam.com.br/files/ REFERENCIAS_DesenhoUniversalumconceitopar atodos. pdf. Acesso em: 01 abr 2020.

HURLEY, A. K. How Gallaudet University’s Architects Are Redefining DeafSpace.2016 Disponível em: https:// www.curbed.com/2016/3/2/11140210/gallaudet-deaf space-washington-dc.Acesso em: 01 abr2020.

IBGE. Instituto Brasileiro de Geografia e Estatística. Censo Demográfico 2010: Características gerais da popula ção, religião e pessoas com deficiência. Rio de Janeiro, p. 71-89, 2012.

JACOBY ARCHTECTS. Utah Schools For The Deaf And The Blind, Salt Lake Center. C. Mark Openshaw Education Center. Disponível em: https://jacobyarchitects.com/ portfolio-item/utah-schools-for-the-deaf-and-theblind/. Acesso em: 01 set 2022.

NEVES, Juliana Duarte. Arquitetura Sensorial: A arte de projetar para todos os sentidos. Rio de Janeiro: Mauad X, 2017.

AMBIENTE hospitalar | ano 12 • 2º semestre • 2022 | 47  artigos | 

Do concreto ao invisível: as marcas indeléveis da sindemia no Brasil Palestra com Dr. Gonzalo Vecina

1.A Regional São Paulo convidou o médico e sanitarista, ex-presidente da ANVISA, Dr. Gonzalo Vecina Neto, para uma reflexão crítica e panorâmica sobre as interações que vivemos como sociedade e como o contexto so cioeconômico impacta nos problemas de saúde da população, durante a pandemia que atravessamos.

Estudo de Caso – Hospital Regional Litoral Norte SP

O Hospital Regional Litoral Norte, localizado em Caraguatatuba, São Paulo, foi inaugurado em 2020.

Para apresentação do estudo de caso, a Regional São Paulo contou com a arquiteta Cristina Gomes Jötten, que abordou sobre os aspectos de planeja mento e política pública Regional da Secretaria de Estado da Saúde, contratante do projeto e obras. O projeto arquitetônico foi de autoria da Fernandes Arquitetos Associados.

Os arquitetos convidados abordaram os aspectos de planejamento e política pública Regional da Secretaria de Estado da Saúde, contratante do projeto e obras, a Certifica ção Sustentabilidade AQUA-HQE e as particularidades do projeto arquitetônico.

2. AMBIENTE hospitalar | ano 12 • 2º semestre • 2022 | 49 

A arte de contar histórias, humanizando os âmbitos da saúde e ducação Palestra Marisol-Valdir

Com o tema “A Arte de contar histórias, humanizando os âmbitos da saúde e educação”, foi realizada palestra no dia sete de abril, marcando o retorno da entidade aos eventos presenciais, após dois anos suspensos devido à pandemia de Covid-19. Além de Valdir Cimino, Mestre em Ciências da Saúde, Fundador da Viva e Deixe Viver, a mé dica pediatra Marisol Sendin, terapeuta comportamen tal cognitiva e coordenadora do Instituto de Psiquiatria HCFMUS, também realizou palestra em torno do tema da humanização hospitalar.

4.

Visita ao Hospital Beneficência Portuguesa (BP), de São Paulo

Acompanhados pela equipe técnica de en genharia da BP, os associados visitaram as áreas recém reformadas do hospital: ambulatoriais, medi cina diagnóstica, leitos de internação e ambientes sociais.

Visita ao Centro de Ensino e Pesquisa Albert Einstein

Na ocasião, a Regional São Paulo contou com a am pla apresentação do projeto, realizada pela gerente geral, Clarice Haidamous, e pelo engenheiro res ponsável pelo projeto de instalações, Regis Mudi, ambos da equipe de engenharia do HIAE.

Os participantes tiveram a oportunidade de conhecer o interior do edifício recém inaugurado através do corredor social com vista a am bientes como: salas de aula, laboratórios, praça de alimentação, jardim central, áreas técnicas de instalações e infraestrutura, entre outros.

Créditos do projeto:  Projeto de Arquitetura por Moshe Safdie,  Projeto Executivo: por Perkins + Will,  Projeto de Paisagismo: por Isabel Duprat.

5.
3.  50 | AMBIENTE hospitalar | ano 12 • 2º semestre • 2022  | acontece

ABDEH

DISTRITO FEDERAL

Palestra do Engenheiro Sandro Dolghi

No dia 03/08/22 houve uma palestra técnica sobre "Climatização Hospitalar, ABNT NBR 7256:2021 e Re solução RDC nº 50 de 2002, com o eng. Sandro Dolghi. Sandro é engenheiro mecânico, especialista em Saúde Coletiva e Vigilância Sanitária, mestre em engenharia e ciência dos materiais e especialista em Regulação e Vi gilância da Agência Nacional de Vigilância Sanitária. Os temas abordados foram conceitos básicos de condicio namento do ar, equipamentos e demais componentes do sistema de climatização, tratamento de ar em esta belecimentos assistenciais de saúde, exigências da RDC 50 de 2002, principais conceitos da NBR 7256:2021 e ca racterísticas das instalações de climatização para EAS.

Visita ao Hospital Santa Marta

6.A ABDEH do Distrito Federal organizou, no dia 28/05/22, a visita técnica ao Hospital Santa Marta, em Taguatinga. O Hospital Santa Marta estava passando por uma am pliação de suas instalações, com incremento de leitos e melhorias nas unidades assistenciais e de apoio. Nesta visita técnica, os associados tiveram a oportunidade de conhecer a nova CME, a UTI neonatal e uma das novas alas de internação, além do lactário, totalmente remo delado, e o refeitório dos colaboradores. Os projetos de ampliações e reformas foram desenvolvidos pelo escri tório Simmetria Arquitetura.

7. acontece |  AMBIENTE hospitalar | ano 12 • 2º semestre • 2022 | 51 

ABDEH PERNAMBUCO

Visita Clínica Florence

9.

Em 17 de junho, a regional PE fez uma visi ta guiada na Clínica Florence, de cuidados paliativos e reabilitação. Na oportunida de, 20 associados conheceram as instalações recém inau guradas da unidade, podendo ver o trabalho de restaura ção de casa histórica, que funciona como administrativo e apoio, jardins terapêuticos e a nova edificação, e entender o funcionamento da unidade.

8.Palestra Paisagismo e Saúde

Em 31 de março, em Recife, na sede do CAU, tivemos a retomada dos eventos presenciais da regional PE, com a realização de evento híbrido, com o tema Paisagismo e Saúde: visão nacional, o que esperar do futuro e estudos de casos. Para a noite, os convidados foram a Professora Jeanne Trindade, que engrandeceu o evento com conheci mento técnico e conceitual, encantando a plateia, e Rodri go Lago, com estudos de casos regionais, entre eles áreas no complexo hospitalar do Hospital Português, hospital de referência na cidade. Presencialmente a plateia contou com 15 associados e online 75 presentes.

 | acontece  52 | AMBIENTE hospitalar | ano 12 • 2º semestre • 2022

Visita Bioxxi

Em 21 de julho, as regionais Recife e Paraíba promove ram visita técnica para seus associados. Foram 40 pessoas para a Bioxxi, onde foi possível conhecer o processo de fun cionamento de uma CME terceirizada e ter uma aula sobre o negócio em si.

Visita ao Hospital Vila Nova Star

Mesa com o CREA PE

Em cinco de julho, a ABDEH PE com pôs mesa, junto ao CREA PE e repre sentante das entidades médicas, na abertura de campanha de fiscalização em hospitais. O evento aconteceu no auditório do Hospital da Restaura ção. Logo após a cerimônia, o grupo percorreu as insta lações da unidade de saúde.

Em 20 de maio, a regional PE, em parceria com o SEBRAE, fez visita ao Vila Nova Star, unidade da Rede D’or, em São Paulo, aproveitando o período da feira hospitalar. O grupo de 20 participantes percorreu toda a unidade hospitalar, com a atenta e detalhada explicação da equipe do hospital.

12.
10.
11. acontece |  AMBIENTE hospitalar | ano 12 • 2º semestre • 2022 | 53 

ABDEH BAHIA

Reunião Equipe Regional

Em primeiro de junho de 2022, a equipe da regional Bahia se reuniu, pela primeira vez no ano, presen cialmente após a pandemia, para planejar e definir os eventos para o segundo semestre. Para este ano foram previstos dois eventos online (julho e agosto), uma visita técnica com palestra online do autor do projeto e um evento presencial em novembro.

Na foto: Leila Uzeda, Amélia Záu, Doris Vilas-Boas e Laís Matos.

Palestra Técnica SOMASUS: Ferramenta para auxílio de projeto de EAS

A ABDEH promoveu, no dia 28 de julho de 2022, a palestra “SOMASUS: Ferramenta para auxílio do projeto de EAS”. A Regional Bahia conduziu o evento online. Estiveram conectadas no evento cerca de 90 pessoas para ouvir o Prof. Antônio Pedro de Carvalho e Prof. Marcio Oliveira.

Com muita satisfação, pelo sexto ano consecutivo a ABDEH e o Grupo de Estudos em Arquitetura e Engenharia Hospitalar (GEA-hosp), da Universidade Federal da Bahia, re alizam juntos a palestra de abertura do Seminário Anual de Pesquisa do GEA-hosp. O professor Dr. Antônio Pedro Alves de Carvalho apresentou o seminário e o grupo de pesquisa e o professor Marcio Oliveira explicou o início da criação da ferramenta, as etapas passadas e a forma que se encontra nos dias atuais.

O evento promoveu uma discussão interessante sobre a ferramenta SOMASUS, que se mostra muito útil e atual. No final, houve espaço para esclarecimento de dúvidas e foi feita a divulgação das apresentações dos pesquisadores do GEA-hosp, que foram rea lizadas no dia seguinte, das 8 às 18h. Os vídeos com as apresentações das pesquisas estão disponíveis no canal do GEA-hosp no Youtube, que pode ser acessado através de sua página na internet (geahosp.wordpress.com).

13. 14.
 54 | AMBIENTE hospitalar | ano 12 • 2º semestre • 2022  | acontece

15.Palestra Técnica sobre a NBR 7256/2021 e os impactos na infraestrutura dos EAS

Continuando as discussões sobre a nova NBR 7256/2021, as regionais Bahia da ABDEH e da ABE CLIN promoveram, no dia 17 de agosto de 2022, a pa lestra online “Proteção do ar em estabelecimento de saúde: NBR 7256/2021 e os impactos na infraestrutu ra dos EAS”. A arquiteta Amélia Záu e o engenheiro Jorge Cardoso conduziram o evento. Estiveram co nectadas no evento cerca de 80 pessoas, para ouvir a arquiteta Doris Vilas-Boas (ABDEH), o Eng. Mário Alexandre Ferreira (ASHRAE e ASBRAV) e o Eng. Clí nico Lúcio Sarrizo. Nesta oportunidade discutiu-se a nova NBR 7256/2021 e suas implicações nos pro jetos de UTI e outros ambientes hospitalares que demandam Sistemas de Ar Condicionado especiali zados, os requisitos de projeto, execução de insta lações e os cuidados com a qualidade do ar interno nos ambientes de saúde. Tema importante e atual, principalmente após todos os aprendizados com as demandas de ambientes hospitalares devido à pan demia de Covid-19.

Com muita satisfação todos os anos a ABDEH dedica um dos eventos do ano para fazer em conjunto com a ABECLIN com um tema que é transversal às duas áreas. O evento foi aberto com a palavra do Diretor da Regional Bahia da ABECLIN e, na sequência, a Di retora da Regional Bahia da ABDEH fez a apresenta ção da associação, convidou a todos a participarem do Congresso da ABDEH, que acontecerá presen cialmente em outubro de 2022, em Recife. O evento promoveu uma discussão interessante, muitas per guntas foram feitas, demonstrando a atualidade e importância do tema.

AMBIENTE hospitalar | ano 12 • 2º semestre • 2022 | 55  acontece | 

ABDEH

MATO GROSSO DO SUL

16.

Encontro Digital ABDEH | Neuroarquitetura aplicada a ambientes de saúde Dia 14 de abril de 2022, o arquiteto, professor e pesquisador Lori Crízel apresentou uma explanação sobre Neuroarquitetura no am biente hospitalar, no Encontro Digital ABDEH, para um público médio de 170 pessoas.

Em um mundo transformado, pós-pandêmico, e tão carente deste olhar mais abran gente sobre a interação homem e meio ambiente, a ABDEH proporcionou momentos de conhecimento e reflexões aos associados e convidados, para que, através da ar quitetura, seja possível construir ambientes que fomentem a harmonia, o bem-estar, sentimento de pertencimento e integração social.

ABDEH

SANTA CATARINA

Visita à Associação Renal Vida

Depois de dois anos, ocorreu o primeiro en contro presencial da regional ABDEH Santa Catarina, no dia 05 de julho de 2022, em uma visita guiada à Associação Renal Vida, entidade filantró pica de administração privada, que tem por objetivo prestar atendimento aos pacientes com deficiência Renal Crônica e seus familiares.

O projeto da nova sede em Blumenau reúne, em um mesmo edi fício, todos os serviços para pacientes transplantados, como: consultas pré e pós-transplantes, consultas odontológicas, de fisioterapia e atendimento com podólogo, além da centraliza ção das atividades administrativas e espaços de convivência para os pacientes. A estrutura conta com instalações que utili zam as mais recentes tecnologias nos sistemas de tratamento de água, qualidade e climatização do ar, nos equipamentos de hemodiálise e na geração de energia elétrica.

 56 | AMBIENTE hospitalar | ano 12 • 2º semestre • 2022  | acontece
17.

ABDEH

RIO GRANDE DO SUL

A ABDEH Rio Grande do Sul desenvolveu diversos eventos online e presenciais no biênio de 2021-2022, buscando movimentar a sua comunidade técnica regional através de palestras e visitas técnicas.

18.

Palestra Técnica com a arquiteta Tatiana Guimarães

Evento online oferecido aos associados ABDEH-RS com a ar quiteta Tatiana Guimarães, do escritório Perkins+Will, com sede em Miami, EUA. Tatiana conversou sobre os desafios da prática profissional em saúde no exterior e o mercado norte americano, com comentários sobre nor matização, credenciamentos profissionais e amplitudes de mercados para arqui tetos. O evento reuniu cerca de 50 participantes.

19.

Palestra Técnica com o engenheiro Mário Alexandre Ferreira

Foram apresentados aos associados os conceitos e temas nor teadores da recém-lançada NRB 7256/2021, que trata sobre o tratamento de ar em EAS. A ABDEH-RS, preocupada com o impacto dessa norma, procurou realizar um debate técnico preliminar para elucidação das transformações exigidas. O evento online contou com aproximadamente 16 participantes.

20.

Palestra Técnica Senior Living, com a arquiteta Amanda Kreling

O evento apresentado pela ABDEH-RS trouxe o Tema "Senior Living", edificação da área de Hotelaria, que conta com uma gestão de saúde para seus usuários. A arquiteta Amanda Kreling, que teve participação no projeto, contou sobre todos os desafios que teve para tornar viável este empreendimento inovador na cidade de Porto Alegre. Também foi apresentado o projeto da unidade que está em execução. Comentou, ainda, sobre o próximo empreendimento, que está na fase de projeto e com evoluções analisadas a partir do primeiro projeto. A apresentação contou com 30 participantes em modo online, entre associados do RS e das demais regionais.

acontece | 
AMBIENTE hospitalar | ano 12 • 2º semestre • 2022 | 57 

21.

Visita Técnica ao Hospital Life Day Plus | Litoral RS

A ABDEH-RS propor cionou aos seus associados, com trans porte incluso, a visita técnica ao Hos pital Dia Life Day Plus, no município de Xangrila, litoral norte gaúcho. O empre endimento, recém inaugurado, possibi litou o contato com a equipe de proje tos, execução e visitação aos setores de Emergência, Centro Cirúrgico e Apoios Técnicos. O evento contou com a participação de aproximadamente 20 associados, sendo 30 pessoas ao total.

Visita Técnica a Casa dos Raros, Porto Alegre

A ABDEH RS proporcionou aos seus associados a visita técnica ao Centro de Atendi mento Integral e Treinamento em Doenças Raras, em etapa final de construção pelo Instituto Genética para Todos e pela Casa Hunter, organizações da sociedade civil que de senvolvem projetos na área de doenças genéti cas raras. Com um projeto arquitetônico contem porâneo, os associados tiveram a oportunidade de conhecer um equipamento ambulatorial com a missão de promover o estudo, a pesquisa, o es clarecimento, o tratamento e a promoção assis tencial aos pacientes de doenças raras. O evento foi presencial, com aproximadamente 20 partici pantes.

 58 | AMBIENTE hospitalar | ano 12 • 2º semestre • 2022  | acontece
22.

23.

Webinar ABRAVA | Apresentação da nova NBR 7256/2021

No dia 19 de Outubro de 2021, aconteceu a webinar para divulgação da ABNT NBR 7256/2021, com a participação do engenheiro Marcos Kahn, membro da Vice Presidência de Relações Institucionais da ABDEH. O tema envolveu o tratamento de ar em estabelecimentos assistenciais de saúde (EAS), requisitos para projeto e execução das instalações.

ABDEH DIGITAL 2021 | Seminário Online

24.

Nos dias 25 e 26 de novembro de 2021, a ABDEH realizou mais uma edição do Seminário ABDEH Digital, evento que teve mais de 18 horas de programação, reuniu cerca de 300 congressistas e palestrantes de renome nacional e internacional, tais como, Albert de Piñeda (Espanha), Siegbert Zanettini (Brasil), Tye Farrow (Canadá), Ângelo Bucci (Brasil), Sergio Salles (Brasil), Briseyda Reséndiz Márquez (México), Edgar Hernández (México), Luciano Monza (Argentina), Isaac Safdie (Brasil), entre outros. Este encontro virtual proporcio nou a troca de experiências e colaboração, incluindo uma nova sessão de apresentação de “cases”, cujo objetivo é dar visibilidade aos diversos projetos e estudos de relevância desenvolvidos pelos membros da comunidade.

Hospitalar 2022

25.

Entre os dias 17 e 20 de Maio de 2022, aconteceu a Feira Hospitalar, o principal evento da área da saúde da América Latina e a ABDEH participou ativamente deste momento. No dia 17, aconteceu o Facilities Innovation, um encontro que teve a coordenação científica de Marcelo Boeger e que de bateu sobre o Design de Serviços e Operações e sua interface com a Arquitetura. A ABDEH participou desta discussão com a arquiteta Patrícia Paiva D’Alessandro (IDEIN Arquitetura), o arquiteto Flavio Kelner (RAF Arquite tura) e a arquiteta Doris Vilas-Boas (VP Executiva da ABDEH).

No dia 18, foi a vez da ABDEH fazer a abertura do Congresso de Hotelaria e Facilities Hospitalar, com as presidentes (atual e futura), Elizabeth Hirth e Ana Paula Naffah Perez, falando sobre A Excelência em Serviços e a Eficiência Operacional.

No dia 19 ocorreu a Assembleia Geral Ordinária da ABDEH, onde foram lançados vários livros de autoria de nossos associados. Durante os 04 dias de evento, reencontramos os amigos e parceiros no Hub ABDEH, que foi nossa casa na Hospitalar, um espaço para networking e troca de conhecimentos.

acontece | 
AMBIENTE hospitalar | ano 12 • 2º semestre • 2022 | 59 

26.

Fórum de lançamento do UIA 2022

No dia 04 de fevereiro de 2022, aconteceu o Fórum de Lançamento do UIA 2022, designando 2022 como o Ano do Design para a Saúde. O evento teve como objetivo destacar o design que protege a saúde, o que desenvolve uma saúde melhor e o que restaura a saúde. Um painel de especialistas, entre eles a Presidente da ABDEH, arquiteta Elizabeth Hirth, participaram da discussão de como a arquitetura, planejamento urbano e áreas afins contribuem na proteção, promoção e restauração da saúde.

Semana do meio ambiente

No dia 09 de Junho de 2022, representada pela Vice Presidente de Relações Institucionais, arquiteta Adriana Sarnelli, a ABDEH participou da Semana do Meio Ambiente do CEJAM. A pa lestra foi sobre Instalações Acolhedoras e Sustentáveis na Saúde.

29.

IFHE 2022

Entre os dias 17 e 21 de Setembro de 2022, foi realizado no Canadá o 27th  Congress of  Internatio nal Federation of Hospital Engineering, com o tema Unleashing Innovation Healthcare Engineering Excellence. Neste importante encontro, a ABDEH foi representada pela Presidente Elizabeth Hirth.

6tº. Congreso de Infraestructura Hospitalaria da Costa Rica (ACOAIHCR 2022)

Entre os dias 11 e 12 de Outubro de 2022, será realizado na Costa Rica o 6to. Congreso de In fraestructura Hospitalaria, com o tema La resiliencia y su impacto enel entorno hospitalário. Neste importante encontro, a ABDEH será representada pela Vice Presidente de Relações Ins titucionais, arquiteta Adriana Sarnelli.

32º. Congreso Latinoamericano de Arquitectura e Ingeniería Hospitalaria (AADAIH 2022)

Entre os dias 25 e 28 de Outubro de 2022, será realizado em Rosario, Argentina, o 32o. Congreso Latinoamericano de Arquitectura e Ingeniería Hospitalaria, com o tema Espacios y Procesos Post-Pandemia. Neste importante encontro, a ABDEH será representada pelo Vice Presidente Técnico Cientifico, arquiteto Marcio Oliveira.

 60 | AMBIENTE hospitalar | ano 12 • 2º semestre • 2022  | acontece
30.
27.
28.

Diretrizes para projetos de ambientes domésticos para pessoas com doença de Parkinson

Por Rosana Santana dos Reis Arquiteta, Doutora

Como objetivo principal de definir diretrizes para projeto e construção de um ambiente doméstico plenamente utilizável por pessoas afetadas pela Doença de Parkinson, foi realizada, por meio de um contrato assinado no ano de 2020, pesquisa financiada pela Fondazione Zoè e elaborada pelo Dipartimento di Architettura (DIDA), da Università di Firenze (Departamento de Arquitetura da Universidade de Florença, Itália). Com um grupo de trabalho composto pelo Laboratório de Ergonomia e Design (LED), do Departamento DIDA da Università di Firenze, em conjunto com a Universidade Federal de Minas Gerais (Brasil) e as instituições italianas Università di Torino, Hospital Molinette, Università Cattolica Milano, Confederazione Parkinson Italia e a Accademia LimpeDismov. A pesquisa teve como objetivo a definição de diretrizes de projeto destinadas a identificar as principais e mais frequentes áreas de desconforto e/ou dificuldade vivenciadas atualmente por pessoas com Parkinson, ou por outros distúrbios motores, durante as atividades de vida diária relativas ao interior do espaço doméstico, e definir as soluções de design mais adequadas para garantir a máxima usabilidade, segurança e fruição do ambiente doméstico, seus móveis e equipamentos.

A pesquisa gerou a publicação intitulada Home care de sign for Parkinson’s Disease contendo as Diretrizes com as indicações e informações básicas necessárias para a avaliação do ambiente, mobiliário e equipamentos (o que pode significar uma fonte de desconforto ou perigo, qual o nível de risco concebível, quais as prioridades de intervenção) e as soluções de projeto mais adequadas para resolver e/ou prevenir tais inconvenientes (como intervir, quais as soluções mais adequadas, quais as re ferências legislativas e normativas).

Dados da Organização Mundial de Saúde (OMS) mos tram que em torno de 1% da população mundial com idade superior a 65 anos possuem a Doença de Parkin son. Estimativas globais do ano de 2019 mostraram mais de 8,5 milhões de indivíduos com a doença (OMS, 2022). No Brasil, estima-se que mais de 200 mil pessoas sofram dessa patologia. A Doença de Parkinson possui distri buição universal e atinge a todos os grupos étnicos e classes socioeconômicas, sendo que sua incidência e prevalência aumentam com a idade. O mal foi identifica do pela primeira vez em 1817, por James Parkinson, que descreveu e publicou os principais sintomas da doença no Ensaio sobre a Paralisia Agitante.

AMBIENTE hospitalar | ano 12 • 2º semestre • 2022 | 61 

A Doença de Parkinson é uma pato logia neurodegenerativa progressi va, caracterizada basicamente por tremor de repouso, tremor nas extremi dades, instabilidade postural, rigidez de articulações e lenti dão nos movimen tos. Há também ou tros sintomas não motores, como a di minuição do olfato, distúrbios do sono, alteração do ritmo in testinal e depressão. Esses sintomas cau sam um impacto gra víssimo na vida das pessoas e de seus fa miliares, interferindo na qualidade de vida e nas relações sociais. Uma pessoa em ida de ativa passa cerca de 10 a 14 horas por dia dentro de sua casa, enquanto um paciente de Parkinson pode passar até 24 horas por dia neste mesmo ambiente. A qualidade de vida para estes pacien tes, portanto, está relacionada à qua lidade dos espaços de habitação.

As diretrizes levantadas na publi cação são voltadas para a consulta e uso efetivo por pessoas diretamente envolvidas na doença, mas também

por pessoas com outros desconfor tos motores semelhantes ao Parkin son, bem como por idosos, familiares e cuidadores (formais ou informais) e, em paralelo, profissionais de saú de, pesquisadores e projetistas.

A metodologia adotada pelos in vestigadores foi do tipo Human/User Centered Design, uma abordagem que permite centrar a atenção nas necessidades e expectativas específi cas dos usuários a que se dirige, bem como nas possíveis situações de risco.

A publicação está dividida em cin co partes. A primeira seção apresen ta os objetivos da pesquisa e a me todologia adotada, além de chamar atenção para a abordagem utilizada, denominada Inclusive Design, que baseia sua aplicação considerando a diversidade física, cognitiva, cultu ral e de gênero dos seres humanos. Considera que o conceito de “proje to flexível” deve substituir a prática comum do “projeto finalizado”, já que não se tem a certeza das ne cessidades futuras. A segunda seção aborda a Doença de Parkinson e os aspectos culturais e sociais.

A seção três traz como título “A casa e o Parkinson”. Inicia observan do que o homem é um indivíduo do tado de múltiplas capacidades, exi gências e desejos, o que representa singularidades, por razões fisiológi cas, como crescimento e envelheci

 | acontece  62 | AMBIENTE hospitalar | ano 12 • 2º semestre • 2022 resenha
TOSI, Francesca; PISTOLEZI, Mattia (org) . Home care design for Parkinson’s Disease. Il Design dell’ambiente domestico per persone con malattia di Parkinson: prodotti, servizi e ambienti per l’autonomia. Firenze: Franco Angelli, 2022. ISBN: 9788835139195. Disponível em: https://series. francoangeli.it/index.php/oa/ catalog/view/799/644/4686. Acesso em 15 set. 2022.

mento, ou por razões temporais ou permanentes, causadas por doen ças anteriores ou traumas. Destaca que uma pessoa com a Doença de Parkinson pode necessitar viver em confinamento na própria casa e, por isso, a qualidade de vida se relacio na com a qualidade do espaço de habitação. O projetista da residência desse tipo de doente, portanto, tem o dever de usar seu conhecimen to para criar espaços e ambientes acessíveis e altamente acolhedores. Esta seção apresenta, ainda, publi cações anteriores que abordaram temas similares e observa que são em número reduzido.

A seção quatro dedica-se a apresen tar as fases do processo da pesquisa, detalhar a abordagem metodológica, os instrumentos de pesquisa, o re crutamento dos participantes, a apli cação dos instrumentos e análise dos resultados. Trata-se de uma seção rica em gráficos, tabelas, imagens e suas respectivas análises e avaliações.

A seção cinco mostra um sumá rio das diretrizes encontradas, com cada ambiente da casa representa do por plantas baixas com diversas dimensões, leiautes, simulações, fotografias, notas explicativas, con siderações projetuais e exemplos de objetos adequados e de uso. Defen de-se que os espaços devem estar em contínua evolução, dividindo os estágios de adaptação em três eta

pas. A primeira etapa considera o grau de autonomia da pessoa com Parkinson em estado leve. O proje to técnico é direcionado às pessoas que não necessitam de auxílio ou qualquer assistência tecnológica. A segunda se refere ao que conside ra o estado moderado da doença. O projeto é direcionado às pesso as que usam andador. A terceira se refere ao espaço para pessoas no estado grave da doença e o proje to técnico considera a presença do usuário em cadeira de rodas e ne cessitando de um cuidador.

Esta é uma seção de grande rique za gráfica, cuja consulta é indispen sável aos que projetam ambientes acessíveis. A contribuição ultrapassa as questões de distribuição espacial, pois apresenta, conforme definido nos objetivos da publicação, solu ções de design de mobiliário, obje tos e equipamentos para todos os ambientes apresentados, de forma que se mostram hipóteses projetuais aplicadas a três tipologias de habi tação: residências para duas, três ou quatro pessoas. Apresentam, ainda, diretrizes para os espaços externos, considerações sobre portas e jane las, pavimentação, percursos verti cais e sistemas de gestão e controle com uso de tecnologia avançada.

Esta publicação traz enormes con tribuições para projetos de residên cias para pessoas com Doença de

Parkinson, observando-se que, por ter sido uma pesquisa cujo locus se limitou a utilizar como participantes apenas moradores da região da Tos cana, os pesquisadores concluem que é importante expandir a inves tigação para outras localidades, já que existem diferenças e caracte rísticas arquitetônicas próprias dos espaços internos de cada realidade.

Mesmo com essas limitações, e a alusão apenas a regiões da Itália, a publicação poderá servir como refe rência para outros países, inclusive o Brasil, adequando-se às realidades locais, à cultura, ao modo de viver e utilizar espaços e equipamentos, na busca por soluções criativas, simples de aplicar e financeiramente acessí veis. Trata-se de uma excelente con tribuição aos arquitetos e profissio nais que trabalham com deficientes e idosos de maneira geral. No momen to o volume está disponível gratuita mente em pdf na língua italiana.

REFERÊNCIA

OMS. Organização Mundial da Saúde. Parkinson disease: a public health approach: technical brief. OMS, 2022. Disponível em: https:// www.who.int/publications/i/ item/9789240050983. Acesso em: 08 ago.2022.

acontece | resenha AMBIENTE hospitalar | ano 12 • 2º semestre • 2022 | 63 

ARKHITEKTON ASSOCIADOS LTDA

ASSA ABLOY BRASIL SISTEMAS DE SEGURANÇA LTDA

BELGOTEX DO BRASIL INDÚSTRIA DE CARPETES LTDA

C+A ARQUITETURA E INTERIORES SC LTDA DRACO ELETRÔNICA INDÚSTRIA E COMÉRCIO EIRELI EDRA EQUIPAMENTOS ESPECIAIS, IND, COMÉRCIO, IMPORTAÇÃO E EXPORTAÇÃO LTDA

EMED ARQUITETURA HOSPITALAR E PLANEJAMENTO LTDA

EQUIPACARE SERVIÇOS ESPECIALIZADOS DE APOIO TÉCNICO LTDA

FUNDAÇÃO GOVERNADOR FLAVIO RIBEIRO COUTINHO GRAU ENGENHARIA DE INSTALAÇÕES LTDA

IPH INSTITUTO DE PESQUISAS HOSPITALARES ARQ JARBAS KARMAN

LEVISKY ARQUITETOS ASSOCIADOS LTDA

PERKINS + WILL ARQUITETURA LTDA PGMAK PROJETOS E GERENCIAMENTO LTDA RAF ARQUITETURA

SENZI CONSULTORIA LUMINOTECNICA SC LTDA SERRA SOUZA & MARQUES GIL LTDA SIMMETRIA ARQUITETURA LTDA ME TECHNOCARE ENGENHEIROS CLÍNICOS ASSOCIADOS LTDA TECNOPERFIL PLÁSTICOS LTDA TRÍPTICA ARQUITETURA LTDA TUDO ARQUITETURA E CONSTRUÇÃO VIA LUZ ILUMINAÇÃO COMERCIO E SERVIÇOS LTDA ZANETTINI ARQ PLANEJ E CONSULTORIA LTDA

DIRETORIA NACIONAL

Presidente Atual (2020-2022)

Elisabeth Hirth (RJ)

Presidente Anterior (2017-2020)

Emerson da Silva (SC)

Presidente Futura (2022-2024)

Ana Paula Naffah Peres (SP)

Vice-Presidente Administrativo Financeiro Eng. Cléo Pais de Barros (RJ)

Vice-Presidente Executivo Arq. Doris Vilas-Boas (BA)

Vice-Presidente Técnico Científico Arq. Marcio Nascimento de Oliveira (DF)

Vice-Presidente Relações Institucionais Arq. Adriana Sarnelli (PR)

Vice-Presidente de Marketing Arq. Fernanda Ventura (PE)

APOIO ADMINISTRATIVO

Gerente Administrativo

Vanessa Almeida (SP)

Assistente Administrativa Jaqueline Santos (SP)

ASSESSORIAS E GTS

GT Formação de Lideranças Arq. Jonas Baderman (RS)

GT Treinamento e Capacitação Arq. Amelia Zau (BA)

Assessoria para Gestão Estratégica de Projetos Walmor Brambilla (SP)

GT Educação Continuada e Certificação Profissional Arq. Erick Vicente (SP)

Assessoria Especial para Publicações Arq. Antônio Pedro Alves de Carvalho (BA)

GT Parcerias Universidades e Pesquisa Arq. Eliete Pinho (DF)

Assessoria para Técnica e Tecnologia Arq. Kátia Fugazza (RJ)

Diretoria Especial de Relações Institucionais Américas Arq. Elza Costeira (RJ)

Representação GT ABNT Eng. Marcos Kahn (SP)

Diretoria Especial de Relações Institucionais Europa e Ásia Arq. Fábio Bitencourt (RJ)

Representação UIA | PHG Arq. Walkiria Erse (SP)

Assessoria de Relacionamento e Comunicação Arq. Tayana Mesquita (RJ)

Assessoria Associados P. Jurídicas Arq. Daniel Alexandre da Silva (SP)

CONSELHO EDITORIAL

Coordenação Prof. DSc. Antonio Pedro de Carvalho

Membros

Profª. DSc Claudia Miguez, Profª. Esp. Doris Vilas-Boas, Prof. DSc Fabio Bitencourt, Profª. DSc Elza Costeira, Prof. Esp. João Carlos Bross, Prof. MSc Marcio Nascimento de Oliveira.

CONSELHO CONSULTIVO

Arq. João Carlos Bross, Arq. Mariluz Gomes, Arq. Emerson da Silva, Arq. Irineu Breitman (in memorian), Eng. Salim Lamha Neto, Arq. Flávio Kelner, Arq. Flávio Bicalho, Arq. Fabio de Oliveira Bitencourt, Arq. Marcio Nascimento de Oliveira.

DIRETORES REGIONAIS

Amélia Záu (BA)

Antônio Carlos Rodrigues (SP)

Giselle Raposo (PE)

Camilo Franzoi (RS)

Clarissa Garcia Gruska (CE)

Daniela Fenelon (MG)

Denize Demirdjian S.Jorge (MS)

Eduardo Kariya Nishitani (PR)

Elida Noemi (AL)

Kátia Fugazza (RJ)

Mirza Mello (PA)

Natalia Lima (GO)

Patricia Paiva (SC)

Simone Prado de Menezes (SE)

Talissa Patelli (DF)

Thabata Paiva (PB)

Projeto gráfico e diagramação

Sandra Martins

Foto da capa Fotógrafo: Ronaldo Azambuja, 2020.

Obra: Hospital Oncopediátrico Erastinho, Curitiba, PR.

Autoria: Sarnelli Arquitetura + Redora Arquitetura

Edição e organização

Antonio Pedro A. de Carvalho Marcio Nascimento de Oliveira

É proíbida a reprodução dos textos, fotos, gráficos e desenhos, exceto mediante a autorização expressa do autor.

ABDEH – Associação Brasileira para o desenvolvimento do Edifício Hospitalar

End: Av. Marquês de São Vicente, 446, Sala 301 01139-000 – Barra Funda, São Paulo - SP

www.abdeh.org.br

ESTAR

PERTO DE VOCÊ

ASSOCIE-SE

QUEM SOMOS

GESTÃO DE CONHECIMENTO

DE RELACIONAMENTO

QUEM SOMOS NOSSOS VALORES

QUEREMOS
MAIS
Algumas centenas de profissionais e empresas com foco no planejamento, na programação, na construção e na gestão dos espaços de saúde no Brasil. Potencializar a troca de conhecimento técnico cientifico e operacional entre os diversos profissionais que atuam para o desenvolvimento dos diversos espaços de saúde do Brasil. NOSSA MISSÃO GESTÃO
Promover o conhecimento e gerar valor para os espaços de saúde através de conexões. Ser agente de transformação dos espaços de saúde, através do conhecimento, do intercâmbio de informações e da multidisciplinaridade, proporcionando conexões profissionais. Conectamos pessoas, empresas e propósitos. Conhecimento técnico-científico e operacional, convívio social, visão sistêmica da saúde, multidisciplinaridade, engajamento e conexão. Av. Marquês de São Vicente, 446, Sala 301 - Barra Funda, São Paulo - SP • (11) 5056-1434 - abdeh@abdeh.org.br www.abdehdigital.com.br
A ABDEH é uma entidade que tem como objetivo contribuir para a contínua evolução brasileira nos ambientes de saúde.A Associação tem um caráter multidisciplinar, reunindo arquitetos, engenheiros, administradores hospitalares, médicos e outros profissionais em eventos técnicos e científicos realizados por todo o Brasil. Queremos estar mais perto de você. Porque uma comunidade é construída em torno de interesses, paixões e um local comum… A nossa REDE.

Turn static files into dynamic content formats.

Create a flipbook
Issuu converts static files into: digital portfolios, online yearbooks, online catalogs, digital photo albums and more. Sign up and create your flipbook.
Ambiente Hospitalar 16 by ABDEH - Issuu