Atlas of Collective Living Design and Research
Atlas of Collective Living Design and Research
TERM I STUDIO
PARTS, UNITS AND GROUPS: ANALYSIS OF ARCHITECTURAL PRECEDENTS
Taught MPhil in Architecture and Urban Design (Projective Cities)
In Term 1 of Projective Cities, students investigate different organizational, formal, programmatic, and material particularities that define the Architecture of Collective Living through series of historic and contemporary case studies, allowing the framing of a design approach and development of. A common theme is established as a starting point for each individual research agenda.
The different political, economic, social, and cultural dimensions are reflected in a number of parameters that emerge by a series of conflictual aims and ambitions. Different concepts of social, familial and gender relations, management and decision-making protocols, procurement models, public and private development strategies define the diagrammatic and formal relations of how we live together. All these points define a network of diagrammatic relations that emerge in a series of conflicts and their interrelated scales through which housing and the city are conceptualised: the scale of architecture, its specificity and typological analysis, the urban scale, its configuration, limits, and centralities but also the political and socio-economic realities that organise it, the national scale and the establishment of a citizenry, and finally the regional scale and its economic and geopolitical realities.
Architecture of Collective Living therefore opens up a discussion of how the urban can be understood through specific architecture and its design, and how its effect as an urban armature is not only of spatial importance, but equally organised by larger political and social discourses.
The spatial organization of the Architecture of Collective Living is reflected on a series of informal and formal relations between subjects, spaces, structural and non-structural elements, objects, and protocols of use and occupation. Any form of collective living is characterised by this multiscalar network of power relations that is specific and particular to each social group and collective that lives together. A series of asymmetries and conflicts emerge that require a resolution framework or at least protocols of conduct. What architecture does is to set up some of these parameters, mainly the definition of units, the relations between parts and the way groups of spaces and people are organised.
Architectural typologies of collective living are shaped by these distinct social diagrams but could vary spatially and formally.
Typically, collective living organises part to whole relations that set levels of interaction between individuals: rooms, dwelling units, horizontal and vertical circulations, spaces of collective activities and programmes, complexes, and larger groupings. Distinct types such as courtyards, towers, linear blocks and composite and hybrid types organize the ways and the spaces these different interactions could occur.
Collective living and its politically, historically, socially, economically, and culturally specific characteristics have the capacity to challenge the fundamental diagram of modernity: domesticity. The domestic is a spatial and social diagram that sets very specific hierarchies and relations :gender, age, and programmatic. Today, the single-family dwelling is challenged by the realities of contemporary urban environments. New subjectivities have emerged: many live outside family structures, a younger generation shares housing and working spaces, an increasingly precarious and migrant working force requires short term, serviced accommodation, elderly population has become more present and active in cities across the world.
The reality of the real estate market, the available design tools and building methods and standards are not necessarily reflecting upon the above transformations. Often, the challenges of new forms of collective living are tackled as a financial problem, or an issue of density and lifestyle. However, historically collective living and forms of living together has had the capacity of opening up social and spatial imagination. Today, there is an array of incredibly interesting experimentation in collective living protocols and architectural configurations, such as new forms of cooperatives that have proposed new types of collective living units, such as the ‘cluster apartment’. Moreover, public administrations and private stakeholders are seeking new ideas that would allow for an imaginative transformation of how people live in cities, in urban and rural areas across the world.
Thus, one of the challenges arising from the Architecture of Collective Living is how architecture can respond to changing political, cultural, economic, and urban contexts and how to propose new effective design ideas and models. What is the agency of architecture? How do we develop a pedagogical model that
allows for a more effective relation between academic institutions and practice?
Based on the studied type, the identified formative diagrams, and typological transformations, a short design exercise is proposed by each student. Learning from the case studies, each has selected his/her own target site and will formulate relevant research questions, to address a project for a (new) form of collective living for specific subjects. The synthesis of historical analyses, their embedded social and familial relations, modes of production, and forms of association, in relation to specific sociopolitical context of the chosen site, have generated a frame of relations, and organizational diagrams that are developed into a series of projective drawings, models, writings, and moving images.
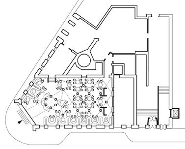
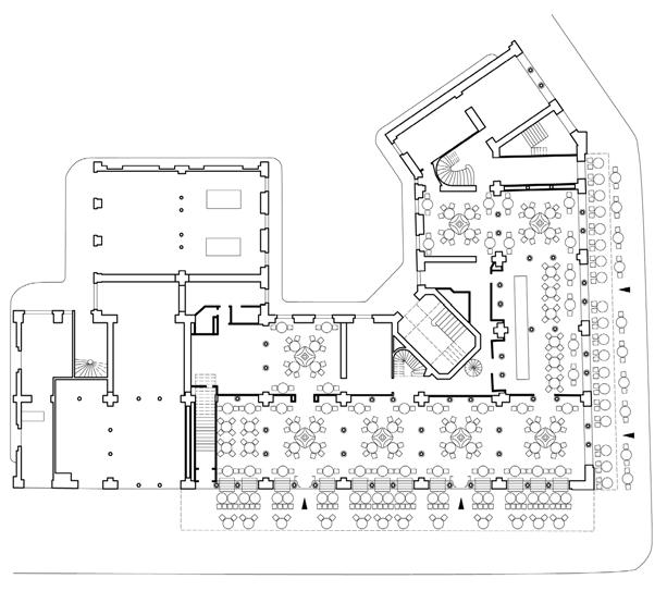
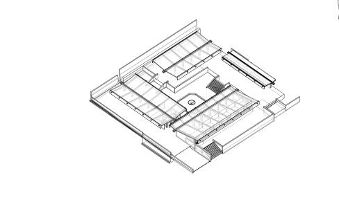
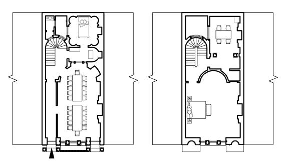
CAFFÈ FLORIAN Venice, 1720
CAFFÈ FLORIAN Venice, 1720
BRITISH COFFEE-HOUSE London, 1722
BRITISH COFFEE-HOUSE London, 1722
CAFFÈ PEDROCCHI Padua, 1826
CAFFÈ PEDROCCHI Padua, 1826
CAFÉ DE LA PAIX Paris, 1862
CAFÉ DE LA PAIX Paris, 1862
CAFÉ CENTRAL Vienna, 1876
CAFÉ CENTRAL Vienna, 1899
CAFÉ MUSEUM Vienna, 1899
CAFÉ MUSEUM Vienna, 1899
5m
This research project examines the infrastructure of telecommunication networks, specifically the transmission of messages over long distances. The study focuses on the telecommunication tower, a structure developed and utilised throughout the 20th century as an antenna carrier for transmitting messages. Through this case study, the project aims to reveal how the introduction of towers and their technology have impacted the concept of the public realm and its urban spatial manifestation.
Telecommunication devices have influenced the creation of modern urban spaces by allowing for distant, instantaneous information exchanges and extended reach. They have enabled social networks to detach from physical space, liberating planning from the constraints of proximity requirements in the scope of more interconnected societies. Telecommunication systems have partially appropriated the field of the public sphere, which was previously manifested through formal public spaces where social networks would emerge. The introduction of telecommunication technology affected the notion of the public sphere, which became disembodied, while public space was reframed as a leisure space.
As such, radio wave technology has allowed networks to refer to a vast field on a potentially global scale. This detachment of public events and public space, along with the infinity of events and individuals that could occupy the public stage, has led to a necessary selection process for information chosen for broadcasting and formulated into narratives and messages. Central media institutions have acted as practical masters of this process, producing a curated, mono-directional, broadcasted public sphere. As a result, they have become a new type of urban social centre, a "mediated centre" 1, in which the conditioning of reality carried by central media became the field of production of symbolic power through the definition of realities, normalities, and mass subjectivities.
During the 1950s, radio wavelengths became available to the general public, under the scope of public service, through domesticated devices such as antennas and TV sets that connected with central infrastructural entities such as studios, broadcasting stations, and antennas. In the process, the effect of mediation was multiplied.
The telecommunication tower, an architectural type developed during the period, acted as the infrastructural and symbolic centre of the new network. These monumental structures were designed to represent their context's technological and cultural progress while also becoming symbols of their cities. Made to see and be seen, towers enclose programms that surpass their infrastructural role and become representational spaces of centrality. The line of sight becomes the generator of the structure, oscillating between infrastructure and spectacle. More than antennas, they are public spaces, tourist destinations, panoramas, and spaces of leisure and consumption that operate in parallel with apparatuses that, through their architecture, reproduce the myth of central media as distributing agents of the public sphere.





The ascend to the panorama is framed as the primary ritual of the passage from the ordinary to the spaces of reality construction. Barriers, security checks, and ticket admissions highlight the importance of private machinic areas, establishing the difference between those inside and outside the tower. The apparatus room, the most actant of the spaces in the scope of the network, is deliberately black-boxed, protecting the authority of the apparatus. The moment the visitor passes through the apparatus room encapsulates the naturalised conditions sustained by the ritual and exposes the state of a believed participation in the apparatus. The apparatus room is primarily an obscured void that coexists with culture's well-maintained desires.
1. Nick Couldry, “Media Rituals: Beyond Functionalism,” Media Anthropology, 2005
Right: Urban Sections
Ostankino Tower
Berliner Fernsehturm
Stuttgart TV Tower
Torre de Collserola
Tower
OTE Tower
Stuttgart TV Tower
Torre de Collserola
Ostankino Tower
Berliner Fernsehturm
Design exercise: The Apparatus Room
Unveiling the Cosmos: Astronomical Observatories
Luis Young
Unveiling the Cosmos: From Ancient to Modern Astronomical Observatories in the UK.
The Act of Obelisking explores the territoriality of the obelisk by, firstly, shifting the conceptual interrogation from the obelisk-object to the obelisking-process; and secondly, by means of a combined method of writing, re-writing and re-drawing specific references as evidence of obelisk-ing as figures of territory.
Formally, the obelisk can be defined as a standing stone, a monolith — a single quarried stone of Aswan granite. In objective historical terms, the obelisk is burdened with appropriation. They are objects of monumental colonization and immigrants in their own right, seeking refuge — seeking an existential grounding — in places that are not their own. It must be emphasized that in conceptualizing the obelisk as an affectual-thing, which serves as an intermediary in the process of recalibration, its history of appropriation is critically considered as not to undermine the integrity that collective memory holds in connecting temporal boundaries within a single (and assembly of) urban artefacts amongst the city.
While honouring the obelisk’s history, this project explores a further appropriation of the obelisk, albeit this time semantically, into a verb: To obelisk (v.) is the process of negotiating and recalibrating territory — transcending its confines as a 3-dimensional object — into an affectual-thing, what Heidegger describes as concrete space, allowing one to identify with the environment as meaningful in the figuration of territory.
Right: Interior of the Installation presented at the Architectural Association, 39 Bedford Square, London, Dec. 2022.
Ponte Vecchio Florence, Italy
Ponte di Rialto Vence, Italy
Pulteney Bridge Bath, England
Pokrit Most Lovech, Bulgaria
Krmberbrucke Erfurt, Germany
Khaju Briidge Isfahan, Iran
Kitchen: A Gendered Space
Bech-Danielsen defined the kitchen as the most gendered spaces in the historical dwelling. The economic crisis after the First World War resulted in an absence of servants in the market. As a result, kitchen design became a dynamic subject in architecture, and women’s responsibilities in society and in the family experienced a tremendous evolution. Over the past one hundred years, the domestic kitchen effectively mirrors the transformation of women’s identities in the family.
My central hypothesis is that despite the diminishing of the women’s sense of imprisonment in the modern kitchen, the gendered differences in the kitchen remains. This research will firstly advance a more nuanced understanding of the power dynamics of Western domestic kitchens in the twentieth century. Subsequently, it will challenge the conventional meaning of how the modern kitchen influenced the transformation of female subjectivities. Furthermore, attention is directed to explore the status of reproductive labor in social construction.
Kitchen design has oscillated between having a central versus supportive role in the home. From being part of the main space of the dwelling, to being separated and hidden in a closed, defined room, to once again being open and flexible. The initial semi-open kitchen was used by servants and housewives, and the kitchen was an auxiliary space in the dwelling. Then, when the family unit became the basic unit of society, functional space had to be kept to a tolerable size. Now, the mainstream lifestyle of modern society requires compact layouts and semi-open spaces for maximum use.
Being a good wife and mother means a woman must perform the labor of reproduction; and cooking at home remains the mark of a woman’s identity today, regardless of the increased involvement of men in the kitchen. No matter how modern the design is, as long as patriarchy exists, the gender gap in the kitchen will not be eliminated.
Xiaochi Chen
Right Images: Photograghs of movement, Semiotics of the kitchen, Models of the furniture in 1:20, Model of the kitchen in 1:20, Actions diagrams
Typical
Pao I and II—Dwellings for the Tokyo
Gifu Kitagata Apartment Building
The Room Community Barcelona, Spain
Cierto Estudio
Photographs
“The blue Lamp” is a British film in the 1950s about a policeman named George Dixon and his life. At the beginning of the film, it opens with a bystander announcing:
“To this man, until today, the crime wave was nothing but a newspaper headline. What stands between the ordinary public and this outbreak of crime: what protection has the man in the street to this armed threat to his life and property? At the old Bailey, Mr. Justice Fennimore in passing sentence for a crime of robbery with violence gave this plain answer: “ This is perhaps another illustration of the disaster caused by insufficient numbers of police. I have no doubt that on of the best preventives of crime is the regular uniformed police officer on the beat.”¹
This construction of the crime problem and its solution reflect that the British police lived with the unrealistic belief that they were no more than ordinary citizens in uniform and that they could rely on the assistance and positive support of the public. Then, the truth is the majority of people had little contact with police in their daily life.
Apart from those fictional assumptions, the police stations are widely considered by the mass as “the home of policemen”. Admittedly, since the end of the 19th century, police were born from concepts to institutions; the police stations was regarded as the core facility sitting at the center of this department. Behind the Elevation: Study of
1 The Blue Lamp, Film (General Film Distributors, 1950), https://www.youtube.com/watch?v=1C_6_tPj33A.
DESIGN PROPOSITION: FAÇADE PROJECT TO PLAN
The spatial nesting and sequencing; circulation operation; room hierarchy, and juxtaposition transfer the police station into a sophisticated device of policing, which articulate the control, surveillance and power structure embedded within the building.
At present, high-rise buildings are the preferred solution to the housing problem in more cities, but this has led to a certain extent of isolation for the residents of high-rise buildings, with completely vertical repetitive floors and closed walls that clearly divide the interior from the exterior, leaving the occupants inside with no connection to the outside environment other than visual transparency. As a result, the residents are largely deprived of communal life and living becomes a mere survival.
When I first arrived in London, I was struck by the fact that I was in the suburbs with an unobstructed view of the city centre’s tall buildings, something that is not possible in most developed cities, but in London there are such low-rise, high-density, postwar residential buildings that were built as council houses for the working class to rent at affordable rents. Because of the change in ownership of these houses at the end of the last century as a result of legislation relating to the privatisation of housing, they are still available on the rental and sale market and are in good condition today. By comparison with high-rise residential buildings, I believe that it is the high spatial quality provided by the private open spaces of open terraces and open courtyards that are prevalent in this type of housing that make these homes, which are over 50 years old, still attractive in the rental market.
This research analyzes some representative architectural precedents, studies the distribution of indoor space and private open space and public space in the building and the connection between these spaces, trying to summarize why more public event has a chance to happen.
Regarding the design, I think the most interesting thing about this type of building is its sections, and the sections undoubtedly
present the most connections between the floor slabs and the individual slabs themselves, so I extracted the two architectural elements, the floor slabs and the stairs, as the main part of my design, and wanted to downplay any other architectural elements, especially the walls, in order to achieve a floating effect.
Design Exercise: Floating Alexandra Road
TERM II STUDIO
SCALES: FROM THE ROOM TO THE CITY
Taught MPhil in Architecture and Urban Design (Projective Cities)
The assumption underlying architectural urbanism is, that an interdisciplinary relation between architecture, urban design, and urban planning can be understood through multi-scalar reasoning. Furthermore, the analysis of architecture’s formative diagrams in Studio I is seen as a prerequisite to an operative understanding of built forms within the city through a typal and typological analysis.
Thereby questions emerging from the Architecture of Collective Living, provide a typological and intellectual framework to study this relationship in Term II. Consequently, Term II builds on the previously introduced concept of formative diagrams in relation to fundamental types as the basis to analyse models of collective living and forms of sharing, while the idea of type and typology is expanded to the study of the city.
Studio II also introduces students to the conventions of urban planning, its parameters, processes, and limits. Understanding fundamental types as providing basic organisational, structural, and tectonic elements of the city, and by drawing a deliberate relationship between the scales of building types and city, architectural design becomes operative at different scales. This means that the hierarchies, limits, and differentiations of building types and their structural and organisational diagrams can be seen to partially control urban development. In this sense, architectural and urban plans are intelligible as formal and theoretical products of disciplinary activity as much as the collective outcome of socio-political forces.
The city, in other words, is defined by typological conflicts and transformations that arise when types encounter a specific context, become materially realised. By uncovering these conflicts and transformations of built form and the necessary scalar negotiations and translations, a specific idea of the city emerges that has intrinsic formal, spatial, and social relationships.
The studio begins with the selection and analysis of an existing or proposed urban plans for a contemporary city or a region in which the building types chosen in Studio I play a significant and formative role.
Following the basic analysis of the urban plan, the relationship of
housing types to its conceptualisation, organisation, and formation is studied. How does the generality of type adapt to socio-cultural, economic, and political contexts? Within this study, the question whether a typological transformation results from a typological conflict, created by an insertion into a context, or a strategic argument and its possibilities within a context is emphasised.
Finally, the design exercises aim to explore cross-scalar relationships between the living units, urban compound (block), neighbourhood, and the city. Therefore, the two fundamental parameters are selecting a reference city and identifying a subject group, responding to which the formative diagram of the design exercise would be generated. The designs not only respond to the limitations, and constraints, but also inform the projects; addressing inherent conflicts, power-relations, social challenges, and environmental issues. The briefs are positioned within the historical and contemporary case studies that have been thoroughly researched by each student.
Constructing Britishness: The Lansbury Estate
Christos Smyrniotis
This research project delves into the urban development and social housing strategies that were implemented in the post-war era in the Poplar area of London. The focus is on providing a comprehensive,multiscalar and historical analysis of the neighborhood, with special emphasis on the Lansbury estate as a case study to understand the underlying principles that underpinned Britain's reconstruction program in the early postwar period.
The area of Poplar has historically coexisted with large infrastructural and industrial entities that operated on a metropolitan and even global scale. Consequently, the area has attracted specific types of urban development and populations, giving rise to social conditions that were heavily influenced by working-class and migrant communities, as well as radical political movements that responded to their context.
The Lansbury estate was developed in 1951 as part of the Festival of Britain's Live Architecture Exhibition and was hailed as an exemplary project for future urban development in the UK. The estate marks a padigrim shift for the urban morphology of many neighborhoods and towns in the country, as well as for the construction of ideas around Britishness and its way of life. With the purpose of reconstruction of the pre-war local communities the plans for the estate moved away from the urban form resulting from the multiplication of the terraced house and proposed a typological transformation that was based on the individual organisation of plots connected through streets, with strong centralities in the form of public and social infrastructure sapces. The project provides urban plans, typological analysis, and historical evidence to illustrate the principles that the estate embodied.
The study concludes with a reflective design exercise that builds on the ideas and insights extracted from the research and the case study. The proposal is located in the East India Dock Basin and the Thames Ironworks industrial site, which have had a significant impact on the social makeup of the local community. The project argues that the community, which was identified and actively designed by the L.C.C during the 50s, was bonded by these entities and the collective responses towards them.
Recognising the importance of productive spaces for the formation of community, the project proposes principles of urban activation for these areas under the emergence of commonholds that prioritize the creation and reproduction of communities and their respective communal practices. The proposal emphasizes the importance of productive activities and protocols for practices, states of ownership and right of use as essential tools for the emergence and the engagement of communities.
Right: Transformation of Figure Floor plan and Structural organisation of the Lansbury estate.
Lansbury estate before the Festival of Britain, figure ground plan
Lansbury estate in 1951, figure ground plan
Diagram of organisation manifested in the exhibition at Lansbury
Axonometric
Dock commonhold
East India Dock platforms
Ironworks commonhold
Maisonnete housing
Festival As a Project:
From Social Culture to Nature Culture
Festival as a project, is to investigate the role of festivals in branding and shaping the vision of a city. The research aim is to identify the design strategy and planning of the festival infrastructure being utilized as an urban regeneration device.The research reveals the strategic planning and evolution of a series of major exhibitions hosted in London pre-World War II and the post-World War Festival of Britain in 1951. It shows the British Empire has successfully utilized exhibitions to demonstrate the imperial’s industrial power and its colonization achievement, towards later borrowing festival as an empowering project to revive the spirit of the British nation through social, political, and cultural aspects.
At the same time, the phasing out of the British Empire’s influence on the world stage at the end of the 19th century, while the focus of the welfare state in the 20th century see the growth and focus on the socio-cultural assect in urban development. It is therefore, the Festival of Britain 1951- an ideal transformation project, becoming an inspiration and setting a benchmark that was hardly matched by another national revival project after its success. The success of the Festival of Britain 1951 is a collective effort which celebrated and still mesmerizing by many until now. From the individual visitor, architects, organizers, and as a nation, each of the people took it as pride to march away from the gloomy moment of World War II to celebrate the new British moment.
The festival of Britain has pioneered a new way of spatial planning of exhibitions on an urban scale, while also providing a generous idyllic space for the public. One can also experience such idyllic space or in between spaces among the pavilions resembling the picturesque of the 16th century in English garden. From the spectator’s point of view, the Festival of 1951 also detaches from the curated exhibition in the 18th century, the Festival of 1951 is more
cerebral and encourages the participation of the general public as in the “fete”. The permanent and temporal architecture of the festival such as the Royal festival hall has been successfully integrated into an urban environment and create a better sociocultural hub that we have seen today. In contrast, the demolished Dome of Discoveries became a spatial typology that inspired the Millennium Dome at the Isle of dog.
The design proposition is is to design a long term sustainable strategy as a revitalisation tool. The aim of the project is to transform the project site into an urban destination, at the same time, also preserve and enhance the nature biodiversity of the basin. In conclusion the proposal is to create a device of revitalisation, an infrastructure that activate the possibilities of cohabitation between permanence and temporal, new and old, nature and physical environment, human and non-human for the multi-species. The architecture of the project serve as a common platform for that intended to be active and dynamic to integrate into the everyday life of the city.
Kok Seng (Bryan) Chee
Figure ground
Analysis Diagram
Construction
South Bank Exhibition, Festival of Britain 1951.
Piazza
This research examines the history of the Bijlmermeer complex and its transformation over nearly half a century. In 1965, Amsterdam introduced a plan for the new district based on functionalist principles. The ambitious project aimed to create a futuristic city with residential, work, transportation, and recreational facilities. However, the Bijlmermeer fell short of its vision and experienced deterioration and social issues in the 1970s, leading to its stigmatization.
Starting in the late 1980s, the government proposed actions to address these problems and transform the area. This document provides an overview of the project’s development, historical context, and the social challenges that arose. It also explores Rem Koolhaas/OMA’s design proposal from 1986, which aimed to increase density, introduce new programs, and preserve the iconic architecture and character of the Bijlmermeer. Although this proposal was not implemented, it influenced future interventions in the complex.
Furthermore, the document analyzes the Highbury Quadrant housing complex in London, built in 1954, and proposes an intervention based on Koolhaas’s Bijlmermeer masterplan. The intervention suggests generating a mixed program and higher densification for the Highbury Quadrant site.
Right: Masterplan with interventions in Highbury Quadrant
Unveiling Layers: Redensification in the Highbury Quadrant Estate Luis Young
Schematic diagram of programme pavilions
1. Axes
2. Strips
3. Expansion of the Dwelling
5. Green Islands
6. Equipment
4. Sports infrastructure
Above: Axonometric view with the programmatic layers. Highbury Quadrant Estate.
Road Network Development from 1970 - 2012 in Muscat Capital Area.
Urban Planning Layout of Al Khoud, Muscat.
Network Al Khoud, Muscat.
Muscat. 2013.
in Al Khoud, Muscat. 2023.
Urban Expansion of Muscat.
This project examines the construction work of German urban planner Ernst May and Austrian architect Margarete SchutteLihotzky in Weimar-era Frankfurt. Among these, I will place a particular emphasis on May's ‘the neue Frau’ in relation to women's work, as well as Lihotzky's Frankfurt kitchen. Weimar's commercial media steered public opinion towards portraying the neue frau as a modern, independent woman with disposable income and leisure time. Monthly publication Das neue Frankfurt connects 'the neue Frau' and 'the neue Bauen' through visual effects. Lihotzky's Frankfurt Kitchen is a landmark model in the mass production of buildings, and the scientific design method optimizes the use of the kitchen. The design created by May and Lihotzky raises the question of whether it portrays the interwar women as trapped in a modern-day confinement or as representations of liberating to a new era.
In addition, this project also records my personal experience of visiting the Highbury site, which was redeveloped by the LCC in 1952, after studying Frankfurt's new town plan. This helps bring historical questions about gender and housing back to the present day.
Xiaochi Chen
HIGHBURY QUADRANT
Dialogue between Old and New Site Plans on the Highbury Site
Plan of the Highbury Estate Area
Design Process: Transitioning between Furniture and Architectural Fragements
Furniture fragment: sink cleaning and preparing area
Furniture fragment: cooking bench cooking area
Furniture fragment: chair sitting area
Furniture fragment: shelf storaging area
Furniture fragment: table and chairs eating area
Movement in Spaces (Proxemics)
The title idea of north is intrinsic to Beijing’s character, which is most evident in its very name. Bei(北)means north; Jing (京) means capital. This idea of north is not only intrinsic in this spatial configuration, but also express a concept of cultural mindset, which is embedded in spatial ritual.
Here I would like to link with Canadian pianist Glenn Gould’s same titled film: in the film, he use contrapuntal structures, which four human voices speak simultaneously describing their individual experiences about the northern part of Canada. Those contrapuntal sound provide us a critical method, which allow us discussing the common concept through individual’s mouth.
The north is symbolic body of hierarchical order, spatial ritual, navigation system, experienced, practiced by all residents in the old city of Beijing. For instance, Beijingers are always acknowledged having good sense of direction that they could articulate where is north easily without assistant of compass. This could also evident in the old Beijing’s documentary film in which to avoid collapse the cyclist always shout which orientation they were before they made the turn. This ability is obviously affected and trained by the city’s delicate alignment to north and south grid.
In the Ming-Qing dynasty’s Beijing, this tension between rigidity and flexibility still embedded extensively in the civil life. The popular understanding of Beijing’s spatial configuration was that it highly centric and hierarchical order, strict alignment with North-South grid and domination by centre axis embodied Bei
jing as a well protected city, which have seldom freedom in it.
However this is rigidity was only in diagram level. Although LiFang system was no-longer dominated in the urban planning, its multi-centric and inner-public characters have been already embedded in the way Chinese people interact with city, sometime in a temporary and informal way.
For instance, in 1980s, the economic reform brought the free market to the people that being a merchant could as a living choice. At that time, lots of Hutong became markets with courtyard as warehouse. Hutong as a social connector provide multifunctional interface for the public. It is also a in-between space, challenging the binary of public and private division. For instance, some residents use the van as temporary storage space as the courtyards have already overcrowded that average domestic area are only 15 square meters. This living wisdom perfectly indicate Hutong’s ambiguous situation in public and private. One could defined Hutong is a communal space that everybody could utilize.
Yi Shi



As the first country to begin industrializing and the birthplace of the world’s first railway, the United Kingdom boasts the oldest and richest history of railway stations. Since their inception, railway stations have become one of the most important infrastructures in cities. They emerged alongside the industrial revolution, prospered with the development of coal mining, and declined with the advent of electricity. It can be said that the transformation of railway stations was driven by a series of complex economic and social factors. Meanwhile, the construction, prosperity, and decline of railway stations also have an undeniable impact on the surrounding architecture, residents, economy, and society. This research focuses on studying London’s most iconic railway stations and one of the most successful redevelopment projects, King’s Cross & St. Pancras Station. By studying the architectural evolution of these two stations and the urban form around them, we can understand how railway stations have influenced the development of cities over the past 200 years, how the development of cities has in turn changed railway station architecture, and how the interaction between architecture and cities is important.
This research redraws and analyses the urban form around King’s Cross and St Pancras stations, from before they were built to the present, in the context of some of the city’s key historical events and changes, in an attempt to understand how the construction, development and decline of these two stations have affected the surrounding residential, community and commercial environments. The focus then turns to King’s Cross and St Pancras stations to understand the changes in their built form and functional distribution through a comparison of their original and current floor plans and sections, and to explore how the city and society have transformed these two stations in their historical and urban context.
In design exercise, I will determine my design goals based on my understanding of how railway stations affect cities and use my research on railway station architecture to extract specific architectural elements and apply them to the design. The site is located near the two train stations, and there are a significant number of residential buildings surrounding the site, so I believe it is suitable for a residential project. Additionally, considering its central location and convenient transportation, I aim to design a build-to-rent community that enables commuters to live here. On the other hand, the architectural element I have extracted from the train stations is the train shed. Not only is it a symbol of the train station, but it also provides a sheltered environment that protects passengers from external weather conditions, ensuring their comfort and reducing damage to train carriages caused by inclement weather.
TAKE COVENT GARDEN AS AN EXAMPLE
Covent Garden Market is a very representative market in London. The vast majority of London’s markets have evolved from informal markets, with few markets originating in buildings specifically designated for markets by the government, and Covent Garden Market is no exception (it originated as an informal market in the Square). Its history is very long and its development covers almost all periods of change in the market: the use of steel and glass, the arrival of international trade, the use of electricity, etc. Similarly, the relocation of Covent Garden Market is very typical. As with most markets in London, the inability of the existing market volume to accommodate the increasing volume of trade eventually led to the relocation of the market. Studying the changes in Covent Garden Market therefore deepens the understanding of the changing nature of London’s markets and their role and impact in the city. Marketplaces
The aim of this study is to examine the links between the development of London’s markets and the city, using Covent Garden Market as an example. Markets are an important part of the city, not only as a place for the exchange of goods but also as a vehicle for everyday life and culture. Changes in the market therefore reflect changes in the city, and the relationship between the market and the city becomes increasingly close as urbanisation progresses. From the outside of the city, the market connects not only the city to the city, but also the city to the countryside. From within the city, the market connects people in different occupations in the city. The study of markets can help us to better understand not only the process of urban development and evolution, but also to gain a deeper understanding of the daily life and culture of the city.
Zhijun Lei
Projective Cities — Taught MPhil in Architecture and Urban Design 2022-2023