Aaron Harcek AIA_Selected Works

Page 1

AIA, LEED AP AARON
HARCEK

AARON HARCEK, AIA LEED AP SELECTED WORKS

A talented architect with passion and dedication to progressing the built environment while striving for design excellence. With over two decades of professional experience – focused on Civic, Higher Education and Government market sectors - Aaron has a unique ability to see the big picture along with the details of construction.

As the primary design interface with clients, he has helped shape their aspirations into remarkable, sustainable and award-winning architecture. He enjoys coaching and mentoring young designers while looking to push all to become better, more rounded architects. With marketing & business development experience, he can assist in bringing in new work while forging relationships with future clients.

The following projects represent some of the salient work Aaron has been involved in over the course of his career. All projects start with an adventerous client and are the result of great teams: clients, mentors, peers and many talented designers, architects and consultants.

Foradditionalinformation:www.linkedin.com/in/aaron-harcek-00807437

CALEXICO WEST LAND PORT OF ENTRY

Blurring the line between two countries, two cities and between landscape, architecture and highway infrastructure, the new port design creates a dignified and new way to integrate a building of this scale into the existing urban fabric of two border cities. As part of the GSA’s Design Excellence Program the project was vetted throughout the design process by a myriad of agencies, diplomats, the Chief Architect of the US as well as an esteemed peer review panel.

Phase 1 of the project was completed in 2018 and targeted LEED Gold certification. Phase 2A began construction in 2020 and is expected to be complete in 2023. Phase 2B (the pedestrian inspection area east of the UP rail corridor) is still awaiting funding. The project was awarded a Progressive Architecture (P/A) Award by Architecture magazine in 2013, along with an AIA design award from the San Francisco AIA chapter, and has been featured in numerous publications and digital media.

role: senior project designer @ perkins+will project location: Calexico, California site area: 18 acres

building area: 325,100 sf (including canopies)

budget: $346M

CALEXICO WEST LAND PORT OF ENTRY
CALEXICO WEST LAND PORT OF ENTRY
Pedestrian Inspection Building Elevations Pedestrian Primary Inspection Pavilion
CALEXICO WEST LAND PORT OF ENTRY
Pedestrian Primary Inspection Pavilion
CALEXICO WEST LAND PORT OF ENTRY
Vehicular Primary Inspection Canopy
CALEXICO WEST LAND PORT OF ENTRY
Administration Employee Courtyard
CALEXICO WEST LAND PORT OF ENTRY
Construction Progress March 2018 - Phase 1
CALEXICO WEST LAND PORT OF ENTRY
Primary Auto Inspection - Phase 1

HYUNDAI GREEN SMART INNOVATION CENTER

A small building with big aspirations: Net Zero Energy, Net Zero Water, an iconic building form, while providing a research platform for Hyundai’s Design, Engineering and Construction (HDEC) group.

The design embodies all those aspects in a sleek boomerang shape - which forms a partially shielded entry courtyard - and a roof canopy that integrates both PV’s and tuned shading devices based on solar orientation. The roof pulls away from the facade creating a covered entry walkway. Numerous other building technologies are incorporated into the building: BIPV panels, integrated solar hot water tubes, a roof garden with bio-swales, an interior vertical wall of vegetation and a membrane bio-reactor system to process waste water from the building for reuse in toilet flushing and irrigation.

role: senior project designer @ perkins+will project location: Giheung-Gu, South Korea

building area: 4,865 m2

EUI: 97 kWh/m2-yr

GREEN
HYUNDAI
SMART INNOVATION CENTER

HYUNDAI GREEN SMART INNOVATION CENTER

03 GUIDED TOUR perkinswill.com 44 FLOOR PLAN AXONOMETRICS
Plan Axonometric Client ‘Guided Tour’ Pathway
Concept Sketch
HYUNDAI GREEN SMART INNOVATION CENTER

DENVER WATER ADMINISTRATION BUILDING

Envisioned as a hub of collaboration and imbued with sustainability, the Denver Water Administration Building focuses on the employee environment and aims to support their executive mission: to provide the residents of Denver with the best drinking water in the most responsible and sustainable manner possible.

The six-story administration building is designed to foster an open and collaborative environment through a free-flowing open office plan, centered on an “irresistible stair” and multi-purpose gathering zone. This interactive environment ties directly into Denver Water’s Lean Initiative by providing spaces for chance encounters across disciplines, which can lead to improved processes and awareness across the company.

The building is targeting Net Zero Energy, a modified Net Zero Water called ‘One Water’ with an on-site wastewater recycling system, and International Well Building Institute Certification for a healthy work environment.

role: senior project designer @ rnl design (now stantec) project location: Denver, Colorado

building area: 194,000 sf

budget: $54.7M

EUI: 21 kBtu/sf-yr

WATER
DENVER
ADMINISTRATION BUILDING

DENVER WATER ADMINISTRATION BUILDING

2 1 3 4 5 6 7 8 9 9 10 11 12 13 14
1. Administration 2. Employee Parking Garage 3. Historic Three Stones Building 4. Wellness / Clinic Building 5. Trades Shop 6. Meter Shop 7. Fleet Maintenance 8. Warehouse 9. Existing Building 10. Vehicle Wash Facility 11. Visitor Parking 12. Fleet Vehicle Parking 13. Employee Parking 14. Pedestrian Circulation Spine Early Concept Sketch Campus Site Plan

DENVER WATER ADMINISTRATION BUILDING

1. Floor Plan Shift 2. Cafe/Board Room Rotation 3. Pedestrian Breezeway Connect 4. Disengage Parking Structure 5. Lobby Alignment to Three Stones 6. Civic Entry Court Massing Evolution
DENVER WATER ADMINISTRATION BUILDING Floor Plans
Level 01 Floor Plan Level 02 Floor Plan
Typical Upper Floor Plan Upper Level Collaboration Lounge
DENVER
WATER ADMINISTRATION BUILDING
Lobby Overlook Lobby Reception
DENVER WATER ADMINISTRATION
BUILDING
DENVER WATER ADMINISTRATION BUILDING
Cafeteria and Lobby at Breezeway
DENVER WATER ADMINISTRATION
BUILDING
Irresistible Stair and Water Reclycling System Planters
DENVER WATER ADMINISTRATION BUILDING
Irresistible Stair and Upper Level Collaboration Lounge

DENVER WATER PARKING GARAGE

An efficient parking structure for employee and fleet vehicles - as well as secure bike storage - aims to blend in with the adjacent campus architecture and serve as a link between the Administration building and the Operations buildings and campus to the south.

Clad with an anodized expanded metal mesh providing security, screening and shade for the parked vehicles inside. The mesh doubles as a ‘green screen’ on the eastern facade with growing vines planted at the base. The vegetation will help to organically filter the dust from the adjacent cement batch plant.

A saw-tooth PV canopy pulls its geometry from historic Three Stone’s gable roof and supplies carbon-free power generation to the administration building while capturing rainwater for site irrigation. This ensures both Net-Zero Energy and One Water strategies for the Administration building are achieved.

role: senior project designer @ rnl design (now stantec) project location: Denver, Colorado building area: 151,000 sf (495 spaces) budget: $10.0M

DENVER WATER PARKING GARAGE
DENVER WATER PARKING GARAGE
DENVER WATER PARKING GARAGE
Entry Facade Detail

UNIVERSITY OF NEW MEXICO HOSPITAL REPLACEMENT HOSPITAL & GARAGE/CUP

Inspired by the region and adjacent hospital architecture, the new adult replacement hospital serves as transition between past and future. Phase 1 will add 96 new ICU beds to the campus, with future expansion of 240 more beds, for a total of 336. A challenging, compact site led to creatively tucking the emergency department under the Diagnostic and Treatment block, which also helped to address a twenty foot grade change across the site.

The main entry is placed on the south facade and opens to the main thoroughfare (Lomas Boulevard) with a large entry court and drop-off. This helps with way-finding and opens the campus to the street. The overall building massing is of more solidity, referencing the vernacular of Albuquerque, with punched windows and areas of high transparency to aid in connectivity and way-finding. The tower portion is clad in copper metal panel, with a specular quality to reflect the colorful sunrise and sunsets of the region. The copper also references the Puebloan jewelry using turquoise and copper. The base will be an off-white, cementitious stucco matching the adjacent buildings.

role: design principal @ hdr project location: Albuquerque, New Mexico

building area: 570,800 sf

budget: $385M

EUI: 111.2 kBtu/sf-yr

UNIVERSITY OF NEW MEXICO HOSPITAL REPLACEMENT HOSPITAL & GARAGE/CUP

UNIVERSITY OF NEW MEXICO HOSPITAL REPLACEMENT HOSPITAL & GARAGE/CUP

Axonometric of New Hospital Addition - Phase 1 & 2

UNIVERSITY OF NEW MEXICO HOSPITAL REPLACEMENT HOSPITAL & GARAGE/CUP

Main Entry Court - Phase 1

GSA DES MOINES FEDERAL OFFICE BUILDING FACADE REPLACEMENT

Constructed in the late 1960’s, the building had experienced significant water intrusion and other facade problems through most of it’s life, and it’s architecture didn’t reflect the values and tenets of today’s federal government. The re-cladding effort looked to create a more transparent, forward-looking architecture that better engages the community, while increasing its energy efficiency. The north facade is opened up with a highly transparent plate of glass, allowing more daylight into the building as well as signaling the “transparency” of the federal government and agencies within. The east, west and south facades incorporate solar control devices and deep window reveals to minimize solar intrusion and reduce solar gain. From a security standpoint, glass shard retention and progressive collapse criteria have been seamlessly woven into the new facade.

role: project designer @ smithgroup

project location: Des Moines, Iowa

building area: 390,000 sf

budget: $12.0M

Facade Recladding Rendering
GSA DES MOINES FEDERAL OFFICE BUILDING FACADE REPLACEMENT
Existing Facade
STANFORD UNIVERSITY SCHOOL OF MEDICINE LI KA SHING LEARNING AND KNOWLEDGE CENTER
STANFORD UNIVERSITY SCHOOL OF MEDICINE LI KA SHING LEARNING AND KNOWLEDGE CENTER
Facade Detail

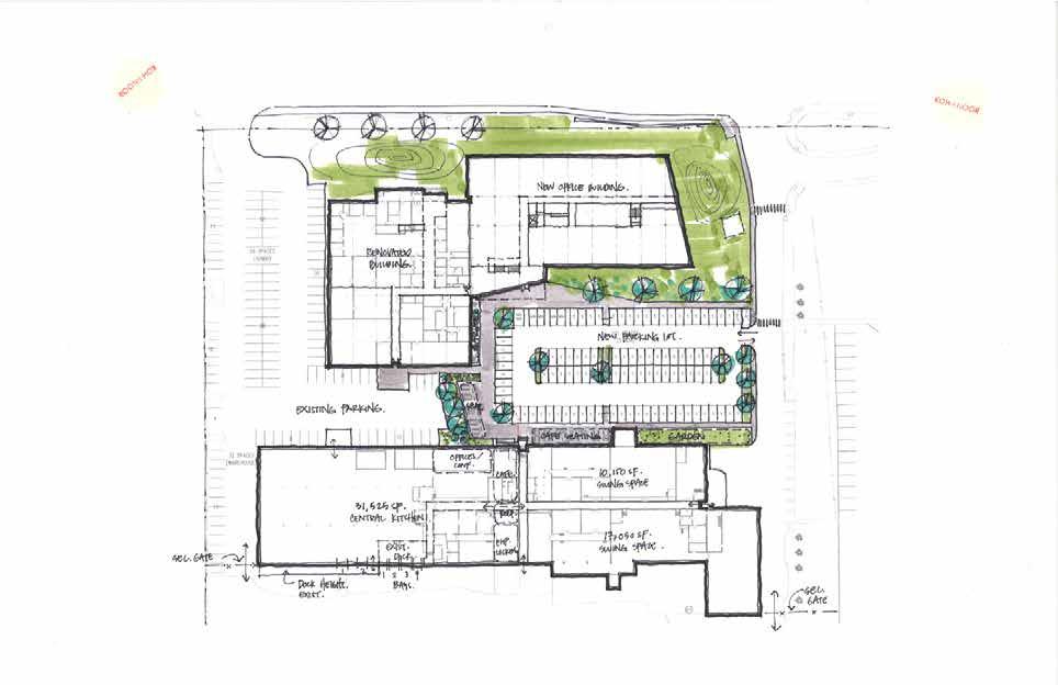
BOULDER VALLEY SCHOOL DISTRICT EDUCATION CENTER CAMPUS

The Education Center campus helps keep the district running smoothly by supporting educators and staff, providing healthy meals for students, and maintaining approximately 55 school buildings across the district. For the administration portion of the campus, the design team is proposing to demolish a series of building additions dating back to the 1960’s, and construct a new two-story wing that will provide a modern work environment for BVSD.

Light-filled and utilizing an open office layout, the new space will increase interaction among administrators and provide flexible work settings and break areas. A new front door is created with a two-story transparent lobby on the south face of the building that will aid in way-finding while providing additional areas for informal gatherings. Both the new building and interior renovations of existing are targeting LEED Gold and Net Zero Energy ready.

role: senior project designer @ rnl design (now stantec) project location: Boulder, Colorado

building area: 67,000 sf

budget: $21.0M

EUI: 25 kBtu/sf-yr (targeted)

BOULDER VALLEY SCHOOL
DISTRICT EDUCATION CENTER
KAISER PERMANENTE MEDICAL OFFICE BUILDING AND PARKING GARAGE
Entry Canopy Detail KAISER PERMANENTE MEDICAL
OFFICE BUILDING AND PARKING GARAGE
Broadway Street Elevation

PRINCESS NORA BINT UNIVERSITY HEALTH SCIENCES CAMPUS

Princess Nora Bint Abdulrahman University is the largest women’s only university in the world, and was designed and completed in three years. The Health Sciences Campus, which is only a portion of this grand campus, contains professional schools for Medicine, Nursing, Clinical Skills, Applied Medicine, Dentistry, Pharmacy, Physiotherapy and Basic Sciences as well as a Research Center and a centrally located Student Amenities building.

Study of the local vernacular provided influence and metaphor for the primary building aesthetic. Screens that were historically used to provide shade from the intense desert sun now would be used to screen views into the campus, so students can walk freely around unveiled. Outdoor courtyards are also passively cooled with modern interpretations of malqaf’s (or wind towers) and shaded to provide comfortable outdoor space and help mitigate the intense desert sun.

role: senior project designer @ perkins+will project location: Riyadh, Saudia Arabia building area: 2,500,000 sf (approximately)

PRINCESS NORA BINT UNIVERSITY - HEALTH SCIENCES CAMPUS

Health Sciences Campus

Ground Floor

School of Dentistry

School of Pharmacy

Basic Sciences

School of Applied Medicine

School of Medicine

School of Physiotherapy

Student Amenities

School of Nursing

Clinical Skills

Development Center

Key Plan

Research Laboratory

PRINCESS NORA BINT UNIVERSITY - HEALTH SCIENCES CAMPUS HSC Ground Floor Plans
PRINCESS NORA
Studies HSC Campus Building Elevations
BINT UNIVERSITY - HEALTH SCIENCES CAMPUS Elevation

PRINCESS NORA BINT UNIVERSITY - HEALTH SCIENCES CAMPUS

Grand Lecture Halls HSC Main Campus
Entry PRINCESS NORA BINT UNIVERSITY - HEALTH SCIENCES CAMPUS

PRINCESS NORA BINT UNIVERSITY - HEALTH SCIENCES CAMPUS

Perforated Stone Facade at Lecture Hall Lecture Hall Interior

PRINCESS NORA BINT UNIVERSITY - HEALTH SCIENCES CAMPUS

Interior Courtyard
AIA, LEED AP AARON HARCEK

Turn static files into dynamic content formats.

Create a flipbook
Issuu converts static files into: digital portfolios, online yearbooks, online catalogs, digital photo albums and more. Sign up and create your flipbook.