AAA089 - INTERIORES RESIDENCIALES Y DOMÉSTICOS 2024

Page 1

Casa Celia. Barranquilla

DEB Consulting / Catherine Jessurum

Fotografía: © Mónica Barreneche

ARCHIVOS DE ARQUITECTURA

ANTILLANA

Director/Editor

Gustavo Luis Moré

Coeditor

Marcos A. Blonda

Coeditora Sección Interiores

María del Mar Moré

Consultor de Diseño

Vignelli Associates

Directora de Arte

Chinel Lantigua

Asistentes Gráficos

Manuel Flores

Corrección de Estilo

Marcos A. Blonda

Gustavo Luis Moré

Ruth Herrera

Fotografía

Gustavo José Moré / PhotoGUM

Ricardo Briones

Gerente Administrativa

Madeline Espinal

Gerente de Ventas y Mercadeo

Patricia Reynoso

Consultora de Mercadeo

María Elena Moré

Asistente

Luis Checo

Preprensa e Impresión

Amigo del Hogar

Santo Domingo, RD

Fundadores

Gustavo Luis Moré

María Cristina Rodríguez-Marchena

Suscripción, venta y publicidad

Santo Domingo, RD

Patricia Reynoso

Tel.: 809 687 8073 / Fax: 809 687 2686

Miami, Fl

Laura Stefan

Cel 786 553 4284

San Juan, PR

Emilio Martínez

Tel 787 726 7966

Santiago de Chile

Humberto Eliash

56 22 480 3892

AMÉRICA LATINA Y GRAN CARIBE

Antillas Francesas: Gustavo Torres, Serge Letchimy, Jack Sainsily, Bruno Carrer

Argentina: Ramón Gutiérrez, Fernando Diez, Mario Sabugo, Cayetana Mercé Bahamas: Diane Phillips

Bolivia: Javier Bedoya, Gustavo Medeiros

Brasil: Ruth Verde Zein, Hugo Segawa

Chile: Humberto Eliash, Andrés Téllez, Sebastián Irarrázabal, Horacio Torrent, María de Lourdes Muñoz

Colombia: Silvia Arango, Carlos Niño Murcia, Alberto Saldarriaga Roa, Sergio Trujillo, Claudia Fadul, Daniel Bermúdez, Lorenzo Fonseca, Gilberto Martínez, Ricardo Vives

Costa Rica: Bruno Stagno, Luis Diego Barahona

Cuba: Eduardo Luis Rodríguez, José Antonio Choy, Omar López

Curazao: Ronald Gill, Sofía Saavedra, Ronny Lobo, Michael Newton

Ecuador: Sebastián Ordóñez

El Salvador: Francisco Rodríguez

Guatemala: Blanca Niño Norton, Ana Ingrid Padilla, Cristian Vela, Raúl Monterroso

Jamaica: Patricia Green, Jaquiann Lawson, Patrick Stanigar, Mark Taylor, Robert Woodstock

México: Louise Noelle, Fernando Winfeld, Jaime García, Eliana Martínez. Juan Bernardo

Dolores

Panamá: Silvia Vega, Sebastián Paniza, Carlos Morales

Paraguay: Jorge Rubiani, Oscar Centurión

Perú: Pedro Belaúnde

Puerto Rico: Manuel Bermúdez, Segundo Cardona, Emilio Martínez,

Ricardo Medina, Jorge Rigau, Enrique Vivoni

Rep. Dominicana: Eugenio Pérez Montás, Esteban Prieto Vicioso, Mauricia Domínguez, Omar Rancier, José Enrique Delmonte, Lowell Whipple, George Latour, Marianne de Tolentino

Suriname: Jacqueline Woei A. Sioe

Trinidad y Tobago: Mark Raymond, Jenifer Smith

Uruguay: Sebastián Schelotto, Conrado Pintos, Nelson Inda

Venezuela: Carola Barrios, Francisco Feaugás, Ramón Paolini, Enrique Larrañaga, Martín Padrón, David Gouverneur, Federico Vegas

ESTADOS UNIDOS DE AMÉRICA

Honolulu: William Chapman

Miami: Roberto Behar, Andrés Duany, Elizabeth Plater-Zyberk, Rafael Fornés, Carmen Guerrero, Luis Trelles, Teófilo Victoria, José Gelabert Navia, Jean François Lejeune

New York: Joaquín Collado, Rafael Albert, Germán Pérez, Rafael Álvarez

Washington D.C.: Aurelio Grisanti, Francisco Ruiz

COMUNIDAD EUROPEA

Austria: Mayra Winter

España: Antonio Vélez, Lluis Hortet, Oswaldo Román, Juan Herreros, Juan Antonio Zapata

Francia: Kyra Ogando

Italia: Carmen Amelia Corsani, Stefano Topuntoli, Julia Vicioso

Suiza: Marilí Santos Munné

ASIA

Japón: Cathelijne Nuijsink

AAA © es una edición trimestral. Publicada en marzo, junio, septiembre y diciembre.

Santo Domingo: Número 089, marzo 2024.

Para envío de colaboraciones, cartas o informaciones favor contactar al editor en: Gustavo Luis Moré / AAA, E.P.S. P-4777, 8260 NW 14th st. Miami, Florida 33191 USA. Dirección oficinas de redacción: Calle Benigno Filomeno Rojas #6, Penthouse 7 Norte, Torre San Francisco. Santo Domingo, República Dominicana.

Tel.: 809 687 8073. E-mail: glmorearq@gmail.com Sitio Internet: www.aaamag.com.do

Permitida la reproducción parcial siempre que se admita la fuente.

El editor no se hace responsable de los conceptos emitidos por los articulistas. Publicación registrada con el No. 83238 del 15/4/96 en el Ministerio de Industria y Comercio de la República Dominicana ©. ISSN 1028-3072.

LCCN 99110069 sn 98026218 OCLC number (OCoLC) ocm 40640773

EDITORIAL Lo lúdico doméstico 04 Marcos A. Blonda / Gustavo Luis Moré CARIBBEANA Biblioteca La Primada: génesis del urbanismo en el Nuevo Mundo de Mayobanex Suazo 06 Marcos A. Blonda Biblioteca Assouline Colección de libros de viaje dedicados al Gran Caribe Marcos A. Blonda Reseña La Escultura Centinela 08 Raúl Morilla Obituario Patrick Anthony O’ Sullivan Stanigar, O.D. 1944-2024 12 Jacquiann T. Lawton, para AAA INTERIORES RESIDENCIALES 2024 Residencia MC 18 Anarquitectura Casa Mulix, Mérida 26 Arkham Projects / Oliva Carolina Torre Uno, Santo Domingo 34 Andrés Aybar Papaya 101, Las Terrenas 42 Colectivo de Diseño Villa Callao, Casa de Campo 48 Eugenia de los Santos Casa Celia, Barranquilla 56 Apto SM 64 DEB Consulting / Catherine Jessurum Casa Escondida, Ciudad de México 70 Casa Pirul, Ciudad de México 78 Departamento AD 86 Grupoarquitectura / Daniel Alvarez Piso 23, Regatta Altos del Parque, Santo Domingo 92 Intside Apartamento Vasco-González, Bogotá 100 Jimena Londoño Residencia Privada, Santo Domingo 108 María del Mar Moré / Moré Interiores Punta Sur 14, Santo Domingo 114 Punta Sur 15, Santo Domingo 120 Caribata , Santo Domingo 126 Amanda Musa Torre Es 201. Santo Domingo 132 Torre Uno 10, Santo Domingo 138 Gutiérrez Rodio Los Flamboyanes, La Estancia, La Romana 144 Las Colinas Townhouse 152 Anny Torres Nin / Torres Nin Arquitectura Residencia Privada - VM , Santo Domingo 160 Varval Home

Lo lúdico doméstico

La marcada aceptación que han tenido nuestras ediciones de interiores ha dado lugar a que, por primera vez tengamos dos ediciones consecutivas sobre el tema. La primera la dedicamos a los interiores comerciales e institucionales y esta edición AAA089 a los interiores habitacionales. A partir de estos dos números empezamos a notar la consolidación de dos tendencias que explicamos en esta nota editorial. Estas no son excluyentes de algunas ramificaciones que se desprendan de otras formas de arte.

La primera tendencia es a acentuar la novedad de los interiores actuales. Se trata de una corriente que exalta la individualidad que se expresa en la cualificación estética de los espacios de uso cotidiano. Esta puesta en valor de los interiores, es una respuesta a una actitud contemporánea de introspección, de mirada de la gente sobre sí misma que se traduce en coleccionar objetos de diseño, obras de arte, mobiliario, etc. Son estos objetos, los que después, y a través de la mano de los profesionales, vendrán a poblar los espacios dándoles vida y personalidad propia.

Lo segundo que queremos traer al frente es la noción de apertura a una nueva estética que, en un movimiento de flujo y reflujo, guardan una relación intertextual con otros géneros creativos y que ejemplificamos con la reciente película Poor Things. Esta película es una verdadera obra de arte -surreal, provocadora, manierista- en la que podemos encontrar pinceladas de influencia en las tendencias de diseño actual. Estas se caracterizan por la acentuada y desbordada creatividad en el manejo de los espacios, el uso variado de elementos que se sitúan más allá de lo cotidiano y lo operativo. Se abandona la austeridad y el minimalismo que caracterizó en algún momento al diseño de interiores en fechas recientes, y se abraza lo lúdico sin tapujos.

Nuestra tradicional sección de Caribbeana nos trae una interesante oferta: reseñamos en esta ocasión un nuevo libro dedicado a Santo Domingo y que se titula: La primada: genesis del urbanismo en el Nuevo Mundo de la autoría de Mayobanex Suazo. Se trata de un texto pleno de diagramas críticos novedosos, acerca de la ciudad capital, que viene a aumentar el acervo que existe sobre el tema. Entender el pasado nos ayuda a comprender, aceptar y mejorar la ciudad de hoy.

Esta edición nos trae una pequeña –pequeñísima- muestra de los libros de viaje de la editorial de lujo Assouline . Los mismos no son sólo literatura interesante sino también piezas hermosas para mirar y poseer.

Nos movemos a La Vega y reseñamos la propuesta escultórica y paisajística del arquitecto y artista visual Raúl Morilla, cuya escultura Centinela, localizada en una plaza diseñada para albergarla, marca la entrada a esa dinámica ciudad del Cibao.

En esta entrega queremos rendir tributo a Patrick Stanigar, excelente arquitecto jamaiquino, educador, pensador profundo de la arquitectura regional. La muy querida amiga Jacquiann T. Lawton nos ofrece una reseña autorizada de la vida de Patrick que reproducimos en idioma original para nuestros lectores del Gran Caribe, y en el espíritu de creación de vínculos entre nuestros países que nos ha caracterizado desde nuestro primer número.

En la sección de los proyectos Anarquitectura, una firma local, nos muestra la modificación de una casa de la década de 1970. Se ha readecuado tanto el programa de áreas como la propuesta estética y de terminaciones. El resultado de la intervención es una vivienda de una contemporaneidad exquisita donde se valora la relación de unos interiores sobrios con un magnifico jardín tropical.

Arkham projects es una firma mexicana cuyos proyectos comerciales reseñamos en la edición anterior; en esta ocasión mostramos Casa Mulix, un oasis de tranquilidad y armonía en la naturaleza, un lugar en el que la conexión con el entorno natural es palpable en cada rincón.

Andrés Aybar nos trae un apartamento que ha trabajado en un desarrollo de alta gama en el Polígono Central de Santo Domingo; se trata de una propuesta lograda a través de un dialogo continuo con los clientes y una selección adecuada de materiales y colores para lograr un diseño de estilo atemporal.

Colectivo de Diseño nos regala un interior en un apartamento en Las Terrenas, de sutil cromaticidad de beige y blancos, convirtiendola en un ambiente relajado y elegante.

Villa Callao es una villa de Casa de Campo remodelada por Eugenia de los Santos y donde toda la magia sucede dentro de la casa. Haciendo uso de la madera y la iluminación natural la diseñadora apela a la reinvención de elementos de la cultura europea para reflejar las personalidades y experiencias de vida de los propietarios.

DEB Consulting / Catherine Jessurum es otra de las oficinas cuyos trabajos exhibimos en la edición anterior; en esta ocasión disfrutamos de otro proyecto de esta interesante firma colombiana, realizado para un cliente apasionado con los libros, que fueron convertidos en leitmotiv esencial del trabajo, como

se observará en la portada de esta edición. Otro proyecto es el Apto SM, un moderno apartamento frente al mar en la ciudad de Santa Marta. Es el hogar de una pareja que buscaba renovar su vivienda para ajustarla a sus modos de vida y estilo personal. El cometido se logra a base de materiales, como la madera, el mármol y el microcemento, para dar a la vivienda un tono clásico que responde al estilo propio de los usuarios. Se integra el paisaje costero como elemento principal que dialoga con los interiores.

Estudio GC es una oficina local que propone unos interiores sobrios para un apartamento privado en Santo Domingo. En este trabajo ponen en práctica una filosofía de diseño que entiende que los ambientes deben satisfacer, ante todo, las necesidades básicas de la función y luego tener características específicas que le dan identidad visual y emocional a un espacio.

En Casa Escondida Grupoarquitectura sacan provecho de una paleta de acabados de piedra muy monocromáticos donde predominan los tonos grises. Esto permitió tener un gran lienzo neutro para recibir el mobiliario que eligieron para sus clientes. Las diferentes texturas, acabados y colores lo demuestran. La selección de todos los muebles fue muy cuidadosa, acoplando perfectamente con la arquitectura de una casa cuya infraestructura es de última generación. De Álvarez y Grupoarquitectura es también Casa Pirul que toma su nombre por un casi centenario árbol de pirul que existe en la propiedad. Se trata de una interesante intervención que combina elementos que quedaron de una casa de 1944 que fue demolida y nuevos espacios e infraestructura de alta tecnología.

En el apartamento AD, de nuevo Grupoarquitectura realizan una paleta monocromática, convirtiendo, por medio de tonos grises y el uso de la madera, grandes piezas de mobiliario llevadas a una escala doméstica de singular equilibrio y gran atractivo.

En esta edición traemos un apartamento en Bogotá trabajado por la diseñadora Jimena Londoño. Se trata de una unidad que combina 300 metros cuadrados en tres niveles. En este espacio de gran formato, se logra un estilo urbano que reinterpreta la elegancia sencilla de la modernidad y se conecta con la herencia cultural de quienes lo habitan.

Para lograr La Residencia privada María del Mar Moré reforma una vivienda existente en un conjunto cerrado de la ciudad de Santo Domingo. La propuesta se centró en hacer eficiente y confortable los espacios a través de una línea de diseño más moderna, con cambios en la distribución, revestimientos, trabajos en techos, iluminación y mobiliario.

Amanda Musa concibe el proyecto Punta Sur 14 a partir de crear un espacio elegante y sofisticado, donde la armonía de tonos neutros se fusiona con la calidez de los materiales seleccionados, dando lugar a un ambiente acogedor y refinado. En el mismo Punta Sur, Musa nos trae Punta Sur 15, un proyecto de enfoque audaz y distintivo que crea una impresión duradera.

En Caribata, de nuevo Amanda Musa, la diseñadora se enfoca en transformar una terraza en un espacio que fusiona lo clásico y lo moderno para crear un ambiente acogedor y sofisticado.

La sorprendente luminosidad permite jugar con texturas y colores de mucho contraste en Torre Es 201 de Gutiérrez Rodio permite lograr unos interiores modernos que combinan un manejo adecuado de revestimientos, colores y acentos provistos por muebles y objetos de diseño de primera clase. En Torre Uno 10 estos diseñadores logran unos interiores magníficos a partir de sacar ventaja de la presencia de las obras de arte y hermosos objetos de diseño, que se combinan con terminaciones y colores.

A partir de acentos de colores vibrantes que destacan sobre una base neutra de tonos tierra, Anny Torres Nin, de Torres Nin Arquitectura da una calidez excepcional a los espacios de Los Flamboyanes, una villa ubicada en el sector La Estancia de Casa de Campo.

Anny Torres Nin repite de manera agradable, al tiempo que combina, una propuesta sobria para las áreas sociales y cálida e íntima para las áreas privadas de Las Colinas Townhouse.

Varval Home, firma establecida en Barcelona, cierra esta edición. La Residencia Privada –VM combina unos espacios de carácter distintivo y acogedor que integran a la perfección elementos modernos y logran una fusión armoniosa de estilo y confort.

Una vez más, nuestra edición de interiores -en esta ocasión han sido dos- atestiguan el auge que esta vertiente profesional del quehacer del diseño ha tomado en nuestro país y en la región. Estas páginas abiertas internacionalmente a la Gran Región, dan cuenta de la excelente calidad de los profesionales de este ramo que cada día crece y se fortalece. A nosotros en AAA nos estimula a seguir ampliando el universo de obras reseñadas, cada vez de mayor calidad y diversidad. Asi nos hemos adherido desde el 1996, a aquella oración del enorme poeta dominicano Enriquillo Sánchez: “La isla ha de ocuparse del mapamundi, si pretende que el mapamundi se ocupe de la isla”. (Devo-ra-ciones, 2005).

AAA 089/4

01 Caribbeana

Biblioteca

Marcos A. Blonda

Biblioteca

Marcos A. Blonda

Reseña

Raúl Morilla

Obituario

Jacquiann T. Lawton, para AAA

La Primada: génesis del urbanismo en el Nuevo Mundo Mayobanex Suazo

Assouline : Colección de libros de viaje dedicados al Gran Caribe

La Escultura Centinela

Patrick Anthony O’ Sullivan Stanigar, O.D. 1944-2024

Biblioteca

Marcos A. Blonda

La Primada: génesis del urbanismo en el Nuevo Mundo

Con La Primada: génesis del urbanismo en el Nuevo Mundo, Mayobanex Suazo (Santo Domingo, 1976) agrega un nuevo título a la historiografía de la ciudad de Santo Domingo. Este libro se suma así a una cadena autoral que cuenta en épocas recientes con firmas como Eugenio Pérez Montás y Cristóbal Valdez. Posee en común con los mencionados escritores la responsabilidad de incidir en la conformación de la urbe pues desde el año 2020 ejerce las funciones de Director de Planeamiento Urbano del Honorable Ayuntamiento del Distrito Nacional. Estamos frente a un autor que escribe y actúa sobre la ciudad, de ahí que nos interese reseñar la importancia de este volumen.

La obra está dividida en un prólogo, tres partes y un apéndice. El prólogo, a cargo del arquitecto Daniel Bronfman Rubli, presenta el libro como una exploración en la historia que nos ofrece claves para comprender “esta maravillosa urbe portuaria y caribeña” y señala además que nos permite no sólo comprender a Santo Domingo sino a todas las ciudades de Latinoamérica y el Caribe. Esta última afirmación no es exagerada si tomamos en cuenta que fue en Santo Domingo donde se implementó por primera vez el modelo de ciudad que los españoles usarían para su apropiación colonialista del gran territorio americano.

La primera parte, titulada Desarrollo y evolución de la ciudad de Santo Domingo, recoge los datos que son comunes a las historias de la ciudad; se citan de manera apropiada las diversas fuentes y se señalan de manera correcta las contradicciones que los análisis historiográficos han señalado a lo largo de los años. En esta sección destaca una posición crítica a las acciones de Ovando al trasladar la ciudad desde el emplazamiento original de Bartolomé Colón en la margen oriental del río Ozama a la orilla oeste; si bien es una opinión que se ha expresado antes, no suele expresarse con la claridad que se hace en este texto. Suazo opta por destacar, en un próximo apartado, la figura de Diego Colón como la personalidad que ordena y construye la ciudad en sus etapas iniciales. La condición de ciudad virreinal es destacada por el autor señalando: “Aunque con muchas deficiencias todavía, la Santo Domingo de este momento estaba muy distante de ser la pequeña aldea fundada en 1496 por Bartolomé Colón.”

La sección del libro dedicada a la fundación de la ciudad discurre luego en apreciaciones históricas de hechos importantes que determinaron la conformación de Santo Domingo como el centro urbano más importante de la colonia, así como hechos que marcaron su desarrollo, tal es el caso de la invasión de Francis Drake, las devastaciones de Osorio, la expansión de la ciudad dentro de sus límites amurallados y los importantes poblamientos de las afueras como fueron San Carlos, Pajarito (hoy Villa Duarte) y Los Mina. Ya en las últimas páginas de la sección esboza el territorio ocupado por la ciudad a principios del siglo XX al mencionar a Gascue, Ciudad Nueva y las estancias burguesas que rodeaban la entonces pequeña capital nacional.

Suazo, Mayobanex

Editora Búho

2023

220 páginas

En Santo Domingo, capital de la República Dominicana, título de la segunda parte de la obra, Suazo se refiere a todo el siglo XX. Se trata de un capítulo donde se muestra el peso de las acciones de la dictadura de Trujillo sobre la ciudad en un relato que abarca desde la mención del huracán que destruye la ciudad en 1930 y que -aporte importante del libro- el autor señala como el inicio de un marco legal para la ciudad. Del desarrollo de ese marco legal y de los hechos importantes para la ciudad trata este capítulo que relata cómo Santo Domingo se extiende de manera horizontal alcanzando las dimensiones que posee hoy. Con esas dimensiones aparecen los retos del futuro. Un gran aporte del libro son las imágenes satelitales de las páginas 116 y 117 que muestran con mucha claridad la expansión de la ciudad a lo largo de más de 30 años.

La tercera parte se ocupa del urbanismo sostenible, tema de vital importancia muy bien contextualizado por Suazo en un relato que aborda lo global para descender al plano local y la especificidad del caso de Santo Domingo. Se trata de un recuento del momento presente, de problemas concretos que afectan a la ciudad y de las soluciones actuales que se van ejecutando desde el gobierno central y la alcaldía de la ciudad. Se trata de un capítulo que aporta la visión de Suazo como técnico que conoce los problemas a la vez que participa en la puesta en práctica de soluciones a estos.

El final del libro es un apéndice titulado Una visión sostenible de la realidad territorial y ambiental en la República Dominicana a cargo de la Dra. Sylvia Kloster, Directora de Cambio Climático y Desarrollo Sustentable del Ministerio de Ecología de la República Argentina. La doctora Kloster expone los problemas prioritarios de la Provincia Santo Domingo y el Distrito Nacional y plantea acciones y metas a partir de las cuales propone un marco de ordenamiento territorial fortalecido. Bibliografía y créditos completan el libro.

En conclusión, La Primada... es un título importante que pone en un solo volumen, historia, actualidades y futuro de una ciudad, que es la metrópolis más moderna del Caribe y que refleja en su existencia todas las vicisitudes de su historia, pero además todas las potencialidades de su futuro si se hace ciudad de una manera correcta y planificada.

AAA 089/6

Biblioteca

Marcos A. Blonda

Assouline: Colección de libros de viaje dedicados al Gran Caribe

Quizás no haya mejor instancia que nuestra edición de interiores residenciales para reseñar unos libros que, más que eso, son una muestra de un estilo de vida. Las publicaciones de Assouline nos ponen en contacto con la belleza, con una vida de viajes, con el color local de lugares lejanos y con lo mundanamente hermoso de la geografía, la historia y el arte.

El inicio de esta casa editorial, dedicada a celebrar lo bello en sus libros, data de 1994 cuando sacan a la luz La Colombe d’Or: Saint Paul De Vence acerca de un emblemático hostal de Saint Paul De Vence frecuentado por artistas a lo largo de más de cien años. Desde entonces han publicado más de 1,700 títulos que celebran el lujo, lo exclusivo, lo hermoso del arte capturado en lugares, objetos, ciudades. Lo clásico, lo moderno y las tendencias de lo que hoy se denomina el gypset se hacen presente en estos volúmenes de diseño impecable, contenido adecuado de importantes escritores y finamente impresos y encuadernados. Objetos hermosos sin duda que de alguna manera inauguraron un mercado de artículos culturales de lujo que, aunque se producen en serie, no son artículos de consumo masivo como cualquier otro libro.

En esta nota nos referiremos a algunas ediciones acerca de lugares que se encuentran en el Gran Caribe o en su zona cercana. Hemos disfrutado mucho estos libros que son por un lado documentos interesantes para conocer nuevos destinos y por otro, objetos hermosos que complementan cualquier ambiente.

St. Barths Freedom: está dedicado a la isla de Saint Barthélemy, uno de los territorios franceses en el Caribe. Escrito por la destacada periodista de viajes Vassi Chamberlain, retrata de manera detallada los aspectos físicos, históricos y culturales de la isla. Cuenta con las hermosas fotos que caracterizan a los libros de Assouline tomadas por múltiples fotógrafos, a los que se da crédito en las páginas finales.

Mexico City: la siempre sorprendente capital de México es el objeto de este volumen firmado de manera conjunta por Aleph Molinari y Anfisa Vrubel. Cubre la historia de esa gran ciudad -anterior a la presencia europea en el continente- su dinámico presente y sus perspectivas futuras. Citas de importantes autores de la literatura mexicana complementan el libro.

Palm Beach: el libro dedicado a Palm Beach está firmado por Aerin Lauder, heredera de la afamada empresa de cosméticos fundada por su abuela Esteé y actual directora creativa de esta. En esta obra se recoge la historia del exclusivo enclave floridano frecuentado por celebridades y caracterizado por su agradable clima, sus playas y su activa escena social.

Tulum Gypset: gypset es un neologismo compuesto por gypsy y jet set que designa el estilo de vida nómada y fuera de lo convencional que llevan algunos artistas, empresarios, viajeros y adeptos a la buena vida. Tulum Gypset trata de este estilo vital en el marco de ese hermoso lugar del mismo nombre en la Riviera Maya.

Cartagena Grace: la arquitectura de Cartagena, su vibrante escena cultural y los rincones que la hacen única en el abigarrado escenario del Caribe, son referidos en esta entrega editorial de Assouline. Lo firman Johanna Ortiz y Lauren Santo Domingo, escritoras, empresarias e influyentes figuras del mundo del diseño y del estilo que comparten su amor por esta ciudad.

Havana Blues: la ciudad de La Habana es celebrada en su arquitectura, su herencia multicultural y su complicada historia reciente. Estas páginas recogen los estilos del pasado glamoroso de esta capital y la determinación de un pueblo que sigue adelante a pesar de las dificultades. La autora es Pamela Ruiz importante promotora del arte cubano a nivel mundial.

Jamaica vibes: la cultura, la historia, el paisaje de Jamaica son el tema de este libro escrito por Lisa Lovatt-Smith y Novia McDonald-Whyte. Hermosas fotos de archivo y otras hechas para el libro complementan esta pieza editorial que nos acerca a la histórica isla.

Miami beach: Miami es una ciudad en constante estado de cambio. En ella conviven lo nuevo y lo viejo en una relación dinámica que procede de un constante estado de evolución. El libro, que firma Horacio Silva hace justicia a este maravilloso lugar.

Terminamos esta nota de la misma manera que la iniciamos, señalando que estos libros no sólo muestran los temas a lo que están dedicados, sino que complementan hermosamente cualquier ambiente. En nuestro país los tenemos al alcance en Altri Tempi.

Gran parte de la colección completa de estos magníficos libros esta en display y venta en la tienda Altri Tempi, representante de esta famosa firma editorial en la República Dominicana.

Reseña

Raúl Morilla

La Escultura Centinela

La necesidad de crear un elemento que sirviera de hito y orientación en el acceso norte de la ciudad de La Vega, hizo que el ayuntamiento municipal convocara a una licitación para presentar propuestas que pudieran cumplir con estos requerimientos. El área donde convergen la avenida Pedro A. Rivera (antigua Autopista Duarte), carretera Salvador Basilis (hacia Jarabacoa) y la actual Autopista Duarte, se consideró como el emplazamiento idóneo para plantear esta idea de Plaza-Hito como elemento orientador.

Para la licitación se consideraron dos lotes; el primero para la construcción de la plaza y el segundo para el diseño y la elaboración de una escultura y/o estructura vertical, que viniera a ser el elemento dominante de todo el entorno. A este proyecto se le dominó la “Plaza de Los Presidentes Veganos”, ya que honra a dos presidentes hijos de la ciudad y que fueron elegidos por voluntad popular: el Profesor Juan Bosch y Don Antonio Guzmán Fernández.

El diseño de la misma está definido por una línea curva que se eleva con un plano que al ascender va dejando una estela de agua aligerando este ascenso, culminando en el elemento escultural de gran altura. Este recorrido, generatriz de todo el diseño, va dejando a su paso una estela de elementos entrelazados mediante un esquema determinado por una serie de líneas multidireccionales, creando una malla de fondo que contrasta con todos los elementos curvos de la plaza y crea una simbiosis entre lo orgánico y lo racional.

El equilibrio entre el verde y el hormigón viene a estar dispuesto por el piso y por el manto de la grama que sirve de fondo a la figura orgánica, formando así la plaza general. De esta misma manera, la jardinería trabajada sobre el talud de la autopista sirve de telón a la esculturahito. Se utiliza el concepto de jardinería silvestre donde el esquema y/o composición de esta nos muestra una libertad que se asemeja bastante a lo espontáneo de la misma naturaleza. Las manchas irregulares de diferentes especies y colores de plantas actúan de manera protagónica como componente integrador de todo el conjunto.

La presencia del agua como símbolo de vida se evidencia en estos espejos de agua y una cortina del mismo elemento, alivianando y dando movimiento al plano que se eleva. Todo el proyecto está desarrollado en un terreno de 6,477.35 mt2, donde 1,032 son comprendidos por la plaza y el 5,445.35 mt2 restante es área verde.

El espejo de agua está comprendido por una mancha sinuosa que atraviesa la rampa, donde 32 galones de agua por minuto se mantienen en constante movimiento gracias al impulso que producen sobre la cortina de agua 22 bombas hidráulicas, instaladas en la parte inferior de la misma. Esta parte ha sido utilizada como cuarto de máquinas, así como almacén de depósito de mantenimiento de todo el conjunto.

El muro que define la inclinación y el recorrido al Centinela y es soporte de la rampa del mismo está cubierto con una textura de piedras lajas tipo pizarra, que contrastan con el tono neutral claro aplicado a todo el muro que sirve de pasamanos al plano.

Éste conjunto fue concebido como un espacio para transitar y apreciar. No se incita al público a permanecer mucho tiempo en el lugar, ya que está en una intersección de dos vías rápidas; por ello, la no existencia de bancos ni de árboles de sombra en la zona.

La rampa es una losa vaciada en hormigón armado bajo un sistema estructural aporticado y cubierta con un muro de bloques de hormigón de 8 pulgadas. El piso está definido por una serie de líneas en porcelanato italiano, color gris grafito, y los paños restantes con cemento escobillado. La iluminación indirecta a ras de suelo produce un efecto de claroscuro muy interesante que agrega dinamismo lumínico.

A la llegada al lugar nos encontramos con dos grandes bustos fabricados en fibra de vidrio y patinados en bronce, enclavados a un costado del lugar, dando la bienvenida al visitante. Los mismos fueron colocados y vaciados en hormigón a una altura de 1.20 metros, para darle la estabilidad y la rigidez necesaria en el sitio. Las dos cabezas se nos presentan en unos bloques pétreos; cual si fueran dos piedras intervenidas por el escultor, más no concluidas. Por eso han sido llamado “Los Inconclusos”, en alusión a que éstos mandatarios no concluyeron, por razones conocidas, sus respectivos mandatos.

La plaza está iluminada mediante el uso de faroles, diseminados de forma irregular en todo el emplazamiento, combinados con una serie de focos indirectos que descubren parte de la jardinería, así como el haz de luz de la escultura, la cortina hidráulica y los puntos focales dentro del espejo de agua, creando un ambiente de claro-oscuro que brinda un fascinante juego visual en horas nocturnas.

LA ESCULTURA CENTINELA

Está concebida como una estructura de acero forrada con láminas metálicas y vaciada en su interior en hormigón, esmaltada con pintura de uretano, resistente y duradera, que a su vez, refleja la luz evocando el rojizo tonos de las flores del flamboyán.

La serenidad de un centinela es todo un poema visual que danza entre lo sublime y lo efímero, captura la imperturbabilidad del vigilante fusionado con la melancólica belleza de la flor de flamboyán, revelando la interconexión entre la protección y la transitoriedad de la naturaleza. Es a su vez una oda a la eternidad que se eleva hacia el inmenso azul.

AAA 089/8

Empuñando, en un plano que se eleva, un ramo de olivo en señal de triunfo, gloria y honor y con una altura de 20 metros y 24 sobre el nivel del terreno natural, es la escultura más alta hasta el momento en el país. Ha sido creada por un artista vegano de trascendencia internacional, premiado y reconocido en importantes circuitos artísticos locales e internacionales por su alto sentido estético e impecable rigor en sus creaciones.

Este nuevo símbolo, enaltece a ésta centenaria, culta, olímpica y carnavalesca ciudad, como ícono referencial e identitario de la misma.

© José Rozón
©
© José Rozón
José Rozón

Obituario

Jacquiann T. Lawton para AAA

Patrick Anthony O’ Sullivan Stanigar, O.D. 1944-2024

Recientemente ha fallecido Patrick Stanigar, destacado arquitecto jamaiquino. Stanigar mantuvo una práctica en la que desarrolló múltiples proyectos a diferentes escalas. Como arquitecto en ejercicio contempló siempre una ética de compromiso comunitario y como pensador produjo una gran cantidad de artículos, conferencias y se destacó en eventos académicos acerca de la arquitectura del Caribe. Dominó todos los aspectos del ejercicio profesional, fue diseñador, consultor, propuso planes, fue un experto en tecnología constructiva y enseñó en instituciones de educación superior donde además ocupó posiciones de dirección.

Esta nota, de la autoría de Jacquiann T. Lawton, miembro del Consejo Editorial de AAA , se inserta en el idioma original para acceder a nuestros lectores del Caribe anglófono. Con su publicación queremos honrar a este gran arquitecto antillano con quien llegamos a sostener muchas conversaciones a lo largo de este discurrir regional que ha caracterizado a Archivos de Arquitectura Antillana . Sit tibi terra levis .

Patrick Stanigar was born in Kingston, Jamaica. He spent his formative years in New York at the High School of Music & Art and studied architecture at Pratt Institute. He was Project Architect with DeYoung & Moscowitz - Architects and Hardy Holzman Pfeiffer Associates before returning to Jamaica in the 1970’s where he joined the firm, McMorris Sibley Robinson (MSR). MSR was the mentoring forum for generations of Jamaicans who studied externally and returned home to practice. With MSR, Patrick worked on educational projects in Jamaica and notably in Barbados, the Caribbean Development Bank Headquarters (Bridgetown, Barbados).

Patrick Stanigar won a commission from Jamaica House to develop the McIntyre Lands Housing Development in Kingston, the project that birthed Design Collaborative, together with partners Evan Williams, Stephen Mendes and David Twiss. Design Collaborative received the 1974 Governor General’s Award for the McIntyre Lands Housing Development, The Silver Musgrave Medal of the Institute of Jamaica for contribution to Jamaican Architecture 1976, The Centenary Medal of the Institute of Jamaica for contribution to Jamaican Architecture 1978, and Governor General’s Award for the Cultural Training Center 1979 (Edna Manley School of the Visual and Performing Arts). Design Collaborative expanded to open offices in Trinidad and Barbados.

Patrick worked with the Ministry of Education (1977-78) and the Urban Development Corporation (UDC), Jamaica (1980-85). He practiced alongside David Gregory Jones, a former partner of Shankland Cox who carried out the study of low cost housing in Jamaica 1971- the redevelopment of a squatter area of Trench Town. At the UDC, Patrick developed many basic, primary and secondary schools as well as town plans for communities islandwide. The utilitarian and infrastructural demands of these programs however fueled an innate veracity for the idiosyncrasies of the arts and crafts which were realized in the Jamaica Conference Centre (Kingston, Jamaica); and the Jamaican

Pavilion at Tsukuba Expo ‘85 (Tsukuba, Japan).

In 1983, architect Patrick Stanigar was granted the rank of Officer of the Order of Distinction of Jamaica (O.D). He would return to the UDC, Jamaica in 2008 as Consultant and Chief Architect (2010- 2012).

He loved Jamaica, his home, the island of his birth and childhood. He cared for the land, her People, the unique culture and the city of Kingston. This is evident in numerous projects of social and professional advocacy. Of significance is The Gold Coast Initiative, a catalyst for the Regeneration of Southside and Tel Aviv, Kingston (2007), which sought, in his words, to “accept the social value of these communities as affordable housing and help the residents to build on the equity and realize the potential of land and buildings which is currently lying fallow”. (Project Proposal - unpublished P.A.O.S, January 2007).

Patrick described his practice as a condition of its community: a small community yields diversity of skill, in varying building types, one that precludes specialization. His singular practice was honed as a member of his community. In 1992, he revitalized a derelict building in Southside and moved his architecture practice to Water Lane. He also revitalized Breezy Castle Park (1993); public space for the communities of Central Kingston. He became an authority on precast concrete construction systems. He designed the West Indies Home Contractors (WIHCON) Space System and implemented multiple schools for the WIHCON Space-System- North Western Jamaica Schools Project. The system evolved through other building types for commercial, office, residential, institutional, planning and urban design purposes, for example The University of the West Indies-Rex Nettleford Halls of Residence (Mona, Jamaica) and The Greater Portmore Development (St. Catherine, Jamaica). The Mechala Building on Harbour Street, counterpoints the system building projects and details his sensibility for the organic towards naturalism as did several residential projects notably Invercauld Cottage (St. Andrew, Jamaica).

His community service was wide reaching. He served on the Board of Directors of Metropolitan Parks & Markets (1986-1990); as a Member of the Interim Board of the Kingston City Center Improvement Company (2003-2006), Member of the Board of the Caymanas Development Company (2008), Chairman of the Board of Trustees of the Jamaica National Heritage Trust (2008-2024), Member of The Council of The Institute of Jamaica (2008-2024), Member of the Board of the Jamaica Railroad Corporation and Chairman of National Museum Jamaica (2017- 2024). Patrick revealed the voice of contemporary Jamaican, writing on Kingston’s future, Our Ghetto and Us , Vulgarity (Our Way), Visions for Livable Cities, Future Monuments in the Cities of the Past, Finding the Caribbean and Tribalism, Class, and Fear in Urban Structure which was a presentation

AAA 089/12
David Harrison, Nadine Issacs and Patrick Stanigar

Henderson,

Estate of P.A.O.S Structural Model, School of Art Desgin Collaborative Centro: J.S Tyndale- Biscoe Cultural Training Center, Design Collaborative June 1, 1976 Ref. H4794

to the 4th Congress of the Federation of Caribbean Associations of Architecture (FCAA) Cayenne, French Guyana in October of 2008. His engagement with the region and beyond was equally diverse and generous in its girth. He juried various architecture Competition and Biennial panels across the Caribbean in Cuba, Dominican Republic, Guyana, Guadeloupe, Puerto Rico and was an honorary member of the Trinidad and Tobago Institute of Architects (1998).

The Educator, Patrick Stanigar was appointed the Dean of the Caribbean School of Architecture (CSA) at the College of Art Science and Technology (CAST). His Deanship overlapped with CAST becoming The University of Technology, Jamaica. During his tenure (1992-1998) Dean Stanigar was instrumental in the convening of a joint Master of Architecture urban study workshop on rebuilding communities in Kingston with the Southside community, educators and students of architecture of CSA, Massachusetts Institute of Technology (US) and Oxford School of Architecture (UK). CSA also hosted a workshop with directors of other Architecture Schools including Florida (USA), Cuba, Curacao, Dominican Republic, Guyana and Puerto Rico to discuss linkages and opportunities for the sharing of student work, research in a publication of the Caribbean, speaking as one. With support from the Caribbean Community, later Caribbean Forum, CSA became included in the European Union (EU) Lome 4, Caribbean University Level Programme. Dean Stanigar was a key negotiator in securing the EU grant for the upgrading of existing facilities and the new School of Architecture Building, (1860 sq.m/ 20,000 sq.ft.) which was inaugurated in 2001. The grant also funded the publication of two monographs, Naval Hospitals of Port Royal Jamaica and The Old Iron Bridge , Spanish Town Jamaica. In 2010, the Caribbean School of Architecture, University of Technology, Jamaica awarded architect Stanigar with a Citation for Contribution to Architectural Education. Stanigar continued to be an active educator visiting regularly as critique juror and lectured in the graduate Design Studio, investigating his idea of a Kingston Malecon for Paliasdoes and the city waterfront. He took students on walking tours of Kingston and visits to Heritage sites across the Island. In recent years, Patrick avidly supported the Kingston Creative non-profit arts organization with public walking tours of the city’s history and architecture.

Patrick Stanigar practiced ideological and social craftsmanship. His ideology is a practical wisdom built on making and creating things, so as to understand and reveal the nature of materials and materiality, how structures exude beauty, through works of architecture; the art that seeks value within the complexity of the human condition.

He built his house, a geodesic domed structure in Red Hills, St. Andrew, Jamaica. The Phoenix - Reconstructed in 2002. A garden with cherished flora, unique botanical species and an ornamental fish farm he designed and built. Easy going and generous, he invited members of the architecture and wider community to get togethers at The

Design Collaborative, Courtesy of Betsy Williams

Below: Estate of P.A.O.S Cultural Training Centre, Design Collaborative, School of Art Drawing.

Phoenix and continued to work from the home office on projects. He is the architect on record for Chinese design / build, Western Children Adolescence Hospital, currently under construction (Montego Bay, Jamaica) adjacent to the Cornwall Regional Hospital (1972-The Architects Collaborative).

He had three children, Marissa, Matthew and Benjamin and is survived by his sons, Matthew R.O. Stanigar and Benjamin F. Stanigar and grandchildren; Ethan M.O. Stanigar and Elise N. Stanigar, Pilar T.O. Page, Giovanni D.C Levy, Noah T. Stanigar and Jahslyn M. Stanigar.

1 http://www.paostanigar.com/

2 Axis, Journal of the Caribbean School of Architecture, “History of the Caribbean School of Architecture”, David Harrison, Ed. J T Lawton (Kingston, UTech. CSA 2006-7).

L-R, Baviassat, Knight, Patterson, R-L Goodman, Byno, McIntyre, Punch, Smith, Hare, Stanigar circa 1994
AAA 089/14 Publication 8510 Jamaica Conference Centre Patrick Stanigar
TSUKUBA Expo 1986 Abajo: WIHCON Schools Western Children Adolescence Hospital. Photo by P.A.O.S Patrick’s paradise with nature - May 22, 2023. Photo by Emile Romney
AAA 089/16

Anarquitectura

Arkham Projects / Oliva Carolina

Andrés Aybar

Colectivo de Diseño

Eugenia de los Santos

DEB Consulting / Catherine Jessurum

Grupoarquitectura / Daniel Alvarez

Interiores Residenciales 2024

Residencia MC

Casa Mulix, Mérida

Torre Uno, Santo Domingo

Apartamento Privado, Las Terrenas

Villa Callao, Casa de Campo

Casa Celia, Barranquilla Apto SM

Casa Escondida, Ciudad de México

Casa Pirul, Ciudad de México Departamento AD

Intside

Jimena Londoño

María del Mar Moré

Moré Interiores

Amanda Musa

Gutierrez Rodio

Anny Torres Nin / Torres Nin Arquitectura

Varval Home

Piso 23, Regatta Altos del Parque, Santo Domingo

Apartamento Vasco-González, Bogotá

Residencia Privada, Santo Domingo

Punta Sur 14, Santo Domingo

Punta Sur 15, Santo Domingo

Caribata, Santo Domingo

Torre Es 201, Santo Domingo

Torre Uno 10, Santo Domingo

Los Flamboyanes, La Estancia, La Romana

Las Colinas Townhouse

Residencia Privada - VM, Santo Domingo

02

Residencia MC

087/18 © Ivana Rodríguez Duluc
Anarquitectura

Anarquitectura

El proyecto consiste en la modificación exhaustiva de una estructura existente mediante la implementación de un programa de áreas para albergar espacios sociales más grandes, una oficina privada y una habitación adicional. La casa original data de la década de 1970 y requirió intervenciones importantes en estructuras metálicas. Uno de los objetivos principales de la propuesta fue abrir la distribución segmentada de la planta para crear áreas sociales continuas que integren el exterior con el interior. Se enfatizaron ejes visuales que enmarcan las vistas hacia afuera, donde la propuesta paisajística permea cada rincón.

El revestimiento exterior es principalmente piedra coralina local, mármol travertino y paneles compuestos de madera que transmiten calidez y un carácter caribeño a las contrastantes líneas geométricas y puras de la fachada. Esto garantiza durabilidad y bajos costos de mantenimiento. Los interiores están caracterizados por una materialidad reducida y basada principalmente en colores neutros y madera de nogal.

El pasillo de entrada es resguardado por ventanas pivotantes de madera en el lado izquierdo, dejando entrar el jardín de la marquesina, y en el lado opuesto tenemos la oficina privada que puede ser abierta para integrar luz natural y ventilación por medio de un panel movible escondido detrás del librero. Un piso de roble blanco marca el lobby donde convergen la entrada, las escaleras y el salón social. Este espacio está visualmente conectado con la cocina mediante un desayunador abierto que amplía la sensación de amplitud del espacio. La sala, el comedor y la cocina gozan de grandes aperturas hacia el patio de la piscina. El baño exterior es descubierto a través de un camino de coralina rodeado de una exuberante vegetación tropical.

AAA 089/20
Residencia MC
Planta arquitectónica 1er nivel Planta arquitectónica 2do nivel
oeste
sur
Elevación este Elevación
Elevación
© Ivana Rodríguez Duluc © Ivana Rodríguez Duluc
AAA 089/22
© Ivana Rodríguez Duluc © Ivana Rodríguez Duluc © Ivana Rodríguez Duluc © Ivana Rodríguez Duluc
AAA 089/24
© Ivana Rodríguez Duluc © Ivana Rodríguez Duluc

Proyecto:

Residencia MC

Interiorismo: P109 Interiores

Paisajismo: Massiel Mejía

Equipo:

Ronny Núñez

Félix Adames

Julie Peña

Paulina Galdo

Johnny Rodríguez

Angeli Matos

© Ivana Rodríguez Duluc © Ivana Rodríguez Duluc

Casa Mulix, Mérida

Arkham Projects / Oliva Carolina

086/26
© Manolo Solis

Casa Mulix, Mérida

Casa Mulix es un oasis de tranquilidad y armonía en la naturaleza, un lugar en el que la conexión con el entorno natural es palpable en cada rincón. Te envuelve en una sensación de bienestar y plenitud que perdura mucho más allá de tu visita.

Es un proyecto impactante desde el primer momento, que invita a descubrir sus secretos a medida que lo vas descubriendo. Lo primero que llama la atención es el gran volumen que domina la fachada que parece flotar sobre el primer nivel y que tiene oportunidad de abrirse para disfrutar de las vistas o cerrarse para garantizar la privacidad. Durante el día, este volumen se convierte en un bloque sólido, mientras que por la noche, con la iluminación interior, se transforma en una gran lámpara.

Se buscó crear un espacio que se integre perfectamente con la naturaleza que lo rodea, sin perder su atmósfera acogedora y privada. Se ha priorizado maximizar las vistas hacia el exterior, permitiendo que la belleza del entorno sea parte integral de la experiencia. El diseño se basa en un patio lateral que forma una triple altura y conecta visualmente los tres niveles de la casa.

Para acceder a la casa, una gran escalinata te recibe y te acompaña mientras disfrutas de la vegetación circundante. Al llegar, encuentras un pequeño zaguán exterior que distribuye el espacio hacia las áreas sociales o, lateralmente, hacia la terraza exterior. A continuación, se encuentra el área social, donde se ubican la sala, el comedor y la cocina (que se puede unificar o dividir). Al momento de abrir todo el espacio, se establece una conexión directa con la naturaleza de ambos lados del terreno, permitiendo una ventilación y una gran visual ideal para el espacio. En los laterales oriente-poniente, se generan marcos que abrazan el paisaje verde, siendo la del poniente más cerrada para protegernos del sol.

La casa ha sido diseñada para aprovechar al máximo la luz solar, y la intensidad con la que nos abrimos al exterior o nos protegemos de los elementos varía según la orientación de la casa. En las fachadas norte y sur, utilizamos pequeños volados para protegernos de los elementos y aprovechar al máximo la luz. En cambio, en las fachadas este y oeste, nos abrimos más al paisaje natural o lo cerramos para enmarcar la vista hacia el vecino. Por ejemplo, en la fachada este, nos cerramos más para enmarcar la vista hacia el colindante y disfrutar únicamente de la vegetación.

El protagonista del espacio es el gran patio que se encuentra en el centro de la casa y que es visible desde el subterráneo gracias a una triple altura que se extiende hacia el cielo. Muchos de los espacios de la casa tienen vistas hacia este patio, que le da un toque único y especial que permite el acceso tanto al interior como al exterior de la casa, de tal forma que al caminar afuera, estés atravesando un puente al aire libre. Por un lado, tendrás jardín y por el otro, un patio inglés que conecta visualmente con el subterráneo, siempre rodeado de un paisaje verde y del cielo.

encuentra en el lado oeste, cuenta con una tina conectada a una terraza para disfrutar de un baño al aire libre. Casa Mulix te brinda una experiencia única e incomparable gracias a su inigualable conexión con el entorno, donde cada rincón ha sido diseñado con esmero para maximizar las vistas hacia el exterior y hacer que la belleza del paisaje sea una parte esencial de la experiencia. Es una casa donde la arquitectura y la naturaleza se funden en perfecto equilibrio, creando un ambiente de ensueño que te invita a vivir una experiencia única e inolvidable en completa armonía con lo natural. Diagrama

En la planta alta, nuestra idea principal era crear un espacio desde el que se pudiera acceder a las habitaciones de los hijos con vistas hacia la calle y una celosía de madera que se abre y cierra automáticamente para garantizar la privacidad. Si se desea acceder a la habitación principal, hay que dar la vuelta y pasar por el área social. Del lado derecho, hay una doble altura hacia abajo que conecta con el subterráneo, creando una sensación de amplitud enorme en el espacio. Al llegar a la habitación principal, lo primero que te recibe es un gran ventanal que se funde con toda la vegetación del norte de la casa. El baño principal, que se Planta baja

AAA 089/28
/ Oliva Carolina
Arkham Projects
Planta alta
Subterraneo
© Manolo Solis
089/30
©
©
Manolo Solis Manolo Solis © Manolo Solis © Manolo Solis
AAA 089/32
© Manolo Solis © Manolo Solis

Proyecto:

Casa Mulix

Ubicación:

Mérida, Yucatán

Inicio / Terminación:

Nov 2019 / nov 2023

Superficie construida:

793.94 m2

Despacho:

Arkham Projects

Arquitectos a cargo:

Benjamín Peniche Calafell

Jorge Duarte Torre

Construcción:

Concretum Constructora

© Manolo Solis © Manolo Solis

Torre Uno, Santo Domingo

Andrés Aybar 088/34
Ricardo
©
Piantini

Torre Uno, Santo Domingo

Andrés Aybar

Este proyecto se localiza en un desarrollo habitacional de alta gama en el Polígono Central de la ciudad de Santo Domingo. El requerimiento era proveer una propuesta de interiorismo a ser implementada en un apartamento de unos 540 metros cuadrados de superficie. Nuestros clientes, con los que tenemos una relación de varios años y con otros proyectos realizados, necesitaban el diseño integral de su espacio. Se trata de una familia joven con dos niños, característica que determinó que el apartamento de cuatro habitaciones se resolviera en un dormitorio principal, dos secundarios (uno para cada niño) y una cuarta habitación se destinó a un estudio/cine para acoger la pasión de los clientes por las artes cinematográficas.

Durante todo el proceso creativo trabajamos de la mano con nuestros clientes en una colaboración enriquecedora a partir del cual dimos respuesta a sus necesidades y sus gustos.

Para este trabajo aprovechamos que la organización general de los espacios es muy fluida y se trata de ambientes que se comunican de manera muy libre, armoniosa y con buenas vistas al exterior. La fluidez de los espacios marcó una pauta que potenciamos y mantuvimos utilizando sliding doors y pocket doors .

El recorrido inicia en el recibidor o foyer donde llegan los ascensores, verdadero espacio de transición donde creamos una envolvente de madera oscura que, a manera de blackout , prepara para la luminosidad de la sala.

Comedor, sala y estudio se relacionan en un continuum de armonía orgánica acentuada por la calidad de a la luz natural que incide en los espacios a partir de un adecuado manejo de los huecos por los diseñadores del proyecto, una cualidad interesante de la que sacamos ventaja en este encargo profesional. Un cambio de piso del mármol Crema Marfil a madera en el master bedroom y el estudio les confiere a ambos ambientes una cualidad íntima y acogedora.

Todo el mobiliario es custom made y planteó un reto para la logística pues se trató de suplidores en diferentes lugares del mundo que respondieron a nuestros diseños y a tiempo. Los muebles proceden de países como Italia, Portugal, República Checa e Inglaterra entre otros. La mesa del comedor, por ejemplo, es portuguesa, con un diseño realizado en nuestra oficina y ejecutado a la perfección.

En lo que a la estética se refiere nos acogimos a nuestra filosofía de crear espacios de condición atemporal cuya frescura y sensación de novedad permanezca en el tiempo. Evitamos las composiciones muy cargadas y utilizamos una paleta de colores neutros. Los acentos de color en los ambientes se logran a través de las obras de arte que los complementan. Los espacios que resultan son abiertos a compartir con familia y amigos; eso añade valor, algo que siempre buscamos para nuestros clientes.

El uso de una paleta neutral hace que cada elemento tenga un papel activo; nada está en un lugar sin razón aparente. Las obras de arte añaden el elemento de impacto y las plantas –nos apasiona el verde- agregan una cualidad vital que los convierte en espacios trascendentes. En el caso de las piezas artísticas implicó que nuestro cliente participara de manera activa y descubriera una nueva pasión de coleccionista de arte. Obras de Gerard Ellis, Cruz Azaceta y García Cordero proporcionan interesantes acentos focales a los espacios.

Los apanelados son fabricados por nosotros; utilizamos láminas de madera para crear los recubrimientos de las paredes. Las láminas, de colores claros, alternan con molduras en blanco que crean un efecto de armónica cercanía cromática.

En el caso de las áreas sociales los espacios se enmarcan con alfombras que los complementan

Las luminarias están seleccionadas de manera certera para proveer iluminación dedicada a cada espacio.

En base a una relación de estrecha cooperación con los clientes, hemos logrado un diseño atemporal que perdurará por años en el ámbito de sus vidas, lo harán suyo y crecerán en él. Así lo esperamos, para eso trabajamos.

Planta arquitectónica

AAA 089/36
© Ricardo Piantini © Ricardo Piantini
© Ricardo Piantini 088/38
089/40 © Ricardo Piantini

Proyecto:

Torre Uno

Localidad:

Santo Domingo, RD

Diseño de Interiores:

El Estudio Proyectos

Diseñador de Interiores:

Andrés Aybar

© Ricardo Piantini © Ricardo Piantini

Papaya 101, Las Terrenas

088/42
Colectivo de Diseño
© Alejandro Álvarez

Papaya 101, Las Terrenas

Colectivo de Diseño

Papaya 101 es un refrescante proyecto vacacional ubicado en Terrenas. El mismo fue inspirado en las texturas y elementos costeños que caracterizan esta zona como se pueden apreciar en el uso de revestimientos y los materiales que componen el mobiliario.

El recibidor nos da la bienvenida al apartamento con unas losetas de cerámica en forma hexagonal como revestimiento de la pared de fondo; un espejo ovalado junto con elementos decorativos complementa este espacio. Integramos una división tipo pandereta con un patrón de líneas para brindar mayor privacidad al espacio contiguo de sala / comedor.

Tan pronto pasamos este pequeño recibidor nos adentramos al gran salón de áreas comunes, el corazón del apartamento, donde se comunican el comedor de madera con 8 sillas en fibra y madera, una credenza sobre la que destaca un elemento decorativo de gran tamaño compuesto por dos piezas curvas de madera, en el lateral una vitrina para almacenar vajilla y cristalería que también sirve como apoyo. En el techo colocamos un juego de luminarias colgantes tejidas en fibra blanca y natural. La cocina se abre justo al frente de este espacio con un gran desayunador que integra un espacio de trabajo y se aprovecha para colocar cómodas banquetas al mismo.

Pasamos a la sala, con una combinación de 2 sofás triples tapizados, dos butacas de líneas ligeras que combinan madera y tapizados, una banqueta y una combinación de mesas de centro y laterales en diferentes materiales como madera y piedras completan los elementos de la sala.

La pared de fondo de todo este espacio fue revestida con unos tablones de madera con un acabado wash blanco que aporta gran textura a todo el salón principal. En los techos acentuamos con unas vigas de madera que delimitan los espacios para que, a pesar de mantener todo integrado. las vigas destaquen visualmente los límites de la sala y del comedor. El mueble de la televisión, se convierte en una unidad funcional para almacenaje en la parte central y unas tramerías abiertas con elementos decorativos. El balcón, con una refrescante vista de la costa, lo aprovechamos para ubicar un espacio de estar con un sofá en L y mesa de centro además de un comedor de exterior.

En las habitaciones jugamos con revestimientos en la pared de fondo para destacar la pared de la cama y jugamos con luminarias colgantes y sobre mesa de noche para aportar calidez con otro escenario de luz. Las texturas y colores bien neutrales con acentos de diferentes tonos de azules.

AAA 089/44
Planta arquitectónica © Alejandro Álvarez © Alejandro Álvarez
AAA 089/46
© Alejandro Álvarez © Alejandro Álvarez

Proyecto:

Papaya 101

Localización:

Las Terrenas, Samaná, RD

Año inicio / término obra:

2023

Área total de construcción:

200 m2

Diseño interior / decoración: Colectivo de Diseño Contín García

Diseño iluminación:

Colectivo de Diseño Contín García

Supervisión:

Colectivo de Diseño Contín García

Luminarias y abanicos:

Etsy, Lu & Bo, Mundo Led, Fandepot, Inovacentro

Ebanistería:

Tony Colón

Revestimientos:

Rocabert

Mobiliario:

Ilumel, Lu&Bo, Mezzatti, Casa 101

Cortinas y telas:

Eudi Morel, Telares

Decorativos:

Ilumel, Wayfair, Batavia, Almacenes Unidos, Casa Cuesta

© Alejandro Álvarez © Alejandro Álvarez

Villa Callao, Casa de Campo

088/48 © Harold Lambertus
Eugenia de los Santos © Harold Lambertus © Alejandro Á lvarez © Alejandro Álvarez

Villa Callao, Casa de Campo

Eugenia de los Santos

El proyecto de remodelación de esta residencia, ubicada en Casa de Campo, fue un reto debido a las limitaciones para modificar la fachada. Esta condición implicó toda la magia debía suceder dentro de la casa, en una locación donde usualmente predomina el uso de la madera y piedra en su estado natural. Para esta familia en particular, el concepto fue totalmente personalizado a sus preferencias ya que querían experimentar espacios distintos a los que habitan en la ciudad y en su lugar de trabajo. El concepto central e inspiración para la remodelación de la villa se basó en el juego y dramatismo de la iluminación natural fusionada con los paisajes propios del jardín, sobre un lienzo blanco donde destacan colores y elementos vibrantes que añaden dinamismo a la calidad espacial.

La iluminación se convierte en un elemento escenográfico crucial en el diseño maximizando la entrada de luz natural en todas las áreas de la casa a través de grandes ventanales y tragaluces estratégicamente ubicados. Se utilizaron cortinas ligeras y translúcidas para suavizar la luz natural durante el día, brindando una atmósfera suave y acogedora.

La relación con la naturaleza se maximiza a través de jardines interiores y exteriores. La ampliación de los ventanales y el uso de puertas corredizas en todas las áreas permiten la conexión visual y física con el entorno verde, entre las áreas sociales y el pasillo central de la residencia, creando un efecto de continuidad entre el interior y el exterior, favoreciendo el flujo de aire y maximizando la ventilación natural.

La puerta principal es el elemento protagónico que inicia la conversación con la residencia, marca las pautas del diseño mediante la paleta de color, las formas geométricas y su dinamismo. Complementada por las piezas de arte que fueron comisionadas específicamente para componer el espectáculo visual de colores y formas que hilan el eje central de la casa.

Se incorporaron elementos de la cultura europea reinventados para reflejar las personalidades y experiencias de vida de los propietarios, se ubicaron estratégicamente piezas de diseño y objetos recolectados por ellos en sus viajes, para convertirlas en puntos focales de interés y conversación. Los propietarios son amantes de las ideas y el conocimiento, se destacan por su intelectualidad y valoran el descanso, los espacios únicos, atemporales y con carácter que sean un fiel reflejo de su manera de ser.

AAA 089/50
Planta arquitectónica © Harold Lambertus © Alejandro Álvarez © Alejandro Álvarez
AAA 089/52
© Alejandro Álvarez © Harold Lambertus © Harold Lambertus © Harold Lambertus © Harold Lambertus © Harold Lambertus © Harold Lambertus

Proyecto: Villa Callao

Localización: Las Cañas II 36, Casa de Campo. La Romana, República Dominicana.

Propietario:

Miguel Valerio y Yipsy Roa.

Año inicio / término obra: Diciembre 2019 / Noviembre 2021

Área del solar / lote: 3,900 M2

M2 de proyecto: 1,593 M2

Tipo de intervención: Remodelación

Diseño arquitectónico:

Arq. Eugenia de los Santos.

Empresa: Studio E – Arquitectura Interiores

Colaboradores: Dis. Suzette García

Diseño estructural:

Ing. Wilbert Estévez

Diseño interior / decoración: Arq. Eugenia de los Santos

Diseño iluminación:

Arq. Eugenia de los Santos

Supervisión:

Arq. Eugenia de los Santos

Luminarias:

Lux Gallery, Luminatti, Ilumel

Fabricación de paneles con fibra óptica para sala de cine: Arq. Eugenia de los Santos y Dis. Suzette García

Cerramiento vidrio: Cristaluz

Ebanistería: Nelson Mojica, Maderato, Natureza.

Fabricación cocina: Maderato.

Fabricación puerta principal: Like Corp.

Herrajes:

Ottiti, Pullcast, AL componentes

Revestimientos / pisos: Marmotech, Carabela.

Accesorios de baños y cocina: Carabela, Kraus USA, Badeco, Vigo Industries.

Terminaciones / pintura:

Acabados y Pinturas.

Impermeabilización: Capelcon.

Mobiliario: West Elm, Anthropologie, Natureza, Ilumel, Natuzzi, Horchow, Burke décor.

Alfombras: Ilumel, Anthropologie

Cortinas y telas: Fabrik, Cortinaje, Tessuti hogar, Aurora.

Papel tapiz: Tissage, Aurora, Tapize, BN Walls, KEK Amsterdam.

Arte: Mesa Fine Art, Caralarga, Poteleche

Closets: Nelson Mojica

Diseño gráfico: Like Corp

Sistemas acústicos: Robert Paulino

Piscinas:

Insercom – piscinas y jacuzzis

© Harold Lambertus © Harold Lambertus

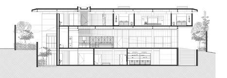
Casa Celia, Barranquilla

088/56 © Mónica Barreneche
DEB Consulting / Catherine Jessurum © Mónica Barreneche

Casa Celia, Barranquilla

Lograr que un apartamento nuevo conserve la esencia de sus propietarios y exprese su personalidad en cada espacio, como si siempre hubieran habitado en él, es lo que logró el interiorismo de la firma colombiana DEB Consulting para una pareja apasionada por los libros y el arte.

Esta historia tiene tres protagonistas. Una pareja unida por años de matrimonio y de gustos compartidos, el amor por la palabra escrita y la cultura expresada en la presencia de miles de libros, sumado a una profunda pasión por el arte.

Esta pareja tiene una forma muy propia de ser, estar y disfrutar de su cotidianidad. Por eso, cuando decidieron mudarse a un nuevo apartamento en su natal Barranquilla (Colombia), acudieron a la arquitecta Catherine Jessurum para crear su nuevo escenario de vida. Junto con el arquitecto Francisco Ricardo, Cathy conforma la firma barranquillera de arquitectura, urbanismo e interiorismo DEB Consulting.

Como cabeza del departamento de diseño interior de DEB, Jessurum partió del conocimiento de sus clientes. Fueron muchas las conversaciones, la observación de su estilo de vida y las visitas a su antiguo apartamento. La pareja “no quería comprar todo nuevo, quería conservar muchos de sus muebles y objetos queridos e incorporar su enorme biblioteca y colección de arte en su vida cotidiana” expresa.

Así, el trabajo se concentró en el interiorismo, la puesta en escena de ese nuevo espacio: un apartamento dúplex, además de construir un estudio en el primer piso y replantear totalmente los baños: el social y el de la habitación principal.

Cuando se enfrentó a la extraordinaria colección de libros de la pareja y al gran espacio que ofrecía el nuevo inmueble, Jessurum supo que este proyecto le permitiría realizar uno de sus sueños: construir una gran biblioteca. “Me fascinan las bibliotecas. Ellos resultaron los clientes perfectos para poder ejecutar esa idea que tanto me encantaba: una biblioteca protagónica, larga y que abarcara dos pisos”.

La enorme biblioteca es la protagonista de la zona social. La extensión y la doble altura de la pared determinaron su tamaño, que se prolongó al segundo piso mediante la creación de un puente perpendicular a la placa que genera un paso a la mitad de la biblioteca. Para disimularlo, la estructura metálica y el amarre del puente al muro se forraron en la misma madera de flormorado utilizada en el resto de la carpintería y se instaló una baranda sin perfiles para que fuera lo más transparente posible. “Las estanterías son amplias y alargadas, no queríamos divisiones pequeñas y tomamos en cuenta las piezas de arte y objetos que convivirían con los libros para poder generar un estilismo ordenado y agradable a la vista. Incorporamos también iluminación LED escondida para que bañara de luz las estanterías y acentuara su importancia” –dice la arquitecta.

El mobiliario de la sala, de líneas limpias y acogedoras, utiliza una paleta de neutros cálidos: el gris y el color natural del cuero dialogan perfectamente con el tono de la madera. Debajo de la placa junto a la biblioteca se creó un espacio con plantas, precolombinos y obras de arte colombiano, mientras que, al frente de la sala se encuentra el comedor. La altura de más de cinco metros fue determinante para la elección de las enormes lámparas Formakami JH5 de Jaime Hayón que, hechas en papel de arroz, resultan perfectas por su ligereza y acompañan el arte de gran formato en la pared. El comedor, de la firma brasileña Saccaro,

convive con una consola antigua de madera oscura que aporta un interesante contraste entre lo contemporáneo y la memoria.

Para exhibir la colección de arte de forma orgánica y limpia, Jessurum proyectó un “lienzo” utilizando listones de madera blancos en las paredes de la zona social “que brindan una textura interesante, disimula las puertas a otros espacios y no compite con las obras de arte. Pensando en ellas, decidimos poner spots que no las iluminan específicamente, sino que bañan de luz este gran canvas”.

Este recurso esconde la puerta del baño social y del estudio, un espacio privado de interiorismo ecléctico: la silla Womb Relax roja de Eero Saarinen para Knoll, la lámpara Tolomeo de Artemide, un escritorio mid century, más libros en la biblioteca blanca y un mueble flotado que retoma el recurso de los listones en madera, completan este espacio presidido por una obra de Mario Vélez.

Al abrir una de las puertas ocultas de la pared alistonada, uno se encuentra de frente con las escaleras transformadas por DEB Consulting en una pieza escultórica en flormorado tintillado, ésta sube de forma pendiente contra los ventanales. En el segundo piso, una puerta reticulada crea un foyer que da la bienvenida a un family room informal y relajado adyacente a la biblioteca, con sofás de Belgravia Luxury Home, una cuja a cama campesina en cuero templado típica del departamento de Santander como mesa de centro y un tapete artesanal tejido en fique de Curití, proveen un espacio para la convivencia que se baña de luz desde la ventana de piso a techo de la terraza.

AAA 089/58
Planta arquitectónica 1er nivel Planta arquitectónica 2do nivel
© Mónica Barreneche © Mónica Barreneche
088/60 © Mónica Barreneche
© Mónica Barreneche © Mónica Barreneche
088/62 © Mónica Barreneche

Proyecto:

Casa Celia

Localización:

Barranquilla, Colombia

Equipo de Diseño:

DEB Consulting

Diseñador principal:

Catherine Jessurum

Apto SM, Santa Marta

DEB Consulting / Catherine Jessurum
Barreneche
© Mónica

Apto SM, Santa Marta

Un diseño sobrio y moderno para un apartamento en frente del mar.

El apto SM es un proyecto de remodelación y diseño interior para un apartamento de aproximadamente 350 m2 sobre la playa de la ciudad de Santa Marta. Es el hogar de una pareja que buscaba renovar su vivienda para ajustarla a sus modos de vida y estilo personal. El trabajo consistió en reemplazar por completo los acabados del apartamento original manteniendo la distribución espacial, con el fin de generar un espacio agradable que reflejara la personalidad de sus dueños.

El apartamento tiene una vista frontal al paisaje costero de Santa Marta, esto fue un elemento protagónico en el diseño del espacio. Se buscó crear una atmósfera sobria que permitiera resaltar las visuales del entorno. Los acabados naturales seleccionados, como la madera, el mármol y el microcemento, le dan al apartamento un tono clásico que responde al estilo propio de los usuarios. Se utilizó madera en paneles para recubrir puertas y muros y se ubicaron papeles de colgadura en la habitación principal y el baño social, dándole un toque cálido al hogar que resalta con los tonos fríos de la piedra. El microcemento está presente en muchas de las paredes de la zona social puesto que con su apariencia opaca genera un gran contraste con las obras de arte que se exponen en el espacio.

Algunas de las obras contemporáneas que resaltan sobre el espacio fueron escogidas por el equipo de arquitectos de manera que complementaran el diseño interior. El mobiliario utilizado fue importado de Europa, Estados Unidos y Brasil; se trata principalmente de piezas clásicas que generan cohesión entre sí a pesar de venir de diferentes fábricas. La selección de materiales, arte, iluminación y mobiliario fue pensada completamente en función de las intenciones de los clientes y responde de manera acogedora a la personalidad de sus habitantes.

AAA 089/66
© Mónica Barreneche
© Mónica Barreneche
AAA 089/68
© Mónica Barreneche © Mónica Barreneche

Proyecto: Apto SM

DEB Consulting / Catherine Jessurum

Año: 2020

Ubicación: Santa Marta, Colombia

Estado:

Construído

Tipo:

Residencial

Metraje: 350 m2

©
Mónica Barreneche © Mónica Barreneche

Casa Escondida, Ciudad de México

Grupoarquitectura

© Agustín Garza.

Casa Escondida, Ciudad de México

La Casa Escondida, esta insertada en un terreno de geometría curva en una de sus aristas al nivel del acceso, y en su topografía presenta un desnivel deprimido con varios metros debajo de la calle, razón por la cual los espacios sociales de la casa se encuentran bajo el nivel del jardín principal. El acceso es a un vestíbulo desde dónde se aprecia un espacio muy transparente por los pasillos de vidrio que viajan a lo largo de las estructuras metálicas que soportan la casa; una escalera amplia baja a las estancias y descubrimos un espacio principal que alberga la sala, comedor, bar, estar familiar, desayunador, terrazas, biblioteca, cocina y servicios varios.

El salón principal está contenido entre jardines, con gran altura y ventanales hacia los dos costados. La escalera baja sin estar sujeta a los muros como si flotara con sus peldaños de granito.

Las habitaciones se encuentran a nivel de la calle y todas con orientación sur a través de sus terrazas privadas. Cada una posee servicios de baño y vestidor integrados.

A nivel de sótano tenemos un garaje para 12 autos, cuartos de máquinas, cisternas, bodegas, un salón de juegos y un gimnasio con su vestidor y baño.

La casa se construye con una estructura metálica y muros de concreto, lo que nos permite librar grandes claros y grandes volados. En toda su volumetría la casa está forrada interior y exteriormente de piedra basáltica. En la fachada principal se aprecian unas vigas metálicas roladas con la curva de la calle, haciendo un volado que protege los volúmenes de tiras verticales de roble claro.

La gran cubierta que cubre toda la construcción está forrada por madera de roble que sale de los interiores al exterior hasta los bordes perimetrales de los techados.

La casa tiene una paleta de acabados de piedra muy monocromáticos donde predominan los tonos grises. Esto permitió tener un gran lienzo neutro para recibir el mobiliario en sus diferentes texturas, acabados y colores. La selección todos los muebles fue muy cuidadosa y parecería que el espacio fue diseñado para recibirlos ya que su escala y disposición se acoplan perfectamente con la arquitectura.

Toda la infraestructura de la casa es de última generación en cuanto al manejo del agua y de la energía eléctrica, los sistemas son inteligentes y permiten aprovechar al máximo estos recursos, contamos con paneles solares fotovoltaicos y de calentamiento de agua.

La iluminación es de muy bajo consumo y en todos sentidos contamos con sistemas eficientes. Las cancelerías y vidrios son totalmente aislantes y permiten la conservación de la temperatura interior.

AAA 089/72
Grupoarquitectura
Planta arquitectónica 1er nivel
Sección
Planta arquitectónica 2do nivel
© Agustín Garza.
AAA 089/74
© Agustín Garza. © Agustín Garza.
© Agustín Garza.
© Agustín Garza. © Agustín Garza.

Proyecto:

Casa Escondida

Ubicación:

Ciudad de México

Proyecto : Grupoarquitectura

Daniel Alvarez

Iluminación: Gtec iluminación

Enrique Sordo

Dinorah Sánchez

Automatización: Architectura Agis

Isaac Shturman

Mármol:

Francisco Puente

Stones Piedras Naturales

© Agustín Garza. © Agustín Garza. © Agustín Garza.

Grupoarquitectura

Casa Pirul, Ciudad de México
© Agustín Garza.

Casa Pirul, Ciudad de México

Grupoarquitectura

La propiedad original se construyó en 1944; cuando se adquiere en 2020 se decidió mantener un muro de ladrillo con sus chimeneas y una escalera circular de terrazzo, el resto de la casa prácticamente se demolió y se tuvo que reestructurar desde la cimentación.

La casa se construye en dos niveles sobre la parte mas alta del terreno con vista a una hermosa cañada; básicamente el programa es un área social muy abierta a una terraza con vista a la alberca y a los jardines con la biblioteca y los espacios de trabajo a doble altura; en el segundo nivel están las dos habitaciones y la zona de lavandería.

La construcción se hace básicamente con muros de concreto y estructura metálica para salvar los claros de 10 mtrs. y los volados que requieren los espacios. Forramos las torres de las chimeneas con una piedra de color rosado de formatos irregulares. La piedra de los pisos, terrazas y alberca es un granito de la India denominado Caledonia. Los baños, el bar y las mesas son de una piedra italiana que se llama Grigio Cárnico y tanto los muros como los pisos son de madera de roble canadiense.

La propiedad cuenta con un árbol de la especie Pirul de aproximadamente 95 años de una presencia muy importante y decidimos hacer una placita para poder sentarse debajo de tan formidable espécimen. Por ello el nombre de la casa.

Se cuenta con la mas avanzada tecnología en cuestión de uso de energías, aprovechamiento de agua, calentamiento por paneles solares y generación de energía por paneles solares, así como de un sistema de automatización general que controla todos los sistemas de la casa.

AAA 089/80
Planta arquitectónica 1er nivel Planta arquitectónica 2do nivel © Agustín Garza. © Agustín Garza.
AAA 089/82
© Agustín Garza. © Agustín Garza.
© Agustín Garza
© Agustín Garza © Agustín Garza

Proyecto:

Casa Pirul

Ubicación:

Ciudad de México

Superficie Construida:

920 m2

Programa:

Área abierta con estancia, comedor, bar, cocina, terraza con comedor y sala, baño para visitas y jardín

Dos habitaciones con vestidor y baño

Biblioteca, Taller de accesorios de moda, oficina

Alberca con vestidor y baño, cuarto de servicio

Garage, caseta de vigilancia, bodega y cuartos de máquinas

Proyecto:

Grupoarquitectura

Daniel Alvarez

Iluminación:

Gtec iluminación

Enrique Sordo

Dinorah Sánchez

Automatización:

Architectura Agis

Isaac Shturman

Carpintería:

Rubén Vega

Oscar Monsalvo

Mármol:

Paco Puente

Cocina y Vestidores:

Hajj design Less

Bulthaup

Rimadesio

Mobiliario:

Minotti, Baxter

Giorgetti

Cattelan Italia

Gandía Blasco

© Agustín Garza © Agustín Garza

Departamento AD

Grupoarquitectura

© Agustín Garza.

Departamento AD

El diseño de este departamento de 700 m 2 tuvo como principales directrices la sobriedad y elegancia. El programa requería considerar la integración de cada espacio por medio de una secuencia de recorridos que comienzan por el vestíbulo donde se es recibido por una pieza deconstructivista de mármol Emerald Green diseñada por nosotros.

La sala y el comedor, este último con capacidad para 18 personas, están integrados por medio de puertas corredizas Rimadesio al Cigar Bar , espacio diseñado para mantener reuniones informales de negocios con mesa redonda para cuatro personas, sillones de descanso, cava y pantalla de 65” integrados en un mueble de Henge acabado en bronce. El mueble-cigarrera está fabricado en madera de ébano y adecuado para mantener la humedad correcta para conservar los puros en perfecto estado.

Estos espacios se encuentran tejidos directamente a la terraza del departamento contenida por medio de un lambrín de mármol Portinari flotado en luz, jardineras con jazmines, romeros, hiedras y árboles de olivo y arrayán que por la noche se iluminan proyectando sus sombras a los muros y el plafón del lugar.

La cubierta y backsplash de la cocina están fabricadas en granito negro absoluto pulido y brillado, haciendo un juego de reflejos con el espejo bronce que acompaña toda la circulación de la isla dándole mayor amplitud e iluminación. Cuenta con dos alacenas y espacio de guardado para vajillas y manteles. El pantry funciona como transición entre cocina y sala-comedor.

El remate del corredor funciona como vestíbulo del área privada del departamento donde se encuentran la recámara principal, el family , la oficina y recámara secundaria.

La recámara principal está aislada del resto del departamento por medio de un pasillo interno con un mueble de guardado, el piso está terminado en duelas de roble de 45 cms de ancho por largos variados, la cabecera está respaldada en un muro ranurado de mármol Gris Rochelle. El baño principal tiene como acabado principal el mármol Carrara Gold que llena de luz el espacio en conjunto con los espejos y puertas de cristal del vestidor Rimadesio.

El family funciona como articulador de los áreas privadas, recámaras y oficina convergen en ese lugar.

La oficina se cierra por medio de puertas corredizas que hacen la función de celosía también.

Todo el mobiliario refleja el carácter elegante y sobrio del cliente por medio de marcas como Henge, Minotti y Poltrona Frau.

Los materiales pétreos elegidos fueron Taj Mahal para pisos y Gris Rochelle en muros buscando contratastar con la carpintería en ébano negro. La duela en las recámaras y oficina es un roble blanco de 45 cms de ancho y largos variables que le da un sentido acogedor a los espacios.

AAA 089/88
Grupoarquitectura
Sección
Planta arquitectónica
Sección
© Agustín Garza © Agustín Garza © Agustín Garza © Agustín Garza

Proyecto:

Departamento A D

Ubicación:

Cuajimalpa, Ciudad de México

Superficie Construida:

580 m2

Programa:

Recámara master con dos baños articulados por vestidor principal.

Recámara de visitas con vestidor y baño.

Family TV.

Oficina.

Sala, Comedor y Cigar Bar con terraza y asador.

Toilet.

Cocina con dos alacenas.

Cuarto de servicio con baño. Cuarto de lavado.

Cuarto de máquinas y Site.

Proyecto:

grupoarquitectura

Daniel Alvarez

Bernardo Klein

Iluminación:

LDT / Gtec

Enrique Sordo

Dinorah Sánchez

Automatización:

Architechtura AGIS.

Carpintería:

Sergio Valdés

Mármol:

Stones Piedras Naturales.

Francisco Puente.

Cocina y Vestidores:

Hajj Designless

Mobiliario:

Hajj Designless

© Agustín Garza ©
Agustín Garza

Piso 23, Regatta Altos del Parque Santo Domingo

Intside
Álvarez
Alejandro

Piso 23, Regatta Altos del Parque Santo Domingo

Este apartamento ubicado en la Av. Anacaona, Santo Domingo, pertenece a un matrimonio que buscaba crear un espacio totalmente acogedor, confortable, elegante y de buen gusto. Había detalles específicos como un outdoor kitchenette y la funcionalidad de la iluminación, que se trabajaron minuciosamente, pues los clientes tenían mucho deseo de que estas cosas funcionaran bien y se adaptaran a sus necesidades y gustos.

Se implementó el uso de la madera para adornar paredes y crear muebles espectaculares de proporciones grandes que fueran acordes a los espacios amplios. Dentro de este material optamos por mezcla de tonalidades: madera natural ligeramente oscurecida, tonalidades de blanco y acentos en colores tierra.

En la parte de empapelados utilizamos en paredes específicas recubrimientos interesantes y únicos como por ejemplo, murales. En otras paredes optamos por revestimientos simples, con textura, para que vistieran las paredes sin saturarlas.

Se obtuvo un resultado atemporal, limpio, lleno de detalles que en conjunto a los elementos diseñados y al mobiliario crearon una armonía perfecta para lograr una vivienda muy cálida y única.

AAA 089/94
Intside
Alejandro Álvarez Alejandro Álvarez
AAA 089/96
Alejandro Álvarez Alejandro Álvarez Alejandro Álvarez Alejandro Álvarez
AAA 089/98
Alejandro Álvarez Alejandro Álvarez

Proyecto:

Piso 23, Torre Regatta Altos del Parque

Localización:

Anacaona, Santo Domingo, RD

Año inicio / término obra:

2021-2022

M 2 de proyecto: 365 M2

Diseño arquitectónico:

Dis. Gabriela Stefan, Dis. Sarah Piantini y Aimée Arbaje

Empresa:

Intside Interior Design Studio

Colaboradores:

Dis. Nicole Féliz

Diseño interior / decoración:

Intside Interior Design Studio

Aimée Arbaje

Diseño iluminación:

Intside Interior Design Studio

Diseño paisajístico:

Intside Interior Design Studio y

Aimée Arbaje

Supervisión:

Intside Interior Design Studio

Instalaciones eléctricas:

Alberto Olivo

Estructuras de madera:

Wendy Dagher

La Madería

Puertas y ventanas:

Marmotech

Arboleda

Cerramiento vidrio:

Pedro S. Geraldo

Ebanistería:

Wendy Dagher

La Madería

Terminaciones / pintura:

Sherwin Williams

Mobiliario:

Oskal

Design Living

Arte San Ramón

Alfombras:

Oskal

Cortinas y telas:

Tissage

Closets:

California Closets

Alejandro Álvarez Alejandro Álvarez

Apartamento Vasco-González, Bogotá

© Mónica Barreneche
Jimena Londoño

Apartamento Vasco-González, Bogotá

Una sensación de aire y espacialidad impregnan este apartamento de tres plantas en Bogotá. 300 metros 2 sirvieron de incubadora de ideas para la arquitecta colombiana Jimena Londoño al momento de iniciar este encargo profesional. En este espacio de gran formato, un estilo urbano que reinterpreta la elegancia sencilla de la modernidad, se entrelaza con una herencia cultural de quienes lo habitan.

Al entrar, un gran ventanal que recorre de piso a techo la totalidad de la fachada, inunda de luz tres espacios compartidos que son vitales dentro de este hábitat: la cocina, el comedor y la sala. En ellos, materiales como el concreto a la vista, paredes enchapadas en flormorado macizo quemado y una mezcla de granitos fundidos in situ , componen una propuesta de diseño interior que rompe con la tradición uniforme del ladrillo terracota, las paredes blancas, los techos bajos y los espacios cerrados que caracterizan la tipología de vivienda urbana de esta ciudad.

Para Londoño, la estética moderna es un ejemplo a seguir. Traer de vuelta ese imaginario espacial a un estilo de vida latino, urbano y contemporáneo, le tomó a la arquitecta seis meses de diseño y tres meses para su ejecución. Sin embargo, nada de esto hubiera sido posible sin contar con clientes dispuestos a romper el molde. Para lograr un diseño diferencial a las ofertas actuales de vivienda establecidas por las constructoras en Bogotá, el empresario Andrés Vasco y su pareja, la actriz Manuela González, tuvieron que reinventarse los 300 metros 2 que habían adquirido. Para esto le encargaron el diseño arquitectónico a Liliana Rubio. Una vez finalizada esta primera etapa, Jimena Londoño se encargó de pensar un espacio que sería el resguardo de dos padres, tres hijos, un gato, invitados permanentes y una gran herencia de libros y obras de arte colombiano.

Vasco y González han convertido este espacio en un proyecto de vida. Estuvieron involucrados en cada momento de su creación y, según la arquitecta, este interés fue una herramienta clave para el resultado final del proyecto el cual considera que, hasta ahora, ha sido su trabajo más completo. El proyecto ostenta una complejidad que fue la consecuencia de la cantidad de detalles o “filigrana”, como le gusta referirse a Londoño al trabajo artesanal que caracteriza este espacio. Uno de los mejores ejemplos de estas “filigranas” está en la escalera. Su construcción minuciosa en una estructura metálica es escondida por la madera de roble danés que la recubre, por las barandas en vidrio y los pasamanos en bronce. Todo ello, con uniones invisibles al ojo que la observa. Por otro lado, la inclusión de una pared en ladrillo que recubre la sala –este material es un recuerdo importante de la infancia de González–, que la misma arquitecta recubrió a mano con cal para darle un acabado industrial que fuera más acorde con la totalidad del espacio. Por último, un mueble de tres metros de largo que recorre el piso hasta el techo y divide el ambiente compartido entre el comedor y la sala sin interrumpir con la funcionalidad de un espacio abierto. Sin embargo, el elemento artesanal que más resalta y que recorre los dos pisos del apartamento es el uso del granito fundido a cargo de Oscar Páez. Al preguntarle a Londoño sobre su mayor logro y aprendizaje de este proyecto, la arquitecta resalta la capacidad de pensar cada espacio desde lo macro a lo micro. Desde la entrada por el segundo nivel, pasando por las habitaciones secundarias ubicadas en el primer piso, hasta llegar a la terraza abierta en el tercero, en esta vivienda nada sobra, todo se conecta y tiene una razón de ser. El resultado final es una especie de townhouse deconstruido, ideal para una familia activa que valora la intimidad dentro de una vida en comunidad.

Planta arquitectónica 7mo nivel

Planta arquitectónica 8vo nivel

Planta arquitectónica 9no nivel

AAA 089/102
© Mónica Barreneche
© Mónica Barreneche
AAA 089/106
© Mónica Barreneche © Mónica Barreneche

Proyecto:

Apartamento Vasco-González

Localidad:

Bogotá, Colombia

Diseño interior:

Jimena Londoño

Diseño de iluminación:

Natalia Londoño

© Mónica Barreneche
©
Mónica Barreneche

Residencia Privada, Santo Domingo

/ María del Mar Moré
Moré Interiores
© Alejandro Álvarez

Residencia

La reforma de una vivienda conlleva un fascinante y exhaustivo trabajo de interiorismo que, desafiando el tiempo, busca un mejor uso de la edificación y una mayor comodidad práctica y estética de los espacios.

Moré Interiores ha sido responsable de la reforma de una residencia en Santo Domingo adquirida por una joven familia. Ubicada en una comunidad cerrada compuesta por cuatro residencias de dos niveles, su construcción data de unos quince a veinte años atrás y tienen aproximadamente 330m2 incluyendo el patio.

Nuestro equipo partió de una evaluación de las condiciones generales del inmueble sumada a las solicitudes de los propietarios y a nuestro diagnóstico y recomendaciones. El objetivo se centró en hacer eficiente y confortable el uso de los espacios a través de una línea de diseño más moderna, con cambios en la distribución, revestimientos, trabajos en techos, iluminación y mobiliario.

Algunas áreas fueron intervenidas de manera práctica y puntual, como la entrada, la sala, los baños; otras incorporaron significativas transformaciones como el estudio, terraza, cocina, el baño de la habitación principal y la terraza del segundo nivel que hoy es un provechoso homeoffice; en algunos casos los cambios fueron mínimos como en las habitaciones.

En cuanto a las paredes retiramos los wallpapers y las pintamos en colores claros en ambos niveles de la residencia. Los propietarios ya tenían una parte del mobiliario el cual fue tapizado o reutilizado, otros fueron comprados o diseñados exclusivamente para los requerimientos de ellos.

Las puertas originales se pintaron de color wengué, tono más oscuro del que tenían, haciendo juego con las paredes a las que a su vez les dimos tonos más claros. Los espacios cobraron vida, luz y modernidad. Las puertas del estudio, comedor y terraza fueron sustituidas por puertas corredizas con paños en vidrio logrando una mayor iluminación y apertura entre los espacios.

Primer nivel

El primer nivel está compuesto por la entrada, la sala, el comedor, un estudio, la terraza, el baño de visitas, la cocina, y el área de servicio.

En la entrada se retiraron las cornisas y revestimos de madera, utilizando un diseño modular, la pared y el techo, al igual que la pared focal de la sala, creando una continuidad entre los espacios y logrando ambientes más acogedores. El rosetón del piso de entrada se sustituyó por una plancha de mármol Volaskas Gold el cual se utilizó también en otras áreas de la casa. Además, en la sala sustituimos el plafond perimetral y colocamos un techo flotante con distintos tipos de iluminación para crear diversos ambientes logrando un espacio más limpio e iluminado.

En el baño de visitas retiramos el listelo de mármol rojo y colocamos el mismo mármol de la entrada, se cambió el papel tapiz, equipos sanitarios y se diseñó un mueble de lavamanos de líneas modernas.

En el techo del comedor se creó una cuadrícula de viguetas falsas con detalles en madera, integrando iluminación puntual en todo su perímetro, y luminaria colgante al centro de la mesa.

En el estudio la mayoría de los muebles fueron diseñados especialmente para cubrir necesidades familiares y exhibir objetos decorativos de valor sentimental.

En la cocina, el piso se retiró y se colocó un porcelanato. De igual forma, el tope original de granito del counter fue sustituido por un Dekton.

En la terraza sustituimos su piso por un porcelanato de gran formato, y creamos un espacio más casual de sala y comedor. Dispusimos de un lugar para colocar un bar, mueble diseñado especialmente para este espacio. La mesa del comedor fue diseñada por el padre de la propietaria, ocupando un importante lugar en este espacio. Sus sillas están en combinación con el juego de sala.

En el patio diseñamos un gazebo, nuevo espacio para el encuentro y alegría familiar, construido en madera con piso de losetas en tonos de gris, azul y blanco; completando esta experiencia con un área de bbq para los asados.

La jardinería se trabajó de manera orgánica, facilitando una fluida circulación a través de los diversos espacios del jardín, disfrutando de una selecta variedad de plantas.

Segundo nivel

El segundo nivel cuenta con tres habitaciones cada una con su baño y closets; un estar familiar especialmente diseñado como área privada; y un home office que se abre hacia un balcón con vista al patio.

En las habitaciones se personalizaron los espacios, adaptándolos al gusto y necesidades de los usuarios. El baño principal se divide en dos espacios, uno para el área de lavamanos y otro cerrado para la ducha e inodoro. En el espacio de lavamanos se diseñó un mueble para lavamanos doble y almacenaje colocando el tope en mármol Volaskas Gold y las paredes se recubrieron de stucco crema. En el espacio de la ducha e inodoro se colocó en el piso de mármol marfil para darle continuidad al piso existente del baño y en sus paredes, mármol Volaskas Gold creando un patrón bookmatched donde las vetas se encuentran.

En el estar familiar redujimos la altura al colocar un plafón con iluminación, haciendo el espacio más acogedor. Contiguo al estar se remodeló una antigua terraza cerrándola con puertas de vidrio corredizas para conservar la luz y manejar la ventilación, creando allí un home office, importante lugar de trabajo para toda la familia.

AAA 089/110
Moré Interiores / María del Mar Moré
Privada, Santo Domingo
Planta arquitectónica 1er nivel Planta arquitectónica 2do nivel
© Alejandro Álvarez © Alejandro Álvarez
AAA 089/112
© Alejandro Álvarez © Alejandro Álvarez

Proyecto:

Residencia privada

Localización:

Santo Domingo, República Dominicana

Año inicio / Término obra:

2022 - 2023

Diseño de interiores:

María del Mar Moré

Empresa:

Moré Interiores

Colaboradores:

Lisbeth Veloz

Diseño Iluminación: Moré Interiores

Diseño Paisajístico:

Moré Interiores

Vitalia Jardinería

Estructuras de Madera:

Canes Proyectos

Manuel Solano

Luminarias:

Grupo Elías

West Elm

Crate & Barrel

Revestimientos:

Rocabert

Marmotech

Decomarmol

Mobiliario:

Oskal

Ilumel

Charo

Alta Casa

Tejidos y Tapizados:

Aurora

Telares

Tessuti

Decorativos:

Casa Colective

Ammbiente

House of Bloom

Casa Cuesta

© Alejandro Álvarez © Alejandro Álvarez

Punta Sur 14, Santo Domingo

088/114
Amanda Musa © Ricardo Piantini © Ricardo Piantini

Punta Sur 14, Santo Domingo

El proyecto Punta Sur 14 se concibió con la visión de crear un espacio elegante y sofisticado, donde la armonía de tonos neutros se fusionará con la calidez de los materiales seleccionados, dando lugar a un ambiente acogedor y refinado. Con un enfoque en la atención al detalle y la excelencia en la ejecución, se llevó a cabo una cuidadosa planificación para lograr un diseño que reflejara la personalidad y el estilo de vida de los residentes del apartamento.

El elemento clave del diseño es el uso innovador de revestimientos de molduras y paneles en las paredes, que añaden profundidad y dimensión al espacio mientras crean un impacto visual sorprendente. Estos revestimientos, en tonos neutros y cálidos, proporcionan una base elegante y sofisticada que sirve como lienzo para resaltar otros elementos del diseño.

Se eligieron cuidadosamente materiales de alta calidad para complementar la estética general del proyecto. La madera se utilizó para agregar calidez y un sentido de rusticidad refinada, mientras que el mármol aportaba un lujo atemporal y una sensación de lujo a ciertas áreas, como la entrada y la sala.

Los mobiliarios fueron seleccionados con atención al estilo y la funcionalidad, asegurando que cada pieza complementara y realzara la estética general del apartamento. Se optó por muebles de líneas limpias y contemporáneas, en tonos neutros y acabados elegantes, que añadían un toque de sofisticación sin abrumar el espacio. Además, se introdujeron toques de color selectivos a través de cojines, obras de arte y accesorios decorativos, añadiendo vitalidad y personalidad al diseño.

El proyecto Punta Sur 14 logró crear un ambiente de lujo discreto y atemporal, donde la elegancia se fusiona armoniosamente con la funcionalidad. Desde los revestimientos de moldura hasta los muebles seleccionados con esmero, cada elemento se combinó cuidadosamente para crear un espacio que no solo refleja un alto nivel de sofisticación, sino también la esencia y el estilo de vida de sus habitantes.

AAA 089/116
Planta arquitectónica amueblada © Ricardo Piantini © Ricardo Piantini
© Ricardo Piantini

Proyecto:

Punta Sur – piso 14

Localización:

Ave. Anacaona esq. Caonabo, Santo Domingo, RD

Año inicio / término obra:

Junio 2022 – abril 2023

M2 de proyecto: 612 m2

Diseño interior / decoración:

AMUSA Interiores

Diseño iluminación: AMUSA

Prolum

Luminarias:

Prolum

Ebanistería:

Casa Atelier / Bladimir Benoit

Herraje:

Restoration Hardware

Mobiliario:

Arte San Ramón

Altri Tempi

Charo

Oskal

Ilumel

Cortinas y telas: Consuelo

Closets:

California Closets

Punta Sur 15, Santo Domingo

Amanda Musa
088/120
© Ricardo Piantini © Ricardo Piantini

Punta Sur 15, Santo Domingo

El proyecto Punta Sur 15 se caracteriza por su enfoque audaz y distintivo, que busca crear un espacio imponente y diferente, capaz de dejar una impresión duradera en quienes lo experimentan. Con un diseño que combina elementos clásicos y contemporáneos, se logró una estética única que desafía las convenciones y celebra la creatividad.

El elemento central del diseño fue el uso estratégico de revestimientos de boiserie y paneles decorativos, que añadieron textura y profundidad al espacio, mientras que aportaban un toque de elegancia clásica. El boiserie se utilizó de manera prominente en áreas clave, como la entrada y el estudio, creando un efecto visualmente impactante y cohesionando el diseño en todo el apartamento.

El techo juega un papel destacado en el proyecto, con un diseño elaborado en madera y molduras blancas laqueadas que añaden un toque de dramatismo y refinamiento. Esta combinación de materiales y acabados crea un contraste interesante y contribuye a la sensación de altura y amplitud en el espacio.

Se emplearon una variedad de materiales cuidadosamente seleccionados para enriquecer la paleta de texturas y tonalidades del diseño. La rejilla metálica se utilizó de manera innovadora para agregar un elemento industrial y contemporáneo, mientras que la madera aportaba calidez y un sentido de conexión con la naturaleza. El mármol se incorporó en elementos clave, como encimeras y revestimientos, añadiendo un toque de lujo y sofisticación al espacio. Además, el espejo se utilizó estratégicamente para ampliar visualmente el espacio y reflejar la luz, creando una atmósfera luminosa y vibrante.

Los mobiliarios seleccionados para el proyecto son atemporales y versátiles, diseñados para resistir el paso del tiempo y adaptarse a diferentes estilos y tendencias. Con líneas limpias y siluetas elegantes, estos muebles complementan la estética general del diseño y añaden funcionalidad sin comprometer la estética.

En resumen, el proyecto de diseño interior “PS15” se distingue por su enfoque audaz y su capacidad para crear un espacio imponente y diferente, creando una experiencia única y memorable para quienes lo habitan.

AAA 089/122
Planta arquitectónica amueblada © Ricardo Piantini © Ricardo Piantini
© Ricardo Piantini

Proyecto:

Punta Sur 15

Localización:

Los Cacicazgos, Santo Domingo, RD

Diseño interior / decoración:

AMUSA Interiores

Diseño iluminación:

AMUSA/PROLUM

Luminarias:

Visual Comfort- Restoration Hardware

Ebanistería:

Bladimir Benoit

Ricardo Mercedes

Herraje:

Restoration Hardware

Mobiliario:

Arte San Ramón

Residenza

Charo

Oskal

Ilumel

Altri Tempi

Cortinas y telas:

Consuelo

Arte:

Jose Pelletier

Closets:

California Closets

Automatización:

Alfredo Pimentel

Automatizado

Caribata, Santo Domingo

Amanda Musa
088/126
© Harold Lambertus © Harold Lambertus

Caribata, Santo Domingo

El proyecto de diseño interior “Caribata” se enfocó en transformar una terraza en un espacio que fusiona lo clásico y lo moderno, creando así un ambiente acogedor y sofisticado. Con una cuidadosa selección de elementos y detalles, se logró una atmósfera única que invita a disfrutar del aire libre con estilo y comodidad.

El diseño de la terraza se caracteriza por el uso de revestimientos de paneles blancos en las paredes, combinados con ladrillos para añadir textura y contraste visual. Esta combinación de materiales crea un ambiente acogedor y elegante, que evoca una sensación de calidez y confort. Los paneles blancos aportan luminosidad al espacio, mientras que los ladrillos añaden un toque de rusticidad y carácter.

El techo juega un papel fundamental en el diseño, con un boiserie blanco que crea la sensación de amplitud y sencillez. Esta elección de diseño contribuye a abrir visualmente el espacio, proporcionando una sensación de frescura y ligereza. Además, el boiserie añade un toque clásico y elegante que complementa perfectamente el estilo general del proyecto.

Los mobiliarios seleccionados para la terraza están en sintonía con el ambiente cálido y acogedor del espacio. Se optó por tonos cálidos en los muebles, como marrón, gris y beige, para crear una atmósfera acogedora y relajada. Los muebles fueron elegidos por su comodidad y funcionalidad, garantizando así una experiencia placentera para quienes disfrutan del espacio al aire libre.

Los elementos decorativos se utilizaron para añadir personalidad y estilo al diseño. Se incorporaron plantas y accesorios decorativos en tonos neutros y naturales para crear un ambiente fresco y armonioso. Además, se utilizaron textiles suaves y texturas orgánicas para añadir calidez y confort al espacio.

En resumen, el proyecto de diseño interior “Caribata” transforma una terraza en un espacio acogedor y sofisticado, donde lo clásico y lo moderno se fusionan armoniosamente, para crear un ambiente único y atractivo que invita a disfrutar del aire libre con estilo.

AAA 089/128
Elevaciones Diagrama © Harold Lambertus © Harold Lambertus
AAA 089/130
© Harold Lambertus © Harold Lambertus

Proyecto:

Caribata #1

Localización:

Los Cacicazgos, Santo Domingo, RD

Diseño interior / decoración:

AMUSA Interiores

Diseño iluminación:

AMUSA

Luminarias:

Pottery Barn – Visual Comfort- Restoration Hardware

Ebanistería:

Bladimir Benoit

Herraje:

Restoration Hardware

Todo Herrajes

Mobiliario:

Arte San Ramón

Residenza

Charo

Oskal

Ilumel

Marks & Gunther

Cortinas y telas:

Consuelo

Arte:

José Pelletier

José García Cordero

Eleomar Puente

Juan Carlos Reyes

© Harold Lambertus © Harold Lambertus

Torre

Es 201, Santo Domingo
088/132
Gutiérrez Rodio
© Danilo Rodio
© Danilo Rodio

Torre Es 201, Santo Domingo

El apartamento se encuentra en un segundo piso de una torre ubicada en la avenida Anacaona, con vista al parque del Mirador.

Goza de una sorprendente luminosidad lo que ha permitido de jugar con texturas y colores de mucho contraste.

El recibidor, la sala y el comedor forman un único espacio con una evidente solución de continuidad remarcada por una misma boiserie verde menta en algunos episodio sube hasta el techo trasformándose en plafónd.

Las mismas paredes, a pesar de que tengan su carácter definido, no entran en conflicto con la rica colección de obras de arte de artistas dominicanos y no.

El estudio es un área más intima y cerrada, pero igual bañada por la mucha luz del sur. Impresionado con un techo claramente inspirado en los techos a cassettoni de las arquitecturas romanas.

Muebles diseñados a medidas por el studio Gutiérrez Rodio dialogan bien con otros de más trascendencia, como las sillas Capitol Complex diseñadas por Pierre Jeanneret en el 1958 para el proyecto Chandigarh junto a Le Corbusier, o las butacas Womb de Eero Saarinen.

Una amplia colección de piezas de vidrio de Murano Venini que desde 1921 protagoniza la escena de las artes decorativas, se encuentran en la paleta de objetos.

AAA 089/134
Planta arquitectónica
© Danilo Rodio © Danilo Rodio
AAA 089/136
© Danilo Rodio

Proyecto:

Torre ES 201

Localización:

Avenida Anacona 121, Santo Domingo

Año inicio / término obra:

2023

Diseño interior / decoración:

Gutiérrez Rodio Workshop

Diseño iluminación:

Gutiérrez Rodio Workshop

Supervisión:

Gutiérrez Rodio Workshop

Luminarias:

Venini Santo Domingo

Mobiliario:

B&B ITALIA

CASSINA

KNOLL

MINOTTI

MOLTENI

Alfombras:

Maestri Store Santo Domingo

© Danilo Rodio

Torre Uno 10, Santo Domingo

088/138
Ricardo
Gutierrez Rodio
©
Piantini
© Ricardo Piantini

Torre Uno 10, Santo Domingo

El apartamento es el refugio de una pareja joven que ama rodearse de obras de arte y sobre todo de objetos que pertenece a la historia del diseño, sean lámparas, muebles o accesorios. De hecho aquí se puede encontrar una buena colección que reune creaciones de Achille Castiglioni, Gino Sarfatti, Ettore Sottsass, Gio Ponti, Le Corbusier, y de la reconocida firma italiana Venini.

El apartamento se compone de un recibidor, una sala, un comedor, un estudio, una terraza con jacuzzi, tres dormitorios cada uno con su proprio baño y walking-closet.

Cada área tiene su acento particular y fue concebida con mucha atención a los detalles y riqueza de materiales.

La inspiración para el diseño de cada área ha surgido de diferentes maneras. En algunos casos ha sido una determinada paleta de colores, sugerida por un tejido, a trazar el camino por tomar. En otros casos, el “mood” lo ha determidado un material de revestimiento o sencillamente un mueble o una lámpara.

De todos modos, nunca se olvida que la meta final es lograr un equilibrio y un balance entre materiales, texturas, colores con el propósito, siempre el mismo, de no satisfacer las expectativas de los clientes si no superarlas.

AAA 089/140
Planta arquitectónica © Ricardo Piantini © Ricardo Piantini
AAA 089/142
© Ricardo Piantini © Ricardo Piantini

Proyecto:

Torre Uno 10

Localización:

Calle David Ben Gurión 29, Santo Domingo

Año inicio / término obra: 2021 - 2023

Diseño interior / decoración: Gutiérrez Rodio Workshop

Diseño iluminación: Gutiérrez Rodio Workshop

Supervisión: Gutiérrez Rodio Workshop

Luminarias:

Venini Santo Domingo

Mobiliario:

B&B Italia

Cassina

Minotti

Molteni

Alfombras:

Maestri Store Santo Domingo

© Ricardo Piantini © Ricardo Piantini

Los Flamboyanes, La Estancia, La Romana

© Simón Saifi
088/144

Los Flamboyanes, La Estancia, La Romana

Anny Torres Nin / Torres Nin Arquitectura

Los Flamboyanes es el nombre dado en proyecto a esta residencia privada localizada en el complejo La Estancia Golf y Villas, en cuya calle fueron plantados numerosos árboles de Flamboyán, todos jóvenes aún, por lo que nos tocará esperar unos años para que nos deslumbren con su espectacular florecer y hagan honor al nombre del proyecto.

El lote de 1,300 m2 de extensión tiene forma trapezoidal con 47.50 metros lineales de profundidad y el lado más ancho dando frente al campo de golf en la zona posterior, razón por la que el inmueble se aleja de la vía de circulación frontal y se extiende sobre el terreno buscando de la mayor conectividad visual con el paisaje de la zona trasera; aprovechando esta condición del terreno se planificó la zonificación para disponer en esta área -y en proximidad a la piscina- los espacios sociales del primer nivel y la habitación principal con sus espacios complementarios, en el segundo.

A nivel arquitectónico, el complejo donde se emplaza el proyecto establece ciertas regulaciones que permiten mantener una coherencia entre las residencias del conjunto, sin embargo, para este caso los propietarios expresaron su deseo de que su vivienda tuviera una apariencia más contemporánea, por lo que conseguir un balance entre las regulaciones y los requerimientos del cliente para lograr que el diseño fuera aprobado por ambas partes, fue uno de los retos iniciales del proyecto. Al emplear líneas simples se logró una fachada contemporánea que balancea volúmenes, sustracciones y elementos en vuelo, con un paisajismo que se vuelve protagónico al recibir la iluminación nocturna.

Desde la fachada principal la lectura es la de una residencia en la que la privacidad es importante. Al alejar la fachada de la vía de circulación frontal se dio lugar a un extenso jardín atravesado por un camino peatonal que permite apreciar el paisaje y dirige hacia un muro revestido en listones de piedra. El muro se abre para dar la bienvenida al interior mientras es bañado por una sutil cascada.

Se accede a través del recibidor en altura estándar, para luego hacer transición a la imponente doble altura que envuelve la sala principal y donde se desarrolla la escalera que pende de una amplia pared estructural revestida en acabados de mármol y madera; la escalera prolonga su primer escalón para crear una jardinera que evoca el exterior y cuyo verdor contrasta con los materiales de terminación.

Desde la conceptualización arquitectónica, la distribución de áreas se realizó buscando tener continuidad espacial en la zona social e integración de estos espacios interiores con el exterior; de ese modo, la sala, el comedor, la cocina fría, el estudio y el área de barbacoa se desarrollan en conexión con la terraza principal. Esta se extiende a todo lo largo de la piscina y permite visibilidad al espacio abierto del campo de golf.

Al diseñar el interior el objetivo principal era claro: crear espacios elegantes con cierta formalidad, pero lo suficientemente prácticos para generar una atmósfera familiar ajustada a la cotidianidad de la joven familia que los habita. Se buscó crear espacios cuya estética supere la prueba del tiempo, por lo que se evitó el uso de tendencias de diseño, se optó en cambio por incluir elementos que permiten generar un ambiente atemporal.

Acentos de colores vibrantes destacan sobre una base neutra de tonos tierra, que dan a estos espacios la calidez que los caracteriza; sobre esa base, cada pieza ha sido curada o diseñada a medida. El mobiliario, los objetos decorativos, las plantas y las terminaciones.

se lucen al mezclarse con el diseño de iluminación, así como con la luz natural que recibe la residencia.

Para la sala principal el diseño parte de textiles en tonos claros para aportar ligereza, contrastando con el sólido terracota lavado de las butacas y la madera nogal de una de las mesas de centro, siendo estos los elementos de acento. La misma paleta de colores se extiende hacia el comedor formal, en el que la neutralidad del papel tapiz da en este caso el protagonismo al arte abstracto, las obras “Santa Fé horizons” a la izquierda y “Where the colors” a la derecha aportan un pop of color con tonalidades que evocan la naturaleza.

La cocina fría se diseñó con dos tonos contrastantes, madera oscura y taupe liso, empleando el mismo mármol para topes y respaldos. La isla exhibe una geometría moderna que da espacio a la socialización al conectar directamente con la terraza principal y con el área de comedor exterior, donde se encuentra también la barbacoa.

Otra de las áreas que conecta directamente con la terraza es el estudio, en este resalta la calidez aportada por el revestimiento de la pared focal en madera, en la que se aprecia un mueble multiusos diseñado a medida para el espacio; un moderno sofá de esquina junto a algunos elementos de contraste completan este ambiente dando lugar a un espacio acogedor y contemporáneo.

AAA 089/146
Planta arquitectónica 1er nivel
Planta arquitectónica 2do nivel Elevación frontal Elevación lateral derecha Elevación lateral izquierda Elevación posterir
AAA 089/148
© Simón
Saifi
© Simón Saifi
©
Simón Saifi
©
© Simón Saifi
Simón Saifi

Proyecto:

Los Flamboyanes, La Estancia, La Romana

Inicio de obra:

2021

Finalización de obra:

2022

Ubicación del proyecto:

La Estancia Golf Resort, La Romana

Área del lote:

1,300 m2

Área de construcción:

627.20 m2

Diseño arquitectónico:

Arq. Anny Torres Nin

Torres Nin Arquitectura

Diseño de interiores:

Arq. Anny Torres Nin

Torres Nin Arquitectura

Construcción:

Arq. José Robles Marrero

Ingeniería estructural:

Ing. Yvarionex Altagracia

Ingeniería eléctrica:

Ing. Juan Rodríguez

Ingeniería sanitaria:

Ing. Fred Pezoa

Supervisión de obras:

Torres Nin Arquitectura

Paisajismo:

Arq. Edward Rodríguez

Texto:

Arq. Anny Torres Nin

© Joseph Peguero © Simón Saifi

Las Colinas Townhouse

© Simón Saifi
Anny
Torres Nin / Torres Nin Arquitectura 088/152

Las Colinas Townhouse

Anny Torres Nin / Torres Nin Arquitectura

Las Colinas es una residencia privada que se desarrolla en tres niveles, en la que trabajamos el diseño interior desde la fase gris, por lo que pudimos intervenir en el diseño de los baños y la cocina fría desde la fase inicial, evitando así modificaciones posteriores a la entrega de la etapa constructiva del proyecto.

Este proyecto presenta una hermosa riqueza en el uso de terminaciones naturales en revestimientos de pared y mobiliario fabricado a medida. Dos imponentes láminas de mármol Ajax captan inmediatamente la atención de la vista, al revestir la pared focal de la sala principal en combinación con dos listones de roble brasileño teñido; el Ajax es un mármol de dolomita y calcita de fondo blanco con vetas diagonales en tono ocre, gris, marrón claro y algunos tonos azulados pálidos, las láminas en disposición bookmatched forman parte de los elementos principales de este espacio, elevando la sensación de elegancia a la vez que crea un espacio que se mantendrá vigente a lo largo de los años al hacer uso de materiales atemporales, que a pesar de tener una fuerte presencia, desbordan armonía y sobriedad.

En el recibidor destaca un diseño elaborado en roble brasileño y MDF, haciendo que las paredes creen un recorrido visual y al hagan resaltar la imponente obra de arte y el espejo que aporta profundidad espacial, dando unidad al resto de los elementos del espacio.

El recorrido continúa hacia el comedor para ocho comensales, donde se aprovechó un excedente de espacio generado por la posición de una columna para insertar un mueble de estantería diseñado a medida, el mueble cumple función de almacenaje para vajilla, copas, y otros utensilios de uso cotidiano en torno al comedor. Se buscó crear un espacio ligero que fuera práctico para el uso diario. En conexión con la cocina fría, este espacio constituye el corazón del hogar, uno de los espacios de mayor uso y en torno al cual tienen lugar importantes momentos familiares día a día.

La cocina fría fue diseñada haciendo uso de una ligera textura de madera en tono arena con topes y respaldo en un cuarzo de ligeras vetas con apariencia de mármol Calacatta, esto con el objetivo de resaltar la sensación de amplitud, orden y serenidad; una península con tres banquetas de roble y piel enlaza conversación con el área de comedor.

Acceder al segundo piso a través de la escalera un deleite, la misma fue diseñada para enlazar armónicamente con el resto de los revestimientos, su realización definitivamente resultó un reto técnico al requerir un alto nivel de precisión en los cortes y el ensamblaje, a la vez que se cuidaba de la comodidad funcional de la misma, resultando en una labor casi artesanal. Las huellas fueron realizadas en roble sólido y barnizadas con una capa epóxica para cuidar ante las pisadas, mientras que la contrahuella se revistió en la misma madera, esta vez con un acabado de laca.

En el segundo nivel recibe el corredor privado donde los propietarios exponen sus fotografías familiares, en este piso se disponen tres dormitorios, incluyendo el principal, el cual diseñamos para ser un oasis de calma. Desde los revestimientos hasta las texturas y los tonos utilizados, el objetivo fue lograr crear una atmósfera que propicie el descanso y la comodidad. Se incluyó un mueble multifunción que integra el televisor junto un espacio para preparación y maquillaje, para lo que se incluyó iluminación frontal.

se diseñó un lavamanos fabricado a medida en cuarzo que, que junto a los acentos de iluminación, es sin duda el protagonista del espacio.

Para los más pequeños de la familia fueron diseñados dos espacios sumamente especiales con alta atención a los detalles, en búsqueda de crear ambientes en los que rebose la ternura, paz y la oportunidad de exploración, para que en ellos, tanto los padres como los niños puedan disfrutar de momentos memorables.

En el tercer nivel, desde el cual se accede al área de terraza y jacuzzi, se localiza el estar familiar que a su vez tiene función de oficina en casa, bar y dormitorio de visitas. Debido a su configuración espacial nos las ingeniamos para combinar todas estas funciones de manera práctica, para lo que diseñamos un mueble multifuncional que incluye el escritorio que puede ser desuso doble y el bar, revestido en un bellísimo mármol de vetas en variaciones de gris y tono ámbar.

Sin duda una residencia llena de detalles, que integra todas las características para que sus propietarios puedan hacer uso óptimo de los espacios, a la vez que disfrutan de ambientes de funcionalidad elevada, elegancia atemporal y confort.

El closet principal fue diseñado y fabricado a medida para adaptarse a las necesidades de almacenaje específicas de los clientes, en contraste con la habitación, en este espacio predomina el tono intenso y cálido de la madera de roble -teñida para alcanzar un matiz cenizo- y la iluminación indirecta que junto al mobiliario complementario hacen que la hora de elegir vestimenta sea una experiencia placentera y especial; en continuidad al closet se encuentra el baño principal, para el se persiguieron las líneas simples y la simplicidad, Planta arquitectónica amueblada Planta arquitectónica amueblada

AAA 089/154
© Simón
© Simón
Saifi
Saifi
© Simón Saifi
© Simón Saifi
© Simón Saifi © Simón Saifi
AAA 089/158
© Simón
© Simón Saifi
Saifi

Proyecto:

Las Colinas Townhouse

Diseño de Interiores:

Torres Nin Arquitectura | M. Arq. Anny Torres Nin

Asistencia de diseño interior: Arq. Nicole Villanueva

Ejecución:

Torres Nin Arquitectura

Supervisión:

VICB Projects; Arq. Verónica Contreras & Torres Nin Arquitectura

Diseño de iluminación: Torres Nin Arquitectura

Ebanistería:

Macerarte SRL / Roberto Peña

Instalaciones eléctricas y climatización: Reinoso Refricentro / Starlin Reinoso

Construcción ligera:

Cedeño Servicios Diversos Año de entrega: 2023

© Simón Saifi © Simón Saifi

Residencia Privada - VM, Santo Domingo

Varval Home 088/160 © Derechos Reservados

Nuestro principal objetivo en este proyecto, que llevamos desde obra gris, fue dotar a cada espacio de un carácter distintivo y un ambiente acogedor, integrar a la perfección elementos modernos y lograr una fusión armoniosa de estilo y confort.

La incorporación de una cuidadosa selección de colores jugó un papel fundamental a la hora de acentuar diferentes áreas, logrando un equilibrio matizado entre vitalidad y tranquilidad. Cada tono fue elegido meticulosamente para evocar estados de ánimo y emociones específicas, mejorando en última instancia la atmósfera general.

Al emplear una combinación de tonos suaves y complementarios, mantuvimos una estética limpia y ordenada que irradia unos espacios acogedores y aireados. Esta meticulosa atención al detalle en la selección de colores y materiales fue fundamental para crear un ambiente cohesivo que resuena maravillosamente con la visión de nuestro cliente.

Dado que nuestros clientes son una familia joven, fuimos conscientes de crear un entorno doméstico amigable para los niños sin comprometer el estilo, asegurándonos de que los materiales fueran de alto rendimiento y estéticamente agradables. A medida que hicimos la transición al segundo piso, que alberga el dormitorio principal y un mini man cave, nuestro objetivo era crear un cambio de un entorno social a uno más tranquilo, proporcionando un flujo perfecto en las diferentes áreas del espacio.

La amplia terraza ofrece con su ambiente cálido y acogedor, la oportunidad perfecta para disfrutar de las impresionantes vistas de la ciudad.

AAA 089/162
Privada - VM,
Varval Home
Residencia
Santo Domingo
Planta arquitectónica 2do nivel PH
Planta arquitectónica 1er nivel

©

©

Derechos Reservados
Derechos Reservados
AAA 089/164 © Derechos Reservados © Derechos Reservados

Proyecto:

Residencia Privada, VM

Localización:

Los Cacicazgos, Distrito Nacional Año de Inicio/Término obra:

2022

Área Total de Construcción: 350 m2

Diseño Arquitectónico, Interiores e Iluminación:

Varval Home, SRL

Supervisión:

Varval Home, SRL

Luz Minier

Domótica y Automatización: Grupo HUSVIK

Acústica:

Acústica Artesanal, SRL

Ebanistería y Closets: Didecor

Revestimientos/ Pisos:

OTTO

Tessell Design

IMEX Mármol

Molduras:

Orac Decor

Cristalería: Cristaluz

Mobiliario:

Ilumel

Charo

Crate & Barrel

Wallpapers:

Velvet Home Decor

Cortinas:

Consuelo Textil

Jardinería: Plantópolis

© Derechos Reservados © Derechos Reservados

Turn static files into dynamic content formats.

Create a flipbook
Issuu converts static files into: digital portfolios, online yearbooks, online catalogs, digital photo albums and more. Sign up and create your flipbook.