Revista Mandu'a - #513 - Febrero 2026

Page 1


INFORMACIÓN, OPINIÓN Y CULTURA AL SERVICIO DE LA CONSTRUCCIÓN

EL LEGADO DE FRANK GEHRY / GRAN LOGIA SIMBÓLICA DEL PARAGUAY / GUÍAS DE PRECIOS

Mandu’a es la Revista de la construcción más leída del Paraguay. Mensualmente ofrece noticias, tendencias, notas técnicas, guías de precios de materiales, costeo de obra y proveedores de la construcción. La suscripción es gratuita para los profesionales de la construcción de todo el país.

Editorial

El acuerdo UE–Mercosur y el desafío del desarrollo

Notas

El Legado de Frank Gehry

Proyecto nacional Gran Logia Simbólica del Paraguay

Proyecto internacional Institución Cívica Granthalay

Industria & innovación Pisos sobre elevados Steel Floor

Guías de precios de la construcción

EQUIPO

Gerencia y Administración: Estela Villalba

Dirección editorial: Yerutí Arza

Costeo: Carlos Gómez

Publicidad: Rubén Cabrera, Víctor Hugo Franco, Néstor Raimondo

Impresión: Artes Gráficas Castillo

S.A.

Fundador: Mauri Arza.

CONTACTO

Ramón I. Cardozo c/ Andrés Gill

Lambaré - Paraguay (021) 905 100 / (0981) 917 683 mandua@mandua.com.py

www.mandua.com.py

EL ACUERDO UE–MERCOSUR Y EL DESAFÍO DEL DESARROLLO

La firma del acuerdo entre la Unión Europea y el Mercosur en Asunción marca un hito relevante para la región y, en particular, para Paraguay. Desde Mandu’a lo entendemos como una señal positiva: una oportunidad para integrarnos de manera más activa a un espacio económico amplio, con estándares técnicos, ambientales y sociales elevados. En un contexto global atravesado por tensiones geopolíticas y fragmentación, el fortalecimiento del diálogo y la cooperación internacional sigue siendo una apuesta valiosa, aunque exige una lectura crítica y responsable.

Para la industria de la construcción, el acuerdo abre expectativas concretas. Un posible aumento de inversiones, el acceso a nuevas tecnologías, materiales y procesos constructivos, así como el intercambio de conocimiento, pueden contribuir a mejorar la calidad del entorno construido. Del mismo modo, la aproximación a estándares europeos en eficiencia energética, sostenibilidad y seguridad laboral representa una oportunidad para modernizar prácticas que aún responden, en muchos casos, a lógicas de corto plazo.

Sin embargo, el optimismo no debe ocultar los desafíos. La apertura de mercados y el aumento de la competencia pueden intensificar la presión sobre costos, plazos y condiciones de trabajo. Sin marcos regulatorios sólidos y una fiscalización efectiva, existe el riesgo de que la competitividad se construya a costa de la calidad, del ambiente o de los derechos laborales. La construcción, como sector intensivo en recursos y mano de obra, requiere políticas que prioricen la durabilidad, la trazabilidad y el impacto social de cada proyecto.

Esta tensión entre oportunidad y riesgo atraviesa también otros sectores clave, como la agricultura, la industria, la energía y los servicios. Para Paraguay, el desafío estructural persiste: evitar consolidar un rol limitado a la exportación de materias primas y avanzar hacia modelos productivos con mayor valor agregado, innovación y conocimiento local. El acuerdo puede ser un catalizador, pero no sustituye una estrategia de desarrollo clara y sostenida.

Además, tras la firma en Asunción, el Parlamento Europeo ha frenado temporalmente la ratificación del acuerdo, al decidir en una votación muy ajustada remitir el texto al Tribunal de Justicia de la Unión Europea (TJUE) para evaluar su compatibilidad con los tratados y las competencias comunitarias. Con 334 votos a favor y 324 en contra, esta decisión introduce una incertidumbre jurídica que podría retrasar la aprobación definitiva durante meses o incluso años.

Desde una perspectiva ética, el acuerdo UE–Mercosur interpela a la sociedad en su conjunto. ¿Estamos preparados institucionalmente para cumplir estándares más exigentes y, sobre todo, para hacerlos cumplir? ¿Cómo se protegerán los ecosistemas, las comunidades locales y los trabajadores ante una mayor presión productiva? ¿Quiénes se beneficiarán realmente de este nuevo marco?

La firma del acuerdo es una buena noticia. Pero su verdadero valor no estará en la foto oficial ni en las promesas de crecimiento, sino en la capacidad de traducirlo en desarrollo sostenible, inclusivo y de largo plazo. Solo así podrá convertirse en una herramienta de transformación real.

NOTAS

EL LEGADO DE FRANK GEHRY

El pasado 5 de diciembre de 2025, el mundo de la arquitectura se vistió de luto con la partida de Frank Gehry, el visionario creador de edificios que parecían desafiar la gravedad, el sentido común y hasta los estilos impuestos por la historia. Gehry murió a los 96 años en su casa de Santa Mónica, California. Su legado, sigue vivo en cada curva de titanio, cada placa de vidrio retorcida y cada calle que ha sido redescubierta gracias a su obra.

Nacido como Frank Owen Goldberg el 28 de febrero de 1929 en Toronto, Canadá, Gehry creció entre madera y herramientas, inspirándose desde niño en estructuras imaginarias construidas en el suelo de su salón. Fue esta temprana fascinación por los volúmenes y las formas lo que lo impulsó luego a estudiar arquitectura en la University of Southern California, y más tarde urbanismo en Harvard.

La historia de Gehry es, en muchos sentidos, la historia de un outsider. Cambió su apellido —de Goldberg a Gehry— en parte para distanciarse de prejuicios y barreras sociales, pero también para marcar el inicio de una identidad artística propia: un arquitecto sin miedo a romper reglas, desafiar expectativas y convertir a cada edificio en un manifiesto.

Antes de ser reconocido mundialmente, Gehry experimentó una vida profesional menos glamorosa: diseñó viviendas públicas, centros comerciales modestos e incluso trabajó de camionero por un tiempo. Sin embargo, su creatividad pronto encontró un canal de expresión único cuando remodeló su propia casa en Santa Mónica utilizando materiales poco convencionales —corrugado, malla metálica, madera— para crear un conjunto que parecía salido de un sueño posmoderno.

Ese acto de audacia fue el punto de inflexión que lo catapultó fuera de los circuitos convencionales de la arquitectura. Su estudio, Frank O. Gehry & Associates, fundado en 1962, se consolidó como un laboratorio de investigación artística y técnica, donde cada proyecto era un desafío, una investigación y, a menudo, una revolución.

EL GUGGENHEIM DE BILBAO: UN SUEÑO DE TITANIO

Si existe una obra que encapsula la esencia de Gehry, esa es sin duda el Museo Guggenheim de Bilbao (1997). Esta escultura habitable de titanio, piedra y cristal no solo redefinió el

FÁBRICA

R u t a P a t i ñ o K m . 4 0 . 5

Ce l . : 0 9 7 1 2 0 3 3 2 3

SHOWROOM

R u t a D 0 2 7 y S a n C aye t a n o San Lorenzo - Ex Ruta 1, Km 14,5

Ce l . : 0 9 8 5 1 8 4 3 9 0

término deconstructivismo, sino que transformó por completo el significado urbano de Bilbao: de ciudad industrial en declive a destino cosmopolita de arte, cultura y turismo. Lo que comenzó como un museo terminó convertido en símbolo global de renovación urbana —un fenómeno tan poderoso que se lo conoce como el “Efecto Bilbao”.

El Museo Guggenheim no fue solo una obra arquitectónica, sino una declaración de principios: la arquitectura podía ser, por encima de todo, una experiencia emocional, un gesto artístico y un imán para la imaginación colectiva.

UN LENGUAJE PROPIO: CURVAS, MOVIMIENTO Y EMOCIÓN

A diferencia de estilos como el modernismo, centrados en la racionalidad de las formas, Gehry apostó por lo orgánico, lo fluido, lo inesperado. Sus edificios parecían en constante movimiento, como si estuvieran vivos, respirando y dialogando con su entorno. Desde el Walt Disney Concert Hall en Los Ángeles hasta la Fundación Louis Vuitton en París,

sus obras desafiaron convenciones estructurales y expresaron una libertad estética inédita.

Gehry no solo transformó materiales: transformó percepciones. Hizo que el metal pareciera poesía y que los espacios arquitectónicos se sintieran como escenarios para la vida humana, no como cajas neutrales donde esta ocurre.

La obra de Gehry fue ampliamente reconocida: obtuvo el Premio Pritzker en 1989 y recibió honores como la Medalla Presidencial de la Libertad de los Estados Unidos. A pesar de estos reconocimientos, él mismo era crítico con la forma en que la profesión a veces se quedaba atrapada en fórmulas. Su compromiso siempre fue con la idea de que la arquitectura debía conmover, inspirar y conectar con las personas.

Aunque sus construcciones son lo que más se recuerda, Gehry también incursionó en diseño de muebles, espacios escénicos y hasta juguetes, siempre con la misma curiosidad que lo llevó

a construir su primera maqueta de niño. Su impacto va más allá de la arquitectura: acercó el diseño a la cultura popular, inspiró generaciones de arquitectos y cambió para siempre cómo pensamos el espacio construido.

UN LEGADO QUE SIGUE VIVO

La noticia de su muerte resonó en el mundo entero: líderes culturales, ciudades y comunidades rendían homenaje a un creador que no solo diseñó edificios, sino que también transformó ciudades enteras. Gehry deja tras de sí obras que seguirán desafiando el tiempo, inspirando a futuros arquitectos y encantando a quienes las visitan, año tras año.

Porque más allá de los estilos o las tendencias, la obra de Frank Gehry nos recuerda una verdad profunda: la arquitectura tiene el poder de conmovernos, de inscribir emoción en el espacio y de re imaginar lo posible. Y en ese sentido, sus curvas eternas serán siempre un recordatorio de que construir es también soñar despierto.

FINEGLASS ES LA SOLUCION. EN

El mejor equipo de profesionales a su servicio y una planta industrial trabajando las 24hs. para acompañar sus proyectos con agilidad y eficacia.

VIDRIOS TEMPLADOS

(DVH)

Reduce la condensación de humedad sobre el vidrio evitando que se empañe. Manufacturado con Float de color ó reflectivo, brinda control solar y disminuye el resplandor de la excesiva luminosidad.

BARANDAS Y PISOS CON VIDRIO TEMPLADO LAMINADO Para proyectos enfocados a la seguridad y bienestar.

Vidrios de seguridad para cada ambiente de tu hogar.
del Rosario 563
Beatriz Benítez. Itauguá.

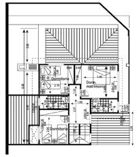
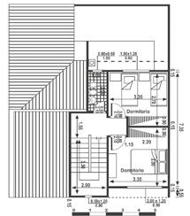
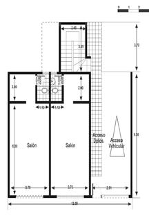
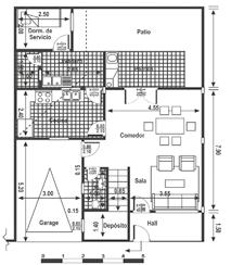
GRAN LOGIA SIMBÓLICA DEL PARAGUAY

Proyecto: Gabinete de Arquitectura / Solano Benítez

Construcción a cargo:

Gabinete de Arquitectura

Fotografías: Lauro Rocha

Año: 2018

Ubicación: Asunción, Paraguay

El Templo de la Gran Logia Simbólica del Paraguay, ubicado en Asunción, es una obra proyectada y construida por Gabinete de Arquitectura bajo la dirección de Solano Benítez. La obra se enmarca dentro de la arquitectura experimental, destacándose por su tratamiento material y la claridad de sus soluciones espaciales.

El edificio se configura como un espacio ceremonial destinado a las actividades de la logia, con una volumetría clara y reconocible que define su presencia en el entorno urbano.

La propuesta arquitectónica enfatiza la relación entre estructura, materialidad y luz, generando ambientes que favorecen

- Revista Mandu’a

la concentración y la contemplación. La organización de los espacios responde a los requerimientos funcionales de la institución, articulando áreas de reunión, circulación y ceremonial de manera eficiente y coherente.

La construcción se caracteriza por el uso predominante de ladrillo visto, un material que se despliega de forma expresiva en muros y elementos estructurales, integrando la estética con la función. Los acabados y detalles constructivos reflejan precisión en la ejecución y atención a la durabilidad, al mismo tiempo que mantienen la sencillez y la contundencia propia de la arquitectura contemporánea. La estructura del templo se concibe de manera que los elementos portantes sean también componentes del lenguaje visual, otorgando solidez y legibilidad al conjunto.

El tratamiento de la luz natural es un aspecto central en el proyecto. Las aperturas y vacíos están pensados para modular la iluminación interior, creando contrastes de luz y sombra que potencian la percepción espacial y la experiencia sensorial dentro del templo. Esta gestión de la luz enfatiza la solemnidad de los espacios y refuerza la jerarquía de las áreas ceremoniales.

La obra se integra con discreción en el tejido urbano, destacándose sin generar disonancia con el entorno. La composición volumétrica, el ritmo de las fachadas y la coherencia material consolidan una arquitectura que comunica estabilidad, orden y funcionalidad. Cada espacio interior está diseñado para cumplir con las necesidades específicas de la logia, garantizando confort y adecuación a los rituales que se desarrollan en el templo.

- Revista Mandu’a

En síntesis, el Templo de la Gran Logia Simbólica del Paraguay es un ejemplo de arquitectura contemporánea aplicada a un programa ceremonial, donde la claridad formal, la materialidad expresiva y la calidad espacial se conjugan para generar un edificio con identidad propia. La obra refleja un enfoque coherente entre diseño y construcción, mostrando el potencial de la arquitectura experimental para responder a requerimientos funcionales, simbólicos y urbanos de manera integrada.

INSTITUCION CIVICA GRANTHALAY

Proyecto: Studio Infinity

Área: 1684 m²

Año: 2025

Fotografías: Pranit Bora Studio

Líder de Equipo: Aishwarya Katte

Equipo de Diseño: Ankita Dhanke

Arquitectos a Cargo: Tushar

Kothawade, Chiranjivi Lunkad

Ciudad: Chhatarpur

País: India

Descripción enviada por el equipo del proyecto.

En un panorama en el que las aspiraciones esperan en silencio, Granthalay surge como un santuario para el aprendizaje, reuniendo a personas, conocimientos y lugares en un momento cívico compartido. Granthalay se concibe como una institución cívica que va más allá de la idea convencional de biblioteca, respondiendo a la grave falta de infraestructura educativa y comunitaria en el distrito de Chhatarpur, India. Encargado por el Gobierno de Madhya Pradesh, el proyecto tiene como objetivo prestar servicio a estudiantes, aspirantes, personas mayores y la comunidad local en general, incluidos los usuarios de las ciudades y pueblos de los alrededores.

- Revista Mandu’a

El diseño se basa en el marco orientativo de «Personas, Lugar y Propósito», que da forma a las decisiones, desde la planificación espacial hasta la selección de materiales. Ubicado en un terreno limitado por calles en los cuatro lados e influenciado por una colina adyacente, árboles existentes y un jardín público propuesto, el edificio responde tanto a su contexto macro como micro mientras afirma una fuerte presencia cívica.

Una estructura circular ancla el emplazamiento, surgiendo como respuesta directa a las limitaciones del terreno y las con-

diciones de acceso. La geometría permite una clara división en zonas, una circulación eficiente y una respuesta climática, al tiempo que crea un tranquilo patio central que sirve como centro social y visual del proyecto. Los espacios están segregados por edades, lo que garantiza una transición fluida entre las zonas de lectura para los más pequeños, los espacios de estudio para los mayores, las zonas comunes y la administración. La ubicación estratégica de servicios y núcleos de circulación permite un movimiento fluido de los usuarios y una futura expansión vertical.

La materialidad refuerza la base contextual del proyecto. El uso de arenisca roja, ladrillo, bloques de terracota y pantallas jali perforadas, todos ellos materiales disponibles localmente, confiere al edificio una identidad regional distintiva, al tiempo que mejora el rendimiento térmico y la refrigeración pasiva. Las terrazas semiabiertas, los pasillos sombreados y la luz natural filtrada reducen la acumulación de calor y favorecen la ventilación natural durante todo el año.

Aunque inicialmente se concibió como una

estructura de dos niveles, el proyecto se ha ejecutado como un edificio de una sola planta debido a restricciones presupuestarias. Se han

incorporado disposiciones estructurales y de servicios para permitir una futura ampliación sin comprometer la integridad arquitectónica actual. Las estrategias de sostenibilidad incluyen la recogida de agua de lluvia, la orientación óptima para aprovechar la luz natural y la ventilación, y la instalación de paneles solares en los tejados en fases posteriores.

El enfoque paisajístico prioriza la conservación de los árboles existentes, particularmente un baniano maduro que se ha integrado como un hito natural central. Diseñado para requerir poco mantenimiento y poder gestionarse a nivel local, el paisaje refuerza la conexión del edificio con su entorno. Ejecutado dentro de las limitaciones de los procesos del sector público y la mano de obra local, el proyecto exigía una gran precisión, especialmente dada su geometría circular.

Granthalay se erige finalmente como un edificio público contemporáneo y arraigado en su contexto, que fomenta el aprendizaje, la cultura y la comunidad, al tiempo que eleva discretamente el tejido cívico de Chhatarpur. En su quietud y apertura, el edificio ofrece algo poco común: un lugar donde la arquitectura escucha y, al escuchar, devuelve.

Soluciones para infraestructura moderna.

Los pisos sobreelevados

SteelFloor se instalan como un segundo piso sobre el piso existente, conformando un sistema modular adaptable al interior de edificios que requieren flexibilidad, orden y eficiencia en la gestión de instalaciones.

Este sistema genera un espacio técnico entre el piso original y la superficie de uso, el cual permite alojar cableado eléctrico y telefónico, redes de computación, terminales, enchufes y conductos de aire acondicionado, facilitando la organización y el crecimiento futuro de la infraestructura sin necesidad de obras invasivas.

Cada panel del sistema es totalmente desmontable, lo que permite realizar tareas de mantenimiento, ampliaciones

o reposición de tendidos en cualquier momento, de forma rápida y segura, optimizando los tiempos de intervención y reduciendo costos operativos.

La estructura portante está realizada en acero zincado, con alturas regulables entre 15 y 30 cm, complementada con barras de arriostramiento que aseguran estabilidad, resistencia y un óptimo desempeño estructural.

Para más información, visitar el local de ShoppinGlass en Itapé 216 c/ Solar Guaraní, Lambaré, o llamar al teléfonos: (021) 906-951/2 - (021) 328 0572(0971) 543 246 - Línea gratuita 0800116000.

Así mismo pueden visitar la web de la empresa www.shoppinglass.com.py.

PISOS SOBREELEVADOS STEEL FLOOR

MANO DE OBRA

MANO DE OBRA

TRABAJOS PRELIMINARES UN

COSTO

1

DEMOLICIONES DE MAMPOSTERIA CON RECUPERACION

1 De 0,45 m,

2 De 0,30 m,

3 De 0,15 m,

19.000 DE MAMPOSTERIA SIN RECUPERACION

1 De 0,45 m,

2 De 0,30 m,

3 De 0,15 m,

DEMOLICIONES VARIAS

1 De techo de teja con recuperación,

2 De techo de teja sin recuperación,

3 De techo de chapa,

4 De techo bovedilla,

5 De cielorraso armado (desmontar),

6 De losa de Hº Aº,

7 De piso/revoque/revestimiento,

8 De contrapiso (cuando no hay piso),

9 Sacar zócalo,

10 Sacar azulejos,

11 Desmontar artefactos sanitarios,

12 Desmontar marcos y balancines,

13 Desmontar mamparas (Durlock, Duratec, etc.)

14 Desmontar Aire Acondicionado,

14

1 Limpieza de terreno (no incluye corte ni destronque de árboles),

DESTRONQUE DE ARBOLES (solo como base - Hay que ver)

1

2

3

4

1

2

3 Destape de suelo vegetal, h=20 cm,

4 Destape de suelo

16.000

8 Retiro de tierra o acarreo hasta 50 m,

Carga de camión,

Bandeja de protección, (armar)

PILARES H° (sueltos, cuando no hay losa) 1 Pilar hasta 30x30

3 Pilar visto/viga vista, m³ 950.000

4 Pilar suelto x m3, altura hasta 6,00 m, m³ 1.050.000 VIGAS

1 Viga hasta 30x50, ml 120.000

2 Viga hasta 30x50, m³ 900.000 LOSAS

1 Losa sola, m³ 850.000

2 Losa + columna + viga, m³

3 Losarap incluye relleno de losa, h=3,5 m

4 Losarap sin relleno de losa, h=3,5 m

CADENAS

1 Cadena 13x30 en PB ml 82.000

2 Cadena 20x40 en PB ml 85.000

ESCALERAS

1 Tramo compensado a=1.20 m cada escalón, un 130.000

2 Tramo recto a= 1.20 m cada escalón, un 105.000 PISOS

1 Piso rodillado espesor 12 cm, m² 38.000

2 Piso rodillado espesor 10 cm, m² 35.000

3 Piso rodillado espesor 8 cm,

4 Piso allanado espesor 15 cm, (Incl. Alq. máquina)

6 Piso allanado espesor 10 cm, (Incl. Alq. máquina)

50.000

7 Piso allanado espesor 8 cm, (Incl. Alq. máquina) m² 45.000

FUNDACION CON PIEDRA BRUTA

1 Cimiento PBC sin excavación, m³ 100.000

2 Hormigón ciclópeo sin excavación,

MAMPOSTERIA y MUROS

Nivelación con ladrillo común

1 De 0,15 m armada,

2 De 0,30 m,

3 De 0,30 m armada,

4 De 0,45 m,

Panderete

1 De 0,07 - 0,10 m

Elevación 0,15 m con ladrillo común

1 De 0,15 m,

2 De 0,15 m armada,

3 De 0,15 m,1 cara vista,

4 De 0,15 m,1 cara vista y lijada,

5 De 0,15 m,1 cara vista con ladrillo laminado,

Elevación 0,20 m con ladrillo común

1 De 0,20 m,

2 De 0,20 m,1 cara vista y lijada,

Elevación 0,30 m con ladrillo común

1 De 0,30 m,

3 De 0,30 m,1 cara vista,

4 De 0,30 m,1 cara vista y lijada,

5 De 0,30 m,1 cara vista con ladrillo laminado,

6 De 0,30 m, 2 caras vistas con ladrillo laminado,

Elevación 0,45 m con ladrillo común

1 De 0,45 m,

2 De 0,45 m de Submuración,

Sardinel

1 Sardinel con ladrillo común,

2 Sardinel con ladrillo laminado,

Pilar

MANO DE OBRA

1 Pilar 30x30 cm, ladrillo común,

2 Pilar 30x30 cm, ladrillo común visto,

3 Pilar 30x30 cm, ladrillo laminado visto,

4 Pilar con bloque H°Ø 30 cm, premoldeado c/ armadura, ml 64.000

5 Pilar 40x40 cm, ladrillo común

6 Pilar 40x40 cm, ladrillo común visto

Elevación con piedra 1 Muro de piedra 0,40 m,

2 Muro de piedra 0,40 m 1 cara vista,

3 Muro de piedra x m3,

4 Muro de contención 0,50 m,

Convocó

1 Muro de ladrillo convocó, 2 caras vistas, m² 39.000

Elevación con ladrillos huecos

1 De 0,10 m,

2 De 0,15 m,

3 De 0,15 m, 1 cara vista,

4 De 0,20 m,

5 De 0,20 m, 1 cara vista,

6 De 0,24 m,

De 0,30 m,

8 De 0,30 m, 1 cara vista,

Elevación estructural con ladrillo portante 1 De 0,15 m,

De 0,20 m,

De 0,30 m,

Elevación con bloques de hormigón

1 De 0,10 m,

2 De 0,15 m,

3 De 0,20 m,

4 De 0,30 m,

5 De 0,40 m,

Servicios para mampostería

Lijada de mampostería para visto,

AISLACION HIDROFUGA

Horizontal sin asfalto (1:3), sin alisada

1 De 0,15 m,

2 De 0,30 m,

Horizontal en “U” con asfalto

1 De 0,15 m,

2 De 0,30 m,

Aislación Hidrófuga

1 De losa/techo plano incluye: contrapiso (7cm), carpeta, pintura asfáltica, colocación membrana o , velo de vidrio y piso de tejuelita

2 Rebaje de losa p/ baño o cocina incluye: contrapiso, carpeta, velo, pintura asfáltica, m² 32.000

3 Pintura asfáltica + trama sobre base,

4 Asfalkote + velo sobre base,

5 Membrana asfáltica

Aislación vertical

1 Azotada hidrófuga, pintura asfáltica y panderete, m² 42.000

2 Pintura asfáltica + trama, m² 25.000

3 Azotada hidrófuga + Pintura asfáltica, m² 25.000

MANO DE OBRA

DINTELES

1 Armado en obra: contínuo dentro de mampostería c/ 2 varillas, ml 12.000

2 Armado en obra: doble armadura sobre aberturas c/ 4 varillas, ml 16.000

3 Colocación de dintel prefabricado, ml 16.000

4 Dintel zuncho de bloque,

5 Colocación de perfil de hierro,

16.000 CONTRAPISOS (no incluye alisada)

Apisonado de Hº de cascotes

1 De 8 cm sobre terreno natural,

2 De 10 cm sobre terreno natural,

3 De 10 cm, con pendiente,

4 De 20 cm,

16.000

19.000

22.000

28.000

5 Apisonado de Hº cascotes con varilla, m² 22.000

6 Apisonado sobre losa Hº Aº e=7cm,

7 Apisonado sobre losa Hº Aº e=6cm,

8 Contrapiso de H° A°, e=7cm

15.000

35.000 REVOQUES

Revoque de paredes

1 A 1 capa común interior / exterior, fratachado o peinado

2 A 1 capa común interior / exterior, fratachado m² o peinado; h=+5.00 m, m² 32.000

3 A 1 capa fino sobre revoque peinado existente, m² 12.000

4 A 2 capas (grueso + fino),

5 A la lona o bolseado,

14.000

6 Salpicado, m² 24.000

7 Base para revestido, 24.000

Azotadas

1 Hidrófuga, espesor = 1 cm x ladrillo común o hueco m² 11.000

2 Hidrófuga, espesor = 1 cm x ladrillo común o hueco; exterior, h=+ 5,00 m, m² 14.000

3 Adherencia, espesor = 0,5 cm x ladrillo hueco m² 7.000

4 Adherencia, espesor = 0,5 cm x ladrillo hueco, h=+ 5,00 m, m² 11.000

Revoque de cielorrasos

1 Azotada p/ adherencia por losa de Hº Aº, e = 0,5 cm m² 9.000

2 A 1 capa fratazado y filtrado sin azotada

3 A 1 capa fratazado y filtrado con azotada,

4 A 2 capas (grueso + fino),con azotada,

5 A 2 capas (grueso + fino),sin azotada,

6 Azotada o base planchada de metal desplegado, m² 14.000

Revoque de vigas / pilares /aristas

1 Revoque de arista o canto,

2 Revoque de babetas o buñas,

3 De mochetas con 2 aristas (0,15x0,15),

4 De goterón en alero,

5 De losa de Hº Aº, (sin azotada )

6 De ductos,

7 De vigas de Hº Aº de 15x20 ó 20x30 cm (incluye azotada + aristas),

9 De vigas de Hº Aº de 20x40 ó 30x50 cm

10 (incluye azotada + aristas),

11 Revoque de pilares 4 caras y aristas,

TECHO METALICO

1 Techo metálico, preparación y montaje

2 Techo metálico termoacústico, preparación y montaje

3 Chapa galv. s/ estructura de tirantes 2x6”,

TECHO DE TEJAS

incluye: maderamen, aislante, caballete y bocateja,

1 De teja española con tejuelón

2 De teja española con tejuelón y limatón,

3 De teja española con tejuelita

4 De teja española sobre machimbre

5 De teja francesa sobre machimbre,

6 De teja francesa vana,

7 Cabriadas de madera, preparación y montaje, ml

8 Cabriadas de madera y planchuelas, preparación y montaje,

9 Montaje de maderamen c/ tirantes 2x5” o 2x6” cepillados, ml 35.000

10 Montaje de vigas,

11 Colocación de machimbre sobre tirantes,

TECHOS VARIOS

1 De chapa de fibrocemento acanalada,

2 De chapa de fibrocemento acanalada autoportante, m²

3 Bovedilla c/ tirantes 2x6”, tejuelitas y H° pobre,

4 De paja, m² 50.000

CIELO RASO

1 De metal desplegado, sin revoque,

2 De machimbre de 1/2 x 3” no incluye cornisa,

3 De machimbre de 1 x 3” no incluye cornisa, m²

4 Cornisa,

4.000 REVESTIMIENTOS

1 De azulejo

2 De azulejo, 10x10 cm,

3 De azulejo (Listel o faja),

4 De ladrillejo,

5 De ladrillejo (ladrillo cortado),

6 De ladrillejo h= +5m,

7 Piedra lajón a escuadra, m²

8 Piedra roja rompecabeza, m² 40.000 9 Piedra blanca rompecabeza, m² 40.000

10 Piedra arenisca blanca o roja pulida en PB, m²

11 Piedra arenisca blanca o roja pulida en PA, m²

12 Piedra abuchada,

13 Piedra laja aserrada,

14 Piedra Wasmosy, m²

15 Empapelado, m² 26.000

16 Machimbre m² 45.000

PISOS

Carpeta o base

1 Para alfombra o cerámica e=2cm, m² 16.000

2 Para alfombra o cerámica en escalones, un 19.000

3 Alisada de cemento e=3cm, m² 26.000

4 Regleado rústico, m² 12.000

5 Alisada sobre contrapiso m² 8.000

6 Banquina p/ placard (contrapiso + carpeta hidrófuga), ml 35.000

Sobre carpeta existente

1 Cerámica esmaltada, P I 5 m² 36.000

2 Cerámica esmaltada en baño, m² 36.000

3 Cerámica esmaltada en escalón, ml 42.000

4 Cerámica porcelanato, m² 40.000

5 Alfombra multipiso, m² 20.000

6 Piso vinílico 30x30, m² 25.000

Sobre contrapiso

1 Baldosa calcárea o canto rodado, m² 28.000

2 Mosaico granítico, m² 28.000

3 Pulido de mosaico granítico, m² 28.000

4 Layota nacional o esmaltada, m² 28.000

5 Veredita calcárea, m² 28.000

6 Ladrillo común, m² 22.000

7 Tejuelita, m² 24.000

8 Baldosón de H°, 40x40 o 50x50 cm, m² 28.000

9 Plancha de granito o mármol,

10 Plancha de mosaico granÍtico,

PISO DE MADERA

1 Parquet a bastón roto o tipo colonial clavado, m² 57.000

2 Parquet de lapacho tarugado, m² 63.000

3 Parquet de machimbre curupa’y, 1 x 3” pulido y lustrado

4 Rasqueteado y encerado

PISO DE PIEDRA

1 Piedra losa rompecabeza con junta tomada,

2 Piedra losa rectangular,

3 Piedra losa 30x30, 30x40 y 40x40 cm

4 Piedra Ardosia,

5 Piedra laja,

6 Piedra rústica roja Misiones, m²

7 Piedra triturada esparcida a mano,

8 Piedra adoquín

PISO METALICO colocación

72.000

1 Tapa metálica en cámara de inspección, un 47.000

2 Rejilla en cámara de inspección

1 Empedrado, h=0,20 m sin cordón,

2 Empedrado, h=0,40 m sin cordón,

3 Colocación de cordón Hº Prefabricado

ZOCALOS

Cámara séptica (1,00x1,60x1,20 m) con excavación un 1.100.000

Pozo absorvente (Ø: 1.50 m x altura 3,00 m) con excavación un 1.800.000

Desagüe para baño

Baño completo standard, un

Baño completo con bañera, un

Baño de servicio, un

Baño social, un

Para pileta de lavar y lavarropas, un 170.000

Para pileta de cocina (incluye desengrasador y caja sifonada), un 135.000

Desagüe Caños de H° y ductos subterraneos

Caño H° 100 cm, ml 130.000

Caño H° 80 cm, ml 100.000

Caño H° 60 cm, ml 85.000

Ducto subterráneo s/ tapa 10 x 20 cm

Ducto subterráneo s/ tapa 20 x 40 cm

Agua corriente

(incluye excavación, colocación y protección),

Caño PVC 1” ml 17.000

Caño PVC 3/4, ml 14.000

Caño PVC ½, ml 9.000

Instalación de canilla de patio, + 5 ml de cañería, un 68.000

Instalación agua fría

Para baño completo, un 440.000

Para baño de servicio, un 310.000

Para baño social, un 170.000

Para pileta de lavar, un 205.000

Para pileta de cocina, un 135.000

Instalación agua caliente y fría

Para pileta de cocina, un 270.000

Para baño completo, un 750.000

COLOCACION ARTEFACTOS

MANO DE OBRA

Artefactos sanitarios x boca bc 125.000

Baño completo, 125.000 x 4 = un 500.000

Baño de servicio, 125.000 x 2 = un 250.000

Baño social, 125.000 x 2 = un 250.000

Pileta de cocina, un 130.000

Pileta de lavar, un 130.000

Bañera común, un 340.000

Bañera hidromasaje, un 560.000

Accesorios de baño, (jabonera, percha, etc), un 24.000

Colocación de calefón un 190.000

Colocación de ducha eléctrica un 35.000

INSTALACION ELECTRICA

Boca de luz, bc 57.000 Trabajo de Albañilería

Pilar de mampostería p/ medidor 0,45x0,45 x1,70 m, no incluye cimiento ni nivelación un 513.000

Registro eléctrico c/ drenaje y tapa de 30x30x40 cm, un 114.000

Idem anterior 40x40x70 cm un 142.500

Registro eléctrico 25x25x40 un 110.000

Colocación caja aire acondicionado, un 75.000

Puesto de medición provisorio

Monofásico con limitadora hasta 25 A, 12 boc

Trifásico con limitadora hasta 45 A,

Puesto de medición definitivo

boc en mampostería

Monofásico con limitadora hasta 40 A, 3 boc

Trifásico con limitadora hasta 45 A, 2 boc

Tablero principal o seccional

Colocación caja hasta 40x50 cm, embutida en mampostería

3 boc

Disyuntor TM de corte principal o seccional o de circuito unipolar, 2 boc

Idem anterior tripolar, 3 boc

Instalación de interruptor diferencial,

Líneas subterráneas:

incluye excavación a una profundidad de 0,50 m en tierra firme y sin piedra, instalación de eléctroducto c/ protección mecánica y cableado

de 4 a 10

Trifásica de 16 a 25 mm,

Línea embutida en mampostería

Incluye instalación de electroducto y cableado

Trifásica de 16 a 25 mm,

Electroductos embutidos en mampostería

Sin cableado

De 5/8”,

de 4 a 10

Líneas Aereas Monofásica de 4 a 10 mm,

Trifásica de 4 a 10 mm,

ml 10.000

ml 3.000

De 1/2”, ml 3.000

De 3/4”, ml 3.000

De 1”,

Lámparas y tomas de corriente embutidas en mampostería hasta 5 m del tablero

Una lampara con su interruptor, 1 bc

Una lámpara c/ 2 llaves de combinación en escalera, 2 bc

Una Toma corriente, 1 bc

Por llave de 4 vías o intermedia adicional, 1 bc

Circuito independiente

Circuito p/ AA sin montaje de aparato ni abertura de mampostería; hasta 5 m del tablero (mismo que recorran cañerías con otros circuitos), 4 bc

Circuito p/ calefón o ducha eléctrica, 4 bc

idem anterior

Circuito monofásico p/ motobomba c/ cable 4mm hasta 5 m del tablero, 4 bc

Circuitos de señalización, comunicación y otros, hasta 5 m del tablero

Boca p/ teléfono 1 bc

Circuito para antena de TV, 1 bc

Circuito de música funcional, 1 bc

Circuito de intercomunicadores, 1 bc

Circuito de timbre con su pulsador, 2 bc

3.000

CARPINTERIA DE ALUMINIO

Colocación de pre marco de aluminio:

CARPINTERIA DE MADERA Colocaciones de:

Puerta tablero principal (hoja, manijón y visor) un 135.000

Ventana persiana o vidriera 0,65 x 1,00 mt un 40.000

Contramarco, ml 11.000

Pergolado, montaje un 90.000

CARPINTERIA METALICA

Colocaciones de:

De marco chapa doblada 0,80x2,10 m, un 70.000

De marco chapa doblada 1,50x1,20 m, un 95.000

De marco chapa doblada con relleno. un 95.000

De marco metálico - ángulo, un 70.000

De guías metálicas y taparrollo p/ cortina de enrollar, un 280.000

De reja de hierro entre marcos, un 47.000

De reja de hierro aplicada a la pared, un 65.000

Portón de hierro 1,00x1,50 m, un 120.000

Balancín chico 40x40 cm sin revoque, un 50.000

Balancín med 1,00x1,50 m sin revoque, un 80.000

Balancín grande 2,00x1,80 m sin revoque, un 105.000

Portón cochera de 3,00x1,50 m, un 200.000

Baranda de escalera metálica ml 25.000

Pasamanos, ml 19.000

Escalera metálica, un 65.000

Puerta metálica corta fuego, un 185.000

Puerta metálica mosquitera, un 110.000

Colocación de ángulos meálicos, cantoneras ml 10.000

PINTURA

Pintura de pared

A la cal blanca,

A la cal color,

Al látex interior/exterior con enduido, m² 26.000

Al látex interior/exterior sin enduido, m² 18.000

Al látex exterior con enduido en altura m² 31.000

Al látex exterior sin enduido en altura m² 20.000

Al esmalte sintético interior/exterior con enduido, m² 25.000

Repintado de pared

Al látex interior o exterior, m² 10.000

Al látex interior o exterior altura + de 5m, m² 12.000

Enduído

De pared, m² 10.000 De abertura de madera, m² 16.000

Techo

Tejuelita a la cal y maderamem c/ esmalte sintético, m² 18.000

Tejuelón y maderamem barnizado, m² 18.000

Tejuelita o tejuelón barnizado y maderamem con esmalte sintético, m² 18.000

Pintura de alero de 0,60 m, P A

Cielorrasos

Al látex con fijador sin enduido, m² 14.000

Al látex con enduido,

A la cal,

Barnizado de machimbre,

Aberturas de madera Marco y hoja con esmalte sintético,

Marco y hoja con barniz,

Aberturas metálicas

MANO DE OBRA

Marco y hoja c/ cromato y esmalte sintético, m² 18.000

Rejas, barandas y balancines c/ cromato y esmalte sint.,

Tejido de metal, m² 18.000

Canaletas y bajadas

Con base p/ galvanizado y esmalte sintético, ml 11.000

Ladrillo visto, hormigón y piedra

Limpieza, curado y siliconado o barnizado, m² 16.000

Limpieza, curado y siliconado o barnizado en altura, m² 18.000

Limpieza, curado y pintura a la cal, m² 13.000

Pintura texturada

Pared texturada

Pintura en silleta

Hasta 30 m de altura,

Desde 30 a 70 m de altura,

Pintura de piso

Pintura con epoxi

VARIOS Moldura doble,

Colocación balaustre sencillo,

Tanque de fibra de vidrio 500 l,

de fibra de vidrio 1000 l,

JORNALES Y HONORARIOS POR SERVICIOS

JORNAL DE MERCADO

SECTOR DE LA CONSTRUCCIÓN - salario legal

MANO DE OBRA

Bolsa de subcontratistas

* La Bolsa de Subcontratistas es una colaboración de la revista con los profesionales y trabajadores de la construcción, teniendo un pequeño costo los anuncios en recuadro. La calidad del servicio, así como la relación contractual, escapa a nuestro compromiso con los apreciados lectores.

Agrimensura

Aire acondicionado

Instalación / Reparación

Bracho, Javier 0981 879749 / 0985 464491

Brítez, Santiago 0981 117524

González, Pedro 644661 / 0982 450866

Maciel, Pablo 0971 939890 / 0981 651205

Ojeda, Hugo 623766 / 0981 868289

Solis, Gabriel 0981 486233

Velázquez, Santiago 0981 843738

Aislación térmica

Duarte, Eleno 0983 338939

Marín, Dionisio 0983 731450

Alambrados

Bentrom, Román 991255

Riveros, Mario 0992 993007 / 0985 887621

Albañilería

Julio Cristaldo

Cel.: 0986 188 514

Benítez, Ramón 0982 370231

Bogarín, Lidio 0971 947177

Bruno, Alejandro 0994 314460

Cabral, Andrés 0982 896561

Cáceres, Carlos 0982 132349

Cazal, Alexis 0981 343423

Esquivel, Rogelio 0981 456697

Fernández, Antonio 515629 / 0981 465940

Garcete, Palermo 0981 965660

Gill, Enrique 642559 / 0981 303974

Giménez, Pablo 0981 951645

Godoy, Eladio 0983 333622

González, Aníbal 0985 222147

González, Benito 0982 248256

Jara, Vidal 0981 434787 / 0981 876489

Jiménez, Antonio 514989 / 0981 660190

López, Osvaldo 0981 836904

Maidana, Sinforiano 0983 380486

Marín, Dionisio 0983 731450

Moreno, Ramón 0981 785546

Ocampos, Higinio 0984 926892

Ortega, Mildesis 0984 369 652 / 0981 594 893

Paniagua, Derlis 0981 182465

Peralta, Raúl 0981 501323

Rando, Gerardo 0985 766 650

Ramírez, Amado 374276 / 0981 485609

Riveros, Carlos 0981 521771

Rojas, Juan 0971 950157

Ruiz, Saturnino 0984 273997

Sosa, Edgar 0984 928914

Vera, Néstor 0981 103889 Animación y perspectiva

Abbate, Alejandra 0982 886227

González, Jorge 0986 552 000 / 0991 880 133

Pérez, Rafael 0981 476743

Aprobación de planos municipales

Benítez, Oscar 0971 340345

Chaparro, Miguel 0961 586457

Fernández, María 0981 932043

Rolón, Oscar 0981 445601

Robledo, Gustavo 0981 939512

Azulejos - colocación

Armando, José 0995 639335

Benitez, Alfredo 0981 520214

Benitez, Antonio 0981 945353

Ferreira, Gustavo 285663 / 0981 881211

Figueredo, Miguel 0981 479221

Godoy, Eladio 0983 333622

González, Benito 0982 248256

Jiménez, Antonio 514989 / 0981 660190

Medina, Antonio 0983 247516

Moragas, Carmelo 0985 268 497 / 0981 547 754

Noguera, Higinio 0981 564472

Ortíz, Vidal 509475

Palacios, Leonardo 0983 207676

Vázquez, Ever 0981 655799

Canaletas

Altamirano, Vicente 0981 851077

Arzamendia, Hugo 0981 126471

Canto rodado (carga en obra)

Figueredo, Catalino 0981 763438

Figueredo, Miguel 0981 479221

Carpintería

Aquino, Miguel 0986 858685

Bordón, Marcial 0971 277041

Franco, Marcos 0982 279166

Olmedo, Miguel 0981 526079

Carpinteros de obra / techistas

Benítez, Aniano 0984 478256

Cáceres, Carlos 0982 132349

González, Aníbal 0985 222147

Jara, Oscar 780642 / 0981 184687

Mora, Pascual 0981 963459

Sosa, Carlos 0992 299951

Valdovinos, Pedro 0981 234113 Cascadas

Acevedo, Patricio 0981 412542

Aguilera, Gabriel 0985 101795

Cepillado en obra

Jara, Oscar 780642 / 0981 184687 Circuito cerrado

Colocación de empapelados

Coronel,

Colocación de Losarap

Alarcón, Julio 501130 /0983 367 697 Gill, Enrique 642559 / 0981 303974

Cielorrasos - Durlock/PVC/Yeso

Agüero, Benjamín 0985 740977

Agüero, Jorge 0985 417456

Bentolilla, Esteban 480203 / 0981 385207

Careaga, Víctor 373410 / 0971 936858

Colocación de Parquet

García, Juan 0981 571424

Sosa, Carlos 0992 299951

Colocación de Piedra revestidos / molduras

Aveiro, Gerónimo 0985 242563

Figueredo, Miguel 0981 479221

Martínez, Diego 0984 560 841

Ortíz, Eduardo 0971 379011

Quiñónez, Expédito 0983 356501

Ríos, Francisco 0981 417309

Rojas, Juan 0971 950157

Colocacion de Pisos vinílicos / alfombras

Careaga, Víctor 373410 / 0971 936858

Coronel, Derlis 295479 / 0981 154662

Coronel, Julián 295479 / 0984 580876

Pavón, César 327 6331 / 0982 354987

Sánchez, Alberto 443477 / 0981 503266

Cómputo métrico

Benítez, Oscar 0971 340345

González, Jorge Arq 0986 552000 / 0991 880133

Nuñez, Andrea 0982 170442

Russo, Walter Ing 0991 789561

Vallejos S, Cristina Arq 0982 975371 / 0981 561645

Constructores de obra

Acosta Riveros, Jorge A 0984 557649 / 0991 978 642

Agüero, Teófilo 524755 / 0983 942516

Añazco, Carlos 0981 457301

Benítez, Aniano 0984 478256

Benítez, Juan 751724 / 0981 488904

Benítez, Ramón 0982 370231

Caballero, Oscar 0972 131247

Cabral, Andrés 0982 896 561

Cáceres, Carlos 0982 132349

Cantero, Domingo 0981 244946

Dávalos,Hermes 0981 942718

Escobar, Gustavo 0981 163551

Espinoza, Mauricio 0982 781445

Fernández, Antonio 515629 / 0981 465940

Ferreira, Wilfrido 0981 400128 / 0981 786614

Figueredo, Miguel 0981 479221

Garcete, Palermo 0981 965660

Gill, Enrique 642559 / 0981 303974

Giménez, Leonardo 0981 530453

González, Aníbal 0985 222147

González, Miguel H 0961 889646

González, Rumildo 0971 350004

Gutiérrez, De los Santos 0981 390538

Hucedo, Carlos 0982 178592

Jara, Vidal 0981 434787 / 0981 876489

Jiménez, Antonio 514989 / 0981 660190

Maciel, Milciades 0981 943482

Maidana,Sinforiano 0983 380486

Meza, Esteban 0992 383232

Moreno, Ramón 0981 785546

Narváez, Arsenio 0981 939452

Noguera, Higinio 0981 564472

Ortiz Barrios, César 642239 / 0983 358854

Ortíz, Vidal 509475 / 0971 720887

Oviedo, Richard 0981 291070

Paniagua, Derlis 0981 182465

Quiñónez, Expedito 0983 356501

Quiroga, Pedro 0985 938774

Rando, Gerardo 0985 766 650

Recalde, César 0981 170159

Riveros, Carlos 0981 521771

Riveros, Mario 0992 993007 / 0985 887621

Robledo,Gustavo 0981 939512

Rodríguez, Buenaventura 0972 509828

Rojas, Bernardo 302692 / 0981 531143

Rojas, Juan 0971 950157

MANO DE OBRA

Romero, Melchor 0983 470631

Ruiz, Saturnino 0984 273997

Sánchez, Benito 0983 488540

Sánchez, Ricardo 0981 145907

Sánchez, Yisenia 0976 123426 / 0985 297794

Sosa, Edgar 0984 928914

Valdovinos, Pedro 0981 234113

Vega, Augusto 310352 / 0971 972699

Velázquez, Jorge 0983 507243

Velázquez, Santiago 0981 843738

Vera, Néstor 0981 103889

Contratistas de hormigón

Acosta Riveros, Jorge A 0984 557649 / 0991 978 642

Arévalos, Guillermo 752601 / 0981 485307

Benítez, Oscar 0971 340345

Cabral, Andrés 0982 896561

Esquivel, Rogelio 0981 456697

Fernández, Antonio 515629 / 0981 465940

Fernández, Silvino 755284 / 0981 549523

Figueredo, Miguel 0981 479221

Garcete, Palermo 0981 965660

Giménez, Leonardo 0981 530453

González, Aníbal 0985 222147

González, Miguel H 0961 889646

González, Rumildo 0971 350004

Maidana, Sinforiano 0983 380486

Meza, Esteban 0992 383232

Ocampos, Higinio 0984 926892

Olmedo, Julio 0981 652772

Ortega, Mildesis 0984 369652 / 0981 594893

Paniagua, Derlis 0981 182465

Peralta, Raúl 0981 501323

Recalde, César 0981 170159

Torres, Arístides 0981 865518

Velázquez, Santiago 0981 843738

Vera, Néstor 0981 103889

Cortinas

Aguilera, Gabriel 0985 101795

Ayala, Ever 0983 711979

Maldonado, María Estela 0981 561631

Urbieta, Mónica 0981 476743

Demolición

Caballero, Oscar 0972 131247

Herrera, Cristino 0981 976488 / 0984 894128

Vallejos, Cándido 0991 233001

Villalba, Javier 0985 491498

Destronque de árboles

Herrera, Cristino 0981 976488 / 0984 894128

Vera, Néstor 0981 103889

Dibujantes técnicos

Arnedo, Ana Arq 0981 655014

Jacobo, Nora 0971 534417

Maidana, María B. 0991 988215

Martínez, Francisco 0786 230619 / 0975 681680

Montiel, Gustavo 586343 / 0982 488928

Rodriguez, Buenaventura 0972 509828

Rolón, Manuel 0986 909404

Rolón, Oscar 0981 445601

Digitalización de planos

Abbate, Alejandra 0982 886227

Aponte, Andrea 0971 190781

Arnedo, Ana Arq 0981 655014

Arza, Andrea Arq 0981 966786

Coronel, Renzo 0971 362856 / 0986 656577

Escobar, Gustavo 0981 163551

Ferreira, José 0981 915492

González, Jorge 0986 552 000 / 0991 880133

Maidana, María B. 0991 988215

Montiel, Gustavo 586343 / 0982 488928

Nuñez, Andrea 0982 170442

Nuñez, Miguel 0982 634026

Quintana, Jorge 290680 / 0981 426037

Robledo, Gustavo 0981 939512

Rolón, Manuel 0986 909404

Rolón, Oscar 0981 445601

Sánchez, Yisenia 0976 123426 / 0985 297794

Toledo, Milena 0981 201561

Divisorias interiores / Mamparas

Bentolilla, Esteban 480203 / 0981 385207

Careaga, Víctor 373410 / 0971 936858

Pavón, César 327 6331 / 0982 354987

Dorado a la hoja

Chávez, Ada 0981 838274

Drenaje

Caballero, Rodrigo 0981 257702

Velázquez, Santiago 0981 843738

Electricistas

Aquino, Roberto 521610/ 0971 313847

Benítez, Cándido 0981 496207

Bracho, Javier 0981 879749 0985 464491

Brítez, Santiago 0981 117524

Cáceres, Isidro 0981 927945

Chaparro, Miguel 0961 586457

Castillo, Marco 0981 578068

Coronel, Derlis 295479 / 0984 580876

Coronel, Julián 295479 / 0981 154662 Ever Pereira 0983 460 494

MANO DE OBRA

Delgadillo, Alberto 0981 844429

Delgadillo, Francisco 0982 335870

Díaz, Carlos 572156 / 0982 464967

Duarte, Gustavo 0983 191182

Esquivel, Rogelio 0981 456697

Galarza, Ramón 0981 230273

Garcete, Palermo 0981 965660

Giménez, Carlos 0981 741087

Giménez, Flaminio 0971 227480 / 0983 841240

González, Pedro 644661 / 0982 450866

Hucedo, Carlos 0982 178592

León, Cañete 0983 800938 / 0981 561409

Maciel, Pablo 0971 939890 / 0981 651205

Martínez, Gerardo 0981 493190

Montanía, Ylber 0981 474025

Núñez, Cayo 0983 404670

Otello Roa, Félix 780691 / 0972 822577

Paniagua, Derlis 0981 182465

Parini, Fernando 0983 657565

Ramírez, Dario 0992 863100 / 0991 677208

Ramírez, Roberto 944740 / 0981 494624

Rolón, Carlos 0982 751296

Ruiz, Carlos 0981 896430

Sanabria, Jorge 0984 154375

Sartorio, Jorge 0981 939172

Solis, Gabriel 0981 486233

Toñánez, Sebastián 0981 912516

Valenzuela, Luis 0982 127968 / 0985 942676

Vallejos, Cándido 0991 233001

Villaverde, Silvino 0992 396855

Empedrados y adoquinados

Santacruz, Pablo Ing 0981 105004

Fumigación

Herrera, Cristino 0981 976488 / 0984 894128

Herrería / estructuras metálicas

Arzamendia, Hugo 0981 126471

Bordón, Marcial 0971 277041

Bracho, Javier 0981 879749 / 0985 464491

Cazal, Mario 0982 878501

Delvalle, Christian 0981 853884

Garcete, Palermo 0981 965660

Herrera, Edgar 0982 272468

Maldonado, María Estela 0981 561631

Orrego, Cándido 0984 958981

Hojalatero

Cazal, Alexis 0981 343423

Hornos, chimeneas, estufas, parrillas, tatacuá

Acevedo A., Patricio 0981 412542

Caballero, Rodrigo 0981 257702

Vázquez, Ever 0981 655799

Impermeabilización

Duarte, Eleno 0983 338939

López, Ramón 0981 569767

Marín, Dionisio 0983 731450

Martínez, Braulio 0981 193232

Ramírez, Amado 374276 / 0981 485609

Ruffinelli, Miguel 0981 449955

Velázquez, Santiago 0981 843738

Jardineros

Aguilera, Gabriel 0985 101795

Basualdo, Javier 0982 311208

Duarte, Tomás 0985 941909

Villaverde, Silvino 0992 396855

Limpieza

de patios

Bentrom, Román 991255 Herrera, Cristino 0981 976488 / 0984 894128

Riveros, Mario 0985 887621

Mesadas de cocina / bañoMarmolería

Jimenez, Miguel Angel 0981 541146

Montaje de transformadores y motores

Benítez, Genaro 0981 496837

Díaz, Carlos 572156 / 0982 464967

Mancuello, Fernando 0991 201918

Morales, Gustavo 0981 893881

Motoserrista / poda de árboles

Basualdo, Javier 0982 311208

Bentrom, Román 991255

Duarte, Tomás 0985 941909

Riveros, Mario 0992 993007 / 0985 887621

Muros verdes / jardines verticales

Arzamendia, Hugo 0981

Bogarín, Héctor 0985 959921

Borja, Francisco 0991 820078

Bruno, Alejandro 0994 314460

Careaga, Víctor 373410 / 0971 936858

Cazal, Alexis 0981 343423

Garcete, Palermo 0981 965660

Gauto, Miguel 0981 938415

Giménez, Hernando 0981 419674

Giménez, José 0993 353888 / 0981 604638

Giménez, Leonardo 0981 530453

Godoy, Pedro 0981 596914

González, Aníbal 0985 222147

Herrera, Edgar 0982 272468

Ibarra, Jorge 0961 842883

López, Ramón 0981 569767

Marín, Dionisio 0983 731450

Martínez, Diego 0984 560 841

Medina, Germán 0982 320250

Mereles, Néstor 0985 653204

Miranda, Félix 0981 514763

Morínigo, Miguel 973372 / 0981 474261

Noguera, Higinio 0981 564472

Ojeda, Darío 0971 223440

Oviedo, Richard 0981 291070

Paniagua, Derlis 0981 182465

Ramírez, Amado 374276 / 0981 485609

Ramírez, Ladislao 0981 766680

Reyes, Luis 0981 231612

Riveros G., Carlos 0981 521771

Riveros, Mario 0992 993007 / 0985 887621

Rojas, Bernardo 302692 / 0981 531143

Romero, Melchor 0983

Pintura texturada

Piscinas - Construcción y

Piseros

Caballero, Rodrigo 0981 257702

Fernández, José 0982 627836

Giménez, Leonardo 0981 530453

Godoy, Eladio 0983 333622

González, Benito 0982 248256

Jiménez, Antonio 0981 660190

Maciel, Milciades 0981 943482

Martínez, Diego 0984 560 841

Medina, Antonio 0983 247516

Moragas, Carmelo 0985 268497

Noguera, Higinio 0981 564472

Palacios, Leonardo 0983 207676

Rando, Gerardo 0985 766 650

Riveros, Carlos 0981 521771

Rojas, Juan 0971 950157

Samaniego,Jorge 0982 986 757 0994 759925

Pisos técnicos (sobre elevados)

Agüero, Benjamín 0985 740977

Plomeros

Agüero, Benjamín 0985 740977

Aguilera, Gabriel 0985 101795

Alcaráz, Andrés 0971 956096

Altamirano, Vicente 0981 851077

Báez, Raimundo 0981 609001

Bracho, Javier 0985 464491

Caje, Rodolfo A. 0984 234423

Cazal, Mario 0982 878501

Chávez, Jorge 0981 823284

Escobar, Carlos 0971 357473

Fariña, Antonio 0971 231175

Ferreira, Gustavo 0981 881211

Garcete, Palermo 0981 965660

Giménez, Pablo 0981 951645

Herrera, Edgar 0982 272468

Hucedo, Carlos 0982 178592

López, Víctor M. 0971 760390

Medina, Alfredo 0981 468756

Medina, Germán 0982 320250

Moragas, Carmelo 0985 268497

Moragas, Victorino 0981 892513

Noguera, Higinio 0981 564472

Núñez, Cayo 0983 404670

Ortiz, Vidal 509475

Paniagua, Derlis 0981 182465

Rando, Gerardo 0985 766 650

Riveros G., Carlos 0981 521771

Riveros, Mario 0992 993007

Romero, Melchor 0983 470631

Ruíz, Carlos 0981 896430

Vallejos, Cándido 0991 233001

Villalba, Javier 0985 491498

Villaverde, Silvino 0992 396855

Ploteo de planos

Coronel, Renzo 0986 656577 Prevención contra

MANO DE OBRA

Caje, Rodolfo A. 0984 234423

Manchini, César 0981 245725

Proyecto arquitectónico

Abbate, Alejandra 0982 886227

Aponte, Andrea 0971 190781

Arnedo, Ana Arq 0981 655014

Coronel, Renzo 0971 362856

Fernández, María Arq 0981 932043

Martínez, Liz Arq 0981 926697

Nuñez, Andrea 0982 170442

Pérez, Rafael 0981 476743

Pulidor

de parquet

Fernández, José 0982 627836

Pulidor de piso granítico y de H˚

Caballero, Rodrigo 0981 257702

Fernández, José 0982 627836

Refrigeración / AA / camaras frigorificas/ heladeras

Brítez, Santiago 0981 117524

Galarza, Ramón 0981 230273

Hucedo, Carlos 0982 178592

León, Cañete 0983 800938

Ruiz, Carlos 0981 896430

Sartorio, Jorge 0981 939172

Reparación / instalación de electrobombas para pozos

Escobar, Carlos 644497 / 0971 357473

Moragas, Carmelo 0985 268497

Restauración de muebles

Aparici, Mari 0981 500065

Seguridad

Seguridad

Sotomayor A, Edgar Arq

Moragas, Carmelo

Topógrafos Guillén,

Trabajos en autocad

Ferreira, José 0981 915492

Jacobo, Nora 0971 534417

Maciel, Shirley 0981 249598

Maidana, María B. 0991 988215

Martínez, Liz Arq 0981 926697

Montiel, Gustavo 0982 488928

Navarro, Eduardo 0972 265312

Quintana, Jorge 0981 426037

Recalde, César 0981 170159

Robledo, Gustavo 0981 939512

Toledo, Milena 0981 201561

Ventilación industrial

Ojeda, Hugo 0981

Losa fck=21MPa

COSTEO DE OBRA

TRABAJOS PRELIMINARES

Relleno y Compactación

Tierra gorda, m3

Mano de obra, m3 1,00 44.000 44.000

Total por: m3

Cartel de Obra (de 1.40x2.80m con marco metálico y lona. A retirar y sin colocación)

Cartel de obra, un

Total por: un

Vallado de Obra

Chapa cincalum Nº 28, un 0,50

2.44x0,90,

Puntal de eucalipto pulg/

Clavo con cabeza de un

plomo,

Encadenado Inferior 13x20 en PB

Encadenado 13x30 cm

ESTRUCTURAS DE HORMIGON ARMADO

Zapata fck=18 MPa

Encadenado 30x30 cm

Columna fck=21 MPa

Escalera de HºAº fck=21MPa15 escalones de 0.30x1.10m y 1 descanso

Viga fck=21MPa

Losa Rap h=12+5=17cm, luz hasta 4,80m (1:2:3,5)

Losa Rap h=20+4=24cm, luz hasta 4,70 m (1:2:3,5)

Cimiento PBC sin cal (1:12) m3

Cimiento de H° de Cascotes - Tierra Gorda

Losa Listalosa

Cemento

Piso HºAº fck=21MPa - Tráfico ligero 10 cm Cemento tipo 1,

Cimiento de H° de Cascotes - Arena Lavada

1” a 7”, kg 0,40 18.000 7.200

kg 0,35 19.850

SIKAFLEX Sellador de pomo 0,33 57.000 18.810 juntas - 300ml,

Ciclópeo (1:3:6)

triturada de IV, tn

MAMPOSTERIAS

De Nivelación

Con ladrillo común y junta de 2 cm

De 0.30 m de ancho (1:2:8) con cemento Tipo 1

Ladrillo común, un

tipo 1, kg

lavada,

De 0.30 m armada (1:4) con cemento Tipo 1

Ladrillo común, un 122 700 85.400 Cemento tipo 1, kg 16,0 1.100 17.600

FUNDACIONES

Cimiento PBC con cal (1/2:1:4) Piedra

De 0.45 m de ancho (1:2:8) con cemento Tipo 1

Ladrillo común, un

COSTEO DE OBRA

De Elevación

Con ladrllo común y junta de 2 cm

De 0.15 m (1:2:10) con cemento tipo 1

Ladrillo

De 0.15 m (1:2:10) con cemento tipo 1 - A la vista

Con Ladrillos Cerámicos Huecos y junta de 1,5

De 0.15 m (1:2:8) con cemento tipo 1

Ladrillo 6 tubos de 1ra, un

12x18x25 cm Ita Yby,

De 0.20 m (1:2:10) con cemento tipo 1

Ladrillo

De 0.20 m (1:2:10) con cemento tipo 1 - A la vista

Ladrillo

De 0.30 m (1:2:10) con cemento tipo 1

Ladrillo común,

De 0.07 m (1:2:10) con cemento tipo 1 y junta de 1.5 cm

Ladrillo

De Elevación

De 0.15 m (1:2:8) 1 cara vista con cemento tipo 1

Ladrillo 6 tubos de 1ra, un 20,0 1.298

12x18x25 cm Ita Yby,

De 0.20 m (1:2:8) m con cemento tipo 1

Ladrillo hueco un

18x18x25 Ita Yby

De 0.20 m (1:2:8) con cemento tipo 1

Ladrillo 6 tubos de 1ra, un

8x18x25 cm Ita Yby

De 0.15 m (1:2:8) con cemento tipo 1 Ladrillo de 1ra A,

6x12x25 cm Ita Yby,

Elevaciones Varias

Sardinel de Ladrillos Comunes

Sardinel de Ladrillos Laminados

Ladrillo laminado Ita Yby un 14,0 1.265 17.710

1ra A, 6x12x25 cm

Cemento tipo 1,

Ladrillo Convocó

Ladrillo convocó recto un

de 1ra, 19x19x10 cm Yoayu

tipo 1,

Muro de Piedra Bruta de 30 cm (1/2:1:4)

AISLACION

COSTEO DE OBRA

Horizontal 0.30 con asfalto Cemento tipo 1,

Horizontal 0.15 con asfalto

Cemento tipo 1, kg 1,00 1.100 1.100 Arena lavada, m3 0,02 65.000

Vertical con Panderete 0.15 m Ladrillo común, un 27,0

De Losa con Piso de Tejuelita Prensada

Pilar de Ladrillo Común 30x30 (1:1:6)

Pilar de Ladrillo Común 30x30 (1:1:6) - A la vista

Ladrillo común un

Muralla de Ladrillo Común (e=0.15m, h=2.00m, con pilares de 0.30 x 0.30 cada 2.00m)

De Losa Para Baño

DINTELES

De Varilla Sobre Abertura

De Hormigón Prefabricado

0.30x0.30 m a la vista,

COSTEO DE OBRA

CONTRAPISOS

De 7 cm (1/4:1:4:6) Cemento tipo 1,

De 10 cm (1/4:1:4:6)

De 20 cm en Losa Sanitaria

TECHOS

Teja Española sobre Tejuelón c/ Madera de Ybyrapyta

Teja española Yoayu un

x

Teja Francesa, Marsellesa o Romana

Machimbre

REVOQUES

De Paredes

A 1 Capa, Espesor 1.5 cm (1:4:16) con hidrófugo

Cemento

A 1 Capa, Espesor 1.5 cm (1:4:16) s/ hidrófugo, m2 29.850

Salpicado (1:3)

Cemento tipo 1, kg 3,00 1.100 3.300

Arena lavada, m3 0,01 65.000 650

Ceresita hidrófugo, kg 0,25

Azotada Impermeable (1:3), Espesor 0.5 cm

Cemento tipo 1, kg 2,70 1.100 2.970

Arena lavada, m3 0,01 65.000 650

Ceresita hidrófugo, kg 0,30 6.150 1.845

Mano de obra, m2 1,00 7.000 7.000

Total por: m2 12.465

De Cielorrasos (1:4:12) Cemento

Chapa N° 28 s/ estructura de caños metálicos

Chapa N° 28 s/ Estructura de Varillas torsionadas

Chapa Nº

Chapa de Fibrocemento Ondulada 6 mm

Mosaico Graníto Lavado (para exterior 30x30cm)

TECHO METÁLICO CON CHAPA TRAPEZOIDAL

Separación entre correas 1,20 m

Varios incluye pintura, electrodo, aguarras, discos Chapa trapezoidal N°27 0.40 mm 1.05 x

de 1 1/4

(ancho util 0.98)

Cerámica Esmaltada

TECHO METÁLICO CON CHAPA TERMOACUSTICA

Con cabriada de 40 x 12 cm. No incluye pilares.

Chapa con isopor 30 mm Galva/Marfil Econml

C 100x38 1.80mm

Entrepiso de Madera

Tirante de ybyrapyta

PISOS

Baldosa Calcárea

Baldosa

Mosaico Granítico (base gris 30x30cm)

Cemento tipo 1, kg 8,00 1.100 8.800

Cal triturada, kg 7,00 1.225 8.575

Arena lavada, m3 0,03 65.000 1.950

Pastina base gris, kg 0,75 6.000 4.500

Mano de obra pulido, m2 1,00 26.000 26.000

Ceramica 45x45cm

Layota 28x28cm

Plancha para Revestido de Escalera

Piedra Losa Rompecabeza

COSTEO DE OBRA

Piedra losa Blanca Cuadrada Pulida

Piedra losa blanca m2 1,00 95.000 95.000 cuadrada pulida, Cemento tipo 1,

Calcáreo Base Gris

Alisada de Cemento

Madera 3/4 x 3”, Zocalo de cedro,

Alfombra

Baldosones de Hormigón (40x40x3cm)

Baldosón

Cerámica Esmaltada

Carpeta para Piso Cerámico o Alfombra

Mosaico Granítico (base blanca pulido 10x30cm) Zócalo

Alfombra (2mm sin carpeta)

Alfombra multipiso, m2 1,10

Empedrado

Piedra bruta blanca, m3 0,20 150.000 30.000 Arena lavada, m3 0,15 65.000 9.750

Ripio de piedra, tn 0,07 70.000 4.900

Mano de obra,

Hormigón Armado 12 cm Cemento

Layota 28x10cm

CIELORRASO

De machimbre c/ armazón de madera, no incluye corniza

Liston de cedro 1x2”, ml 10,0 5.000 50.000

Machimbre

REVESTIDOS

“No incluye la base previa”

Piso Pared Cecafi Cecafi 32 x57cm m2

Porcelanato 60 x 60 cm

Piso Pared 31 x 31 cm

Ladrillejo

Ladrillejo de 1ra Yoayu

Piedra Laja Fina (1 a 2 cm de espesor)

Piedra laja fina, m2 1,05 50.000 52.500 Cemento tipo 1, kg 3,00 1.100 3.300 Cal triturada, kg 2,50

DESAGÜE CLOACAL Y PLUVIAL

Boca Desagüe Abierta 20x20x20cm

Ladrillo común, un

Boca Desagüe Abierta 30x30x30cm

Ladrillo

Boca Desagüe Abierta 40x40x40cm

Ladrillo

Registro 30x30x30cm

Ladrillo común,

Registro 40x40x40cm

Registro 60x60x50cm

Caño

Caño PVC 100mm Caño

Caño de Hormigón 50cm, Roto Comprimido

Caño de Hormigón 60cm, Roto Comprimido

COSTEO DE OBRA

Caño de 80cm Hº Aº Vibrado Simple - Macho/Hembra

Caño de 80 cm, un 1,00 399.500 399.500

Mano de obra, ml 1,00 70.000 70.000 Total por: ml 469.50

Pozo Ciego (Diámetro=1.50 m y h=3.00 m)

Ladrillo común,

Cámara Séptica (1x1.60x1.20m)

Ladrillo común, un

Rejilla de Piso Sifonada

Caja sifonada cuadrada

Desagüe Cloacal p/ Baño Completo (hasta el primer registro)

Caño 100 mm Titan, ml 2,00 14.000 28.000

Caño de PVC 50 mm, ml 2,00 11.250 22.500

Caño PVC 40 mm, ml 4,00 7.450

Codo 90º p/ desagüe 100mm un 1,00 11.150 11.150

Codo 90º p/ desagüe , buje largo 40mm, un 2,00 1.550 3.100

Codo 45º p/ desagüe un 2,00 1.600 3.200 secundario 40mm,

Caja sifonada

150x150x50mm, un 2,00 72.000 144.000 c/ rejilla aluminio

Adhesivo 75 gr, un 2,00 9.200 18.400

Limpiador 200 cc, un 1,00 27.000 27.000

Mano de obra, un 1,00 317.000 317.000

Total por: un 604.150

Desagüe Cloacal p/ Baño de Servicio

(hasta el primer registro)

Caño 100 mm, ml 2,00 14.000 28.000

Caño PVC 50 mm, ml 1,00 11.250 11.250

Caño PVC 40 mm, ml 3,00 7.450 22.350

Codo 90º p/ desagüe un 1,00 11.150 11.150 primario 100mm,

Codo 45º p/ desagüe un 1,00 9.450 9.450 primario 100mm,

Codo 45º p/ desagüe un 1,00 4.000 4.000 primario 50mm,

Codo 90º p/ desagüe un 1,00 1.550 1.550 secundario, buje largo 40mm

Codo 45º p/ desagüe un 2,00 1.600 3.200 secundario 40mm,

Ramal de reducción 45º un 1,00 16.500 16.500 simple p/ desagüe primario 100x50mm, Caja sifonada cuadrada un 1,00 72.000 72.000 nº 25, 150x150x50mm, Prolongador un 1,00 7.950 7.950 150x150mm p/ caja

Anillo de sellado p/ un 3,00 5.000 15.000 desagüe 100 mm, Anillo de sellado p/ desague 50mm un 2,00 2.900 5.800 Adhesivo 75

Desagüe Cloacal

Para Baño Social

(hasta el primer registro)

Caño 100 mm, ml 2,00 14.000 28.000

Caño PVC 50 mm, ml 1,00 11.250 11.250

Caño PVC 40 mm, ml 2,00 7.450 14.900

Codo 90º p/ desagüe un 1,00 11.150 11.150 primario 100mm,

Codo 45º p/ desagüe un 1,00 9.450 9.450 primario 100mm,

Codo 45º p/ desagüe un 1,00 4.000 4.000 primario 50mm,

Codo 90º p/ desagüe un 1,00 1.550 1.550 secundario, buje largo 40mm

Codo 45º p/ desagüe un 2,00 1.600 3.200 secundario 40mm,

Ramal de reducción 45º un 1,00 16.500 16.500 simple p/ desagüe primario 100x50mm,

Caja sifonada cuadrada un 1,00 72.000 72.000 nº 25, 150x150x50mm,

Anillo de sellado p/ un 2,00 2.900 5.800 desagüe 50 mm,

Anillo de sellado p/ un 3,00 5.000 15.000 desagüe 100 mm,

Adhesivo 75 gr, un 1,00 9.200 9.200 Limpiador 200 cc, un 1,00 27.000 27.000

Mano de obra, un 1,00 159.000 159.000

Total por: un 388.000

Desagüe para Pileta de Lavar y Lavarropas

Caño PVC 50 mm, ml 2,00 11.250 22.500

Caño PVC 40 mm, ml 3,00 7.450 22.350

Codo 90º p/ desagüe un 2,00 1.550 3.100 secundario, buje largo 40mm

Codo 45º p/ desagüe un 2,00 1.600 3.200 secundario 40mm,

Caja sifonada cuadrada un 1,00 72.000 72.000 nº 25, 150x150x50mm,

Adhesivo 75 gr, un 0,50 9.200 4.600

Limpiador 200 cc, un 0,50 27.000 13.500

Mano de obra, un 1,00 159.000 159.000 Total por: un

Desagüe para Pileta de Cocina

Caño PVC 50 mm, ml 3,00

Codo 90º p/ desagüe un 2,00 4.500 9.000 primario 50mm,

Ramal de reducción 45º un 1,00 16.500 16.500 simple p/ desagüe primario 100x50mm,

Desengrasador redondo un 1,00

67.000 nº 70, 250x172x50,

Adhesivo 75 gr, un 0,50 9.200 4.600 Limpiador 200 cc, un 0,50

Mano de obra, un 1,00

por: un

AGUA CORRIENTE

Caño PVC de 1” Caño

Caño PVC de 3/4”

Caño PVC roscable ml 1,00 12.850 12.850

Mano de obra, ml 1,00

por: ml

Caño PVC de 1/2”

Caño PVC roscable, ml 1,00 9.850 9.850

Mano de obra, ml 1,00 8.000 8.000

Total por: ml 17.850

Instalación Agua Fría en Baño Completo

Caño 1/2” roscable, ml 9,00 9.850 88.650

Codo 90º roscable, 1/2”, un 6,00 1.660 9.960

Llave de paso de 1/2” un 2,00 87.700 175.400 cromada FV Linea Clásica

Tapon roscable macho ½”un 4,00 690 2.760

Tee 3/4”x1/2” IPS, un 4,00 3.400 13.600

Adhesivo 75 gr, un 0,60 9.200 5.520

Cinta teflon 18mmx25m, un 2,00 9.600 19.200

Mano de obra, un 1,00 412.000 412.000

Total por: un 727.090

Instalación Agua Caliente y Fría en Baño Completo

Caño de 1/2” p/ agua calienteml 9,00 10.350

FV Linea Clásica, Tapón roscable macho ½”un

Instalacion Agua Caliente y Fría en Baño Completocon FV Allegro un 1.657.510

Instalación Agua Fría en Baño de Servicio

bajada de un

embutir p/ cisterna nº 4, Tapón roscable macho ½” un

bronce sin campana,

Instalación Agua Fría en Baño Social Caño 1/2” roscable, ml 4,00 9.850 39.400 Codo 90º

secundario, 40mm, Tapón roscable macho ½”un

Linea Clásica, Adhesivo 75gr,

Instalación Agua Fría en Baño Social - FV Allegro

Total por: un 361.680

Instalación Agua Fría p/ Pileta de Lavar y Lavarropas

COSTEO DE OBRA

Caño 1/2” roscable, ml 3,00 9.850 29.550

Codo 90º roscable, 1/2”, un 3,00 1.660 4.980

Tee 90º p/ desagüe un 1,00 4.000 4.000 secundario, 40mm,

Tapon roscable macho ½”un 2,00 690 1.380

Llave de paso de 3/4” un 1,00 84.000 84.000 bronce sin campana,

Adhesivo 75gr, un 0,20 9.200 1.840

Cinta teflon 18mmx25m, un 1,00 9.600 9.600 Mano de obra, un 1,00 191.000 191.000

Total por: un 326.350

Instalación Agua Fría para Pileta de Cocina

Caño 1/2” roscable, ml 2,00 9.850 19.700

Codo 90º roscable, 1/2”, un 3,00 1.660 4.980

Tapón roscable macho ½”un 1,00 690 690

Llave de paso 1/2” un 1,00 58.000 58.000 bronce sin campana,

Adhesivo 75gr, un 0,20 9.200 1.840

Cinta teflón 18mmx25m, un 1,00 9.600 9.600

Mano de obra, un 1,00 126.000 126.000

Total por: un 220.810

Instalación Agua Caliente y Fría p/ Pileta de Cocina

Caño de 1/2” p/ agua calienteml 6,00 10.350

Caño roscable 1/2”, ml 6,00 9.850 59.100

Codo de 1/2” galv, un 6,00 7.700 46.200

Tee 1/2” galv, un 2,00 6.150 12.300

Unión doble 1/2” galv, un 2,00 19.700 39.400

Alma doble 1/2” galv, un 4,00 7.700 30.800

Llave de paso 1/2” FV cromoun 2,00 66.500 133.000

Prolongador FV 1/2”x1 un 1,00

cromo sin campana,

Sellador p/ caño 125cc un

Cinta teflón 18mmx25m, un 2,00 9.600 19.200

Mano de obra, un 1,00

COLOCACION DE ARTEFACTOS SANITARIOS

Baño Completo - Frío y Caliente - No incluye bañera

Juego con cisterna bajajuego 1,00 2.211.250 2.211.250

Deca Ravena Crema, Griferia FV Linea Clásica juego 1,00 2.086.000 2.086.000 (Ducha, bidet y lavatorio)

Termocalefón

Soporte

Botiquin 44x58x11cm un 1,00

Conexión

Baño Completo con Bañera Común

Instalación de baño un 1,00 7.604.143 7.604.143 completo sin bañera, Bañera 1,60x0,70 m, un

Baño Completo con Bañera Hidromasaje

Instalación de baño un 1,007.604.1437.604.143 completo sin bañera,

Bañera hidro 1.70x0.70 m un 1,00 7.746.000 7.746.000 Mano de obra, un

Baño Completo - Frío solo Juego p/ baño completo juego 1,00 1.306.000

c/ cisterna alta Deca Ravena

Tubo bajada de

embutir p/ cisterna nº 4, Botiquin 44x58x11cm

bajo ducha FV, Conexión cromada 1/2x3

Baño de Servicio Juego para baño con juego

cisterna alta, Tubo de bajada de un

embutir p/ cisterna nº 4, Botiquín Astra,

lavatorio

Bajada p/ lavatorio,

Canilla p/ lavatorio FV un

Canilla de 1/2” cromo un 1,00

para bajo ducha FV, Conexión cromo ½ x 30 cmun

fijar artefactos,

Baño Social - Standard

Juego para baño social juego 1,00

con cisterna alta Deca Ravena,

Canilla para

Imperatriz,

Prolongador

para lavatorio,

fijar artefactos, Cemento blanco,

Baño Social - Superior

por: un 2.530.183

Pileta de Cocina - Acero Inoxidable - Frío Solo

Pileta 1 bacha, un 1,00 276.000 276.000 Canilla FV pico móvil frío solo un 1,00

Mesada de Granito para Cocina

Granito natural m2 2,28

Pileta de Cocina - Acero Inoxidable - Frío y Caliente

Pileta 2 bachas,

Pileta de Lavar y Lavarropas

Pileta granítica 1 bacha un 1,00 95.000 95.000 1,20x0,60 m,

Canilla 1/2” bronce FV, un 2,00

p7

por: un

Mesada de Mármol para Baño Social (0.70x0.60m)

Mármol blanco, m2 0,42

de soportes, juego 1,00 40.000 40.000 Zócalo de mármol, m2

Mesada de Mármol para Baño Completo (1.00x0.60m)

Mármol blanco, m2 0,60 680.000 408.000 Moldura pecho paloma, ml 2,20 50.000

INSTALACION ELECTRICA

Pilar de Mampostería 0.45x0.45x1.70m

No incluye cimiento y nivelación

Ladrillo común, un

Cemento tipo 1, kg 30,0

triturada, kg 60,0

de obra, un

Total por: un

Registro eléctrico 30x30x70cm

Ladrillo común, un

Cemento tipo 1, kg

de metal, un

Mano de obra, un 1,00

Total por: un 220.550

Registro eléctrico 40x40x70cm

Ladrillo común, un 67,0

Cemento tipo 1, kg

triturada,

COSTEO DE OBRA

Arena lavada, m3 0,07 65.000 4.550

Tapa registro de metal, un 1,00 72.800 72.800

Mano de obra, un 1,00 131.000 131.000 Total por: un 301.400

Puesto de Medición Provisorio

Monofásico con limitadora hasta 40 A

Nicho monofásico, un 1,00 9.240 9.240

Poste de caranday 6 m, un 1,00 120.000 120.000

Curva galvanizada 1”, un 4,00 24.970 99.880

Caño acero 3/4”x3m ml 2,00 8.500 17.000 Aislador roldana BT 72 x 72un 4,00 2.900 11.600 Bulón 3/8x4”, un 4,00 900 3.600

Pipeta de 1”, un 2,00 1.200 2.400

Jabalina de cobre 5/8 x 2mun 1,00 27.000 27.000 Abrazadera p/ jabalina un 1,00 3.000 3.000 Caja precintable, un 1,00 14.500 14.500 Disyuntor TM 1x10A un 1,00 16.500

Trifásico c/ acometida de 3m y limitadora hasta 45 A

Caño galv.

Trifásico con limitadora hasta 45 A

Nicho

Curva galvanizada 1 un 4,00 24.970 99.880

Caño acero 1” x 3m ml 2,00 15.000

Jabalina cobre 5/8 x 2m un 1,00 27.000 27.000

Abrazadera p/ jabalina un 1,00 3.000 3.000

Caja precintable, un 1,00 14.500 14.500

Disyuntor TM 3x30A

Puesto de Medición Definitivo

(Con línea subterránea o embutido en mampostería)

Monofásico c/ acometida 3m y limitadora hasta 40 A

Caño galvanizado un 1,00 500.000 500.000

Línea Subterránea

Monofásica con cable de 4 a 10mm Caño

Trifásica con cable de 4 a 10mm

Línea Monofásica Embutida en Mampostería con Cable de 4 a 10 mm

Tablero Principal con 6 llaves TM

embutida,

colocación llaves, 6,00 204.000 Total por: un 549.700

Tablero principal con 6 llaves TM (llaves europeas) Total por: un

Bocas de Lámparas y Tomas de Corriente

(Incluye colocación de electroducto y cableado hasta 5m del tablero principal)

Una Lámpara con su Interruptor

Caja de llave plastica, un 1,00

Caño corrugado 3/4”, ml

Una Lámpara con 2 Llaves de Combinación

Caja de llave plástica, un 2,00

Caja metálica

Circuitos Independientes

(Hasta 5m del tablero principal en cañerías ya instaladas para otros circuitos)

Circuito para Calefón/AA/Ducha Eléctrica

p7 llave

Línea Embutida para AA sin cableado

Línea de teléfono con su toma Total por: un 153.873

Línea de Timbre con su pulsador

chicharra un 1,00 19.000

Toma para Antena de TV o Audio

CARPINTERIA DE MADERA

Marco Recto (de 0.15cm p/ puerta de 2.10m de alto)

De Ybyrapyta de 0.70 m de ancho

Puerta de 2.10 m de alto Placa de eucalipto (0.80x2.10m)

Puerta placa, un 1,00 180.000 180.000 Ficha 5 agujeros, par 1,50 10.000 15.000

COSTEO DE OBRA

Cerradura externa c/ manija un 1,00 120.000 120.000

Mano de obra, c/hoja 1,00 92.000 92.000 Total por: un 411.500

Placa c/ cerradura para baño (0.80 x 2.10m)

Puerta placa de eucalipto un 1,00 180.000 180.000

Ficha 5 agujeros, par 1,50 10.000 15.000

Tornillo 1x7, un 30,0 150 4.500

Cerradura p/ baño c/manija un 1,00 45.000 45.000

Mano de obra, c/hoja 1,00 92.000 92.000 Total por: un 336.500

Tablero (0.80x2.10m)

Puerta tablero común, un 1,00 950.000 950.000

Ficha 5 agujeros, par 1,50 10.000 15.000

Tornillo 1x7, un 30,0 150 4.500

Cerradura externa c/ manijaun 1,00 120.000 120.000

Mano de obra, c/hoja 1,00 96.000 96.000

por: un 1.185.500

Tablero - Punta Diamante (0.80x2.10m)

Puerta de cedro c/ molduras un 1,00 1.550.000 1.550.000

Ficha 5 agujeros, par 1,50 10.000 15.000

Tornillo 1x7, un 30,0 150 4.500

Cerradura p/ puerta de entrada un 1,00 190.000 190.000

Mano de obra, c/hoja 1,00 96.000 96.000

Total por: un 1.855.500

Vidriera Sencilla (1.50x2.10m - 3 hojas de abrir)

Puerta vidriera, m2 3,15 300.000 945.000

Ficha 5 agujeros, par 3,00 10.000 30.000

Tornillo 1x7, un 60,0 150 9.000

Falleba de arrimar un 1,00 25.500 25.500

Pasador 150 mm un 2,00 18.000 36.000

Varilla p/ falleba 1.20 un 2,00 24.500 49.000

Mano de obra, c/hoja 3,00 46.000 138.000

Total por: un 1.232.500

Persiana (1.50x2.10m - 3 hojas de abrir)

Puerta (varilla 45 cm) m2 3,15 450.0001.417.500

Ficha 5 agujeros par 3,00 10.000 30.000

Tornillo 1x7, un 60,0 150 9.000

Falleba de arrimar un 1,00 25.500 25.500

Pasador 150 mm un 2,00 18.000 36.000

Varilla p/ falleba 1.20 un 2,00 24.500 49.000

Mano de obra, c/hoja 3,00 46.000 138.000

Total por: un 1.705.000

Ventana de 1.20 m de alto

Vidriera (1.50x1.20m - 3 hojas de abrir)

Ventana vidriera m2 1,80 220.000 396.000

Ficha 5 agujeros, par 2,00 10.000 20.000

Ficha 3 agujeros, un 1,00 9.000 9.000

Tornillo 1x7, un 52,0 150 7.800

Falleba de arrimar un 1,00 25.500 25.500

Pasador 150 mm un 2,00 18.000 36.000

Varilla p/ falleba 1.20 un 1,00 24.500 24.500

Mano de obra, c/hoja 3,00 36.000 108.000

Total por: un 626.800

Vidriera (2.00x1.20m - 4 hojas de abrir)

Total por: un 841.600

Vidriera (1.00x0.80m)

Total por: un 324.000

Persiana (1.50x1.20m - 3 hojas de abrir)

Ventana persiana fija, m2 1,80 450.000 810.000

Ficha 5 agujeros, par 2,00 10.000 20.000

Ficha 3 agujeros, un 1,00 9.000 9.000

Tornillo 1x7, un 52,0 150 7.800 Falleba de arrimar un 1,00 25.500 25.500 Pasador de 150 mm cromoun 2,00 18.000 36.000

Varilla p/ falleba 1.20 un 1,00 24.500 24.500 Mano de obra, c/hoja 3,00 36.000

Total por: un 1.040.800

Persiana (2.00x1.20m - 4 hojas de abrir) Total por: un 1.393.600

Colocación de Contramarco

CARPINTERIA METALICA

Puerta Metálica Tipo Reja (0.80x2.10 m) Puerta, marco y herrajes, un

Cortina Metálica (2.40x2.60 m)

Reja de Hierro Artística Sencilla (1.50x1,20 m)

Reja artística sencilla, m2 1,80

Portón Metálico (1.00x1.50 m)

Portón

Cemento tipo 1,

Portón Cochera (3.00x2.00 m)

Portón con cerradura, m2 6,00

Cemento tipo 1, kg 5,00 1.100 5.500 Arena lavada, m3 0,03 65.000 1.950 Mano de obra, c/ hoja 2,00 200.000 400.000

Portón Cochera (4.40x4.00 m)

Escalera Metálica Recta

Escalera metálica, un

PINTURAS

o Tejuelón al Barniz

Tejuela a la Cal y Maderamen con Esmalte Sintético

de Cielorraso a la Cal

Barnizado de Machimbre

COSTEO DE OBRA

Abertura de Madera con Esmalte Aceite

Ladrillo refractario,

Abertura de Madera con Barníz

Parrilla (boca de 1.00 m)

Ladrillo común, un

Cemento

Abertura Metálica con Esmalte

cenicero graduable,

Canalata y Bajada con Esmalte Sintético

Balaustre Sencillo

Tratamiento de Ladrillo Visto

Tanque de Agua en Fibra de Vidrio 1000 lt

VARIOS

Moldura Doble

Tanque de Agua en Fibra de Vidrio 500 lt

Moldura Sencilla

Cemento

Estufa (Boca de 1.00

PROYECTOS MANDU’A

Descripción general:

Todas las construcciones se realizan en Asunción o alrededores sobre un terreno seco con una capacidad portante de 3 Kg/cm2, que no requiere movimiento de suelo. El análisis de costo incluye los gastos generales (10%) y beneficio de la empresa (15%). Se excluyen los gastos complementarios correspondientes a los Honorarios Profesionales por Proyecto y Dirección de Obras. No se consideran los gastos por Permiso Municipal, de conexión y consumo por servicios de

agua y eléctricidad. Tampoco se considera el valor del predio. Los precios de materiales y de mano de obra corresponden a los publicados por nuestra revista, en cuya guía de costeo de obra se desarrolla cada uno de los ítems. Los precios de mano de obra se basan en consultas realizadas con contratistas y profesionales de construcción. No incluyen cargas sociales, seguro de accidentes, etc.

Casa Mandu’a - Vivienda Modelo 1

Descripción: Vivienda económica con una superficie de 67,7 m2

Desarrollo de la Obra

• Fundación: Piedra bruta colocada. Nivelación: Mampostería de 0,30 con ladrillos comunes. • Aislación: Horizontal de muros realizada en cajón con asfalto sólido diluido en caliente. • Mampostería de elevación: Ladrillo hueco de 6 agujeros. En baños y paredes con instalación hidráulica, de ladrillo común. • Dinteles: Envarillado continuo de 2 varillas y de 4 varillas sobre aberturas. • Techo: Tejas españolas prensadas 1ª B, con tejuelones, maderamen de yvyrapyta, aislación con cartón asfáltico, con terminación de boca teja, mojinete y tapa doble. • Carpintería de madera: Marcos de yvyrapyta, aberturas de madera de guatambú, mueble de cocina revestido con laminado plástico. • Revestidos: Azulejos esmaltados lisos 15x15, en cocina, lavadero y baños, con una altura de 1,80 m. • Revoques: Base con azotada impermeable de 0,5 cm y revoque con aditivo hidrófugo, en interior a 1 capa y exterior en la faja perimetral de 0,50 m. Incluye vértice de mampostería y borde de aberturas. • Instalación eléctrica: Monofásica, llaves termomagnéticas brasileñas, Placas, picos de luz y tomas argentinas. Sin artefactos. • Instalación sanitaria: Cañería hidráulica de agua fría, cloacal y pluvial, de PVC. Loza de baño brasileña, con cisterna alta. Pileta de lavar de granito reconstituido.

MODELO 1 - VIVIENDA PLANILLA DE COSTOS

Elevación 0.15m con ladrillo hueco 6 tubos, 1

Techo: teja española, tejuelón, aislante,

Limpieza final y retiro de escombros

y

Pileta de cocina de acero inoxidable, 1 bacha. Las canaletas y bajadas, de chapa galvanizada Nº 26. • Pintura: Interior y exterior a la cal con fijador y color. Mampostería a la vista con protección a base de silicona, previa limpieza con ácido muriático. Carpintería de madera y maderamen de techo al barniz. Carpintería metálica y canaletas con esmalte sintético.

Dúplex Mandu’a Vivienda Modelo 2

Descripción: Conjunto de 3 viviendas, cada una de 121,5 m2, con estructura de losa prefabricada con paredes portantes y disminuyendo pilares y zapatas.

Desarrollo de la Obra

• Fundación: De piedra bruta colocada, con encadenado inferior de HºAº y zapatas de Hº Aº como base de pilares.

• Estructura: Losa cerámica a la vista que se apoya en paredes portantes, con algunos pilares y vigas de HºAº. Nivelación y Dinteles sobre aberturas y techo. • Revestidos: Idem modelo 1. • Aislación: Horizontal idem modelo 1. De baño en planta alta con alisada e impermeabilizante de base asfáltica. • Mampostería de elevación: Ladrillo laminado a la vista en fachada; ladrillo común en baños, área de servicio y paredes con instalación hidráulica; ladrillo hueco de 6 agujeros en interiores y medianeras. • Carpintería de Madera: Marcos de yvyrapyta, aberturas de cedro, placard de guatambú, mueble de cocina revestido con laminado plástico. • Carpintería Metálica: Balancines de ángulos, rejas artísticas sencillas y portón de cochera de chapa doblada. • Pisos: Contrapiso de cascotes, baldosa calcárea de base gris en área de servicio, layota nacional en cochera y parrilla. Cerámica esmaltada sobre carpeta alisada de 30x30 en planta baja, área social, escalera y cocina. De 20x20 en baños. Veredita tipo ka’a. Alfombra de 5 mm sobre carpeta de base en planta alta. • Zócalos: Calcáreo, cerámica esmaltada, layotas, en su caso y madera donde lleva alfombra. • Revoques: Común filtrado por ladrillos comunes con azotado de adherencia en ladrillhidrófugo en exteriores y áreas húmedas. • Instalación eléctrica: Monofásica, llaves TM brasileñas, placas, picos de luz y tomas argentinas.

PROYECTOS MANDU’A

PLANILLA DE COSTOS

Revoque 1 capa , 1.5 cm

Revoque 1 capa con hidrófugo en

tejuelón, vigas y

Sin artefactos. • Instalación Sanitaria: Cañería para agua fría, cloacal y pluvial de PVC, para agua caliente de polipropileno, loza de baño brasileña, cisterna baja en baño social y en planta alta, alta en baño de servicio, pileta de lavar de granito reconstituido y de acero inoxidable de 2 bachas en la cocina. Canaletas y bajadas de chapa Nº 26. • Pintura: Mampostería a la vista con protección a base de silicona, previa limpieza con ácido muriático. Area de servicio y exteriores revocados a la cal con color. Paredes interiores al latex. Carpintería de madera, techo de tejas y losa con cerámica a la vista al barniz. Carpintería metálica y canaletas con esmalte sintético. os huecos, con azotada impermeable (0,5 cm) y común filtrado con aditivo .

Planta Baja
Planta Alta

Dúplex Mandu’a - Vivienda Modelo 3

Descripción: 2 viviendas iguales en Duplex, cada una de 150,3 m2

Sistema constructivo y materiales

Estructura: La losa prefabricada utilizada es de una marca del mercado, utilizada con el mismo criterio adoptado en el Modelo 2.

Desarrollo de la Obra

• Fundación: Idem modelo 2. • Estructura: Se utiliza el sistema Listalosa con cielorraso ranurado a la vista, sin revoque, que descansa sobre paredes portantes, reforzados con algunos pilares y vigas de Hº Aº. • Fundación, nivelación, aislación, mampostería, dinteles, techos, revoques, Instalación Sanitaria y Pintura: Idem al modelo 2. • Carpintería de Madera: Marcos de lapacho, aberturas, placards y mueble de cocina de cedro, éste último con puertas tablero; mesada de granito natural.

• Carpintería Metálica: Balancines metálicos. Rejas artísticas y portón de cochera de chapa doblada y varillas. • Pisos: Contrapiso de Hº de cascotes, baldosa calcárea de base gris en área de servicio, layota nacional en cochera y parrilla. Granito reconstituído pulido de base gris en área social, estudio y planta alta, y en planchas en la escalera. Cerámica esmaltada sobre carpeta alisada en cocina y baños. Vereda de mosaicos de canto rodado de color 30x30. • Zócalos: Calcáreo, cerámica esmaltada, cerámica roja y granito reconstituido. • Revestidos: Azulejo esmaltado liso 20x30 en baños y cocina. De 15x15 en lavadero y baño de servicio. • Instalación Eléctrica: Monofásica, llaves TM europeas, placas, picos de luz y tomas de procedencia uruguaya. Sin artefactos.

PLANILLA DE COSTOS

Aislación horizontal 0.15 con hidrófugo y

sobre aberturas / envarillado de

Revoque 1 capa sin hidrófugo ( 1:4:16 )

Revoque 1 capa con hidrófugo ( 1:4:16 )

Azotada impermeable 0.5

Techo : teja española , tejuelón, vigas y tirantes

MODELO 3 / VIVIENDA DUPLEX, SUPERFICIE 150,30 m²

Edificio para la Renta Vivienda Modelo 4

Descripción: Edificio de 2 plantas que puede ampliarse a 3, comprende 2 departamentos en Planta Alta, cada uno de 60 m2 y con 2 dormitorios. En planta baja 2 salones comerciales de 34,30 m2 de área interior. Entrada vehicular cubierta.

Desarrollo de la obra

• Fundación: Se utilizan Zapatas de Hº Aº donde actúan cargas puntuales y bajo las paredes, vigas del mismo material. • Estructura: De Hº Aº tipo tradicional, las losas descansan sobre vigas y pilares del mismo ancho que las paredes. En planta alta se utiliza un encadenado general a la altura de asiento de tirantes. • Aislación, mampostería de elevación, dinteles, techo y carpintería de madera, pisos, zócalos, revestidos, revoques, instalación sanitaria: idem al modelo 2. • Carpintería Metálica: Cortina de enrollar de tablillas metálicas con puerta de escape. Balancines, portones de acceso peatonal y de cochera de chapa doblada. Baranda sencilla de escalera. • Instalación Eléctrica: Idem. modelo 3. • Pintura: Paredes interiores y exteriores del frente y contrafrente al latex. Paredes exteriores medianeras y cielorraso a la cal. Abertura de madera, maderamen y tejuelones del techo al barniz. Carpintería metálica con esmalte sintético.

Planta Baja
Planta Alta

PROYECTOS MANDU’A

PLANILLA DE COSTOS

Aislación

Revoque 1 capa sin hidrófugo en

Revoque 1 capa con hidrófugo en exteriores

Techo : teja española , tejuelón, vigas y tirantes Yvyrapyta

Baldosa calcárea base gris 20

Casa Mandua 4 básica

Limpieza final y retiro de escombros (0.8 %)

Planta Baja

Planta Alta

Galpón tipo tinglado - Vivienda Modelo 5

Descripción: Galpón tipo tinglado, con una superficie de 268,8 m2, con oficina y vestuario. La oficina incluye un baño privado y el vestuario dos boxes de baño, para ducha e inodoro, respectivamente. Consta de patio posterior y retiro en el frente, cumpliendo la norma municipal que exige un 25% de superficie sin construir.

La obra está prevista para un terreno plano y limpio de 12x30 m situado entre linderos.

Desarrollo de la Obra

• Fundación: Pilares asentados sobre zapatas de hormigón ciclópeo y cimiento corrido de P.B.C para asiento de paredes. • Estructura: Realizada con pilares de HºAº y vigas encadenadas conformando 2 anillos de unión. • Aislación, mampostería de elevación, dinteles, carpintería de Madera: Idem. modelo 1. • Techo: Tipo tinglado parabólico, estructura metálica reticulada fabricada de varillas torsionadas pintadas con antióxido. Cubierta de chapa galvanizada ondulada, aireada con extractores eólicos. • Carpintería Metálica: Balancines metálicos de ángulos y perfiles “T”. Portones de chapa doblada en el acceso vehicular y la salida al patio. Escalera metálica recta de acceso al entrepiso de madera. • Pisos: En el patio del frente y dentro del depósito, donde pueden circular vehículos, el piso es de hormigón armado con juntas de dilatación. En la oficina se utilizan baldosa calcárea de base gris y cerámica esmaltada sobre una carpeta alisada, en baños y vestuarios. Vereda de baldosita calcárea tipo ka’a con ranuras antideslizantes. Contrapiso de hormigón de cascotes. • Zócalos: Calcáreo en la oficina. • Revestidos: Azulejo esmaltado liso 15x15 en baños y vestuario. • Revoques: Sobre ladrillos huecos, azotada de adherencia con hidrófugo y revoque común filtrado y sobre ladrillos comunes sólo este último. Las paredes perimetrales llevan revoque a un solo lado.

• Instalación Eléctrica: Trifásica, llaves termomagnéticas europeas, placas, picos

MODELO 5 / GALPON TIPO TINGLADO,

PLANILLA DE COSTOS

PROYECTOS MANDU’A

de luz y tomas uruguayos, sin artefactos. Instalación Sanitaria: Cañería hidráulica de agua fría, cloacal y pluvial, lozas de baño, canaletas y bajadas idem modelo 1. Cisterna baja en baño de oficina y alta en el vestuario. • Pintura: Paredes revocadas, interiores o exteriores, a la cal. Paredes de ladrillo hueco a la vista con tratamiento correspondiente para el efecto. Carpintería de madera y entrepiso de machimbre pintadas con barniz. Carpintería metálica y caños de bajada con esmalte sintético.

ABERTURAS

Madera

Puerta placa

De 0,60 - 0,70 y 0,80 m

De cedro

De eucalipto/cupay

De 0,90 m

De cedro

De eucalipto

Puertas con cabezal recto

Tablero standard de eucalipto

Persiana fija

Vidriera cuadrille

Vidriera sencilla

Tablero, punta diamante moldura c/ cedro de 1ra

Ventanas

Persiana fija

vidriera cuadrille

vidriera sencilla

Marco de yvyrapyta : cepillado, lijado y con 1 rebaje

De 15 cm, recto

Metálicas

Puerta ciega 2.10m de alto

De 0.80 m

De 0.90 m

Puerta placa 2.10m de alto

De 0.80 m

De 0.90 m un

Ventana corrediza con reja 1.10m de alto

De 1.20 m ancho

De 150 m ancho un 515.000

Ventana corrediza con reja 0.76m de alto

De 1.20 m ancho un 460.000

De 150 m ancho un 480.000

Ventana proyectante con reja 0.60 x 0.40m un 160.000

Balancín 0.60 x 0.40m un 105.000

ACONDICIONADORES DE AIRE

ALAMBRES

Liso

Andamios Martillete Vallados

AISLANTES TERMOACÚSTICOS

CASARINO

Soluciones acústicas

De 50x50 cm

Pro Alpine 30 mm m² 178.000

Pro Alpine 50 mm m² 282.000

Pro Arabian 30 mm m² 178.000

Pro Pirámide 30 mm

.000 Premium Alpine 30 mm (61 x 61 cm) m² 275.000

01 Lana de roca c/ alu, 6m x 1,20 m x 50 mm un 550.000

02 Lana de roca s/ alu, 8m x 1,20 m x 50 mm un 480.000

03 Poliestireno Extruido 25mm - placa 0,60 x 1,20 m un 72.000

Arcilla Expandida

Diámetro 20mm

Bolsa de 50 lt.

Bolsa de 25 lt.

Bolsa de 2 lt.

Diámetro 30mm

Bolsa de 50 lt.

Lana de roca

Sin aluminio 1,20 x 8 m x 50 mm

Con aluminio 1,20 x 6 m x 50 mm

BIODIGESTORES

Tubo

PROCESADORA DE VIDRIOS TEMPLADOS

CAÑOS Y ACCESORIOS PROCESADORA

- Tubos de 6 m

liviano

desague (blanco)

Tubo soldable p/ 10kg

CERÁMICA ROJA

Fábrica - Ruta Patiño Km. 40,5

Cel.: 0971 203 323

SHOWROOM

Ruta Departamental DO 27 y San Cayetano. San Lorenzo Ex Ruta 1, Km 14,5

CONSTRUCCIÓN EN SECO

CONSTRUCTORAS

CHAPAS

Metálicas

ZINC

Chapa Ondulada No

DEPOSITOS DE MADERA

Alfajias , cepilladas

Ybyrapyta hasta 2 m de largo ml 10.000

Eucalipto hasta 2 m de largo ml 7.000

Vigas pulg2/m - De ybyrapyta

1,0 - 1,9 m

pulg/m 4.500

2,0 - 2,9 m pulg/m 4.500

3,0 - 3,9 m pulg/m 4.700

4,0 - 4,9 m pulg/m 5.000

5,0 - 5,9 m pulg/m 5.500

6,0 - 6,9 m pulg/m

Tabla y puntales para encofrado

Tabla de eucalipto de 1” pulg/m 600

Puntal de eucalipto de 3x3” pulg/m 650

Tirantesde ybyrapyta / kurupa’y

1,0 -1,9 m pulg/m 2.800

2,0 -2,9 m pulg/m 2.900

3,0 - 3,9 m pulg/m 3.400

4,0 - 4,4 m pulg/m 3.500

4,5 - 4,9 m pulg/m 3.700

5,0 - 5,9 m pulg/m 3.800

6,0 - 6,9 m pulg/m 4.200

Machimbres De eucalipto 1/2 x 3”

pino 1/2 x 4”

hueco

Yoayu de 1ra A, un 904

Ita Yvy de 1ra A, un 1.111

Ita yvy de 1ra B, un 891 De 8x18x25 cm, 6 tubos, 19 x m2

Ita Yvy de 1ra A, un 1.353 De 12x18 x25 cm, 6 tubos, 19 o 28 un x m2 Ita yvy de 1ra A

Yvy de 1ra requemado

de 1ra

de 1ra requemado

De 18x18x25 cm, 9 tubos , 19 un x m2

Ita Yvy de 1ra A un

Ita Yvy de 1ra requemado

Ladrillo estructural

Yvy 14x19x14 cm

Yvy 14x19x29 cm

Irene 1ra A

laminadito 5x11x25 cm

laminado

DEPÓSITOS DE MATERIALES

Ladrillos

Ladrillo común

Tobatí, un 800

Prensado 3 agujeros Ita yvy de 1a, 5x11x23 cm un 1.012

Laminado rústico Ita yvy de 1a, 5x11x23 cm un 935

Laminado Yoayu de 1a un 1265

Yoayu laminadito 5x11 x 23 cm un 949

Prensado 3 agujeros Yoayu de 1a, 5x11,5x23,5 cm un 1.044

Ladrillejos 52 un x m2

TEJAS

Teja española prensada de 1ra Yoayu-26 un x m2

Ladrillo

MANDU’ARA

Teja

Teja FRANCESA Yoayu-

Tejuelones

Yoayu

Ita

Plástico

Pileta

Pileta

Cascotillo cerámico

Asfalto para aislación 3,6 lt

Poste de Karanday

Revista Mandu’a

Fábrica - Ruta Patiño Km. 40,5

Cel.: 0971 203 323 SHOWROOM

Ruta Departamental DO 27 y San Cayetano. San Lorenzo Ex Ruta 1, Km 14,5

DESARROLLO DE SITIOS WEB

DIVISORIAS SANITARIAS

TEL.: 021 906 951

(021) 906 951/2

CEL.: 0971 543 246

(021) 328 0572/3

CEL 0971 543 246

CDE: 061 570 501

ELECTRICIDAD

Columna de entrada (Materiales varios)

01 Aislador roldana B.T. 72x72mm, un 5.000

01 Aislador retención 0,50 un 5.000

02 Bulón p/ madera 3/8 x 3” un 1.600

03 Caño de acero ¾” x 3 m, un 8.500

04 Caño de acero 1” x 3 m, un 15.000

05 Caño galvanizado 2” x 5,8 m, un 358.000

06 Caño galvanizado 2 ½” x 5,8m, un 600.000

07 Cruceta p/ pre emsamblado 2” monofásica un 3.000

08 Cruceta p/ pre emsamblado 2 ½” Trifásica. un 3.500

09 Curva galvanizada 1 ¼”, un 22.500 10 Fondo de madera monofásico, un 5.500 11 Fondo de madera trifásico, un 6.790 12 Tapa monofásica Ande, un 25.000 13 Tapa trifásica Ande, un 30.000 14 Unión reducción 2” x 1”, un 9.500 15 Unión reducción 2 ½” x 1 ¼”, un 31.000 16 Curva galvanizada 1”, un 24.970

Cinta aisladora

01 Cinta auto soldable 19mm x 2 mts un 10.000 02 Cinta aisladora Millión 19mm x 20 mts un 12.000

Tablero de embutir transparente

01 Para 8 TM, un 37.000 02 Para 12 TM, un 46.000 03 Para 24 TM, un 107.000

Llaves termo magnéticas

Unipolares

Disyuntor TM 1x 10A, DIN un

Tripolares

Disyuntor TM 3x 20A, DIN un 33.000

Disyuntor TM 3x 32A, DIN un 39.000

Disyuntor TM 3x 40A, DIN un 40.000

Disyuntor TM 3x 63A, DIN un 42.000

Caño corrugado nacional

De 5/8”,

De 1”, m 3.500

Caño plástico negro nacional (electroducto)

De 3/4”, m 2.500 02 De 1”, m 3.250

01

ESTRUCTURAS

TInglado Metálico

01 Hasta 10 m de luz,

Tinglado de HoAo

01 Material + mano de obra

FERRETERÍA

FUNDACIONES

HERRERÍA

Aberturas

Barandas de balcón

01 De hierro sencilla 1,00m, pasamanos de 60x25mm en chapa doblada Nº14 colocación incluida dentro del radio urbano de Asunción

02 Idem de hierro dibujada,

Balancines sin colocación - A partir de 1 m2

01 Balancín fabricado con ángulo 5/8 y T 3/4x1/8, hoja de 0,20 m,

02 Balancín fabricado con ángulo 3/4 y T 7/8 x 1/8,

metálicas de enrollar - A partir de

y

Cubrerrollo de chapa N° 18 con puerta trampa

Escaleras

01 Caracol diámetro 1,20 m, estructura de hierro con baranda, peldaños, con 1 mano antióxido y colocación incluida, por metro de altura,

Parrilla graduable de hierro enlozada con cenicero y carbonera de 1,20x0,50 m con tapa calor,

Campana de 1,20x0,60 m para parrilla con colocación,

03 Tubo de campana en chapa negra Nº 18,

Reja para ventana

01 Reja artística sencilla, con marco de ángulo de 3/4 x 1/8”, varilla de 10mm y dibujo rombo con planchuela de 3/4 x 3/16, m2 198.000

02 Idem anterior reja artística dibujada, m2 253.000 Portones (ver Portón a control remoto)

HERRAJES

Varios

01 Falleba de arrimar cromada, un 25.500

02 Ficha de 3 agujeros brasileña, reforzada, par 9.000

03 Ficha de 5 agujeros brasileña, reforzada, par 10.000

04 Pasador a palanca de embutir cromado de 150 mm un 18.000

05 Pasador a palanca de embutir cromado de 200 mm, un 25.000

06 Tirafondo galvanizado de 3/8x5”, un 1.500

07 Tornillo 1x7” caja de 144, un 150

08 Varilla de hierro para falleba de 1,20 m, un 24.500

09 Varilla de hierro para falleba de 1,50 m, un 30.000 HIDRÓFUGOS

HORMIGÓN

Hormigón Elaborado

* Comprende elaboración, transporte, bombeo, toma de muestras y rotura en laboratorio. Precios al contado

1

2

3

4

5

6

7 Ho

8

9

Chapa galvanizada

Canaleta embutida N° 24

Desarrollo 60 cm, ml 145.000

Desarrollo 50 cm, ml 110.000

Canaleta moldurada 40 cm

Chapa N° 24 ml 90.000

Canaleta moldurada 33 cm

Chapa N° 26

Chapa N° 28

LABORATORIO DE ENSAYOS

Adhesivos Brascola Adhesivo

LOSA PREFABRICADA

Vigueta de Hº pretensado y ladrillo (Losa Rap)Puesto en obra

01 De 0,50 a 4,80 m,

02 De 4,90 a 5,90 m,

03 De 6,00 a 7,60 m,

PreLosa pretensada y ladrillo Rap (PreRap

m) - Puesto en obra

Largo

05 Largo hasta 9,5 m

Losas Alveolares Pretensadas – STR

Precio Iva Incluido

Precios referenciales para sobrecarga de uso de 300Kg/M2

Incluye flete y montaje con grúas en zona Gran Asunción

- Revista Mandu’a

Mampara
- Revista Mandu’a 86

MAMPARAS

01 Mampara ciega

y

TEL.: 021 906 951

(021) 906 951/2 (021) 328 0572/3

CEL 0971 543 246

CEL.: 0971 543 246 CDE: 061 570 501

MALLA ELECTRO SOLDADA

Garelli

1 De diámetro 4,2 mm, para cubrir 15 m2 un 120.000

MEMBRANAS ASFÁLTICAS

Con Aluminio rollo de 10 m

1 De 3 mm PRIMER un 495.000

2 De 4 mm PRIMER un 614.000

3 De 4 mm CASARINO

Sin Aluminio rollo de 10 m

1 De 3 mm SUPERFLEX un 285.000

2 De 4 mm PRIMER un 463.000

3 De 4 mm PRIMER c/ alma geotextil un 543.000

Mapethene sin Aluminio rollo de 10 m Industria Italiana

1 Mapethene 3 mm un 554.000

2 Mapethene 4 mm un 657.000

3 Mapethene gravillada un 583.000 Base para membranas

1 Bitumex, base solvente balde de 18 lts. un 381.000

2 Imprimación primera base al agua de 18 lts. un 144.000 Membrans autoadhesivas

1 De 10 cm x 10 m un 30.000

2 De 15 cm x 10 m un 45.000

3 De 30 cm x 10 m un 90.000

4 De 45 cm x 10 m un 135.000

5 De 90 cm x 10 m un 270.000

6 De 90 cm x 10 m color cerámico y gris un 301.000

PERFILES

PERFORACIÓN DE POZOS

PIEDRAS

Para fundaciones y hormigón

05

Adoquin de Piedra

Para

PINTURAS

01

Piedra para borde de piscinas

Piedras para pisos 01

PILOTES

PISOS Y REVESTIMIENTOS

03 Cargado en obra, m2 110.000

Alto Tránsito - Antideslizante para exterior - Equipa

01 De 30x30 cm, gris m2 65.000

02 De 40x40 cm, gris m2 73.000

03 De 30x30 cm, rojo ocre m2 68.000

04 De 40x40 cm, rojo ocre m2 74.000

Vereditas

01 Vainilla 20x20, Ka’a, roja, negra, gris m2 40.000

Baldosones de Hormigón - Linea Gris

01 De 40x40x2,5 cm, m2 37.000

02 De 40x40x4 cm, m2 42.000

03 De 40x40x4 cm, armada m2 63.000

04 De 60x40x4 cm, m2 50.000

Bordes 40x40 cm

01 Travertino o Naútico, ml 93.500

02 Atérmico cargado in situ ml 165.000

Varios

1 Oxido rojo/amarillo, kg 25.000

2 Oxido negro/azul/verde, kg 37.500

1 Pastina gris kg 25.000

2 Pastina blanca kg 37.500

Equipa

Piso Para Deck Ecológico WPC

01 Tabla 2,20 X 0,14m un 544.000.

02 Colocación M2 80.000

03 Cotonera de terminación Ml 70.000

Ripado Para Revestido

01 De 0,21 X 2,20 M un 220.000

02 De 0,21 X 3 M un 300.000

PERFILES WPC

Largo: 3.00 mt

01 De 50 x 50 mm un 180.000

02 De 90 x 40 mm un 300.000

Hormigón

PREVENCIÓN DE INCENDIOS

REVESTIMIENTOS ACÚSTICOS

PUERTAS AUTOMÁTICAS

TEL.: 021 906 951

(021) 906 951/2

CEL.: 0971 543 246

(021) 328 0572/3

CEL 0971 543 246

CDE: 061 570 501

TEL.: 021 906 951

(021) 906 951/2

CEL.: 0971 543 246

(021) 328 0572/3

CEL 0971 543 246

CDE: 061 570 501

REFUERZO PARA REVOQUES

Casarino

Para refuerzo de revoques en rollo de 50 m²

01 De 5mm x 5mm x 75gr/m2

02 De 5mm x 5mm x 145gr/m2

03 De 3,17mm x 3,17mm x 55g/m2

SANITARIOS

Cerámicos Piso/Pared

Adhesivos para azulejos, ceramica y pisos

MANDU’ARA

Piletas de acero inoxidable

Tramontina

De 0,80x0,50 m , 1 bacha, lado derecho un 210.000

De 1,00x0,50x0,13 m , 1 bacha, lado derecho un 276.000

De 1,00x0,50x0,13 m , 1 bacha central un 371.000

De 1,20 x 0,50x0,13m , 2 bachas, un 485.000

Sopapa Astra, un Bañeras

De 1,60 x 0,70 x 0.40 m, acrílica, un 1.400.000

De 1,70 x 0,70 x 0.40 m, acrílica, un 1.600.000

De 1,80 x 0,80 m con hidro, ASTRA un 9.200.000

De 1,70 m, italiana con hidro, un 7.000.000

Botiquín

Astra embutido blanco A33-BR1 un 200.000

Astra de sobreponer, A34 - BR1 un 220.000

ASTRA 44 x 58 x 11 cm - colgante un 560.000

Astra Brasilia LB12/S1 un 400.000

Grifería

Para baño

FV - Linea Allegro cromo

Ducha, 103/15, un 1.050.000

Bidet , 295/15 un 884.000

Lavatorio, 207/15 un 765.000

FV - Clásica 20

Ducha, 103/20 un 811.000

Bidet, 293/20 un 639.000

Lavatorio, 207/20 un 636.000

FV - linea 61 - plus Ducha, 103/61 un 958.000

Bidet, 295/61 un 829.000

Lavatorio, 207/61, un 760.000

Llave de paso con campana de 1/2” FV

Línea clásica 479/20, un 87.700

Linea 479/61, un 120.000

Linea Allegro 479/15, un 129.000

Para cocina / agua fria y caliente FVEmbutida

Línea clásica, 403/20 jgo 479.000

Externa

Línea clásica , 409/20 jgo 850.000

Línea 61, 409/61 jgo 935.000

Línea clásica , 416/20 jgo De mesada

Línea 61, 416/61 jgo 775.000

Línea clásica , 416/20 pico alto jgo 714.000

Llave de paso FV

De 1/2” , cromo sin campana 475/13, un 66.500

De 1/2” , cromo con campana 479/20, un

De 3/4” , cromo sin campana 475/19, un 101.000

De 3/4” , cromo con campana 479/20, un 130.000

FV bronce 1/2” 471 un 58.000

FV bronce 3/4” 471 un 84.000

Para agua fría - Para lavatorio - canilla FV

cromo :

Pico alto 221 un 115.000

226/15 un 235.000

226/61, un 271.000

01

VARILLAS

- Revista Mandu’a

Turn static files into dynamic content formats.

Create a flipbook
Issuu converts static files into: digital portfolios, online yearbooks, online catalogs, digital photo albums and more. Sign up and create your flipbook.
Revista Mandu'a - #513 - Febrero 2026 by Revista Mandu'a - Issuu