Revista Mandu'a - #502 - Marzo 2025

Page 1


INFORMACIÓN, OPINIÓN Y CULTURA AL SERVICIO DE LA CONSTRUCCIÓN

MUJERES QUE HAN TRANSFORMADO LA ARQUITECTURA / YVYRUPA - SD+A / GUÍAS DE PRECIOS

ADMINSTRACIÓN Y PLANTA INDUSTRAL:

Cnel. Rafael Franco 888 - Fdo. de la Mora, zona Norte - B° Laguna Satï - Py. Tel: (021) 500162 ventas@trafopar.com.py - trafopar@trafopar.com.py

Suc. Ciudad del Este: Ruta Internacional - Km. 6,5 - Py (0981) 559 595 (0983) 605 363

PLANTA INDUSTRIAL - ALTO PARANÁ: Transformadores Paranaenses TECNOTRAFO. Ruta Internacional N° 2, Calle Km 12, lado Acaray N° 1900 - B° Las Palmeras. Tel: (021) 338 3524 (0986) 793 283| contacto@trafosparanaenses.com.py.

Mandu’a - 3

Mandu’a es la Revista de la construcción más leída del Paraguay. Mensualmente ofrece noticias, tendencias, notas técnicas y guías de precios de materiales, mano de obra, costeo de obra y proveedores de la construcción.

La suscripción es gratuita para los profesionales de la construcción de todo el país.

Editorial

El potencial eléctrico de Paraguay y el futuro de la movilidad sostenible

Notas

Mujeres que han transformado la arquitectura

Proyecto nacional Yvyrupa

Proyecto internacional 11 Viviendas sociales

Industria & innovación Puerta Automática Corredera Manusa Easy SOS

Guías de precios de la construcción

Contacto

Ramón I. Cardozo c/ Andrés Gill Lambaré - Paraguay (021) 905 100 / (0981) 917 683 mandua@mandua.com.py www.mandua.com.py

EQUIPO - Gerencia: Estela Villalba. Dirección editorial: Yerutí Arza. Administración: Estela Villalba. Costeo: Carlos Gómez. Publicidad: Víctor Hugo Franco. Sofía Franco. Néstor Raimondo. Rubén Cabrera. Impresión: Artes Gráficas Castillo S.A. - Fundador: Mauri Arza.

EL POTENCIAL ELÉCTRICO DE PARAGUAY Y EL FUTURO DE LA MOVILIDAD SOSTENIBLE

Paraguay es un país privilegiado en la producción de energía eléctrica. Con la majestuosa represa de Itaipú y la hidroeléctrica de Yacyretá, nuestro territorio no solo es autosuficiente en generación eléctrica, sino que también exporta gran parte de esta energía renovable. Sin embargo, este potencial contrasta con una realidad que aún está en pañales: la infraestructura para vehículos eléctricos y la adaptación del país hacia un futuro más sostenible.

El mundo está cambiando. Los vehículos eléctricos (VE) han dejado de ser una promesa del futuro para convertirse en una solución real y necesaria ante los retos del cambio climático. En países vecinos, como Brasil y Argentina, se están desarrollando redes de carga para apoyar esta transición. Pero en Paraguay, a pesar de contar con la energía necesaria para liderar esta transformación, la adopción de VE y la infraestructura de carga son limitadas.

El desafío principal radica en la falta de inversión en estaciones de carga públicas y privadas, así como en incentivos claros para adquirir vehículos eléctricos. Además, la concienciación pública sobre los beneficios de esta tecnología aún es incipiente. Esto genera una paradoja: un país que produce energía limpia sigue dependiendo mayoritariamente de vehículos a combustión interna, importados y altamente contaminantes.

Sin embargo, el panorama no es del todo desalentador. Paraguay tiene una oportunidad única de convertirse en un referente regional en movilidad sostenible. Esto requiere voluntad política, un marco regulatorio que fomente la importación de VE y, sobre todo, un plan nacional para la instalación de estaciones de carga eléctrica. Un ejemplo a seguir podría ser el modelo implementado en Chile, donde la colaboración entre el sector público y privado ha permitido desarrollar una red de corredores de carga que conectan ciudades principales, como Santiago y Valparaíso, con puntos estratégicos en las fronteras. Otro caso destacado es el de Alemania, que cuenta con un sistema de subvenciones para infraestructura verde, el cual incluye un estricto control de calidad técnica de las medidas subvencionadas, garantizando así la eficiencia y sostenibilidad de las iniciativas. No podemos olvidar los beneficios económicos y ambientales de este cambio. La movilidad eléctrica podría reducir significativamente las emisiones de CO2, mejorar la calidad del aire en nuestras ciudades y disminuir nuestra dependencia de los combustibles fósiles importados. Además, podría abrir nuevas oportunidades para el desarrollo de tecnología local y empleo, vinculados al mantenimiento de estaciones de carga y vehículos.

Como país productor de energía eléctrica limpia, Paraguay está llamado a ser un líder regional en sostenibilidad. Este es el momento de actuar, de aprovechar nuestra ventaja natural y transformarla en progreso. Si logramos consolidar una red de infraestructura para VE y fomentar su uso, estaremos dando un paso firme hacia un futuro más limpio y prometedor.

Desde Mandu’a, instamos a las autoridades, empresarios y ciudadanos a apostar por este cambio. La movilidad eléctrica no solo es una tendencia global; es una oportunidad para redefinir el Paraguay del mañana. Aprovechémosla.

MUJERES QUE HAN TRANSFORMADO

LA ARQUITECTURA

La arquitectura, tradicionalmente dominada por hombres, ha sido moldeada de manera significativa por mujeres que han desafiado normas y dejado una huella imborrable en el diseño y la construcción. En el Mes de la Mujer, es importante reconocer y celebrar la contribución de arquitectas pioneras que han influenciado la disciplina con su creatividad, sostenibilidad e inclusividad.

- Revista Mandu’a

Acontinuación, exploramos la vida y obra de diez de las ar quitectas más influyentes en la historia.

1. Zaha Hadid (1950-2016)

La arquitecta anglo-iraquí se convirtió en un referente del diseño vanguardista con su enfoque futurista y fluido. En 2004, se convirtió en la primera mujer en recibir el prestigioso Premio Pritzker. Su obra inclu ye el Centro Heydar Aliyev en Azerbaiyán y el Centro Acuático de Londres, proyectos que desafiaron los límites estructurales y estéticos.

2. Lina Bo Bardi (1914-1992)

EN VIDRIOS TEMPLADOS,

FINEGLASS ES LA SOLUCION.

El mejor equipo de profesionales a su servicio y una planta industrial trabajando las 24hs. para acompañar sus proyectos con agilidad y eficacia.

VIDRIOS TEMPLADOS

Y TEMPLADO+LAMINADO

Nacida en Italia pero con un legado cimentado en Brasil, Lina Bo Bardi fusionó el modernismo con la cultura brasileña. Su obra más reconocida, el Museo de Arte de São Paulo (MASP), destaca por su innovadora estructura suspendida. También fue una fuerte defensora de la arquitectura social y la inclusión de materiales locales en el diseño.

3. Charlotte Perriand (1903-1999)

Colaboradora de Le Corbusier, Perriand revolucionó el diseño de interiores con un enfoque funcional y humanista. Su tra bajo combinó la innovación técnica con la comodidad, como se refleja en la icó nica chaise longue LC4. Defensora de la accesibilidad en la arquitectura, tuvo un impacto duradero en la forma en que in teractuamos con los espacios habitables.

4. Julia Morgan (1872-1957)

Primera mujer en graduarse de la École des Beaux-Arts de París, Morgan dejó un legado de más de 700 edificios en EE.UU. Diseñó el icónico Hearst Castle en California y se especializó en estructuras sísmicamente resistentes. Su obra se caracterizó por un refinado equilibrio entre la funcionalidad y la estética.

DOBLE VIDRIADO

HERMETICO (DVH)

Reduce la condensación de humedad sobre el vidrio evitando que se empañe. Manufacturado con Float de color ó reflectivo, brinda control solar y disminuye el resplandor de la excesiva luminosidad.

BARANDAS Y PISOS CON

VIDRIO TEMPLADO LAMINADO

Para proyectos enfocados a la seguridad y bienestar.

OFICINA COMERCIAL Oscar Bottana 100 esq. Cacique Caracará. Asunción. Tel. 0985 335000 ventas@fineza.com.py

Vidrios de seguridad para cada ambiente de tu hogar.
Virgen del Rosario 563
Beatriz Benítez. Itauguá.

5. Kazuyo Sejima (1956- )

Arquitecta japonesa y cofundadora de SANAA, Kazuyo Sejima ha sido una pionera del minimalismo y la integración de la luz en la arquitectura. Sus obras, como el Museo de Arte del Siglo XXI en Kanazawa y el Pabellón de la Serpentine Gallery en Londres, han influenciado la forma en que los espacios públicos pueden ser concebidos como ambientes abiertos y fluidos.

6. Odile Decq (1955- )

Reconocida por su enfoque audaz y su inclinación por el color negro, Odile Decq ha desafiado las convenciones arquitectónicas. Su estudio en Francia ha desarrollado proyectos icónicos como el Museo de Arte Contemporáneo de Roma (MACRO). Decq también ha sido una voz activa en la defensa de la equidad de género en la arquitectura.

7. Jeanne Gang (1964- )

Fundadora de Studio Gang, Jeanne Gang es conocida por su innovación estructural y su enfoque sostenible. Su diseño de la torre Aqua en Chicago no solo ha redefinido la silueta urbana, sino que también ha servido como modelo de eficiencia energética en rascacielos residenciales.

8. Marina Tabassum (1969- )

La arquitecta bangladesí, galardonada con el Premio Aga Khan, ha centrado su trabajo en la arquitectura social y sostenible. Su proyecto “Khudi Bari”, una vivienda móvil de bambú resistente a inundaciones, aborda las necesidades de comunidades vulnerables de manera innovadora.

9. Tatiana Bilbao (1972- )

Arquitecta mexicana con un enfoque en la arquitectura social y el urbanismo sustentable. Bilbao ha trabajado en proyectos de vivienda asequible que integran materiales y técnicas locales. Su estudio ha sido reconocido internacionalmente por su compromiso con la equidad en el diseño arquitectónico.

10. Yasmeen Lari (1941- )

Primera mujer arquitecta de Pakistán, Yasmeen Lari ha pasado de diseñar grandes edificios urbanos a desarrollar soluciones de vivienda sustentable para comunidades de bajos recursos. Su trabajo con técnicas de construcción tradicionales y materiales ecológicos ha sido un referente en la arquitectura humanitaria.

UN FUTURO CON EQUIDAD

Estas arquitectas han demostrado que la creatividad, la innovación y la resiliencia pueden derribar barreras históricas y construir un futuro más equitativo en la arquitectura. A medida que más mujeres ingresan a la profesión, su influencia seguirá transformando el paisaje urbano y redefiniendo la manera en que habitamos el mundo.

COLORES DE LA LINEA EUROPEA.

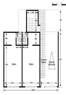
PROYECTO NACIONAL

Proyecto: SD+A.

Arquitecto a cargo: Sebastián Domaniczky.

Cálculo estructural: Felipe Ramirez Ilculese.

Fotografías: Leonardo Méndez.

Superficie: 838 m².

Año: 2024.

Ubicación: Benjamín Aceval.

Mandu’a

Descripción elaborada por el equipo del proyecto.

Yvyrupa. Morada de la tierra. Cabañas para hotel en Cerrito. La arquitectura de Yvyrupa busca reconectar al ser humano con su entorno primigenio. Inspiradas en las construcciones de los Mbya Guaraní, representan una respuesta consciente a la naturaleza, no como un espacio a ser dominado, sino como un compañero al que se le debe respeto.

- Revista Mandu’a

Aprovechando los claros naturales del bosque y empleando materiales autóctonos como la tierra y la madera, las cabañas se funden con el paisaje, minimizando su impacto y devolviendo a la naturaleza su protagonismo.

La intervención se realiza en un claro del bosque, respetando y adaptándose a su configuración natural.

La arquitectura no se impone, sino que fluye con el entorno, revelando una armonía entre lo construido y lo natural. Este diálogo silencioso entre los elementos encarna una filosofía que entiende el habitar como un acto humilde y poético, donde cada espacio es concebido como una extensión de la tierra misma.

Sección.

Planta.

Las cabañas, al integrarse con su entorno, crean un refugio que invita a la introspección y a la paz, promoviendo una experiencia sensorial única. En este proyecto, la naturaleza no es un fondo, sino un componente esencial del proceso creativo, donde la construcción y el paisaje son inseparables.

CARPINTERÍA DE ALUMINIO

CERRAMIENTOS

Finalizamos cerramientos impecables con carpintería de aluminio, fusionando estilo y resistencia en cada detalle.

@glass.finish Glass Finish Py contacto.glassfinish@gmail.com

11 VIVIENDAS SOCIALES

Proyecto: Carles Enrich Studio.

Dirección ejecutiva: Brufau Cusó.

Cálculo estructural: Bernuz Fernández.

Fotografías: Adrià Goula.

Superficie: 832 m².

Año: 2024.

Ubicación: Palma de Mallorca, España.

- Revista Mandu’a

Descripción elaborada por el equipo del proyecto.

El proyecto se desarrolla en una parcela estrecha, antiguamente ocupada por una cantera de marés, en la intersección de las calles Rut y Darwin, en El Coll d’en Rabassa, Palma. Su diseño busca completar el tejido urbano y responder a la emergencia climática mediante la construcción de once viviendas adaptadas a las preexistencias del lugar.

La estrategia formal separa el edificio de la medianera y conserva los restos geológicos, generando un volumen compacto y regular hacia el sureste, mientras que la fachada interior se retranquea, creando sombras y patios de diversas superficies. Este diseño optimiza el comportamiento pasivo del edificio, ofreciendo espacios exteriores asociados a las viviendas.

Axonometría.

Planta Baja.

Las unidades de planta baja tienen patios permeables, y las de planta alta cuentan con terrazas. Se han diseñado tres tipologías de vivienda (uno, dos y tres dormitorios), con un esquema espacial no jerárquico que elimina áreas de circulación y maximiza la superficie útil. Se prioriza la versatilidad y convertibilidad de los espacios, con cocinas y baños ubicados en una misma crujía técnica para optimizar instalaciones.

En cuanto a sostenibilidad, el proyecto incorpora estrategias pasivas de la arquitectura vernácula para adaptarse al cambio climático. Todas las viviendas cuentan con ventilación cruzada y lucernarios que funcionan como colectores solares y disipadores térmicos.

- Revista Mandu’a

vivienda tiene acceso independiente desde la calle, fomentando un modelo eficiente y sostenible sin necesidad de ascensores.

PUERTA AUTOMÁTICA CORREDERA MANUSA EASY SOS

Seguridad y Eficiencia en Evacuaciones de Emergencia.

En el diseño de infraestructuras con alta afluencia de personas, la seguridad es un aspecto clave. Las puertas automáticas correderas Manusa Easy SOS ofrecen una solución innovadora que combina eficiencia y cumplimiento normativo en situaciones de emergencia.

Funcionalidad Dual para Mayor Seguridad

Las Manusa Easy SOS operan en dos modos:

• Modo normal: Funcionan como puertas correderas automáticas, facilitando el tránsito ágil y seguro en el día a día.

• Modo emergencia: Ante una situación crítica, las hojas pueden abatirse manualmente con un simple empuje, ampliando la zona de paso para una evacuación rápida y sin obstáculos.

Optimización de la Zona de Paso

Gracias a su mecanismo de repliegue lateral, estas puertas garantizan una apertura máxima para el flujo eficiente de personas, lo que las hace ideales para aeropuertos, estaciones, centros comerciales y otros espacios de alto tránsito.

Sistema Antipánico de Respuesta Inmediata

El innovador sistema antipánico permite que las hojas abatibles se activen con facilidad, garantizando una salida expedita en momentos críticos. Su diseño cumple con las normativas internacionales de seguridad y ofrece durabilidad y modernidad en su aplicación.

Las puertas Manusa Easy SOS representan la combinación perfecta entre funcionalidad y seguridad, asegurando una evacuación eficiente en entornos exigentes.

Para más información, visite el local de ShoppinGlass en Itapé 216 c/ Solar Guaraní, Lambaré, o comuníquese a los teléfonos (021) 906-951/2 - (021) 328 0572 - (0971) 543 246. También puede acceder a la web de la empresa: www.shoppinglass.com.py.

MANO DE OBRA

MANO DE OBRA

Trabajos preliminares

Demoliciones

De mampostería con recuperación

1 De 0,45 m

2 De 0,30 m

3 De 0,15 m

18.000 De mampostería sin recuperación

1 De 0,45 m

2 De 0,30 m

3 De 0,15 m

Demoliciones varias

1 De techo de teja con recuperación

2 De techo de teja sin recuperación

3 De techo de chapa

4 De techo bovedilla

5 De cielorraso armado (desmontar)

6 De losa de Hº Aº

7 De piso/revoque/revestimiento

8 De contrapiso (cuando no hay piso)

9 Sacar zócalo

10 Sacar azulejos

8.000 11 Sacar artefactos sanitarios

13 Sacar mamparas (Durlock, Duratec, etc.)

14 Sacar Aire Acondicionado

14 Desmontar electricidad (boca)

16 Abrir

Preparacion de obra

1 Limpieza de terreno (no incluye corte ni destronque de árboles)

Destronque de árboles

1 Árbol chico

2 Árbol mediano

4000

3 Árbol grande un 528.000

4 Árbol extragrande

1

2

2

Casilla de obrador

Vallados, cercos, alambrados

3 Tendido

Losas

1

2 Losa + columna + viga

3 Losarap montaje y hormigonado

4 Pre Losa montaje y hormigonado

Cadenas

1 Cadena 13x30 PB m

2 Cadena 20x40 PB

ESCALERAS

1 Tramo compensado a=1.20 m c/ escalón

2 Tramo recto a= 1.20 m cada escalón, un

PISOS

1 Piso rodillado espesor 12 cm

2 Piso rodillado espesor 10 cm

3 Piso rodillado espesor 08 cm

4 Piso allanado espesor 15 cm (Incluye Alquiler máquina)

5 Piso allanado espesor 12 cm (Incluye Alquiler máquina)

6 Piso allanado espesor 10 cm (Incluye Alquiler máquina)

7 Piso allanado espesor 08 cm (Incluye Alquiler máquina)

Fundaciones

1 Cimiento PBC sin excavación

2 Hormigón ciclópeo sin excavación

Mamposteria y muros

Nivelación con ladrillo común

1 De 0,15 m armada

2 De 0,30

3 De 0,30 m

4 De 0,45 m

Panderete

1 De 0,07 - 0,10 m

Elevación 0,15 m con ladrillo común

1 De 0,15 m

2 De 0,15 m armada

3 De 0,15 m,1 cara vista

4 De 0,15 m,1 cara vista y lijada

5 De 0,15 m,1 cara vista con ladrillo laminado

Elevación 0,20 m con ladrillo común

1 De 0,20 m

2 De 0,20 m,1 cara vista y lijada

3 De 0,20 m,1 cara vista con ladrillo laminado

Elevación 0,30 m con ladrillo común

1 De 0,30

2 De 0,30 m armada

3 De 0,30 m,1 cara vista

4 De 0,30

5 De 0,30 m,1 cara vista con ladrillo laminado

6 De 0,30 m, 2 caras vistas con ladrillo laminado

Pilar 40x40 cm, Visto con ladrillo común m

con piedra

Muro de piedra 0,40 m 1 cara vista

Muro de ladrillo convocó 2 caras vistas

Elevación con ladrillos huecos

De 0,20 m, 1 cara vista

De 0,24 m

Elevación estructural con ladrillo portante

De 0,15 m

con bloques de hormigón

Servicios para mampostería

Lijada de mampostería para visto

Lijada de pilar o

Aislación hidrófuga

Horizontal sin asfalto (1:3), sin alisada

De 0,15 m

De 0,30 m

Horizontal en “U” con asfalto

De 0,15 m

De 0,30 m

Aislación Hidrófuga

MANO DE OBRA

Dinteles

1 En mampostería c/ 2 varillas m 11.000

2 Sobre aberturas c/4 varillas m 15.000

3 Colocación de dintel prefabricado m 15.000

4 Dintel zuncho de bloque m 31.000

5 Colocación de perfil de hierro m 15.000

Contrapisos (no incluye alisada)

1 Apisonado de Hº cascotes 8 cm m² 15.000

2 Apisonado de Hº cascotes 10 cm m² 18.000

3 Apisonado de Hº cascotes 10 cm, c/ pendiente m² 21.000

4 Apisonado de Hº cascotes 20 cm m² 26.000

5 Apisonado sobre losa Hº Aº e=7cm m² 14.000

6 Apisonado sobre losa Hº Aº e=6cm m² 13.000

7 Apisonado de Hº cascotes con varilla m² 21.000

8 Hº Aº e=7cm m² 33.000

Revoques

Revoque de paredes

1 Común, fratachado o peinado m² 22.000

2 Común, fratachado y filtrado m² 22.000

3 Común, fratachado y filtrado; h=+5.00 m

30.000

4 Común, fratachado o peinado; h=+5.00 m m² 30.000

5 Fino o filtrado sobre revoque peinado existente m² 11.000

6 A 2 capas (grueso + fino) m² 30.000

7 A la lona o bolseado m² 13.000

8 Salpicado m² 22.000

9 Base para revestidos m² 22.000

Azotadas hidrófugas para adherencia:

10 Espesor = 1 cm x ladrillo

10.000

11 Espesor = 0,5 cm x ladrillo m² 7.000

12 Espesor = 0,5 cm x ladrillo en h=+ 5,00 m

13 Espesor = 1 cm x ladrillo en h=+ 5,00 m exterior

14 Azotada p/ impermeable

Revoque de cielorrasos

1 Azotada para adherencia por losa de Hº Aº, 0,5 cm

10.000

13.000

10.000

8.000

2 A 1 capa fratazado y filtrado sin azotada m² 33.000

3 A 1 capa fratazado y filtrado con azotada

4 A 2 capas (grueso + fino),con azotada

5 A 2 capas sin azotada

6 Azotada o base planchada de metal desplegado

Revoque de vigas/pilares/aristas

1 Revoque de arista o canto

46.000

42.000

13.000

10.000

2 Revoque de babetas o buñas m 15.000

3 De mochetas con 2 aristas (0,15x0,15) m 21.000

4 De goterón en alero

5 De losa de Hº Aº

6 De ductos m 21.000

7 De vigas de Hº Aº de 15x20 ó 20x30 cm (incluye azotada + aristas)

9 Revoque de pilares 4 caras y aristas m

1 De teja española con tejuelón; incluye: maderamen, aislante, caballete y bocateja

2

3 De teja española con tejuelita incluye: maderamen, aislante, caballete y bocateja

4 De teja española sobre machimbre: maderamen, aislante, caballete y bocateja

5 De teja francesa sobre machimbre

6 De teja francesa vana

7 De chapa galv. s/ estruc. de tirantes 2x6”

8

9 De chapa de fibrocemento acanalada autoportante

37.000

8 De vigas de Hº Aº de 20x40 ó 30x50 cm (incluye azotada + aristas) por cara m 46.000

Montaje de maderamen c/ tirantes 2x5” o 2x6” cepillados

15 Techo metálico (tinglado), preparación y montaje

Cielorrasos (incluye armazón de madera)

1

Sobre carpeta existente

1 Cerámica esmaltada P I 5 m² 34.000

2 Cerámica esmaltada en baño m² 31.000

3 Cerámica esmaltada en escalón m 39.000

4 Cerámica porcellanato m² 37.000

5 Piso calcareo m² 26.000

Carpeta o base

1 Para alfombra o cerámica e=2cm m² 18.000

2 Alisada de cemento e=3cm m² 24.000

3 Para alfombra o cerámica en escalones un 18.000

4 Regleado rústico m² s/c

5 Alisada sobre contrapiso m² 7.500

6 Banquina p/ placard (contrapiso + carpeta hidrófuga) m 33.000

7 Baldosa calcárea o canto rodado m² 26.000

8 Mosaico granítico m² 26.000

9 Pulido de mosaico granítico

10 Layota nacional o esmaltada

11 Veredita calcárea

12 Ladrillo común

13 Tejuelita

14 Baldosones de hormigón, 40x40 cm

26.000

26.000

21.000

15 Piso de HºAº rodillado de 12 cm m² 36.000

16 Plancha de granito o mármol

44.000

17 Plancha de mosaico granitico m² 39.000

18 Parquet a bastón roto o tipo colonial clavado

53.000

19 Parquet de lapacho tarugado m² 59.000

20 Parquet de machimbre curupa’y, 1 x 3” pulido y lustrado m² 67.000

21 Piso de madera rasqueteado y encerado m² 60.000

22 Alfombra multipiso m² 18.000

20 Piso vinílico 30x30 m² 23.000

21 Piedra losa rompecabeza con junta tomada

22 Piedra losa rectangular

39.000

39.000

23 Piedra losa 30x30, 30x40 y 40x40 m² 39.000

24 Piedra ardosia m² 39.000

25 Piedra laja m² 39.000

26 Piedra rústica roja Misiones m² 39.000

27 Piedra triturada esparcida a mano m² 7.000

28 Adoquín de piedra m² 42.000

Varios

1 Colocación tapa metálica en cámara de inspección un 44.000

2 Colocación rejilla en cámara de inspección un 44.000

Empedrado

1 Empedrado, h=0,20 m sin cordón m² 17.000

2 Empedrado, h=0,40 m sin cordón m² 28.000

3 Colocación de cordón Hº Prefabricado m 13.000

Calcáreo

Cerámico

Layota

Mármol

Cámara séptica (1,00x1,60x1,20 m) con excavación un 990.500 25 Pozo absorvente (Ø: 1.50 m x altura 3,00 m) con excavación un 1.650.000

Desagües para baño 1 Baño completo standard

Baño completo con bañera un 380.000

Baño de servicio un 222.000 4 Baño social un 159.000 5 Para pileta de lavar y lavarropas un 159.000 6 Para pileta de cocina (incluye desengrasador y caja sifonada) un 126.000

Agua corriente

1 Caño PVC 1” (incluye excavación, colocación y protección) m 16.000 2 Idem anterior de 3/4 m 13.000 3 Idem anterior de ½ m 8.000 4 Instalación de canilla de patio, + 5 ml de cañería un 64.000 Instalación agua fría

Para baño

Para baño de servicio

5 Para pileta de cocina un 126.000

Instalación agua caliente y fría

1 Para pileta de cocina un 254.000

2 Para baño completo un 697.000

Colocación de artefactos

Sanitarios y Grifería

1 Baño completo 115,500 x 4 un 462.000

2 Baño de servicio 100.500 x 2 un 234.000

3 Baño social 117.000 x 2 un 234.000

4 Pileta de cocina un 122.000

5 Pileta de lavar un 122.000

6 Bañera común un 314.000

7 Bañera hidromasaje un 524.000

8 Accesorios de baño (jabonera, percha, etc) un 22.000

9 Colocación de calefón un 175.000

9 Colocación de ducha eléctrica un 33.000

Instalación eléctrica

1 Boca de luz un 53.000

Trabajo de Albañilería

1 Pilar de mampostería para medidor de 0,45x0,45x1,70 m no incluye cimiento ni nivelación un 480.000

2 Registro eléctrico c/ drenaje y tapa de 30x30x40 cm un 105.000

3 Idem anterior 40x40x70 cm un 131.000

4 Colocación caja aire acondicionado un 72.000

Puesto de medición provisorio 1

1 Monofásico 12 bocas

2 Trifásico 14 bocas

Puesto de medición definitivo 2

1 Monofásico 14 bocas

2 Trifásico hasta 3A 18 bocas

Tablero principal o seccional

1 Colocación de caja embutida en mampostería hasta 40x50 cm 3 bocas

2 Disyuntor TM de corte principal o seccional o de circuito unipolar 2 bocas

3 Idem anterior tripolar 3 bocas

4 Instalación de interruptor diferencial 6 bocas

Líneas subterráneas

(Incluye excavación a una profundidad de 0,50 m en tierra firme y sin piedra, instalación de eléctroducto con protección mecánica y cableado)

1 Monofásica de 4 a 10 mm m 7.000

2 Trifásica de 4 a 10 mm m 13.000

3 Trifásica de 16 a 25 mm m 21.000

Línea embutida en mampostería (incluye colocación de electroducto y cableado)

1 Monofásica de 4 mm m 7.000

2 Monofásica de 6 mm m 7.000

3 Monofásica de 10 mm m 8.000

4 Trifásica de 4 a 10 mm m 11.000

5 Trifásica de 16 a 25 mm m 13.000

Líneas aéreas

1 Monofásica de 4 a 10 mm m 3.000

2 Trifásica de 4 a 10 mm m 7.000

3 Trifásica de 16 a 25 mm m 9.000

Electroductos embutidos en mampostería sin cableado

1 De 5/8” m 3.000

2 De 1/2” m 3.000

3 De 3/4” m 3.000

4 De 1” m 3.000

Lámparas y tomas de corriente (Embutidos en mampostería hasta 5m del tablero)

1 Una lampara con su interruptor 1 boca

2 Una lámp. c/ 2 llaves de comb. de escalera 2 bocas

3 Una Toma corriente 1 bocas

4 Por llave de 4 vías o intermedia adicional 1 boca

Circuitos independientes

1 Circuito para aire acondicionado sin montaje de aparato ni abertura de mampostería hasta 5 m del tablero (mismo que recorran cañerías con otros circuitos)

4 bocas

2 Circuito p/ calefón o ducha eléctrica idem anterior 4 bocas

3 Circuito monof. p/ motobomba c/ cable de 4mm hasta 5 m del tablero 4 bocas

Colocaciones

1 Aire acondicionado

3 Tubo fluorecente doble un 16.200

4 Apliques y arañas un 16.200

Carpinteria de aluminio

Colocación de premarco de aluminio:

1 Chico 1 m² un 64.000

2 Mediano 3m² un 92.000

3 Grande 4 m² un 125.000

4 Extra grande 5 m² un 150.000

Carpintería de madera

Colocaciones

4 Puerta persiana o vidriera chica hoja 46.000

5 Puerta tablero un 96.000

6 Puerta tablero principal incluye hoja, manijón y visor un 128.000

7 Ventana persiana o vidriera 0,65 x 1,00 mt hoja

Carpintería metálica

Colocaciones de:

1 De marco de chapa doblada de 0,80x2,10 m un 66.000

2 De marco de chapa doblada de 1,50x1,20 m un 88.000

3 De marco de chapa doblada con relleno un 88.000

4 De marco metálico - ángulo un 66.000

5 De guías metálicas y taparrollo p/ cortina de enrollar un 264.000

6 De reja de hierro entre marcos un 44.000

7 De reja de hierro aplicada a la pared un 61.000

8 Portón de hierro 1,00x1,50 m un 106.000

9 Balancín chico 40x40 cm sin revoque un 44.000

10 Balancín mediano 1,00x1,50 m sin revoque un 77.000

11 Balancín grande 2,00x1,80 m sin revoque un 98.000

12 Portón cochera de 3,00x1,50 m un 185.000

13 Baranda de escaleras m 23.000

14 Pasamanos,}

15 Escalera metálica

16 Puerta metálica corta fuego un 175.000

17 Puerta metálica mosquitera un 106.000

18 Tinglado, preparación y montaje

Pintura de pared

55.000

Pintura

1 A la cal blanca m² 9.000

2 A la cal color m² 11.000

3 Al látex interior/exterior con enduido m² 24.000

4 Al látex interior/exterior sin enduido

5 Al látex exterior con enduido en altura

6 Al látex exterior sin enduido en altura

7 Al esmalte sintético

1

1 De pared

2 De abertura de madera

29.000

19.000

2 Rejas, barandas y balancines

cromato y esmalte sint

Canaletas y bajadas

1 Con base p/ galvanizado y esmalte sintético m 10.000

Ladrillo visto, hormigón y piedra

1 Limpieza, curado y siliconado o barnizado m² 15.000

2 Limpieza, curado y siliconado o barnizado en altura m² 17.000

3 Limpieza, curado y pintura a la cal m² 12.000

4 Pintura texturada

Pintura en silleta

1 Hasta 30 m de altura

2 Desde 30 a 70 m de altura

35.000 Varios

1 Moldura doble m 63.000 2 Moldura sencilla m 49.000

3 Estufa con boca 1,00 m un 1.849.000

4 Parrilla con boca 1,00 m, un 1.980.000

5 Colocación balaustre sencillo m s/c

6 Tanque de fibra de vidrio 500 l un s/c 7 Tanque de fibra de vidrio 1000 l

8 Limpieza final de obra m2 3.000 Jornal de mercado

Capataz - día 208,800 h 31.375 2 Oficial - día 167,000

3 Medio oficial - día 135,700

4 Ayudante - día 94,000 h 14.875 Honorario técnicos 01 Dibujante h 28.000 02 Dibujante por lámina

Copias Plotter por lámina un

15.000 Techo

1 Tejuelita a la cal y maderamem c/ esmalte sintético

17.000

2 Tejuelón y maderamem barnizado m² 17.000

3 Tejuelita o tejuelón barnizado y maderamem con esmalte sintético

17.000

4 Pintura de alero de 0,60 m m 20.000

Cielorrasos

1 Al látex con fijador sin enduido m² 13.000

2 Al látex con enduido

3 A la cal

4 Barnizado de machimbre

Aberturas de madera

1 Marco y hoja con esmalte sintético

2 Marco y hoja con barniz

Aberturas metálicas

1 Marco y hoja c/ cromato y esmalte sintético

10.000

15.000

SALARIO MÍNIMO

DECRETO N° 1909/2024

POR EL CUAL SE DISPONE EL REAJUSTE DE LOS SUELDOS Y JORNALES MÍNIMOS DE TRABAJADORES DEL SECTOR PRIVADO.

Art. 1°, Dispónese el reajuste del salario mínimo legal del trabajador del sector privado en cuatro coma cuatro por ciento (4,4 IP/o) con relación al establecido según Decreto N° 9584 del 29 de junio de 2023, que regirá a partir del 1 de julio de 2024, en las actividades expresamente previstas, escalafonadas y las diversas no especificadas. Art. 2°.- Establécese el salario mínimo legal vigente a partir del 1 de julio de 2024 en dos millones setecientos noventa y ocho mil trescientos nueve guaraníes (G. 2.798.309.-) y el jornal mínimo en ciento siete mil seiscientos veintisiete guaraníes (G. 107.627.T), de conformidad con el artículo 10 de este decreto.

Losa fck=21MPa

COSTEO DE OBRA

TRABAJOS PRELIMINARES

Relleno y Compactación

Tierra gorda, m3

Mano de obra, m3 1,00 44.000 44.000

Total por: m3

Cartel de Obra (de 1.40x2.80m con marco metálico y lona. A retirar y sin colocación)

Cartel de obra, un

Vallado de Obra

Chapa cincalum Nº 28, un 0,50

2.44x0,90,

Puntal de eucalipto pulg/

Clavo con cabeza de un

plomo,

Encadenado Inferior 13x20 en PB

Encadenado 13x30 cm

ESTRUCTURAS DE HORMIGON ARMADO

Zapata fck=18 MPa

Encadenado 30x30 cm

Columna fck=21 MPa

Escalera de HºAº fck=21MPa15 escalones de 0.30x1.10m y 1 descanso

Viga fck=21MPa

Losa Rap h=12+5=17cm, luz hasta 4,70m (1:2:3,5)

Losa Rap h=20+4=24cm, luz mayor a 4,70 m (1:2:3,5)

Cimiento PBC sin cal (1:12) m3

Cimiento de H° de Cascotes - Tierra Gorda

Losa Listalosa

Cemento

Piso HºAº fck=21MPa - Tráfico ligero 10 cm Cemento tipo 1,

Cimiento de H° de Cascotes - Arena Lavada

1” a 7”, kg 0,40 18.000 7.200

kg 0,35 19.850

SIKAFLEX Sellador de pomo 0,33 57.000 18.810 juntas - 300ml,

Ciclópeo (1:3:6)

triturada de IV, tn

MAMPOSTERIAS

De Nivelación

Con ladrillo común y junta de 2 cm

De 0.30 m de ancho (1:2:8) con cemento Tipo 1

Ladrillo común, un

tipo 1, kg

lavada,

De 0.30 m armada (1:4) con cemento Tipo 1

Ladrillo común, un 122 700 85.400 Cemento tipo 1, kg 16,0 1.100 17.600

FUNDACIONES

Cimiento PBC con cal (1/2:1:4) Piedra

De 0.45 m de ancho (1:2:8) con cemento Tipo 1

Ladrillo común, un

COSTEO DE OBRA

De Elevación

Con ladrllo común y junta de 2 cm

De 0.15 m (1:2:10) con cemento tipo 1

Ladrillo común,

De 0.15 m (1:2:10) con cemento tipo 1 - A la vista

Con Ladrillos Cerámicos Huecos y junta de 1,5

De 0.15 m (1:2:8) con cemento tipo 1

Ladrillo 6 tubos de 1ra, un

12x18x25 cm Ita Yby,

De 0.20 m (1:2:10) con cemento tipo 1

Ladrillo

De 0.20 m (1:2:10) con cemento tipo 1 - A la vista

Ladrillo

De 0.30 m (1:2:10) con cemento tipo 1

Ladrillo común,

De 0.07 m (1:2:10) con cemento tipo 1 y junta de 1.5 cm

Ladrillo

De Elevación

De 0.15 m (1:2:8) 1 cara vista con cemento tipo 1

Ladrillo 6 tubos de 1ra, un 20,0 1.298

12x18x25 cm Ita Yby,

De 0.20 m (1:2:8) m con cemento tipo 1

Ladrillo hueco un

18x18x25 Ita Yby

De 0.20 m (1:2:8) con cemento tipo 1

Ladrillo 6 tubos de 1ra, un

8x18x25 cm Ita Yby

De 0.15 m (1:2:8) con cemento tipo 1 Ladrillo de 1ra A,

6x12x25 cm Ita Yby,

Elevaciones Varias

Sardinel de Ladrillos Comunes

Sardinel de Ladrillos Laminados

Ladrillo laminado Ita Yby un 14,0 1.265 17.710

1ra A, 6x12x25 cm

Cemento tipo 1,

Ladrillo Convocó

Ladrillo

de 1ra, 19x19x10 cm Yoayu

tipo 1,

Muro de Piedra Bruta de 30 cm (1/2:1:4)

AISLACION

COSTEO DE OBRA

Horizontal 0.30 con asfalto Cemento tipo 1,

Horizontal 0.15 con asfalto

Cemento tipo 1, kg 1,00 1.100 1.100 Arena lavada, m3 0,02 65.000

Vertical con Panderete 0.15 m Ladrillo común, un 27,0

De Losa con Piso de Tejuelita Prensada

Pilar de Ladrillo Común 30x30 (1:1:6)

Pilar de Ladrillo Común 30x30 (1:1:6) - A la vista

Ladrillo común un

Muralla de Ladrillo Común (e=0.15m, h=2.00m, con pilares de 0.30 x 0.30 cada 2.00m)

De Losa Para Baño

DINTELES

De Varilla Sobre Abertura

De Hormigón Prefabricado

0.30x0.30 m a la vista,

COSTEO DE OBRA

CONTRAPISOS

De 7 cm (1/4:1:4:6) Cemento tipo

De 10 cm (1/4:1:4:6)

De 20 cm en Losa Sanitaria

TECHOS

Teja Española sobre Tejuelón c/ Madera de Ybyrapyta

Teja

Teja Francesa, Marsellesa o Romana

Machimbre

REVOQUES

De Paredes

A 1 Capa, Espesor 1.5 cm (1:4:16) con hidrófugo

Cemento

A 1 Capa, Espesor 1.5 cm (1:4:16) s/ hidrófugo, m2 29.850

Salpicado (1:3)

Cemento tipo 1, kg 3,00 1.100 3.300

Arena lavada, m3 0,01 65.000 650

Ceresita hidrófugo, kg 0,25

Azotada Impermeable (1:3), Espesor 0.5 cm

Cemento tipo 1, kg 2,70 1.100 2.970

Arena lavada, m3 0,01 65.000 650

Ceresita hidrófugo, kg 0,30 6.150 1.845

Mano de obra, m2 1,00 7.000 7.000

Total por: m2 12.465

De Cielorrasos (1:4:12) Cemento

Chapa N° 28 s/ estructura de caños metálicos

Chapa N° 28 s/ Estructura de Varillas torsionadas

Chapa Nº

Chapa de Fibrocemento Ondulada 6 mm Chapa,

Mosaico Graníto Lavado (para exterior 30x30cm)

TECHO METÁLICO CON CHAPA TRAPEZOIDAL

Separación entre correas 1,20 m

Varios incluye pintura, electrodo, aguarras, discos Chapa trapezoidal N°27 0.40 mm 1.05 x

(ancho util 0.98)

Cerámica Esmaltada

TECHO METÁLICO CON CHAPA TERMOACUSTICA

Con cabriada de 40 x 12 cm. No incluye pilares.

Chapa con isopor 30 mm Galva/Marfil Econml

C 100x38 1.80mm

Entrepiso de Madera

Tirante de ybyrapyta

PISOS

Baldosa Calcárea

Baldosa

Mosaico Granítico (base gris 30x30cm)

Cemento tipo 1, kg 8,00 1.100 8.800

Cal triturada, kg 7,00 1.225 8.575

Arena lavada, m3 0,03 65.000 1.950

Pastina base gris, kg 0,75 6.000 4.500

Mano de obra pulido, m2 1,00 26.000 26.000

Ceramica 45x45cm

60x60cm

Layota 28x28cm

Plancha para Revestido de Escalera

Piedra Losa Rompecabeza

COSTEO DE OBRA

Piedra losa Blanca Cuadrada Pulida

Piedra losa blanca m2 1,00 95.000 95.000

pulida,

Alisada de Cemento

Baldosones de Hormigón (40x40x3cm)

Baldosón

Carpeta para Piso Cerámico o Alfombra Cemento

Calcáreo Base Gris

Alfombra (2mm sin carpeta)

Alfombra multipiso, m2 1,10

Empedrado

Piedra bruta blanca, m3 0,20 150.000 30.000 Arena lavada, m3 0,15 65.000 9.750

Ripio de piedra, tn 0,07 70.000 4.900 Mano de

Hormigón Armado

ZOCALOS Cemento

Madera 3/4 x 3”, Zocalo de cedro,

Alfombra

Cerámica Esmaltada

Mosaico Granítico (base blanca pulido 10x30cm) Zócalo

Layota 28x10cm

CIELORRASO

De machimbre c/ armazón de madera, no incluye corniza

Liston de cedro 1x2”, ml 10,0 5.000 50.000

Machimbre

REVESTIDOS

“No incluye la base previa”

Piso Pared Cecafi Cecafi 32 x57cm m2

Porcelanato 60 x 60 cm

Piso Pared 31 x 31 cm

Ladrillejo

Ladrillejo de 1ra Yoayu

Piedra Laja Fina (1 a 2 cm de espesor)

Piedra laja fina, m2 1,05 50.000 52.500 Cemento tipo 1, kg 3,00 1.100 3.300 Cal triturada, kg 2,50

DESAGÜE CLOACAL Y PLUVIAL

Boca Desagüe Abierta 20x20x20cm

Ladrillo

Boca Desagüe Abierta 30x30x30cm

Ladrillo

Boca Desagüe Abierta 40x40x40cm

Ladrillo

Registro 30x30x30cm

Ladrillo común,

Registro 40x40x40cm

Registro 60x60x50cm

Caño

Caño PVC 100mm Caño

Caño de Hormigón 50cm, Roto Comprimido

Caño de Hormigón 60cm, Roto Comprimido

COSTEO DE OBRA

Caño de 80cm Hº Aº Vibrado Simple - Macho/Hembra

Caño de 80 cm, un 1,00 399.500 399.500

Mano de obra, ml 1,00 70.000 70.000

Total por: ml 469.50

Pozo Ciego (Diámetro=1.50 m y h=3.00 m)

Ladrillo común,

Cámara Séptica (1x1.60x1.20m)

Ladrillo común, un

Cemento

Rejilla de Piso Sifonada

Caja sifonada cuadrada

Desagüe Cloacal p/ Baño Completo (hasta el primer registro)

Caño 100 mm Titan, ml 2,00 14.000 28.000

Caño de PVC 50 mm, ml 2,00 11.250 22.500

Caño PVC 40 mm, ml 4,00 7.450

Codo 90º p/ desagüe 100mm un 1,00 11.150 11.150

Codo 90º p/ desagüe , buje largo 40mm, un 2,00 1.550 3.100

Codo 45º p/ desagüe un 2,00 1.600 3.200 secundario 40mm,

Caja sifonada

150x150x50mm, un 2,00 72.000 144.000 c/ rejilla aluminio

Adhesivo 75 gr, un 2,00 9.200 18.400

Mano

Desagüe Cloacal p/ Baño de Servicio

(hasta el primer registro)

Caño 100 mm, ml 2,00 14.000 28.000

Caño PVC 50 mm, ml 1,00 11.250 11.250

Caño PVC 40 mm, ml 3,00 7.450 22.350

Codo 90º p/ desagüe un 1,00 11.150 11.150 primario 100mm,

Codo 45º p/ desagüe un 1,00

primario 100mm,

Codo 45º p/ desagüe un 1,00 4.000 4.000 primario 50mm,

Codo 90º p/ desagüe un 1,00

secundario, buje largo 40mm

Codo 45º p/ desagüe un 2,00 1.600 3.200 secundario 40mm, Ramal de reducción 45º un

simple p/ desagüe primario 100x50mm, Caja sifonada cuadrada un

nº 25, 150x150x50mm, Prolongador un 1,00 7.950 7.950 150x150mm p/ caja

Anillo de sellado p/ un 3,00 5.000 15.000 desagüe 100 mm,

Anillo de sellado p/ desague 50mm un 2,00 2.900 5.800

Adhesivo

Desagüe Cloacal Para Baño Social (hasta el primer registro)

Caño

Caño

Caño

Codo

primario 100mm,

Codo 45º p/ desagüe un

primario 100mm,

Codo 45º p/ desagüe un

primario 50mm,

Codo 90º p/ desagüe un

1.550 secundario, buje largo 40mm

Codo 45º p/ desagüe un 2,00 1.600 3.200 secundario 40mm,

Ramal de reducción 45º un

16.500 simple p/ desagüe primario 100x50mm, Caja sifonada cuadrada un 1,00

72.000 nº 25, 150x150x50mm, Anillo de sellado p/ un 2,00 2.900 5.800 desagüe 50 mm, Anillo de sellado p/ un 3,00 5.000 15.000 desagüe 100 mm, Adhesivo 75 gr, un

Total por: un 388.000

Desagüe para Pileta de Lavar y Lavarropas

Caño PVC 50 mm, ml 2,00 11.250 22.500

Caño PVC 40 mm, ml 3,00 7.450 22.350

Codo 90º p/ desagüe un 2,00 1.550 3.100 secundario, buje largo 40mm

Codo 45º p/ desagüe un 2,00 1.600 3.200 secundario 40mm,

Caja sifonada cuadrada un 1,00

nº 25, 150x150x50mm,

Adhesivo 75 gr, un 0,50 9.200 4.600

Limpiador 200 cc, un 0,50 27.000 13.500

Mano de obra, un 1,00 159.000 159.000

Total por: un 300.250

Desagüe para Pileta de Cocina

Caño PVC 50 mm, ml 3,00 11.250 33.750

Codo 90º p/ desagüe un 2,00 4.500 9.000 primario 50mm,

Ramal de reducción 45º un 1,00 16.500 16.500 simple p/ desagüe primario 100x50mm,

Desengrasador redondo un 1,00 67.000 67.000 nº 70, 250x172x50,

Adhesivo 75 gr, un 0,50 9.200 4.600

Limpiador 200 cc, un 0,50 27.000 13.500 Mano de obra, un 1,00

por: un

AGUA CORRIENTE

Caño PVC de 1”

Caño PVC roscable, ml 1,00 27.850 27.850

Mano de obra, ml 1,00 16.000 16.000 Total por: ml 43.850

Caño PVC de 3/4”

Caño PVC roscable ml 1,00 12.850 12.850

Mano de obra, ml 1,00 13.000 13.000

Total por: ml 25.850

Caño PVC de 1/2”

Caño PVC roscable, ml 1,00 9.850 9.850

Mano de obra, ml 1,00 8.000 8.000

Total por: ml 17.850

Instalación Agua Fría en Baño Completo

Caño 1/2” roscable, ml 9,00 9.850 88.650

Codo 90º roscable, 1/2”, un 6,00 1.660 9.960 Llave de paso de 1/2” un 2,00 87.700 175.400 cromada FV Linea Clásica

Tapon roscable macho ½”un 4,00 690 2.760

Tee 3/4”x1/2” IPS, un 4,00 3.400 13.600

Adhesivo 75 gr, un 0,60 9.200 5.520

Cinta teflon 18mmx25m, un 2,00 9.600 19.200

Mano de obra, un 1,00 412.000 412.000

Total por: un 727.090

Instalación Agua Caliente y Fría en Baño Completo

FV Linea Clásica, Tapón

Instalacion Agua Caliente y Fría

Instalación Agua Fría en Baño de Servicio Caño 1/2” roscable, ml

bajada de un

embutir p/ cisterna nº 4, Tapón roscable macho

de paso 1/2” un

bronce sin campana, Adhesivo 75gr, un

Agua Fría en Baño Social

secundario, 40mm,

Linea Clásica, Adhesivo 75gr, un

Instalación Agua Fría en Baño Social - FV Allegro

Instalación Agua Fría p/ Pileta de Lavar y Lavarropas Caño 1/2” roscable, ml 3,00 9.850 29.550

COSTEO DE OBRA

Codo 90º roscable, 1/2”, un 3,00 1.660 4.980

Tee 90º p/ desagüe un 1,00 4.000 4.000 secundario, 40mm,

Tapon roscable macho ½”un 2,00 690 1.380

Llave de paso de 3/4” un 1,00 84.000 84.000 bronce sin campana,

Adhesivo 75gr, un 0,20 9.200 1.840

Cinta teflon 18mmx25m, un 1,00 9.600 9.600

Mano de obra, un 1,00 191.000 191.000 Total por: un 326.350

Instalación Agua Fría para Pileta de Cocina

Caño 1/2” roscable, ml 2,00 9.850 19.700

Codo 90º roscable, 1/2”, un 3,00 1.660 4.980

Tapón roscable macho ½”un 1,00 690 690

Llave de paso 1/2” un 1,00 58.000 58.000 bronce sin campana,

Adhesivo 75gr, un 0,20 9.200 1.840

Cinta teflón 18mmx25m, un 1,00 9.600 9.600

obra, un

Instalación Agua Caliente y Fría p/ Pileta de Cocina

Caño de 1/2” p/ agua calienteml 6,00 10.350 62.100

Caño roscable 1/2”, ml 6,00 9.850 59.100

Codo de 1/2” galv, un 6,00 7.700 46.200

Tee 1/2” galv, un 2,00 6.150 12.300

Unión doble 1/2” galv, un 2,00 19.700 39.400

Alma doble 1/2” galv, un 4,00 7.700 30.800

Llave de paso 1/2” FV cromoun 2,00 66.500 133.000

Prolongador FV 1/2”x1 un 1,00 38.000 38.000 cromo sin campana,

Sellador p/ caño 125cc un 0,40 45.900 18.360

Cinta teflón 18mmx25m, un 2,00 9.600 19.200

Mano de obra, un 1,00 254.000 254.000

Total por: un 712.460

COLOCACION DE ARTEFACTOS SANITARIOS

Baño Completo - Frío y Caliente - No incluye bañera

Juego con cisterna bajajuego 1,00 2.211.250 2.211.250

Deca Ravena Crema,

Griferia FV Linea Clásica juego 1,00 2.086.000 2.086.000 (Ducha, bidet y lavatorio)

Termocalefón 80 lt, un 1,00 1.650.000 1.650.000

Soporte para calefón, par 2,00 4.040 8.080

Botiquin 44x58x11cm

Conexión cromada ½”x30un 7,00 37.000 259.000

Prolongador

de bronce p/ un

fijar artefactos,

Mano de obra, un 1,00 462.000 462.000

Baño Completo con Bañera Común

Instalación de baño un 1,00 7.604.143 7.604.143 completo sin bañera, Bañera 1,60x0,70

Baño Completo con Bañera Hidromasaje

Instalación de baño un

completo sin bañera, Bañera hidro 1.70x0.70

Baño Completo - Frío solo Juego p/

c/ cisterna alta Deca Ravena

Tubo

embutir p/ cisterna nº 4,

Canilla 1/2” cromo p/ un

30.000 bajo ducha FV, Conexión cromada 1/2x3 cm, un

fijar artefactos, Cemento blanco, kg 2,00 5.500

de obra, un

Total por: un 3.264.763

Baño de Servicio

Juego para baño con juego 1,00 490.000 490.000 cisterna alta,

Tubo de bajada de un 1,00 13.500 13.500 embutir p/ cisterna nº 4,

Botiquín Astra, un 1,00 220.000 220.000

Ducha eléctrica Corona, un 1,00 127.500 127.500

Brazo cromado p/ ducha un 1,00 12.500 12.500

Sopapa FV cromada p/ un 1,00 66.700 66.700 lavatorio

Bajada p/ lavatorio, un

Canilla p/ lavatorio FV un

Canilla de 1/2” cromo un 1,00 30.000

para bajo ducha FV, Conexión cromo ½ x 30 cmun

fijar artefactos,

Baño Social - Standard Juego para baño social juego 1,00

con cisterna alta Deca Ravena,

Canilla para lavatorio un

Imperatriz,

para lavatorio,

fijar artefactos, Cemento

Pileta de Cocina - Acero Inoxidable - Frío Solo

Pileta 1 bacha, un 1,00 276.000 276.000

Canilla FV pico móvil frío solo un 1,00

Mano de obra, un 1,00

por: un

Pileta de Cocina - Acero Inoxidable - Frío y Caliente

Pileta 2 bachas, un 1,00

Mano de obra, un 1,00

Pileta de Lavar y Lavarropas

Pileta granítica 1 bacha un 1,00 95.000 95.000 1,20x0,60 m,

Canilla 1/2” bronce FV, un 2,00 49.000 98.000

Sopapa p7 pileta granito un

Mesada de Granito para Cocina

Mesada de Mármol para Baño Social (0.70x0.60m)

Mesada de Mármol para Baño Completo (1.00x0.60m)

INSTALACION ELECTRICA

Pilar de Mampostería 0.45x0.45x1.70m

No incluye cimiento y nivelación Ladrillo común, un

Total por: un

Registro eléctrico 30x30x70cm Ladrillo común, un

Mano de obra, un

Total por: un

Registro eléctrico 40x40x70cm Ladrillo común, un

Cemento tipo 1, kg

COSTEO DE OBRA

Tapa registro de metal, un 1,00 72.800 72.800 Mano de obra, un 1,00 131.000 131.000

Puesto de Medición Provisorio

Monofásico con limitadora hasta 40 A

Nicho monofásico, un 1,00 9.240 9.240

Poste de caranday 6 m, un 1,00 120.000 120.000 Curva galvanizada 1”, un 4,00 24.970 99.880

Trifásico c/ acometida de 3m y limitadora hasta 45 A

Caño galv. 2 1/2”x6m, un 1,00

Jabalina

Trifásico con limitadora hasta 45 A Nicho

Línea Subterránea

Monofásica con cable de 4 a 10mm

Jabalina

Puesto de Medición Definitivo

(Con línea subterránea o embutido en mampostería)

Monofásico c/ acometida 3m y limitadora hasta

40 A

Caño galvanizado un 1,00 500.000 500.000

Curva galvanizada 1 un 2,00 24.970 49.940

Trifásica con cable de 4 a 10mm

Línea Monofásica Embutida en Mampostería con Cable de 4 a 10 mm

Caño

Tablero Principal con 6 llaves TM Caja

12 TM Steck,

colocación caja un 1,00 159.000 159.000 embutida, MO colocación llaves, 6,00 204.000

Tablero principal con 6 llaves TM (llaves europeas) Total por: un 643.200

Bocas de Lámparas y Tomas de Corriente

(Incluye colocación de electroducto y cableado hasta 5m del tablero principal)

Una Lámpara con su Interruptor

Caja de llave plastica, un 1,00

Caja metálica conexión un 1,00

Caño corrugado 3/4”, ml 5,00

Una Lámpara con 2 Llaves de Combinación

Caja de llave plástica, un 2,00 3.300 6.600

Caja metálica conexión un 1,00

Caño

Llave combinación + un 2,00 12.870 25.740

Cinta

Circuitos Independientes

(Hasta 5m del tablero principal en cañerías ya instaladas para otros circuitos)

Circuito para Calefón/AA/Ducha Eléctrica

Caja p7 llave TM unipolar un 1,00 8.850

Llave para calefón 25 un 1,00 27.720 27.720 Jabalina de cobre 5/8”x2mun 1,00

de 4 mm, ml 13,0

Cinta aisladora

Línea Embutida para AA sin cableado

Caja para llave

Circuitos de

(Incluye colocación de electroducto y cableado hasta 5m del tablero)

Línea de teléfono con su toma Total por: un 153.873

Línea de Timbre con su pulsador

Caja de llave plástica, un

Caja metálica conexión un

corrugado 5/8”, ml 10,0

3.500 Cable de 1 mm,

chicharra

Toma para Antena de TV o Audio

corrugado 5/8”, ml

p/ TV 2x0,35

CARPINTERIA DE MADERA

Marco Recto (de 0.15cm p/ puerta de 2.10m de alto)

De Ybyrapyta de 0.70 m de ancho

de ybyrapyta,

de 0.80 m de ancho un

Ybyrapyta de 1.50 m de ancho un

Marco Recto (de 0.15cm p/ ventana de 1.20m de alto)

De Ybyrapyta de 1.50 m de ancho

Puerta de 2.10 m de alto

Placa de eucalipto (0.80x2.10m)

Puerta placa, un 1,00 180.000 180.000

Ficha 5 agujeros, par 1,50 10.000 15.000 Tornillo 1x7, un 30,0 150 4.500

COSTEO DE OBRA

Mano de obra, c/hoja 1,00 92.000 92.000

Total por: un 411.500

Placa c/ cerradura para baño (0.80 x 2.10m)

Puerta placa de eucalipto un 1,00 180.000 180.000

Ficha 5 agujeros, par 1,50 10.000 15.000

Tornillo 1x7,

Cerradura

Mano de obra, c/hoja 1,00

Total por: un 336.500

Tablero (0.80x2.10m)

Puerta tablero común, un 1,00

Ficha 5 agujeros, par 1,50 10.000 15.000

Tornillo 1x7, un 30,0 150 4.500

Ficha 3 agujeros, un 1,00 9.000 9.000

Tornillo 1x7, un 52,0 150 7.800

Falleba de arrimar un 1,00 25.500 25.500

Pasador 150 mm un 2,00 18.000 36.000

Varilla p/ falleba 1.20 un 1,00 24.500 24.500

Mano de obra, c/hoja 3,00 36.000 108.000

Total por: un 626.800

Vidriera (2.00x1.20m - 4 hojas de abrir)

Total por: un 841.600

Vidriera (1.00x0.80m)

Total por: un 324.000

Persiana (1.50x1.20m - 3 hojas de abrir)

Ventana persiana fija, m2 1,80 450.000 810.000

Ficha 5 agujeros, par 2,00 10.000 20.000

Ficha 3 agujeros, un 1,00 9.000 9.000

Tablero - Punta Diamante (0.80x2.10m)

Puerta de cedro c/ molduras un 1,00 1.550.000 1.550.000

Ficha 5 agujeros, par 1,50 10.000 15.000

Tornillo 1x7, un 30,0 150 4.500

Cerradura p/ puerta

Vidriera Sencilla (1.50x2.10m - 3 hojas de abrir)

Puerta vidriera, m2 3,15 300.000 945.000

Ficha 5 agujeros, par 3,00 10.000 30.000

Tornillo 1x7, un 60,0 150 9.000

Falleba de arrimar un 1,00 25.500 25.500

Varilla p/ falleba 1.20 un 2,00 24.500 49.000

Mano de obra, c/hoja 3,00 46.000 138.000 Total por: un 1.232.500

Persiana (1.50x2.10m - 3 hojas de abrir)

Puerta (varilla 45 cm) m2 3,15 450.0001.417.500

Ficha 5 agujeros par 3,00 10.000 30.000

Tornillo 1x7, un 60,0 150 9.000

Falleba de arrimar un 1,00 25.500 25.500

Pasador 150 mm un 2,00 18.000 36.000

Varilla p/ falleba 1.20 un 2,00 24.500 49.000

Mano de obra, c/hoja 3,00 46.000 138.000

Total por: un 1.705.000

Ventana de 1.20 m de alto

Vidriera (1.50x1.20m - 3 hojas de abrir)

Ventana vidriera m2 1,80 220.000 396.000

Ficha 5 agujeros, par 2,00 10.000 20.000

de

cromoun

Persiana (2.00x1.20m - 4 hojas de abrir)

de Contramarco

1/2” o 3/4”,

CARPINTERIA METALICA

Balancín hasta 1 m2

Balancín fabricado con m2 1,00

ángulo de 5/8 y T 3/4x1/8”,

Puerta Metálica Tipo Reja (0.80x2.10 m)

Puerta, marco y herrajes, un 1,00

Mano de obra, un 1,00 66.000 66.000

Total por: un 598.950

Cortina Metálica (2.40x2.60 m)

Total por: un 4.346.000

Reja de Hierro Artística Sencilla (1.50x1,20 m)

Reja artística sencilla, m2 1,80 250.000 450.000

Cemento tipo 1, kg 3,00 1.100 3.300

Baranda Metálica de Escalera ml 299.750

Portón Metálico (1.00x1.50 m)

Portón de rejas, m2 1,50 280.000 420.000 Cemento tipo 1, kg 2,00 1.100 2.200 Arena lavada, m3 0,03 65.000 1.950 Mano de obra, un 1,00

Portón Cochera (3.00x2.00 m)

Portón con cerradura, m2 6,00 270.0001.620.000

Cemento tipo 1, kg 5,00 1.100 5.500 Arena lavada, m3 0,03 65.000 1.950 Mano de obra, c/ hoja 2,00 200.000 400.000

por: un 2.027.450

Portón Cochera (4.40x4.00 m)

Portón

Escalera Metálica Recta

PINTURAS

Pintura de Pared a la

de Cielorraso

Al Látex Interior con Enduido

Al Látex Exterior con Enduido

o Tejuelón al Barniz

Tejuela a la Cal y Maderamen con Esmalte Sintético

de Machimbre

Abertura de Madera con Esmalte

COSTEO DE OBRA

Esmalte

Abertura de Madera con Barníz

Aceite

Abertura Metálica con Esmalte

Parrilla (boca de 1.00 m)

Ladrillo

Canalata y Bajada con Esmalte Sintético

Balaustre Sencillo

Tratamiento de Ladrillo Visto

VARIOS

Moldura Doble

Moldura Sencilla

Estufa (Boca de 1.00 m)

Ladrillo

PROYECTOS MANDU’A

Descripción general:

Todas las construcciones se realizan en Asunción o alrededores sobre un terreno seco con una capacidad portante de 3 Kg/cm2, que no requiere movimiento de suelo. El análisis de costo incluye los gastos generales (10%) y beneficio de la empresa (15%). Se excluyen los gastos complementarios correspondientes a los Honorarios Profesionales por Proyecto y Dirección de Obras. No se consideran los gastos por Permiso Municipal, de conexión y consumo por servicios de

agua y eléctricidad. Tampoco se considera el valor del predio. Los precios de materiales y de mano de obra corresponden a los publicados por nuestra revista, en cuya guía de costeo de obra se desarrolla cada uno de los ítems. Los precios de mano de obra se basan en consultas realizadas con contratistas y profesionales de construcción. No incluyen cargas sociales, seguro de accidentes, etc.

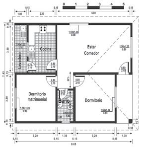
Casa Mandu’a - Vivienda Modelo 1

Descripción: Vivienda económica con una superficie de 67,7 m2

Desarrollo de la Obra

• Fundación: Piedra bruta colocada. Nivelación: Mampostería de 0,30 con ladrillos comunes. • Aislación: Horizontal de muros realizada en cajón con asfalto sólido diluido en caliente. • Mampostería de elevación: Ladrillo hueco de 6 agujeros. En baños y paredes con instalación hidráulica, de ladrillo común. • Dinteles: Envarillado continuo de 2 varillas y de 4 varillas sobre aberturas.

• Techo: Tejas españolas prensadas 1ª B, con tejuelones, maderamen de yvyrapyta, aislación con cartón asfáltico, con terminación de boca teja, mojinete y tapa doble. • Carpintería de madera: Marcos de yvyrapyta, aberturas de madera de guatambú, mueble de cocina revestido con laminado plástico. • Revestidos: Azulejos esmaltados lisos 15x15, en cocina, lavadero y baños, con una altura de 1,80 m. • Revoques: Base con azotada impermeable de 0,5 cm y revoque con aditivo hidrófugo, en interior a 1 capa y exterior en la faja perimetral de 0,50 m. Incluye vértice de mampostería y borde de aberturas. • Instalación eléctrica: Monofásica, llaves termomagnéticas brasileñas, Placas, picos de luz y tomas argentinas. Sin artefactos. • Instalación sanitaria: Cañería hidráulica de agua fría, cloacal y pluvial, de PVC. Loza de baño brasileña, con cisterna alta. Pileta de lavar de granito reconstituido.

MODELO 1 - VIVIENDA PLANILLA DE COSTOS

Elevación 0.15m con ladrillo hueco 6 tubos, 1

Techo: teja española, tejuelón, aislante,

Limpieza final y retiro de escombros

y

Pileta de cocina de acero inoxidable, 1 bacha. Las canaletas y bajadas, de chapa galvanizada Nº 26. • Pintura: Interior y exterior a la cal con fijador y color. Mampostería a la vista con protección a base de silicona, previa limpieza con ácido muriático. Carpintería de madera y maderamen de techo al barniz. Carpintería metálica y canaletas con esmalte sintético.

Dúplex Mandu’a Vivienda Modelo 2

Descripción: Conjunto de 3 viviendas, cada una de 121,5 m2, con estructura de losa prefabricada con paredes portantes y disminuyendo pilares y zapatas.

Desarrollo de la Obra

• Fundación: De piedra bruta colocada, con encadenado inferior de HºAº y zapatas de Hº Aº como base de pilares.

• Estructura: Losa cerámica a la vista que se apoya en paredes portantes, con algunos pilares y vigas de HºAº. Nivelación y Dinteles sobre aberturas y techo. • Revestidos: Idem modelo 1. • Aislación: Horizontal idem modelo 1. De baño en planta alta con alisada e impermeabilizante de base asfáltica. • Mampostería de elevación: Ladrillo laminado a la vista en fachada; ladrillo común en baños, área de servicio y paredes con instalación hidráulica; ladrillo hueco de 6 agujeros en interiores y medianeras. • Carpintería de Madera: Marcos de yvyrapyta, aberturas de cedro, placard de guatambú, mueble de cocina revestido con laminado plástico. • Carpintería Metálica: Balancines de ángulos, rejas artísticas sencillas y portón de cochera de chapa doblada. • Pisos: Contrapiso de cascotes, baldosa calcárea de base gris en área de servicio, layota nacional en cochera y parrilla. Cerámica esmaltada sobre carpeta alisada de 30x30 en planta baja, área social, escalera y cocina. De 20x20 en baños. Veredita tipo ka’a. Alfombra de 5 mm sobre carpeta de base en planta alta. • Zócalos: Calcáreo, cerámica esmaltada, layotas, en su caso y madera donde lleva alfombra. • Revoques: Común filtrado por ladrillos comunes con azotado de adherencia en ladrillhidrófugo en exteriores y áreas húmedas. • Instalación eléctrica: Monofásica, llaves TM brasileñas, placas, picos de luz y tomas argentinas.

PROYECTOS MANDU’A

PLANILLA DE COSTOS

Revoque 1 capa , 1.5 cm

Revoque 1 capa con hidrófugo en

tejuelón, vigas y

Sin artefactos. • Instalación Sanitaria: Cañería para agua fría, cloacal y pluvial de PVC, para agua caliente de polipropileno, loza de baño brasileña, cisterna baja en baño social y en planta alta, alta en baño de servicio, pileta de lavar de granito reconstituido y de acero inoxidable de 2 bachas en la cocina. Canaletas y bajadas de chapa Nº 26. • Pintura: Mampostería a la vista con protección a base de silicona, previa limpieza con ácido muriático. Area de servicio y exteriores revocados a la cal con color. Paredes interiores al latex. Carpintería de madera, techo de tejas y losa con cerámica a la vista al barniz. Carpintería metálica y canaletas con esmalte sintético. os huecos, con azotada impermeable (0,5 cm) y común filtrado con aditivo .

Planta Baja
Planta Alta

Dúplex Mandu’a - Vivienda Modelo 3

Descripción: 2 viviendas iguales en Duplex, cada una de 150,3 m2

Sistema constructivo y materiales

Estructura: La losa prefabricada utilizada es de una marca del mercado, utilizada con el mismo criterio adoptado en el Modelo 2.

Desarrollo de la Obra

• Fundación: Idem modelo 2. • Estructura: Se utiliza el sistema Listalosa con cielorraso ranurado a la vista, sin revoque, que descansa sobre paredes portantes, reforzados con algunos pilares y vigas de Hº Aº. • Fundación, nivelación, aislación, mampostería, dinteles, techos, revoques, Instalación Sanitaria y Pintura: Idem al modelo 2. • Carpintería de Madera: Marcos de lapacho, aberturas, placards y mueble de cocina de cedro, éste último con puertas tablero; mesada de granito natural.

• Carpintería Metálica: Balancines metálicos. Rejas artísticas y portón de cochera de chapa doblada y varillas. • Pisos: Contrapiso de Hº de cascotes, baldosa calcárea de base gris en área de servicio, layota nacional en cochera y parrilla. Granito reconstituído pulido de base gris en área social, estudio y planta alta, y en planchas en la escalera. Cerámica esmaltada sobre carpeta alisada en cocina y baños. Vereda de mosaicos de canto rodado de color 30x30. • Zócalos: Calcáreo, cerámica esmaltada, cerámica roja y granito reconstituido. • Revestidos: Azulejo esmaltado liso 20x30 en baños y cocina. De 15x15 en lavadero y baño de servicio. • Instalación Eléctrica: Monofásica, llaves TM europeas, placas, picos de luz y tomas de procedencia uruguaya. Sin artefactos.

PLANILLA DE COSTOS

sobre aberturas / envarillado de

1

,

MODELO 3 / VIVIENDA DUPLEX, SUPERFICIE 150,30 m²

Edificio para la Renta Vivienda Modelo 4

Descripción: Edificio de 2 plantas que puede ampliarse a 3, comprende 2 departamentos en Planta Alta, cada uno de 60 m2 y con 2 dormitorios. En planta baja 2 salones comerciales de 34,30 m2 de área interior. Entrada vehicular cubierta.

Desarrollo de la obra

• Fundación: Se utilizan Zapatas de Hº Aº donde actúan cargas puntuales y bajo las paredes, vigas del mismo material. • Estructura: De Hº Aº tipo tradicional, las losas descansan sobre vigas y pilares del mismo ancho que las paredes. En planta alta se utiliza un encadenado general a la altura de asiento de tirantes. • Aislación, mampostería de elevación, dinteles, techo y carpintería de madera, pisos, zócalos, revestidos, revoques, instalación sanitaria: idem al modelo 2. • Carpintería Metálica: Cortina de enrollar de tablillas metálicas con puerta de escape. Balancines, portones de acceso peatonal y de cochera de chapa doblada. Baranda sencilla de escalera. • Instalación Eléctrica: Idem. modelo 3. • Pintura: Paredes interiores y exteriores del frente y contrafrente al latex. Paredes exteriores medianeras y cielorraso a la cal. Abertura de madera, maderamen y tejuelones del techo al barniz. Carpintería metálica con esmalte sintético.

Planta Baja
Planta Alta

PROYECTOS MANDU’A

PLANILLA DE COSTOS

Aislación

Revoque 1 capa sin hidrófugo en

Revoque 1

Techo : teja española , tejuelón, vigas y tirantes Yvyrapyta

Baldosa calcárea base gris 20

Casa Mandua 4 básica

Limpieza final y retiro de escombros (0.8 %)

Planta Baja

Planta Alta

Galpón tipo tinglado - Vivienda Modelo 5

Descripción: Galpón tipo tinglado, con una superficie de 268,8 m2, con oficina y vestuario. La oficina incluye un baño privado y el vestuario dos boxes de baño, para ducha e inodoro, respectivamente. Consta de patio posterior y retiro en el frente, cumpliendo la norma municipal que exige un 25% de superficie sin construir.

La obra está prevista para un terreno plano y limpio de 12x30 m situado entre linderos.

Desarrollo de la Obra

• Fundación: Pilares asentados sobre zapatas de hormigón ciclópeo y cimiento corrido de P.B.C para asiento de paredes. • Estructura: Realizada con pilares de HºAº y vigas encadenadas conformando 2 anillos de unión. • Aislación, mampostería de elevación, dinteles, carpintería de Madera: Idem. modelo 1. • Techo: Tipo tinglado parabólico, estructura metálica reticulada fabricada de varillas torsionadas pintadas con antióxido. Cubierta de chapa galvanizada ondulada, aireada con extractores eólicos. • Carpintería Metálica: Balancines metálicos de ángulos y perfiles “T”. Portones de chapa doblada en el acceso vehicular y la salida al patio. Escalera metálica recta de acceso al entrepiso de madera. • Pisos: En el patio del frente y dentro del depósito, donde pueden circular vehículos, el piso es de hormigón armado con juntas de dilatación. En la oficina se utilizan baldosa calcárea de base gris y cerámica esmaltada sobre una carpeta alisada, en baños y vestuarios. Vereda de baldosita calcárea tipo ka’a con ranuras antideslizantes. Contrapiso de hormigón de cascotes. • Zócalos: Calcáreo en la oficina. • Revestidos: Azulejo esmaltado liso 15x15 en baños y vestuario. • Revoques: Sobre ladrillos huecos, azotada de adherencia con hidrófugo y revoque común filtrado y sobre ladrillos comunes sólo este último. Las paredes perimetrales llevan revoque a un solo lado.

• Instalación Eléctrica: Trifásica, llaves termomagnéticas europeas, placas, picos

MODELO 5 / GALPON TIPO TINGLADO,

PLANILLA DE COSTOS

PROYECTOS MANDU’A

de luz y tomas uruguayos, sin artefactos. Instalación Sanitaria: Cañería hidráulica de agua fría, cloacal y pluvial, lozas de baño, canaletas y bajadas idem modelo 1. Cisterna baja en baño de oficina y alta en el vestuario. • Pintura: Paredes revocadas, interiores o exteriores, a la cal. Paredes de ladrillo hueco a la vista con tratamiento correspondiente para el efecto. Carpintería de madera y entrepiso de machimbre pintadas con barniz. Carpintería metálica y caños de bajada con esmalte sintético.

Bolsa de subcontratistas

* La Bolsa de Subcontratistas es una colaboración de la revista con los profesionales y trabajadores de la construcción, teniendo un pequeño costo los anuncios en recuadro. La calidad del servicio, así como la relación contractual, escapa a nuestro compromiso con los apreciados lectores.

Agrimensura

Aire acondicionado

Instalación / Reparación

Bracho, Javier 0981 879749 / 0985 464491

Brítez, Santiago 0981 117524

González, Pedro 644661 / 0982 450866

Maciel, Pablo 0971 939890 / 0981 651205

Ojeda, Hugo 623766 / 0981 868289

Solis, Gabriel 0981 486233

Velázquez, Santiago 0981 843738

Aislación térmica

Duarte, Eleno 0983 338939

Marín, Dionisio 0983 731450

Alambrados

Bentrom, Román 991255

Riveros, Mario 0992 993007 / 0985 887621

Albañilería

Julio Cristaldo Cel.: 0986 188 514

Benítez, Ramón 0982 370231

Bogarín, Lidio 0971 947177

Bruno, Alejandro 0994 314460

Cabral, Andrés 0982 896561

Cáceres, Carlos 0982 132349

Cazal, Alexis 0981 343423

Esquivel, Rogelio 0981 456697

Fernández, Antonio 515629 / 0981 465940

Garcete, Palermo 0981 965660

Gill, Enrique 642559 / 0981 303974

Giménez, Pablo 0981 951645

Godoy, Eladio 0983 333622

González, Aníbal 0985 222147

González, Benito 0982 248256

Jara, Vidal 0981 434787 / 0981 876489

Jiménez, Antonio 514989 / 0981 660190

López, Osvaldo 0981 836904

Maidana, Sinforiano 0983 380486

Marín, Dionisio 0983 731450

Moreno, Ramón 0981 785546

Ocampos, Higinio 0984 926892

Ortega, Mildesis 0984 369 652 / 0981 594 893

Paniagua, Derlis 0981 182465

Peralta, Raúl 0981 501323

Rando, Gerardo 0985 766 650

Ramírez, Amado 374276 / 0981 485609

Riveros, Carlos 0981 521771

Rojas, Juan 0971 950157

Ruiz, Saturnino 0984 273997

Sosa, Edgar 0984 928914

Vera, Néstor 0981 103889

Animación y perspectiva

Abbate, Alejandra 0982 886227

González, Jorge 0986 552 000 / 0991 880 133

Pérez, Rafael 0981 476743

Aprobación de planos municipales

Benítez, Oscar 0971 340345

Chaparro, Miguel 0961 586457

Fernández, María 0981 932043

Rolón, Oscar 0981 445601

Robledo, Gustavo 0981 939512

Azulejos - colocación

Armando, José 0995 639335

Benitez, Alfredo 0981 520214

Benitez, Antonio 0981 945353

Ferreira, Gustavo 285663 / 0981 881211

Figueredo, Miguel 0981 479221

Godoy, Eladio 0983 333622

González, Benito 0982 248256

Jiménez, Antonio 514989 / 0981 660190

Medina, Antonio 0983 247516

Moragas, Carmelo 0985 268 497 / 0981 547 754

Noguera, Higinio 0981 564472

Ortíz, Vidal 509475

Palacios, Leonardo 0983 207676

Vázquez, Ever 0981 655799

Canaletas

Altamirano, Vicente 0981 851077

Arzamendia, Hugo 0981 126471

Canto rodado (carga en

obra)

Figueredo, Catalino 0981 763438

Figueredo, Miguel 0981 479221

Carpintería

Aquino, Miguel 0986 858685

Bordón, Marcial 0971 277041

Franco, Marcos 0982 279166

Olmedo, Miguel 0981 526079

Carpinteros de obra / techistas

Benítez, Aniano 0984 478256

Cáceres, Carlos 0982 132349

González, Aníbal 0985 222147

Jara, Oscar 780642 / 0981 184687

Mora, Pascual 0981 963459

Sosa, Carlos 0992 299951

Valdovinos, Pedro 0981 234113 Cascadas

Acevedo, Patricio 0981 412542

Aguilera, Gabriel 0985 101795

Cepillado en obra

Jara, Oscar 780642 / 0981

Circuito cerrado Cabrera, Arnaldo

Colocación de empapelados

Coronel,

Colocación de Losarap

Alarcón, Julio 501130 /0983 367 697

Gill, Enrique 642559 / 0981 303974

Cielorrasos - Durlock/PVC/Yeso

Agüero, Benjamín 0985 740977

Agüero, Jorge 0985 417456

Bentolilla, Esteban 480203 / 0981 385207

Careaga, Víctor 373410 / 0971 936858

Colocación de Parquet

García, Juan 0981 571424

Sosa, Carlos 0992 299951

Colocación de Piedra revestidos / molduras

Aveiro, Gerónimo 0985 242563

Figueredo, Miguel 0981 479221

Martínez, Diego 0984 560 841

Ortíz, Eduardo 0971 379011

Quiñónez, Expédito 0983 356501

Ríos, Francisco 0981 417309

Rojas, Juan 0971 950157

BOLSA DE SUBCONTRATISTAS

Colocacion de Pisos vinílicos / alfombras

Careaga, Víctor 373410 / 0971 936858

Coronel, Derlis 295479 / 0981 154662

Coronel, Julián 295479 / 0984 580876

Pavón, César 327 6331 / 0982 354987

Sánchez, Alberto 443477 / 0981 503266

Cómputo métrico

Benítez, Oscar 0971 340345

González, Jorge Arq 0986 552000 / 0991 880133

Nuñez, Andrea 0982 170442

Russo, Walter Ing 0991 789561

Vallejos S, Cristina Arq 0982 975371 / 0981 561645

Constructores de obra

Acosta Riveros, Jorge A 0984 557649

Agüero, Teófilo 524755 / 0983 942516

Añazco, Carlos 0981 457301

Benítez, Aniano 0984 478256

Benítez, Juan 751724 / 0981 488904

Benítez, Ramón 0982 370231

Caballero, Oscar 0972 131247

Cabral, Andrés 0982 896 561

Cáceres, Carlos 0982 132349

Cantero, Domingo 0981 244946

Dávalos,Hermes 0981 942718

Escobar, Gustavo 0981 163551

Espinoza, Mauricio 0982 781445

Fernández, Antonio 515629 / 0981 465940

Ferreira, Wilfrido 0981 400128 / 0981 786614

Figueredo, Miguel 0981 479221

Garcete, Palermo 0981 965660

Gill, Enrique 642559 / 0981 303974

Giménez, Leonardo 0981 530453

González, Aníbal 0985 222147

González, Miguel H 0961 889646

González, Rumildo 0971 350004

Gutiérrez, De los Santos 0981 390538

Hucedo, Carlos 0982 178592

Jara, Vidal 0981 434787 / 0981 876489

Jiménez, Antonio 514989 / 0981 660190

Maciel, Milciades 0981 943482

Maidana,Sinforiano 0983 380486

Meza, Esteban 0992 383232

Moreno, Ramón 0981 785546

Narváez, Arsenio 0981 939452

Noguera, Higinio 0981 564472

Ortiz Barrios, César 642239 / 0983 358854

Ortíz, Vidal 509475 / 0971 720887

Oviedo, Richard 0981 291070

Paniagua, Derlis 0981 182465

Quiñónez, Expedito 0983 356501

Quiroga, Pedro 0985 938774

Rando, Gerardo 0985 766 650

Recalde, César 0981 170159

Riveros, Carlos 0981 521771

Riveros, Mario 0992 993007 / 0985 887621

Robledo,Gustavo 0981 939512

Rodríguez, Buenaventura 0972 509828

Rojas, Bernardo 302692 / 0981 531143

Rojas, Juan 0971 950157

Romero, Melchor 0983 470631

Ruiz, Saturnino 0984 273997

Sánchez, Benito 0983 488540

Sánchez, Ricardo 0981 145907

Sánchez, Yisenia 0976 123426 / 0985 297794

Sosa, Edgar 0984 928914

Valdovinos, Pedro 0981 234113

Vega, Augusto 310352 / 0971 972699

Velázquez, Jorge 0983 507243

Velázquez, Santiago 0981 843738

Vera, Néstor 0981 103889

Contratistas de hormigón

Acosta Riveros, Jorge A 0984 557649

Arévalos, Guillermo 752601 / 0981 485307

Benítez, Oscar 0971 340345

Cabral, Andrés 0982 896561

Esquivel, Rogelio 0981 456697

Fernández, Antonio 515629 / 0981 465940

Fernández, Silvino 755284 / 0981 549523

Figueredo, Miguel 0981 479221

Garcete, Palermo 0981 965660

Giménez, Leonardo 0981 530453

González, Aníbal 0985 222147

González, Miguel H 0961 889646

González, Rumildo 0971 350004

Maidana, Sinforiano 0983 380486

Meza, Esteban 0992 383232

Ocampos, Higinio 0984 926892

Olmedo, Julio 0981 652772

Ortega, Mildesis 0984 369652 / 0981 594893

Paniagua, Derlis 0981 182465

Peralta, Raúl 0981 501323

Recalde, César 0981 170159

Torres, Arístides 0981 865518

Velázquez, Santiago 0981 843738

Vera, Néstor 0981 103889

Cortinas

Aguilera, Gabriel 0985 101795

Ayala, Ever 0983 711979

Maldonado, María Estela 0981 561631

Urbieta, Mónica 0981 476743

Demolición

Caballero, Oscar 0972 131247

Herrera, Cristino 0981 976488 / 0984 894128

Vallejos, Cándido 0991 233001

Villalba, Javier 0985 491498

Destronque de árboles

Herrera, Cristino 0981 976488 / 0984 894128

Vera, Néstor 0981 103889

Dibujantes técnicos

Arnedo, Ana Arq 0981 655014

Jacobo, Nora 0971 534417

Maidana, María B. 0991 988215

Martínez, Francisco 0786 230619 / 0975 681680

Montiel, Gustavo 586343 / 0982 488928

Rodriguez, Buenaventura 0972 509828

Rolón, Manuel 0986 909404

Rolón, Oscar 0981 445601

Digitalización de planos

Abbate, Alejandra 0982 886227

Aponte, Andrea 0971 190781

Arnedo, Ana Arq 0981 655014

Arza, Andrea Arq 0981 966786

Coronel, Renzo 0971 362856 / 0986 656577

Escobar, Gustavo 0981 163551

Ferreira, José 0981 915492

González, Jorge 0986 552 000 / 0991 880133

Maidana, María B. 0991 988215

Montiel, Gustavo 586343 / 0982 488928

Nuñez, Andrea 0982 170442

Nuñez, Miguel 0982 634026

Quintana, Jorge 290680 / 0981 426037

Robledo, Gustavo 0981 939512

Rolón, Manuel 0986 909404

Rolón, Oscar 0981 445601

Sánchez, Yisenia 0976 123426 / 0985 297794

Toledo, Milena 0981 201561

Divisorias interiores / Mamparas

Bentolilla, Esteban 480203 / 0981 385207

Careaga, Víctor 373410 / 0971 936858

Pavón, César 327 6331 / 0982 354987

Dorado a la hoja

Chávez, Ada 0981 838274

Drenaje

Caballero, Rodrigo 0981 257702

Velázquez, Santiago 0981 843738

Electricistas

Aquino, Roberto 521610/ 0971 313847

Benítez, Cándido 0981 496207

Bracho, Javier 0981 879749 0985 464491

Brítez, Santiago 0981 117524

Cáceres, Isidro 0981 927945

Chaparro, Miguel 0961 586457

Castillo, Marco 0981 578068

Coronel, Derlis 295479 / 0984 580876

Coronel, Julián 295479 / 0981 154662 Ever Pereira 0983 460 494

Delgadillo, Alberto 0981 844429

Delgadillo, Francisco 0982 335870

Díaz, Carlos 572156 / 0982 464967

Duarte, Gustavo 0983 191182

Esquivel, Rogelio 0981 456697

Galarza, Ramón 0981 230273

Garcete, Palermo 0981 965660

Giménez, Carlos 0981 741087

Giménez, Flaminio 0971 227480 / 0983 841240

González, Pedro 644661 / 0982 450866

Hucedo, Carlos 0982 178592

León, Cañete 0983 800938 / 0981 561409

Maciel, Pablo 0971 939890 / 0981 651205

Martínez, Gerardo 0981 493190

Montanía, Ylber 0981 474025

Núñez, Cayo 0983 404670

Otello Roa, Félix 780691 / 0972 822577

Paniagua, Derlis 0981 182465

Parini, Fernando 0983 657565

Ramírez, Dario 0992 863100 / 0991 677208

Ramírez, Roberto 944740 / 0981 494624

Rolón, Carlos 0982 751296

Ruiz, Carlos 0981 896430

Sanabria, Jorge 0984 154375

Sartorio, Jorge 0981 939172

Solis, Gabriel 0981 486233

Toñánez, Sebastián 0981 912516

Valenzuela, Luis 0982 127968 / 0985 942676

Vallejos, Cándido 0991 233001

Villaverde, Silvino 0992 396855

Empedrados y adoquinados

Santacruz, Pablo Ing 0981 105004

Fumigación

Herrera, Cristino 0981 976488 / 0984 894128

Herrería / estructuras metálicas

Arzamendia, Hugo 0981 126471

Bordón, Marcial 0971 277041

Bracho, Javier 0981 879749 / 0985 464491

Cazal, Mario 0982 878501

Delvalle, Christian 0981 853884

Garcete, Palermo 0981 965660

Herrera, Edgar 0982 272468

Maldonado, María Estela 0981 561631

Orrego, Cándido 0984 958981

Hojalatero

Cazal, Alexis 0981 343423

Impermeabilización

Duarte, Eleno 0983 338939

López, Ramón 0981 569767

Marín, Dionisio 0983 731450

Martínez, Braulio 0981 193232

Ramírez, Amado 374276 / 0981 485609

Ruffinelli, Miguel 0981 449955

Velázquez, Santiago 0981 843738

Jardineros

Aguilera, Gabriel 0985 101795

Basualdo, Javier 0982 311208

Duarte, Tomás 0985 941909

Villaverde, Silvino 0992 396855

Limpieza

de patios

Bentrom, Román 991255 Herrera, Cristino 0981 976488 / 0984 894128

Riveros, Mario 0985 887621

Mesadas de cocina / bañoMarmolería

Jimenez, Miguel Angel 0981 541146

Montaje de transformadores y motores

Benítez, Genaro 0981 496837

Díaz, Carlos 572156 / 0982 464967

Mancuello, Fernando 0991 201918 Morales, Gustavo 0981 893881

Motoserrista

/ poda de árboles

Basualdo, Javier 0982 311208

Bentrom, Román 991255

Duarte, Tomás 0985 941909

Riveros, Mario 0992 993007 / 0985 887621

Muros verdes / jardines verticales

Arzamendia,

Pintores

Ángel 942329 /

Bogarín, Héctor 0985 959921

Borja, Francisco 0991 820078

Bruno, Alejandro 0994 314460

Careaga, Víctor 373410 / 0971 936858

Cazal, Alexis 0981 343423

Garcete, Palermo 0981 965660

Gauto, Miguel 0981 938415

Giménez, Hernando 0981 419674

Giménez, José 0993 353888 / 0981 604638

Giménez, Leonardo 0981 530453

Godoy, Pedro 0981 596914

González, Aníbal 0985 222147

Herrera, Edgar 0982 272468

Ibarra, Jorge 0961 842883

López, Ramón 0981 569767

Marín, Dionisio 0983 731450

Martínez, Diego 0984 560 841

Medina, Germán 0982 320250

Mereles, Néstor 0985 653204

Miranda, Félix 0981 514763

Morínigo, Miguel 973372 / 0981 474261

Noguera, Higinio 0981 564472

Ojeda, Darío 0971 223440

Oviedo, Richard 0981 291070

Paniagua, Derlis 0981 182465

Ramírez, Amado 374276 / 0981 485609

Ramírez, Ladislao 0981 766680

Reyes, Luis 0981 231612

Riveros G., Carlos 0981 521771

Riveros, Mario 0992 993007 / 0985 887621

Rojas, Bernardo 302692 / 0981 531143

Romero, Melchor 0983 470631 Sosa, Edgar 0984 928914 Vallejos, Cándido 0991 233001

Pintura texturada

Arévalos, Alberto 0971 208038 Giménez, Hernando 0981 419674

López, Ramón 0981 569767

Morínigo, Miguel 973372 / 0981 474261

Piris, Crispín 0982 360759

Piscinas - Construcción

Urbieta, Mónica 0981 476743

Piscinas

- Limpieza y Mantenimiento

Piseros

Caballero, Rodrigo 0981 257702

Fernández, José 0982 627836

Giménez, Leonardo 0981 530453

Godoy, Eladio 0983 333622

González, Benito 0982 248256

Jiménez, Antonio 0981 660190

Maciel, Milciades 0981 943482

Martínez, Diego 0984 560 841

Medina, Antonio 0983 247516

Moragas, Carmelo 0985 268497

Noguera, Higinio 0981 564472

Palacios, Leonardo 0983 207676

Rando, Gerardo 0985 766 650

Riveros, Carlos 0981 521771

Rojas, Juan 0971 950157

Samaniego,Jorge 0982 986 757 0994 759925

Pisos técnicos (sobre elevados)

Agüero, Benjamín 0985 740977

Plomeros

Agüero, Benjamín 0985 740977

Aguilera, Gabriel 0985 101795

Alcaráz, Andrés 0971 956096

Altamirano, Vicente 0981 851077

Báez, Raimundo 0981 609001

Bracho, Javier 0985 464491

Caje, Rodolfo A. 0984 234423

Cazal, Mario 0982 878501

Chávez, Jorge 0981 823284

Escobar, Carlos 0971 357473

Fariña, Antonio 0971 231175

Ferreira, Gustavo 0981 881211

Garcete, Palermo 0981 965660

Giménez, Pablo 0981 951645

Herrera, Edgar 0982 272468

Hucedo, Carlos 0982 178592

López, Víctor M. 0971 760390

Medina, Alfredo 0981 468756

Medina, Germán 0982 320250

Moragas, Carmelo 0985 268497

Moragas, Victorino 0981 892513

Noguera, Higinio 0981 564472

Núñez, Cayo 0983 404670

Ortiz, Vidal 509475

Paniagua, Derlis 0981 182465

Rando, Gerardo 0985 766 650

Riveros G., Carlos 0981 521771

Riveros, Mario 0992 993007

Romero, Melchor 0983 470631

Ruíz, Carlos 0981 896430

Vallejos, Cándido 0991 233001

Villalba, Javier 0985 491498

Villaverde, Silvino 0992 396855

Ploteo de

Coronel, Renzo 0986 656577 Prevención

Caje, Rodolfo A. 0984 234423

Manchini, César 0981 245725

Proyecto arquitectónico

Abbate, Alejandra 0982 886227

Aponte, Andrea 0971 190781

Arnedo, Ana Arq 0981 655014

Coronel, Renzo 0971 362856

Fernández, María Arq 0981 932043

Martínez, Liz Arq 0981 926697

Nuñez, Andrea 0982 170442

Pérez, Rafael 0981 476743

Pulidor de parquet

Fernández, José 0982 627836

Pulidor de piso granítico y de H˚

Caballero, Rodrigo 0981 257702 Fernández, José 0982 627836

Refrigeración / AA / camaras frigorificas/ heladeras

Brítez, Santiago 0981 117524

Galarza, Ramón 0981 230273

Hucedo, Carlos 0982 178592

León, Cañete 0983 800938

Ruiz, Carlos 0981 896430

Sartorio, Jorge 0981 939172

Reparación / instalación de electrobombas para pozos

Escobar, Carlos 644497 / 0971 357473

Moragas, Carmelo 0985 268497

Restauración

de muebles

Aparici, Mari

Montanía, Higinio

Seguridad

Seguridad

López,

Topógrafos Guillén,

*Lista de precios de materiales y servicios de la construcción ordenada por orden alfabético. Los precios incluyen el I.V.A. Todos los valores incluidos en esta edición son meramente indicativos, siendo los mismos resultando de un análisis de los precios los vigentes en el mercado. Mandu’a no se hace responsable de los mismos. INDICE

61 - ABERTURAS

62 - ACONDICIONADORES DE AIRE

62 - ADHESIVOS

62 - ALAMBRES

62 - ALQUILER Y VENTA DE EQUIPOS Y MÁQUINAS

63 - AISLANTES ACÚSTICOS

66 - AISLANTES TÉRMICOS

66 - BIODIGESTORES

66 - CAL

67 - CARPINTERÍA DE ALUMINIO

68 - CEMENTO BLANCO

68 - CEMENTO GRIS

68 - CERÁMICA ROJA

69 - CERCO ELÉCTRICO

69 - CONSTRUCCIÓN EN SECO

69 - CORTINAS

69 - CHAPAS

70 - CIELORRASOS

70 - CONTENEDORES

ABERTURAS

Madera

Puerta placa

De 0,60 - 0,70 y 0,80 m

De cedro

De eucalipto/cupay

Puertas con cabezal recto

Tablero, punta diamante moldura c/ cedro de 1ra

73 - DIVISORIAS SANITARIAS

74 - DRENAJES

74 - ELECTRICIDAD

74 - ESTRUCTURAS

74 - FALLA DE PAVIMENTOS

75 - FERRETERÍA

75 - FUMIGACIONES

75 - HERRERÍA

75 - HERRAJES

76 - HIDRÓFUGOS

76 - HIERROS

76 - HORMIGÓN

77 - IMPERMEABILIZANTES

77 - LABORATORIO DE ENSAYOS

77 - LOSA PREFABRICADA

77 - MÁRMOL Y GRANITO

78 - MAMPARAS

78 - MALLA ELECTRO

SOLDADA

78 - MEMBRANAS ASFÁLTICAS

78 - PERFILES

78 - PERFORACIÓN DE POZOS

79 - PIEDRAS

79 - PILOTES

79 - PINTURAS

80 - PISOS Y REVESTIMIENTOS

81 - PISOS SOBREELEVADOS

81 - PISOS VINÍLICOS

81 - PORTONES A CONTROL

81 - REMOTO

82 - PREVENCIÓN

DE INCENDIOS

82 - PUERTAS AUTOMÁTICAS

83 - REVESTIMIENTOS

ACÚSTICOS

84 - SELLADORES

84 - TERMINACIONES

84 - TOPOGRAFÍA

84 - TRANSFORMADORES

85 - VARILLAS

85 - VIDRIOS

Metálicas

Puerta ciega 2.10m de alto

Puerta placa 2.10m de alto

Ventana corrediza con reja 1.10m de alto De 1.20 m ancho

Marco de yvyrapyta : cepillado, lijado y con 1 rebaje

De 15 cm, recto

Ventana corrediza con reja 0.76m de alto De 1.20 m ancho

De 150 m ancho

Ventana proyectante con reja 0.60 x 0.40m

0.60 x 0.40m

ADHESIVOS

ALAMBRES

Liso

01 Acerado Nº 17/15, rollo 1000m un 780.000

02 Galvanizado Nº 9, 12, 14 kg 17.000

03 Galvanizado Nº 20 kg 16.800

04 Negro de atar Nº 18 kg 18.000

De púa

01 Nº 16, rollo de 400 un 300.000

Tejido de Alambre Romboidal x m2

Postes de madera

Yvyrapyta - Altura 2,20 m

01 De 2x3”

02 De 3x3” un 17.820

Postes de hormigón (ver rubro Prefabricados)

Y VENTA DE EQUIPOS Y MÁQUINAS

Equipos

02 Amoladora o cortadoras para cerámica de 9” (Bosch)

03 Andamio ER (alt. 1,50 largo 1.80 - ancho 1.10 mts )

04 Andamio Acrow (alt. 1,85 largo 2.50 - ancho 1.20 mts )

Máquinas

Andamios Martillete

Poliestireno

Arcilla Expandida

Diámetro 20mm

Bolsa de 50 lt.

Bolsa de 25 lt.

Bolsa de 2 lt.

Diámetro 30mm

Bolsa

CAÑOS Y ACCESORIOS

Tubo soldable p/ 10kg

De 25 mm, un 30.000

De 20 mm, un 21.000

Tubo para agua caliente, roscable, 4 capas

De 1/2” un 62.000

CODOS PVC

Codo PVC para desagüe primario

De 50 mm x 45° un 4.000

De 50 mm x 90° un 4.500

De 100 mm x 45° un 9.450

De 100

Codo PVC para el desagüe secundario

De 40 mm x 90° (buje largo) un 1.550

Caja sifonada cuadrada con rejilla inox

Accesorios PVC

de sellado p/ desague 50mm un 2.900

Anillo de sellado p/ desague 75mm un 4.600

Anillo de sellado p/ desague 100mm un 5.000

Buje largo reducción p/ desague 50x40 mm un 2.450

Buje corto soldable 50x40 mm un 4.170

Codo 90° roscable 1/2” un 1.660

Codo reducción 90° roscable 3/4”x 1/2” un 3.350

Desengrasador 250 mm salida 50 un 67.000

Desengrasador 250 mm salida 75 un 98.000

Prolongador p/desengrasador 250x200 mm un 39.000

Prolongador p/caja sifonada 150x150 mm un 7.950

Ramal Y 40 x 45 p/desague secundario un 6.000

Ramal “Y” 100x50 mm p/desague un 16.500

Ramal “Y” 100x100 mm un 28.500

Tapon macho roscab p/desague secund de 1/2” un 690

Tee roscable de 1/2” un 2.600

Tee 3/4” a 1/2” IPS un 3.400

Tee 40x40 mm x 90° p/ desague primario un 4.000

Tee 50x50 mm x 90° p/ desague primario un 7.100

Tee 100x100 mm x 90° desague primario un 18.700

Tubo de descarga de EXTERNA p/ cisterna un 13.500

Tubo de descarga embutida ASTRA p/ cisterna un 15.300

Tubo desague plástico Astra p/ lavatorio un 14.000

Tubo descarga externa Astra p/ lavatorio un 17.300

Union sencilla roscable 1/2” un 1.700

Hierro galvanizado - caños de 6ml

De 1/2” un 163.000

CARPINTERÍA DE ALUMINIO

CARPINTERIA DE PVC

CERÁMICA ROJA

CERCO ELÉCTRICO

Cerco eléctrico de 4 hilos con hastes de hierro 5/8”

01 De alambre de 0,70 mm

02 De cabo de acero de 1,6 mm

Cerco de cuchillas galvanizadas colocado

01 Tipo medialuna

02 Tipo circular 8 puntas

03 Idem anterior de diam 45

04 Electrificador: incluye central, batería, control remoto, sirena, con instalación

CONSTRUCCIÓN EN SECO

12.000

24.000

CORTINAS

38.000

Persianas & Cortinas (021) 906 951/2 - (021) 328 0572/3 CEL 0971 543 246

021 906 951 - CEL.: 0971 543 246 CDE: 061 570 501

CHAPAS Chapa Galvalume por metro

Chapa termoacústica en medidas estandar

01

Policarbonato

01 Alveolar 6

Metálicas

ZINC Aluminizada de 0,90 cm ancho (Cincalum)

Chapa Ondulada No 28

01 De 8 pies (2.44m largo)

02 De 12 pies (3.66m largo)

TEL.: 021 906 951 CEL.: 0971 543 246 CDE: 061 570 501 (021) 906 951/2 (021) 328 0572/3 CEL 0971 543 246

+(595) 974 502 500

+(595) 986 174225

CHAPAS TERMOACÚSTICAS

CHAPAS TRAPEZOIDALES

CHAPAS ONDULADAS

CAÑOS

CALIDAD DE ACEROS

PARA SUS OBRAS

www.mvaceros.com.py

ventas5@mvaceros.com.py

VARILLAS

TEL.: 021 906 951

CEL.: 0971 543 246

(021) 906 951/2 (021) 328 0572/3

CEL 0971 543 246

CDE: 061 570 501

CONTENEDORES

CHAPAS COLONIALES ÁNGULOS PLANCHUELAS

CHAPAS LISAS

IPN > UPN PERFILES

PLANCHUELAS

BABETAS FRONTAL Y LATERAL

PLEGADOS PARA PUERTAS ARTÍCULOS DE FERRETERÍA

CIELORRASOS

DEPOSITOS DE MADERA

Alfajias , cepilladas

Ybyrapyta hasta 2 m de largo ml 10.000

Eucalipto hasta 2 m de largo ml 7.000

Vigas pulg2/m - De ybyrapyta 1,0 - 1,9 m pulg/m 4.500 2,0 - 2,9 m pulg/m 4.500 3,0 - 3,9 m pulg/m 4.700 4,0 - 4,9 m pulg/m 5.000 5,0 - 5,9 m pulg/m 5.500

6,0 - 6,9 m pulg/m

Tabla y puntales para encofrado

Tabla de eucalipto de 1” pulg/m 600

Puntal de eucalipto de 3x3” pulg/m 650

Tirantesde ybyrapyta / kurupa’y

1,0 -1,9 m

pulg/m 2.800

2,0 -2,9 m pulg/m 2.900

3,0 - 3,9 m pulg/m 3.400

4,0 - 4,4 m pulg/m 3.500

4,5 - 4,9 m pulg/m 3.700

5,0 - 5,9 m pulg/m 3.800

6,0 - 6,9 m pulg/m 4.200

Machimbres

De eucalipto 1/2 x 3”

De pino 1/2 x 4”

De eucalipto 1 x 4”

DEPÓSITOS DE MATERIALES

Ladrillos

Ladrillo común

Tobatí, un 650

Prensado 3 agujeros Ita yvy de 1a, 5x11,5x23,5 cm un 946

Laminado rústico Ita yvy de 1a, 5x11,5x23,5 cm un 825

Laminado Yoayu de 1a un 1265 Yoayu laminadito 5x11 x 23 cm un 949

Prensado 3 agujeros Yoayu de 1a, 5x11,5x23,5 cm un 1.044

Ladrillo hueco

De 6x12x25 cm, 2 caras vistas, 3 tubos, 52 un x m2, Yoayu de 1ra A, un 904

Ita Yvy de 1ra A, un 1.012

Ita yvy de 1ra B, un 792

De 8x18x25 cm, 6 tubos, 20 x m2

Ita Yvy de 1ra A, un 1.177

De 12x18 x25 cm, 6 tubos, 19 o 28 un x m2

Ita yvy de 1ra A un 1.298

Ita Yvy de 1ra B un 1.254

Yoayu de 1ra un 1.404

Yoayu de 1ra requemado un 1.278

De 18x18x25 cm, 9 tubos , 20 un x m2

Ita Yvy de 1ra A un 2.200

Ita Yvy de 1ra B un 1.716

Ladrillo estructural Ita Yvy 14x19x14 cm un 1.661

Ita Yvy 14x19x29 cm un 2.937

Ita Yvy 14x19x45 cm un 4.543

Ladrillo sapp de 1a - H5- 12 un x m27x30x25 cm

Ita Yby un 1.606 Yoayu un 1.860

MANDU’ARA

Ladrillo laminado recto - 6x12x25 cm, 52 un x m2

Irene 1ra A un 1.155

Yoayu laminadito 5x11x25 cm un 949

Ladrillo laminado curvo, 15 un x ml

Irene de 1ra un 1.950

Yoayu de 1ra B un 2.169

Ladrillo convoco, recto o inclinado 25un x m2

Ita Yvy 19x19x11 cm un 2.013

Irene, 18x18x12 cm un 2.650

Irene, 25x25x12 cm un 4.555

Yoayu 19x19x10 cm un 2.644

Ladrillejos 52 un x m2

Yoayu 1ra un 765

Yoayu 2da un 626

Ladrillo refractario 30 un x m2 , 6x12x25 cm

Ita Yvy de 1ra un 5.071

Yoayu 1ra un 6.148

Ladrillo klinker 44 un x m2 , 10x20x3,5 cm

Ita Yvy de 1ra un 1.804

Yoayu 1ra un 2.397

TEJAS

Teja española prensada de 1ra

Yoayu-26 un x m2

De 1ra

De 1ra A extrusada un 1.303

Teja ROMANA o portuguesa YoayuDe

Teja

Tejuelones - 9 un x m2

Yoayu de 1ra A

Ita Yvy de 1ra A

Tejuelitas - 30 un x m2

Ita Yvy de 1ra B un 473

Yoayu 1ra B un 658

Layotas

De 18x18 cm, 28 un x m2

Yoayu 1ra un 582

De 30x30 cm, lisa, 10 un x m2 un

Ita Yvy de 1ra un 1.914

Ita Yvy de 1ra B un 1.760

De 30x30 cm, rugosa, 12 un x m2 un Ita Yvy de 1ra un 1.969

Ita Yvy de 1ra B un 1.826

De 28x28 cm, lisa, 12 un x m2

Yoayu de 1ra A

1.666 Yoayu de 1ra B

Ita Yvy de 1ra B

De 28x28 cm, rugosa, 12 un x m2

Yoayu de 1ra A un 1.666 Yoayu de 1ra B antideslizante un 1.540

Ita Yvy de 1ra un 1639

Ita Yvy de 1ra B un 1.518

Zocalos de layota de 1ra A -10 cm de ancho

Yoayu de

Varios

Plástico para techo 200 micrones m2 4.000 Pileta granÍtica - 1 bacha 1,00x0,50 m un 95.000 Pileta granÍtica - 2 bacha 1,40x0,50 m un 125.000

Cascotillo cerámico m3

Asfalto para aislación 3,6 lt un 60.000

Poste de Karanday un 120.000

(021) 906 951/2

TEL.: 021 906 951

CEL.: 0971 543 246

(021) 328 0572/3

CDE: 061 570 501

CEL 0971 543 246

DIVISORIAS SANITARIAS

DRENAJES

ELECTRICIDAD

Columna de entrada (Materiales varios)

01 Aislador roldana B.T. 72x72mm, un 3.000

01 Aislador retención 0,50 un 3.500

02 Bulón p/ madera 3/8 x 3” un 1.000

03 Caño de acero ¾” x 3 m, un 8.500

06

ESTRUCTURAS

TInglado

FALLA DE PAVIMENTOS

FERRETERÍA

01 Balde albañil de plástico, un 10.000

02 Cemento de contacto, lt 23.500

03 Kerosene, lt 10.000

04 Masilla común kg 15.000

05 Solvente para cemento de contacto, lt 15.000

FUMIGACIONES

01 Fenoina, insecticida y fungicida p/maderas (Casarino) LT. 32.000

HERRERÍA

Aberturas

Barandas de balcón

01 De hierro sencilla 1,00m, pasamanos de 60x25mm en chapa doblada Nº14 colocación incluida dentro del radio urbano de Asunción

02 Idem de hierro dibujada,

Balancines sin colocación - A partir de 1 m2

01 Balancín fabricado con ángulo 5/8 y T 3/4x1/8, hoja de 0,20 m,

02 Balancín fabricado con ángulo 3/4 y T 7/8 x 1/8,

03 Balancín de 60x60 cm,

Cortinas metálicas de enrollar - A partir de 10 m2

01 Fabricación y montaje de cortinas automatizadas con láminas de acero galvanizado

y montaje de

Escaleras

01 Caracol diámetro 1,20 m, estructura de hierro con baranda, peldaños, con 1 mano antióxido y colocación incluida, por metro de altura,

Escalera marinera

Parrilla

01 Parrilla graduable de hierro enlozada con cenicero y carbonera de 1,20x0,50 m con tapa calor,

02 Campana de 1,20x0,60 m para parrilla con colocación,

03 Tubo de campana en chapa negra Nº 18,

Reja para ventana

01 Reja artística sencilla, con marco de ángulo de 3/4 x 1/8”, varilla de 10mm y dibujo rombo con planchuela de 3/4 x 3/16,

Portones (ver Portón a control remoto)

HERRAJES

Varios

01 Falleba de arrimar cromada, un 25.500

02 Ficha de 3 agujeros brasileña, reforzada, par 9.000

03 Ficha de 5 agujeros brasileña, reforzada, par 10.000

04 Pasador a palanca de embutir cromado de 150 mm un 18.000

05 Pasador a palanca de embutir cromado de 200 mm, un 25.000

06 Tirafondo galvanizado de 3/8x5”, un 1.500

07 Tornillo 1x7” caja de 144, un 150

08 Varilla de hierro para falleba de 1,20 m, un 24.500

09 Varilla de hierro para falleba de 1,50 m, un 30.000

MANDU’ARA HIDRÓFUGOS

Pennsylvania

1 Ceresita, 20 kg, kg 6.150

Casarino

1 De, 5 kg un 29.500

4

5

HOJALATERIA

Chapa galvanizada

Canaleta embutida N° 24

Desarrollo 60 cm,

Desarrollo 50 cm, ml

Canaleta moldurada 40 cm

HIERROS

HORMIGÓN

Hormigón Elaborado

* Comprende elaboración, transporte, bombeo, toma de muestras y rotura en laboratorio. Precios al contado

1

Chapa N° 24 ml

Canaleta moldurada 33 cm

Chapa N° 26

Chapa N° 28

IMPERMEABILIZANTES

Casarino

1 Secomur (silicona transparente)

2 Emulsión asfáltica Novasfalt, 20 Lt. un 225.000

3 Tapagoteras 4 kg un 137.000

4 Cementicio bi-componente, 25kg un 240.000

LABORATORIO DE ENSAYOS

Adhesivos Brascola Adhesivo epoxi aralbras

LOSA PREFABRICADA

Vigueta de Hº pretensado y ladrillo (Losa Rap)Puesto en obra 01 De 0,50 a 4,80

De 4,90 a 5,90

De 6,00 a 7,60

PreLosa pretensada y ladrillo Rap (PreRap 0,12x1,20 m) - Puesto en obra 01 Largo

MÁRMOL Y GRANITO

Vigueta de cerámica armada con cielo raso de hormigón visto incluido, a retirar de fábrica. (Listalosa)

MAMPARAS

01

1

TEL.: 021 906 951

(021) 906 951/2

CEL.: 0971 543 246

(021) 328 0572/3

CEL 0971 543 246

CDE: 061 570 501

MALLA ELECTRO SOLDADA

Garelli

MALLA DE FIBRA DE VIDRIO

Casarino

Para refuerzo de revoques en rollo de 50 m²

Tela tramada de poliester

P/ refuerzo de pintura y cementicios

PIEDRAS

Para fundaciones y hormigón

01 Piedra bruta blanca m3 150.000

02 Piedra bruta blanca, carga 5 m3 un 750.000

03 Piedra triturada IV tn 110.000

04 Piedra triturada V tn 120.000

05 Ripio, rojo m3 70.000

06 Ripio, negro tn 95.000

Adoquin de Piedra

01 Chico (130 un x m2, aprox) un 1.300

02 Mediano (90 un x m2, aprox) un 1.300

03 Grande (70 un x m2, aprox) un 1.300

Piedra para borde de piscinas

01 Borde Atérmico, 40x40cm ml 75.000

Ardosia

01 Gris de 8 mm, m2 55.000

02 Negra de 10 mm, m2 65.000

03 Verde de 12 mm m2 75.000

Piedras para revestidos

01 Laja fina, espesor 1 a 2 cm

Piedras para pisos

PILOTES

PINTURAS

Para carpinteria Barniz 3,6 l

Para pared

Para chapas

Pai Puku S.A. - Yrendague 136

Pai Puku S.A. - Yrendague 136

M. Roque Alonso - TEL: (021) 752507, WSP: (0981) 112549

M. Roque Alonso - TEL: (021) 752507, WSP: (0981) 112549

PISOS Y REVESTIMIENTOS

Baldosas Calcáreas

Base Gris

Base

Mosaico

Base

Equipa

Mosaicos para

PISOS SOBREELEVADOS

TEL.: 021 906 951

CEL.: 0971 543 246 CDE: 061 570 501

(021) 906 951/2 (021) 328 0572/3 CEL 0971 543 246

PISOS VINÍLICOS

TEL.: 021 906 951 CEL.: 0971 543 246

0971 543 246

061 570 501 (021) 906 951/2 (021) 328 0572/3

PORTONES A CONTROL REMOTO

Incluye: motor, placa, mecanismo, accesorios, 2 x control remoto y colocación.

Para portón corredizo 01 Hasta 3m de ancho, motor 1/4 HP un

Hasta 4,5 a 6m de ancho, motor 1/2 HP un

Para portón basculante 01 Hasta 3m de ancho, motor 1/4 HP un

Hasta 3 a 4,5m de ancho, motor 1/3 HP

fabricado en chapa plegada Nº 20 y caño cuadrado 30x30 con pasador portacandado, cerradura y 1 mano antióxido

de reja fabricado en varilla cuadrada 3/8” y caño 30x30mm,

MANDU’ARA

04

05

Hormigón pretensado, *Garelli puesto en obra

Dinteles Garelli

De 10 x 18 cm , de 4,10 a 5 m

De 10 x15 cm, de 3,10 a 4 m

De 10 x 12 cm , de 2,10 a 3 m

De 10 x 10 cm, de 1 a 2 m

Postes Garelli De

Tirantes 2 x 5” con cola de pato Garelli

Tirantes 2 x 5 recto Garelli De 1,00

REVESTIMIENTOS

ACÚSTICOS

FV - linea 61 - plus

Ducha, 103/61 un 958.000

Bidet, 295/61 un 829.000

Lavatorio, 207/61, un 760.000

Llave de paso con campana de 1/2” FV

Línea clásica 479/20, un 87.700

Linea 479/61, un 120.000

TEL.: 021 906 951

(021) 906 951/2

Linea Allegro 479/15, un 129.000

CEL.: 0971 543 246

(021) 328 0572/3

CEL 0971 543 246

CDE: 061 570 501

SANITARIOS

Cerámicos Piso/Pared

Cecafi 32x57 cm, Tellus Alba m2 34.000

Cecafi 45x45 cm, Provence m2 40.600

Cecafi 45x45 cm, Estocolmo m2 42.600

Forte Havana white 31x31 cm, m2 44.400

Forte Havana white plus 31x31 cm, m2 47.000

Cecafi 38x75 cm, Catena beige m2 51.300

Porcelanato 60x60 cm, desde m2 105.000

Adhesivos para azulejos, ceramica y pisos

Pennsylvania impermeable.(B/20kg) kg 1.198

Pennsylvania porcelanato flexible.(B/20kg) kg 2.575

Pastina

Pennsylvania univ.Siliconada castaño (1kg) kg 9.702

Pennsylvania univ.Siliconada blanco (1kg) kg 10.050

Piletas de acero inoxidable

Tramontina

De 0,80x0,50 m , 1 bacha, lado derecho un 210.000

De 1,00x0,50x0,13 m , 1 bacha, lado derecho un 276.000

De 1,00x0,50x0,13 m , 1 bacha central un 371.000

De 1,20 x 0,50x0,13m , 2 bachas, un 485.000

Sopapa Astra, un Bañeras

De 1,60 x 0,70 x 0.40 m, acrílica, un 1.400.000

De 1,70 x 0,70 x 0.40 m, acrílica, un 1.600.000

De 1,80 x 0,80 m con hidro, ASTRA un 9.200.000

De 1,70 m, italiana con hidro, un 7.000.000

Botiquín

Astra embutido blanco A33-BR1 un 200.000

Astra de sobreponer, A34 - BR1 un 220.000

ASTRA 44 x 58 x 11 cm - colgante un 560.000

Astra Brasilia LB12/S1 un 400.000

Grifería

Para baño

FV - Linea Allegro cromo

Ducha, 103/15, un 1.050.000

Bidet , 295/15 un 884.000

Lavatorio, 207/15 un 765.000

FV - Clásica 20

Ducha, 103/20 un 811.000

Bidet, 293/20 un 639.000

Lavatorio, 207/20 un 636.000

Para cocina / agua fria y caliente FVEmbutida Línea clásica, 403/20 jgo 479.000

Externa

Línea clásica , 409/20 jgo 850.000

Línea 61, 409/61 jgo 935.000

Línea clásica , 416/20 jgo

De mesada

Línea 61, 416/61 jgo 775.000

Línea clásica , 416/20 pico alto jgo 714.000

Llave de paso FV

De 1/2” , cromo sin campana 475/13, un 66.500

De 1/2” , cromo con campana 479/20, un De 3/4” , cromo sin campana 475/19, un 101.000

De 3/4” , cromo con campana 479/20, un 130.000

FV bronce 1/2” 471 un 58.000

FV bronce 3/4” 471 un 84.000

Para agua fría - Para lavatorio - canilla FV cromo :

Para bidet

Linea clásica FV 295/20 un 370.000

Para patio

Canilla FV 1/2”

Bronce 430, 1/2” un 49.000

Cromo sin pico 432, un 106.000

Bronce pico manguera 437 , un 124.500

Idem bronce un 107.000

Varios

Adhesivo plástico p/ PVC , pomo 75 cc, un 9.200

Idem anterior 850 cc, un 62.600

Brazo metal p/ ducha eléctrica un 12.500

Cinta teflon 3/4 x 25 m, un 5.950

Cinta teflon 3/4 x 50 m, un 9.600

Cisterna plastica (blanco y colores), un Conexión cromo 1/2” x 0,40 cm, MH, FV, un 40.800

Idem 1/2’ x 0,30 cm, MH, un 37.000

Conexión plastica 0,30 m un 7.000

Conexión plastica 0,40 m un 7.500

Ducha electrica Lorenzzeti Maxi 5400 w, un 127.500

Ducha teléfono DUCHAMATIC FV 119, un 810.000

Enchufe de plástico externo p/ inodoro un

Pasta lubricante 400 g un 29.700

MANDU’ARA

Prolongador FV cromo 1/2 x1,

Prolongador FV cromo 1/2 x2, Roseta FV cromo 1/2” - 452/13

Sellador p/ caño cuatricapa , 125 cc ,

Sella rosca , 125 cc

Solucion limpiadora , frasco 200 cc ,

Sopapa p/ pileta Astra

sopapa p/ lavatorio FV cromo 7/8” 246.01

Sopapa FV cromo p/ bañera

Soporte gancho p/ calefón

Soporte con tarugo p/ calefón

Tapa p/inodoro TPQ Orion

Tapa p/inodoro TPK Orion

Tarugo plástico 10 mm

Toallero aro cromo 162/33 FV,

Tornillo de bronce p/ fijar artefactos

Casarino SELLADORES

Tapagoteras 1kg

Tapagoteras 4kg

Pu 40 multiuso 400gr Negro, Gris

PU universal 80gr

TERMINACIONES

VARILLAS

1 Alambrón 4,2 mm x 12 m, un 20.000

2 Varilla conformada AP 420, kg s/ cotiz.

3 Varilla conformada AP 500, Kg 10.000

4 Varilla torsionada, kg s/ cotiz.

5 Varilla lisa, kg 11.500

Puerta Batiente: de 1 hoja, en vidrio templado 10mm, con perfiles de aluminio anodizado.

VIDRIOS

J. Román S.A.

VIDRIOS

Ventanas: de 2 hojas (1 fija + 1 corrediza), en vidrio templado 8mm con perfiles de aluminio anodizado.

Color

Vidrios templados

Turn static files into dynamic content formats.

Create a flipbook
Issuu converts static files into: digital portfolios, online yearbooks, online catalogs, digital photo albums and more. Sign up and create your flipbook.