

THU LE.
JUNIOR @let711@newschool.edu
Parsons School of Design, NY
BFA Interior Design
Aug 2023 - Present
X5 Dean’s List of Scholars 3.97/4.00 GPA
TECHNICAL COMPETENCY EXPERIENCE
3D MODELING
Revit
Rhino
SketchUp
RENDERING
Enscape
GRAPHICS
Adobe Photoshop
Adobe Illustrator
Adobe Indesign
PRODUCTIVITY
Microsoft Suite
Google Suite
SOFT SKILL & STRENGTHS
Organization
Punctual and Disciplined
Communication
Proactive and Adaptable
Collaboration
Creative and Risk-taking
Detail-oriented
Attentive and Precise
LANGUAGES
English - Native/Bilingual
Vietnamese - Native/Bilingual
Mandarin - Proficient
IDSO | Interior Design Student Organization
Event & Programming Team Leader
Oct 2025 - Present
- Organized and coordinated firm tours with Perkins & Will, SOM, Vitra, IIDA, and AvroKO
- Selected as the only junior among 150+ applicants to serve on the Core Team
Uniiik Saigon | Dual Internship
3D Concept Developer | Research Intern
Summer 2024 | Summer 2025
- Assisted designers on drafting concept boards and architectural drawings for two projects
- Designed final DJ Booth for V88 Club, assisted 3D visuals for ChanChan and Mosaic Bar & Coffee
VOLUNTEER
Tiny Hearts of Hope l Charity
Social Media Writer | Treasurer
Aug 2020 - Aug 2021
- Raised $2,500 for holiday gift programs and led weekly English lessons for orphans
- Assisted renovation of local orphanage bathroom as concept developer through fundraising
+1 (908) 560 0175
TSA | Student Organization
Board Member | Treasurer | Designer
Aug 2024 - May 2025
- Led event planning, budgeting, and logistics for social and cultural programs
- Designed visual materials and coordinated events engaging 150+ attendees
WJM Furniture | Dual Internship
Admin | Research Intern
Summer 2024 | Summer 2025
- Coordinated supplier meetings and documented site visits with Revit, AutoCAD, and live-sketch
- Assisted quality assurance for CNC production, research and material sourcing workflows
Parcels
of Hope l Charity
Social Media Writer | Treasurer
Aug 2020 - Aug 2021
- Raised $8,000 in a week, and coordinated food and necessities for 236+ families
- Led media campaigns that increased community awareness and donations on Facebook, Instagram
https://drive.google.com/drive/folders/1RIu051J5v6GPnRdKBBFizwjsUNoT9EsM?usp=sharing ABOUT URL
Human-centered interior design undergraduate with strong 3D visualization with commercial and hospitality design internship experiences.

POSTCARDS
CONTENTS
2023-2025
Selected Works
Community Center Design
Immersive Living Instrument



2023-2025
Selected Works
Pre-Fab Residential Design HIVE-HOME
2023-2025
Selected Works
Community Center Design INTERWOVEN
2023-2025
Selected Works
Residential Design Canopy of U-nity
“An Immersive Living Instrument”
Fall 2025 | Rhino | Enscape | AutoCAD | Illustrator
Concept:
It’s undeniable whether beneath subway platforms, along streets of Union Square, or even on the steps of your apartment complex—you’ve come across artists, dancers, and musicians attempting to showcase their talents in return for monetary reward, BUT: Why do we so often walk past them without stopping—without truly recognizing and appreciating them?
This project is designed as a launchpad, open-stage, and network hub where emerging musicians can rehearse, collabore, perform, and most importantly, be seen. The space is meant to amplify voices that are too often drowned out by the noise of the city.

Moodboard: Materiality:























Rendering:
An Immersive Living Instrument Scale: NTS
Rhino, Enscape and Photoshop
User-Profile: Under-recognized Musicians RESEARCH
DEMOGRAPHIC
AGE young to middle varied range
DIVERSE cultures occupation
INDEPENDENT student musicians
NEEDS&WANTS PSYCHOGRAPHIC
Motivated by growth, visibility, and cultural impact, the targeted musicians are seeking performance opportunities, creative expression, as well as community engagement in a high exposure community center.
SPACE opportunity community EXHIBITION money cultural GROWTH future career
Floor Plan: An Immersive Living Instrument Scale: NTS AutoCAD and Illustrator










RCP: An Immersive Living Instrument Scale: NTS AutoCAD and Illustrator Lighting Fixtures:

PROJECT 01. CONTINUED “SOCIAL-STAIRS”
Fall 2025 | Rhino | Enscape | Illustrator
Concept:
The proposed staircase design for the community center intends to explore two potential applications: a low, curvature staircase that functions as socializing and circulation, or a simple, linear staircase for the purpose of entry and exit, balancing sound reflectivity from the primary glass interiors with sound absorption from the incorporation of cork.
The selected materials—steel with great structural integrity, strength-to-weight ratio, and durability alongside cork with excellent sound absorption and insulating qualities—aims to reflect the notions of industrial-modernism, sustainability, and comfortability within a community center where longevity and accessibility are valued.



1. BOLT
1. BOLT Pre-drill through all
Pre-drill through all layers and use a 2" round-head countersunk bolt from the top, then flush with the cork.
2. WELD

Weld the diamond-plated steel directly to the steel bars using fillet welds along the edges, ensuring load-bearing quality.
load-bearing quality.

3. WELD
Cold-roll or brake-press the steel into organic curve and use a fillet weld along the seam where the curve meets the bar.
brake-press the steel into organic curve and use a fillet weld along the seam where the curve meets the bar.



tread layer, offering high friction resistance and structural resilience under high foot traffic, maintaining saftety alongside circulation.
B GALVANIZED STEEL THICKNESS = 3/16"


System Detail Drawing: SOCIAL-STAIRS
Scale: NTS
Rhino, Enscape and Illustrator

Rendering: An Immersive Living Instrument Scale: NTS Rhino, Enscape and Photoshop
Physical Model:


2025 | Rhino | Enscape | Photoshop| Illustrator | Hand-sketch
Concept:
This project investigates modular student housing through a pentagonal geometry that challenges conventional orthogonal prefabrication. Using a modular pentagonal unit, the system explores how non-rectangle modules can create varied spatial conditions and communal spaces, maintaining efficiency in pre-fabrication and assembly.
With the utilization of intentional partitioning, each defined space will have its purpose within the modular home, allowing residents to effectively engage in their everyday activities productively whilst maintaining focus and comfort. This will further be achieved through the use of wood for natural warmth.

TRANSFORMATIVE FURNITURE STANDARDIZED
COZY EFFICIENT PORTABLE
COST
AFFORDABILITY ADAPTABLE WEATHER-RESPONSIVE COMFORT PRODUCTIVITY
LIGHT-WEIGHT MATERIALS WARM ENERGY-EFFICIENT
FUNCTIONAL SPACIOUS INTENTIONAL SUSTAINABLE BIFOLD MURPHY BED FLEXIBILITY & ADAPTABILITY RETRACTABLE



Rendering:
Pre-Fab Student Housing Scale: NTS Rhino, Enscape and Photoshop











Floor Plan:
Perspective Collage:
Pre-Fab Student Housing
Scale: NTS
Rhino | Enscape | Photoshop








Home Office (Public - Shared) T Toilet (Public - Shared)
BR1 Bedroom 1 (Private)
BR2 Bedroom 2 (Private)
Galvanized Steel
Painted Concrete Cold Formed Steel
Hardwood (Oak)
Floor Plan:
Pre-Fab Student Housing (3-BR)
Scale: 1/8” = 1’ - 0”
Hand-sketch and Illustrator
Floor Plan:
Pre-Fab Student Housing (1-BR)
Scale: 1/8” = 1’ - 0”
Hand-sketch and Illustrator
Physical Model: HIVE-HOME
Scale: 1/16” = 1’ - 0”
Chipboard, rotary-pins and foamboard






RCP:
Pre-Fab Student Housing (3-BR)
Scale: 1/8” = 1’ - 0”
Hand-sketch and Illustrator
SURFACE MOUNTED LIGHT (12" diameter)
SURFACE MOUNTED LIGHT (12" diameter)
SURFACE MOUNTED LIGHT (16" diameter)
SURFACE MOUNTED LIGHT (12" diameter)
SURFACE MOUNTED LIGHT (16" diameter)
RECESSED CEILING LIGHT (16" diameter)
SURFACE MOUNTED LIGHT (16" diameter)
RECESSED CEILING LIGHT (16" diameter)
FLOOR LAMP
FLOOR LAMP
RECESSED CEILING LIGHT (16" diameter)
LAMP
FLUORESCENT TUBE LAMP
FLOOR LAMP
FLUORESCENT TUBE LAMP
LAMP
User-Profile: Off-Campus seeking College Students
FLUORESCENT TUBE LAMP
DESIGN
DEMOGRAPHIC PRE-FAB
AGE 18-24 varied range
DIVERSE cultures background
INDEPENDENT student interns
The design of a prefab (modular) accomodation intends to reach students of lower-middle incomes due to affordability, fast-construction, modernity, and energy efficiency, addressing problems with dorms.
PROJECT 03.
Fall 2025 | Rhino | Enscape | Illustrator | Photoshop

Concept:
This project reimagining the existing 277 Canal Street building in Chinatown proposes a residency and cultural hub for beauty workers and existing artisans to gather, educate, exhibit, and learn from each others’ different skilled specializations wihtin the beauty industry that is often operated ‘behind closed doors’.
The design celebrates cultural continuity and mutual support, connecting local artisans, immigrant labor networks, and intergenerational expertise to invigorate beauty as labor, identity, and community; fostering a space where making is visible, knowledge is collaborated, and craftsmanship thrives.















Zoning: Moodboard:

SA - SA’ (Section Perspective): Residency & Cultural Hub Scale: NTS Rhino, Enscape and Photoshop
Continuity in Intersection
Collaboration and exchanges of existing beauty artisans regarding knowledge and labor may bridge Chinatown’s cultural continuity through invisible care.
Feminism through Circularity
With curves and circles being representative of female biology, using it within a grid reflects strength through care and labor, addressing wig stimatization
Inclusivity & Togetherness
Organic forms serve as implied guidelines leading visitors to a shared meeting point, elicited through grid intersections created by circles and squares.

“Studio of Making” Social & Cultural Exchanges
Legend:
Experience Lab (Public)
Experiment Lab (Private)
2in1 Phone Booth/Meeting Lounge
Back of House: Meeting / Private Wig-Try
Back of House: Open Exhibit / Wig-Dye
Back of House: Restroom

Back of House: Storage
Seating / Resting
“Market of Beauty” Social & Economic Exchanges
Legend:
Reception
Open Haircut Area (Public)
Open Hairdry Area (Public)
Back of House: Public Wig-Try
Back of House: Open Hairwash Area
Back of House: Restroom
Back of House: Storage
Seating / Resting

Diagram (Exploded Isometric):
Residency & Cultural Hub
Scale: NTS
Rhino, Illustrator and Photoshop
Physical Model: Interwoven
Scale: 1/8” = 1’ - 0”


Chipboard, leather, paper, 3D-printed PLA, foamboard


PROJECT 04. “Canopy of U-nity”


Concept:
This Post-Graduate Housing on 12F serves as a microcosm of a treehouse which intends to foster interconnectedness through organic forms, layered textures, and dynamic spaces; all of which primarily inspired by the fragile, yet structural forms of shaved tree barks.
Inspired by the resilience and life cycle of the ubiquity of trees in New York City, the concept integrates structure with fluidity, fostering an adaptive and inclusive environment that enhances productivity for graduate students whilst maintaining comfort and warmth through selected materials and lighting.



















Moodboard:

Rendering:
Post-Graduate Housing (12F)
Scale: NTS
Rhino, Enscape and Photoshop

User-Profile: Post-Graduate Students MAJORS
STRATEGIC INTERIORS COMMUNICATION
“We will really benefit from dynamic and shared work zones where our creativity and productivity are enhanced through shared discussions, group projects and also team-driven activities.”
“We hope to be provided with desktop areas where printing services are within close proximity to us, bettering work progresses alongside efficiency, productivity, and also comfortability.”
“As someone whose creativity is stimulated by dynamic, yet functional interiors, I hope to see varied furniture, seatings, and ceiling designs in different zones and workplaces.”
Floor Plan:
Post-Graduate Housing (12F)
Scale: 1/16” = 1’ - 0”
AutoCAD and Illustrator
Rendering:
Post-Graduate Housing (12F)
Scale: NTS
Rhino, Enscape and Photoshop


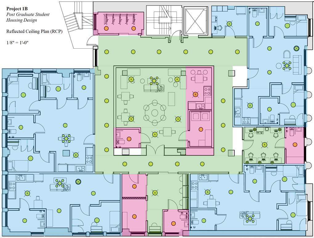
RCP:
Post-Graduate Housing (12F)
Scale: 1/16” = 1’ - 0”
AutoCAD and Illustrator
Control Strategy:
Post-Graduate Housing (12F)
Scale: NTS
AutoCAD and Illustrator


2023-2025
Selected Works
Flee-market Design TEA&FLEA



POSTCARDS OF CONTENTS


2023-2025
Selected Works
Furniture Design NÓN (conical-hat)
2023-2025
Selected Works
Furniture Design A Chef’s Safe Place

2023-2025
Selected Works
Soundscape Design Reverberating