PUCP_FAU_UNODOS_BOOK_LuzChoquenairaMadueño

Page 1

FAU.PUCP TallerUNODOS + DibujoUNODOS LUZ CHOQUENAIRA MADUEÑO 1 2 1 2 1 2 1 2 1 t FAU TALLER UNO DOS PUCP t t 2 1 2

Cursos

ARC101_TALLER 1

ARC102_DIBUJO ARQUITECTÓNICO 1

ARC104_TALLER 2

ARC105_DIBUJO ARQUITECTÓNICO 2

Ciclos Académicos

2021_1 & 2020_2

Trabajo

PRIMER AÑO FAU_BOOK

Estudiante, Contenidos & Diseño de contenidos

LUZ ISABEL_CHOQUENAIRA MADUEÑO

Concepción General de Portafolio

MANUEL_CASIANO

GONZALO_DEL_CASTILLO

DANIELLA_DIBÓS

NICOLÁS_MOSER

Diseño General de Portafolio MANUEL_CASIANO

© Pontificia Universidad Católica del Perú

© Facultad de Arquitectura y Urbanismo

© Luz Isabel Choquenaira Madueño Julio 2021

Salvo sea expresamente indicado y citado, todo el contenido del documento aquí presentado (textos, dibujos, mapas, diagramas, esquemas y fotografías) y su diagramación final son de autoría del estudiante, desarrollado con la guía de los profesores, salvo indicaciones y citaciones expresas. El concepto y desarrollo base de este documento ha sido propuesto por el equipo docente.

Este documento ha sido producido con fines específicamente académicos. En ese sentido, salvo sea para fines de difusión de su desarrollo como ejercicio de la Institución Académica a la que pertenece el curso, quedan prohibidas la publicación y/o reproducción en cualquier medio y mercantilización de todo o alguna parte del documento sin el permiso expreso firmado de los estudiantes, equipo docente y autoridades institucionales correspondientes bajo pena de las normas y leyes de autoría intelectual vigentes, tanto de la Universidad como del Perú.

Equipos Docentes

TallerUNODOS

Coordinador General RENE_POGGIONE

TallerUNO

Coordinadora de equipo CYNTHIA_SEINFELD

Equipo

JOSEP_CARGOL ANTONIO_CONTE GONZALO_DEL_CASTILLO CARLOS_ECHEGARAY MANUEL_FUJII

MARIANA_JOCHAMOWITZ

TERESA_MONTOYA NICOLÁS_MOSER ÓSCAR_PITA

CYNTHIA_WATMOUGH ENRIQUE_YAMAGUCHI CRISTIAN_YARASCA

TallerDOS

Coordinador de equipo NICOLÁS_MOSER

Equipo

MICHELE_ALBANELLI ANTONIO_CONTE

JOSEP_CARGOL MANUEL_CASIANO DANIELLA_DIBOS

MARÍA_ALEJANDRA_LINARES

ASIEL_NÚÑEZ

MARILYN_SHEPPARD CARLOS_TORRES

DibujoARQUITETÓNICO

Coordinador Expresión Gráfica ENRIQUE_YAMAGUCHI

DibujoUNO

Coordinación TallerDibujoUNO ENRIQUE_YAMAGUCHI

Equipo

ANNA_BARRÓN PABLO_CRUZ DIEGO_GIANELLA CLAUDIA_LAM MARTHA_MORALES JOSÉ LUIS_FERNÁNDEZ MARTHA_MORALES MARIO_QUEZADA CLAUDIO_SOLARI YSAAC_SOTILLA SARA_YRIVARREN

DibujoDOS

Coordinación TallerDibujoDOS MANUEL_CASIANO

Equipo MÓNICA_BAZO MANUEL_CASIANO ANDRÉS_DE_LA_CRUZ JOSÉ_FERNÁNDEZ ELISA_GIUSTI DIANA_PÉREZ CLAUDIO_SOLARI CARLOS_YAGUI

Este “book” compila la experiencia personal del alumno a lo largo del primer año en la Facultad de Arquitectura y Urbanismo de la PUCP. El mismo, se constituye como un ejercicio de síntesis y reflexión continua del alumno en relación a los ejercicios, experiencias y aprendizajes, tanto en los talleres como en los cursos

PONTIFICIA UNIVERSIDAD CATÓLICA DEL PERÚ FACULTAD DE ARQUITECTURA Y URBANISMO

FORMA/AMBIENTE/ARQUITECTURA

LUGAR/CULTURA/PROYECTO

ARQUITECTURA/PERCEPCIÓN/SÍNTESIS

TallerDOS DibujoDOS TallerUNO DibujoUNO

DIBUJO/CIENCIA/CULTURA

INTRODUCCIÓN A LA CULTURA DE LA SOSTENIBILIDAD

Enumera temas o ejercicios

PAG. 14 - 23

DOS

CAJA DE HERRAMIENTAS

Enumera temas o ejercicios

PAG. 24 - 43

APROXIMACIÓN AL PROYECTO

Enumera temas o ejercicios

PAG. 44 - 53

LUGAR,CULTURA y ESTRATEGIAS PROYECTUALES

Enumera temas o ejercicios

PAG. 64 - 121

EL PROYECTO

Enumera temas o ejercicios

PAG. 122 - 137

DIBUJO ARQUITECTÓNICO 1

Enumera temas o ejercicios

PAG. 54 - 61

DIBUJO ARQUITECTÓNICO 2

Enumera temas o ejercicios

PAG. 138 - 155

CONOCIMIENTOS TRANSVERSALES

Sistemas de Representación

Arquitectónica 00

Valoración 00

Terminología

Arquitectónica 00

Método General de la Perspectiva:

Perspectiva frontal 00

Perspecrtiva oblica 00

PAG. 156-159

0
X DB1 DB2 UNO

TallerUNODOS

INTRODUCCIÓN A LA CULTURA DEL PROYECTO ARQUITECTÓNICO

El taller introduce al alumno del primer año en la “Cultura del Proyecto Arquitectónico”, teniendo como objetivos académicos conseguir que desarrolle actitudes, habilidades y saberes que le permitan, al cabo del año, pensar y operar el proyecto como un arquitecto.

Simultáneamente, se busca generar en el alumno un mapa mental capaz de entender en términos generales, de que se trata el trabajo de los arquitectos, a fin de que tenga una oportunidad temprana para reafirmar su interés por la arquitectura. Se trabajará desde el inicio dentro de la cultura de la sostenibilidad, como una implicancia ética-estética de tercera generación, donde en términos éticos, se contemplan además de las ideas de bien común, los derechos de “lo otro”, entendiendo por ello los derechos del planeta de modo integral, superando así la idea de arquitectura sostenible, para formar un ciudadano y arquitecto, que desde su especificidad asuma la responsabilidad global e individual que exige la contemporaneidad.

A partir de estos objetivos transversales a todo el curso, se desarrolla un programa pedagógico, que permita generar conocimiento tomando como ejes en torno al proyecto, dos grandes conceptos arquitectónicos: FORMA-AMBIENTE y LUGAR-CULTURA-PROYECTO

Durante el Primer Ciclo, el alumno

trabajará desde el conocimiento de la Forma, incorporando las presiones que el ambiente genera sobre la misma, como son la gravedad, el clima y el material, desarrollando nociones como gravedad, peso, equilibrio y luz, suelo, espacio, entre otras.

A partir del Segundo Ciclo, el alumno incorporará a su habilidad adquirida en el manejo de la forma y el espacio, las nociones de LUGAR como CULTURA, reconociéndose como habitante de un PAISAJE y un TERRITORIO especifico como es el Perú donde los paisajes culturales son un producto con más de 8000 años de historia.

Todos los ejercicios proyectuales se desarrollan en dos fases:

El proceso de REGISTRO, INVESTIGACION, CONOCIMIENTO y luego el proceso de INTERNALIZACIÓN DEL CONOCIMIENTO, a partir de la resolución de problemas arquitectónicos específicos resueltos proyectualmente, los cuales se van complejizando gradualmente, en la medida que el alumno avanza en sus ciclos formativos.

En términos pedagógicos se pretende que los alumnos desarrollen sus capacidades creativas a partir de incorporar un bagaje y una cultura arquitectónica. En tal sentido, todos los ejercicios están diseñados en función a:

APRENDER A VER,

APRENDER A HACER

APRENDER A PENSAR

APRENDER A APRENDER

1

COMPETENCIAS

En el primer ciclo, se desarrollan conocimientos introductorios de la disciplina, como forma, espacio, orden, escala, luz y materialidad. Por su parte, en el segundo ciclo, se introducen conceptos básicos e introductorios en relación a la noción de proyecto, lugar y paisaje, explorando los procesos y estrategias de la arquitectura prehispánica, moderna y contemporánea.

Asimismo, el primer año trabaja en torno al proyecto de arquitectura, desde la noción de sistema (organización de partes de distinta naturaleza) diferenciando espacio, forma, estructura, composición, programa y envolvente, lugar, etc. entendiéndolos como elementos constitutivos del proyecto.

existenciales, sensoriales o fenomenológicos etc.) en búsqueda de una pertinente interpretación y transformación de la realidad.

3

dades, y respuestas no predeterminadas. También se busca promover el trabajo disciplinado y riguroso, tanto en los procesos de registro, investigación, como en los procesos proyectuales, tomando decisiones consistentes, formadas e informadas. La creatividad se basa en el aprendizaje y en la conciencia de lo aprendido.

autónoma, crítica, de honestidad intelectual, y de rigor metodológica en la manera de aproximarse al proyecto. Para ello, los ejercicios se desarrollan teniendo en cuenta:

1. El registro preciso y riguroso. 2.El estudio profundo de referentes históricos.

HABILIDADES

El alumno deberá demostrar la capacidad de abordar un proyecto arquitectónico, en tanto solución que resuelva los aspectos básicos de la disciplina de la arquitectura. Asimismo, deberá integrar diversas variables en relación con un lugar y un territorio específico. Complementariamente deberá entender, dominar, y aplicar herramientas y conocimientos básicos de expresión gráfica y el dibujo arquitectónico como medio fundamental de expresión; realizando representaciones y simulaciones de situaciones hipotéticas a partir de la construcción de modelos a escala.

2

CONOCIMIENTOS

Al finalizar el primer año, el alumno conoce y maneja un glosario mínimo de términos y conceptos que permiten convertirlo en un interlocutor que puede establecer un dialogo arquitectónico en torno al proyecto. Entendiendo a este, como la articulación de distintas variables o fuerzas internas y externas (espaciales, estructurales, programáticos, constructivos, ambientales,

4

ACTITUDES

Se busca que el alumno, desarrolle una actitud proactiva, autónoma y de permanente búsqueda, entendiendo al ejercicio proyectual como construcción de conocimiento y un discurso articulado. Al mismo tiempo, se promueve una mirada crítica, que asuma las incertidumbres, los riesgos, las posibili-

5

3. Ejercicios arquitectónicos para profundizar temas específicos.

4. Proyecto como herramienta para internalizar los conocimientos adquiridos.

CONTINUIDADES_TRANSVERSALIDADES

El taller establece una estrategia de continuidad entre nivel uno y nivel dos a partir de una serie de temas y ejercicios concatenados. Se establecen también, articulaciones pedagógicas transversales con los cursos y áreas de dibujo, teoría, construcciones e historia. Asimismo, el taller busca establecer vínculos por fuera del ámbito de la universidad, generando articulaciones con otras instituciones, invitando profesionales, diferentes expertos; y promoviendo así una formación más amplia que enriquezca la construcción de conocimiento, la formación y el bagaje cultural del alumno.

6

METODOLOGÍA

Simultáneamente con el desarrollo de conocimientos, habilidades, y saberes propios de la disciplina, se busca generar una actitud

7

PROYECTUAL

Finalmente, conscientes de las complejidades de nuestra época, de la enorme dificultad en establecer valor a las variables, y de fundamentar criterios que disciernan la calidad arquitectónica, en un contexto de incertidumbre, relatividad y subjetividad individual; es importante que, el primer año sea preciso en los objetivos de cada ejercicio, que estos puedan medirse con claridad y que no abunden en mayor confusión en los estudiantes. El ejercicio arquitectónico y el proyecto, no son objetivos en sí mismos, sino el modo de conseguir desarrollar los conocimientos, habilidades, actitudes, y la inteligencia PROYECTUAL.

INTRODUCCION A LA CULTURA DEL PROYECTO Jefe de cátedra Rene Poggione Jefe adjunto Nivel Uno Cynthia Seinfeld Jefe adjunto Nivel Dos Nicolás Moser Equipo: Michele Albanelli Josep Cargol Manuel Casiano Antonio Conte Gonzalo Del Castillo Daniela Dibos Carlos Echegaray Manuel Fujii Mareile Linares Asiel Nuñez Teresa Montoya Oscar Pita Patrick Roher Marilyn Sheppard Carlos Torres Mariana Jochamowitz Cynthia Watmough Enrique Yamaguchi Cristian Yarasca 1212 1212 1 FAU TALLER UNO DOS PUCP 212 Fuente: Lineamiento conceptuales TallerUNODOS . PUCP
0
PRIMERAÑOFAU/10

La introducción a los conceptos de equilibrio, criterios compositivos, espacio, escala y luz permitirán al alumno comenzar a ver con ojos de arquitecto. El análisis de esculturas con cualidades arquitectónicas, sirve como herramienta de internalización de conceptos. Una serie de ejercicios prácticos de corta duración, permitirán explorar los conceptos bajo la modalidad de aprender haciendo.

El ejercicio pretende consolidar los conceptos aprendidos en la Caja de Herramientas a través de un primer proyecto de arquitectura. La evolución de una sola propuesta, vista bajo la lupa de diversas variables, permitirá entender el proceso de diseño a través de la seriación.

/ Emplazamiento

Geometría subyacente Relación interior/exterior

/ Recorrido

Secuencia espacial / Atmósfera

Sentido del lugar

Luz, sombra, tiempo Carácter y espesor del muro

Geometría subyacente Relación con preexistencias

Estudio de una obra que explora estrategias que parten de la noción de ELEVARSE

Materialidad, Estructura y atmósfera Sintesis conceptual +1 / Referente

+1 / Exploración proyectual

Ejercicio de prefiguración y exploración que se centra en definir las principales estrategias proyectuales:

Distancia/Emplazamiento Orientación/mirada Escala/relación Etc.

±0 / Referente -1 / Referente

Estudio de una obra que explora estrategias que parten de la noción de POSARSE

Inserción y relación con el contexto Forma, espacio y recorrido Materialidad, Estructura y atmósfera Sintesis conceptual

±0 / Exploración proyectual

Ejercicio de prefiguración y exploración que se centra en definir las principales estrategias proyectuales:

Distancia/Emplazamiento Orientación/mirada Escala/relación Etc.

Estudio de una obra que explora estrategias que parten de la noción de HUNDIRSE

Inserción y relación con el contexto Forma, espacio y recorrido Materialidad, Estructura y atmósfera Sintesis conceptual

-1 / Exploración proyectual

Ejercicio de prefiguración y exploración que se centra en definir las principales estrategias proyectuales:

Distancia/Emplazamiento Orientación/mirada Escala/relación Etc.

específico, que se internalizará a partir de una serie de exploraciones proyectuales

/ Lugar / El patrimonio edificado

Se analizan diferentes aspectos del lugar, asi como variables relevantes para el proyecto:

Topografía Vegetación Preexistencias Visuales Procesos climáticos Otros

Proporcion/composición Luz-sombra Interior-exterior Etc Se analizan aspectos arquitectónicos y fenomenológicos del patrimonio edificado:

Planimetría Espacios y recorridos

Se

a / Inserción b / Recorrido y Secuencia

y el programa:

Espacio para MIRAR Espacio para MOSTRAR Espacio para ESTAR

Posición Distancias Relación preexistencias Escala Etc. a / Inserción b / Recorrido y Secuencia espacial c / Estructura morfológica d / Atmósferas Exploración de aspectos esenciales en relación a la implantación del proyecto:

Etc.

Ejercicio de síntesis que busca poner en práctica los conocimientos aprendidos a lo largo del primer año. El proyecto se centra en desarrollar una intervención de pequeña escala y baja complejidad programática, pero con una fuerte carga en relación a las preexistencias, el lugar y el territorio donde se inserta.

APRENDER A HACER APRENDER A VER
A HACER APRENDER A VER 3 4 1 2 LUGAR, CULTURA Y ESTRATEGIAS PROYECTUALES EL PROYECTO CAJA DE HERRAMIENTAS APROXIMACIÓN AL PROYECTO TALLER 2 TALLER 1 LUGAR EQUILIBRIO COMPOSICIÓN ESPACIO ESCALA LABORATORIO DE LUZ HUNDIRSE EL CONTEXTO ANÁLISIS DEL REFERENTE EL PROYECTO APROXIMACIÓN AL PROYECTO POSARSE ELEVARSE Mapa Esfuerzos Criterios Compositivos Abstracción Como herramienta de investigación y registro. Introducción a las principales variables y elementos del paisaje y el territorio: Estudio analítica de dos esculturas que parten de la noción del entendimiento del equilibrio. Analizar criterios compositivos de la forma y trazos reguladores a través de la escultura. Propuesta de dos composiciones para el análisis de fuerzas. Topografía Cuerpos de agua Contexto urbano Sitio arqueológico Procesos climáticos Otros Compresión Tracción Corte Flexión positiva Flexión negativa Palanca Trilito Relación con el suelo Equilibrio Espacio Antropometría Referentes Tipos de luz Escala humana Estudio de una escultura que parte de la noción del entendimiento del espacio. Se estudia las medidas del ser humano para aplicarlas en el diseño de espacios arquitectónicos. Estudio de una obra como referente arquitectónico que parte de la noción del entendimiento de la luz y la relación con la atmósfera espacial. Referentes El análisis de proyectos arquitectónicos de pequeña escala permitirá complementar los conceptos previos. Laboratorio Explorar a través de la observación, la incidencia de la luz en la percepción del espacio. Se interviene a través de la incorporación de dispositivos lumínicos que posibiliten el ingreso y la regulación de la luz en el espacio. Explorar la escala y proporciones a través de su cuerpo como primera referencia luego, a través de la escultura. Interior / Exterior Cerrado / Abierto Principal / Secundario Centro / Periferia Escala humana El modulor Proporción Armonía Unidad métrica espacial Luz incidente Luz difusa Luz Reflejante Atmósferas Series Espacio Luz Dispositivos lumínicos Análisis del referente Ubicación Planimetrías Dispositivos lumínicos Relación visual Antropometría Planimetría Duplas espaciales Se descubre distintas configuraciones espaciales empleando estrategias sobre el manejo del espacio. Vertical
Horizontal Interior / Exterior Cerrado
Interior otro/Contiguo Principal / Secundario Centro / Periferia Elementos primarios Orden Proporción Figura Fondo Pregnancia Simetría Axialidad Trazos reguladores Mapa
Como síntesis del registro, los hallazgos, reflexiones y/o relaciones.
APRENDER
/
/ Abierto
/ Diagrama
relación con el contexto Forma, espacio
recorrido
Inserción y
y
espacial c / Materialidad y Estructura d / Atmósferas
la
exploran aspectos esenciales en relación a la implantación del proyecto: Disposición de espacios en relación a
experiencia espacial, el recorrido
partir
conceptos esenciales
como: Se explora
trabajan aspectos vinculadas a la experiencia sensorial o fenomenológica del proyecto: Luz Textura Color Temperatura Sonido Ligero-Pesado Cerrado-Abierto Tectónico-Estereotómico Permanente-Temporal
Se trabaja a
de
y pares dicotómicos
y
Espacios para descansar, socializar y contemplar Espacios interiores y exteriores Relación con el suelo. Exploración de aspectos esenciales en relación a la forma y escala: Exploración de aspectos esenciales en relación a la experiencia, y atmósfera del espacio: El muro: espesor, altura, usos, habitabilidad Luz, sombra, vanos, dispositivos de luz Forma
relación
la inserción
espacio
proporción
espacios respecto
uso
Exploración de aspectos esenciales en relación al recorrido y programa: Espacios de paso y pausa
en
a
y
Escala y
de los
al
Se introduce la noción de lugar y cultura, a partir de confrontar al alumno con la necesidad de entender la riqueza paisajística, patrimonial y arquitectónica del territorio peruano. Asimismo, el estudio de antecedentes se constituye en la manera de ir construyendo un bagaje de conocimiento
0 FORMA / AMBIENTE LUGAR / CULTURA / PROYECTO Fuente: Diagrama metodológico TallerUNODOS PUCP Conceptualización y elaboración: Nicolás Moser / Cristian Yarasca / Manuel Casiano
PRIMERAÑOFAU/12

INTRODUCCIÓN A LA CULTURA DE LA SOSTENIBILIDAD

0

EQUILIBRIO//

En estos momentos excepcionales que estamos viviendo bajo la coyuntura de la pandemia de COVID-19, no debe pasar desapercibida la situación que afronta la humanidad de modo global.

Esta situación trastoca parámetros de pensamiento, hábitos y conductas individuales y sociales, sobre los que hemos venido operando desde las diversas disciplinas y, por cierto, afecta a la arquitectura.

En este ejercicio introductorio queremos tomar conciencia y reflexionar junto con los alumnos sobre dos temas que son centrales en la arquitectura: la acción sobre el ambiente y la noción de circularidad, buscando, desde nuestro propio hacer como “con- formadores”, aportar a la cultura de la sostenibilidad que es la centralidad de la época.

Consideramos fundamental sensibilizar la mirada hacia el entorno construido y los bienes de consumo diario, como parte esencial de la formación del pensamiento proyectual del arquitecto con el propósito de construir una cultura proyectual a partir de reflexiones sobre la dimensión ambiental del proyecto.

En términos arquitectónicos, es la relación de distancias, medidas e impactos, lo que se ha de repensar rápidamente.

Durante la primera semana de clases, trabajaremos sobre estos conceptos fundamentales de la disciplina arquitectónica, se espera que

el alumno reflexione sobre un escenario futuro en el que el desarrollo sostenible pueda ser alcanzado.

El ejercicio será desarrollado por todos los alumnos de PRIMER AÑO, es decir todos los alumnos de nivel 1 y 2 y consta de dos componentes:

El ejercicio se desarrolla por todos los alumnos de manera individual y consta de dos siguientes componentes:

A/

LA HUELLA HUMANA

1. Calcular la huella ecológica.

B/

LA CIRCULARIDAD

1. Infografía de los productos de consumo diario 2. Mapa Colectivo de las rutas de los productos de consumo diario.

NIVELUNODOS / E0 / PÁG.17 NIVELUNODOS / E0 / PÁG.16

LA HUELLA HUMANA

1. La huella ecológica.

En este ejercicio cada alumno calculó su huella ecológica, considerando los hábitos que ha venido realizando los últimos meses (pre-pandemia). Seguidamente debe realizar el mismo cálculo asumiendo que la actual situación de cuarentena se mantiene durante un tiempo prolongado. Se pretende que la comparación de los resultados permita al alumno evidenciar el impacto de sus actividades en el planeta.

La estimación y análisis de la huella ecológica individual y colectiva, por lo tanto, es una poderosa herramienta para avanzar a un uso sostenible de los recursos naturales.

Comparación entre:

NIVELUNODOS / E0 / PÁG.19 NIVELUNODOS / E0 / PÁG.18 A/
Huella TALLER2 Huella TALLER1

LA CIRCULARIDAD

1. Infografía de los productos de consumo diario

2. Mapa Colectivo de las rutas de los productos de consumo diario.

En este ejercicio cada alumno calculó se interesó por identificar las rutas de nuestros productos de consumo (alimento + envase), para analizar de manera critica los procesos de producción y distribución a escala nacional y global. Cada alumno deberá observar el entorno directo (casa/cocina) e identificar 2 productos favoritos, uno nacional y uno importado.

Producto nacional

Producto importado

NIVELUNODOS / E0 / PÁG.21 NIVEL B/
MAPA COLECTIVO

A modo de conclusión, en este ejercicio pude comprender y entender cuanto daño recibe el planeta y como se podría decir que se han agotado sus recursos.

Pude reflexionar sobre la necesidad que se tiene de una cultura de sostenibilidad.

FORMA/AMBIENTE/ARQUITECTURA Taller
UNO

CAJA DE HERRAMIENTAS

A. LA FORMA: APRENDIENDO DE LA ESCULTURA

Se trata de introducir al alumno en la cultura arquitectónica. El ejercicio es una primera aproximación a criterios arquitectónicos a través de la exploración de la “forma” como elemento primigenio y la manera como ciertos condicionantes inciden y operan sobre esta.

SOBRE EL EJERCICIO.

La reproducción de la escultura de Jorge Oteiza sirve como referente para el estudio de las condicionantes que operan sobre la forma. Esta escultura resalta en su diseño criterios compositivos, cobija espacios y maneja ingresos de luz, particularidades esenciales del proyecto arquitectónico.

OBJETIVOS.

• Introducir al alumno en la reproducción de un objeto (escultura) entendiendo su materialidad, escala, composición, proporción.

• Introducir al alumno en la reflexión sobre la forma y estética de la escultura de acuerdo con su contexto cultural, histórico y artístico.

• Afinar en los alumnos su capacidad de ver, pensar y hacer.

• Sensibilizar al alumno para trabajar en grupo fortaleciendo el intercambio de ideas.

ENCARGO.

Lámina 1. Fotos de la reproducción de la maqueta desde sus 4 ángulos y texto reflexivo sobre la manera como el contexto temporal, cultural y artístico de la época incide sobre su forma, explicando lo que quiso decir su autor.

Lámina 2. 4 isometrías de la escultura, mostrando posiciones diferentes.

NIVELUNO / E1 / PÁG.29 NIVELUNO / E1 / PÁG.28

La cátedra presentará una escultura a cada equipo de 3 alumnos, del escultor Jorge Oteiza que servirá como referente para el estudio de una serie de condicionantes que operan sobre su forma. La escultura elegida resalta en su diseño distintos criterios compositivos, cobija en su interior espacios y maneja ingresos de luz, particularidades esenciales del proyecto arquitectónico. Con este ejercicio afinarán su capacidad de ver, pensar y hacer. Como parte fundamental del ejercicio, se deberá entender el contexto cultural, histórico y artístico en el que se desarrolló la escultura para entender la filosofía y estética particular.

+ ENCARGO

1. Cada alumno deberá reproducir la maqueta que se le asignará a su equipo según las dimensiones determinadas por la cátedra, las que serán proporcionales a las medidas reales.

2. Los alumnos deberán usar cartones de un solo color para reproducir la escultura.

3. Cada grupo deberá desarrollar cuatro isometrías de la escultura, mostrando posiciones diferentes. La escala deberá ser 1:5 (la quinta parte del tamaño).

4. Seguidamente, los alumnos investigarán al artista y se familiarizarán con el contexto temporal, cultural y artístico de la escultura. Con esta información deberán reflexionar sobre la forma de la escultura, explicando lo que quiso decir Oteiza con la forma. Se deberá desarrollar un texto de 150 palabras. + ENTREGABLE

Los alumnos deberán subir cuatro fotos de su maqueta desde distintos ángulos. Estas

NIVELUNO / E1 / PÁG.31 NIVELUNO / E1 / PÁG.30
A LA
ESCULTURA
Este

ejercicio me permitió analizar detalladamente su forma y sus virtudescomo escultura.

B. WORKSHOPS: LAS CONDICIONANTES DE LA FORMA

SOBRE EL EJERCICIO.

El análisis de la “forma” a través del referente “escultura”, permita entender la manera como ciertos condicionantes inciden y operan sobre ésta. Cada una de estas condicionantes se tratan como una capa de estudio abordadas por los alumnos a través de workshops con criticas grupales. Los ejercicios se cierran con un trabajo reflexivo para fundamentar decisiones y propuestas.

Esta información es una caja de herramientas para los alumnos. Su decodificación y abstracción serán aplicados luego, en los ejercicios de diseño arquitectónico.

Las capas son las siguientes:

B1. Equilibrio

B2. Criterios Compositivos

B3. Espacio

B4. Escala

B5. Luz

OBJETIVOS.

• Introducir a los alumnos en el entendimiento de las condicionantes de la forma.

• Brindar a los alumnos herramientas para el diseño arquitectónico.

• Sensibilizar al alumno para trabajar en grupo fortaleciendo el intercambio de ideas.

ENCARGO.

A partir de una serie de charlas teóricas y temáticas sobre las condicionantes de la forma, los alumnos realizan el análisis de cada una de las variables a partir de la escultura valiéndose de algunos dispositivos adicionales, según sea el caso. Para expresar las capas se procesará a la operacionalización de la maqueta reproducida y la interacción con dibujos.

NIVELUNO / E1 / PÁG.35 NIVELUNO / E1 / PÁG.34

“La construcción es la lengua materna del arquitecto; un arquitecto es un poeta que piensa y habla en el idioma de la construcción.” – Auguste Perret

SOBRE EL EJERCICIO.

A través de ejercicios experimentales sobre las implicaciones de la fuerza de gravedad se introduce a los alumnos en la comprensión de los esfuerzos mecánicos. Los alumnos operan sobre la escultura para lograr una condición de equilibrio.

OBJETIVOS.

• Introducir al alumno al entendimiento de los comportamientos estructurales de la forma.

• Se espera que el alumno sea capaz de decodificar y abstraer los principios de la gravedad y el equilibrio para aplicarlo en el diseño de un proyecto arquitectónico.

COMPOSITIVOS.

SOBRE EL EJERCICIO.

A través de la identificación de los elementos primarios, las relaciones de orden y proporción entre las partes y el estudio de cómo opera los principios ordenadores y trazos reguladores, el alumno entiende la manera como operan y condicionan directamente la composición de la forma.

OBJETIVOS.

• Se busca que el alumno pueda identificar los criterios compositivos de la forma a través de la observación y el análisis del objeto/escultura en relación con sus superficies.

• Se espera que el alumno sea capaz de decodificar principios de los criterios compositivos para aplicarlo en el diseño de

NIVELUNO / E1 / PÁG.37 NIVELUNO / E1 / PÁG.36
E2.
B1. EQUILIBRIO.
WORKSHOPS.
E2. WORKSHOPS. B2. CRITERIOS

B3. ESCALA.

“El hombre es la medida de todas las cosas” – Protágoras

SOBRE EL EJERCICIO.

Utilizando las medidas de su cuerpo, así como de los espacios de su vivienda, el alumno explora y se aproxima a la idea de escala, proporciones y antropometría.

El alumno descubre los diversos programas de uso que la escultura puede albergar de acuerdo con la escala que le asigne al espacio.

OBJETIVOS.

• Introducir al alumno en el entendimiento de la escala y las proporciones.

• Introducir al alumno en la relación entre la escala, el uso y el espacio.

• Se espera que el alumno sea capaz de decodificar y abstraer

E2. WORKSHOPS.

B4.

ESPACIO.

“Poéticamente, habita el hombre” – Martin Heidegger

SOBRE EL EJERCICIO.

Se explora espacios dentro de la escultura para lograr una primera aproximación al concepto de “habitar”. Mediante el proceso de “hacer” el alumno descubre distintas configuraciones espaciales.

OBJETIVOS.

• Lograr que cada alumno comprenda la importancia de la forma desde su interior.

• Se espera despertar una curiosidad y entendimiento por la variedad espacial.

NIVELUNO / E1 / PÁG.39 NIVELUNO / E1 / PÁG.38 E2. WORKSHOPS.

E2. WORKSHOPS.

B5.A. LUZ.

“La arquitectura es el juego sabio, correcto y magnífico de los volúmenes bajo la luz” – Le Corbusier

SOBRE EL EJERCICIO.

Este ejercicio de observación de la incidencia de la luz sobre la escultura y análisis de la fuente de luz existente y de las características de las superficies sobre las que incide (posición, color, textura, etc.), posibilita entender el comportamiento de la luz sobre las superficies y la forma, luego, su incidencia en la percepción del espacio.

OBJETIVOS.

• Incentivar al alumno a la observación del comportamiento de la luz.

E2. WORKSHOPS.

B5.B. LA CAJA DE LUZ.

SOBRE EL EJERCICIO.

Los alumnos aplican lo aprendido, en un primer ejercicio de seriación a través de la experimentación por prueba y error. Aplican los conocimientos adquiridos en los workshops sobre las variables de la forma: equilibrio / criterios compositivos / escala / espacio / luz, para generar atmosferas–percepciones, a partir de la experimentación del comportamiento de la luz en el espacio. Se introduce al alumno en el estudio de referentes como una manera de aprender a ver, pensar y hacer.

OBJETIVOS.

• Se requiere que el alumno vaya formando un bagaje arquitectónico a través de la reproducción de maquetas y planos en planta, corte, y elevaciones de referentesproyectos con alta calidad arquitectónica.

• La comprensión e internalización de las estrategias y pensamiento proyectual de los referentes. Metodología de trabajo: investigo - internalizo - produzco.

• Incentivar la curiosidad en el alumno, así como el trabajo experimental.

• Introducir al alumno en el trabajo serial que le permita

NIVELUNO / E1 / PÁG.41 NIVELUNO / E1 / PÁG.40
A

modo de conclusión, en este ejercicio pude comprender y entender las diversas condicionantes de un objesto: escala, luz, criterios compositivos...

APROXIMACIÓN AL PROYECTO

PABELLÓN FENOMENOLÓGICO.

SOBRE EL EJERCICIO.

A través de una metodología definida paso a paso por la cátedra, cada equipo de 2 alumnos debe de diseñar su primer proyecto arquitectónico: un pabellón que se ubicará en un lugar con condicionantes ambientales que incidirán en la toma de decisiones del proyecto. Debe de considerar espacios de diferentes usos (entregados por la cátedra) concatenados a través de uno o más recorridos.

CONOCIMIENTOS PREVIOS. Equilibrio, criterios compositivos, espacio, escala y luz.

NUEVOS CONOCIMIENTOS. Relación naturaleza/artificio. Sentido del lugar: emplazamiento del proyecto en relación con el lugar y sus condicionantes. Recorrido/ pausa. Caracterización del espacio de acuerdo con el uso

PRE-EXISTENCIAS/LUGAR. Un lugar con variables ambientales. Bosque de Algarrobos (serán entregados por la cátedra). Definición de sendero. Latitud (asoleamiento-sombra/albaatardecer)

USOS. 1. Espacio/s de exposición. 2. Espacio/s colectivos para sentarse y conversar. 3. Espacio/s de contemplación e introspección.

OBJETIVOS.

• Reflexionar sobre las capas aprendidas.

• Metodología para abordar un proceso proyectual (relación naturaleza- artificio). Considera:

1. Inserción / Emplazamiento (relación con el lugar)

2. Recorrido / Espacio y relaciones espaciales (ralentizar el paso)

3. Estructura morfológica (proporciones, formas, escala)

4. Caracterización del espacio y atmósferas de acuerdo con el uso

(Luz, proporciones, escalas, materialidad).

5. Relación interior/exterior (espesor de muro, dimensión de elementos).

ENCARGO.

1. EXPERIENCIA FENOMENOLÓGICA

Los alumnos pasarán por una experiencia fenomenológica donde pondrán a trabajar sus sentidos. De manera individual deben tomar un video de máximo 30 segundos. En el video deben de comentar sus percepciones. Tomar como referencia el escrito de Peter Zumthor “Atmósferas”.

2. ANÁLISIS DE REFERENTES/CAJA ZHERRAMIENTAS

Se presenta 3 referentes a los alumnos: 1. Pabellón Bienal Venecia, Álvaro Siza. 2. Pabellón Sonsbeek, Aldo Van Eyck. 3. Arboretum, Rintala Eggertsson. Se asignará un referente por cada equipo para el análisis de las siguientes variables:

1. INSERCIÓN (geometría subyacente/ implantación)

2. RECORRIDOS (recorridos/ pausa)

3. FORMA - ESPACIO (propuesta morfológica/ secuencias espaciales/ vistas adentro y afuera)

4. ESCALA (proporciones/ ritmos/ unidad métrica individual)

5. ATMOSFERA (luz/ materia/ me hundo/ me elevo)

3. PABELLÓN FENOMENOLÓGICO

Etapa 1: Inserción / Recorrido.

1.a Recorridos/ ralentización del recorrido-espacios de pausa

1.b Ejercicio de implantación e inserción en relación con el bosque, el sendero y la latitud

1.c Estructura invisible subyacente

Etapa 2: Forma - Espacio / Escala / Atmosfera

2.a Uso (contemplación/reunión y conversación/exposición), caracterización y atmósferas de los espacios. Incidencia de luz, proporciones y escala, techado/no techado

2.b Unidad métrica individual para reconfigurar proporciones y escalas de espacios

NIVELDOS / E2 / PÁG.47 NIVELDOS / E2 / PÁG.46

OBJETIVOS

-Reflexión sobre las capas aprendidas.

-Metodología para abordar un proceso proyectual (relación naturaleza- artificio). Considera:

1. Inserción / Emplazamiento (relación con el lugar)

2. Recorrido / Espacio y relaciones espaciales (ralentizar el paso)

3. Estructura morfológica (proporciones, formas, escala)

4. Caracterización del espacio y atmósferas de acuerdo con el uso (Luz, proporciones, escalas, materialidad).

5. Relación interior- exterior (espesor de muro)

ENUNCIADO:

A través de una metodología definida paso a paso por la cátedra, cada equipo de 2 alumnos debe de diseñar su primer proyecto arquitectónico: un pabellón que se ubicará en un lugar con condicionantes ambientales que incidirán en la toma de decisiones del proyecto. Debe de considerar espacios de diferentes usos (entregados por la cátedra) concatenados a través de uno o más recorridos.

CONOCIMIENTOS PREVIOS

Criterios compositivos, tipologías espaciales, luz, escala y equilibrio.

NUEVOS CONOCIMIENTOS

-Relación naturaleza/ artificio

-Sentido del lugar: emplazamiento del proyecto en relación con el lugar y sus condicionantes

-Recorrido/ pausa

-Caracterización del espacio de acuerdo con el uso

PRE-EXISTENCIAS/ LUGAR

-Un lugar con variables ambientales

-5 árboles con copas frondosas cuyos emplazamientos serán entregados por la cátedra.

-Dos caminos o senderos

-Latitud (asoleamiento- sombra / alba- atardecer)

USOS

1. Espacio/s de exposición

2. Espacio/s colectivos para sentarse y conversar

3. Espacio/s de contemplación e introspección

NIVELDOS / E2 / PÁG.49 NIVELDOS / E2 / PÁG.48
3
EJERCICIO
NIVELUNO / E1 / PÁG.51 NIVELUNO / E1 / PÁG.50
En este ejercicio di paso a mi primera idea de proyececto como estrategia.

UNO

ARQUITECTURA/PERCEPCIÓN/SÍNTESIS

d d d
Dibujo

DIBUJO ARQUITECTÓNICO 1

SOBRE EL CURSO.

El curso se compone de 2 partes interrelacionadas que se imparten de manera simultánea en todo el ciclo: una artística y otra arquitectónica. De esta manera se busca que el alumno comprenda que el arquitecto necesita entender los problemas de la observación y la representación arquitectónica como un proceso natural, con herramientas que le permitirán representar todo lo que imagine dentro de un código específico.

Se impartirán dos sesiones por cada día de clase. Una sesión de dos horas se llevará a cabo con el equipo de Arquitectura dirigido por el arquitecto Enrique Yamaguchi, en la que se desarrollarán técnicas vinculadas a la expresión y el lenguaje arquitectónico. Las otras dos horas se llevarán a cabo con el equipo de Arte dirigido por el profesor Diego Gianella.

Las sesiones con el arquitecto Enrique Yamaguchi tienen la finalidad de vincular la capacidad de observación con la representación a escala, desarrollando las habilidades necesarias para expresar el trabajo tridimensional del arquitecto en planos o dibujos con distintas técnicas Esta labor estará permanentemente vinculada con el desarrollo del Taller 1.

Las sesiones con el profesor Diego Gianella tienen la finalidad de enseñar a ver, y así aprender a plasmar una realidad correctamente valorada y ubicada en el plano o formato. Dirigido principalmente hacia la comprensión de conceptos de composición, manejo de la línea y la perspectiva, así como, el estudio de proporciones del cuerpo humano y la profundidad en el espacio. Lograr la tridimensionalidad de los objetos y sus formas en el plano por medio del claro oscuro, a través de luces y sombras.

OBJETIVO GENERAL.

• Introducir a los estudiantes en las técnicas de representación arquitectónica desde la observación, la representación y la síntesis, con el fin de que estas técnicas se conviertan en herramientas importantes del proceso proyectual. Además, introducirlos a las nociones de escala y proporción y a los conceptos relacionados a la composición de las formas arquitectónicas.

OBJETIVOS ESPECÍFICOS.

Unidad 01: OBSERVACIÓN, PROPORCIÓN Y REPRESENTACIÓN

• Entender la forma, en el sentido más amplio, a través de la observación.

• Desarrollar el concepto de proporción y entender la representación desde dos maneras distintas: la representación ortogonal y la perspectiva.

• Aplicar el uso del lápiz y del estilógrafo.

Unidad 02: CORTE O SECCIÓN

• Comprender el uso de la planimetría a través de la idea de corte vertical o corte horizontal.

• Desarrollar conceptos como: materia, masa, volumen, representándolos con texturas o líneas.

Unidad 03: VALORACIÓN

• Comprender la naturaleza de la luz en la representación tridimensional.

• Desarrollar conceptos como el de materia, masa o volumen, representándolos con texturas o líneas.

Unidad 04: SÍNTESIS

• Entender el concepto de estructura como parte fundamental de la representación. Modelar una expresión sintética de elementos complejos.

Unidad 05: PRECISIÓN EN LA REPRESENTACIÓN PLANIMÉTRICA

DB1 / PÁG.57 DB1 / PÁG.56
DB1 / PÁG.59 DB1 / PÁG.58 DIBUJO ARQUITECTÓNICO 2020.2

El color

El cuerpo humano Dibujos en síntesis

NIVELUNO / E1 / PÁG.61 NIVELUNO / E1 / PÁG.60 DIBUJO ARTÍSTICO
2020.2
LUGAR/CULTURA/PROYECTO TallerDOS

PACHACAMAC

A. EL LUGAR COMO PREMISA

“Pachacamac fue el principal santuario de la costa central durante más de mil años. Sus templos eran visitados por multitudes de peregrinos en ocasión de los grandes rituales andinos, pues Pachacamac era un acertado oráculo capaz de predecir el futuro y controlar los movimientos de la tierra. Al santuario de Pachacamac acudían también habitantes de todos los Andes en busca de soluciones a sus problemas o respuestas a sus dudas.” (Fuente: www:pachacamac.cultura.pe)

SOBRE EL EJERCICIO.

El nivelDOS, se centra en la necesidad de reconocer y entender el territorio y el paisaje peruano como una construcción cultural, partiendo de un primer reconocimiento y estudio de uno de los principales centros arqueológicos de la costa peruana, como lo es Pachacamac.

OBJETIVOS.

• Introducir a los estudiantes a la noción de lugar y cultura como variable y condición trascendental en el proyecto de arquitectura.

• Reconocer la riqueza cultural, patrimonial y arquitectónica del Perú.

• Sensibilizar al estudiante frente a las riquezas y complejidades que implica habitar un paisaje cultural con más de 5000 años de historia.

• Introducir el mapa como herramienta de registro de investigación y como herramienta proyectual.

ENCARGO.

Parte 1

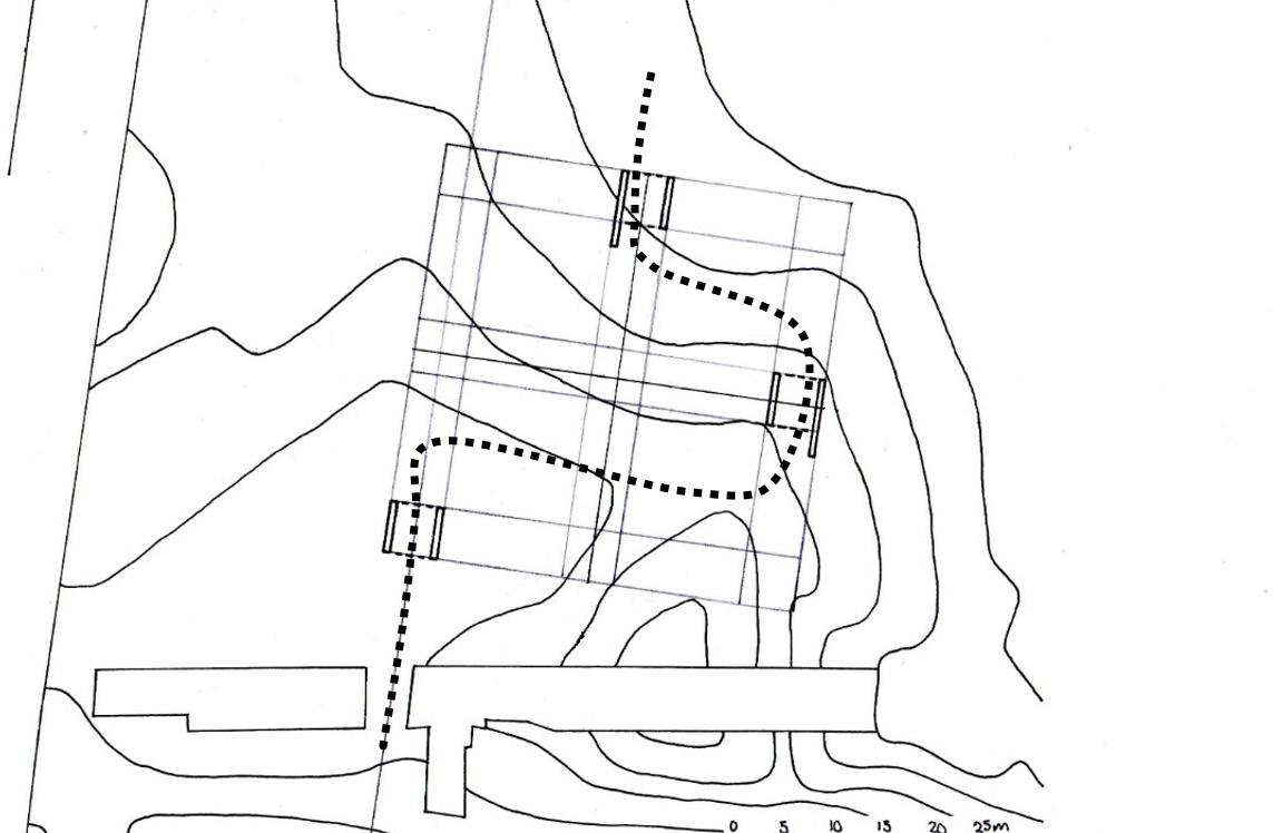
En grupos de seis alumnos se realizará un análisis del lugar de manera colaborativa el cual permita entender los principales elementos que componen el paisaje. Se designará un área de territorio para analizar, representada en una imagen satelital base. Sobre ella, cada grupo de alumnos elaborará un conjunto de 6 mapas (un mapa cada alumno). Cada mapa mostrará una capa de información, según lo siguiente:

Mapa 1. TOPOGRAFÍA Y ELEMENTOS GEOGRÁFICOS: Identificar y representar curvas de nivel y elementos geográficos relevantes como cerros e islas. Mapa 2. CUERPOS DE AGUA: Representar ríos, canales, reservorios, así como zonas húmedas como los pantanos y el mar.

Mapa 3. PROCESOS CLIMÁTICOS Y ATMOSFÉRICOS: Identificar y representar la región con mayor presencia de neblina, ubicación y dirección de las principales corrientes marinas y del viento.

Mapa 4. SITIO ARQUEOLÓGICO: Identificar y representar el sitio arqueológico de Pachacamac, resaltando las directrices de su emplazamiento (Ej. Presencia y conexión con el Qhapaq Ñan, ejes visuales y simbólicos).

Mapa 5. CONTEXTO URBANO CONTEMPORÁNEO: Identificar y representar la actual ocupación urbana, zonas de lotización, vías y otras infraestructuras públicas como parques, plazas y zonas de esparcimiento.

Mapa 6. OTRAS TRANSFORMACIONES DEL TERRITORIO: Identificar y representar otros elementos del paisaje antrópico fuera del contexto esencialmente urbano como las zonas agrícolas, ganaderas y mineras.

Parte 2

Cada equipo compartirá la información recolectada en alrededor de cada capa. Luego, en grupos de dos alumnos se realizará un mapa de análisis y síntesis de lo trabajado en la parte 1.

Mapa 7. ANÁLISIS Y SÍNTESIS: Identificar y representar los principales hallazgos, reflexiones y curiosidades que se desprenden de los mapas que han realizado. Para ello, se considerarán las siguientes preguntas:

- ¿Qué elementos y condiciones consideran son los mayores determinantes del paisaje actual?

- ¿Qué relaciones simbólicas, visuales, de conexión encuentran entre los elementos arquitectónicos y los elementos “naturales”?

- ¿Qué coincidencias, conflictos y consecuencias aparecen de la superposición/relación de las capas?

Parte 3

En grupos de dos alumnos se realizará el levantamiento del lugar, usando como base el material entregado en clase.

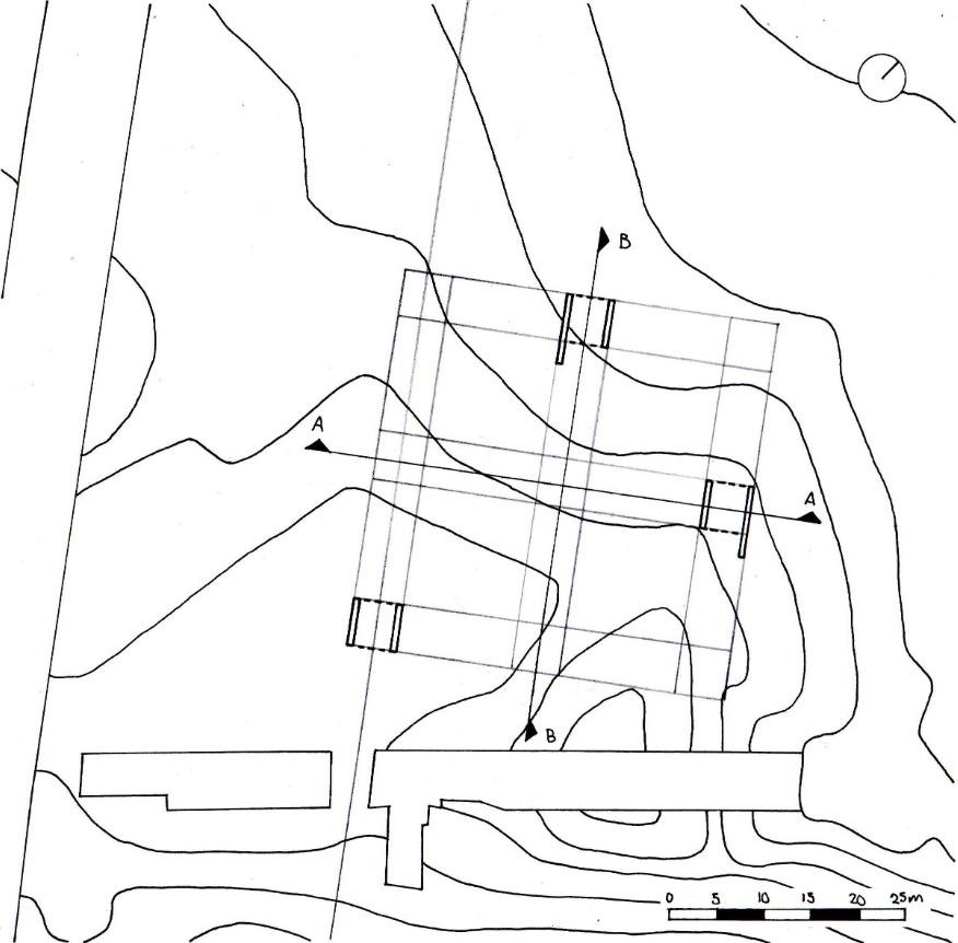
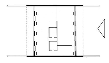
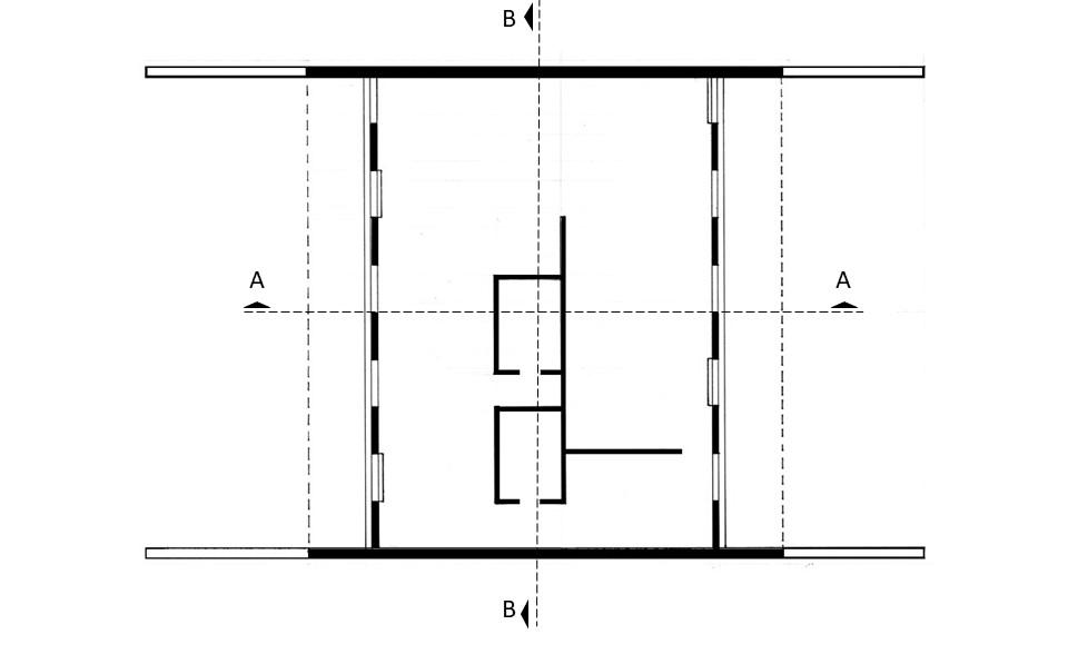
Lámina 8/9. LA MURALLA. 1 Planta, 2 cortes, 2 elevaciones, 1 isometría del sector de la muralla de acceso al complejo de Pachacamac.+ 1 Maqueta conceptual/abstracta esc. 1/200 del sector de la muralla.

NIVELDOS / E3 / PÁG.67 NIVELDOS / E3 / PÁG.66

¿Cuál/como es el lugar?

Se trata de La Tercera Muralla de Pachacamac, con la portada de la costa, solia ser el ingreso principal. Esta se sitúa en la actual avenida Lima y de allí sale un camino que va directo hacia los templos.

NIVELUNO / E1 / PÁG.69 NIVELUNO / E1 / PÁG.68 . EL LUGAR COMO PREMISA .

1. TOPOGRAFÍA

Mapa 2. CUERPOS DE AGUA

Mapa 5. CONTEXTO URBANO CONTEMPORÁNEO Mapa 4. SITIO ARQUEOLÓGICO

Mapa 3. CLIMA Y ATMÓSFERA

Mapa 6. TRANSFORMACIONES DEL TERRITORIO

NIVELUNO / E1 / PÁG.71 NIVELUNO / E1 / PÁG.70
Mapa
A. . EL LUGAR COMO PREMISA . Capas
NIVELUNO / E1 / PÁG.73 NIVELUNO / E1 / PÁG.72 A. . EL
.
LUGAR COMO PREMISA
Análisis y síntesis

ELEVACIONES

NIVELUNO / E1 / PÁG.75 NIVELUNO / E1 / PÁG.74 A. . EL LUGAR
.
COMO PREMISA
Planimetría
A. . EL
CORTES PLANTA ISOMETRÍA
LUGAR COMO PREMISA .
Maqueta

B. EL PROYECTO COMO ESTRATEGIA

SOBRE EL EJERCICIO.

La segunda parte del ejercicio se desarrolla en tres momentos, donde los alumnos estudian proyectos referenciales al mismo tiempo que ensayan y exploran diferentes estrategias proyectuales de posicionamiento e inserción en el paisaje, como son:

ENCARGO.

Se trata de un ejercicio de prefiguración que resuelve de manera conceptual a partir de delinear las principales decisiones e intenciones proyectuales.

El proyecto será una pequeña infraestructura de paisaje que sirva como punto de demarcación de lo que fue la traza original del Qhapaq Ñan (Camino Inca), y el acceso principal al complejo arqueológico de Pachacamac, entendiendo que el mismo es parte de un complejo sistema de relaciones territoriales y paisajísticas.

La intervención debe servir como punto de referencia para el visitante otorgándole un sentido a la misma, a partir de establecer relaciones de tensión y/o proximidad con la muralla, relaciones visuales, simbólicas con los principales elementos de este territorio, etc.

NIVELDOS / E3 / PÁG.77 NIVELDOS / E3 / PÁG.76

. Elevarse

La idea del concepto de alevarse, en un proyecto, es usar distintos niveles como una estrategia para producir sensaciones de levedad.

Permite mantener una relación visual con el horizonte, y otros elementos de la naturaleza.Por otro lado, las atmósferas se persiben de distinto modo en cuando a cada proyecto y su decisión de eleverse.

B. . EL
PROYECTO COMO ESTRATEGIA
NIVELUNO / E1 / PÁG.79 NIVELUNO / E1 / PÁG.78

ANÁLISIS DE REFERENTES

The Richard Rogers’ Drawing Gallery

Rogers Stirk Harbour + Partners

Chàteau La Coste/Paddy Mc Killen FRANCIA

Ubicada en el viñedo de Château La Coste, la Galería de Dibujo de Richard Rogers es un espacio de galería de 120 metros cuadrados que se eleva en voladizo desde una ladera entre árboles sobre una histórica vía romana, con vistas a las antiguas ruinas de La Quille y al Parque Nacional Luberon. La galería se une al Paseo de Arte y Arquitectura del Château La Coste, entre pabellones de arquitectos de renombre como Renzo Piano, Tadao Ando y Jean Nouvel.

MAQUETA SINTÉTICA NIVELUNO / E1 / PÁG.81 NIVELUNO / E1 / PÁG.80

ELEVACIÓN

ESTRATEGIA DE INSERCIÓN Y CONTEXTO

UBICACIÓN

Se encuentra rodeado de grandes paisajes con vistas a las antiguas ruinas de La Quille y al Parque Nacional Luberon.

RECORRIDO DEL SOL

El recorido del sol en esta galería es con dirección al sur.

LUZ

CORTE FUGADO

La luz ingresa por cualquiera de las dos aperturas y, debido al material usado, este rebota hsta iluminar todo el pabellón

00 EL
PLANTA
EDIFICIO CORTE A-A
01
NIVELUNO / E1 / PÁG.83 NIVELUNO / E1 / PÁG.82

FORMA, ESPACIO Y RECORRIDO

FORMA

El proyecto posee una simetría axial desde su vista en planta o corte Se observan formas rectangulares que se repiten y figuras triangulares dentro de de estas.

ESPACIO

Solo tiene un espacio que sirve de comunicación entre el lugar de observación y la entrada. Solo hay una entrada, la cual a su vez es la salida.

RECORRIDO

El recorrido tiene solo una dirección, la cual permite que el visitante se dirija al lugar de observación del valle

ESTRUCTURA Y MATERIALIDAD

El volumen rectangular del pabellón está compuesto por acero satinado. Las vigas externas son de acero color naranja. Donde el edificio toca el suelo, lo hace sutilmente, contradiciendo la robusta ingeniería subterránea que sostiene la estructura desde un solo extremo.

MATERIALIDAD

ESTRUCTURA Y ENVOLVENTE

El volumen rectangular contiene al recorrido.

La estructura de armazón metálica posee la función de mantener en equilibrio de la estructura interna.

02
03
NIVELUNO / E1 / PÁG.85 NIVELUNO / E1 / PÁG.84

CORTES Y ELEVACIONES

EXPLICACIÓN

Antes de llegar a la muralla de Pachacamac, por el sureste, se genera una estructura elevada hasta 6 metros. Las curvas de nivel permiten que el efecto de elevarse se maximise. Desde este proyecto, es visible la muralla así como la ruta del camino inca Qapac Ñan.

+1 . ELEVARSE ANTES.
AXONOMETRÍA
PLANTA MAQUETA
NIVELUNO / E1 / PÁG.87 NIVELUNO / E1 / PÁG.86
El concepto de elevarse en un proyecto arquitectónico, es cuando se generan visuales en niveles variados.
NIVELUNO / E1 / PÁG.89 NIVELUNO / E1 / PÁG.88

. Posarse

La idea del concepto de posarse, en un proyecto, es permanecer en un mismo lugar, como una estrategia para producir sensaciones de posicionamiento.

Permite mantener una relación visual con el entorno. Por otro lado, las atmósferas se persiben de distinto modo en cuando a cada proyecto y la decisión de permanencia.

B. . EL
PROYECTO COMO ESTRATEGIA
NIVELUNO / E1 / PÁG.91 NIVELUNO / E1 / PÁG.90

ANÁLISIS DE REFERENTES

Four Free-Plan Houses

ITALIA

Se trata de cuatro viviendas unifamiliares,creadas entre 1972-74, exteriormente son idénticas, que fueron encargadas por cuatro clientes diferentes y por tanto se adaptaron, internamente, a las necesidades de cada uno. Con un solo piso sobre el suelo, se disponen en tres filas para formar un tablero de ajedrez en el que el lado de uno se coloca a ras con el del otro.

Renzo Piano (y Richard Rogers) Cusago, Milán
MAQUETA SINTÉTICA NIVELUNO / E1 / PÁG.93 NIVELUNO / E1 / PÁG.92

EL EDIFICIO

PLANTA

CORTE A-A

CORTE B-B

ELEVACIÓN

ESTRATEGIA DE INSERCIÓN Y CONTEXTO

UBICACIÓN

El sol posee una inclinación hacia el sur Dirección:

Viale Lombardia 15 - Cusago

INFORMACIÓN DEL CONTEXTO

La idea inicial del proyecto era respetar el espacio interior, por ello, no se usó soportes intermedios. Además, este espacio sería modificado por el residente.

El espacio vacío formado se conformaba por los elementos básicos de una casa: baño, sala, cocina.

Para el techo se usaron vigas delgada, las cuales eran autóctonas al proyecto.

00
01
CLIMA NIVELUNO / E1 / PÁG.95 NIVELUNO / E1 / PÁG.94

02

FORMA, ESPACIO Y RECORRIDO

FORMA

Las viviendas unifamiliares no poseen forma cuadrada. Las vigas, desde la parte superior, forman una cuadrícula que nos permite entender mejor la distribución de los espacios.

ESPACIO

Los espacios abiertos se relacionan con los lugares para estar.

Los espacios cerrados se relacionan con la privacidad.

RECORRIDO

El recorrido no es unidireccional. Durante el recorrido se puede salir de la vivienda.

El recorrido pasa por todos los extremos de la vivienda, formando así un trayecto circular.

ESTRUCTURA Y MATERIALIDAD

ESTRUCTURA Y ENVOLVENTE

Las vigas soportan la cubierta plana y que se proyectan en los frentes menores. Estos últimos con ventanales de vidrio abiertos a los jardines y orientados al oeste o al sur, se articulan de forma diversa en diez módulos de paneles con ventanales nuevamente ciegos o ventanas de altura completa.

MATERIALIDAD

Los muros más largos son muros hechos de hormigón armando , a los que se enganchan las vigas de acero. También posee ventanales rellenos de vidrio.

03
NIVELUNO / E1 / PÁG.97 NIVELUNO / E1 / PÁG.96

. Prefiguración y síntesis

AXONOMETRÍA

SECCIÓN

MAQUETA

±0 . POSARSE
PROCESO CONSTRUCTIVO PRIMERAÑOFAU/99 PRIMERAÑOFAU/98
RECORRIDO Y CUADRÍCULA

El concepto de posarse en el proyecto arquitectónico se persive como la idea de mantener el proyecto ligeramente sobre una supercie como el suelo.

NIVELUNO / E1 / PÁG.101 NIVELUNO / E1 / PÁG.100

Hundirse

La idea del concepto de hundirse, en un proyecto, es el uso de estar niveles más bajos al suelo, como una estrategia para producir sensaciones de hincamiento.

Permite mantener una relación visual con exterior sin la necesiad de observar todo el entorno.Por otro lado, las atmósferas se persiben de distinto modo en cuando a cada proyecto y su decisión de hundirse.

B. . EL
PROYECTO COMO ESTRATEGIA .
NIVELUNO / E1 / PÁG.103 NIVELUNO / E1 / PÁG.102

Château La Coste Gallery

Renzo Piano y Building Workshop

Chàteau La Coste/Paddy Mc Killen FRANCIA

El nuevo edificio diseñado por el estudio italiano Renzo Piano Building Workshop se alza en medio de las viñas del prestigioso

Château La Coste, Aix-en-Provence, Francia. Este pabellón de 285 m² ha sido creado como galería de arte, pero también busca preservar el legado del vino. Debido a la topografía natural del terreno, se decidió tallar un valle de seis metros de profundidad en la tierra para incorporar el edificio por completo al viñedo.

ANÁLISIS DE REFERENTES
MAQUETA SINTÉTICA
NIVELUNO / E1 / PÁG.105 NIVELUNO / E1 / PÁG.104

00 EL EDIFICIO

ESTRATEGIA DE INSERCIÓN Y CONTEXTO

UBICACIÓN CLIMA

Se alza en medio de las viñas del prestigioso Château La Coste, Aix-enProvence, Francia.

Las velas presentan una estructura interna que permite la abssorción del calor en la galeria. Así, el interior se beneficia de la luz natural.

INFORMACIÓN DEL CONTEXTO

La estructura del techo extensible, que los arquitectos comparan con las velas de un barco o una cometa, se extiende por el espacio y agrega una sensación de ligereza.

La cubierta está formada por crestas horizontales que recorren la amplitud de la galería. Vistos desde arriba, forman una continuación de las hileras de vides que rodean el edificio.

Desde la recepción, los visitantes siguen el camino hacia el pabellón RPBW.

CORTE B-B CORTE A-A
PLANTA ELEVACIÓN 01
NIVELUNO / E1 / PÁG.107 NIVELUNO / E1 / PÁG.106

FORMA, ESPACIO Y RECORRIDO

FORMA

La galeria no es simetrica. Las vigas, desde la parte superior, forman un conjunto de triangulos que se pierden en el horizonte.

RECORRIDO

Durante el recorrido no se puede salir. El recorrido recorre de extremo a extremo, formando así un trayecto lineal.

ESPACIOS

El espacio del salón de exposiciones es libre.

Los espacios cerrados son funcionales, debido a que son almacenes de vino.

ESTRUCTURA, MATERIALIDAD Y ATMÓSFERAS

MATERIALIDAD

Techo exterior hecho con velas y arcos de metal producen una ligereza en la parte superior del proyecto.

El techo interior está compuesto de metal y vidrio, permite el ingreso de la luz natural. Posee un pequeño espacio delimitado por puertas de vidrio.

Los muros laterales están hechos de hormigón, lo cual produce un ambiente pesado.

ATMÓSFERAS

Espacio interno semicerrado muestra pesadez. No obstante, la parte superior muetstra ligereza.

En la parte trasera del edificio, un espacio dedicado a la escultura se amplía con un espejo de agua que refleja en gran medida todo el ancho del pabellón.

02
03
NIVELUNO / E1 / PÁG.109 NIVELUNO / E1 / PÁG.108

. Prefiguración y síntesis

AXONOMETRÍA

PERSPECTIVA

EXPLICACIÓN

El proyecto comienza con un camino recto y paralelo a la muralla que muestra una horizontalidad. Este se dirige hacia un nivel inferior que sirve como el primer descanso. Luego el camino se abre con dirección a las Lomas de Jose Galvez y se dirige a otro nivel inferior. En el último descanso se observa una inclinación.

±0 . POSARSE
PLANTA LUGAR
MAQUETA
NIVELUNO / E1 / PÁG.111 NIVELUNO / E1 / PÁG.110
La

idea del concepto de hundirse, en un proyecto, es el uso de estar niveles más bajos al suelo.

NIVELUNO / E1 / PÁG.113 NIVELUNO / E1 / PÁG.112

PABELLÓN PACHACAMAC

LUGAR/PROYECTO

El trabajo final del TallerUNODOS, se trata de un ejercicio de síntesis donde el alumno pondrá en práctica los conocimientos aprendidos a lo largo del primer año.

El encargo se centra en desarrollar una intervención de pequeña escala y baja complejidad programática, pero con una fuerte carga en relación al lugar donde se inserta, debido a que el mismo se desarrollará en las proximidades del Templo de las Mamaconas (Acllahuasi), del Santuario de Pachacamac. El cual se inserta en un contexto territorial especifico, contenido y sometido a las presiones del crecimiento urbano de las últimas décadas.

SOBRE EL EJERCICIO.

• INFRAESTRUCTURA DE SERVICIO (espacios para comer, guardar, mostrar y descansar)

• REFLEXIÓN MULTIESCALA (territorio, edificio)

• ENSAYA OPERACIONES O ESTRATEGIAS PROYECTUALES (+1 0 -1)

OBJETIVOS GENERALES.

• Reflexionar y desarrollar una posición crítica acerca del paisaje y el lugar, y en particular de las implicancias de intervenir en un contexto con una fuerte presencia patrimonial.

• Llevar a conciencia la relación entre patrimonio y obra nueva, definiendo el proyecto a partir de las relaciones y tensiones que se generan entre sí.

• Profundizar en la metodología y en los procesos proyectuales trabajados en los ejercicios previos. (Lugar/Procesos/ Estrategias/lectura multiescalar)

El proyecto consiste en un sistema de recorridos y pabellón con espacios que permitan a los trabajadores del complejo arqueológico realizar actividades como: COMER, GUARDAR, MOSTRAR y DESCANSAR. Se deberá generar una transición entre los distintos espacios, el patrimonio y el paisaje. Se reconoce los flujos o sistemas que caracterizan el contexto (caminos originales, rituales y actuales, agua, visuales, etc.) y la condición de borde que lo hace especifico, para interiorizar dichas variables en el proceso proyectual.

El proyecto construye atmósferas y condiciones pertinentes a cada actividad, buscando un equilibrio entre escala, dimensiones, materiales, luz, usos, etc.

El lugar de inserción, la superficie, la escala, las dimensiones, alturas, etc. se definen a partir de una lectura multiescalar del sitio, de la relación con el patrimonio construido y el contexto ambiental.

La materialidad se relaciona con el valor del lugar, la proximidad con el patrimonio, y la relación entre lo eterno (permanente) y lo efímero (temporal) como valores fundamentales de la arquitectura.

Se trabaja con las grandes categorías arquitectónicas, como por ejemplo: llenos y vacíos, luz y sombra, planos y huecos. El proyecto tiene un carácter conceptual y se culmina un momento antes de la arquitecturización final. Asimismo, se valora la sutileza de la propuesta, así como el impacto que el proyecto pueda generar en relación al lugar.

NIVELDOS / E4 / PÁG.125 NIVELDOS / E4 / PÁG.124

1. LUGAR Y EDIFICIO

SOBRE EL EJERCICIO.

Se recopila toda la información de base necesaria para enfrentar el proyecto, debiendo elaborar un análisis del edificio y del lugar, a partir de profundizar en diferentes temas o capas propias del paisaje-territorio y la arquitectura. Cada grupo realizará un trabajo en diversas escalas, para profundizar la lectura del contexto y generar las principales estrategias o intenciones proyectuales.

Esta mirada multiescalar da sentido al proyecto -desde la escala territorial a la escala proyectual- definiendo los roles del proyecto y aspectos como: ubicación del proyecto, recorrido, orientaciones, distancias, visuales, altura, etc.

ENCARGO.

La investigación y análisis proyectual, considerara los siguientes aspectos:

01 | EL LUGAR:

• Mapas en diversas escalas que identifiquen los sistemas que intervienen en el territorio: topografía, agua, entorno urbano, entorno patrimonial, clima, visuales, vegetación.

• Esquemas, diagramas, bocetos y todos los dibujos que comuniquen y/o expliquen el lugar y sus componentes significativos.

02 | ACLLAHUASI - ANÁLISIS ARQUITECTÓNICO:

• Plantas, cortes, elevaciones, isometrías, etc. que reproduzcan el complejo del Acllahuasi y su entorno inmediato.

• Esquemas y diagramas que permitan identificar, espacios, recorridos, proporciones, composición, luz-sombra, interior-exterior, plataformas, recinto, bordes, agua etc.

03 | ACLLAHUASI - EXPERIENCIA ESPACIAL:

• Fotografías, perspectivas, collages del exterior y del interior del edificio, que comunique el valor espacial, su concepción, aspectos fenomenológicos, etc.

04 | ACLLAHUASI - MAQUETAS:

• Maqueta 1:500 / Formato A2 / Acllahuasi y su entorno inmediato

• Maqueta 1:200 / Formato A2 / sector del proyecto (a definir por cada equipo)

NIVELDOS / E4 / PÁG.127 NIVELDOS / E4 / PÁG.126
NIVELDOS / E4 / PÁG.129 NIVELDOS / E4 / PÁG.128
NIVELDOS / E4 / PÁG.131 NIVELDOS / E4 / PÁG.130

2. PABELLÓN PACHACAMAC

SOBRE EL EJERCICIO.

Una vez entendido y analizado el lugar, así como el Templo de las Mamaconas o Acllahuasi, el ejercicio se centrará en definir las principales estrategias en relación a la inserción, la prefiguración, y toma de partido del proyecto.

A lo largo del desarrollo y avance del proyecto se hará énfasis en distintos aspectos y/o temas, a entregar en 2 etapas:

MOMENTO 01.

| PREFIGURACIÓN: LA INSERCIÓN / RECORRIDO / SECUENCIA ESPACIAL

| INSERCIÓN

• Se explorarán aspectos esenciales en relación a implantación, posición, distancias, altura, escala, relación con el Acllahuasi, estrategias e cuanto al contexto ambiental, simbólico y cultural. Se exploran diversos partidos arquitectónicos ensayando las estrategias trabajadas en el E4 (Elevarse, Posarse, Hundirse) entendiendo la pertinencia de dichas operaciones en relación al lugar y uso.

| RECORRIDO / SECUENCIA ESPACIAL

• Se definirá la forma de aproximación al sitio/proyecto, como forma de potenciar la experiencia, entendiendo al recorrido como elemento articulador y estructurador de los espacios. Por su parte, la secuencia espacial sugiere un orden intencionado de cada uno de los espacios y las cualidades de los mismos, como una manera de potenciar la experiencia fenomenológica de usuarios o visitantes.

| MATERIALIDAD / ESTRUCTURA / ATMOSFERAS

| MATERIALIDAD Y ESTRUCTURA

• Se trabajará a partir de categorías arquitectónicas basados en pares dicotómicos, estableciendo criterios de materialidad y tecnología, como ligero-pesado, efímero o duradero, temporal o permanente, entre otros.

• También se reflexionará en este momento acerca de las implicancias y el impacto de la materialidad y los aspectos constructivos y tecnológicos en la imagen y características del proyecto.

• Se reflexionará sobre la materialidad y la relación que esta establece con el lugar, la pertinencia de la misma, así como las características fenomenológicas de cada material, etc.

| ATMÓSFERAS

• Se trata de explorar el carácter del proyecto desde una experiencia más sensorial y fenomenológica. Se estudiará la condición matérica del proyecto, la temperatura, el color y las cualidades espaciales que estos le otorgan al espacio, el manejo de la luz y la sombra, etc.

NIVELDOS / E4 / PÁG.133 NIVELDOS / E4 / PÁG.132
MOMENTO 02.
NIVELUNO / E1 / PÁG.135 NIVELUNO / E1 / PÁG.134
Se concluye que El templo de la luna o Acllahuasi es apto para la ejecución de proyectos.

DIBUJO/CIENCIA/CULTURA

Dibujo
d d d
DOS

DIBUJO ARQUITECTÓNICO 2

SOBRE EL CURSO.

El curso se enfoca en relacionar las dimensiones cognitiva, analítica, reflexiva, representacional, comunicacional y explorativa del proceso proyectual arquitectónico. Si bien el dibujo arquitectónico constituye el lenguaje gráficovisual de la arquitectura, el curso lo aborda como parte directa de los procesos de estudio, pensamiento y acción proyectual arquitectónicos. En ese sentido, el curso dichos procesos desde la relación entre rigurosidad, disciplina y métodos y experimentación, curiosidad y hábito disciplinares.

Así, se entiende el dibujo como ciencia y como cultura.

Dibujar es entender.

Dibujar es pensar.

Dibujar es proyectar.

Dibujar es preguntar.

Dibujar es conocer.

OBJETIVO PRINCIPAL.

• Distinguir, definir y focalizar sistemas de representación y comunicación arquitectónicas mediante estudios de referentes y ejercicios de investigación, exploración y aplicación para desarrollar un lenguaje gráfico-visual arquitectónico propio.

OBJETIVOS COMPLEMENTARIOS.

• Reconocer y distinguir los distintos sistemas de representación arquitectónica relacionándolos a lo que buscan comunicar, sean realidades materiales, conceptos, ideas, etc.

• Construir representaciones de una manera metódica mediante la realización rigurosa y reflexiva de los distintos procedimientos técnicos implicado en dichas construcciones para comunicar ideas arquitectónicas específicas.

OBJETIVO TRANSVERSAL.

• Entender y aplicar el dibujo dentro de procesos de estudio, registro, documentación, reflexión y proyección arquitectónicas mediante sistemas de trabajo enfocados para desarrollar sus propios proyectos.

DB2 / PÁG.141 DB2 / PÁG.140

RELACIÓN DIBUJO 2 / TALLER 2

El curso consta de dos dimensiones: una formativa y una curricular.

Formativa porque se profundiza en el lenguaje gráfico-visual arquitectónico mediante el estudio, conocimiento, experimentación y aplicación de los sistemas de representación y comunicación arquitectónicos. Todo esto tiene que ver con los contenidos netamente de dibujo arquitectónico en términos de representación y comunicación.

Curricular porque el curso sirve también como complemento integral del Taller 2, enfocándose en cómo los aspectos antes mencionados son soporte y continuidad del mismo. En ese sentido, la complementariedad no se concibe en un sentido visualización o graficación de lo desarrollado en el taller, sino que se abordan teorías, conceptos, historia, procesos y cuestiones arquitectónicos desde la especificidad de cada uno. Esto se da de dos maneras: Por un lado, hay temas de dibujo que se proponen desde el curso y que sirven para el taller así como hay temas del taller que sirven para dibujo. Por otro lado, hay temas que son comunes y que se ven simultáneamente (en términos de teorías, conceptos, términos y cronograma) en ambos cursos.

A la derecha se muestra el mapa general del curso (abajo) y de las relaciones con el taller (hacia arriba). El mapa del taller se especifica a más detalle en las páginas 14 y 15.

DB2 / PÁG.143 DB2 / PÁG.142

PACHACAMAC: ACLLAWASI.

A partir de la relación del curso de Dibujo con el curso de Taller, se abordó temas de dibujo y representación desde la zona del Acllawasi de Pachacamac como caso de estudio. En esa línea los trabajos aquí presentados son tanto de taller como de dibujo. En un esquema más grande, plantean una discusión del dibujo como una aproximación discplinar al estudio riguroso y científico de nuestra diversidad y del patrimonio no solo arquitectónico sino cultural.

PLANTA.

ESPACIO/ RECORRIDO.

AXONOMETRÍA.

COLLAGES/ ATMÓSFERAS.

DB2 / PÁG.145 DB2 / PÁG.144
DIBUJO COMO CIENCIA Y CULTURA.
ELEMENTOS.

CONOCIMIENTOS TRANSVERSALES

SISTEMAS DE REPRESENTACIÓN ARQUITECTÓNICA

Ga. Em. Et volessum cone labore, eium volo quia nobis doluptur? Enis ent enderum quam, quo mo con expliquiam dem ea volum voluptis quae videstem delluptatur? Ur ressi dus mint facculparum, suntia et aliquam net laborro ea quam ut vel is maione laborib usapis sit undiaspidis mint quam et quunt rehenisit facesequi inima volorestio blaccum es dolorum quate et officid quas eossequo ea nus voles experae est etus unt, ium ea dolut es eture, non eatemo etus.

PROYECCIÓN

Horizonta, frontal y Vertical.

CORTE Longitudinales y transversales.

ELEVACIÓN

CONOCIMIENTOSTRANSVERSALES / CX / PÁG.149 CONOCIMIENTOSTRANSVERSALES / CX / PÁG.148

AXONOMETRÍA

45°-45°

AXONOMETRÍA

45°-30°

30°-45°

CONOCIMIENTOSTRANSVERSALES / CX / PÁG.151 CONOCIMIENTOSTRANSVERSALES / CX / PÁG.150 ISOMETRÍA 30° AXONOMETRÍA 15°-10°
AXONOMETRÍA 30°-60°

PERSPECTIVA

CONOCIMIENTOSTRANSVERSALES / CX / PÁG.153 CONOCIMIENTOSTRANSVERSALES / CX / PÁG.152 PERSPECTIVA
CORTE CORTE
CORTE FUGADO PUNTO DE FUGA
CONOCIMIENTOSTRANSVERSALES / CX / PÁG.155 CONOCIMIENTOSTRANSVERSALES / CX / PÁG.154 UN PUNTO DE FUGA DOS PUNTOS DE FUGA
VISTA CENTRAL ELEVADA VISTA CENTRAL AÉREA

En estos ejercicios se se practica la reconstruccion, analisis, composicion,. Asi como la practica de achurado en una direccion y varias.

CONOCIMIENTOSTRANSVERSALES / CX / PÁG.157 CONOCIMIENTOSTRANSVERSALES / CX / PÁG.156 BITÁCORA
DE REGISTRO
CONOCIMIENTOSTRANSVERSALES / CX / PÁG.159 CONOCIMIENTOSTRANSVERSALES / CX / PÁG.158 BITÁCORA TEÓRICA

Turn static files into dynamic content formats.

Create a flipbook
Issuu converts static files into: digital portfolios, online yearbooks, online catalogs, digital photo albums and more. Sign up and create your flipbook.