PORTFOLIO

ISABELLA ZENG








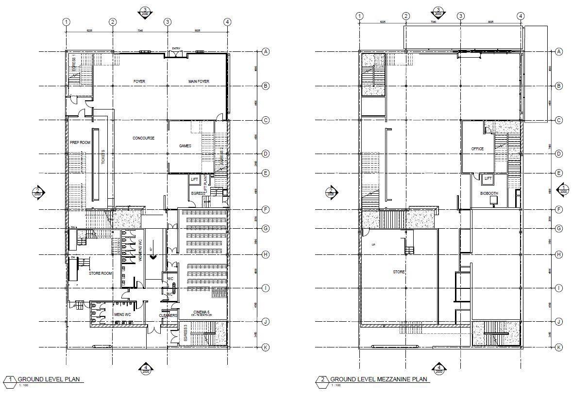
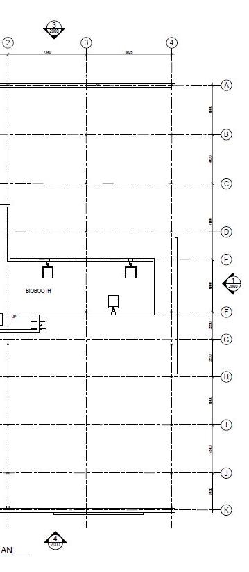
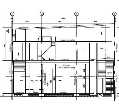
RAHO RC
MT WELLINGTON AUCKLAND


2016 - 2020
SYLVIA PARK
MT WELLINGTON AUCKLAND


SYLVIA PARK
PHYSICAL SITE MODEL


SYLVIA PARK 2016 - 2020
GALLERIA

MT WELLINGTON AUCKLAND






SYLVIA PARK 2019 - 2020

MT WELLINGTON AUCKLAND GALLERIA




SYLVIA PARK
EASTERN CARPARK FACADE
































































































































