Skip to main content

UCL AD

Page 1


ARCHITECTURE

PORTFOLIO

WANGJIAJU ZHANG

Selected works from 2020 to 2024

Application for UCL Architectural Design MArch

Over the past four years of my architectural journey, I have always been in an exploratory stage, exploring the possibilities of architectural public space. These works show my exploration. Although the process is not easy, the pace has always been firm. I firmly believe that architecture should firstly serve people, satisfy our daily and spiritual life, which is not only a physical structure made of bricks and mortar, but also space that carries people’s emotions and memories. This belief serves as a constant beacon, guiding me to harness my skills to design structures that enrich people’s lives. I aspire for every brick and tile I design to hum with the subtle vibrations of the world’s symphony.

CONTENTS

I DOOMSDAY ESCAPE

Virtual Urban Morphology Exploration based on WFC Algorithm

II MILAN SOCIAL HOUSING DESIGN

A Shared Social Community for Refugees

III MIXED-USED COMMUNITY CENTER

Conception and Exploration of Public Space

IV INNOVATION OF MTR TRANSIT STATION

——Political and Aesthetic Speculation

V OTHER WORKS

DOOMSDAY ESCAPE

Virtual Urban Morphology Exploration based on WFC Algorithm

Type: Team Work

Concept 50%, Design 50%, Drawing 50%, Presentation 80% Duration: Jul.2024 - Aug.2024

Instructor: Meizi Li

This project relies on the WFC algorithm (Wave Function Collapse), which generates wireless patterns based on local information, and builds an infinitely growing model of the game city through the design of the city modules, as well as the given slots in the 3D space and the setup of combinatorial rules between the unit segments.

The game is a vertically oriented climbing game with a cyberpunk background, in which climbing gears are exchanged by collecting gold props and interspersed with clue collection and character dialogues to complete the process from the beginning of amnesia to the final decryption.

In the game, the player will take the role of a halfrobot, half-human character who wakes up one day and suddenly realizes that he has lost his memory and decides to embark on a journey to find the truth.

Concept

This project is an action-packed adventure puzzle game where players take on the role of a daring protagonist. As they navigate through the game, players collect gold, enhance their physical abilities, and rack up skill points, forging a valuable connection across each platform and the depths of the buildings. The journey is filled with the thrill of discovering clues to uncover hidden 'intro characters' and engaging with them to unravel the mysteries at the heart of the game's events.

Immersed in a virtual cyberpunk world crafted by the WFC algorithm, players will experience a transformative journey. Starting from the gritty underbelly of society, they'll work their way up, battling monsters and upgrading their skills, until they reach the pinnacle of the upper echelons. It's a game that takes you from zero to hero, with every challenge met and every victory earned.

Elements

Preface

One day, I jolted awake from a dream in the quiet of my home, only to discover that my mind was a complete blank, as if all my memories had vanished. I reached out to touch my semi-robotic body, searching for any glimmer of recognition, and there, beneath my quilt, I found a note.

The note read, "Love and free will," which brought back some memories to me, as if there was a big hand pushing me through the time tunnel and controlling me and others.

I made a decision that no matter how difficult it is, would keep fighting and searching for the truth.

The space is automatically filled with a digitally developed wavefunction collapse algorithm and labelled ‘+’ or ‘-’ (one side of a voxel with a ‘+’ sign can be connected to another voxel on the same axis with a ‘+’ sign). 11 units of the main functional categories have been set up, some of which have modular variations in size (basic module: 1x1x1 metre). These units are evenly distributed in the set space and are connected to a number of paths and platforms.

Evalutions: Improve the rules of vertical traffic module and don't allow ladders and posts to connect up and down.

are regularly connected according to the established rules.

Test1
Test2
Test3

This is a cyberpunk-style platform game where each chapter's reward is a piece of the protagonist's memory puzzle. As the levels are completed, the truth behind the protagonist's amnesia gradually emerges. It's a story about friendship, courage, conspiracy, capitalism, and, most importantly, love and free will. Each chapter corresponds to a key character. By continuously climbing and searching for relevant items and clues, you'll have the opportunity to engage in in-depth conversations with the key characters.

MILAN SOCIAL HOUSING DESIGN

A Shared Social Community for Refugees

Type: Individual Work

Location: Milan, Italy

Duration: Apr.2024 - Jul.2024

Instructor: Arnold Yu

As one of the most diverse cities in Southern Europe, Milan brings together a wide range of industries, including business, culture and religion, and is a hub for young people and emerging creative talent. However, due to high property prices, these people face tremendous pressure to live, start businesses and socialise, making housing a social challenge that needs to be addressed urgently.

The design aims to create suitable living space for different groups of refugees, while meeting their diverse needs for housing types, focusing on the richness of public spaces and commercial facilities, and providing residents with an environment that allows for a work-life balance. This not only helps to alleviate housing pressure, but also shows humanistic care and respect for the refugee community.

By optimising the spatial layout, it is hoped to build a vibrant community where residents can find a sense of belonging, support and realise their own values. The design incorporates green spaces, multi-functional areas and social space to promote interaction and communication between residents, creating a friendly and inclusive living environment.

Location of Public Housing in Milan

Comasina
Quartiere Forlanini
Calvairate
Quartiere Mazzini
Gratosogilo
Concept Diagram
Balcony Detail
View from Ground-floor Public Space
View from the Upper Floor

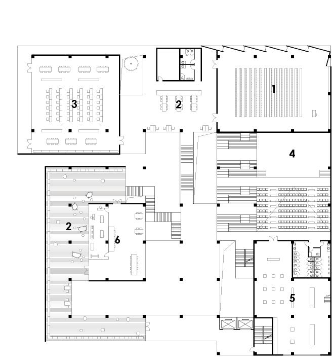
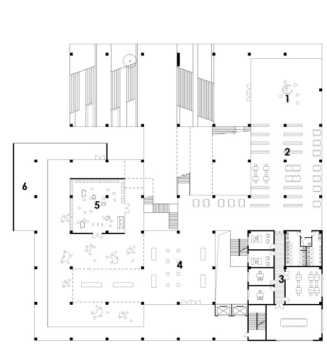
MIXED-USED COMMUNITY CENTER

Conception and Exploration of Public Space

Type: Individual Work

Location: Suzhou, China

Duration: Aug.2024 - Sept.2024

Instructor: Jingyi,Wu

This community center project is located at the Tianzhizhuang District of Suzhou, China. According to the field analysis, I found that there is a mixed flow of people around the site. Students have a need for extracurricular activities, while local residents and visitors need a place that offers leisure activities. Therefore, my idea is not only to fulfil the functionality of a community center, but also to make the building accessible to the surrounding residents, students and visitors for daily using. The project contains 5 floors, and major program elements include: Theater, Bookstore, Library, Restaurant and Café.

The design aims to create open space for people. When the space of the building is open and inclusive, accessibility, connectivity, and comfort would be increased so that citizens can communicate freely. I hope that people could naturally integrate into the site, enjoy this open space, and gain physical and mental relaxation.

Crowds Analysis

Located at the junction of Soochow University and a residential area, the site has a close connection with both of them. In the on-site research, most of the local residents preferred to increase the public activity space. Tourists, on the other hand, would like to open up a series of public attractions such as Soochow University, as well as increase the display of Suzhou's special crafts and special experience shops such as the Memorial Hall and the Book Café.

As a result, I try to develop my design by analysing the daily activities and requests of different types of people, enhancing the publicness of the community center.

STUDENTS

Cultural experience

Exercise and fitness Knowledge Delicious food Take pictures

RESIDENTS

TOURISTS

Timeline of Residents and Students STUDENTS TOURISTS 8:00 6:00 10:00 12:00 14:00 16:00 18:00 20:00 RESIDENTS

Contact with friends Conducting seminars Yoga, sports, dancing... Contemplate art Taste food and drink

Reading and working Excited Relaxed Curious Passionate Concentrated Willing to learn

The site is a vacant lot located between Soochow University and the surrounding residential areas, and close to the Pingjiang Traditional Historic District. Its neighbourhood is densely populated but lacks public service facilities.
Pingjiang

Form Study Internal Spatial Research

Elements of traditional architectural forms were extracted from ancient Suzhou paintings and the prototypes were translated and applied to this architectural design.

Morphological Prototypes

Spatial Typology

Indoor space forms are generated according to functional characteristics and people’s requirements.

These boxes of different scales are placed to meet the different requirements of different groups.

There are two sets of circulation systems inside the building. One is the vertical system that leads people directly to the theater floor, and the other is designed according to the visitor’s touring route by continuous floor slab. The slabs can be used not only as a pass but also as space for people to enjoy the view and events.

Dimsum Shop
Sell Suzhou’s Tea Food
Luxury Restaurant
Organise lavish banquets
Theatrical Stage
Conduct opera performances Wasi
Bookstore
Perform arts and entertainment shows Sell paintings and calligraphy
View from Entrance Space
View from Lobby Public Space

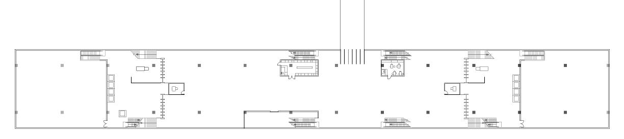
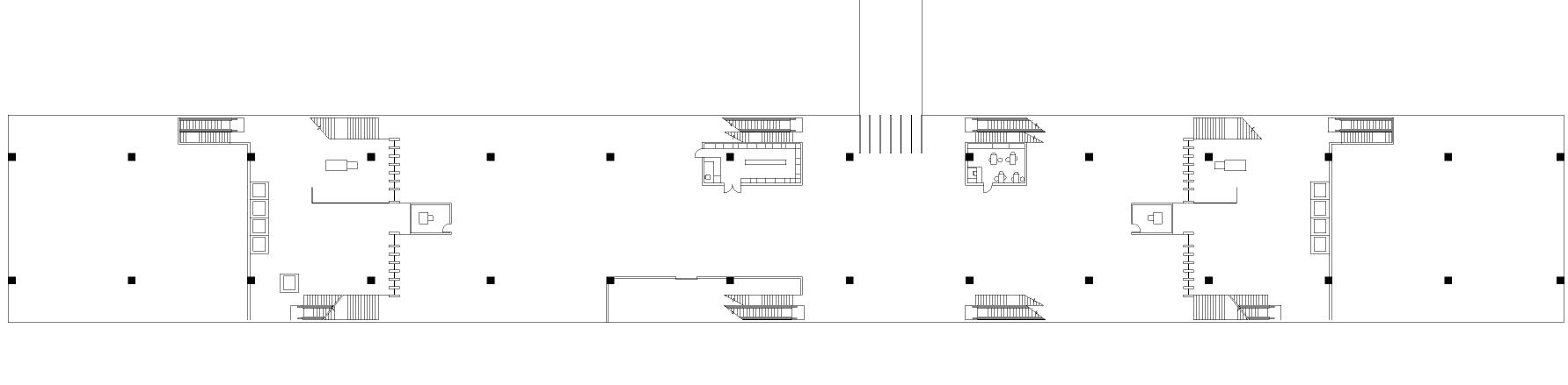
INNOVATION OF MTR TRANSIT STATION

Political and Aesthetic Speculation

Type: Individual Work

Location: Shanghai, China

Duration: Jul.2023 - Sept.2023

Instructor: Jiawei Lyu

Hongkou Football Stadium Station, located in Hongkou District, Shanghai, China, is an interchange station for Shanghai Metro Line 3 and Line 8.

However, as one of Shanghai's major transport hubs, the station is crowded with people and often experiences congestion and chaos.

In order to solve the above problems and revitalise this station to continue to play its important role in linking transport routes, it will be redesigned and renovated.

Phase I: Site Analysis and Model of Reality

On the basis of pointcloud theory, the space, colour, sequence, material and features of the site are recorded.

It is found that the current station only serves as a single transport function, the public space inside the station is closed and lacks interest, while the parallelism between motorised vehicles and non-motorised vehicles outside the station is prone to cause traffic congestion and chaos. With the passage of time, these conflicts will continue to intensify.

Phase II: Speculation of Accelerated Reality

Introducing accelerationism into the site, it attempts to radicalise site conflicts and get solutions of status quo issues.

When the time fast-forward to 2063, the site problem of Hongkou Football Stadium Metro Station would be solved. The originally closed space is opened, and different functional spaces would be placed in it. The traffic efficiency would be improved, and it would become an energetic space providing resting places for the citizens and tourists, giving people a sense of relaxation and freedom.

Existing Traffic

Bicycles
Shanghai Hongkou Subway Station is a transfer station for Shanghai Metro Line 3 and Line 8, with a total of four floors, raised above the ground, the overall design adopts a frame structure.

Analysis of Pointcloud Modeling Ideas

Pointcloud is a three-dimensional model composed of millions of light points as a form of describing space. In this situation, a “photographer” is one who collects photos from the environment in a con-strained sequence. The camera is a scanner and its operator, recording the texture, material and space of the environment The translation of this scanned information into a spatial geometry happens later, using software that aligns associated frames.

Methodology

Transformation of Space

zone hidden from the scan

2043——Speculated Plans and Facade

Plans: 1.Bike lanes are introduced into this metro station, improving accessibility and responding to the demand for green travelling.

2.The space that had been closed is opened.

2063——Speculated Plans and Facade

Plans: 1.Shaped platforms extend from the metro station to provide diverse spaces for people.

2.The open space is filled with a variety of functions.

Facade Transformation: The surface is covered with a tensile membrane structure similar to that of the adjacent Hongkou Football Stadium.
Facade Transformation: Part of the tensile membrane is opened and the platform extends from the opened part, enriching the facade.

After the renovation, multiple modes of transport are interspersed in the complex. Space is used flexibly, and people have more leisure and recreation areas.

View from Subway Bazzar Space&Mini Theatre
View from Ticket Entrance
Corrugated Cardboard Construction
Garden Landscape Workshop
Seascape
2020.8

Turn static files into dynamic content formats.

Create a flipbook
UCL AD by wangjiaju zhang - Issuu