
2 minute read
2.2. Experiența autohtonă
2.2. Experiența autohtonă În spațiul românesc, până în prima jumătate a secolului al XIX-lea, școala a existat mai puțin sub forma unei instituții organizate și mai mult în chipul unor eforturi punctuale ale domnitorilor de a promova cartea. Mai mult, școlile reprezentau clerul, fie vorba de spațiu, resurse materiale, sau dascăli [sic!]. Accesibilitatea învățării era, de asemenea, condiționată de statutul social, școala fiind rezervată celor aparținând elitei. Prima jumătate a secolului al XIX-lea cunoaște o perioadă de sincronizare, deși, punctuală la rândul ei, cu practicile pedagogice occidentale. Nicolae Iorga menționează înființarea în 1928, la Iași, a unei școli cu două cicluri. Școala normală, sau primară, în care se învăța limba română, caligrafia, matematica și științele adoptă învățământul lancasterian40 . Școala înaltă, sau gimnaziul, găzduiește cursuri de limbi străine, logică, religie, sau istorie.41 Instituția rămâne în strânsă legătură cu Biserica, fiind găzduită de mănăstirea Trei Ierarhi. Școala devine instituție a statului în 1830, așa cum este prevăzut în Regulamentele Organice.42 Discuția despre spațiul educațional poate începe în jurul anului 1960, când în Principatele Unite sunt construite, în timpul mandatului de ministru al lui Mihail Kogălniceanu o serie de școli normale în țară (Botoșani, Bacău, Tecuci, Ismail) și gimnazii în București (Lazăr, Matei Basarab).43 Numărul instituțiilor de învățământ crește odată cu reformele consecutive ale lui Kogălniceanu și Spiru Haret, instaurarea obligativității și gratuității învățământului primar. Arhitectura școlilor reflectă pedagogiile vestice ale aceleiași vremi. Eforturile de după unirea Principatelor și apoi Marea unire au constat în organizarea unui sistem de învățământ coerent, uniform pe întreg teritoriul țării.
Fig. 15 Liceul Matei Basarab, București, 1860
Advertisement
40 Joseph Lancaster (1778‐1838), profesor englez, a fost unul dintre susținătorii modelului pedagogic monitorial, în care elevii erau supravegheați și îndrumați de monitori, extrași dintre elevii mai performanți (nu departe de teoria lui Lev Vygotsky cu peste o sută de ani mai târziu). 41 Iorga, Nicolae, Istoria învățământului, București: editura Casei Școalelor, 1928, pp. 188‐189 42 ibidem, p. 195. 43 ibidem, pp. 315‐317.
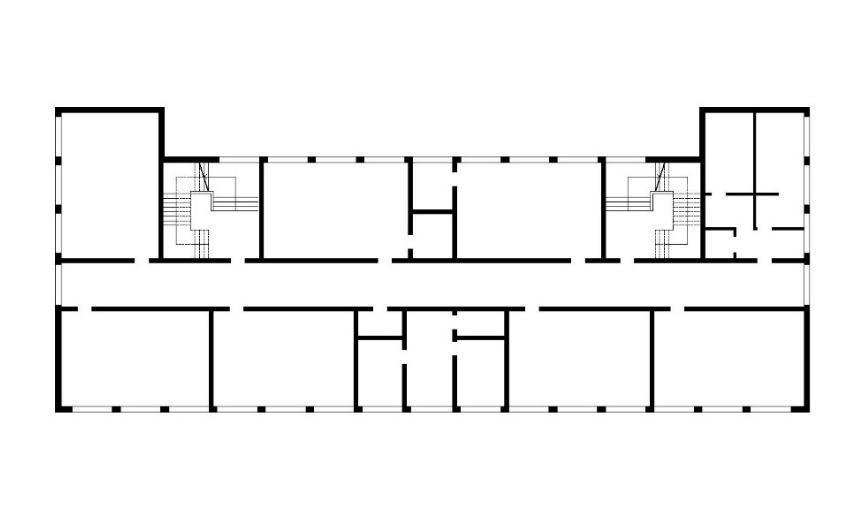
Absența gândirii progresiste a pedagogiei este semnalată de Nicolae Iorga. Istoricul susține că școala rămâne în urma societății, împiedicând progresul acesteia prin împovărarea programei cu sarcini dificile și lipsite de utilitate. De vină ar fi statul. Instituția școlii este aflată sub cârmuirea puterii politice și întruchipată în figura ministrului. Intențiile, cât și pregătirea acestuia pot fi puse la îndoială. Totodată, instabilitatea politică înseamnă o instabilitate a direcției sistemului de învățământ.44 Iorga continuă prin a ilustra virtuțile învățământului pre-instituționalizat. „Vechiul învățământ era o transmitere de metode, de tehnică, dar și de atmosferă și spirit, de la cel ce știe la cel care va ști”.45 Critica se reflectă și asupra spațiilor de învățământ. Școlile „leagă” elevii în „cadre stricte”46, spre deosebire de formele tradiționale de învățământ practic, desfășurat în spații informale. Cuvintele lui Iorga rezonează cu cele ale vizionarilor europeni de la începutul secolului trecut. Mai mult decât atât, discursul pare extrem de valabil în contextul contemporan. Un al doilea val al construcțiilor de școli a avut loc după cel de-al Doilea Război Mondial și odată cu instaurarea regimului comunist pe teritoriul României. Arhitectura acestor noi școli, proiecte tip, reflectă căutările regimului pentru eficientizare, uniformizare și control a actului educațional și a societății. În același timp, au existat preocupări specifice Mișcării Moderne, legate de asigurarea condițiilor de lumină, aer proaspăt, curți mai generoase cu spații verzi și terenuri de sport. Din punct de vedere tipologic, școlile construite în anii ’60-’80 nu reprezintă un avans față de fondul istoric. Învățarea are loc în același sistem de săli de clasă legate de coridoare înguste. În ceea ce privește dotările școlilor, se poate vorbi chiar de un regres. Dispar amfiteatrele, bibliotecile. De fapt, își pierd sensul, odată cu reorientarea spre valorile societății socialiste.

Fig. 16 Plan al unei școli tipice celor construite în perioada anilor ’60
44 Iorga, Nicolae, Idei asupra problemelor actuale, București: editura Cugetarea, 1935, pp. 32‐33. 45 ibidem, p. 34. 46 ibidem, p. 39.






