
1 minute read
5. CONSTRUCTION D'UNE SALLE OMNISPORTS A TABARKA
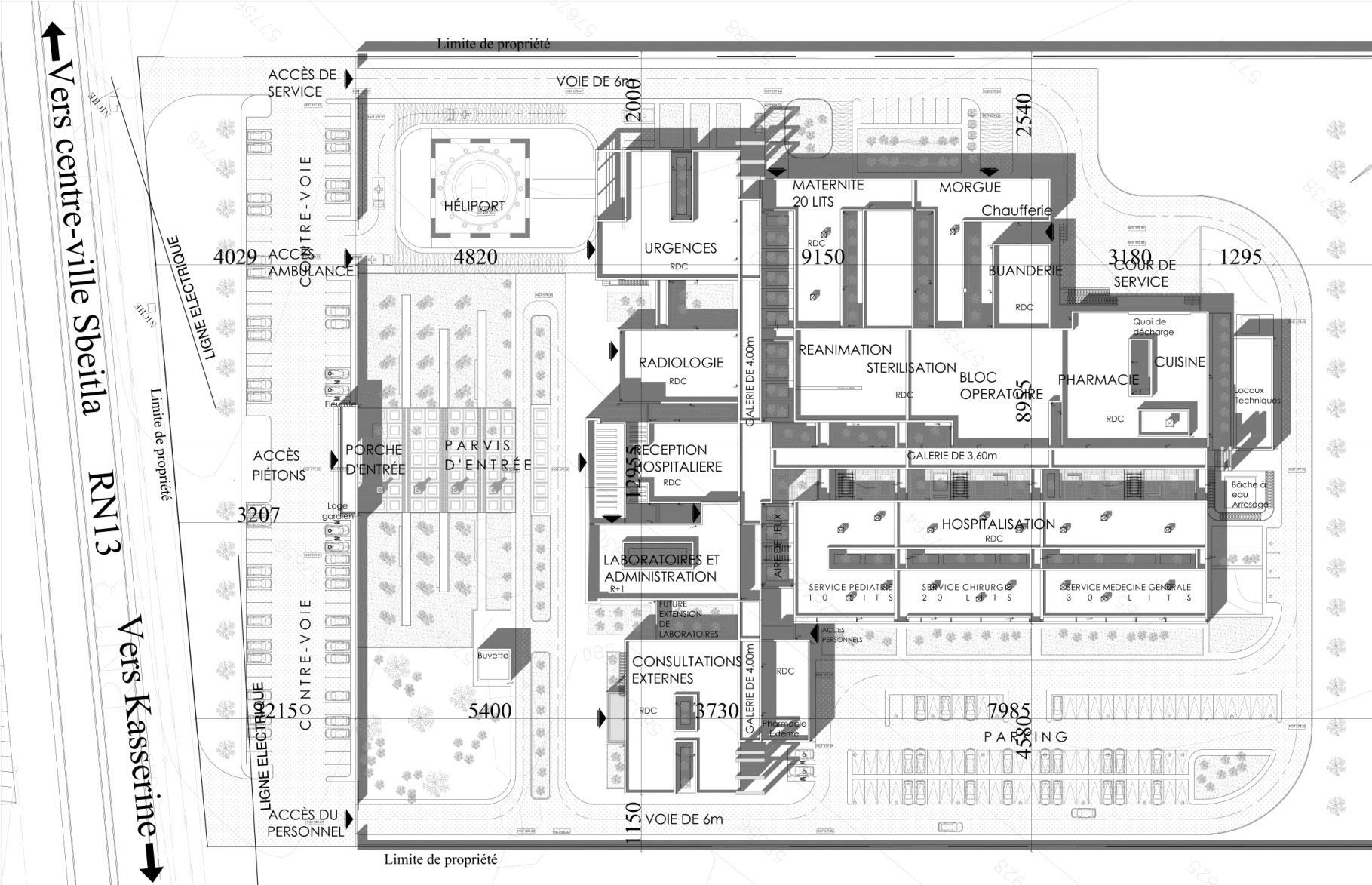
CONSTRUCTION D'UN HOPITAL REGIONAL TYPE "B" A SBEÏTLA GOUVERNORAT DE KASSERINE
Client : Ministère de la Santé Surface HO : 10 000 m² Coût du projet : 30 000 000 DT
Advertisement




1 minute read
Client : Ministère de la Santé Surface HO : 10 000 m² Coût du projet : 30 000 000 DT
Advertisement


