
5 minute read
Reportage: Strom vom Dach
from bauen.6/7-2022
STROM
VOM DACH

Familie Pigorsch/Helm zog es aus der Großstadt raus aufs Land: Hier erfüllten sie sich den Traum vom eigenen Haus im Grünen – mit viel Platz für Hobbys und Familienfeiern sowie mit ausgeklügeltem und zukunftsfähigem Energiekonzept.


Das nachhaltige Familienhaus bezieht seine Energie über eine PV-Anlage aus der Sonne, nutzt diese konsequent im Haus sowie fürs E-Auto.
Die großzügige Terrasse erweitert den Wohnraum zum Garten. Weiße Vorhänge schaffen hier stimmungsvolles Urlaubsflair.
Gute Laune: Die vierköpfige Familie freut sich, mit ihrem neuen Zuhause alles richtig gemacht zu haben.
Im Garten hat der 15-Jährige Jack Frédéric jetzt viel Platz für sein Hobby, das Bienenzüchten.
INDIVIDUELL UND MIT LIEBE ZUM DETAIL

Anthrazit, helles Grau und dezente Erdtöne, dazu viel Weiß – das sind die bestimmenden Farben im Wohn- und Essbereich sowie der Küche im modernen Landhausstil.
Küche, Essplatz und Wohnbereich bilden eine offene Einheit, die sich über die gesamte Hausbreite in Richtung Garten erstreckt. Helle, großformatige Fliesen bedecken hier den Boden.



Dank vom Eingang abgewandtem Treppenantritt entsteht ein geräumiger Eingangsbereich. Unter der Treppe findet eine Garderobe Platz und im Bereich des Aufgangs sorgt ein Fenster für gute Belichtung von oben. Kleine liegende – in den Schlafzimmern über Eck angeordnete – Fenster bringen noch mehr Licht gezielt in die Räume und lassen darunter Platz für Kommode, Schreibtisch und andere Möblierung. Töchterchen Jillian Luca (4) bewohnt wie ihr großer Bruder ein eigenes geräumiges 16 Quadratmeter großes Zimmer.
Große bodentiefe Verglasungen sowie kleine, liegend angeordnete Fenster bringen auch im Obergeschoss viel Tageslicht in die Räume.
DETAILS
Manchmal führt ein augenscheinlicher Rückschlag geradewegs ins neue Glück. Bei Jasmina A. Pigorsch und Sascha C. Helm war es genau so. Als ein unschöner Brief hereinflatterte, der unerwartet die Eigenbedarfskündigung des Vermieters ihrer Charlottenburger Altbauwohnung beinhaltete, machte das Paar aus der Not eine Tugend: Es beschloss, zu bauen und begab sich auf die Suche nach einem passenden Grundstück und Baupartner. Sorgfältig nahmen die beiden verschiedene Unternehmen unter die Lupe. In Saschas hessischer Heimat klapperte sein Vater mit ihm Häuser von Freunden und Bekannten ab, die von ihren positiven Bauerfahrungen mit Fingerhaus berichteten. Als Jasmina und Sascha dann noch die Fertighaus-Ausstellung in Werder nahe Berlin besuchten, überzeugte die Fingerhaus-Beraterin, war „geduldig, fachkompetent und menschlich voll auf unserer Wellenlänge“ und auch das Musterhaus vor Ort, das Medley 3.0, gefiel ihnen richtig gut. Die Entscheidung war gefallen. Etwas schwieriger gestaltete sich zunächst die Suche nach einem bezahlbaren Grundstück. Denn zu weit von Berlin wollten sie nicht wegziehen – am besten sollte das neue Zuhause nahe am BER-Flughafen liegen, dem Einsatzort von Flugbegleiter Sascha C. Helm. Nach einiger Zeit entdeckten sie ein kleines Baugebiet in Dabendorf, 20 Kilometer südlich von Berlin. „Die Infrastruktur ist super, es gibt sogar eine neue Gesamtschule“, sagt Sascha C. Helm, „es sind 20
Minuten bis zum Flughafen, 25 per Auto zu den Großeltern.“ Noch dazu liegt der Ort im Grünen und Jasmina A. Pigorsch hatte sich ein Eckgrundstück gewünscht – und dieses auch bekommen. Bauphase und Innenausbau liefen reibungslos, die Bemusterung empfanden sie als Highlight: „Wir hatten das Gefühl, jetzt bekommen wir unser Haus.“ Viele Ideen hatten sie bereits, bei ein paar anderen guten Entscheidungen unterstützte der Haushersteller. Das Medley 3.0 stand Pate, jedoch nahmen die Bauherren hier und da Änderungen vor: Eine große, offene Küche und eine Ankleide beim Schlafzimmer woll Eine Wallbox ten sie auch; die Nische im Wohnzimmer des versorgt das Musterhaus-Entwurfs wich jedoch zugunsten E-Auto mit dem des Arbeitszimmers und der Kniestock wurde selbst produ- auf 2,15 Meter erhöht, um das Wohnen noch zierten Strom komfortabler zu machen. vom Dach. Die gesamte Südsei- NACHHALTIG WOHNEN + LEBEN te des Dachs ist Heute genießt die Familie das Leben auf über mit PV-Modulen 150 Quadratmetern Wohnfläche. Im eigenen bedeckt. Haus, ganz nach ihrem Geschmack, mit großem Garten, viel Raum für Hobbys und reichlich Platz für Feiern. Damit ist ein Traum in Erfüllung gegangen. „Wenn wir bauen“, sagten sie sich, „dann ganz modern, nachhaltig und energetisch auf dem neuesten Stand der Technik.“ So punktet ihr neues Zuhause neben der ressourcenschonenden Holzfertigbauweise, bei der der nachwachsende Rohstoff zudem aus heimischem Anbau stammt, auch mit einem cleveren Energiekonzept. Mit Erdwärmepumpe und Photovoltaikanlage erzeugen sie ihren Strom aus regenerativer Energie selbst und nutzen ihn im Haus und fürs E-Auto. Denn tatsächlich erzeugt ihr Null-Emissions-Haus unterm Strich mehr Strom als es selbst verbraucht. Diese Energie dann auch mit auf die Straße zu nehmen, ist besonders vorbildlich. „Unser ökologischer Fußabdruck ist klein“, freut sich Sascha C. Helm. Auch Sohn Jack Frédéric leistet, indem er Bienen züchtet, bereits seinen Nachhaltigkeitsbeitrag, da er so die Insekten schützt, die für die Bestäubung von Pflanzen und Obstbäumen wertvoll sind. • cm
Wärmepumpe und PV-Wechselrichter kommen im Technikraum unter, der gleichzeitig als Vorratsraum dient.

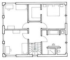
KIND 16
KIND 16 ANKLEIDE 5,5

FLUR 7 SCHLAFEN 16
BAD 14,5
OBERGESCHOSS
WOHNEN/ ESSEN 25,5 10,65 m
KOCHEN 15 9,05 m
ARBEITEN 15,5 DIELE 14 TECHNIK 6

DU/WC 3,5
ERDGESCHOSS
DATEN + FAKTEN Medley 3.0
• WOHNFLÄCHEN: EG 79,5 m2, OG 75 m2 • BAUWEISE: Holzrahmenkonstruktion in Großtafelbauweise mit 240 mm Mineralwolldämmung, 60 mm Wärmedämmverbundsystem mit Putzfassade, U-Wert Außenwand 0,123 W/m2K; Kunststofffenster mit Dreifachverglasung, Ug-Wert: 0,6 W/m2K; Sattel- dach, 25 Grad geneigt, U-Wert Dach 0,178 W/m2K • TECHNIK: Erd-Wärmepumpe, 9,9 kWp-Photovoltaikanlage, Fußbodenheizung, elektrische Rollläden mit Funk-Windsensor • ENERGIEBEDARF: Primärenergiebedarf: 31,2 kWh/m2a Endenergiebedarf: 17,3 kWh/m2a Effizienzhaus 55 • HERSTELLER: Fingerhaus GmbH, Auestraße 45, 35066 Frankenberg/Eder Tel. 06451/504-560, www.fingerhaus.de
• UNTERNEHMEN & PORTFOLIO: Der Hersteller Fingerhaus baut individuell geplante Ein- und Zweifamilienhäuser in umweltbewusster und energieeffizienter Holzfertigbauweise. Das Familienunternehmen wurde 1820 als Zimmerei nahe Frankenberg/Eder gegründet. Seit 1948 Fertighaus-Produktion, mehr als 15 000 realisierte Häuser; über 900 Mitarbeiter. • LIEFERRADIUS: Deutschland, Österreich, Schweiz und auf Anfrage
Weitere Infos zum Hersteller sowie ausgewählte Entwürfe finden Sie im Internet unter www.HausbauHelden.de/ hersteller/fingerhaus



T R AU M - H ÄU S E R Ö K O LO G I S C H G E B AU T
● Individuelle Archtiketurplanung ● Ökologisches und gesundes Bauen ● Förderfähiger Effizienzhausstandard ● Garantierter Festpreis ● Rundum-Service-Leistungen aus einer Hand ● 30 Jahre Gewährleistung auf die Grundkonstruktion
Entdecken Sie das, für ein Leben im Alter vorgedachte „Edition Select 186“, in einer YouTube-Videoreportage der HausbauHelden: www.wolf-haus.de/aktuelles
WOLF-HAUS GmbH Koppenmühle 97705 Burkardroth-Gefäll Tel. 09701 – 91 11-0 www.wolf-haus.de






