
4 minute read
Reportage: Tradition trifft Moderne
from bauen. 2/3-2022
EINGEBETTET zwischen der Donau auf der einen sowie Garten und Wald auf der anderen Seite, fügt sich das lange Gebäude mit seiner archetypischen Satteldachform perfekt in die Umgebung ein.
TRIFFT TRADITION MODERNE
In geradezu romantischer Kulisse entstand dieses zukunftsweisende Holzhaus mit Platz für zwei Parteien: in klassischer, schlichter Anmutung und mit hohem Anspruch an Ökologie und Nachhaltigkeit.

WOHNEN MIT GUTEM GEFÜHL: VIEL NATÜRLICH BEHANDELTES HOLZ FÜR VIEL BEHAGLICHKEIT



PURE NATÜRLICHKEIT strahlt der sich weit nach oben als auch nach außen öffnende Koch-Essbereich aus. Er bildet gleichzeitig den Eingang der jeweiligen Doppelhaushälfte. Die Schreinermöbel hat ebenfalls der Architekt und Bauherr entworfen.
EIN KACHELOFEN sorgt in der kalten Jahreszeit für Behaglichkeit und gemütliche Atmosphäre im offenen Wohn-EssKochraum.
AUF DER GALERIE ist je ein zusätzlicher Wohnbereich vorgesehen: Er ist in der Vertikalen offen mit dem Wohn-Ess-Kochbereich im Erdgeschoss verbunden.
AUSBLICK auf die Donau bietet sich vom Jugendzimmer, das über der Garage, in Richtung der Straße liegt.

bsolut malerisch gelegen, im niederbayeA rischen Kelheim, direkt am Flussufer, nahe des Donaudurchbruchs „Weltenburger Enge“ – Bayerns erstem Nationalen Naturmonument und Unesco Weltkulturerbe – schuf Architekt und Baubiologe Markus Aumer dieses Doppelhaus in moderner Holzbauweise: umgeben von Wald und Wiesen auf der einen wie auch von historischen Denkmälern auf anderer Seite. Für den Partnerarchitekt von Jura-Holzbau war von Anfang an klar, dass nur ein ökologisches Holzhaus mit hochwertigen und nachhaltigen Baustoffen infrage kam. Zusammen mit dem Haushersteller als Generalunternehmer schuf er so dieses durchdachte Mehrgenerationenhaus, das er heute mit seinem Sohn in der einen und das seine Mutter in der anderen Hälfte bewohnt.
STROM für die Heizung liefert die PV-Anlage, die um möglichst gute Erträge zu erzielen, auf Ost- und Westseite angeordnet wurde.
MIT KLARER KANTE
Betrachtet man das lang gestreckte Gebäude, kann man sich gut vorstellen, dass hier früher eine Kegelbahn gestanden hat. Angelehnt an die Grundkubatur des vorherigen Gebäudes, entstand der lange und schmale Bau mit zwei Wohneinheiten. Die archetypische Gebäudeform mit steilem Satteldach wird durch das bewusste Weglassen von Dachüberständen untermalt. So fügt sich das Haus mit glatter Ziegeldeckung und vertikaler, unbehandelter Lärchenholzlattung optimal in die benachbarte Bebauung wie auch die landschaftliche Umgebung ein. Ein schmaler Zugang zum Grundstück erschließt das Gebäude. Die Hauseingänge zu den beiden Wohnungen führen ganz unkonventionell direkt in die jeweiligen Wohn-Ess-Kochbereiche. Über zwei Etagen öffnen sich diese Räume – und mit hohen Fenstern und Glastüren außerdem nach draußen, in Richtung Innenhof. So werden die hohen Wohnräume mit viel Tageslicht versorgt.
Im linken Gebäudeteil wohnt die Mutter, rechterhand der Bauherr und sein Sohn. Hier befindet sich im Erdgeschoss neben dem Wohn-Essraum ein Schlafzimmer, Duschbad sowie ein Arbeitszimmer des Hausherrn. Im Obergeschoss bietet die Galerie einen schönen Rückzugsort und es gibt ein geräumiges Bad. Der Sohn bewohnt hier das großzügige Zimmer über der Garage. Die Wohneinheit der Mutter fällt beinah spiegelbildlich aus, verfügt aber im Obergeschoss statt über ein großes Badezimmer über ein Gästezimmer. Außerdem führt von ihrer Galerie aus ein Steg in das höher gelegene Gartenstück hinter dem Haus.


WOHNEN & WOHLFÜHLEN
Viel Weiß, helles Holz und wandbündige Innentüren schaffen ein freundliches, ruhiges und harmonisches Ambiente. Möbel und Bodendielen aus gebürsteter Weißtanne, geseift und weiß pigmentiert, sorgen für angenehmen Holzgeruch, unterstützen die gute Raumakustik sowie ein behagliches, wohngesundes Raumklima. Für letzteres sorgt auch die ausgeklügelte Haustechnik: Denn das hoch gedämmte Haus wird mit einer Frischluftheizung beheizt. Es gibt also – außer im Bad – keine Heizkörper oder Fußbodenheizung. Die kontrollierte Be- und Entlüftung versorgt dabei das Hausinnere stets mit frischer Luft und die großen Fensterflächen in Süd- und Westrichtung sorgen für passive, solare Energiegewinne. Die historische Kalksteinmauer kühlt die Luft hinter dem Gebäude quasi ganz natürlich. Den Strom für die Heizung liefern zwei PV-Anlagen – und mit dem Energieüberschuss kann sogar noch ein Elektroauto betrieben werden. So gelingt mit ursprünglichsten Zutaten, wie Holz, Sonne und Luft, Wohnen mit rundum gutem Gefühl. • cm
VATER UND SOHN genießen ihren gemeinsamen abendlichen Plausch. Der Innenhof, in Westrichtung des neuen Domizils, ist Terrasse und Hauseingangsbereich in einem.

GALERIE 35,5

LUFTRAUM GAST 16,5 BAD 17
LUFTRAUM GALERIE 36,5
OBERGESCHOSS
30,11 m
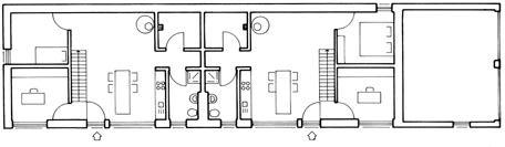
SCHLAFEN 11 WOHNEN/ ESSEN/ KOCHEN 38
SCHLAFEN 11

ERDGESCHOSS
TECH. 6 TECH. 6
BAD 6 BAD 6 WOHNEN/ ESSEN/ KOCHEN 38 SCHLAFEN 11
BÜRO 11 KIND 38
GARAGE LEBEN, wo andere Urlaub machen: Kajakfahren gehört in dieser traumhaften Lage einfach dazu. Die Doppelgarage wurde optisch dezent in die Fassade des Erdgeschossbereichs integriert.
DATEN + FAKTEN Haus Kelheim
• WOHNFLÄCHEN: EG 72 + 72 m2, OG 52 + 91,5 m2 • BAUWEISE: Holzrahmenkonstruktion mit Zellulosedämmung, Lärchenholz-Lamellenfassade, Holz-Alufenster mit Dreifach-Verglasung, U g-Wert 0,5 W/m2K, Satteldach mit Ziegeldeckung, 40 Grad Neigung • TECHNIK: Lüftungsheizung (Luft-Wärmepumpe) mit Warmwasserbereitung und kontrollierte Lüftung mit Wärmerückgewinnung, Photovoltaikanlage, Batteriespeicher • ENERGIEBEDARF: Primärenergiebedarf: 15 kWh/m2a Endenergiebedarf: 9 kWh/m2a KfW-Effizienzhaus 40 Plus • ENTWURF Aumer Wannigmann Planungsbüro Markus Aumer, Frank Wannigmann Fischergasse 30 93309 Kelheim www.aumer-wannigmann.de • HERSTELLER: Jura-Holzbau GmbH Leitenstraße 1 93339 Riedenburg Tel. 09442/9203-0 www.jura-holzbau.de • UNTERNEHMEN & PORTFOLIO: Das Familienunternehmen wurde 1978 gegründet und hat derzeit 35 Mitarbeiter. Es produziert Fertighäuser in Holzsystembauweise und Nagelplattenbinder. Firmenphilosophie ist es, die energieeffiziente und nachhaltige Bauweise mit modernem Komfort, gehobener Architektur und Funktionalität in Einklang zu bringen. • LIEFERRADIUS: Umkreis von 150 km um den Firmen- standort









