
4 minute read
Reportage: Pluspunkte fürs Haus
from bauen. 2/3-2022
Pluspunkte
fürs Haus


Viel Raum und jede Menge Wohnkomfort bietet das Haus von Familie Wiegele. Dazu kommt absolut zeitgemäße Energieeffizienz. Mit der Photovoltaikanlage auf dem Dach erzeugt das Haus mehr Energie als es verbraucht.
Durchgehend weiße Möbel und viel Tageslicht: Die Küche präsentiert sich hell und freundlich.
Das übereck laufende Lichtband im Wohnbereich sorgt für Privatsphäre.
Freie Sicht hingegen gibt es vom großen Essplatz auf die Terrasse und in den Garten.



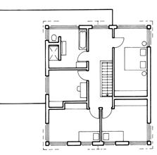
Auf geradem Weg führt die Holztreppe sicher nach oben. Am Ende des lang gezogenen Flurs im Obergeschoss wurde ein Sitzfenster angebracht. Der hohe Kniestock von 200 cm erlaubt optimale Möblierung im Dachgeschoss. EXTRA PLUS
Mit Blick auf die Zukunft wollte die Baufamilie möglichst unabhängig von – sehr wahrscheinlich weiter steigenden – Energiepreisen werden. Aber nicht nur finanzielle, sondern auch ökologische Gründe hätten dabei eine Rolle gespielt, betont der Bauherr. Die Grundlage dafür wurde mit der Hauskonstruktion sowie der technischen Ausstattung geschaffen. Das Haus ist in Holztafelbauweise als KfW-Effizienzhaus 40 Plus ausgeführt. Die sehr gute Dämmung des gesamten Baukörpers ermöglicht im Zusammenspiel mit der effizienten Haustechnik diese höchste Förderstufe. Geheizt wird mit einer Luft-Wasser-Wärmepumpe und Fußbodenheizung. Zur Haustechnik zählen weiter eine zentrale Lüftungsanlage sowie eine Photovoltaikanlage und ein Battriespeicher. Die sorgen dafür, dass übers Jahr gesehen der Energieertrag höher ist als der ohnehin schon geringe Verbrauch. Stromkosten von monatlich 65 Euro stehen laut Bauherr Erträge von monatlich 80 Euro gegenüber. Die Leitungen für den Anschluss einer Wallbox zur Betankung eines E-Autos sind auch bereits gelegt. Von außen fallen neben dem flachen, grauen Satteldach vor allem die weißen Kunststofffenster und die taupefarbenen Bereiche der Putzfassade ins Auge, die die Fenster im Dachgeschoss optisch einrahmen und die sich auch an der Eingangsüberdachung und am Garagendach wiederfinden. Die Bauherren entschieden sich für liegende Fensterbänder, die im Wohnbereich und im Dachgeschoss um bodentiefe Fenster ergänzt wurden.
Im Inneren führt – direkt im Eingangsbereich positioniert – die Holztreppe in Faltwerkoptik ins Dachgeschoss. Neben dem Eingang befindet sich ein Durchgang zur Küche, von der aus auch die Speisekammer über eine Schiebetür erreicht wird – praktisch für Vorräte und zusätzlichen Stauraum. An die Küche schließen sich in L-Form der Ess- und Wohnbereich an. Die Baufamilie legt Wert auf Gemeinschaft und Gemütlichkeit – das zeigt sich besonders an der großen Tafel im Essbereich, an der bis zehn Personen Platz finden. Vom Essbereich aus gibt es einen direkten Zugang zur Terrasse über bodentiefe Fenster. Der Wohnbereich wird für mehr Privatsphäre über ein schmales Lichtband erhellt.
Im Eingangsbereich sowie zwischen Ess- und Wohnbereich dienen zwei Wandnischen als passgenaue Lösungen für Einbauschränke- und -regale. Im Erdgeschoss sind außerdem ein Duschbad und ein Technik- und Hauswirtschaftsraum untergebracht.


OBEN MIT SITZFENSTER
Das Obergeschoss beherbergt ein komfortables Raumprogramm für eine vierköpfige Familie: Das große Elternschlafzimmer verfügt über einen Durchgang zur Ankleide. Die zwei Kinderzimmer und ein Arbeitszimmer sind mit Wandnischen ausgestattet, die für Einbauschränke genutzt werden. Jedes Schlafzimmer verfügt über Schränke bis zur Dachschräge, die bei dem Kniestock des Hauses von 200 cm viel Stauraum schaffen. Für den Flur wünschten sich die Bauherren ein Sitzfenster. Vom Flur aus kann auch der Spitzboden betreten werden.
Das Badezimmer wartet mit einer praktischen T-Lösung auf: Das WC wurde auf einer Seite und die Walk-in-Dusche auf der rückwärtigen Seite platziert – beides sichtgeschützt gegenüber der Badewanne und dem Waschtisch. • gw



DATEN + FAKTEN Haus Wiegele
• WOHNFLÄCHEN: EG 94 m2, OG 90 m2 • BAUWEISE: Holzrahmenkonstruktion 184 mm mit Wärmedämmung 180 mm, Putzfassade, Dampfbremsvlies 0,2 mm, U-Wert Außenwand 0,120 W/m2K, Verglasung Ug -Wert 0,7 W/m2K, 24 Grad geneigtes Satteldach U-Wert 0,14, W/m2K, 200 cm Kniestock • TECHNIK: Luft-Wasser-Wärmepumpe, kontrollierte Wohnraumlüftung mit Wärmerückgewinnung, Fußbodenheizung, Photovoltaik 9,2 kWp, Batteriespeicher, 6 kWp, Zentralstaubsauger • ENERGIEBEDARF: Primärenergiebedarf: kWh/m2a Heizwärmebedarf: kWh/m2a Endenergiebedarf: kWh/m2a Effizienzhaus 40 Plus • HERSTELLER: Fertighaus Weiss, Sturzbergstraße 40-42 74420 Oberrot-Scheuerhalden Tel. 07977/97770 www.fertighaus-weiss.de • UNTERNEHMEN & PORTFOLIO: Gegründet 1881 als Zimmereibetrieb von Josef Weiss, wird das Familienunternehmen heute bereits in der vierten Generation geführt von Hans Volker Noller und Christel Noller, geb. Weiss. Sohn Michael und Tochter Michaela Noller arbeiten als fünfte Generation bereits mit im Unternehmen; Fertighaus Weiss stellt Ein- und Mehrfamilienhäuser in Holzfertigbauweise, individueller Architektur und höchster Energieffizienz her, verfügt über eine eigene Kellerfertigung und liefert mit eigenen Handwerkern beinahe alle Gewerke aus einer Hand. Ca. 380 Mitarbeiter.
• LIEFERRADIUS: 400 km ab Werk Weitere Infos zum Hersteller und ausgewählte Entwürfe finden Sie im Internet unter www.hausbauhelden.de/hersteller/ fertighaus-weiss/
Die Ausstattung mit Lichtbändern erstreckt sich über das ganze Haus. So auch im Elternschlafzimmer.
Die über bodentiefe Fenstertüren erreichbare Terrasse hat eine separate Überdachung.
Auch die mit über 16 Quadratmetern ausreichend bemessenen Kinderzimmer erhalten durch bodentiefe Fenster viel Tageslicht.
BAD 12,5
ARBEITEN 11,5 GALERIE 13
KIND 16 SCHLAFEN 20,5
KIND 16,5
OBERGESCHOSS
BAD 6,5
TECH. 13,5 DIELE 12 KOCHEN 21
SK 3
WOHNEN/ ESSEN 38
ERDGESCHOSS
10,00 m









