Estimating Today Spring 2025

Page 26


AMERICAN SOCIETY OF PROFESSIONAL ESTIMATORS

ASPE Canon #1: The Importance of Competence in Estimating A Sublime Exploration in Sustainable Construction

How to Estimate the Cost of Supply and Install of Restroom Accessories and Toilet Partitions

BOARD OF DIRECTORS

President

Mike A. Alsgaard, CPE maalsgaard@aspenational.org

First Vice President

Matthew Burress, CPE mburress@performanceservices.com

Immediate Past President M. Chris Morton, FCPE cmortonfcpe@outlook.com

Treasurer (Appointed) Paul Croke pcroke@hinrest.com

Northwest Governor Eric Ross, CPE laurenanderic@comcast.net

Southwest Governor Joshuah Crooker-Flint, CPE joshc@auiinc.net

Central Plains/Southeast Governor Jeremy Adkins, LCPE jadkins@wcci.com

Northeast Governor Rose Jesse, CPE rosejesse.aspe@gmail.com

INDUSTRY DIRECTORS

Steve Nellis American Council for Construction Education

Michael Gifford Associated General Contractors Colorado

WHAT IS INSIDE

From the National President

Spring is in the Air – and So Are New Beginnings!

Spring is a time of renewal, fresh opportunities, and exciting developments—both in the construction industry and within ASPE. As the season changes, we’re embracing new projects, educational offerings, and initiatives designed to support and elevate our ASPE community.

Education Committee: Expanding Your Knowledge

We’re rolling out new online courses to help sharpen your estimating skills:

• New courses available:

• Conceptual Estimating for New Commercial Building Construction

• Introduction to Plumbing Estimating

• Introduction to Earthwork Estimating

• Additional courses under development:

• Introduction to HVAC Estimating

• Introduction to Electrical Estimating

• Wood Framing for Estimators

Standards Committee: Setting the Benchmark

• The 12th edition of Standard Estimating Practice (ASPE’s comprehensive three-volume reference set for estimators) is in its final editing stage and will be released soon!

Certification Committee: Exciting Changes Ahead

• A new certification platform is under development— stay tuned for great enhancements and a better user experience!

Society in General:

• 2025 Summit, September 25 – 27, in Omaha, NEPlanning is underway for an incredible program on Breakthrough Estimating.

• The New Estimator’s Edge Webinar Series –Covering relevant industry topics, presented monthly.

• The Technical Paper Directory – Members-only, searchable, online directory containing peer-reviewed technical papers submitted by Certified Professional Estimators (CPEs).

• Monthly Chapter President Leadership Meetings – strengthening connections and leadership.

• Spring Regional Meetings – Events are being posted, keep an eye out for details.

Spring is a season of growth, and ASPE is growing right along with it! Stay engaged and take advantage of the many new opportunities coming your way in the ASPE Society.

Connect at: maalsgaard@aspenational.org LEARN. CERTIFY. JOIN.

Welcome our November - January New Members

Member

Member Company Chapter

Ryan Handshoe Shambaugh & Son, L.P.

Jack Connor Locust

Mario Scianni

Berghammer Construction Corporation

Joseph Adams Downey & Scott

Stuart Williams

Matthew Woolwine Cornerstone Management Services

Doug Elder Rock Solid Solutions

Nathan Klein

David Parden

Daniel Womack

Ada Esther Gil Jimenez

SCG Fields, LLC

DBPE Electrical Consulting

AEGJ Construction, LLC

Blake Berkley Cross Grain Estimating

Gilberto Oliver

RC Group, LLC

Old Fort - 65

Delaware - 75

Brew City - 78

Richmond - 82

Mid-Michigan - 83

Northwest MAL - 90

Southwest MAL - 91

Central Plains MAL - 92

Southeast MAL - 93

Southeast MAL - 93

Southeast MAL - 93

Southeast MAL - 93

Northeast MAL - 94

ASPE Canon #1: The Importance of Competence in Estimating

When discussing ethics in estimating, topics like bid peddling, bid rigging, and bid shopping tend to dominate the conversation. Everyone loves to talk about these issues, but rarely does anyone speak about the importance of competence in estimating. However, one of the most fundamental ethical principles in our profession is

ASPE’s Canon #1: "Professional Estimators and those in training shall perform services in areas of their discipline and competence."

While this Canon is not as widely discussed, it is critically important to those who take pride in our profession. One statement I often hear is, "If I have a set of plans and specs, I can estimate the project." On a typical commercial construction project with a 100% complete set of plans and specifications, I can understand that mindset (though I still don’t fully agree based on experiences I have witnessed). However, estimating is much more than just extracting quantities and applying unit costs.

When estimators prepare estimates outside their dis-

cipline or competence, they can cause harm to clients, employers, and the community. As professionals, the number one code is to do no harm—and that includes ensuring our work is accurate, well-researched, and rooted in expertise. Let’s explore some examples of the potential harm caused by ignoring Canon #1:

The Risk of Incompetence in Conceptual Estimating

One of the areas in which I perform work is preparing program and conceptual estimates. These estimates are often used to determine if a project is financially viable before significant resources are committed. When an estimator is:

a) Not versed in conceptual estimating through training and experience, or b) not familiar with the type of facility or infrastructure being estimated, there is a significant risk that the estimate will be either too low or too high.

• If the estimate is too low and the client moves forward under the assumption that the project is financially viable, they may face severe budget short-

falls down the line. This can lead to project delays, cost overruns, or even complete project failure.

• If the estimate is too high, the client may choose not to proceed with the project, even when it could have been financially feasible. This not only impacts the client but also the community that could have benefited from the project’s completion.

Neither outcome serves the best interest of those relying on the estimate to make informed decisions.

The Pitfalls of Estimating Complex or Specialized Projects

Back in the early 90s, I worked as a project engineer on a small facility. Part of the scope of work involved putting a number of 13' deep cast-in-place concrete electrical vaults over a stretch of approximately 1/4 of a mile. Unfortunately for our team, the water table was 3' below grade—so much so that if you kicked the ground, you could see little water bubbles pop up. On bid day (a lump sum hard bid), there were no quotations received from dewatering firms. The lead estimator, who was fairly new and had a background in concrete (which we did very well on), did not have a solid understanding of site work and dewatering. He managed to get one dewatering company on the phone, and they convinced him to plug in $5,000 for dewatering—which he did (I think the exact words were “I can dewater all of insert Town Name for $5000!” After the bid, he didn’t take our calls). $325,000 worth of dewatering later, we completed the electrical vaults. This was a small job, and this net difference was four times the overall fee for the project. Not understanding the scope and estimating the project incorrectly cost the contractor a great deal.

Another example of the importance of Canon #1 is estimating specialized construction projects, such as hospitals, airports, water treatment plants, or industrial facilities. These projects require deep industry knowledge, an understanding of unique cost drivers, and awareness of specialized equipment and regulatory requirements. An estimator who lacks experience in these sectors may:

• Underestimate critical components, leading to budget shortfalls and re-designs.

• Fail to include necessary contingencies, creating financial instability mid-project.

• Misinterpret scope requirements, leading to costly change orders.

Competence in a specific field of estimating is not just about applying numbers—it’s about understanding the nuances of the project type, regulatory constraints, market conditions, and construction methodologies.

The Dangers of Relying Solely on Software Without Expertise

In today’s digital age, many estimators rely on takeoff and estimating software to streamline their work. While these tools are incredibly useful, they do not replace the knowledge and judgment of an experienced estimator. If an estimator lacks expertise in a specific discipline, they may:

• Misinterpret design intent.

• Overlook project-specific cost drivers.

• Rely too heavily on generic cost databases without considering market conditions.

Software should be an aid, not a crutch. An estimator must still have the expertise to validate and interpret the numbers accurately.

Accepting Assignments Outside of Your Discipline with Proper Support

While it is important to work within one's discipline, an estimator may accept assignments in other disciplines as long as qualified associates attest to the accuracy of their work. A great example of this is when I estimated my first light manufacturing facility. I worked with a team of partners who had a long history of building these types of facilities. The project was successful, but I was fortunate to have mentors and resources to rely on.

Putting my ego aside and putting in the time to learn, while also acknowledging that I didn’t know what I didn’t know, made all the difference. Having experienced professionals review my work and provide guidance ensured that the estimate was accurate and reliable. This approach—seeking mentorship, leveraging expertise, and recognizing one's limitations—aligns with the ethical principle of Canon #1 and ultimately benefits clients, employers, and the industry as a whole.

The Role of ASPE in Guiding Estimators

The American Society of Professional Estimators (ASPE) plays a crucial role in guiding estimators through Education, Professional Development, and Fellowship. ASPE provides estimators with the resources and training needed to stay competent in their field and encourages networking with experienced professionals who can serve as mentors. By participating in ASPE, estimators gain access to valuable learning opportunities, industry best practices, and a network of peers who share the same commitment to excellence ASPE ensures that professional estimators continue to

refine their skills, uphold ethical standards, and contribute positively to the industry. Through continuous education and mentorship, estimators can expand their expertise and confidently take on new challenges while adhering to the principles of competence and integrity outlined in Canon #1.

Upholding the Integrity of the Profession

Estimating is not just about crunching numbers—it’s about providing clients and stakeholders with reliable, well-informed financial guidance. ASPE Canon #1 is a safeguard against poor estimating practices that can lead to financial losses, abandoned projects, and reputational damage.

ther develop the necessary expertise or defer to those with the appropriate experience. The integrity of our profession—and the success of the projects we estimate—depends on it.

As professionals, we must recognize our limits and ei-

Andrew Kleimola Orlando - 50

ASPE Summit 2025

Mark your calendar for the best estimating conference of the year

SEPT 25-27 2025

Breakthrough Estimating

Reimagine the possible and surround yourself with peers and industry experts

Ready to revolutionize your estimating process? Summit 2025 is unlike any construction event you’ve seen before. Network with industry leaders, be inspired by cutting-edge presentations, and connect with sponsors who can transform your workflow. This is NOT your average construction event!

From Bids to Breakthrough: Harnessing AI to Transform

Disaster Estimating: Hurricane, Fire, Flooding Oh My!

Integrated Estimating Workflow

Outsourced Estimating: The Good, the Bad, and the Ugly

Breakthrough Leadership: The Mindset and Skills for Delivering Game-Changing Results in Estimating

Member Company Chapter

Jon Endsley, CPE

Matt Henery, AEP

Evan Wagner, CPE

Chris McCarthy, CPE

Angelica Guerrero, AEP

Devin Kuehl, AEP

Reed Festing-Smith, CPE

William Oberlander, CPE

Thomas Bianchi, CPE

Christopher Clement, CPE

Tyler Ebert, CPE

Robert Estrada, CPE

Stefan Fombrun, AEP

Kenneth Mowery, AEP

Shraddha Shrestha, AEP

Matt Toth, AEP

Cumming Management Group, Inc.

Store Consulting

Danis Building Construction Co.

Globaltech

Newman Construction Consulting

Estes Construction

RXR

American Contracting & Environmental Services

Sunland Group, Inc.

Pleasant Valley Corperation

Tuttle A Dant Clayton Division

SCG Fields, LLC

Golden Gate - 02

San Diego - 04

New York - 10

Southwestern Ohio - 38

Orlando - 50

Quad City - 71

Des Moines Area - 73

Southwest MAL - 91

EVERYTHING IN PROGRAM

How to Estimate the Cost of Supply and Install of Restroom Accessories and Toilet Partitions

Introduction

As Construction professionals, we discuss risk often and there is no better time to focus on project risk than during pre-construction. Self-performance of work in place is a high-risk endeavor. Underestimated crew hours for any single scope and margin erosion can quickly derail your project and company outlook. Taking the proper time and precautions to review all scopes of self-performance work thoroughly to protect your company’s risk is critical to protecting project margins. Even a scope of work as deceivingly small as the toilet compartments and toilet accessories can impact your bottom line.

Toilet compartments and toilet acces-

sories are common products found in all our jobs. They can also exist outside of a typical restroom, leading an estimator to miss them during takeoff and estimating. For instance, toilet compartments can also be used as changing stations or shower stalls. Soap dispensers and paper towel dispensers can be found throughout buildings at sinks. After COVID-19 the frequency of hand sanitizing dispensers on projects has increased as well. These items can also be missed during estimates due to the assumption that they are owner-furnished and owner-installed or OFOI. A proper review of the contract documents is important to ensure it is clear who owns the furnishing, and installation of these materials.

To set the stage, this paper is written from the viewpoint of a General Contractor (GC) bidding a K-12 school project in Adams County, Iowa. In this case, the General Contractor will be procuring the materials from a vendor and self-performing the installation of said materials. The project is also about ninety-five miles from the General Contractor’s home base, which will impact the approach during the Estimate.

MasterFormat Information Division

10 00 00 - Specialties

Subdivisions

10 21 00 - Compartments and Cubicles

10 28 00 - Toilet, Bath, and Laundry Accessories

Specific Factors

There are several considerations to review to protect your estimate from inherent risk. One consideration is project location. Where is the project located in relation to your office and in relation to your field staff? Would your field staff be local or would travel costs be required? Make sure you fully understand your company’s policy for travel such as mileage, subsistence, per-diem, travel hours, working hours, and union jurisdiction regulations to name a few. The project we are using as an example is ninety-five miles away and when reviewing company policy, field employees are entitled to mileage for

travel each day but not hourly wages during their travel. For this example, we will assume the company is nonunion and the project has federal funding requiring prevailing wages. Public projects, especially those receiving federal funds, are often mandated to have prevailing wages included, also known as Davis-Bacon wage rates. These are the wage rate and fringe rate minimum guidelines set by the Government that must be reported on by each contractor. When researching the wage rates required, be sure to note which county you are in, what scope of work the field staff will be employed as the location and scope of work dictate the wages.

Understanding the project documents and installation setting is another critical consideration. Toilet compartments and toilet accessories experience substantial abuse by end users. The proper installation will determine whether the products function as intended or not. Why this is important to the installer is because we need to understand what the walls and wall finishes are made from. If walls are framed with wood or steel studs, most of the accessories will not align with those studs, and the required drywall anchors are installed first. Most projects, however, will require wood backing behind the drywall which will result in a faster installation for the accessory installer. If the walls are composed of concrete masonry units (CMU) or concrete (cast-in-place or pre-cast) then pre-drilling and anchoring will be required resulting in additional time required per accessory to install. We also need to understand the wall finishes, for example, ceramic tile walls are a nice wall finish but can easily be cracked or chipped when installing accessories. It is important for installers to take the time, prep the surface, and pre-drill with a diamond drill bit to prevent cracking or damaging ceramic tiles. It is the expectation of the tile installer that when they are complete, no other

reed@estesconstruction.com Reed grew up in Iowa and attended Arizona State University where he received a bachelor's degree in Civil Engineering and a minor in Sustainability. After graduation Reed moved back to Iowa to work for Estes Construction in the Eastern Iowa office. Reed has continued to work for Estes for the past 12 years in roles as a Project Engineer, Project Manager, and now a Pre-Construction Manager. In that time, he also relocated to the Central Iowa Office. Reed has had the privilege of working on a variety of projects and industries across the state including K-12 education, Secondary Education, Healthcare, Athletics, Industrial, Corporate, and Areas of Worship. Reed currently lives in Ankeny Iowa with his wife and two children.

trades will damage their work. Breaking that expectation will result in a “back charge” from the tile setter to the installer that damaged the tile. A cost that will directly impact the margin. If the walls exist, you must review the documents to understand if any other trades will be removing drywall to install wood blocking/backing or if drywall anchors need to be used. For example, in this paper, the walls are framed with steel studs and the documents require the drywall carpenters to install wood blocking at all toilet compartments and accessory locations. All restrooms have ceramic tile wall finishes and all areas outside of restrooms have painted gypsum board wall finishes.

Always, no matter what the scope, make sure you review all contract documents and ask for any clarifications. Often the specifications, drawings, and addendums will not align regarding toilet compartments and toilet accessories. For whatever reason, the coordination between documents is missed or conflicting which can lead to more risk for your estimate.

Overview Costs

Materials: Material costs for this estimate are based on recent project pricing for related products and suppliers. Tax is typically applied on all these materials at a rate of 7%, however in the state of Iowa all schools are tax exempt and therefore you should not include tax in your proposal.

Labor: Labor rates are based on prevailing wages for laborers and carpenters working in Adams County, Iowa. Rates and fringes can be found at Sam.Gov. Also included is mileage paid to each employee for the total number of trips required to site. Miles are based on round trips and paid out at the IRS stated rate of $0.67/mile. Confirm in project manuals/specs if

prevailing wages are required. Always consult within your company to understand the “out of town” or “travel” work policies.

Tool & Equipment: This will include any tools and equipment required to complete this scope of work as well as mobilization costs for bringing materials to the site from the warehouse. For this example, the company covers small tools and consumables as a percentage of total labor costs on a project. Small tools are defined as single handheld tools that are provided to employees such as drill and impact sets. Any tools or equipment larger than this would either be rented for the project, or the project would be charged a rental rate internally from the warehouse. Consumables are any products required that only be used on this project such as glues, fasteners, saw blades, drill bits, chalk, etc. Any items beyond those would be listed under materials.

Soft Costs: Soft costs can vary from company to company, in this example, we include a 5% contingency for risk protection, 10% in general conditions (covers safety, technology, office overhead, etc.), 1.5% business liability insurance, 1% bond (public projects require payment and performance bonds), and 12% fee (also known as margin). It is always encouraged to have open collaboration with your team regarding soft costs. Each project and scope of work has various levels of risk that affect your contingency, general conditions, and fee. Collaboration amongst the team will provide a clear understanding of where the risk is and how it is being managed.

Risk Consideration

Safety should always be the first topic when your team is self-performing work. The risk of injuring or losing a team member has impacts on your company’s morale, safety ratings, and

margin. It affects your company financially now and potentially affects your ability to get future work based on a higher Experience Modification Rate (EMR) or Total Recordable Incident Rate (TRIR).

As mentioned earlier, self-performance work is an elevated risk regarding margin. Missing the estimate or having a poor plan heading into a project can result in a slow or fast bleed of margin that is difficult to stop during construction. Ensuring your team has reviewed all contract documents, requested clarity with the design team for any discrepancies, and performed extensive internal review of hours are just a few best practices to ensure your team is set up for success. However, that is just the first step. Once construction begins, communication is critical. Having leadership on site that can communicate the conditions and lead the on-site staff to completion in an efficient manner is critical to meeting or beating the estimated hours.

Ratios and Analysis

Having extensive databases and experience is critical to mitigating risk and maximizing margin. Databases can provide you with a typical or average installation time for each individual product you are estimating. This data is imperative to understand a baseline of what the scope of work will take in terms of hours. Keep in mind the more data you have, the more the information becomes normalized amongst the data set. What I mean by this is performance on installing five toilet compartments last week is specific to that project and that installation. If you are looking at an average of one thousand compartments set over the last ten years, then you must understand this is an average. You should use that average as a starting point in your review of labor produc-

tion. Start with the average and then understand what is unique about this specific project that may break from the average whether it be new construction versus remodel, installation into a gypsum board wall with backing versus a wall with ceramic tile. Each little detail affects the hours required to complete the work.

If you are new to the scope and have yet to produce a database, use caution. Do not rely just on RS Means or other sources, talk through the work with your team and understand what is unique about the project that would differ from a normalized average.

Miscellaneous Pertinent Information

Review the bid documents thoroughly including the specifications, sample contract, drawings, and supplemental documents. The Division 00 and 01 sections are especially important and can have information critical to your estimate such as prevailing wages, liquidated damages, Buy America clauses, DBE/MBE requirements, etc. These clauses are not always consistent in the rest of the bid documents and should be clarified if conflicting. Once you have reviewed these divisions you can set up your estimate accordingly and source material pricing from the correct vendors.

Often the bid documents will not have any specific details or notes regarding installation instructions for toilet compartments or toilet accessories. If you are unfamiliar with the installation of these products consult with your local manufacturer rep or research the manufacturer's website for instructions. You will find instructions and details for what fasteners are and are not provided. For instance, most toilet accessories come with fasteners into wood blocking/backing, but if the installation is into masonry or concrete, you will need to source the fasteners.

For this example, we started by creating a list of all compartments and accessories that were stated as part of this project either in the specifications or the documents. Then a table was created to input data sourced from the takeoff process. Quantity takeoff can be completed using various software such as Bluebeam. For toilet compartments and accessories, it is imperative not to rely on the floor plans but also to consult the detailed elevations. Once all elevations are reviewed and a detailed takeoff is completed you can provide several checks. An example is if a product is listed in the specification but was not found in the plans, in this case, a baby changing station, then I use the Bluebeam search function and look for the missing accessory. If nothing is found in the search, then confirm with the

design team that the item was listed in the specification in error. Another check would be reviewing the code sheet for the quantity of water closets provided, this should line up with the number of toilet paper dispensers. During the quantity takeoff also note unique features about the products that would affect the timing or require additional time such as recessed versus surface-mounted items.

Once the takeoff is complete, compare the quantities against what your vendors have listed and discuss any discrepancies. Then begin to populate your estimate with materials, labor, tools & equipment, and soft costs all separated. Review the labor hours required to install each individual item. Review with your field staff and/ or superintendent to determine a consensus of hours as well as any equipment required to complete the scope. Adjust the soft costs percentages accordingly based on the scope and risk. Double check for errors or inconsistencies.

If this work submitted as a separate proposal be sure to include clarifications and exclusions. This will help you communicate with the recipient what is included and protect yourself from scope creep. For this scope of work, clarify whether blocking and backing is or is not included in your estimate.

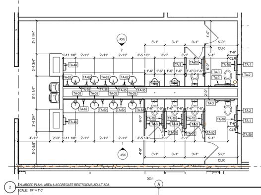
Snip of Toilet Accessory Table
Snip of Restroom Floorplan Noting Toilet Accessories
Snip of Restroom Elevations
Snip of Classroom Sink Elevations
Snip of Sam.Gov Prevailing Wage Chart for Laborers
Snip of Sam.Gov Prevailing Wage Chart for Carpenters

Takeoff and Pricing Sheet

Table 2 – Estimate

Glossary and Acronyms

Self-Perform Work – Work performed on the project site by staff of your company. Self-performance is a terrific way to control schedules and increase margins.

Pre-Drilling – Laying out the location of fasteners for a given product and drilling holes through the substrate prior to installing the fastener. This prevents damage to the substrate.

Backing/Blocking – Installation of wood behind gypsum drywall that is secured to stud framing and used as a medium that carpentry and specialty items can be secured to.

Contingency – Amount of money set aside as protection against unknowns and underperformance.

Payment and Performance Bond – Financially guarantees the company that pulls the bond will pay all sub parties and perform per the contract documents.

EMR - Number that insurance companies use to calculate workers' compensation premiums and measure an organization's overall risk level.

TRIR - Safety metric that measures the number of recordable incidents against the number of workers and total hours worked.

RS Means – An organization that tracks and publishes cost data for 92,000 different items in construction.

UOM – Unit of measurement.

DBE – Disadvantaged Business Enterprise, a for-profit business owned by an individual socially or economically disadvantaged.

MBE – Minority Business Enterprise, a for-profit business owned by a minority.

EA = Each Count, quantity relating to a single value of the given product

HR = Hours, relating to a single 60-minute period for a given employee or crew

Miles = Refers to the quantity of miles between one location and another

LSUM = Lump sum, refers to the total at a given point in time

References

For installation information on Toilet Compartments and Accessories: https://americanspecialties.com/ https://americanspecialties.com/wp-content/uploads/9014.pdf

For IRS Mileage Rates: https://www.irs.gov/newsroom/irs-issues-standard-mileage-rates-for-2024-mileage-rate-increases-to-67-cents-a-mileup-1-point-5-cents-from-2023

For Prevailing Wage Rates: https://sam.gov/wage-determination/IA20230081/0

ASPE’s Estimating Academy Launches New Online Courses

The American Society of Professional Estimators(ASPE) is pleased to announce the launch of three new online courses available through the ASPE Estimating Academy:

Conceptual Estimating: For New Commercial Building Construction

• Introduction to Plumbing Estimating

• Introduction to Earthwork Estimating

These fully online, on-demand courses allow students to work through the material at their own pace and on their own schedule. Each course includes 365 days of access, so students can take their time and learn the concepts at a comfortable speed.

Conceptual Estimating: For New Commercial Building Construction

This course provides an overview of the conceptual estimating process for new commercial building construction. Students will learn how to develop a conceptual estimate, including how to identify and quantify the cost of materials, labor, and equipment.

Introduction to Plumbing Estimating

This course provides an introduction to the plumbing estimating process. Students will learn how to develop a plumbing estimate, including how to identify and quantify the cost of materials, labor, and equipment.

Introduction to Earthwork Estimating

This course provides an introduction to the earthwork estimating process. Students will learn how to develop an earthwork estimate, including how to identify and quantify the cost of materials, labor, and equipment.

ASPE’s Estimating Academy provides high-quality online education that is accessible to everyone. These new courses are a valuable resource for anyone who wants to learn more about estimating in the construction industry.

Key Benefits of ASPE’s Estimating Academy Online Courses:

• On-demand: Learn at your own pace and on your own schedule.

• 365 days of access: Take your time and learn the concepts at a comfortable speed.

• High-quality content: Developed by experts in the field of estimating.

• Affordable: ASPE members receive a discount on all courses.

To learn more about ASPE’s Estimating Academy and its new online courses, please visit: https://www.aspenational.org/mpage/CC

A Sublime Exploration in Sustainable Construction

Sublime. At first reaction do you associate this word with anything in construction? Ha! Hardly. Yet, in my quest to earn my CEUs for my CPE, I stumbled across this word. Typically, we think of its use as an adjective:

• lofty, grand, or exalted in thought, expression, or manner;

• outstanding spiritual, intellectual, or moral worth.

• tending to inspire awe usually because of elevated quality (as of beauty, nobility, grandeur, or transcendent excellence)

BUT in this case – the verb was intended: 1. to cause to pass directly from the solid to the vapor state and condense back to solid form.

Hmmmm…ok my fellow nerdy introverted estimators…are you curious? Can you guess where I am going? You better read it on.

I knew I wanted to learn more about sustainability in construction – for personal and professional reasons. I just had my 5th grandchild join this world which is not destined to be a better place for the next generation as we currently continue with the same old ways. I also am collaborating with a client whose goal is to have a neutral impact with their developments.

Building materials “account for 11 percent of global greenhouse gas (GHG) emissions”.* The construction industry has a compounding impact on our environmental world and we need to work to decarbonize it. “Several strategies can be employed to reduce embodied carbon, including using low-carbon, carbon-neutral, or even carbon-storing materials. Most carbon-storing materials are plants (wood, hemp, straw, bamboo, algae) that have sequestered carbon during their growth before being transformed into a building material. Additionally, using recycled materials or reclaimed materials can reduce the emissions associated with manufacturing new materials.” * *– Learn More

Our client asked us to compare the impact on changing the structure of the building from its current Mass Timber

design to a Structural Cast-in-place Concrete Post-tensioned design. I can calculate the costs—no problem. BUT the other part of the puzzle asked was: “what were the increased EPDs? AND “can we reduce this impact with different concrete?”

First, what are EPDs? I found a great resource for definitions of EPDs (Environmental Product Declarations) and GWP (Global Warming Potential). You can find them here. Then, to understand this further, I continued “down the rabbit hole” and worked to memorize not only the nomenclature but the measures and concepts of this “new frontier”.

I also found the Advanced Building Construction Collaborative often referenced in my searches to be an excellent source for new topics in construction. “Advance Building Construction is bolstering the buildings sector by helping it meet the demand for energy efficiency, reduced greenhouse gas emissions, and affordability through industrialized construction.”

-Learn More

At The Advanced Building Construction site, I discovered Sublime through an Article they had posted: Learn More. In that article I discovered that there is a direct replacement for cement without the use of carbon producing kilns!

“Sublime Systems, developers of the only fossil-fuel-free, scalable, drop-in replacement for traditional cement in concrete, announced a screening life cycle assessment (LCA) validating its process can eliminate more than 90% of the global warming potential (GWP) of cement manufacturing, when compared to today’s ordinary portland cement (OPC). Climate Earth, the leading provider of environmental product declarations (EPDs) for the concrete industry, conducted this LCA according to a widely accepted industry method, avoiding controversial and unproven offset methodologies frequently used to enable the continued burning of fossil fuels — such as carbon capture, forestry credits, co-product mineralization, and lifetime CO2 absorption.

Sublime replaces the industry’s legacy kilns with an electrochemical process that makes cement at ambient temperature, extracting calcium and silicates from an abundance of raw materials to make cement. This novel approach bypasses both CO2 process emissions and heating emissions, without the need for post-combustion carbon capture, producing ASTM C1157-compliant Sublime Cement™ as a drop-in replacement for ordinary portland cement in concrete. Sublime was founded at MIT by Dr. Leah Ellis and Prof. Yet-Ming Chiang, both respected experts in materials science, electrochemical systems, and sustainability research.” Learn More

I couldn’t get enough. I also watched the podcast produced by TAE Good Clean Energy which interviewed Dr. Ellis. Watch Now

I was heartened by what seemed to be a complete solution to the old process of making cement. Or is it too good to be true? I dug in deeper and understood that the electrified process would still require an impressive amount of electrical consumption. So, while it solves getting rid of the high-temperature kilns heated by fossil fuels, it still shifts to how is the electricity, now consumed for the new process, produced? It was noted somewhere in my findings that a full-scale manufacturing plant for the Sublime cement electrochemical process would need to be placed near a hydroelectric generator to have the power source needed to not be reliant on fossil fuels. Damn. Here I thought they had found the “miracle” solution.

Still encouraged, I reached out to Ryan Cialdella with Ozinga Ready Mix who is one of the major suppliers in the Milwaukee area. I had been working with him to perform the EPD calculations from the cubic yardages for each of the mixes I had calculated for the project which was the impetus for this research. I asked him about where they were in deciding new solutions and referenced the Sublime article above. He responded, “We have been keeping our eye on a lot of these new technologies – Sublime is about 1 of 10 we have visited over the last year. While many of them have a lot of promises and are in certain stages of development at this time, there are no commercially available solutions to deploy at scale to be used on projects. I hope this changes over the next few years as there sure is a lot of money and effort being spent in this space – more than I have seen in my 20 years in the business.” He continued, “We have developed a commercially available ASTM C1157 cement that is about an 84% reduction in CO2 from standard OPC – while this type of cement is a little slower out of the gate for strength gain by seven days it matches if not exceeds standard mixes.”

The second comment warning is regarding yet another piece to the puzzle. The interim solutions are working to

sequester carbon or change mixes and uses of cement in our mixes. We then likely have changes in performance. On my referenced high-rise cast-in-place concrete structure, we have varying mixes from 4000 psi to 12000 psi. The new concrete mixes need to have the required strength and pumpability to turn our decks at the same speed as our traditional mixes or there are affecting costs to sequencing and schedule that negate the positive environmental impacts. Ultimately, this reduces the quantity of cubic yards where we can record usage of lowered EPDs, but we are still inching towards “neutral”.

Laurie Winkless contributing writer to Forbes writes: “Embedded carbon, as it’s sometimes known, has been described as “the construction industry's biggest obstacle to net-zero ' A new report, published today (September 12, 2023) by the UN Environment Programme and the Yale Center for Ecosystems + Architecture sets out to overcome that obstacle. Called “Building materials and the climate: Constructing a new future”, it reads like an ambitious call to action for those working in buildings and construction. And while it’s not the first document to argue for urgent decarbonization of the sector, I suspect it’s the most comprehensive to date”. She goes on to describe the report as centering on three paths: “Avoid – Shift – Improve” and that “Underpinning this three-pronged approach is the need for global and cross-sectoral cooperation. They write, “Rapid decarbonization of building materials will not be possible without simultaneously supporting material producers and users such as manufacturers, architects, developers, communities and building occupants, to make the decision to decarbonize. Access to reliable, transparent data will enable fair comparison between different building materials in terms of their embodied, operational, and end-of-life emissions, and should also greatly reduce the risk of greenwashing.” Learn More This supports what I seem to be finding. There will be steps in the process to change our industry. Tracking our improvements will make us aware of our progress and continued needed efforts. Estimators need to be equipped to do this.

Baby steps are still progressing. The construction industry, being such a large contributor to climate change, must invest in researching and developing truly practical alternatives. I relish the confirmation that climate change is being taken seriously across our industry and world. Scientists, developers, business journals, institutions, suppliers, and at least one estimator for a midwestern general contractor all have a vested interest in trying to find viable solutions to the hot mess we are in (aka climate change). We are weaving in new ways of doing things in response to the need to change and reduce our impact on the environment. My foray into learning about this stemmed not only out of natural curiosity but also from my need to secure Continuing Education Units for my CPE (Certified Professional Estimator) status and to be able to respond with some authority to a client’s request. I am encouraged that I found baby steps for my grandbabies that may soon become strides.

Deanne Goodlaxson, CPE

CD Smith Construction, Inc

dgoodlaxson@cdsmith.com

Construction Technology: Digitization, Computer Vision, AI, and Estimating – The Future Is Now

The construction industry is entering a new era driven by rapid technological advancements. For professionals and business managers, understanding how digitization, computer vision, and artificial intelligence (AI) are revolutionizing cost estimation is no longer optional—it is an imperative.

The Digital Transformation of Construction

Digitization in construction represents a seismic shift in how projects are planned, executed, and managed. Traditional paper-based workflows are giving way to integrated digital platforms that streamline processes, reduce human error, and enhance collaboration. Building Information Modeling (BIM), for example, allows estimators to work with precise 3D models, providing detailed data on materials, dimensions, and costs. This granular insight not only accelerates the estimating process but also enhances its accuracy.

Moreover, cloud-based tools enable real-time access to project data, fostering transparency among stakeholders. This connectivity is particularly valuable for estimators, who often rely on up-to-date information to make critical decisions. With digitization, inefficiencies that once plagued the industry—such as version control issues and data silos—are becoming relics of the past. While it may be comfortable and profitable for the industry at large – it is no longer an acceptable approach to conduct business as the competitive landscape intensifies.

Computer Vision: A New Lens on Accuracy

Computer vision, a subset of advanced computing, is transforming how estimators measure and quantify work. By analyzing visual data from photos, videos, and drone footage, computer vision can:

1. Automate Quantity Takeoffs: Software can calculate segmentation features, dimensions, areas, and volumes directly from images, digital files, or models, drastically reducing manual effort.

2. Enhance Safety and Compliance: Real-time monitoring ensures adherence to safety protocols, minimizing delays and potential real-world harm.

3. Improve Progress Tracking: Frequent site scans enable precise updates on project milestones, aligning estimates with actual progress, helping manage operational risks and cost overruns.

These applications save time and enhance accuracy, allowing estimators to focus on higher-level strategic tasks. Necessitating keeping the Human-In-The-Loop for these software automations.

Artificial Intelligence: Elevating Estimating to Predictive Insights

AI is not just improving the speed and accuracy of construction estimates—it is redefining them. By leveraging machine learning algorithms, estimators can:

• Predict Costs with Greater Precision: AI analyzes historical data to provide highly accurate cost predictions, accounting for variables such as labor rates, material costs, market trends, and even specific partnerships.

• Identify Risks Early: Advanced analytics highlight potential risks, enabling proactive mitigation strategies.

• Optimize Resource Allocation: By simulating various scenarios, AI ensures optimal use of resources, balancing cost efficiency with quality beyond current human best practices.

For instance, tools like Beam.AI®, BlueBeam®, Procore®, Togal.AI®, and other software developers such as Trimble®, have already demonstrated how AI, even at this very nascent stage, can rapidly analyze blueprints, interpret pattern recognition, and generate estimates in minutes (if not milliseconds), freeing up estimator time for critical review and refinement.

Challenges and Considerations

While the benefits are clear, adopting these technologies requires overcoming certain challenges. Resistance to change, upfront costs, and the need for training are the most common hurdles. However, the long-term gains in efficiency, accuracy, and competitiveness make the investment worthwhile and unavoidable.

Furthermore, data security and privacy are paramount in the digital age. Construction firms must implement robust cybersecurity measures and data governance strategies to protect sensitive project information.

[APPENDIX A: Generic Template Resource Included] A simple document to help jump start the process within your business.

The Road Ahead

As digitization, computer vision, and AI continue to evolve, their integration into construction estimating will only deepen. Future advancements may include:

• Enhanced Interoperability: Ongoing and seamless integration of AI tools with existing software platforms.

• Greater Accessibility: Scalable cloud-based solutions tailored for firms of all sizes.

• Up Skilling Workforce: AI solutions will help democratize an estimating talent pool.

• Sustainability Metrics: AI-driven insights to optimize material usage, reduce waste, align green building practices, and built-environment resiliency.

Conclusion

The construction industry and the pre-award estimating process are poised for a transformative leap, driven by the convergence of digitization, computer vision, and AI. For estimators, this means not only adapting to new tools but also embracing a mindset of continuous learning and innovation. By leveraging these technologies, professionals can deliver estimates that are faster, smarter, and more reliable than ever before.

The future is now. Are you ready to build it?

Pat Terry

2025 AWARDS

Honoring Members + Chapters for their contributions to ASPE and the construction industry. Honoring Member Estimators for their project successes.

EST IMATOR OF THE YEAR

For excellence in advancing the art of construction estimating through Standards, Ethics, and Practice, while leading and training others, and promoting ASPE throughout one’s career

CHAPTER PRESIDENT OF THE YEAR

For excellence in leading, promoting, and supporting the goals and growth of the Chapter

FELLOW AWARD

For having attained national recognition for achievements in the art of construction estimating and for having made exceptional contributions to the Society

LEGACY - HOWARD

S. PROUT FOUNDER OF CERTIFICATION AWARD

For actively promoting and mentoring candidates through the Certification program

LEGACY - FRANK E. YOUNG EXCELLENCE IN EDUCATION AWARD

For excellence in pioneering and promotion of Educational Opportunities and Advancements

LEGACY - MERLE W. HECKENLIVELY FOUNDER OF STANDARDS AWARD

For excellence in promoting and utilization of Standards of Ethics and Practice

INDUSTRY AWARDS

Celebrating projects displaying overall estimate efficiency and accuracy, unique and innovative design, technology solutions, or community involvement

CHAPTER CHAMPION

For dedicated effort and contributions made to the advancement and growth of the Chapter

CHAPTER ACHIEVEMENT

For excellence in promoting ASPE and supporting its Members at the Chapter level

TECHNOLOGY AWARD

For promoting technology innovation in advancement of the estimating profession

Intent to Submit Forms – Due March 15, 2025

Candidate Nominations and Chapter Applications - Due by April 5, 2025

Start the planning process by nominating an ASPE member who demonstrates the necessary qualities and deserves recognition for their contributions.

https://www.aspenational.org/page/Awards

2025 ScholarShip program

The American Society of Professional Estimators Foundation, Inc invites eligible candidates to apply. Scholarships are awarded to deserving students pursuing a career within the construction industry. Multiple scholarships are awarded annually.

Application Due Date - April 30, 2025

• Course of Study - Construction Related Field

• Enrolled as a Full -Time College Student

• Currently a College Sophomore or Junior

• GPA - 3.0 or Higher

• No Relationship with Any Member of Scholarship Committee

DESTINI Estimator: The Future of Preconstruction

10X Faster Bids.

Up To 35% More Opportunities To Win

In today’s competitive construction market, precision, speed, and collaboration are everything. DESTINI Estimator is the all-in-one estimating software built to give preconstruction teams the accuracy, efficiency, and confidence they need to win more bids and maximize project success.

Teams Choose DESTINI Estimator

Unified Estimating & Bid-Leveling

Data-Driven Decision Making

Customizable & Scalable

Seamless Team Collaboration

Efficiency that Wins Bids

Trusted Partner in Preconstruction Transformation

With deep expertise in guiding teams through the transition to modern estimating software, Beck Tech empowers preconstruction professionals to embrace change with confidence.

ASPE CHAPTER MEETINGS

ARIZONA

Arizona #6

Where: Aunt Chilada's Website: aspeaz6.org/index.php

Meeting Contact: Robert Carlson bobc@huntercontracting.com

ARKANSAS

Arkansas #33

Where: Varies

Website: n/a

Meeting Contact: John Lefler jlefler@baldwinshell.com

CALIFORNIA

Los Angeles #1

Where: Virtual

Website: ASPE-LA1.org

Meeting Contact: Bruce Danielson la1ofaspe@outlook.com

Golden Gate #2

Where: Virtual Website: aspe2.org

Meeting Contact: Robert Muir, CPE robmuir72@hotmail.com

Orange County #3

Where: Virtual Website: n/a

Meeting Contact: Danielle Leyva dleyva@swinerton.com

CALIFORNIA

San Diego #4

Where: Virtual

Website: aspesd4.org

Meeting Contact: Johnny Savage jsavage@pravacsi.com

CALIFORNIA (CONTINUED)

Silicon Valley #55

Where: Virtual Website: aspe55.org

Meeting Contact: Thomas Evans tevans2@HenselPhelps.com

COLORADO

Denver #5

Where: Virtual Website: aspedenver.org

Meeting Contact: Jennifer Farmer, AEP jenphar@gmail.com

CONNECTICUT

Nutmeg #60

Where: Back Nine Tavern Website: n/a

Meeting Contact: Nolan Johnson njohnson@a-zcorp.com

DELAWARE

Delware #75

Where: Virtual Website: n/a

Meeting Contact: Brett Mucklow bmucklow@bpgsconstruction.com

DISTRICT

OF COLUMBIA

Greater D.C. #23

Where: Varies

Website: n/a

Meeting Contact: Rose Jesse, CPE rosejesse.aspe@gmail.com

FLORIDA

Tampa Bay #48

Where: Varies Website: n/a

Meeting Contact: Jeremy Adkins, CPE jadkins@wccci.com

FLORIDA (CONTINUED)

Orlando #50

Where: Accenture Website: aspeorlando50.com

Meeting Contact: Dustin Reinhhart Dustin.reinhart@accenture.com

GEORGIA

Atlanta #14

Where: Virtual Website: n/a

Meeting Contact: Curt Giebeig, CPE curt.giebeig@ra-lin.com

INDIANA

Central Indiana #59

Where: Varies Website: n/a

Meeting Contact: Eric Frey, CPE ericf@mattcongc.com

Old Fort #65

Where: Virtual Website: aspechapter65.org

Meeting Contact: Dave Garman, CPE dgarman@weigandconstruction.com

IOWA

Quad Cities #71

Where: Varies

Website: aspequadcities.org

Meeting Contact: Tony Latoria tlatoria@russellco.com

ILLINOIS

Chicago #7

Where: Virtual Website: n/a

Meeting Contact: Bryan Mixer, LCPE bmixer_rvc@msn.com

ASPE CHAPTER MEETINGS (CONTINUED)

ILLINOIS (CONTINUED)

Greater Des Moines #73

Where: Varies

Website: iowaaspe73.org

Meeting Contact: Gregg Schmidt gregg@estesconstruction.com

MAINE

Maine #37

Where: Varies

Website: aspemaine.com

Meeting Contact:

John Burrell, CPE jburrell@landryfrenchconstruction.com

MARYLAND

Baltimore #21

Where: Varies

Website: n/a

Meeting Contact: Steve Dooley, CPE sdooley@phoenix-eng.com

MASSACHUSETTS

Boston #25

Where: Virtual Website: n/a

Meeting Contact: Bill Carpenter billcarpenter@aspe25boston.com

MICHIGAN

Detroit #17

Where: Virtual Website: aspe17.org

Meeting Contact: Glenn Frank, CPE glenn.frank@ymail.com

Mid-Michigan #83

Where: Varies

Website: n/a

Meeting Contact:

Jerry Giordano jgiordano@grangerconstruction.com

MINNESOTA

Viking #39

Where: Varies Website: n/a

Meeting Contact: Curt Kluznik info@aspevikingchapter.com

MISSOURI

St. Louis Metro #19

Where: AGC Training School Website: aspe19stlouis.org

Meeting Contact: John Smith, CPE jpsmith@tarltoncorp.com

Heartland #32

Where: Varies

Website: aspe32.org

Meeting Contact: Eric Soriano esoriano @hermeslandscaping.com

NEW JERSEY

Garden State #26

Where: Virtual Website: n/a

Meeting Contact: Todd Ressler, CPE tr1197@hotmail.com

NEW MEXICO

Roadrunner #47

Where: Fiestas Restaurant Website: n/a

Meeting Contact: Alicia Sierra alicia@condeck.com

NEW YORK

New York #10 Where: Virtual Website: n/a

Meeting Contact: Matthew Martin aspe.chapter10@gmail.com

NEW YORK (CONTINUED)

Empire State #42

Where: Athos Resturant

Website: n/a

Meeting Contact: Alvaro Garza alvaro.garza@nationalgrid.com

OHIO

Southwestern Ohio #38 Where: Varies

Website: aspe-cincinnati.org

Meeting Contact: Megan Golden megan.golden@jsheld.com

OKLAHOMA

Landrun-OK City #80

Where: Varies

Website: aspeok.org

Meeting Contact: Mike Phillips, CPE michaelp@miller-tippens.com

PENNSYLVANIA

Three Rivers #44

Where: Varies Website: n/a

Meeting Contact: Kevin Sheahen kevin.sheahen@aecom.com

Philadelphia #61

Where: Varies

Website: n/a

Meeting Contact: Stephen Biddle SBiddle@oliverfps.com

Central Pennsylvania #76

Where: Loxley's Resturant Website: n/a

Meeting Contact: Simon Knox sknox@jemgroup.com

ASPE CHAPTER MEETINGS (CONTINUED)

TEXAS

Rio Grande #40

Where: Varies

Website: n/a

Meeting Contact: Jose Lopex jalopez@sundt.com

Dallas/ Ft.Worth #43

Where: Virtual Website: sites/google.com/view/aspedfw

Meeting Contact: Steve Patmon spatmon@sjpadesign.com

VIRGINIA

Richmond #82

Where: Varies

Website: aspe-richmond.org

Meeting Contact: Robert Skipper, CPE rskipper@ rmt-construction.com

WASHINGTON

Puget Sound #45 Where: Virtual

Website: na

Meeting Contact: Eric Ross, CPE laurenanderic@comcast.net

WISCONSIN

Brew City #78 Where: Varies

Website: na Meeting Contact: Tony Schuchardt tschuchardt@ berghammer.com

Please Note: Information is subject to change. Report changes in your Chapter’s information with an email to Tina@ASPEnational.org

ASPE Critical Calendar

Be up to date with all of ASPE Deadline -Learn More

ASPE Industry Awards

Best Estimate

The ASPE Industry Best Estimate Award honors those entries that display the best overall estimate of a proposed project across any sector. Benchmarks can include, but are not limited to, the following.

- Estimate Efficiency

- Estimate Accuracy

- Budget Control

- Material Efficiency

- Revisions

- Client Satisfaction

- Tools and Technology Used

Best Project

The ASPE Industry Best Project Award is given to the entry in its subcategory that displays excellence in all project benchmarks across the entire scope and process of the project submitted.

- Design Build

- Use of Technology

- Technology Solutions

- Client Satisfaction

- Community Involvement

Most Innovative Project

The ASPE Industry Most Innovative Project Award honors those projects that display the most unique and innovative benchmarks across the entire scope and process of the project submitted. Benchmarks can include, but are not limited to, the following.

- Innovative Design Build

- Creative Design Build

- Technology Elements of Project

- Technology Solutions

- Green Innovation

- Community Involvement

- Addressing Environmental or Coding Concerns

All Entries Must Include a Project Narrative

Narrative’s must not exceed a maximum of 750 words. The narrative should focus on why the project should be considered the best in its category. This information will also be used for the award presentation if selected as a recipient. Note: The descriptions of each of the required elements are meant to be used as guidelines. You should interpret all criteria based on your own unique project submission and respond accordingly.

Visual Presentation

While points are not awarded for the visual presentation, the photos may impact your entry in that they help to tell your story. Support your narrative with photos that display the scope and process of the project and any challenges described in the narrative. You may include up to three photos in your project submittal.

EDUCATION:

ASPE educates and mentors professional estimators for the sustainability of the construction industry.

PROFESSIONALISM:

ASPE promotes the lifelong pursuit of excellence and credibility in professional estimating.

FELLOWSHIP:

ASPE develops a fellowship of professional estimators that connects and leads the construction industry.

ASPE is the construction industry’s leader and recognized authority in professional estimating through excellence in education, certification and standardization.

Turn static files into dynamic content formats.

Create a flipbook
Issuu converts static files into: digital portfolios, online yearbooks, online catalogs, digital photo albums and more. Sign up and create your flipbook.