
8 minute read
Odissea Rurale Jimmi Pianezzola
Odissea Rurale
Caldogno
Advertisement

L’abitazione si apre a sud con il portico e il giardino d’inverno che, d’estate, diventano il prolungamento esterno delle aree living.

Immersa nella campagna, la residenza si nasconde nella natura che la circonda per garantire adeguata privacy ai suoi abitanti.

Ubicazione: Caldogno (VI) Progetto architettonico: arch. Jimmi Pianezzola, Vicenza Strutture: Arpostudio srl, Bergamo Direttore dei lavori: arch. Jimmi Pianezzola, Vicenza Impianti: Tomasi Progetti, Schio (VI) Appaltatore struttura legno: Casalogica srl, Brescia Lavori: 2018-2019 Superficie verde: 1.800 m2 Superficie utile: 200 m2
Fotografie edificio finito: Alberto Sinigaglia, Jimmi Pianezzola
Uno scrigno di paglia
Nelle vicinanze di Caldogno, piccola cittadina alle porte di Vicenza dove è situata una villa del Palladio, su un lotto libero in aperta campagna sorge un’abitazione realizzata interamente in legno e paglia. Questo edificio è il secondo progetto con questa tecnica costruttiva affrontato dall’architetto Jimmi Pianezzola, il quale ha cercato di soddisfare appieno le richieste dei committenti che cercavano una costruzione sana, un focolare per cucinare pane e pizza, un grande portico per accogliere anche d’inverno gli ospiti e un grande spazio libero al piano primo. Il progetto trova origine da un’attenta analisi svolta sul territorio, attraverso la mappatura di edifici rurali storici dell’area, e dagli elementi, sorprendentemente ricorrenti, che questa ricerca ha messo in evidenza, quali l’orientamento sulla rosa dei venti, le proporzioni delle aperture, i dispositivi di schermatura solare. A ciò, si aggiunge la ben nota architettura rurale veneta che, in questo contesto geografico, si manifesta sostanzialmente in piccole stanze d’abitazione, un focolare, un portico per la vita all’esterno, un fienile-granaio e verande che fungono da piccole serre solari ante litteram. Da questi elementi fondanti prende dunque le mosse il progetto e i successivi modelli di studio che a diverse scale hanno consentito di comprendere gli spazi mentre venivano ideati, permettendo inoltre ai clienti di catturare con uno sguardo la loro futura casa. L’edificio è orientato allo stesso modo dei fabbricati della tradizione locale, con una deviazione del fronte principale di pochi gradi verso ovest rispetto al sud, così da assicurare il massimo soleggiamento invernale, la perfetta protezione dai venti freddi invernali e il raffrescamento con le brezze dominanti estive. Pertanto, la casa, che presenta un modello spaziale ABAB, può essere organizzata diversamente a seconda della stagione – il portico estivo diventa un grande giardino d’inverno e il giardino centrale una serra bioclimatica – e, in virtù di questa flessibilità d’uso che segue il clima, le configurazioni della dimora sono state definite dall’architetto ‘piante stagionali’. L’abitazione è stata inoltre pensata per avere prospettive specifiche da punti di vista privilegiati e, più in generale, in modo che gli spazi interni siano dinamicamente interconnessi.
La casa all’esterno mostra una grande uniformità – qui l’angolo nord ovest – mentre all’interno è organizzata secondo una spiccata differenziazione e articolazione, come fosse la navicella Space Odissey atterrata in campagna.



Studi delle configurazioni. Da sinistra: configurazione estiva aperta con gli spazi che ombreggiano le aree e diventano prolungamenti delle aree interne; configurazione invernale chiusa con il giardino d’inverno (in giallo), i portici (in azzurro) e la serra (in verde); schema della ventilazione naturale della casa; le prospettive visive dell’abitazione.

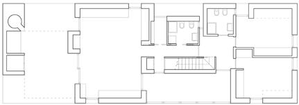
Pianta piano terra

Prospetto nord

Prospetto sud Prospetto ovest


Prospetto est Sezioni trasversali
_legno e paglia________
È noto che la paglia sciolta è un materiale altamente infiammabile; tuttavia, i muri in balle di paglia non lo sono, perché queste ultime sono altamente compresse con presenza di pochissimo ossigeno al loro interno e quindi bruciano con molta difficoltà. È stato testato che un muro in balle di paglia, intonacato sulle due facce con intonaco in terra cruda di circa 3 cm, raggiunge una resistenza al fuoco 120 minuti. In questo edificio residenziale la tecnologia costruttiva prevede l’impiego delle ballette di paglia utilizzate come grandi mattoni di tamponamento a chiusura della struttura intelaiata di legno delle pareti, oltre che di intonaci completamente privi di cemento, per favorire la traspirabilità, e con inerti leggeri quali, ad esempio, calce e canapa. Tale pacchetto parete è più economico rispetto alle tecniche costruttive tradizionali e assicura consumi energetici molto bassi; inoltre, il processo produttivo e il ciclo di vita del manufatto richiedono bassissimi livelli di energia grigia.
Gli interni della casa, articolati nella composizione, sono di colore chiaro per enfatizzare la luce naturale che entra dalle ampie aperture vetrate.
Nella pagina accanto, in senso orario: dettaglio del portico che, nella stagione fredda, può diventare un giardino d’inverno; il giardino delle piante grasse a sud –la loro coltivazione è un hobby dei proprietari – con le travi della copertura che fuoriescono dal pacchetto tetto per ombreggiare le vetrate del piano superiore; particolare dello stesso giardino; altra vista del portico che offre un’area ombreggiata nella bella stagione.
Jimmi Pianezzola, laureato presso l’Università IUAV di Venezia, nel 2011 fonda il proprio studio di architettura. Ha progettato numerosi edifici e piani urbanistici approfondendo in particolare il tema dell’architettura domestica. Da sempre interessato ai temi dell’ecologia e della sostenibilità in edilizia, progetta e segue la realizzazione di costruzioni e dimore altamente sostenibili, appropriate al clima e al luogo in cui si insediano, figlie dello spirito del proprio tempo e pensate per resistere al suo trascorrere. È autore del libro ‘Casa Elementare – Elemental House’, un piccolo manifesto architettonico che è contemporaneamente un racconto personale sul tema della casa e discorso di metodo sulla progettazione delle costruzioni ecologiche.
Questa è la seconda casa che ha realizzato in legno e paglia. Se dovesse consigliare questa tecnica costruttiva, quali peculiarità metterebbe in evidenza?
Mi fa piacere qui sottolineare un solo aspetto di carattere generale rispetto ai risvolti positivi per il clima derivanti dall’uso della paglia per le costruzioni. Il processo produttivo e il ciclo di vita del manufatto richiedono bassissimi livelli della cosiddetta energia grigia. La paglia è naturale, ecologica e il suo impiego in edilizia porta a un’impronta di carbonio negativa. Durante la crescita delle piante, dalle quali si ottengono la paglia e il legno, si accumula CO2 che non viene rilasciata in atmosfera ma conservata in essi. Per dare un’idea, i chilogrammi di gas tossici emessi in atmosfera per la produzione di 1 m2 di parete per casa passiva (con trasmittanza pari a 0,1 W/m2K) sono 108 kg/m2 nel caso di un blocco in calcestruzzo aerato e isolato con polistirolo espanso, mentre una parete in balle di paglia intonacata in terra e calce al contrario assorbe 88 kg/m2 di CO2, cioè ha contribuito a ridurre l’effetto serra.
Può sottolineare alcune scelte bioclimatiche e di sostenibilità messe in atto nell’abitazione?
Come già sottolineato, l’edificio ha un orientamento tale da essere protetto dai venti dominanti e da sfruttare allo stesso tempo le brezze estive per il raffrescamento; il portico e la serra bioclimatica sono pensate per essere dei collettori solari passivi durante i mesi invernali e delle grandi zone d’ombra in estate e ogni apertura è progettata per essere ben collocata dal punto di vista dello spazio interno, dell’illuminazione e ventilazione interne e delle proporzioni esterne. La climatizzazione, come la produzione di acqua calda e di elettricità, sono affidate a un sistema di pannelli fotovoltaici e a una pompa di calore con accumulo di acqua: la casa infatti non è collegata all’utenza di gas metano!






D
Parete involucro non riscaldato dall’esterno (A) - intonaco esterno a base di calce (3 cm) - parete in legno e paglia (25 cm) - intonaco interno a base di calce (3 cm) - perlina trattata (20 mm) Parete involucro non riscaldato dall’esterno (B) - lastra in fibrocemento, rasato e intonacato (2 cm) - isolamento in lana di roccia - struttura in legno lamellare - lastra in fibrocemento, rasato e intonacato

A
Parete involucro riscaldato dall’esterno (C) - intonaco esterno a base di calce (3,5 cm) - parete in legno e paglia (36 cm) - intonaco interno a base di calce (3,5 cm) Parete interna da bagno verso camera (D) - rivestimento in piastrelle di gres (1,5 cm) - doppia lastra in cartongesso (1,25+1,25 cm) - struttura in legno con montanti (14x4 cm) e isolamento in fibra di legno interposto (14 cm) - doppia lastra in cartongesso (1,25+1,25 cm)
B

Copertura dall’esterno (A) - manto di copertura in coppi - strato di ventilazione - telo impermeabile - pannello in legno (2 cm) - struttura tetto e strato di isolamento in paglia (36 cm) - freno al vapore - pannello in legno (2 cm) Solaio controterra, dall’estradosso (B) - pavimento in legno (2 cm) - pannello in legno (2 cm) - massetto isolante a secco in legno e lolla di riso (12 cm) - cappa collaborante in c.a. (10 cm) - isolante in XPS (15 cm) - vespaio areato in ghiaia (25 cm)







