
11 minute read
MODERN ZONING CODE USER GUIDE
Traditional Residential (R-1C) zoning is located in nearly all Boise neighborhoods and makes up 25% of the land within the city. To view where R-1C is located currently and where it is proposed, visit the Zoning Conversion Map.
The standards for Traditional Residential (R-1C) are modeled from the guidance in Blueprint Boise for Suburban and Compact Neighborhoods. Specifically, the dimensional standards and allowed housing types are informed by Chapter 3 Community Structure and Design and the following elements:
“Detached single-family homes are predominant but a variety of housing types including duplexes, triplexes, townhomes, apartments and condominiums could be allowed. Residential densities typically are between 6-15 units/acre. Neighborhood activity centers with retail, restaurants, employment and other services are encouraged within walking distance. Pedestrian-oriented streetscapes are desired.”
DIMENSIONAL STANDARDS: SECTION 11-02-02.3
Dimensional standards determine how a building will be situated on a lot and the potential building envelope. Usespecific standards or other provisions within the code may include standards that are more or less strict, depending on the situation: for example, a rear setback may be reduced for a smaller garage with alley access. The following table summarizes the baseline dimensional standards that apply across the entire R-1C zoning district.
Note: maximum density is a calculation of dwelling units per acre. A dwelling unit is a building designed for or used as a residence for not more than one household. It must constitute a separate and independent housekeeping unit, with a single kitchen permanently installed. More information about definitions and rules of measurement can be found in Chapter 11-06, Definitions.
Lot Size
NOTE: The creation of any new lot requires approval through the subdivision process. The subdivision process requires public hearings at both the Planning & Zoning Commission and City Council. Subdivisions must address all required infrastructure improvements including sidewalks.

NOTE: The zoning code proposal changes the way height is measured. Existing code measures buildings to the midline of a sloped roof. To simplify measurement, the proposed code requires measuring height to the highest point of a building regardless of roof type. See illustrated example below.
NOTE: *In the existing code, the allowance for a 15-feet setback for the remainder of structure is only for single-family and duplexes dwellings.
NOTE: *In the existing code, the allowance for a 15-feet setback for the remainder of structure is only for single-family and duplexes dwellings.
Measuring Height
TABLE OF ALLOW USES: SECTION 11-03-02
The Table of Allowed Uses names general “use categories” and specific “uses” based on common, functional, or physical characteristics such as the type and amount of activity, the type of customers or residents, how goods or services are sold or delivered, and site conditions. The Table of Allowed Uses determines what activities are considered permitted or “allowed by-right,” conditional (a use that requires a public hearing for approval and is reviewed for compliance with the comprehensive plan, availability of services, compatibility, and possible adverse impacts upon neighboring properties), or allowed only if meeting incentive requirements.
Current Code Modern Zoning Code
Allowed Uses
Residential Uses
• Accessory Dwelling Unit (ADU)
• Single Family Detached
• Duplex
• Group Home
• Manufactured Home
• Home Occupation including Daycare & Swimming Lessons
Public, Institutional, and Civic Uses
• Afterschool Child Care
Commercial Uses
• Microcell Wireless Communication Facility (WCF)
• Utility Facility Minor
• Public Service Poles 85 feet or under
• Urban Farm
• Recycling Drop-Off Center
Residential Uses
• Accessory Dwelling Unit (ADU)

• Single Family Detached
• Single Family Attached
• Duplex
• Group Home
• Manufactured Home
• Cottage Village
• Live/Work
• Home Occupation including Daycare
Public, Institutional, and Civic Uses
• Park or Playground
Commercial Use
• Attached Wireless Communication Facility (WCF)
• Utility Facility Minor
• Neighborhood Café (Corner Lot)
• Bed and Breakfast
• Neighborhood Retail Sales (Corner Lot)
• Electric Vehicle Charging Facility
Conditional Uses
Residential Uses
• Manufactured Home Community
• Triplex
• Fourplex
• Multi-family Building, 3 - 6 units, not to exceed 20 units per acre
• Planned Unit Development
Public, Institutional, and Civic Uses
• Childcare 7-21+ children
• Monopole WCF, less than maximum height of zone district
• Visually unobtrusive/attached WCF
• Government buildings, non- industrial
• Recreation center
• Religious institution
• Uses related to a religious institution
• Library
• School
• Private commercial school
• Golf course & driving range
• Park or playground
Commercial Uses
• Utility facility major
• Public service poles over 85 feet
• Recreation, commercial – indoor
• Social event center
• Swimming pool, commercial
Residential Uses
• Manufactured Home Community
• Co-Housing
Public, Institutional, and Civic Uses
• Art gallery, museum or library
• Religious institution
• Uses related to a religious institution
• School
• Community center
• Fire or police facility
• Golf course
• Recreation indoor
Commercial Uses
• Freestanding wireless communication facility –monopole/structure > base height of zoning district
• Other communication tower
• Recreation outdoor
• Neighborhood café (interior lot)
• Neighborhood retail sales (interior lot)
• Utility Facility Major or Minor
Must Meet Incentive Requirements for Affordability and/or Sustainability
N/A
Residential Uses
• Single Family Attached
• Triplex
• Fourplex
• Multiple Family
MODERN ZONING CODE R-1C INCENTIVES: SECTION 11-04-03.7
A large component of the Modern Zoning Code’s framework is the provision of incentives to ensure new development is affordable and sustainable for Boise residents. These seven incentives are outlined below. More information on income limits for affordable housing can be found on the city’s website
Incentive #1: Residential Large Lot, Suburban, & Traditional Zones:


To qualify for up to 4 units, the required qualifications to be eligible for the incentive include:
• Must be within the Residential Large Lot, Suburban, or Traditional Zones (R-1A, R-1B or R-1C).
• Affordable: 1 of 3 or 2 of 4 units are affordable to households earning 80% (rental) or 120% (ownership) Area Median Income (AMI) or below for a term of 50 years.
• Sustainable: Incorporate design and infrastructure elements that support clean energy, energy savings, and water savings.
Incentive #2: “Strategic Infill”:
Required qualifications to be eligible for the incentive:
• Must be within the Residential Suburban or Traditional zoning district (R-1B or R-1C)
• The property must meet one of the following location criteria:
• 300 feet from a collector or arterial designated by the ACHD Master Street Map
• ¼ mile from MX-3, MX-4, or MX-5
• The property must meet all site criteria:
• 55 feet of street frontage
• Vacant lot or structure value is equal or less than the 25% of the value of the land or the existing building is incorporated
• No approved demolition in past 3 years
• Any new surface parking or garage located to the rear of structure (must use alley access if available)
Incentive Received & Affordability Requirement
If the property meets the above location and site criteria, the development can do the following:
• Build 4 units
• Build 5-8 units with a 50% parking reduction if at least one unit is deed-restricted affordable at 80% AMI (rental) or 120% AMI (ownership), for a term of 50 years
• Build 9-12 units with a 50% parking reduction if at least two units are deed-restricted affordable at 80% AMI (rental) or 120% AMI (ownership), for a term of 50 years
Incentive #6: Accessory Dwelling Units (any residential zoning district)
Waive owner-occupancy requirement of either the primary dwelling or the accessory dwelling unit if one of the units is affordable to households earning 60% Area Median Income (AMI) or below for a term of 50 years.
Incentive #7: Adaptive Reuse
If the existing building is reused and/or increased in size less than 10% in the R-1A, R-1B, R-1C, R-2, and R-3 zoning districts, the project will not be subject to the dwelling unit per acre density limit and receive a 50% parking reduction.
DEVELOPMENT AND DESIGN STANDARDS: CHAPTER 11-04
Any developments within our neighborhoods are required to comply with various design and development standards. The following provides a summary of some of the most common requirements.

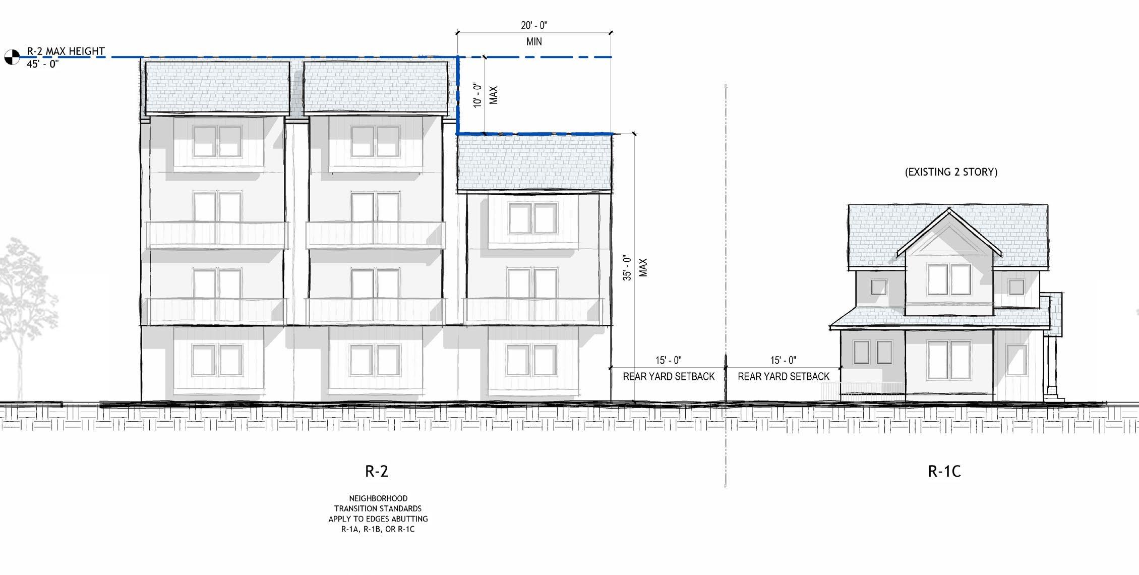
Height Transitions
HEIGHT TRANSITIONS APPLICABLE TO R-1C
Any project abutting a single-story building
If the project is within R-2, R-3, or a Mixed-Use zoning district and abutting an R-1C property
TYPE OF TRANSITION
The 3rd story must be set back 10 ft. (pg. 195)
Must follow 11-04-03.5 Neighborhood Transition Standards. (pg. 206)
Setbacks:
• Primary building must use side and rear setbacks matching the R-1C zone
Height:
• Height of project is limited to 35 ft. at the required setback
• Any portion of the building between 35-45 ft. must be set back an additional 20 ft. from the required setback
• Any portion of the building above 45 ft. tall must be set back an additional 30 ft. from the required setback
If project includes a Duplex, Triplex, Fourplex (any zone)
Must follow 11-03-03.2G(7)(i) Duplex, Triplex, Fourplex Use-Specific Standards for stepping in on the second and/or third story regardless of what the project is adjacent to (pg. 154)
If a project is on a lot smaller than 3,500 sq/ft. and abutting a single or two-story building
Must follow 11-04-03.4D(2) Residential Small Lot Standards limiting project to 2 stories and not to exceed 35 feet (pg. 203)
Parking: Section 11-04-08

The Modern Zoning Code establishes new standards for vehicle and bike parking. The requirements for parking are established by the proposed use. The following chart shows how the existing code compares to the proposed for common allowed uses within the R-1C zone. To view the full table, see Section 11-04-08.5 Minimum and Maximum Off-Street Parking Standards.
REQUIRED OFF-STREET VEHICLE PARKING
1
2
3+
Subdivision: Section 11-04-04
A subdivision is the division of land into individual lots for sale. Existing code allows land to be divided up to 4 individual lots through an expedited, administrative process called Minor Land Division. In the Modern Zoning Code, any “lot split” is considered a subdivision and subject to the following approval requirements:
• A subdivision application is required for any project that creates two or more buildable lots.
• Notice of subdivision application will be transmitted to Neighborhood Associations and posted on the Community Development Tracker. Mailed notice to neighbors and posted notice is required for projects greater than five acres.
• Approval of a subdivision application requires public hearing at both the Planning and Zoning Commission and City Council.
• Infrastructure improvements including installing curb, gutter, and sidewalk are required for approval.
Landscaping & Tree Canopy: Section 11-04-09
The Modern Zoning Code establishes requirements to encourage climate-appropriate landscaping as well as growing our tree canopy. Below lists several of the new requirements in the landscaping section:
Water-Wise Landscaping
• At least 25% of non-tree materials must be native flowering and nectar-producing plants
• Reducing use of water-intensive lawn species (e.g., Kentucky Bluegrass)
• No more than 33% of landscaped area on site
• Prohibited in difficult-to-maintain areas less than 6’ in width
• Prohibited in areas solely for decorative purposes (e.g., roundabouts, parking lot islands, etc.)
• Non-potable water must be used for irrigation to the maximum extent practicable in all landscaping and subdivisions
• New design standards to encourage the use of xeriscaping and stormwater filtration swales
Growing Our Tree Canopy:
• Reduce tree spacing requirements to increase a continuous tree canopy
• Up to 10% parking reduction in exchange for preserving healthy trees on site
• 1:1 tree mitigation with trees 1.5 caliper inch or greater
• Requirements for species diversity when 5 or more trees are planted
• Detailed requirements for protection of trees during construction
• Curbing required to protect trees in planting areas that border vehicle use areas
• Class III trees required every 60 ft. of perimeter landscape
• At least one Class III tree required in each parking lot planter island
• Street Frontage Landscaping:
• Largest possible class of tree must be planted in street frontage landscaping
• 1 tree per 40 linear ft.
• Minimum 8’ width for Class II and III trees, or 10’ width for Class I trees
• Class I trees only allowed where overhead powerlines prohibit use of a larger class
To learn more about tree classifications and species types, see the Treasure Valley Tree Selection Guide
Assured Water Supply: Section 11-04-010
The proposed Assured Water Supply requirements are in response to community interest in long term water supply considerations and sustainable development. The proposed requirements are comparable to approaches in other western states. All new development and redevelopment with five units or more are required to demonstrate assured water supply. The code exempts redevelopment projects that do not increase existing consumptive water use. Demonstration of Assured Water Supply include:
• Legal Water Availability (Water Rights) to serve proposed development
• Adequate delivery: infrastructure is viable to provide water for 50-year timeframe
• Financial Capability: there is the financial capability to fund construction, operation, and maintenance
• Water Availability and Quality: There is demonstrated ability to meet forecasted demand at full buildout, and at required quality levels, for a period of 50 years
PROCESS & PROCEDURES: CHAPTER 11-05
The current zoning code has a different process of review and notification for 37 different planning applications. Applications may be reviewed and approved at the same time a building permit is issued, approved administratively by the Director, or approved by the Hearing Examiner, the Planning and Zoning Commission, Historic Preservation Commission, Design Review Committee; and/or by City Council.
The Modern Zoning Code creates four different types of applications. Each type of application is reviewed by a different review body and has a standard set of requirements for neighbor notification, approval, and appeal. The table below shows the categorization of common applications within the R-1C zoning district.
The Modern Zoning Code also establishes a new process called Interdepartmental Review, where city departments and other relevant agencies meet to review a proposed project before an application submittal. Interdepartmental Review is required for some administrative applications and all appointed and elected body review applications.
•
•
• Home Occupation
• Hillside Category 1 & 2
• Minor Small Lot
• Accessory Dwelling Unit
• Duplex
• Other Allowed Uses Including Incentives*
• River System Permit
• Conditional Use Permit – Modification*
• Minor Design Review*
Planning
• Major Expansion of a Nonconforming Use
• Conditional Use Permit
• Hillside Category 3
• Complex River System Permit
Design Review Commission:
• Major Design Review
• Major Small Lot
Historic Preservation Commission:
• Certificate of Appropriateness
• Comprehensive Plan Amendments
• Zoning Ordinance Amendments
• Annexation/Rezone
• Planned Unit Developments
• Subdivisions
• Subdivision Related Items
Type 1 Applications
Type 1 applications require simple review and are typically approved during a planning review of building permits. These applications have minimal notice. The table below shows a comparison of noticing procedures for current common R-1C applications that will be most similar to Type 1 applications in the proposed code.
Type 2 Applications
Type 2 applications are typically an allowed use, or a use only allowed if meeting incentive requirements. These allowed uses have use-specific standards that enable consistent review by staff. Noticing for Type 2 applications include a transmittal to Neighborhood Associations of any action as well posting on the Community Development Tracker. Any individual can sign up for notifications on the Community Development Tracker and will be notified of development activity near them.
Below shows a comparison of noticing procedures between common R-1C applications that will be most similar to Type 2 applications in the Modern Zoning Code.
TRANSMITTAL
Type 3 & Type 4 Applications
Type 3 and type 4 applications are reviewed by appointed or elected bodies. The Modern Zoning Code does not change the notification process for these application types as most have state mandated requirements. Applicants are still required to mail notice of a mandatory neighborhood meeting and the city will still mail notice to neighbors after submittal of an application as well as electronically transmit to Neighborhood Associations and agencies. Type 3 and Type 4 applications are also posted on the Community Development Tracker. Common Type 3 applications include a Conditional Use Permit, Variance, or Major Design Review. Common Type 4 applications include a Rezone, Comprehensive Plan Amendment, and Zoning Ordinance Amendment.
Potential Scenarios
The goal of a zoning code is to create rules that will foster creative design and provide the types of development that contribute to the goals of the city. Below shows several potential examples of how property can be developed within the R-1C neighborhoods.
A THREE-STORY HOME NEXT TO A SINGLE STORY HOME

A TWO-STORY HOME ABUTTING R-2 (BACK-TO-BACK) IN R-1C



